Abstract
Some wrong decisions and faulty practices applied during the repair and restoration of traditional buildings cause more damage to the structures due to the materials used in the repair. The aim of this study is to establish a scientific basis for material selection in the repair of traditional buildings in the Konuralp region through chemical and petrographic analyses. In this study, brick, mortar, plaster, and wood samples were taken from one registered building in the Konuralp neighborhood of Düzce Province that has survived to the present day by preserving its original structural features and reflecting the characteristics of traditional housing. Chemical and petrographic analyses were carried out on the samples. In line with these analyses, a scientific basis was created for selecting material properties in the repair and reuse processes of traditional buildings and suggestions are made for the analysis of materials specific to traditional buildings in Konuralp.
1. Introduction
Cultural heritage symbolizes the continuity of the elements of a culture that make up a society. The transfer of cultural heritage, which cannot be renewed or reproduced, to future generations is a social responsibility. Architectural heritage includes all buildings and building groups that need to be protected according to holistic conservation legislation and has various scales and unique values [1].
Our traditional buildings, which are part of our cultural architectural heritage and have value, were built in different parts of Anatolia with varying construction systems and material properties. Despite conservation approaches, structural damage to traditional buildings over time and repairs made with inappropriate methods and materials have caused problems. For this reason, our traditional cultural heritage, which cannot be reproduced, is struggling to exist in every corner of Anatolia. However, its sustainability can be ensured through transformation and appropriate conservation policies.
It is important to prevent damage that may occur in buildings due to incorrect material selection in conservation and repair, to determine the chemical, physical, and mechanical properties of the original materials of the building, and to ensure structural and cultural continuity by producing the material to be used in repair according to the results of the analysis [2]. Arslan et al. examined an ancient theater and the registered buildings around it within the boundaries of the Düzce Konuralp Çiftepinarlar neighborhood, which is within the boundaries of a Grade I archaeological protected area. They concluded that the historical texture around the theater has preserved its existence in the street and ground texture. However, new constructions built using reinforced concrete have had a negative impact on the wooden frame–half-timber construction technique, which is the general characteristic of the settlement [3]. Tuna presented a holistic conservation approach within the framework of the Düzce Konuralp archaeological park, integrated with the existing protected area of the surrounding buildings in a social, cultural, and commercial environment [4].
Various studies have been carried out to define the properties of traditional and historical building materials and to contribute to the reproduction of these materials. Karabulut documented the compatibility of some building materials with the standards in light of the scientific data by applying physical, mechanical, and chemical analyses to samples of interior plaster, exterior plaster, and stone from traditional houses in the Trabzon Akçaabat Orta neighborhood in the Eastern Black Sea Region [5]. Koç investigated the system and material properties of the buildings of a settlement to document the structural features of the Bursa Gölyazi Region. Physical, mechanical, and chemical analyses were performed on brick, mortar, wood, and stone samples taken from the selected buildings, and the comparative results of the samples were shared [6].
While new building materials are produced by determining the structural properties of materials, studies that have enabled the production of materials by using additives compatible with the raw materials have also been carried out. Acting with this understanding, Çağlar aimed to improve the properties of a blended brick used as an exterior wall-filling material in Kastamonu traditional houses that were slated for demolition. As a result of the study, it was determined that a boron waste additive can be used in the production of blended bricks [7]. Şahin conducted comprehensive analyses of the brick, mortar, and plaster samples of buildings from different periods to determine the characterization of the bricks used in the construction of the 19th century Bab-i Seraskeri Hospital (Istanbul University Faculty of Political Sciences), together with its restoration and intervention in different periods. The test results concluded that the samples used in different periods showed different physical and mechanical properties and that their mineralogical structures differed [8]. In another study conducted by Sayın on mortar, plaster, and wood materials belonging to the same building, chemical and mineralogical analyses were performed. The wood samples were identified via petrographic analysis. Protein–oil activity tests and water-soluble salts of mortars and plasters were analyzed. The acid loss, ignition loss, petrographic analyses, and binder–aggregate definitions and contents were determined, and recommendations were made for materials to be used in the repair [9]. In the study conducted by Akbulut Ekşi on investigating the compatibility of lime mortars used in the rehabilitation of historical buildings, with mortars created using original materials in the building, recommendations were given for the selection of mortars to use two different aggregate types, silica-based sand and brick crumb, and to use materials with pozzolanic properties, such as lime, silica fume, fly ash, slag, and brick dust, as binders [10]. Gür investigated the feasibility of producing pozzolan-added hydraulic lime-based mortar for repair in historical buildings. It was concluded that the samples produced gave different results in different pozzolan types, and the repair mortars produced showed similar physical properties to the original building materials [11]. In one study, Ozgunler and Ozgunler investigated the usability of traditional lime-based mortars by reproducing them with local materials to be used in the repair of historical buildings. A repair mortar with added pozzolan was produced, and it was concluded that its properties were similar to those of the original mortars [12].
In this study, chemical and petrographic analyses were conducted on material samples taken from a traditional building located at Parcel No. 1766, Kaleler Street, Konuralp neighborhood, Düzce province that has preserved its original structural characteristics to the present day. The findings provide recommendations for material selection in repair processes. The data obtained can be used to guide the selection of materials in the restoration and reuse processes of buildings and contribute to the scientific framework.
2. Materials and Methods
2.1. Material
The building on the plot numbered 1766 in the Konuralp neighborhood of Düzce is located within the boundaries of an area declared a Grade 2 archaeological site by the Kocaeli Regional Board for the Protection of Cultural Assets, dated 13 March 2013 and numbered 889. The building on the plot in the Çifte Pinarlar location of Konuralp is registered as a Group 2 cultural asset by the same board, dated 30 September 2015 and numbered 2221. The location map and a visual of the location of the plot in question is shown in Figure 1.
Figure 1.
The location map and a visual of the location of the plot in question.
2.1.1. Building with Plot Number 1766
The Konuralp Central Mosque is located to the southeast of the building, and the Prusias ad Hypium Ancient Theater is located to the northeast. The house, consisting of two floors, the ground floor and the first floor, was built with a wooden roof system, and wood was used as the filling material. Adobe was used as the filling mortar between the timbers. Paint was applied over mud plaster on the interior and exterior walls. The bird’s eye view, plans, and section and layout plans of the building are given in Figure 2.
Figure 2.
The bird’s eye view, plans, and section and layout plans of the building.
2.1.2. Samples Taken from Plot 1766
The general structure of the building consists of a wooden filling between wooden frames. Filling mortar was used as the binder in the parts built with filling wood. A sample of filling mortar between timbers was taken from the eastern façade of the building, exterior plaster was taken from the northern façade, and interior plaster was taken from the interior. The samples taken are shown in Figure 3.
Figure 3.
Mortar and plaster samples of building number 1766: (a) interior plaster number H5, (b) exterior plaster number H6, and (c) filling mortar number H7.
In traditional Turkish houses, there are often areas called loaders/built-in wardrobes next to the stoves, which are usually located in the rooms. These built-in wardrobes were included in planning during construction. Samples were taken from the building to determine the type of wood used in the wardrobe of one of the rooms. The stone base of the building is not high enough, which caused the floor covering to be built too close to the ground and, in some places, the floor coverings have collapsed and rotted. A floor covering sample was taken from one room of the building to determine its type. The wood samples are shown in Figure 4.
Figure 4.
Images of wood samples: (a) cabinet joinery and (b) floor covering.
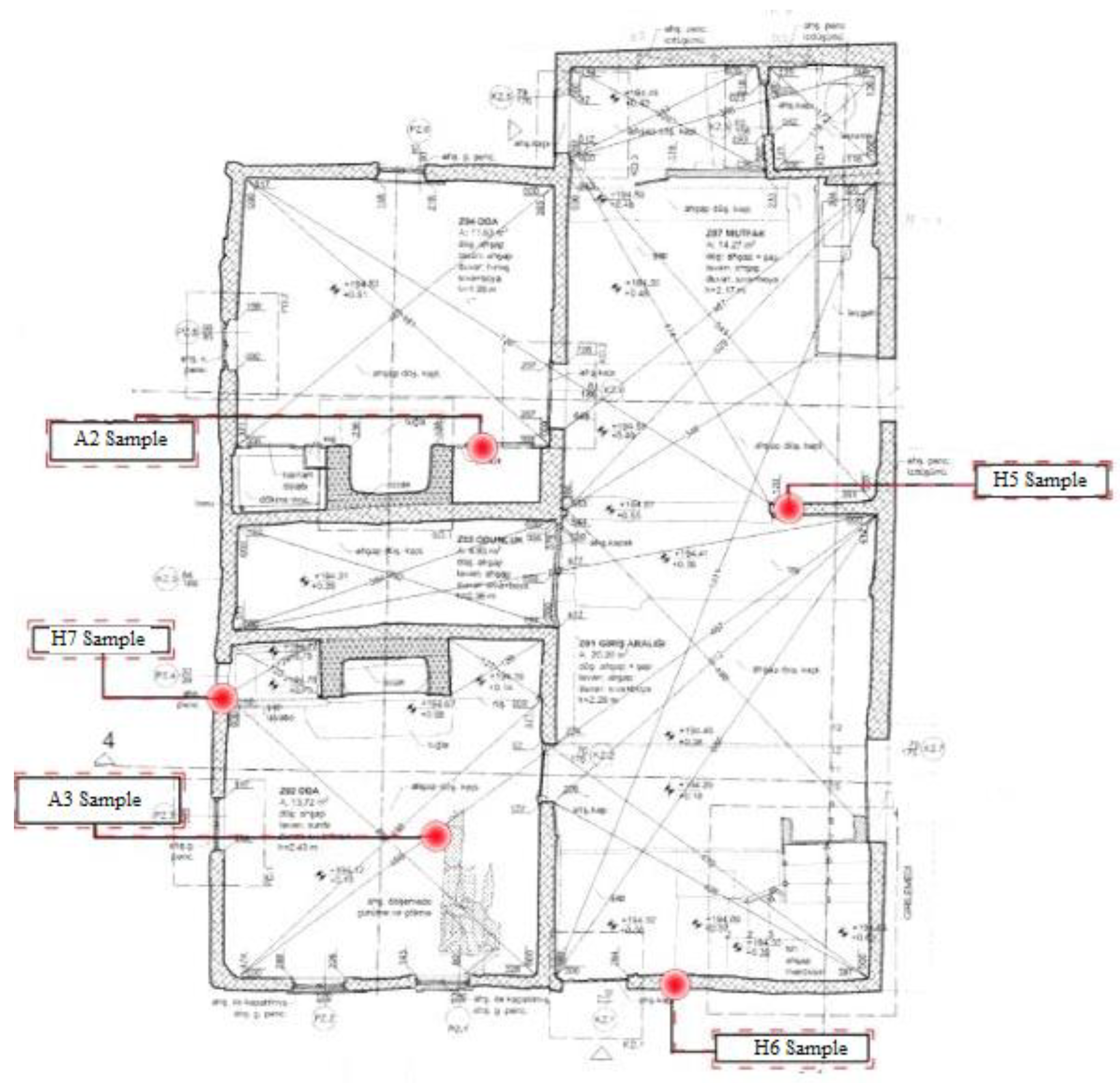
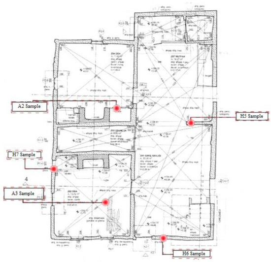
In order to proceed systematically during the sample collection and to record the locations of the samples taken, survey drawings of the building obtained from the Düzce Municipality [13] were used. Figure 5 shows the ground floor sampling sheets.
Figure 5.
Plot 1766. Ground floor sampling numbers are given on the blueprint.
The descriptions and coding systems of the samples taken from the structure and the list showing the structure to which they belong are given in Table 1.
Table 1.
Sample codes and structures.
2.2. Method
Mortar, interior plaster, exterior plaster, and wood samples were taken from the registered buildings located in the Konuralp Neighborhood in Düzce-Türkiye. Within the scope of the analysis, acid loss, ignition loss, sieve analysis (with 5000 μ, 2500 μ, 1000 μ, 500 μ, 250 μ, 125 μ, and 63 μ sieves), protein–oil tests, and salt tests were performed on the mortar and plaster samples. Acid loss: the quantity of calcium carbonate binders in mortars is analyzed by dissolution using hydrochloric acid. In this procedure, a sample weighing approximately 20–30 g is first dried at 105 °C in an oven to a constant weight, including its free moisture, and then weighed. The sample is then treated with 10% hydrochloric acid (HCl) by volume, and the process continues until the reaction is complete. After the reaction, the acid-insoluble aggregates are washed with distilled water to neutralize them and dried at 105 °C for four hours. The remaining dry mass is then recorded. In loss-on-ignition analysis, the powdered sample is placed in a known container and dried at 105 °C until a constant weight is achieved, after which it is weighed. The sample is then heated sequentially at 550 °C and 1050 °C and the weight losses are recorded at each stage. The weight loss observed at 105 °C indicates the free moisture content within the sample. The weight loss after heating to 550 °C corresponds to the removal of molecular water and organic matter. The weight loss after heating to 1050 °C is attributed to the release of carbon dioxide (CO2), which is related to the amount of calcium carbonate (CaCO3) present in the sample. At 1050 °C, the reaction CaCO3 → CaO + CO2 occurs, leading to the decomposition of calcium carbonate and the release of carbon dioxide gas. The amount of calcium carbonate is calculated based on the molecular weights of the compounds involved. For salt tests, 1 g of the powdered samples is mixed with 100 mL of distilled water to create a suspension, the conductivity of which is measured using a conductometer that is then filtered. Spot tests are then applied to the remaining stock solution to determine the presence of water-soluble salts such as chloride (Cl−), nitrate (NO3−), sulfate (SO42−), and carbonate (CO32−). According to the methods outlined in [14], the salt tests are conducted as follows:
For the chloride (Cl−) test, 5 mL of the solution is placed into two different test tubes, with one serving as the control sample. To the other test tube, 1–2 drops of nitric acid and 2–3 drops of silver nitrate solution are added. If a white precipitate of silver chloride forms, as indicated by the reaction Cl−(aq) + Ag+(aq) → AgCl(k) Kçç = 1.8 × 10−10, it signifies the presence of chloride. Materials such as seawater, poorly washed sea sand, and cement can lead to the formation of chloride salts.
For the sulfate (SO42−) and carbonate (CO32−) tests, 5 mL of the solution is placed into two different test tubes, with one serving as the control sample. To the other test tube, 2–3 drops of barium chloride (BaCl2) solution are added. The formation of a white precipitate indicates the presence of sulfate or carbonate, as seen in the reactions SO42−(aq) + Ba2+(aq) → BaSO4(k) Kçç = 1.1 × 10−10 ve CO32−(aq) + Ba2+(aq) → BaCO4(k) Kçç = 5.1 × 10−10. Sulfate salts, which are transported to the surfaces of building materials by factors such as temperature, humidity, and wind, can cause significant chemical damage to materials [14].
For the nitrate (NO3−) test, after adding 1–2 drops of the stock solution to a diphenylamine crystal and allowing it to dry, 1–2 drops of concentrated sulfuric acid are added. The appearance of a blue color indicates the presence of nitrate.
Conductivity measurements were taken to determine the electrical conductivity of the solutions prepared for salt tests on powdered mortar and plaster samples. Due to the low electrical conductivity of the water used to prepare the stock solution (8–10 μS), the conductivity potential of the samples arises from the salt content. The conductivity value of the water-soluble salts detected in the solution is calculated based on the conductometer’s specific factor and is proportioned according to the amount of sample taken.
The tests were conducted according to the in-house method procedures outlined in [14]. For the protein test, a small amount of powdered sample is placed into a capillary tube sealed at one end and a piece of filter paper soaked in the reagent is placed at the open end. The sample is then heated; the appearance of a pink-purple color on the filter paper indicates the presence of protein in the sample. For the fat test, the powdered sample is placed on a glass surface, such as a watch glass, and reacted with a small amount of copper sulfate (CuSO4) crystals and a few drops of hydrogen peroxide (H2O2). The subsequent addition of concentrated ammonia (NH3) leads to the formation of a persistent soap foam, indicating the presence of fats or fatty acids [14].
Petrographic analysis of the samples, of which thin and thick sections were prepared, was performed with a stereo microscope and a polarizing microscope to identify the aggregates and minerals and determine their textural properties. Macroscopic and microscopic examinations of the materials for petrographic analysis were carried out in accordance with the TS EN 12407 [15] and TS EN 12440 [16] standards. Section preparation for the petrographic examination of the samples was carried out using the METKON GEOFORM (Metkon, Bursa, Türkiye) section preparation device. Stereomicroscope imaging was performed with a Nikon SMZ 800 microscope (Nicon, Tokyo, Japan) and a TOUPCAM E3ISPM20000KPA camera (ToupTek, Hangzhou, China) integrated into the microscope. Polarizing microscope imaging was performed with a Nikon Eclipse Ci-POL microscope (Nikon, Tokyo, Japan) and an Imaging Source DFK NME33UX265 camera (The Imaging Source, Charlotte, United States) integrated into the microscope. Sample preparation for the wood species determination was carried out with LEICA SM 2400 microtome (Leica, Wetzlar, Germany), and imaging was performed with the Zen/Zencore program using a Carl Zeiss AxioscopeA1 microscope (Carl Zeiss Microscopy GmbH, Jena, Germany) and a Carl Zeiss Microimaging Axiocam HRC camera (Carl Zeiss Microscopy GmbH, Jena, Germany) integrated into the microscope. Chemical, petrographic, and SEM-EDS (EDX) analyses of the mortars and plasters and species identification analyses of the wood materials were performed in the Restoration and Conservation Laboratory according to in-house methods as specified by the Istanbul Metropolitan Municipality, Department of Cultural Assets, Directorate of Conservation Implementation and Inspection [14]. The physical tests of the brick samples were performed at the Materials Laboratory of the Civil Engineering Department of Düzce University.
3. Findings and Discussion
3.1. Chemical Analysis
Ignition loss, acid loss, sieve analysis after acid loss, salt tests, and protein–oil tests were performed on the mortar and plaster samples taken from both buildings. The ignition and acid loss results are given in Table 2 and Table 3, respectively. The sample is subjected to sieve analysis to determine the bulk size distributions of the parts that do not undergo acid changes, the results of this analysis are presented in Figure 6.
Table 2.
Ignition loss analysis results of mortars and plasters.
Table 3.
Acid loss analysis results of mortars and plasters.
Figure 6.
Sieve analysis of the bulk size distributions of the parts that do not undergo acid changes.
The weight losses at 105 °C ranged from 2.56% to 3.04%. The results show that all samples contained a small amount of moisture. When the weight losses at 550 °C were analyzed, it was determined that the samples contained relative water and organic additives in the range 5.13% to 5.53%.
When the acid loss and sieve analysis results were analyzed, the binder–aggregate ratios of samples H5 and H7 (belonging to the building numbered 1766) were determined to be 1:6–7; the ratio of sample H6 was 1:5. Uygun [17] determined that the binder-to-aggregate ratio of the mortars and plasters sampled from Halhallı Mosque is 1:4, while the binder-to-aggregate ratio of the plaster sampled from Kaya Bey Mosque is 1:3. Based on the results of this study, it is observed that the binder-to-aggregate ratios of the mortar and plaster samples taken from the structure are consistent with the findings reported in the literature.
The results of the analysis of the water-soluble salts and the conductivity measurements of the mortars and plasters, as well as the results of the protein and fat tests, are given in Table 4. As a result of the salt tests performed on the mortars and plasters, no serious salinization problem was determined, but a small amount of chlorine was detected in sample H5. While the conductivity values of the samples and salt tests were similar, it is thought that the conductivity value of sample H6 may have been due to another salt whose conductivity value was not determined. When the protein and oil test results were analyzed, no oil was determined in any of the mortar and plaster samples, while the presence of protein was detected in all samples. The presence of protein in the samples is indicative of the use of organic additives, such as egg whites, to improve the properties of the mortar and strengthen its binding properties. Such additives reduce the brittle structure of the mortar and increase its plasticity [18].
Table 4.
Mortar and plaster water-soluble salts analysis and conductivity measurements.
In the study by Şener [19], the presence of chloride salts within the structure is attributed to factors such as the southern façade’s exposure to heavy vehicle and pedestrian traffic on the adjacent street, as well as the use of de-icing salts during winter to prevent road icing. Additionally, the proximity of the building to the sea and the impact of prevailing winds carrying sea spray to the façade are mentioned as potential causes of chloride presence. Uygun [17] indicated that the high chloride content in the sample was primarily due to the binding agent and that such salts could also originate from rainwater, atmospheric gases, and capillary water absorption. The analysis of the Cl content in sample H5 revealed that this sample was taken from an area close to the ground and was subjected to similar conditions due to capillary water absorption. Additionally, Şener [19] indicated that oil was not detected in any of the samples during oil and protein tests, whereas protein was found in almost all samples. The presence of protein could be attributed to the structural characteristics of the stone or to organic materials introduced into the structure over time. Oğuz et al. [20] suggested that while the presence of protein in materials is generally attributed to protein-based additives such as egg, blood, or casein, it could also be due to contamination of the materials used. Uygun [17] states that it is thought to be due to straw tow in the binder in the plaster sample.
3.2. Petrographic Analysis
Thick and Thin Section Analyses
Sample H5, taken from the ground floor interior partition wall of the building numbered 1766, was a brown-colored, weak plaster sample with abundant tows, and its binder was determined to be 5–10% hydrated lime-reinforced abundant clay soil. Approximately 3–5% of the sample aggregates were ash, 3–5% were carbonated rock fragments, and all the remaining aggregates were abundant clay soil formed by the decomposition of potassium-based feldspars. The minerals were mainly quartz, feldspar, and small amounts of mica and amphibole. It was determined that 8–10 kg of tow was used per cubic meter of mortar. Stereomicroscope and polarizing microscope images of the sample are shown in Figure 7.
Figure 7.
(a) Stereomicroscope and (b) polarizing microscope images of sample H5.
Sample H6, taken from the ground floor east facade of the building numbered 1766, was a brown-colored, weakly structured exterior plaster sample with abundant tows and white masses, and its binder was determined to be 15–20% hydrated lime-reinforced abundant clay soil. Approximately 3–5% of the sample aggregates were ash, 3–5% were limestone and marble fragments, and 1–2% were brick crumb particles in the mortar content as impurities; all the remaining aggregates were abundant clay soil of terrestrial origin formed as a result of the decomposition of potassium-based feldspars. The minerals were mainly quartz, feldspar, and a small amount of mica. It was determined that 2–2.5 kg of tow was used per cubic meter of mortar. Stereomicroscope and polarizing microscope images of the sample are shown in Figure 8.
Figure 8.
(a) Stereomicroscope and (b) polarizing microscope images of sample H6.
Sample H7, taken from the ground floor south facade of the building numbered 1766, was a brown-colored, dispersed mortar sample containing sand aggregates, white masses, and a small number of tows; its binder was determined to be 10–15% hydrated lime-reinforced abundant clay soil. Approximately 5–8% of the sample aggregates were ash, 2–3% were carbonated rock particles, and the remaining aggregates were all terrestrial abundant clay soil formed as a result of the decomposition of potassium-based feldspars. The minerals were mainly quartz, feldspar, and a small amount of amphibole. Tow fragments were detected in the sample. Stereomicroscope and polarizing microscope images of the sample are given in Figure 9.
Figure 9.
(a) Stereomicroscope and (b) polarizing microscope images of sample H7.
Rezaei [21] indicates that the addition of goat hair, camel wool, straw, and rice husk to earthen plasters prevents cracking. Güleç [22] similarly notes that in some regions, plant fibers such as flax, straw, and grass, as well as animal hairs, are added to plasters to enhance their durability. Likewise, Özen [23] suggests that the addition of organic materials, such as sand and straw, to plasters increases their durability. The structures observed in the mortars in this study appear to be consistent with these findings.
3.3. SEM-EDS (EDX) Analyses
Mortar Analysis
With SEM-EDX analysis, SEM images were taken from the binder parts of the mortar samples, and EDX analyses were performed on the marked areas of these images. The SEM images and EDX analysis elements and oxide ratios of samples H5, H6, and H7 are shown in Figure 10.
Figure 10.
SEM images and EDX analysis element and oxide ratios of the (a) H5, (b) H6, and (c) H7 samples.
As shown in Figure 9, the binder of the H5 plaster mortar sample was calcium carbonate of lime origin at about 5–10%, and 90–95% was abundant clay soil of terrestrial origin formed by the decomposition of potassium-based feldspars. The sample contained 57.37% silicon from clay and lesser amounts of aluminum, iron, calcium, potassium, magnesium, sodium, and titanium. The binder of the H6 plaster mortar sample was calcium carbonate originating from lime in the range of approximately 8–10%, and 90–92% was abundant clay soil of terrestrial origin consisting of decomposition of potassium-based feldspars. The sample was determined to contain 57.67% silicon from clay and aluminum, iron, calcium, potassium, magnesium, sodium, and titanium in smaller amounts than this element. The binder of the H7 filling mortar sample was calcium carbonate of lime origin in the range of approximately 10–15%, and 85% was abundant clay soil of terrestrial origin formed by the decomposition of potassium-based feldspars. The sample contained 53.85% silicon from clay and smaller amounts of aluminum, calcium, iron, potassium, magnesium, titanium, and sodium.
According to the results of the SEM-EDX analysis, mortars H5, H6, and H7 had very high silica content due to the high clay content.
Based on the findings of the study and the recommendations in the KUDEB report [24], the H5 repair plaster mortar recommended for use in the areas represented by the samples could consist of one part of slaked lime putty and six parts of locally sourced clay-rich soil, sieved under 1 mm. In the preparation of the mortar, approximately 8 kg of crushed straw fiber should be added per cubic meter (m3) of material. Furthermore, the straw fiber aggregate should be mixed in while dry, without adding lime, and then slaked lime should be added, continuing the mixing process.
For the H6 repair plaster mortar, it is stated that the mixture should consist of one part of slaked lime putty and five parts of locally sourced clay-rich soil, sieved under 1 mm. During the preparation, approximately 2 kg of crushed straw fiber should be added per cubic meter (m3) of material and, similar to the H5 mixture, the straw fiber aggregate should be mixed in dry before adding the slaked lime and continuing the mixing process.
For the H7 repair mortar, it is recommended that the mixture consist of one part of slaked lime putty and six parts of locally sourced clay-rich soil, sieved under 1 mm. Since these components are prepared using local materials, they are both suitable for the local conditions and provide a practical solution for the restoration process.
3.4. Species Analysis of Wood
The cross-sectional properties of sample A2, a fungal-damaged wood sample with a white paint layer from the cabinet part of building numbered 1766, were examined (Figure 11). It was observed that the annual ring boundaries were clear, the transition from spring wood to summer wood was rapid, and resin channels were present in its structure. In the radial section characteristics, it was observed that the marginal passages on the radial walls of the longitudinal tracheids were single-row, the medullary rays were heterogeneous, and the tracheid cell walls were coarsely toothed. It was also observed that the meeting place passages were of a large window type. In the tangential section characteristics, it was determined that the medullary rays were mostly 1–12 cells high. As a result of the macroscopic and microscopic examinations, the genus of the A2 sample taken from the cabinet joinery was determined to be yellow pine (Pinus sylvestris L.).
Figure 11.
Thin section images of A2 sample.
The cross-sectional properties of sample A3, a wood sample taken from the floor covering of building 1766 that has no paint layer and has been damaged by fungus and insects, were examined (Figure 12). It was observed that the annual ring boundaries were clear, the transition from spring wood to summer wood was rapid, and resin channels were present in its structure. In the radial section characteristics, it was observed that the marginal passages on the radial walls of the longitudinal tracheid cells were single-row, the medullary rays were heterogeneous, and the walls of the tracheids were coarsely toothed. It was also observed that the meeting place passages were of a large window type. In the tangential section characteristics, it was determined that the medullary rays were mostly 1–12 cells high. As a result of macroscopic and microscopic examinations, the species of the A3 sample taken from the pavement was determined to be yellow pine (Pinus sylvestris L.).
Figure 12.
Thin section images of sample A3.
Pinus sylvestris L., which has various uses, has been reported to be utilized in the construction of materials such as doors, windows, and jambs [25]; tables, doors, windows, honeycomb structures, and construction timber [26]; and barrels, water bottles, and agricultural tools [27]. In this study, similar to its usage in the literature, Pinus sylvestris L. was observed to be used in wood cabinet joinery and wood floor covering.
4. Conclusions and Recommendations
Detailed examination of traditional structures in the Konuralp region supports the literature on regional architectural studies and offers new perspectives in this field.
Chemical and petrographic analyses of the materials taken from traditional houses in Konuralp that have survived to the present day by preserving their original structural features are presented below.
We examined mortar samples taken from the building numbered 1766 and determined that samples H5 and H7 were approximately 10–15% and sample H6 was 15–20% clay adobe mortar of terrestrial origin containing lime reinforcement and ash, carbonated rock fragments, and brick fragments in the aggregates. The aggregate–binder ratios in samples H5 and H7 were 1:6–7, while this ratio was around 1:5 in sample H6.
According to the SEM-EDX results for the mortar samples taken from the building numbered 1766, it was determined that the binder parts of the mortars numbered H5, H6, and H7 contained high amounts of silicon originating from clay and smaller amounts of aluminum, iron, calcium, potassium, magnesium, sodium, and titanium in various ratios.
When the protein and fat test results were analyzed, no fat was determined in any of the mortar and plaster samples, while a small amount of protein was determined in all samples. This indicates that organic additives were used to create mortars and plasters.
The wood species of the floor covering and cabinet joinery samples from the building numbered 1766 were determined to be yellow pine (Pinus sylvestris L.). It is predicted that the same type of wood can be used as a wood species specific to the region during the repair phase and that is valuable for ensuring that the materials used in restoration projects match the original ones.
As a result of these analyses, it will be possible to ensure that the materials used in the conservation and repair of the buildings show properties similar to those of the original materials. In line with this understanding, there is a cultural responsibility to adopt a multidisciplinary approach and work with experts in the field of improving and reusing buildings.
Author Contributions
Conceptualization, Ö.S.B. and B.S.; methodology, Ö.S.B.; software, B.S.; validation, Ö.S.B. and B.S.; formal analysis, Ö.S.B. and B.S.; investigation, B.S.; resources, B.S.; data curation, Ö.S.B.; writing—original draft preparation, Ö.S.B. and B.S.; writing—review and editing, Ö.S.B. and B.S.; visualization, B.S.; supervision, Ö.S.B. All authors have read and agreed to the published version of the manuscript.
Funding
This research received no external funding.
Institutional Review Board Statement
The study does not require ethical approval.
Informed Consent Statement
The study does not involve humans.
Data Availability Statement
The data presented in this study are available within the article.
Acknowledgments
This study was produced from the thesis titled “The importance of material analysis in the reuse and repair of traditional houses: The case of Düzce-Konuralp”, written at Institute of Science, Department of Architecture, Düzce University.
Conflicts of Interest
The authors declare that there are no conflicts of interest.
References
- ICOMOS. Turkey’s Architectural Heritage Protection Declaration; International Council on Monuments and Sites Turkish National Committee: Istanbul, Türkiye, 2013; Available online: http://www.icomos.org.tr/Dosyalar/ICOMOSTR_tr0784192001542192602.pdf (accessed on 25 August 2022).
- Sabuncu, B.; Sallı Bideci, Ö. An Overview of Engineering Properties of Bricks and Mortars Used in Historical Buildings. In Proceedings of the Seljuk 6th International Conference on Applied Science, Konya, Türkiye, 11–13 October 2022; pp. 156–167, ISBN 978-605-71767-9-0. [Google Scholar]
- Arslan, H.; Gökçen, D.; Tanriverdi Kaya, A. Spatial Analysis of Konuralp Ancient Theater 1st Degree Archaeological Site; Düzce’de Tarih, Kültür ve Sanat; Gaye Publishing: Bursa, Türkiye, 2015; pp. 246–253. [Google Scholar]
- Tuna, A. Archaeological Parks in the Scope of Sustainable Ancient Cities; The Case of Duzce-Konuralp. Ph.D. Thesis, Ankara University, Institute of Science and Technology, Ankara, Türkiye, 2014. [Google Scholar]
- Karabulut, B.B. The Examination of Historical Akcaabat Ortamahalle Houses in Terms of Construction System and Construction Materials with the Purpose of the Sustainability of Cultural Heritage. Master’s Thesis, Istanbul Technical University Institute of Science and Technology, Istanbul, Turkey, 2018. [Google Scholar]
- Koç, K. Documentation and İnvestigation of Constructional Characteristics Belong to Bursa Gölyazi Region. Master’s Thesis, Istanbul Technical University Institute of Science and Technology, Istanbul, Türkiye, 2019. [Google Scholar]
- Çağlar, A. Experimental Research on İmprovement with Boron Waste Additive of Properties of Blend Brick Used in Traditional Kastamonu Houses. Ph.D. Thesis, Selcuk University, Institute of Science and Technology, Konya, Türkiye, 2018. [Google Scholar]
- Şahin, G. The Characterization of Bricks Used in the Construction of Bab-I Seraskeri Hospital (IU Faculty of Political Sciences) and Proposals for Their Conservation. Master’s Thesis, Istanbul Technical University Institute of Science and Technology, Istanbul, Türkiye, 2017. [Google Scholar]
- Sayın, B. Tarihi yiğma yapilarin malzeme özelliklerinin belirlenmesi ve uygulama önerileri. Dicle Univ. Eng. Fac.-Eng. J. 2016, 70, 387–398. [Google Scholar]
- Akbulut Ekşi, D. A Proposal Fort He Selection of Mortars for Use in the Repair of Historical Buildings. Ph.D. Thesis, Yildiz Technical University, Institute of Science and Technology, Istanbul, Türkiye, 2006. [Google Scholar]
- Gür, D. A Study on Hydraulic Lime Mortars with Pozzolan Addition for Historic Masonry Repairs. Master’s Thesis, Istanbul Technical University Institute of Science and Technology, Istanbul, Türkiye, 2019. [Google Scholar]
- Ozgunler, M.; Ozgunler Acun, S. A research on Karamursel region volcanic tuff as a pozzolanic additive in repair moprtars used for historical buildings. Sci. Res. Essays 2011, 6, 641–647. [Google Scholar]
- Düzce Municipality. Directorate of Urban Planning, Parcel 1766 Survey Report; Düzce Municipality: Düzce, Turkey, 2022. [Google Scholar]
- Istanbul Metropolitan Municipality Cultural Heritage Department Preservation Implementation and Control Branch Directorate (İ.B.B. KUDEB). Restorasyon ve Konservasyon Laboratuvarlari Kitabi; Şan Publishing: Istanbul, Türkiye, 2009. [Google Scholar]
- TS EN 12407; Natural Stone Test Methods-Petrographic Examination. Turkish Standards Instituion: Ankara, Türkiye, 2019.
- TS EN 12440; Natural sone-Denomination Criteria. Turkish Standards Instituion: Ankara, Türkiye, 2010.
- Uygun, Y. Investigation of the Building Material Properties of Historical Kaya Bey, Ibrahim Bey and Halhalli Mosques in Balikesir. Master’s Thesis, Balıkesir University, Institute of Science and Technology, Balıkesir, Türkiye, 2019. [Google Scholar]
- Özgen, Ö. Horasan Harci Üzerine Deneysel Çalişmalar. Master’s Thesis, Ministry of Culture and Tourism of the Republic of Türkiye, Directorate of Surveying and Monuments, Istanbul, Türkiye, 2012. [Google Scholar]
- Şener, E.V. The Evaluation of Deteriorations and Cleaning Methods on Historical Stone Structures on the Example of Istanbul University Faculty of Letters from Southern External Façade. Master’s Thesis, Istanbul University Institute of Social Sciences, Istanbul, Türkiye, 2020. [Google Scholar]
- Oğuz, C.; Türker, F.; Koçkal, N.U. Myra ve Andriake Limanı’nda Roma Dönemi Harç, Tuğla ve Taşların Özellikleri, 5. Tarihi Eserlerin Güçlendirilmesi ve Geleceğe Güvenle Devredilmesi Sempozyumu. Chamb. Civ. Eng. 2015, 1, 113–134. [Google Scholar]
- Rezaei, D. The Architectural Traditions of The Great Seljukid Period Transfered up to Now Its Use in Restoration. Ph.D. Thesis, Gazi University Institute of Science and Technology, Ankara, Türkiye, 2007. [Google Scholar]
- Güleç, A. Characterization of Mostars and Plasters of Some Historic Monuments. Ph.D. Thesis, Istanbul Technical University Institute of Science and Technology, Istanbul, Türkiye, 1992. [Google Scholar]
- Özen, G.Ö. Comparison of Elastic and Inelastic Behavior of Historic Masonry Structures at the Low Load Levels. Master’s Thesis, Middle East Technical University Institute of Science and Technology, Ankara, Türkiye, 2006. [Google Scholar]
- Istanbul Metropolitan Municipality Cultural Heritage Department Preservation Implementation and Control Branch Directorate (İ.B.B. KUDEB). Material Analysis Report; KUDEB-2022-2004-0028; Istanbul Metropolitan Municipality: Istanbul, Türkiye, 2022. [Google Scholar]
- Erdinç Usta, B.; Altundağ Çakır, E. A Study on the traditional usages of woody plantsin Derdin village/Düzce (Turkey). Eurasian J. For. Sci. 2020, 8, 221–243. [Google Scholar] [CrossRef]
- Kahveci, E.; Malkoçoğlu, S.; Yeşilkaya, M. Kahveci Ethnobotanical Properties of Some Woody Plants Growing in Tokat Provincial Center and Towns. Gaziosmanpasa J. Sci. Res. 2017, 6, 62–75. [Google Scholar]
- Kültür, Ş. An ethnobotanical study of Kırklareli (Turkey). Phytol. Balc. 2008, 14, 279–289. [Google Scholar]
Disclaimer/Publisher’s Note: The statements, opinions and data contained in all publications are solely those of the individual author(s) and contributor(s) and not of MDPI and/or the editor(s). MDPI and/or the editor(s) disclaim responsibility for any injury to people or property resulting from any ideas, methods, instructions or products referred to in the content. |
© 2024 by the authors. Licensee MDPI, Basel, Switzerland. This article is an open access article distributed under the terms and conditions of the Creative Commons Attribution (CC BY) license (https://creativecommons.org/licenses/by/4.0/).











