Next Article in Journal
From What Times Is This Place? Form as a Chronotope in the Architecture of Enric Miralles
Next Article in Special Issue
Promoting Mental Health Through Campus Landscape Design: Insights from New Zealand Universities
Previous Article in Journal
Effective Structural Parametric Form in Architecture Using Mycelium Bio-Composites
Previous Article in Special Issue
Biophilia and Adolescents’ Sense of Place in Australian Vertical Schools
 
 
Font Type:
Arial Georgia Verdana
Font Size:
Aa Aa Aa
Line Spacing:
Column Width:
Background:
Review

The ‘Nature’ of Vertical School Design—An Evolving Concept

Architectus, Sydney, NSW 2000, Australia
Architecture 2024, 4(3), 730-744; https://doi.org/10.3390/architecture4030038
Submission received: 24 April 2024 / Revised: 28 August 2024 / Accepted: 5 September 2024 / Published: 12 September 2024
(This article belongs to the Special Issue Biophilic School Design for Health and Wellbeing)

Abstract

Successful urban school design includes green space to counterpoint the built form in cities, where parks and reserves are well frequented. Further integration of landscape and buildings is an aspect of urban development that could improve how architecture is experienced by the wider community. Above all, evidence shows that it enhances the health and wellbeing of inhabitants. By providing green space in buildings, nature can be accessed more directly by its occupants and allow connection with nature to occur more easily. Integrating nature with architecture can improve a building’s self-regulation, energy consumption, and overall performance. Architecture that integrates nature can have a distinctive appearance and character. The co-existence of bricks and mortar with plants and vegetation is one example of integration, whereas the use of natural materials such as timber as part of the building fabric can create distinctive architecture. It is this individuality that can provide a sense of identity to local communities. Access to the outdoors in urban settings is a critical requirement for successful urban school design. This paper focuses on the architectural practise of designing biophilic schools and illustrates how optimising playground opportunities can provide the highly sought-after connection between architecture and nature. Connecting classrooms and pedagogy to the outside environment during the design phases of projects can create unique responses to a place, enhancing the learning experience in environments where architecture and nature can be informed by emerging biophilic evidence. This study strives to develop a strategy where educational clients can be convinced to actively embrace a biophilic school approach. It also seeks to convince architects to adopt a biophilic approach to school design across design studios using the emerging evidence based on biophilia and biomimicry.

1. Introduction—Why Nature in School Design?

The research question framing this paper asks, ‘what is the evidence to support the inclusion of nature in schools, how can this academically rigorous evidence be better distilled to inform school architectural design practises and their clients, and how can this movement be scaled up in schools’ architectural design and educator professions?’
In particular, the dual aim of this study is to provide a translational research pathway for evidence-based academic biophilic/biomimicry design research to find its way into architectural design studios and into educators’ own pedagogical practises.
This article is organised into five sections. Section 1 explores why we should include nature in school design and how the nature-positive movement can form the basis of this proposition. This then informs the potential impacts on the built environment and underpins biophilic design principles. Section 2 suggests a methodology to suit a design practitioner’s evidence-based approach informed by nature-positive biophilic design processes. It introduces an established biomimicry design process model which commences with the identification of the spatial requirements of functional teaching and learning. This step is supported by the establishment of the evidence base for the use of biophilia and its impact on learning. These concepts are then applied to the biophilic design of vertical schools using exemplars of prior learning landscapes followed by the evaluation of the ongoing evolution of the design. Section 3 elaborates on the idea of positive nature informing design strategies. This includes the use of typologies using nature as a design narrative. Section 4 presents a discussion which considers pedagogy and play space; the use of daylight, fresh air, and views of nature; and the final building expression, all of which can have an effect on students’ learning outcomes and their health and wellbeing. Section 5 concludes with a strong argument for a return to nature in the design of schools for health and wellbeing.

1.1. The Nature-Positive Movement

The association between human health, wellbeing, and the natural environment is well established through empirical research [1]. In the context of architecture, the implications for best practises are clear—championing more nature-based design through the inclusion of biophilia is important for living, working, and learning environments. This idea is being advocated through the ‘nature-positive’ movement [2].
Biophilia is described as the innate tendency of humans to focus on life and life-like processes, meaning we have an instinctive desire to socialise ourselves in the natural environment and connect with other living organisms such as trees, plants, and animals. The theory was first publicised in 1964 by Erich Fromm [3], a US social psychologist, and popularised in 1984 by Edward Wilson [4], a biologist at Harvard University. Both emphasised that connection with nature leads to a better response in terms of human functioning, health, and wellbeing.
Population movement in Australia is exponential and mostly involves people moving to metropolitan areas, where competition for space is producing more high-rise buildings, including schools [5]. Swollen urbanisation with town planning densification policies and the locations of working environments in response to hybrid digital integration are some determinants influencing time spent in and out of natural environments [6].
Despite the positive relationship between time spent in nature and improved community health, people spend a significant amount of time (>80%) in buildings, separated from the benefits that nature provides. They also spend increasing amounts of time in an inactive mode while being ‘glued’ to screens.

1.2. The Impact of the Built Environment

The topic concerning the health and wellbeing of urban dwellers, children in schools, and employees in commercial towers is gaining more attention. Many studies have shown that connecting with natural environments or ‘green space’, including urban green space and agricultural space, promotes good health and is highly effective in reducing symptoms of stress and mental fatigue [7].
Excessive time periods spent in buildings can lead to Sick Building Syndrome (a group of factors that can negatively affect health in different ways), which can be costly for the community and economy due to sickness, employment absence, and reduced productivity [8]. For example, air-conditioned buildings are known to have a higher prevalence of symptomatic employees compared to naturally ventilated buildings.
Biophilic design aims to mediate some of the negative consequences that built environments can have on human health (including psychological and physiological health) through facilitating modifications to building design in line with human needs. Health aspects related to access to fresh air, natural daylight, and views of nature have been shown to improve respiratory health, reduce mental fatigue and feelings of stress, and restore attention capacity [9]. Building design can improve by increasing understanding about biophilia and its benefits to building occupants.

1.3. Biophilic Design Principles, Nature, and Architecture

Biophilic design principles can include but are not limited to the following: (i) access to natural daylight, (ii) access to fresh air, (iii) direct access to living nature, (iv) views of green spaces, (v) the use of natural materials, (vi) designing for [acoustics] sound, (vii) the presence of water, and (viii) proximity to restorative (and natural) outdoor spaces. The application of these and other biophilic principles can help improve the design of new schools and support educational communities [10].
Successful urban design includes green space to counterpoint the built form in cities, where parks and reserves are well frequented. Further integration of landscape and buildings is an aspect of urban development that could improve how architecture is experienced by the wider community. By providing green space in buildings, nature can be accessed more directly by its occupants and allow connection with nature to occur more easily [1].
Integrating nature with architecture can improve a building’s self-regulation, energy consumption, and overall performance [11]. Architecture that integrates nature can have a distinctive appearance and character. The co-existence of bricks and mortar with plants and vegetation is one example of integration, whereas the use of natural materials such as timber as part of the building fabric can create distinctive architecture. The Macquarie University Incubator building for business start-ups in Sydney is a fine example of the latter. It is this individuality that can provide a sense of identity to local communities [12].

2. Methodology—A Nature-Positive Design Methodology for Educational Campuses

Architectural designers operate in a hybrid fashion, seeking evidence to support their design decisions while aligning with the client’s value proposition for each particular project. In some cases, they use rigorous academic evidence-based research, and in other cases, they might supplement those sources with built precedents from published architectural journals (not necessarily scholarly). They are also obliged to follow policies and procedures which are mandated by school authorities at various levels.
The application of biophilia in the design process requires the designer to offer a robust argument to curate and shape a new way of thinking in terms of classrooms engaging with nature. To this end, using an established and tested biophilic model is a useful way to engage with both designers and educational clients.

2.1. Applying Biophilic Principles in Design through the Concept of Biomimicry

Biomimicry is a design process which seeks to understand natural health and wellbeing drivers and how these can be embedded in the architectural design process. The Biomimicry Institute developed a five-step biophilic design process called the biomimicry design spiral, as illustrated in Figure 1 [13,14].
This concept was proposed to simplify the connection between existing and emerging rich, extensive, and deeply rigorous academic research so that it can inform architectural practitioners in a more simplified yet evidence-based way. The model ensures that designers use an ecosystem approach in their design decisions, with all of them being based on rigorous evidence.
The key steps include the following:
(a)
Distill—what do you want your design to do, and why?
(b)
Translate—what are the functions and how can nature habitat support this?
(c)
Discover—biophilic taxonomies, benchmarking, literature reviews, case studies, evidence.
(d)
Emulate—consider Terrapin’s 14 elements and case studies [15].
(e)
Evaluate—is the solution organically biophilic?
The following section is a suggested framework for a biomimicry school design process using this model.

2.2. Distilling Functional Requirements

We are now designing schools for the most technologically savvy demographic to date—the so-called generation alpha. These students were born after the iPhone was released [16]. Their cultural perspective of smartphones, tablets, technology, and media is re-shaping traditional classroom layouts and settings. In addition, emerging innovation in artificial intelligence, augmented reality, virtual reality, mixed reality, and robotics is curating and moulding educational experiences and learning practises. The integration of these tools in classrooms helps motivate and engage students in new ways that are quickly replacing [old school] didactic/instructional methods.
Despite advancements in digital integration and new technology, studies indicate that by the time children reach adolescent years, screen time increases to, on average, between seven and ten hours per day [17]. Australian research has shown that excessive use of technology among students is linked to issues such as increased isolation, depression, anxiety, and attention problems along with the largely sedentary nature of the digital world [18]. Biophilic design in education may counteract some of these issues by reconnecting students to nature and alleviating some of the burden associated with increased technology use.
Architecture that reflects nature can contribute to students’ learning experiences by framing the space in which education occurs. The sizes, shapes, and aspects of rooms and the selection of building materials and interior fabrics are some features that can improve learning spaces for students. Balancing the presence of technology with nature is an important consideration for integrating student engagement and coherence in classroom settings. Modest interventions, such as the option to open or close a window, can provide the ability to adjust the immediate environmental conditions, supporting health and wellbeing in classrooms.

2.3. Translate—Student Engagement and Learning in Nature

This is carried out through the process of translating biomimicry into the design process, as noted earlier. Cultivating and attaining student engagement is a common goal in almost all schools and education settings. Positive psychology models, such as PERMA (Positive Emotion; Engagement; Relationships; Meaning; and Accomplishment), used by the New South Wales Department of Education [19], aim to cultivate attributes that foster student engagement, confidence, and improved learning experiences that lead to higher levels of student success. Nature fundamentally supports many aspects that encourage these educational goals. The school playground is a space that successfully dovetails biophilia and education theory in the outdoors, where a sense of connection and collaborative learning is accessible through social interaction and direct exposure to nature.
Access to natural settings is important for all students at all levels of education. For example, local schools in Sydney often identify with unique natural elements specific to their locality, such as eucalyptus or fig trees or resident school ground animals such as rabbits. Natural features can help form a sense of identity for school students and create a common binding interest for school communities—where nature itself becomes a classroom/learning environment. The diversity of natural habitats across NSW provides abundant opportunities to integrate biophilia into many schools through design strategies that consider the integration of the built form and natural surroundings more coherently.
Associations between indoor/outdoor spaces and the influence on learning outcomes is an evolving research area. New studies have shown that there are correlations between more contact with nature and improved academic performance. As an example, students who are exposed to more natural daylight in classrooms have been shown to perform better academically compared to students with less access to natural light [20]. Biophilic design is important in education, particularly in areas related to the following:
  • Social and emotional learning: Experiences of natural environments have been shown to support greater social and emotional restoration and reduce tension and anxiety, confusion, anger, as well as fatigue compared to urban environments [21], helping with students’ attitudes, behaviour, and academic performance.
  • Memory and attention: One hour in nature improves memory performance and attention by 20%. Research that involved participants who walked in urban city streets and botanical gardens (nature) showed that short-term memory improved by 20% among participants who walked through gardens compared to those who walked in urban streets, which showed no improvement [22].
  • Fatigue: The Attention Restoration Theory (ART) suggests that concentration fades when performing cognitive tasks using directed attention over sustained time periods [23]. ART suggests that nature provides the specific environmental stimuli to facilitate recovery from issues such as attention fatigue.

2.4. Discover—Introducing Biophilia into Vertical School Designs

The idea of a healthy school and campus has origins in the open-air school movement in the early 1900s in Europe [24]. Educationalist Walter Spickendorff and paediatrician Prof. Dr. Bernhard Bendix in collaboration with Berlin’s Schools Inspector Hermann designed an ‘open-air therapy’ environment for students with pre-tuberculosis called the Waldschule für kränkliche Kinder (forest school for sickly children) in 1904. Around the same time in the late 19th C, the idea that ‘form follows function’ was raised by Louis Sullivan [25]. A modernist approach that ensures the function of internal space takes precedence over the built form, ornamentation, or aesthetic of the building. This philosophy has influenced architecture for over a century, inspiring buildings that are designed from the inside out. This has recently evolved into a more nuanced and elemental approach that considers the functional affordances on campus [26].
Tall buildings remain centric in contemporary urban settings and now also exist in educational environments including schools [27]. As the learning landscape evolves, improving student-centred learning remains in focus. Architecture can help to achieve many aspects of this through the application of biophilia—bringing the outside in, diffusing boundaries between classrooms and the outdoors, and creating opportunities for students to connect with nature.
Vertical schools can exploit height by providing unique views of nature and new outdoor experiences above the natural ground level. Courtyard settings with access to green space, trees, and communal gathering is possible whether it is at the natural ground level or elevated above street level by providing outdoor settings with the presence of living nature and, preferably, tree canopy cover. These elevated courtyard spaces are not a replacement for open school playgrounds; however, they can provide much needed relief from artificial enclosures used during school learning hours and offer a more immediate connection with nature within bigger buildings.
This can help support cognitive function and ability for students and provide a restorative function during the day’s learning activities. The potential for this architectural approach to enhance school design is exciting because it can develop a new student experience that supports health and learning as well as provide variance to the building’s character. It is also likely to foster greater student engagement in learning.
Figure 2 shows an artist’s impression of an urban school with multiple levels, where typical arrangements of classrooms can connect directly to outdoor spaces over several levels.
This concept relates to schools in dense urban areas, where student cohorts can enjoy large contiguous learning zones by blurring boundaries between inside and outside. Playful connecting elements, such as stairs, lifts, and playground equipment, can provide character and identity to each floor level and the overall school building, where learning activities and movement can be expressed through the architecture.

2.5. Emulate—Learning Landscapes

Nature has always been a consistent source of inspiration for human endeavours, propelling our understanding and interaction with the world. Scientists, inventors, and designers have continuously looked to nature for guidance in solving problems [28]. An outdoor learning space that is designed in harmony with nature can support learning and wellness through a curated approach to landscape design. With Science, Technology, Engineering, and Mathematics (STEM), a growing focus area for school curricula worldwide, school buildings themselves become teaching and learning tools.
The life systems of the building itself can teach students about architecture, engineering, and environmentally responsive design. From water consumption to electricity generation, from service reticulation to structural engineering, and from natural ventilation to high-performing building façades, the building itself becomes part of the learning experience. Technology can provide a bridge between the natural and the human-made by capturing and displaying information regarding how the building functions and operates, its impact on the environment around it, and the building’s performance as a learning tool.
Many students may remember a teacher who influenced their thinking, education journeys, and sometimes even their career choices. Great teachers can spark curiosity in young learners and give them the confidence to believe in themselves to pursue their dreams and goals. Future generations of scientists, technology wizards, talented engineers, or gifted mathematicians can be wholly supported in a well-designed learning landscape inspired by great teachers and in harmony with nature. The natural environment as the primary engineer showcases complex biodiversity in balanced ecosystems. Similarly, architecture and nature can contribute to the student experience when integrated, whereby human-made and natural engineering co-exist in harmony with one another.
The use of space in between general learning environments and traditional classrooms is widely known to evoke knowledge sharing and peer-to-peer learning through chance encounters and social interactions, where learning through conversation can occur. Learning in corridors and informal settings has been shown to improve learning ability and build relationships in education settings. When the space in between extends to the outdoors, opportunities for learning and wellbeing increase [29]. Outdoor classrooms in the right climatic conditions can be very successful; however, local environmental conditions do not always favour outdoor learning. Thresholds between indoor and outdoor spaces can offer additional diversity with informal settings, where learning can occur in breezeways, circulation zones, and covered outdoor learning areas particularly suited to inclement weather.

2.6. Evaluate—Evolving Design Concepts

School design continues to evolve as a response to changing urban conditions, including the emergence of precincts, hubs, and high-density living in cities. Connecting the classroom to the outdoors becomes a key challenge for urban school projects, where site constraints limit access to outdoor space due to increasing land value and decreasing land available for development. Inventive design solutions to meet playground provisions for students and provide access to landscape settings for teachers requires careful planning.
Design strategies that capitalise on accessing urban outdoor space often involves the consideration of elevated playgrounds and other complex design solutions, including associated connecting voids, staircases, and safety enclosures (refer to Figure 6). Designing areas with direct access to outdoor spaces that are safe and protected, with natural materials and access to daylight, direct sunlight, and natural breezes, can inspire creative thinking and bespoke design solutions. The study of specific site conditions and local weather patterns of a particular place also becomes an important part of the design process.
Effective outdoor learning spaces can be tested for climatic conditions that are expected to be experienced during the various seasons. The integration of elevated playgrounds to meet various student learning activities can yield unique learning settings, including terraced outdoor spaces, covered outdoor learning areas (COLAs), and interconnecting stairs and light wells. In protecting and enclosing the perimeter of elevated play spaces, the building façade design process for urban school buildings presents creative opportunities to respond to the multipurpose activities occurring on different floor levels.

3. Nature-Positive Design Strategies

3.1. Typologies

Design decisions that consider nature can lead to positive outcomes in the built environment. Four effective strategies that can promote qualities of improvement in school design and help support student-centred learning as well as health and wellbeing include the following:
  • The connected façade: This involves providing openable doors and windows in all buildings. Having a direct connection between the indoor classroom and a green outdoor space can have a significant impact on wellbeing—see Figure 3.
  • The window seat/nook: This is an intimate setting to encourage peer-to-peer and self-directed learning for students. Access to daylight views of nature in a comfortable window seat is an effective example of a well-designed space that can support positive outcomes in behaviour and learning. This also enhances the sense of territorial privacy while keeping an observational distance from supervisors—see Figure 4.
  • The courtyard: As a well-established architectural typology, the courtyard design creates a safe communal outdoor space that is both protected by and connected to indoor learning spaces (this can be on the ground level or at an upper level of a high-rise building). Attributes of biophilic design are well supported within the courtyard model, where access to outdoors, fresh air, daylight, and green space and the presence of water are all easily accommodated in a private setting that is suitable for several uses, including group gatherings, outdoor classrooms, and individual contemplation and refuge. In particular, the cloister and/or veranda and colonnades or arcades also provide a transition from inside to outside, with this transitional space being ideal for nature-oriented activities in inclement weather.
  • Natural materials: The use of natural materials in architecture is successful because of their tactile nature and richness in texture and colour, particularly when it comes to wood. The use of timber for furniture, joinery, and interior surfaces including floors, walls, and ceilings can improve the interior quality of schools and bring nature right to the heart of the learning environment. New building techniques being used which dovetail the latest technology with natural materials, such as cross-laminated timber (CLT), are now being considered for their benefits in prefabrication and precision, their speed in construction, and importantly, their natural material, timber. The use of exposed timber can greatly improve the interior aesthetics of learning facilities, adding qualities of colour, texture, odour, and acoustics and improving the overall spatial experience for occupation.
These validated approaches are commonly found in vernacular architecture all over the world, from Japanese Zen gardens to the cloisters of Europe. Applying similar design principles on a larger scale, specifically involving taller and more complex school buildings, is important in the context of promoting healthier environments for students in city locations and high-rise developments.

3.2. Nature as a Design Narrative

Universities have traditionally enjoyed large, landscaped grounds for their campuses; however, land for new development is increasingly scarce. This can result in larger, taller buildings being used for adult education. Health and wellbeing are at the helm of many research institutions and affiliated universities. Therefore, designing buildings with access to nature to improve student and employee wellbeing has become more important. The idea of research and learning in comfortable settings and buildings that respond to location, cultural heritage, and campus history can enhance staff, student, and researcher experience (see Figure 5) [30]. When considering the design approach for a building, the process can involve research into the site’s history, the cultural context, and the existing building character surrounding the proposed site.
Story-telling and design narrative play important roles in this process. The design intent can be communicated, encouraging imagination to envision the proposed building with the fullest understanding of the factors influencing the design concept. Nature can inspire this narrative, where a site’s history can be explored in terms of its geology, ecology, cultural heritage, and architectural lineage in relation to the urban surroundings.
In this context, the proposed architecture and natural environment formulate a synergistic relationship. The boundaries between architecture and nature can elicit building designs that are grounded in their context and connected to their natural environment, both in narrative and built forms.
Consciously designing with culture and heritage as a priority often leads to a fuller expression of a building’s unique character. The completion of Flinders University’s Health and Medical Research Building is an example of designing for place while being informed by consultation and thoughtful conversations with local indigenous elders, including stories about country [31]. Notwithstanding the building’s predominant research focus, the architecture creates moments of connection to the natural context, where land, water, and sky inform the architecture and physical form of the building.
The built form is shaped in layers, reflecting the natural terracing of the Adelaide foothills and sedimentary geological processes depicting timelines in the earth. The building is layered and terraced to enjoy expansive vistas towards the seaboard and the vast Southern Ocean horizon. Connections from the internal spaces and outdoor landscapes, features of dedicated winter gardens, and a large cascading public plaza anchor this building in its unique context.

3.3. Implications of Climate and Climate Change on Designing for Health and Wellbeing

Biophilic design can depend upon climatic conditions. Tropical climates (such as Northern Australia) are more suitable for year-round outdoor access and support continuous plant growth throughout the year, providing more opportunities for planting integration around and on top of building structures. Allowing the teaching and learning experience to occur in environments that are generously landscaped in regional climatic and specific site conditions can provide unique experiences for building occupants, where they can inhabit natural outdoor spaces in an individually distinctive architecture. Figure 6 illustrates a biophilic approach to a vertical campus building within a tropical climate region, where stacked terrains form the building itself.
Schools are striving towards greater sophisticated buildings to support learning and education outcomes, particularly secondary schools that are increasing STEM-based opportunities that require technology-enabled buildings to support students’ readiness for tertiary education. Learning spaces that resemble university or workplace settings may enhance the student experience and familiarity with these environments prior to the transition from secondary school to university.
The transition from senior school to tertiary education environments is an important development stage due to the highly technical and digital characteristics associated with STEM [29]. Student health and wellbeing is an important variable in this progression. Biophilic design which encourages health-oriented natural environments has been shown to fortify student resilience and encourage performance [32,33]. The implementation of this design methodology could support future expectations, attitudes, and success in tertiary education environments.

4. Discussion

Realising the benefits of nature and placing biophilic principles into practise can take many forms for a school building depending on student profiles, curriculum, site location, and context. With particular emphasis on urban schools, pedagogy and play spaces ought to be considered together because it is in these environments that the balance between indoor and outdoor spaces is most compromised.

4.1. Pedagogy and Play Spaces

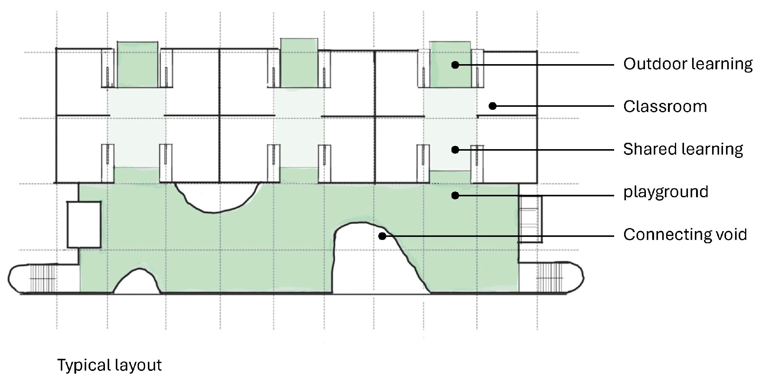
With team teaching practises and collaborative learning approaches being pursued in New South Wales state schools in Australia, classroom configurations and adjacencies with shared learning spaces can influence how the overall school is designed. School Infrastructure New South Wales (SINSW) implemented a learning hub model where four classrooms work as a collaborative learning unit, and they are connected via shared learning spaces centred between the four classrooms (refer to Figure 7).
For a primary school in an urban setting, this generalised approach can lend itself suitable for a multi-storey vertical building, with playgrounds on ground level and again on the rooftop, to maximise site coverage. Many urban sites are heavily constrained regarding space to build on and occupy. Outdoor spaces beyond the building footprint and landscaped zones are often limited due to this constraining factor. Figure 6 displays a potential approach to address this issue. By designing elevated outdoor spaces and integrating them into school floor plates, student cohorts can occupy dedicated floor levels, each with their own outdoor play space that is directly accessible from the indoor classroom environment. This provides a learning landscape on each level, protected from the urban setting, while encouraging connection and collaboration for the students both indoors and outdoors.

4.2. Daylight, Fresh Air, and Views of Nature

With play spaces allocated to each level, providing ample daylight, filtered sunlight, and fresh air becomes an important aspect to achieve. The placement of light wells or voids on elevated floor plates is a design strategy that can bring playful geometry, engaging connections between floors and allowing for lighting conditions to be changed throughout the day. This interaction with sunlight and the passing of the day can encourage better awareness of the natural environment.
Student health can also be fortified through this awareness and direct access to daylight, nurturing a healthy circadian rhythm and overall wellbeing for students. Having opportunities to view green spaces with ecological diversity is another key consideration in early design phases for school buildings, ensuring that the benefits of surrounding landscapes can be harnessed and used to their best potential for the school and local community, evoking better school environments with healthier classrooms for students of all ages.

4.3. Building Expression

Vertical schools in dense urban environments can be unique, individual buildings expressing the activities within and providing a civic presence for communities [33]. With a particular emphasis on playgrounds over multiple levels, the traditional building façade can become a distinctive architectural feature. The play space becomes the building façade when viewed from street level, activating the streetscape with student movement and interaction, where play is clearly on display at several intervals throughout the day. This animated building edge can be a playful, artistic, and colourful feature to explore in urban school design. Rather than having walls and windows looking into classrooms, the building presents as a multi-storey playground, as illustrated in Figure 7, Figure 8 and Figure 9.
Many of these ideas will be developed over time as designers seek to evolve their designs in coming years [34]. Indeed, as further research is conducted with the aim of understanding the relationship between school building design and student and staff health and wellbeing, these concepts will be refined and adapted over time from an increasing evidence base in support of such outcomes [35].

5. Conclusions—Back to Nature

In aspiring to assist educators in improving student health and wellbeing and ultimately improving learning outcomes through biophilic design, school designers are seeking ways to mimic nature in their built projects. A design approach that considers the overall user experience, including that of students, educators, staff, and the community, can yield positive results through appropriate exposure to nature. Aspects such as daylight, fresh air, and greenery can affect how students hear, breathe, see, feel, and move and can influence their ability to absorb, understand, and apply learning in the school environment. Nature is an asset to embrace as it can bring aspects of balance and harmony to the classroom. Designing from the inside out by bringing the outside in, as illustrated in Figure 9, can unify human-made and natural environments.
Applying biophilic design principles through a biomimicry lens has the potential to transform the nature of new school design by integrating function, form, and the student experience in schools, helping to restore architecture that promotes health and wellbeing in educational environments, particularly in dense urban locations. That said, biophilic design is yet to make a significant impact on the minds of senior figures of authority in educational systems globally. The mantra of form and function does not seem to include nature and its impact on health and wellbeing. This is a major barrier which this article seeks to address through supporting designers in creating strategies to convince educational authorities to adopt this approach.
The benefit of a design-led biophilic/biomimicry campaign to achieve this engagement is that these academic concepts—largely textual and numerical in form—can be visualised in concept designs. These designs, when built, can be used as case studies, as illustrated by Browning and Determan, to convince authorities to embrace this approach. This article is essentially about science communication, an area which continues to struggle to translate complex scientific research into applications that can be made useful for society in practise. Future ‘research’ might focus more deliberatively on the communication of the science of biophilic/biomimicry design practises and applications to educators and design practitioners alike.

Funding

This research received no external funding.

Institutional Review Board Statement

Not applicable.

Informed Consent Statement

Not applicable.

Data Availability Statement

All data used during the study are presented in the paper.

Conflicts of Interest

The author is a Principal and shareholder at Architectus. The author declares that the research was conducted in the absence of any commercial or financial relationships that could be construed as a potential conflict of interest. There was no funding provided for this article.

References

  1. Beatley, T. Handbook of Biophilic City Planning & Design; Island Press: London, UK, 2016. [Google Scholar]
  2. Oxford Hub. Nature Positive: A Definition. 2024. Available online: https://naturepositive.web.ox.ac.uk/nature-positive-oxford (accessed on 7 July 2024).
  3. Fromm, E. The Heart of Man: Its Genius for Good and Evil; Open Road Media: New York, NY, USA, 2023. [Google Scholar]
  4. Wilson, E. Biophilia; Harvard University Press: Cambridge, MA, USA, 1984. [Google Scholar]
  5. Australian Government. Intergenerational Report. 2010. Available online: https://treasury.gov.au/sites/default/files/2019-03/IGR_2010.pdf (accessed on 23 April 2024).
  6. Candido, C.; Durakovic, I.; Marzban, S. Routledge Handbook of High-Performance Workplaces; Routledge Handbooks: London, UK, 2024. [Google Scholar]
  7. Grahn, P.; Stigsdotter, U.A. Landscape planning and stress. Urban For. Urban Green. 2003, 2, 1–18. [Google Scholar] [CrossRef]
  8. Kinman, G.; Clements, A. The Role of Demographic and Psychosocial Factors in Predicting SBS Symptoms in Workplaces. In Sick Building Syndrome; Kinman, G., Ed.; Springer: Berlin/Heidelberg, Germany, 2011; pp. 393–404. [Google Scholar]
  9. Berto, R. Exposure to restorative environments helps restore attentional capacity. J. Environ. Psychol. 2005, 25, 249–259. [Google Scholar] [CrossRef]
  10. Kellert, S. Building for Life: Designing and Understanding the Human-Nature Connection. Renew. Resour. J. 2005, 24, 8. [Google Scholar]
  11. Browning, W.; Kallianpurkar, N.; Ryan, C.; Labruto, L. The Economics of Biophilia Why Designing with Nature in Mind Makes Financial Sense; Terrapin Bright Green: New York, NY, USA, 2014. [Google Scholar]
  12. Macquarie University Incubator. 2024. Available online: https://macquarie.architectus.com.au/project/incubator-macquarie-university/ (accessed on 7 July 2024).
  13. McGregor, S. Transdisciplinarity and biomimicry. Transdiscipl. J. Eng. Sci. 2014, 4, 57–65. [Google Scholar] [CrossRef]
  14. Pawlyn, M. Biomimicry in Architecture; RIBA Publishing: London, UK, 2016. [Google Scholar]
  15. Browning, W.; Ryan, C.; Clancy, J. 14 Patterns of Biophilic Design: Improving Health & Well-Being in the Built Environment; Terrapin Bright Green: New York, NY, USA, 2014. [Google Scholar]
  16. Rideout, V.; Foehr, U.; Roberts, D. Generation M2: Media in the Lives of 8- to 18-Year-Olds; Henry J. Kaiser Family Foundation: San Francisco, CA, USA, 2010. [Google Scholar]
  17. Carson, V.; Hunter, S.; Kuzik, N.; Gray, C.E.; Poitras, V.J.; Chaput, J.-P.; Saunders, T.J.; Katzmarzyk, P.T.; Okely, A.D.; Gorber, S.C.; et al. Systematic review of sedentary behaviour and health indicators in school-aged children and youth: An update. Appl. Physiol. Nutr. Metab. 2016, 41, S240–S265. [Google Scholar] [CrossRef]
  18. Thomas, G.; Bennie, J.A.; De Cocker, K.; Ireland, M.; Biddle, S. Screen-based behaviours in Australian adolescents: Longitudinal trends from a 4-year follow-up study. Prev. Med. 2020, 141, 106258. [Google Scholar] [CrossRef] [PubMed]
  19. NSW Department of Education. Positive Psychology Models Such as PERMA (Positive Emotion; Engagement; Relationships; Meaning; and Accomplishment). 2024. Available online: https://hurlstone-h.schools.nsw.gov.au/learning-at-our-school/perma.html (accessed on 7 July 2024).
  20. Dahlan, A.; Eissa, M. The impact of daylighting in classrooms on students’ performance. Int. J. Soft Comput. Eng. (IJSCE) 2015, 4, 2231–2307. [Google Scholar]
  21. Tanner, C. Explaining relationships among student outcomes and the school’s physical environment. J. Adv. Acad. 2008, 19, 444–471. [Google Scholar] [CrossRef]
  22. Alcock, I.; White, M.; Wheeler, B.; Fleming, L.; Depledge, M. Longitudinal effects on mental health of moving to greener and less green urban areas. Environ. Sci. Technol. 2014, 48, 1247–1255. [Google Scholar] [CrossRef] [PubMed]
  23. Berman, M.; Jonides, J.; Kaplan, S. The cognitive benefits of interacting with nature. Psychol. Sci. 2008, 19, 1207–1212. [Google Scholar] [CrossRef] [PubMed]
  24. Roth-Cerina, M.; Rister, V. The Open-Air School Revisited. In Proceedings of the International Conference ‘Making Healthy Cities for People-Education, Research, Practice in Planning, Architecture and Engineering’ HURBE2021, Sarajevo, Bosnia and Herzegovina, 4–5 October 2021. [Google Scholar]
  25. Sullivan, L. The Tall Office Building Artistically Considered. Lippincott’s Mag. 1896, 57, 403–409. [Google Scholar]
  26. Lau, S.; Gou, Z.; Liu, Y. Healthy campus by open space design: Approaches and guidelines. Front. Archit. Res. 2014, 3, 452–467. [Google Scholar] [CrossRef]
  27. Newton, C. Vertical schools on the rise in Australian cities. Archit. Aust. 2019, 108, 86–91. [Google Scholar]
  28. Nychka, J.; Chen, P. Nature as inspiration in materials science and engineering. JOM 2012, 64, 446–448. [Google Scholar] [CrossRef]
  29. Kaplan, R.; Kaplan, S. The Experience of Nature: A Psychological Perspective; Cambridge University Press: Cambridge, UK, 1989. [Google Scholar]
  30. Architectus. Flinders University Health and Medical Research Building. 2024. Available online: https://www.flinders.edu.au/hmrb (accessed on 7 July 2024).
  31. Keane, T.; Linden, T.; Hernandez-Martinez, P.; Molnar, A.; Blicblau, A. Digital technologies: Students’ expectations and experiences during their transition from high school to university. Educ. Inf. Technol. 2023, 28, 857–877. [Google Scholar] [CrossRef] [PubMed]
  32. Zhong, W.; Schröder, T.; Bekkering, J. Biophilic design in architecture and its contributions to health, well-being, and sustainability: A critical review. Front. Archit. Res. 2022, 11, 114–141. [Google Scholar] [CrossRef]
  33. Almusaed, A.; Almssad, A.; Najar, K. An innovative school design based on a biophilic approach using the appreciative inquiry model: Case study Scandinavia. Adv. Civ. Eng. 2022, 2022, 8545787. [Google Scholar] [CrossRef]
  34. Laboy, M. Physical environments for active schools: Future directions for transdisciplinary research. Transl. J. Am. Coll. Sports Med. 2019, 4, 155–164. [Google Scholar] [CrossRef]
  35. Baker, L.; Bernstein, H. The Impact of School Buildings on Student Health and Performance: A Call for Research; The Centre for Green Schools and McGraw-Hill Research Foundation: Washington, DC, USA, 2012. [Google Scholar]
Figure 1. Biomimicry design spiral (source: McGregor, 2014).
Figure 1. Biomimicry design spiral (source: McGregor, 2014).
Architecture 04 00038 g001
Figure 2. Urban school with elevated outdoor space (source: author, 2019).
Figure 2. Urban school with elevated outdoor space (source: author, 2019).
Architecture 04 00038 g002
Figure 3. The connected façade and courtyard space. (Source: author, 2019).
Figure 3. The connected façade and courtyard space. (Source: author, 2019).
Architecture 04 00038 g003
Figure 4. The window nook (source: author, 2019).
Figure 4. The window nook (source: author, 2019).
Architecture 04 00038 g004
Figure 5. Flinders University’s Health and Medical Research Building, Adelaide, South Australia. (Source: author, 2024).
Figure 5. Flinders University’s Health and Medical Research Building, Adelaide, South Australia. (Source: author, 2024).
Architecture 04 00038 g005
Figure 6. An illustration of a biophilic building concept for a tropical climate (source: Architectus, 2022).
Figure 6. An illustration of a biophilic building concept for a tropical climate (source: Architectus, 2022).
Architecture 04 00038 g006
Figure 7. Urban school plan layout diagram. (Source: author, 2022).
Figure 7. Urban school plan layout diagram. (Source: author, 2022).
Architecture 04 00038 g007
Figure 8. An urban school where the play space becomes the building façade. (Source: author, 2022).
Figure 8. An urban school where the play space becomes the building façade. (Source: author, 2022).
Architecture 04 00038 g008
Figure 9. Designing from the inside out by bringing the outside in—biophilic urban schools. (Source: author, 2019).
Figure 9. Designing from the inside out by bringing the outside in—biophilic urban schools. (Source: author, 2019).
Architecture 04 00038 g009
Disclaimer/Publisher’s Note: The statements, opinions and data contained in all publications are solely those of the individual author(s) and contributor(s) and not of MDPI and/or the editor(s). MDPI and/or the editor(s) disclaim responsibility for any injury to people or property resulting from any ideas, methods, instructions or products referred to in the content.

Share and Cite

MDPI and ACS Style

Duffy, A.J. The ‘Nature’ of Vertical School Design—An Evolving Concept. Architecture 2024, 4, 730-744. https://doi.org/10.3390/architecture4030038

AMA Style

Duffy AJ. The ‘Nature’ of Vertical School Design—An Evolving Concept. Architecture. 2024; 4(3):730-744. https://doi.org/10.3390/architecture4030038

Chicago/Turabian Style

Duffy, Alan J. 2024. "The ‘Nature’ of Vertical School Design—An Evolving Concept" Architecture 4, no. 3: 730-744. https://doi.org/10.3390/architecture4030038

APA Style

Duffy, A. J. (2024). The ‘Nature’ of Vertical School Design—An Evolving Concept. Architecture, 4(3), 730-744. https://doi.org/10.3390/architecture4030038

Article Metrics

Back to TopTop