Next Article in Journal
Probabilistic Seismic Hazard Assessment of Lisbon (Portugal)
Previous Article in Journal
Deep Electrical Resistivity Tomography for Detecting Gravitational Morpho-Structures in the Becca France Area (Aosta Valley, NW Italy)
 
 
Font Type:
Arial Georgia Verdana
Font Size:
Aa Aa Aa
Line Spacing:
Column Width:
Background:
Article

Experimental Investigation on Shear Strength at the Permeable Concrete–Fine-Grained Soil Interface for Slope Stabilization Using Deep Socket Counterfort Drains

by
Maurizio Ziccarelli
*,
Giovanni Sapienza
and
Antonio Casella
Engineering Department, University of Palermo, Viale delle Scienze Edificio 8, 90128 Palermo, Italy
*
Author to whom correspondence should be addressed.
GeoHazards 2024, 5(3), 917-931; https://doi.org/10.3390/geohazards5030046
Submission received: 31 July 2024 / Revised: 12 September 2024 / Accepted: 14 September 2024 / Published: 17 September 2024

Abstract

In slopes where high pore water pressure exists, deep counterfort drains (also called drainage trenches or trench drains) represent one of the most effective methods for improving stability or mitigating landslide risks. In the cases of deep or very deep slip surfaces, this method represents the only possible intervention. Trench drains can be realized by using panels or secant piles filled with coarse granular material or permeable concrete. If the trenches are adequately “socket” into the stable ground (for example sufficiently below the sliding surface of a landslide or below the critical slip surface of marginally stable slopes) and the filling material has sufficient shear strength and stiffness, like porous concrete, there is a further increase in shear strength due to the “shear keys” effect. The increase in shear strength is due both to the intrinsic resistance of the concrete on the sliding surface and the resistance at the concrete–soil interface (on the lateral surface of the trench). The latter can be very significant in relation to the thickness of the sliding mass, the “socket depth”, and the spacing between the trenches. The increase in shear strength linked to the “shear keys effect” depends on the state of the porous concrete–soil interface. For silty–clayey base soils, it is very significant and is of the same order of magnitude as the increase in shear resistance linked to the permanent reduction on the slip surface in pore water pressure (draining effect). This paper presents the results of an experimental investigation on the shear strength at the porous interface of concrete and fine-grained soils and demonstrates the high significance and effectiveness of the “shear keys” effect.

1. Introduction

The permanent reduction of pore water pressure through drainage, obviously into slopes where a water table exists, represents one of the most effective methods for improving the stability of slopes with inadequate safety margins or for stabilizing landslides (Terzaghi, 1950 [1]). Sometimes, in the case of very deep landslides, this stabilization method represents the only possible intervention. Drainage can be effectively achieved by means of sub-horizontal tubular drains, draining wells, draining trenches, or draining tunnels [1,2,3,4,5,6,7,8,9].
The draining trenches are divided into superficial trenches (maximum depth of about 5 m) and deep trenches (up to 40 m). The superficial drainage trenches are normally made using simple excavators; they are filled with coarse drainage material normally placed from the top of the trench (from the ground level) and placed inside a geotextile material, which also acts as a protective filter against the internal erosion of the soil inside which the trenches are installed (base soil). Alternatively, prefabricated materials (widely available) can be used; trenches realized with the latter materials are assembled outside the trenches and then lowered into the excavation. The latter technique is easily achievable if the trench walls are stable for relatively long stretches. In the case of very short self-supporting times of the trench walls, it is not applicable due to the enormous difficulties linked to the perfect connection between the base draining tube (of the prefabricated panel walls) and the subsequent one, which can cause imperfect hydraulic continuity.
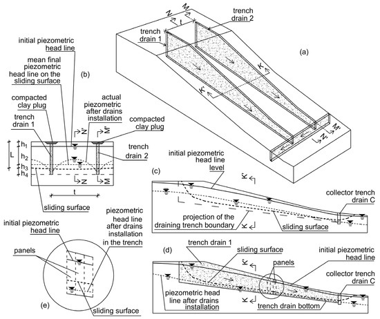
The deep draining trenches can reach a depth of 40 m or more; they can be built using the humped pipe technique using granular filling material or permeable concrete, also called pervious, porous, or enhanced porosity concrete [10,11,12,13,14,15,16,17] (Figure 1). In the latter case, the excavation is carried out using the technique of realization of the diaphragm walls (clamshell bucket or hydromill) or, alternatively, that of secant piles (Figure 2).
Permeable concrete must perform both the drainage functions (i.e., it must have sufficient hydraulic conductivity to dispose of the filtering flows coming from the drained soils in order to guarantee the reduction of the piezometric shares inside the mass of soils) and the filter functions (i.e., to adequately protect the base soils to be drained from internal erosion). In other terms, the permeable concrete must not undergo an unacceptable reduction in hydraulic conductivity over time, as a result of clogging by particles coming from the surrounding soil (base soil), or, in other words, its residual (long-term) hydraulic conductivity must be compatible with the draining function of the trench. Hence, the permeable concrete must therefore act as a filter to stop the erosion of the soil in which the trenches are inserted. Permeable concrete must also have good stiffness and shear resistance after a few days of casting in place to allow the realization of the panels between two already made (secondary panels, 2,4, etc., Figure 2a) or secant piles (secondary piles, Figure 2b). The strength of properly mix-designed pervious concrete is sufficiently high that vertical panels can stand tens of meters high only a short curing time after the permeable concrete is cast in place in the trench. This property allows very efficient and cost-effective organization of the work.
The depth of the trenches can be either smaller or greater than the sliding surface of the landslide (or of the critical sliding surface in the case of marginally stable slopes). In the first case, the increase in shear resistance on the sliding surface is due only to the increase in the shear strength owing to the increase in the effective normal stresses linked to the permanent reduction in pore water pressures. In the second case, if the trenches are adequately embedded into the stable ground (adequately below the considered critical sliding surface) as schematically represented in Figure 3, the increase in shear resistance (and therefore an increase in the safety factor of the slope) is also linked to the intrinsic shear resistance of the material constituting the trench. Moreover, a further significant portion of the increase in shear strength is linked to the friction that develops on the lateral surfaces of the trench wall itself, obviously for the part located above the considered sliding surface only. It is evident that this part of resistance occurs if the draining trenches are arranged in the upstream–downstream direction of the slope (as is normally done).
Obviously, for very deep works or for compromised zones (very unstable zones), the described method can be used if the construction sites allow access for large machinery.
The increase in shear strength due to the shear keys effect can be very significant in relation to the geometry (spacing, i.e., distance t between trenches 1 and 2 (Figure 1), thickness, and height L) of the trenches.
In reference to Figure 1 and Figure 3, for homogeneous base soil, the increase (on average) in shear strength on the unit area of the considered sliding surface for a trench drain of height L, considering, for simplicity, h1 = h3 = 0 (hence h2 = L) and the unit weight of the drained base soil γ is equal to its dry unit weight γd, per square meter of structure is
Δ τ = 2 t 1 2 γ d K L 2 tan δ
where
-
Δτ is the increase in the shear resistance on the sliding surface;
-
t is the spacing of the trenches;
-
L is the depth of the sliding surface from the ground level;
-
K is the coefficient of lateral pressure soil-side wall of the trench (for simplicity can be considered to be equal to the coefficient of earth pressure at rest: K0 = 1 − sen φ′ (with φ′ being the angle of shearing resistance of the base soil);
-
δ′ is the angle of shear strength at the interface side of the trench–base soil (pervious concrete–base soil).
It should also be considered that further resistance, due to the intrinsic resistance of the porous concrete, is present and further improves the effectiveness of the socket drainage trenches. The latter is larger the thicker the trench and the smaller the distance between the trenches.
To the best of the authors’ knowledge, no studies on shear strength at the interface of soil and pervious concrete have been conducted for deep counterfort draining trenches.
Results of extensive experimental research on shear resistance (angle δ′) at the pervious concrete–fine-grained soils (silts and clays) interface are reported in this paper. The cases of fine-grained soils represent the “normal cases” (of soils) in which draining trenches are normally installed.
The results demonstrated that the increase in shear strength, and hence the improvement of the stability of the slope, are very significant when socket trench drains (filled with permeable concrete) are installed.

2. Materials and Methods

The materials used in the experimentation are permeable concrete, silt L (obtained by crushing sand of volcanic origin), and 2 natural clays, called A and B.

2.1. Permeable Concrete

The permeable concrete was generated using aggregates (sand and gravel), cement, and water.

2.1.1. Cement

A type of portland cement, Tecnocem 32.5 R (II B-LL), was employed. The cement composition, by mass, is as follows: clinker, 65–79%; limestone, 21–35%; percentage of total organic carbon, less than 0.20; and percentage of minor constituents (including sulfates and chlorides, i.e., SO3), less than 0.10.

2.1.2. Water

Water from the Palermo aqueduct (tap water) was used. The main composition and properties of the water are synthesized in Table 1.

2.1.3. Aggregates

The granulometric composition of the aggregates used for the preparation of the permeable concrete is shown in Figure 4. Two types of concrete with monogranular aggregates were used (concrete R, aggregate R) and mixture M (Figure 4) constituting (percentages by weight) sand S (40%) and gravel G (60%). For both types of concrete, the aggregate/cement ratio (A/C) and the water/cement ratio (W/C) are 10 and 0.4, respectively. The value of W/C = 0.4 represents the optimum that allows enough workability and strength [10,18]. For A/C = 10, the quantity of cement per cubic meter of concrete (cement content C) is 142 kg/m3. Once the components were mixed, the compound was packaged directly into the container of the cutting box (square shape and 6 cm sides).

2.2. Main Characteristics of Permeable Concrete

Figure 5 shows a photograph of a specimen of pervious concrete R. The mix-design of the pervious concrete (for both concrete R and concrete M) has been studied in such a way as to simultaneously satisfy the drainage and filter requirements, which are the main requirements that permeable concrete must have for geotechnical application [10,11,18].
In particular, permeable concrete must have dimension and distribution of voids so as to protect the material (base soils) within which the drainage trenches are installed. This enhanced-porosity concrete must have sufficiently high hydraulic conductivity to drain the water present in the base soils. It must also have sufficient resistance to clogging and therefore sufficient hydraulic conductivity in the long term (many years after the construction of the counterfort drains).
Figure 6 presents a thin section in which the gravel and sand particles and the pores (in black) are clearly visible.
Permeable concrete, being a cemented material, does not present internal stability problems like most granular soils utilized as filling materials [19,20,21].
The sand and gravel used for confectioning the permeable concrete consist of particles with sub-rounded to sharp edges; the grains of sand are siliceous while the gravel is calcareous. The uniformity coefficient, CU, is equal to 2.2 for gravel R while it is 10 for mixture M (S + G). To facilitate the formation of solid particles of a uniform film of cement paste, the aggregates were moistened prior to mixing, as suggested by Neville, 1995 [22].
The uniaxial compressive strength of the permeable concrete depends on the aggregate–cement content (A/C), cement content (C), curing time, maturation environment (curing in the air or in water), and the chemical composition of the water [10,11]. The air-cured pervious concrete exhibits a compressive strength of 0.35 MPa after one day of curing and 2.8 MPa after 28 days of curing. For concrete cured in tap water, the strength varies from 0.5 MPa after two days of curing to 2.5 MPa after 28 days of curing [10]. Compressive strength increases for both curing environments in the first 7 days (Figure 7). The compressive strength, and consequently the shear strength, after only one day of curing is enough to allow the realization of the panel (or pile) placed between two panels already realized (secondary panels or secondary piles, Figure 2), with consequent efficiency in the organization of the construction site and in the construction of the trenches. This aspect is of fundamental importance for the feasibility (with respect to the use of non-cemented granular materials for filling the trenches) and therefore the economic and environmental sustainability of drainage trenches.
The porosity, n, of the concrete formed by aggregate R is equal to 42%, while that of the concrete formed with the aggregates of mixture M is equal to 44%; the unit weights of both types of concrete, R and M, range from 15.5 to 16.3 kN/m3. The permeability, k, for values of the piezometric gradient, i, between 0.4 and 4 is equal to 2 × 10−2 m/s and 2 × 10−3 m/s for concrete types R and M, respectively. The residual hydraulic conductivity of both concrete types, i.e., hydraulic conductivity after at least 15 clogging cycles with a material with a diameter of less than 0.075 mm (silty and clayey soils) is approximately 50% of the initial one; therefore, these concrete types are still sufficient for use as draining materials.

2.3. Soil Characteristics

2.3.1. Index Properties

For the determination of the shear strength at the concrete–soil interface, silt obtained by crushing volcanic sand and two natural clays (namely clay A and B) were used. The granulometric composition of silt and the two clays is shown in Figure 8. Figure 9 shows the plasticity chart of the two clays. The specific weight of silt L is equal to 27.9 kN/m3, the specific weight of clay A is equal to 26.8 kN/m3 and the specific weight of clay B is equal to 27 kN/m3. Clays A and B were taken from a site where the construction of superficial draining trenches is planned for the stabilization of a large landslide in over-consolidated clays [23]. They belong to the same formation (Marne di San Cipirello, Sicily, Italy) and also to the same vertical; however, they differ slightly in particle size composition and index properties, linked to the deposition environment. The latter is relatively variable, both in terms of the depth and the planimetric position.

2.3.2. Shear Strength

Silt L
To determine the shear strength both at small and large displacements, direct shear tests and annular shear tests were performed. Figure 10 shows the typical trend of the shear strength vs. horizontal displacement curves obtained from direct shear tests. Figure 11 shows the peak and ultimate shear strength envelopes. The peak angle of the shear strength of the silt is equal to 40°, while the critical one is 31°. The latter value is coincident to the angle of residual shear strength obtained from tests performed at great cumulative horizontal displacements by means of ring shear tests. This result confirms the nature of the silt that is constituted of equidimensional particles, with the critical shear strength equal to the residual one.
Clays A and B
Clays A and B were characterized by means of consolidated drained direct shear tests TD and annular ring shear tests RS. Figure 12 shows a typical trend of the mobilized shear resistance vs. the horizontal displacements of clay A (a) and clay B (b).
Figure 13 shows the peak, ultimate, and residual shear strength envelopes of clay A. The residual shear strength was determined both by means of TD (reversal) and RS tests. The peak envelope can be characterized by c′ = 20 kPa and φ′ = 25°. The ultimate (or critical or constant volume) envelope is characterized by c′ = 0 and φ′ = 20.5° while the residual one is represented by c′ = 0 and φ′ = 11°.
For clay B, the results are as follows: peak c′ = 20 kPa and φ′ = 22°; ultimate c′ = 0 and φ′ = 21°; residual c′ = 0 and φ′ = 8° (Figure 14). The small differences in the shear strengths of the two clays are linked both to the slightly different granulometric composition and principally to the differences in their plasticity (see Figure 9).

3. Results and Discussion

The shear strength at the permeable concrete–soil interface was determined by direct shear tests on square specimens with a size of 6 cm (see Figure 5). The porous concrete was packed in the lower part of the shear box, while the soil (silt or clay) was inserted in the upper half. Figure 15 shows the typical results of mobilized shear strength τ in the function of the relative horizontal displacements δh relative to the first cycle of load corresponding to the residual state (i.e., after 10 cycles of available relative displacement) for the cases of silt–pervious concrete R (Figure 15a) and clay A–pervious concrete R (Figure 15b). Similar results were obtained for the shear strength at the permeable concrete–clay B interface.
As can be observed in Figure 15, the shear resistance related to large displacements is approximately equal to that measured in the first cycle of the generic test, although in some cases a small peak or a tendency to have a small peak in the first cycle is observed. The small peak has been observed at the interface of soils and rough “conventional” concrete or between soils and mortar or other materials [24,25,26,27,28,29,30,31,32,33,34]. Similar behavior was registered for clay B–pervious concrete interfaces. Figure 16 shows the photo of a specimen at the end of the test after 10 cycles, i.e., under, or very close to, residual conditions. The concrete is made up of mixture M while the ground is made up of clay A. From the photograph, it is clear that failure occurs at the permeable concrete–clay interface; some striated areas are also observed.
Figure 17 shows the peak and the ultimate envelopes at the silt–concrete R interface. The peak and ultimate envelopes (with dotted lines) of the silt are drawn for easy comparison. The angle of peak shear resistance at interface δ′p is equal to 37.5°, while the one corresponding to the ultimate conditions δ′u is equal to 35.5°.
Similar results have been obtained for silty soils–conventional concrete interfaces by [27,34]. The shear strength at the silt–pervious concrete interface is intermediate between the ultimate and the peak shear resistance of the silt.
The peak, ultimate, and residual strengths at the clay A–pervious concrete interface (Figure 18) occur between the peak and residual shear strengths of the clay. Although a certain dispersion of data exists, for relative displacements of a few millimeters, the shear strength is approximately equal to the ultimate shear strength of the clay; for high values of relative displacements, the shear strength is always greater than the residual shear strength of the clay.
Very similar results were obtained for the pervious concrete–clay B interface.
The obtained results have great practical importance and relevance because the shear strength at the soil–pervious concrete interface is always higher than the residual one for clayey base soils and higher than the ultimate one for silty base soil. Hence, when socket trench drains filled with pervious concrete are used for the stabilization of slopes, the increase in shear strength on the side walls of the trench (in addition to that obtained for the increase in the effective stresses linked to the permanent reduction of the pore water pressure of the effect of the drainage) is at least equal to the ultimate strength of the base soils (both silty and clayey soils). Moreover, for clayey base soil at very high relative displacements, the shear strength at the interface is still higher than the residual one. Hence, these shear strengths can be determined through very simple tests (direct shear or ring shear tests) utilizing the base soils only. In the case of socket draining trenches installed in non-homogeneous fine-grained soils, the lowest value of the critical strength of the soils can be used for practical purposes and conservative design.
Obviously, the ultimate shear strength of the silt and the residual shear strength of the clay represent a lower limit of the shear resistance at the interface of the side wall of the trench and the base soil.
A simple example is given to highlight the significance of the utilization of the socket drainage trenches to stabilize landslides. With reference to the scheme in Figure 1, for a socket trench drain in which the depth of the slip surface L = 10 m, the interspaces value t = 10 m, clayey base soil with a peak shear strength angle φ′p = 25°, δ′ = φ′u = 20°, γd = 16 kN/m3, h1 = h3 = 0, K = 1 − sinφ′p = 0.58, the increase in shear strength Δτ1 (on average) is
Δ τ 1 = 2 t 1 2 γ d K L 2 tan δ = 33.75   k P a
The increase in the shear strength Δτ2 linked to the increase in effective stress is
Δ τ 2 = Δ σ v tan φ u = γ w L tan φ u = 36.40   k P a
For the considered case, the increase in shear strength due to the socket drainage trench wall is of the same magnitude as the one due to the drainage effect and contributes significantly to the improvement of the stability of the slope or to the stabilization of landslides.
Finally, it is worth underlining that the increase in shear resistance described above occurs because the stiffness and the strength of the material (porous concrete) constituting the trench is much higher than that of the soil within which the trench is installed (normally silt, clay, silty–clays, clayey–silts, and other combinations of fine-grained soils). In fact, if the trenches were filled with loose materials (sand, gravel), the stiffness of the trench materials would be of the same order of magnitude as that of the surrounding base soils (clay, silt, etc.) and therefore there would no increase in the resistance described above. In fact, this shear strength can only be mobilized if there are relative displacements at the base soil–trench material interface.

4. Conclusions

The mitigation of landslide risk in slopes with water tables can be effectively pursued through the permanent reduction of pore water pressure, for example, by using deep draining trenches. The most suitable material for the easy realization of deep trench drains is achieved using permeable concrete. If the drainage trenches can be effectively clamped below the sliding surface in the layers of stable soil (i.e., below the sliding surface of a landslide or below the critical surface of slopes with unsatisfactory safety factors) and simultaneously the material for filling the trench has enough strength and stiffness, for example, permeable concrete, there would be a significant increase in shear resistance on the sliding surface due to the “shear keys” effect in addition to the benefits of the increase in shear resistance due to the increase in the effective stresses linked to soil drainage.
The results obtained with the experimental research conducted on the resistance of the fine-grained soil–pervious concrete interface have shown that this resistance is significant and is always greater than the residual strength of clay (for clayey base soils) and greater than the ultimate strength of silt (for silty base soils). These latter resistances are very simple and consolidated and can be determined through very simple laboratory tests and represent the minimum strength at the soil–concrete interface.
For the interspace between the trenches of the same magnitude of the depth of the considered sliding surface, the increase in shear strength due to the shear keys effect is of the same order as the one due to the increase in shear strength linked to the reduction in the pore water pressure (drainage effect).
The effectiveness of socket drainage trenches is due to the stiffness and strength of the material constituting the fill material, which must be the one in the surrounding base soil. Loose materials such as sand and gravel cannot be utilized.
It is quite evident that further experimentation is needed to study possible scale effects.

Author Contributions

Conceptualization, methodology, writing—original draft preparation, writing—review and editing, supervision, project administration, funding acquisition: M.Z.; investigation, data curation: M.Z., G.S., and A.C. All authors have read and agreed to the published version of the manuscript.

Funding

This research was carried out with partial financial support from MIUR, Italy (Ministry of Education, Universities and Research)-PRIN (Progetti di Rilevante Interesse Nazionale) 2010–2011, Protocol number: 2010SWTCKC_010. Title: Landslide risk mitigation with sustainable measures (La mitigazione del rischio dafrana con interventi sostenibili). National Scientific Coordinator: Prof. Leonardo Cascini, University of Salerno (UNISA); Scientific Manager: Prof. C. Valore, University of Palermo (UNIPA); Collaborator: Prof. Maurizio Ziccarelli, University of Palermo (UNIPA). Title of research unit: The use of no-fines concrete for deep trench drains. (L’impiego del calcestruzzo senza frazione fina per la realizzazione di trincee drenanti profonde).

Data Availability Statement

Data are available upon request.

Conflicts of Interest

The authors declare no conflicts of interest.

References

  1. Terzaghi, K. Mechanism of Landslides. In Application of Geology to Engineering Practice (Berkey Volume); Paige, S., Ed.; The Geological Society of America: New York, NY, USA, 1950; pp. 83–123. [Google Scholar]
  2. Hutchinson, J.N. Assessment of the effectiveness of corrective measures in relation to geological conditions and types of slope movement. Bull. Int. Assoc. Eng. Geol. 1977, 16, 31–155. [Google Scholar] [CrossRef]
  3. Kenney, T.C.; Pazin, M.; Choi, W.S. Design of horizontal drains. J. Geotech. Eng. Div. 1977, 103, 1311–1323. [Google Scholar]
  4. Nonveiller, E. Efficiency of horizontal drains on slope stability. In Proceedings of the 10th International Conference on Soil Mechanics and Foundation Engineering, Stockholm, Sweden, 15–19 June 1981; Volume 3, pp. 495–500. [Google Scholar]
  5. Bromhead, E.N. An analytical solution to the problem of seepage into counterfort drains. Can. Geotech. J. 1984, 21, 657–662. [Google Scholar]
  6. Stanic, B. Influence of draining trenches on slope stability. J. Geotech. Eng. 1984, 110, 1624–1636. [Google Scholar]
  7. Cornforth, D.H. Landslides in Practice; John Wiley & Sons, Inc.: New York, NY, USA, 2005. [Google Scholar]
  8. Cotecchia, F.; Lollino, P.; Petti, R. Efficacy of drainage trenches to stabilise deep slow landslides in clay slopes. Géotechnique Lett. 2016, 6, 1–6. [Google Scholar] [CrossRef]
  9. Tagarelli, V.; Cotecchia, F. Coupled hydro-mechanical analysis of the effects of medium depth drainage trenches mitigating deep landslide activity. Eng. Geol. 2022, 297, 106510. [Google Scholar] [CrossRef]
  10. Valore, C.; Ziccarelli, M.; Muscolino, S.R. An experimental investigation into the permeability and filter properties of pervious concrete for deep draining trenches. Riv. Ital. Geotec. 2018, 52, 7–30. [Google Scholar] [CrossRef]
  11. Ziccarelli, M.; Valore, C. Hydraulic conductivity and strength of pervious concrete for deep trench drains. Geomech. Energy Environ. 2019, 18, 41–55. [Google Scholar] [CrossRef]
  12. Brattebo, B.O.; Booth, D.B. Long-term stormwater quantity and quality performance of permeable pavement systems. Water Res. 2003, 37, 4369–4376. [Google Scholar] [CrossRef]
  13. Adresi, M.; Yamani, A.; Tabarestani, M.K.; Rooholamini, H. A comprehensive review on pervious concrete. Constr. Build. Mater. 2023, 407, 133308. [Google Scholar] [CrossRef]
  14. Wu, Y.; Pieralisi, R.; Sandoval, S.G.B.; López-Carreño, R.D.; Pujadas, P. Optimizing pervious concrete with machine learning: Predicting permeability and compressive strength using artificial neural networks. Constr. Build. Mater. 2024, 443, 137619. [Google Scholar] [CrossRef]
  15. Wijekoon, S.B.; Sathiparan, N.; Subramaniam, D.N. Optimisation of pervious concrete performance by varying aggregate shape, size, aggregate-to-cement ratio, and compaction effort by using the Taguchi method. Int. J. Pavement Eng. 2024, 25, 2380523. [Google Scholar] [CrossRef]
  16. Feric, K.; Kumar, V.S.; Romic, A.; Gotovac, H. Effect of Aggregate Size and Compaction on the Strength and Hydraulic Properties of Pervious Concrete. Sustainibility 2023, 15, 1146. [Google Scholar] [CrossRef]
  17. Marzulli, V.; Cafaro, F.; Ziccarelli, M. Hydraulic characterization of a pervious concrete for deep draining trenches. J. Mater. Civ. Eng. 2018, 30, 04018100. [Google Scholar] [CrossRef]
  18. Ziccarelli, M. Influence of Stress-level due to Self-weight on the Hydraulic Conductivity of Permeable Concrete for Geotechnical Applications. Geomech. Energy Environ. 2022, 32, 100409. [Google Scholar] [CrossRef]
  19. Moraci, N. Geotexile filter: Design, characterization and factors effecting clogging and blinding limit states. In Proceedings of the 9th International Conference on Geosynthetics, Guarujá, Brazil, 23–27 May 2010; Volume 1, pp. 413–435. [Google Scholar]
  20. Moraci, N. A new theoretical method to evaluate the internal stability of granular soils. Can. Geotech. J. 2012, 49, 45–58. [Google Scholar] [CrossRef]
  21. Moraci, N.; Ielo, D.; Mandaglio, M.C. Valutazione della stabilità interna dei terreni granulari. Riv. Ital. Geotec. 2016, 2, 28–43. (In Italian) [Google Scholar]
  22. Neville, A.M. Properties of Concrete, 4th ed.; Longman Group Limited: Essex, UK, 1995. [Google Scholar]
  23. Ziccarelli, M.; Casella, A.; Sapienza, G. A landslide in overconsolidated clays that has involved an important road of access to an internal mountain town. In Geotechnical Research for Land Protection and Development: CNRIG 2019, Lecture Notes in Civil Engineering, Lecco, 3–5 July 2019; Calvetti, F., Cotecchia, F., Galli, A., Jommi, C., Eds.; Springer: Cham, Switzerland, 2020; Volume 40, pp. 215–224. [Google Scholar] [CrossRef]
  24. Potyondy, J.G. Skin friction between various soils and construction materials. Géotechnique 1961, 11, 339–353. [Google Scholar] [CrossRef]
  25. Shakir, R.R.; Zhu, J.-G. Mechanical behavior of soil and concrete interface. In ICEM 2008: International Conference on Experimental Mechanics 2008, Proceedings of the International Conference on Experimental Mechanics 2008 and Seventh Asian Conference on Experimental Mechanics, 8–11 November 2008, Nanjing, China; He, X., Xie, H., Kang, Y., Eds.; Curran Associates, Inc.: New York, NY, USA, 2008; Volume 7375, p. 73756R. [Google Scholar] [CrossRef]
  26. Shakir, R.R.; Zhu, J.-G. Behavior of compacted clay-concrete interface. Front. Arch. Civ. Eng. China 2009, 3, 85–92. [Google Scholar] [CrossRef]
  27. Shakir, R.R.; Zhu, J.-G. An examination of the mechanical interaction of drilling slurries at the soil-concrete contact. J. Zhejiang Univ. Sci. A Appl. Phys. Eng. 2010, 11, 294–304. [Google Scholar] [CrossRef]
  28. Chen, X.; Zhang, J.; Xiao, Y.; Li, J. Effect of roughness on shear behavior of red clay-concrete interface in large-scale direct shear tests. Can. Geotech. J. 2015, 52, 1122–1135. [Google Scholar] [CrossRef]
  29. Feligha, J.M.; Hammoud, F. Experimental investigation of frictional behavior between cohesive soils and solid materials using direct shear apparatus. Geotech. Geol. Eng. 2016, 34, 567–578. [Google Scholar] [CrossRef]
  30. Sun, T.; Gao, X.; Liao, Y.; Feng, W. Experimental study on adfreezing strength at the interface between silt and concrete. Cold Reg. Sci. Technol. 2021, 190, 103346. [Google Scholar] [CrossRef]
  31. Idries, A.; Abu-Farsakh, M.Y.; Chen, S.; Gao, X.; Liao, Y.; Feng, W. Effect of one cycle of heating-cooling on the clay-concrete pile interface shear strength parameters. Transp. Geotech. 2022, 36, 100810. [Google Scholar] [CrossRef]
  32. Nguyen, T.T.; Nguyen, M.D.; Nguyen, T.; Phan, T.C. Interface shear strength behavior of cement-treated soil under consolidated drained conditions. Buildings 2023, 13, 1626. [Google Scholar] [CrossRef]
  33. Zhu, Y.; Li, G.; Mi, Z.; Wei, K.; Chen, Z. Experimental investigation on the shear behavior of interface between high plastic clay and concrete. Adv. Mater. Sci. Eng. 2022, 2022, 9313881. [Google Scholar] [CrossRef]
  34. Rashma, R.S.V.; Jayalekshmi, B.R.; Shivashankar, R. Shear strength behaviour of pervious concrete column improved soft clay bed: A Numerical Study. Transp. Infrastruct. Geotechnol. 2022, 9, 543–562. [Google Scholar] [CrossRef]
Figure 1. Landslides stabilized by draining trenches. (a) Three-dimensional schematic view. The distance between trench drains 1 and 2 is t. (b) Transversal cross-section K-K′; (c,d) longitudinal vertical cross-sections N-N′ (between two consecutive trench drains) and M-M′ (along trench drain 1); (e) detail of vertical section M-M′ (d).
Figure 1. Landslides stabilized by draining trenches. (a) Three-dimensional schematic view. The distance between trench drains 1 and 2 is t. (b) Transversal cross-section K-K′; (c,d) longitudinal vertical cross-sections N-N′ (between two consecutive trench drains) and M-M′ (along trench drain 1); (e) detail of vertical section M-M′ (d).
Geohazards 05 00046 g001
Figure 2. Planimetric scheme of realization of deep trench drains (a) with diaphragm panels or (b) with secant piles.
Figure 2. Planimetric scheme of realization of deep trench drains (a) with diaphragm panels or (b) with secant piles.
Geohazards 05 00046 g002
Figure 3. Scheme of “shear keys effect” of trench drain of pervious concrete “socket” in stable soils (below the sliding surface). The stabilizing forces exerted by the trench on the soil sliding mass is R3 = −(H1 + H2). Homogeneous base soil H1 = H2.
Figure 3. Scheme of “shear keys effect” of trench drain of pervious concrete “socket” in stable soils (below the sliding surface). The stabilizing forces exerted by the trench on the soil sliding mass is R3 = −(H1 + H2). Homogeneous base soil H1 = H2.
Geohazards 05 00046 g003
Figure 4. Grain size composition of aggregates used for the preparation of permeable concrete specimens.
Figure 4. Grain size composition of aggregates used for the preparation of permeable concrete specimens.
Geohazards 05 00046 g004
Figure 5. Photo of the pervious concrete R packaged into the shear box. The specimen is a square of length 60 mm.
Figure 5. Photo of the pervious concrete R packaged into the shear box. The specimen is a square of length 60 mm.
Geohazards 05 00046 g005
Figure 6. Thin horizontal section of mixture M. The gravel and sand particles and the pores are clearly visible.
Figure 6. Thin horizontal section of mixture M. The gravel and sand particles and the pores are clearly visible.
Geohazards 05 00046 g006
Figure 7. Compressive strength vs. curing time for different aggregate–cement (A/C) ratios, cement content (C), and maturation environments of the specimens of mixture M. Redrawn by Ziccarelli and Valore, 2019 [11].
Figure 7. Compressive strength vs. curing time for different aggregate–cement (A/C) ratios, cement content (C), and maturation environments of the specimens of mixture M. Redrawn by Ziccarelli and Valore, 2019 [11].
Geohazards 05 00046 g007
Figure 8. Granulometric composition of clays A and B and silt L.
Figure 8. Granulometric composition of clays A and B and silt L.
Geohazards 05 00046 g008
Figure 9. Plasticity chart of clays A and B.
Figure 9. Plasticity chart of clays A and B.
Geohazards 05 00046 g009
Figure 10. Typical curves of mobilized shear strength vs. horizontal displacements of silt.
Figure 10. Typical curves of mobilized shear strength vs. horizontal displacements of silt.
Geohazards 05 00046 g010
Figure 11. Peak and critical state shear strength envelopes of the silt.
Figure 11. Peak and critical state shear strength envelopes of the silt.
Geohazards 05 00046 g011
Figure 12. Typical curves of mobilized shear strength vs. horizontal displacements of clays A and B.
Figure 12. Typical curves of mobilized shear strength vs. horizontal displacements of clays A and B.
Geohazards 05 00046 g012
Figure 13. Peak, critical, and residual state shear strength envelopes for clay A.
Figure 13. Peak, critical, and residual state shear strength envelopes for clay A.
Geohazards 05 00046 g013
Figure 14. Peak, critical, and residual state shear strength envelopes for clay B.
Figure 14. Peak, critical, and residual state shear strength envelopes for clay B.
Geohazards 05 00046 g014
Figure 15. Typical curves of mobilized shear strength vs. horizontal displacements at the interface of pervious concrete R and silt (a) and clay A (b).
Figure 15. Typical curves of mobilized shear strength vs. horizontal displacements at the interface of pervious concrete R and silt (a) and clay A (b).
Geohazards 05 00046 g015
Figure 16. Part of a specimen at the end of the test (specimen square of length 6 cm). Pervious concrete M–clay A interface. Shear displacements at the soil–permeable concrete interface are clearly visible. A zone of the area was cleaned to improve visibility.
Figure 16. Part of a specimen at the end of the test (specimen square of length 6 cm). Pervious concrete M–clay A interface. Shear displacements at the soil–permeable concrete interface are clearly visible. A zone of the area was cleaned to improve visibility.
Geohazards 05 00046 g016
Figure 17. Failure envelops at the silt–permeable concrete R interface.
Figure 17. Failure envelops at the silt–permeable concrete R interface.
Geohazards 05 00046 g017
Figure 18. Failure envelops at the clay A–permeable concrete R interface.
Figure 18. Failure envelops at the clay A–permeable concrete R interface.
Geohazards 05 00046 g018
Table 1. Composition and properties of the water used in the tests.
Table 1. Composition and properties of the water used in the tests.
pHElectrical Conductivity
(at T= 20 °C)
[μS/cm]
Alkalinity
[mg/L]
Sodium
[mg/L]
Sulfates
[mg/L]
Calcium
[mg/L]
Chlorides
[mg/L]
Magnesium
[mg/L]
Nitrates
[mg/L]
Potassium
[mg/L]
7.727701941611619948.525.94.6
Other minor components are present in negligible quantities.
Disclaimer/Publisher’s Note: The statements, opinions and data contained in all publications are solely those of the individual author(s) and contributor(s) and not of MDPI and/or the editor(s). MDPI and/or the editor(s) disclaim responsibility for any injury to people or property resulting from any ideas, methods, instructions or products referred to in the content.

Share and Cite

MDPI and ACS Style

Ziccarelli, M.; Sapienza, G.; Casella, A. Experimental Investigation on Shear Strength at the Permeable Concrete–Fine-Grained Soil Interface for Slope Stabilization Using Deep Socket Counterfort Drains. GeoHazards 2024, 5, 917-931. https://doi.org/10.3390/geohazards5030046

AMA Style

Ziccarelli M, Sapienza G, Casella A. Experimental Investigation on Shear Strength at the Permeable Concrete–Fine-Grained Soil Interface for Slope Stabilization Using Deep Socket Counterfort Drains. GeoHazards. 2024; 5(3):917-931. https://doi.org/10.3390/geohazards5030046

Chicago/Turabian Style

Ziccarelli, Maurizio, Giovanni Sapienza, and Antonio Casella. 2024. "Experimental Investigation on Shear Strength at the Permeable Concrete–Fine-Grained Soil Interface for Slope Stabilization Using Deep Socket Counterfort Drains" GeoHazards 5, no. 3: 917-931. https://doi.org/10.3390/geohazards5030046

APA Style

Ziccarelli, M., Sapienza, G., & Casella, A. (2024). Experimental Investigation on Shear Strength at the Permeable Concrete–Fine-Grained Soil Interface for Slope Stabilization Using Deep Socket Counterfort Drains. GeoHazards, 5(3), 917-931. https://doi.org/10.3390/geohazards5030046

Article Metrics

Back to TopTop