Use of Drone Photogrammetry as An Innovative, Competency-Based Architecture Teaching Process
Abstract
1. Introduction
1.1. Use of Drones in Education
1.2. Educational Model
2. Materials and Methods
2.1. Participants
2.2. Context
- Promote infrastructure, spaces, and conditions that foster dignified community life and strengthen the interactions of its members.
- Promote the sustainability and efficiency of cities using shared resources.
- Integrate intelligence, research, innovation, and cultural centers that promote attractive and healthy cities.
- To influence the transformation of governments and civil society based on public entrepreneurship and technological innovation [30].
2.2.1. Digital Transformation
Block Evidence
Evidence to Be Presented
- 1.
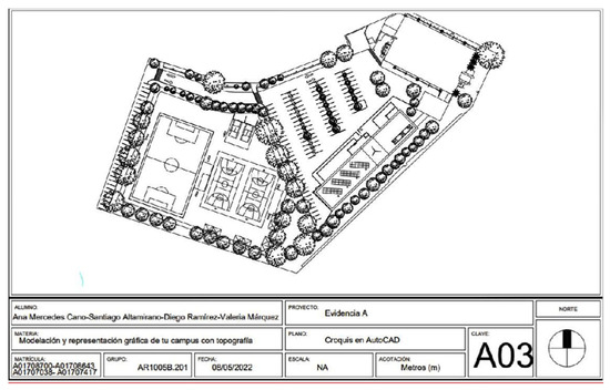
- Perform a first reconnaissance of the chosen polygon of the campus. For this purpose, a specific topography drone will also be used to help generate an orthomosaic and a three-dimensional model to visualize the work area. Subsequently, a “preliminary sketch of the survey” will be made, where the area will be delimited according to what has been reviewed with the professor (buildings, surface, and subway infrastructure, parking lots, green areas, sports areas, cultural areas, and main roads within the campus).
- 2.
- In the same way, the location in the sketch of:
- Hydraulic installations (manholes, valve boxes)
- Electrical installations (lamps, registers)
- Sanitary installations (registers)
- Street furniture
- Trees
- Gardens
- Signage
- Luminaires
- 3.
- Finally, a descriptive memory of generating the sketch before the topographic survey is prepared individually. The sketch is the basis of the deliverable and represents all the identified infrastructure and its areas. It is important to use the correct colors and symbology. Symbology and annotations should be highlighted and placed on the right side of the deliverable, with a brief description of each symbol used.
- 1.
- The information generated with the drone should be complemented with the topography equipment (total station, level), and the area of the chosen campus should be graphically represented using specialized drawing software (AUTOCAD and CivilCAD) the existing zones in the study area:
- Buildings.
- Parking lots.
- Green areas.
- Sports areas.
- Cultural zones.
- Main roads.
- 2.
- Include the auxiliary polygon of the survey and its construction chart, which must contain:
- Point number (which is also marked on the digital model).
- Distance (including units in the header).
- Azimuth (in sexagesimal degrees).
- Coordinates North, East (indicating the cartographic projection used in the plan).
- Elevation (in meters above mean sea level and including the vertical reference datum).
- Vertex.
- 3.
- Represent the hydraulic, electrical, telecommunications, and sanitary installations detected in the walkthrough of Evidence A, as well as the existing ones in the data provided by the teachers.
- 4.
- Generate a layout/presentation for printing of your graphic representation (delimitation of areas, auxiliary polygon, construction, and facilities table) with at least the following elements:
- Graphical North (located at the top right of the layout).
- Graphic scale.
- UTM grid or according to the cartographic projection defined by the teachers.
- Flap or marginal strip in accordance with the requirements of the municipality for the granting of construction permits that includes at least with:
- Company logo (in this case Tecnológico de Monterrey).
- Macro location (location of the polygon drawn to a scale showing the main avenues).
- Location (location of the study area within the Campus).
- Symbology and legend (a table with the symbols used in the plan and their legend should be included—brief description of the symbols).
- Data table (location of the property, surface, owner, name of the plan, content, numerical scale, date, data of the person who made the survey, data of the person who made the drawing and plan number).
- 5.
- Using specialized drawing software (Revit, Archicad, or Sketchup), you will generate a three- dimensional graphic representation of a two-dimensional model of your study area. This model should include the following:
- Three-dimensional terrain.
- Existing buildings.
- Parking lots.
- Green areas.
- Sports areas.
- Cultural zones.
- Main roads.
- 6.
- Generate the following views for printing:
- Overall plan
- Two perspectives showing different angles of your area of study.
- North façade.
- South façade.
- East façade.
- West façade.
- Longitudinal cut.
- Cross section.
2.2.2. Evaluation Criteria
3. Results
Field Data Acquisition
- Equipment
- Drone: Phantom 4 RTK Mobile Station: D-RTK 2
- Setting
- Operation Type: Three-dimensional Photogrammetry (Multi-oriented) Location: Querétaro, Mexico
- Mapping Area 24,408 m2 Estimated Flight Time: 33 m 21 s Photos: 638
- Survey Design
- Flight height (m): 60 (GSD 1.64 cm/pixel) Speed (m/s): 4.5 (Max Speed: 4.5)
- Oblique Altitude (m): 100 (GSD 2.74 cm/pixel) Oblique Speed (m/s): 7.4 (Max Speed: 7.9)
- Horizontal Overlapping Rate (%): 70 Vertical Overlapping Rate (%): 80 Oblique Side Overlap Rate (%): 70 Oblique Frontal Overlap Rate (%): 80
- Photogrammetric Processing Software: Pix4Dmapper version 4.6.4
- Quality Report
- SummaryProject: Building 14:
- Processed: 31 March 2022
- Camera Model Name(s): FC6310R_8.8_5472 × 3648 (RGB) Time for Initial Processing (without report): 02 h:16 m:24 s
- Quality Check
- Images: median of 41,836 keypoints per image
- Dataset: 743 out of 743 images calibrated (100%), all images enabled
- Camera Optimization: 0.59% relative difference between initial and optimized internal camera parameters.
- Matching: median of 8605.28 matches per calibrated image Georeferencing: yes, no 3D GCP
- Calibration Details
- Number of Calibrated Images: 743 out of 743 Number of Geolocated Images 743 out of 743
- Fieldwork: where the different points of interest to be surveyed are located.
- Cabinet work: where the data are ordered and downloaded for their calculation and interpretation to represent them through a two-dimensional drawing finally.
4. Discussion
5. Conclusions
- Speed and accuracy in data capture.
- Greater detail and scope.
- Generation of orthomosaics and three-dimensional textured meshes.Disadvantages of using area photogrammetry:
- High investment costs.
- Long processing times if the appropriate hardware is not available.
- You cannnot map what you cannnot see in the photographs, which is a problem in heavily wooded areas.
- Not suitable for moving or highly reflective objects such as rivers or bodies of water and buildings with large amounts of glass.
Author Contributions
Funding
Data Availability Statement
Acknowledgments
Conflicts of Interest
References
- Li, J.; Kacimi, R.; Liu, T.; Ma, X.; Dhaou, R. Non-Terrestrial Networks-Enabled Internet of Things: UAV-Centric Architectures, Applications, and Open Issues. Drones 2022, 6, 95. [Google Scholar] [CrossRef]
- Cavoukian, A. Privacy and Drones: Unmanned Aerial Vehicles; Information and Privacy Commissioner of Ontario: Toronto, ON, Canada, 2012. [Google Scholar]
- Fina, L.; Smith, D.S., Jr.; Carnahan, J.; Sevil, H.E. Entropy-Based Distributed Behavior Modeling for Multi-Agent UAVs. Drones 2022, 6, 164. [Google Scholar] [CrossRef]
- Nebel, S.; Beege, M.; Schneider, S.; Rey, G.D. A Review of Photogrammetry and Photorealistic 3D Models in Education from a Psychological Perspective. Front. Educ. 2020, 5, 144. [Google Scholar] [CrossRef]
- Küng, O.; Strecha, C.; Beyeler, A.; Zufferey, J.-C.; Floreano, D.; Fua, P.; Gervaix, F. The Accuracy of Automatic Photogrammetric Techniques on Ultra-Light Uav Imagery. Int. Arch. Photogramm. Remote Sens. Spat. Inf. Sci. 2011, 38, 125–130. [Google Scholar] [CrossRef]
- Makransky, G.; Terkildsen, T.S.; Mayer, R.E. Adding Immersive Virtual Reality to A Science Lab Simulation Causes More Presence but Less Learning. Learn. Instr. 2019, 60, 225–236. [Google Scholar] [CrossRef]
- Dede, C. Immersive interfaces for engagement and learning. Science 2009, 323, 66–69. [Google Scholar] [CrossRef]
- Leopold, C.; Mayer, R.E. An Imagination Effect in Learning from Scientific Text. J. Educ. Psychol. 2015, 107, 47–63. [Google Scholar] [CrossRef]
- Hassanalian, M.; Abdelkefi, A. Classifications, Applications, And Design Challenges of Drones: A Review. Prog. Aerosp. Sci. 2017, 91, 99–131. [Google Scholar] [CrossRef]
- Gallagher, K. The Sky’s the Limit with Drone-Assisted Mapping. The Simulyze Blog. 2016. Available online: https://www.simulyze.com/blog/drone-assisted-mapping-applications (accessed on 28 January 2023).
- Methakullachat, D.; Witchayangkoon, B. Coordinates comparison of Google® maps and orthophoto maps in Thailand. Int. Trans. J. Eng. Manag. Appl. Sci. Technol. 2019, 10, 1–8. Available online: https://tuengr.com/V10A/10A17O.pdf (accessed on 5 March 2023).
- Portuguez Castro, M.; Gómez Zermeño, M.G. Challenge Based Learning: Innovative Pedagogy for Sustainability through e-Learning in Higher Education. Sustainability 2020, 12, 4063. [Google Scholar] [CrossRef]
- Kim, K. User Preferences in Drone Design and Operation. Drones 2022, 6, 133. [Google Scholar] [CrossRef]
- Restas, A. Drone Applications for Supporting Disaster Management. World J. Eng. Technol. 2015, 3, 316–321. [Google Scholar] [CrossRef]
- Carnahan, C.; Crowley, K.; Hummel, L.; Sheehy, L. New Perspectives on Education: Drones in the Classroom. In Proceedings of Society for Information Technology & Teacher Education International Conference, Savannah, GA, USA, 21 March 2016. [Google Scholar]
- Sattar, F.; Tamatea, L.; Nawaz, M. Droning the Pedagogy: Future Prospect of Teaching and Learning. Int. J. Educ. Pedagog. Sci. 2017, 11, 1650–1655. [Google Scholar] [CrossRef]
- Bai, O.; Chu, H. Drones in Education: A Critical Review. Turk. J. Comput. Math. Educ. 2021, 12, 1722–1727. [Google Scholar] [CrossRef]
- Al-Tahir, R. Integrating UAV into Geomatics Curriculum. In Proceedings of the International Archives of the Photogrammetry, Remote Sensing and Spatial Information Sciences, Toronto, ON, Canada, 30 August–2 September 2015. [Google Scholar]
- Bolick, M.M.; Mikhailova, E.A.; Post, C.J. Teaching Innovation in STEM Education Using an Unmanned Aerial Vehicle (UAV). Educ. Sci. 2022, 12, 224. [Google Scholar] [CrossRef]
- King, L.G.; McKim, A.J.; Raven, M.R.; Pauley, C.M. New and Emerging Technologies: Teacher Needs, Adoption, Methods, And Student Engagement. J. Agric. Educ. 2019, 60, 277–290. [Google Scholar] [CrossRef]
- Cliffe, A.D. Evaluating the Introduction of Unmanned Aerial Vehicles for Teaching and Learning in Geoscience Fieldwork Education. J. Geogr. High. Educ. 2019, 43, 582–598. [Google Scholar] [CrossRef]
- Félix-Herrán, L.C.; Izaguirre-Espinosa, C.; Parra-Vega, V.; Sánchez-Orta, A.; Benitez, V.H.; Lozoya-Santos, J.D.-J. A Challenge-Based Learning Intensive Course for Competency Development in Undergraduate Engineering Students: Case Study on UAVs. Electronics 2022, 11, 1349. [Google Scholar] [CrossRef]
- Al-Kaff, A.; Martín, D.; García, F.; de la Escalera, A.; Armingol, J.M. Survey of Computer Vision Algorithms and Applications For Unmanned Aerial Vehicles. Expert Syst. Appl. 2018, 92, 447–463. [Google Scholar] [CrossRef]
- Portuguez-Castro, M.; Hernández-Méndez, R.V.; Peña-Ortega, L.O. Novus Projects: Innovative Ideas to Build New Opportunities upon Technology-Based Avenues in Higher Education. Educ. Sci. 2022, 12, 695. [Google Scholar] [CrossRef]
- Rodriguez, I.; Gallardo, K. Redesigning an Educational Technology Course under a Competency-Based Performance Assessment Model. Pedagogika 2017, 127, 186–204. [Google Scholar] [CrossRef]
- Wang, H.; Tlili, A.; Lehman, J.D.; Lu, H.; Huang, R. Investigating Feedback Implemented by Instructors to Support Online Competency-Based Learning (CBL): A Multiple Case Study. Int. J. Educ. Technol. High. Educ. 2021, 18, 5. [Google Scholar] [CrossRef]
- Chou, C.Y.; Zou, N.B. An Analysis of Internal and External Feedback in Self-Regulated Learning Activities Mediated By Self-Regulated Learning Tools And Open Learner Models. Int. J. Educ. Technol. High. Educ. 2020, 17, 55. [Google Scholar] [CrossRef]
- Yang, Z.; Zhoua, Y.; Chung, J.; Tang, Q.; Jiang, L.; Wong, K. Challenge Based Learning Nurtures Creative Thinking: An Evaluative Study. Nurse Educ. Today 2018, 71, 40–47. [Google Scholar] [CrossRef]
- Nichols, M.; Cator, K.; Torres, M. Challenge Based Learner User Guide; Digital Promise and The Challenge Institute: Redwood City, CA, USA, 2016. [Google Scholar]
- Rumbo al 2030. Tecnológico de Monterrey. Available online: https://player.flipsnack.com/?hash=QkRCOUY3RkY4RDYraGMzeWpjdDZyaA%3D%3D&p=1 (accessed on 28 January 2023).





| Group A | Group B | Group C | |||
|---|---|---|---|---|---|
| Men | 10 | Men | 10 | Men | 11 |
| Woman | 10 | Woman | 6 | Woman | 9 |
| Total per group | 20 | Total per group | 16 | Total per group | 20 |
| Work teams | 7 | Work teams | 5 | Work teams | 8 |
| Full Sample | 56 | ||||
| Men | 31 | ||||
| Women | 25 |
| Careers | N |
|---|---|
| Architecture | 34 |
| Civil Engineering | 20 |
| Urbanism | 2 |
| Total | 56 |
| Criterion | Description of the Criterion | Presents It | Does Not Present It | Feedback |
|---|---|---|---|---|
| Participation in the digital environment | Actively participate in technological communities taking advantage of its benefits academically. | |||
| Communities in digital environments | Describes the different communities in digital environments. | |||
| Scope of digital information | Explains the scope of digital information. | |||
| Technology value | Values the scope of digital technologies for his professional work and his personal life. | |||
| Attitude towards technology | Uses digital technologies with respect |
| Criterion | Description of the Criterion | Presents It | Does Not Present It | Feedback |
|---|---|---|---|---|
| Knowledge of technologies | Learn about various technologies relevant to their professional practice | |||
| Technology evaluation | Evaluate the various technologies and select the pertinent one for the transformation or improvement of their professional practice. | |||
| Knowledge of the importance of digitization | Shows awareness about the importance of digital transformation. | |||
| Algorithmic reasoning | Models real situations linked to their professional activity through the use of algorithmic reasoning. |
| Learning Objectives | Week | Activities | Assessment |
|---|---|---|---|
| Describe concepts related to photogrammetry and drones from an architectural perspective, as well as their uses and applications. | 1 | Introduction to the course. Drone photogrammetry presentation. | |
| Generate a research process to become familiar with a certain site or terrain. | Site analysis. | Create a document individually where the 36 points of the “Site Analysis” by TIFA are developed according to the chosen area of the campus. | |
| Know the use and management of the Phantom 4 RTK drone to obtain information through a scheduled flight. Process the information obtained with the drone to generate a three-dimensional model and an orthomosaic photo with the Pix4D software. | Scanning through a programmed flight with a drone (Phantom 4 RTK) of the area to be worked on. Information processing in Pix4D software. | ||
| Graphically represent the concepts used in the built environment for the topographic survey of a project, making use of the definitions investigated in the field. | 2 | Concept Catalog | Generate a document that lists all the components observed within the study area to describe and quantify them. |
| Develop the ability to identify the problems faced in different real scenarios (technical reports, news, articles, videos, etc.). | Case Analysis | Generate an initial debate by team to be able to make a group presentation where the selected case studies are exposed, their most important characteristics, as well as their final reflections on each case. | |
| Learn to work with the different concepts of infrastructure and facilities that are used in the language of territorial representation in a professional environment. | Topography Concepts | ||
| Become familiar with the general procedure for using various topographic equipment and its main measurement functions, which allow locating points on the Earth’s surface, obtaining their geographic coordinates, distances, directions, or elevations. Indispensable measurements both for the representation of the natural and built environment, as well as for the location of an architectural or infrastructure project and its control during the construction phase. | 3 | Total station | Evidence A |
| 4 | Topographic level | ||
| Transfer the information obtained in the field to the computer equipment and its digital management for its graphic representation according to the standards of the profession. | 5 | Building Levels and Frames | Evidence B |
| Two-dimensional and Three-dimensional Graphic Representation |
| Evaluation Criteria | Group A | Group B | Group C | ||
|---|---|---|---|---|---|
| Delivery on Drive 5% | AutoCad | 1.0% | 100 | 100 | 95 |
| Plan in PDF | 1.0% | 100 | 100 | 96 | |
| Archicad, Sketchup or Revit | 1.0% | 100 | 100 | 100 | |
| Three-dimensional Model in PDF | 1.0% | 100 | 100 | 90 | |
| Descriptive Memory | 1.0% | 100 | 100 | 96 | |
| Delivery on ELUMEN 5% | AutoCad | 1.0% | 95 | 81 | 90 |
| Plan in PDF | 1.0% | 90 | 88 | 86 | |
| Archicad, Sketchup or Revit | 1.0% | 95 | 73 | 85 | |
| Three-dimensional Model in PDF | 1.0% | 95 | 88 | 85 | |
| Descriptive Memory | 1.0% | 95 | 94 | 85 | |
| Total | 10.0% | 97 | 92 | 91 | |
| Evaluation Criteria | Group A | Group B | Group C | ||
|---|---|---|---|---|---|
| 2D Model 30% | Quality of the work delivered (presentation, order, readability). | 2.0% | 93.9 | 87 | 88.95 |
| Graphic representation of: - Buildings. - Parking lots. - Green areas. - Sports areas. - Cultural zones. - Main roads. | 5.0% | 100 | 100 | 96.25 | |
| Use of symbols. | 2.0% | 100 | 100 | 92 | |
| Line quality. | 2.0% | 94.45 | 93.125 | 86.7 | |
| Use of layers. | 2.0% | 99 | 100 | 89.75 | |
| The auxiliary survey polygonal is included. | 1.0% | 90 | 100 | 80 | |
| Distances, bearings, vertex number and vertex in the auxiliary polygon of the survey are included. | 4.0% | 87.2 | 72.375 | 75.5 | |
| Contains build box with: - Point number. - Distance. - Azimuth. - North, East coordinates. - Elevation. - Vertex. | 4.0% | 100 | 97.5 | 95 | |
| The hydraulic, electrical, telecommunications, and sanitary installations of the place are observed. | 3.0% | 100 | 100 | 92 | |
| The PDF file has a footer that includes the following aspects: - Graphic north. - Graphic and numerical scale. - UTM grid. - Tec de Monterrey logo. - Macro location. - Location of the study area within the campus. - Symbology and legend. - Property address. - Surface. - Owner. - Plan name. - Date. - Data of who carried out the survey. - Key and plan number. - Table of notes. - All rights reserved. | 5.0% | 98.4 | 91.4375 | 89.4 | |
| Pleae | Total | 30.0% | 96% | 94% | 89% |
| Evaluation Criteria | Group A | Group B | Group C | ||
|---|---|---|---|---|---|
| 3D Model 30% | Quality of the work delivered (presentation, order, readability). | 3.0% | 95.6 | 36.5625 | 88.25 |
| Graphic representation: Of the terrain. | 1.5% | 95.35 | 52.25 | 79 | |
| Graphic representation: Of the buildings. | 3.0% | 97.75 | 88.625 | 90 | |
| Graphic representation: From the context. | 1.5% | 95.3 | 85.5 | 88.75 | |
| Views: Overall plan. | 3.0% | 81 | 55.625 | 84.95 | |
| Views: Perspective 1. | 3.0% | 98.7 | 87.375 | 91.75 | |
| Views: Perspective 2. | 3.0% | 98.7 | 87.375 | 77.85 | |
| Views: Facade 1. | 3.0% | 98.7 | 56.875 | 90.4 | |
| Views: Facade 2. | 3.0% | 98.7 | 56.875 | 90.4 | |
| Views: Cut 1. | 3.0% | 90.5 | 89.375 | 80.65 | |
| Views: Cut 2. | 3.0% | 90.5 | 89.375 | 82.15 | |
| Total | 30.0% | 94.6 | 71.4 | 85.8 | |
| Evaluation Criteria | Group A | Group B | Group C | ||
|---|---|---|---|---|---|
| Descriptive Memory 30% | Quality of work delivered: - Presentation. - Front page. - Design. | 6% | 97.55 | 96.53 | 92.78 |
| Contents: - The file has the topics that were seen throughout the block, such as the use of the drone, the use of the total station, site analysis, software used, steps to generate the two-dimensional and three-dimensional models, conclusions, lessons learned, and references. | 20% | 94.18 | 87.56 | 83.53 | |
| Spelling and writing. | 4% | 98.23 | 97.53 | 92.03 | |
| Total | 30% | 96.65 | 93.875 | 89.44 | |
Disclaimer/Publisher’s Note: The statements, opinions and data contained in all publications are solely those of the individual author(s) and contributor(s) and not of MDPI and/or the editor(s). MDPI and/or the editor(s) disclaim responsibility for any injury to people or property resulting from any ideas, methods, instructions or products referred to in the content. |
© 2023 by the authors. Licensee MDPI, Basel, Switzerland. This article is an open access article distributed under the terms and conditions of the Creative Commons Attribution (CC BY) license (https://creativecommons.org/licenses/by/4.0/).
Share and Cite
Rábago, J.; Portuguez-Castro, M. Use of Drone Photogrammetry as An Innovative, Competency-Based Architecture Teaching Process. Drones 2023, 7, 187. https://doi.org/10.3390/drones7030187
Rábago J, Portuguez-Castro M. Use of Drone Photogrammetry as An Innovative, Competency-Based Architecture Teaching Process. Drones. 2023; 7(3):187. https://doi.org/10.3390/drones7030187
Chicago/Turabian StyleRábago, Jordi, and May Portuguez-Castro. 2023. "Use of Drone Photogrammetry as An Innovative, Competency-Based Architecture Teaching Process" Drones 7, no. 3: 187. https://doi.org/10.3390/drones7030187
APA StyleRábago, J., & Portuguez-Castro, M. (2023). Use of Drone Photogrammetry as An Innovative, Competency-Based Architecture Teaching Process. Drones, 7(3), 187. https://doi.org/10.3390/drones7030187

