Charting Participatory Action and Interventionist Research Processes for Community-Based Stakeholders in Peri-Urban Contexts: The Proposed St. Cuthbert’s Community Centre, Lorne, Australia
Abstract
:- “Buy my hot wood clematis,
- Buy a frond of fern
- Gathered where the Erskine leaps
- Down the road to Lorne,
- Buy my Christmas creeper
- And I’ll say where you were born.”
1. Introduction
2. Research Approach
2.1. Theoretical Lens
2.2. Research Method
3. Background
3.1. History of Lorne
3.2. The St. Cuthbert’s Church Properties
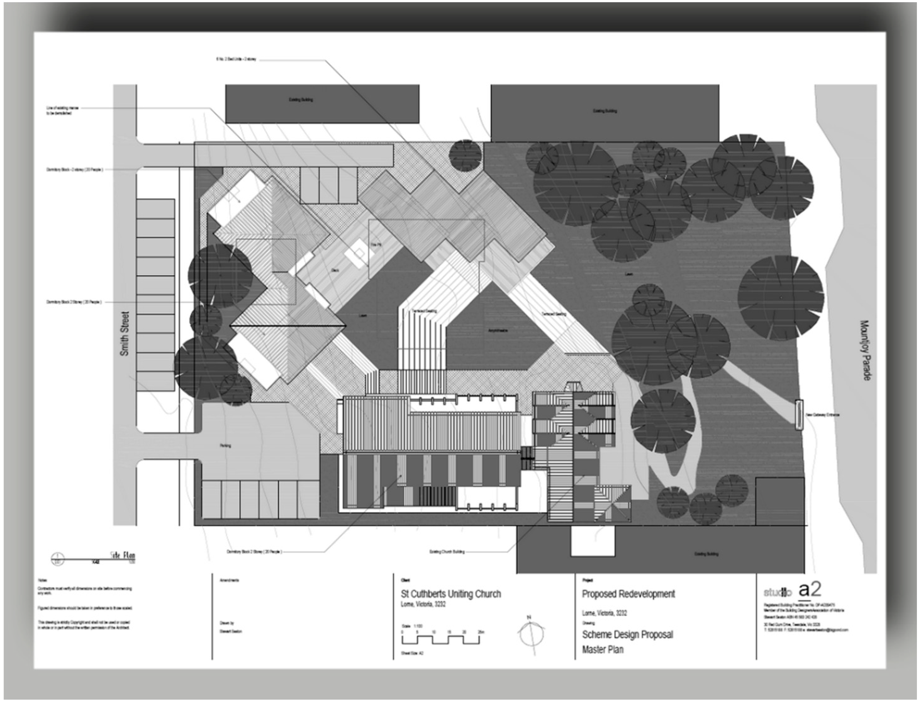
3.3. The Current Project
- Refurbishment and extension of the existing (Sunday School) Hall to create a multi-functional building that would be available to groups within and beyond the Church community for events and meetings, with appropriate support facilities, and establishing a physical connection with the Church building itself;
- Demolition of the existing Manse to make way for new accommodation for groups and families;
- Extensive remodelling of the site and gardens to include an amphitheatre and outdoor performance space that would capitalise on the site’s natural inclined topography, and its outlook to Mountjoy Parade and the beach beyond;
- Provision of access and parking to the top of the site, from Smith Street.
- The church building itself is heritage listed, and any proposed works to the Church building need to be developed in consultation with the appropriate building and planning authorities;
- The steeply inclined site presents challenges to construction methodology and costing;
- No money is currently available to fund the project.
4. Intervention Outcomes
4.1. Project Action Plan Workshop
- Undefined clarity of purpose;
- No articulated shared vision;
- Absence of a formal business plan;
- Need for broader community input and support;
- Need for plans, approvals and finance;
- Need for human resources.
4.2. Follow-Up Workshop
4.3. ‘Listening Post’ Survey Questionnaire Results
5. Discussion and Conclusions
Author Contributions
Funding
Acknowledgments
Conflicts of Interest
References
- Wood, G.A. Lorne and St. Cuthbert’s Church; Uniting Church: Geelong, Australia, 1986. [Google Scholar]
- Victoria. Surf Coast Planning Scheme (2019 Vers.). Available online: http://planning-schemes.delwp.vic.gov.au/schemes/surfcoast (accessed on 24 January 2019).
- Victoria. Planning & Environment Act 1987. Available online: http://classic.austlii.edu.au/au/legis/vic/consol_act/paea1987254/ (accessed on 24 January 2019).
- Hedstrom, P.; Swedberg, R. Social Mechanisms: An Analytic Approach to Social Theory; Cambridge University Press: Cambridge, UK, 2011. [Google Scholar]
- Lovric, N.; Lovric, M.; Konold, W. A grounded theory approach for deconstructing the role of participation in spatial planning. For. Policy Econ. 2018, 87, 20–34. [Google Scholar] [CrossRef]
- ABS (Australian Bureau of Statistics) 2016 Census: Religion. Available online: http://www.abs.gov.au/AUSSTATS/abs@.nsf/mediareleasesbyReleaseDate/7E65A144540551D7CA258148000E2B85 (accessed on 24 January 2019).
- UCA (Uniting Church in Australia). About the Uniting Church in Australia. Available online: https://assembly.uca.org.au/about/uca (accessed on 24 January 2019).
- CRA (Christian Research Association). Charting the Faith of Australians. Available online: https://cra.org.au/ (accessed on 24 January 2019).
- Smith, O. The World’s Most and Least Religious Countries, in The Telegraph. Available online: https://www.telegraph.co.uk/travel/maps-and-graphics/most-religious-countries-in-the-world/ (accessed on 24 January 2019).
- UCA (Uniting Church in Australia). History of the Uniting Church in Australia. Available online: https://nswact.uca.org.au/about-us/our-history/ (accessed on 24 January 2019).
- ABS (Australian Bureau of Statistics). Cultural Diversity in Australia. Available online: http://www.abs.gov.au/ausstats/abs@.nsf/Lookup/2071.0main+features902012-2013 (accessed on 24 January 2019).
- Williams, W. Growth and Change in Australian Charities. PRObono Australia. Available online: https://probonoaustralia.com.au/news/2018/05/growth-change-australias-charities/ (accessed on 24 January 2019).
- Australian Charities and Not-For-Profit Commission. Annual Report 2017–2018; Australian Charities and Not-For-Profit Commission: Canberra, Australia, 2018. [Google Scholar]
- Latour, B. On Actor Network Theory. Soz. Welt 1996, 47, 369–381. [Google Scholar]
- Latour, B.; Yaneva, A. Give me a gun and I will make things move: An ANT’S view of architecture. In Explorations in Architecture: Teaching, Design, Research; Geiser, R., Ed.; Birkhauser: Basel, Switzerland, 2008; pp. 80–89. [Google Scholar]
- Martek, I.; Lozanovska, M. Consciousness and Amnesia: The Reconstruction of Skopje Considered through Actor Network Theory. J. Plan. Hist. 2016, 17, 163–183. [Google Scholar] [CrossRef]
- Latour, B. We Have Never Been Modern; Hemel Hempstead: London, UK, 1993. [Google Scholar]
- Yin, R. Case Study Research and Applications: Design and Methods; Sage: Oakland, CA, USA, 2018. [Google Scholar]
- Westin, O.; Roberts, H. Interventionist Research—The Puberty Years: An Introduction to the Special Issue. Qual. Res. Acct. Manag. 2010, 5, 5–12. Available online: https://www.emeraldinsight.com/doi/pdfplus/10.1108/11766091011034253 (accessed on 24 January 2019). [CrossRef]
- St. Cuthbert’s Uniting Church. St. Cuthbert’s Home Page. Available online: https://www.facebook.com/pages/St-Cuthberts-Uniting-Church/203111253034633 (accessed on 24 January 2019).
- Surf Coast Shire. Economic and Population Profile, 2014. Available online: https://www.surfcoast.vic.gov.au/Community/Businesses/Economic-and-population-profiles (accessed on 24 January 2019).
- Page, A. The Economic Value of the Surf Industry to the Surf Coast Shire: Final Report, 2014. Available online: https://www.surfcoast.vic.gov.au/Community/Businesses/Economic-and-population-profiles (accessed on 24 January 2019).
- ABS. Australian Population Census. 2016. Available online: http://www.abs.gov.au/Population (accessed on 24 January 2019).
- Google. Google Maps. Available online: www.google.com/maps (accessed on 24 January 2019).
- Stirling, D. History of Lorne and the Great Ocean Road, Lorne Historical Society. Available online: https://www.facebook.com/pg/LorneHistoricalSociety/posts/?ref=page_internal (accessed on 24 January 2019).
- Gregory, E.B.; Gregory, M.L.; Koenig, W.L. Coast to Country: Winchelsea—A History of the Shire; Hargreen Publishing: North Melbourne, Australia, 1985. [Google Scholar]
- Stirling, D. Lorne: A Living History; Adams Print: Breakwater, Australia, 2004. [Google Scholar]
- Cecil, K.L. Lorne: The Founding Years to 1888; Lorne Historical Society: Lorne, Australia, 1989. [Google Scholar]
- Andrew, R.L. Beach, Bush and Blessings—St. Cuthbert’s Lorne: One Hundred Years 1892–1992; Centenary Committee of St. Cuthbert’s Uniting Church: Lorne, Australia, 1992. [Google Scholar]
- UCA (Uniting Care Australia). Uniting Care Australia, 2018. Available online: https://www.unitingcare.org.au/ (accessed on 24 January 2019).
- Surf Coast Shire. Lorne Leisure Centre, Surf Coast Shire. Available online: https://www.surfcoast.vic.gov.au/Experience/Venues-for-hire/Lorne-Leisure-Centre (accessed on 24 January 2019).
- Kellaway, C.; Rowe, D. Surf Coast Places of Cultural Significance Study; Surf Coast Shire: Torquay, Australia, 2003. [Google Scholar]
- NearMap. Available online: www.nearmap.com.au (accessed on 24 January 2019).
- Lorne Community House. Lorne Community House. Available online: https://lornecommunityhouse.org.au/ (accessed on 24 January 2019).
- Realestate.com.au. Lorne—Median Property Price, realestate.com.au. Available online: https://www.realestate.com.au/neighbourhoods/lorne-3232-vic (accessed on 24 January 2019).
- Hanrahan, C. Think there are no homeless people in your area? Think again. In ABS News; Australian Broadcasting Commission: Sydney, Australia, 2018. [Google Scholar]











| Not Negotiable | Negotiable |
|---|---|
| Name: Centre for Mission | Plan and size of facilities |
| Must comply with all legislation, including Uniting Church of Australia regulations | Construction materials |
| St. Cuthbert’s Church must remain | The use of the buildings and grounds |
| References must be provided by those wanting to book the facilities | Size, type, style of managers accommodation |
| Managers accommodation must be provided | The future of the Manse |
| No sale of any part of the land | The functions being provided for |
| Wanting to help people | Walk through access across the site |
| Front lawn must be preserved | Funding and income sources |
| Funding can be obtained from any source | How the existing hall building is incorporated (or not) into the new development |
| The length of stay being designed for |
| 1 | Residency:
|
| 2 | Preferences:
|
| 3 | Possible Uses: If Yes in 2, Off the top of your head, list two things the Uniting Church community Centre could be used for. (Who might need the facilities offered by a community centre in Lorne?) ………… One possible use for the community centre ………………. Another possible use ………………… |
| 4 | Use of the Community Centre: From the following list, choose (circle) those statements that you feel apply (more than one possible): The community centre should be:
|
| 5 | Cost of the Community Centre: From the following list, choose (circle) those statements that you feel apply (more than one possible): The running costs of the community centre should be:
|
| 6 | Financial Viability of the Community Centre: If the community centre cannot support itself financially, what should happen?
|
| 7 | Possible Features of the Community Centre: I would like to see/have the following in the project for a Community Centre (Circle ALL that apply):
|
| 8 | Building Materials: A number of cladding materials are being considered for use in a new redesigned community centre. The choices are displayed at the ‘Materials Sample Board’ and labelled A through N. From the sample board, which materials would you prefer. (More than one choice allowed. Circle those that apply.) I would favour the following materials to be used in a new Lorne community centre: I would NOT favour the following materials: |
| 9 | Other: If there is anything further you wish to say about the Uniting Church community centre, please add your comments here. |
© 2019 by the authors. Licensee MDPI, Basel, Switzerland. This article is an open access article distributed under the terms and conditions of the Creative Commons Attribution (CC BY) license (http://creativecommons.org/licenses/by/4.0/).
Share and Cite
Martek, I.; Luther, M.B.; Seaton, S.; Costin, G.; Li, H.X.; Tokede, O.; Jones, D.S. Charting Participatory Action and Interventionist Research Processes for Community-Based Stakeholders in Peri-Urban Contexts: The Proposed St. Cuthbert’s Community Centre, Lorne, Australia. Urban Sci. 2019, 3, 58. https://doi.org/10.3390/urbansci3020058
Martek I, Luther MB, Seaton S, Costin G, Li HX, Tokede O, Jones DS. Charting Participatory Action and Interventionist Research Processes for Community-Based Stakeholders in Peri-Urban Contexts: The Proposed St. Cuthbert’s Community Centre, Lorne, Australia. Urban Science. 2019; 3(2):58. https://doi.org/10.3390/urbansci3020058
Chicago/Turabian StyleMartek, Igor, Mark B. Luther, Stewart Seaton, Glenn Costin, Hong Xian Li, Olubukola Tokede, and David Sydney Jones. 2019. "Charting Participatory Action and Interventionist Research Processes for Community-Based Stakeholders in Peri-Urban Contexts: The Proposed St. Cuthbert’s Community Centre, Lorne, Australia" Urban Science 3, no. 2: 58. https://doi.org/10.3390/urbansci3020058
APA StyleMartek, I., Luther, M. B., Seaton, S., Costin, G., Li, H. X., Tokede, O., & Jones, D. S. (2019). Charting Participatory Action and Interventionist Research Processes for Community-Based Stakeholders in Peri-Urban Contexts: The Proposed St. Cuthbert’s Community Centre, Lorne, Australia. Urban Science, 3(2), 58. https://doi.org/10.3390/urbansci3020058

