Impact of Diffuser Location on Thermal Comfort Inside a Hospital Isolation Room
Abstract
1. Introduction
2. Methodology
2.1. Governing Equations
2.2. Comfort Criteria
2.2.1. Predicted Mean Vote (PMV)
2.2.2. The Predicted Percentage of Dissatisfaction (PPD)
2.2.3. Draft Temperature
2.2.4. Air Diffusion Performance Index (ADPI)
2.3. Geometrical Model and Meshing
- Problem type (Internal, Compressible, 3D),
- Level of initial mesh (Lini),
- Minimum gap size (hgap) and minimum wall thickness (hwall),
- Symmetry settings applied to the computational domain boundaries.
2.4. Boundary Conditions
2.5. The Validation of the Numerical Solution
3. Results and Discussion
3.1. Cases 1, 2, and 3
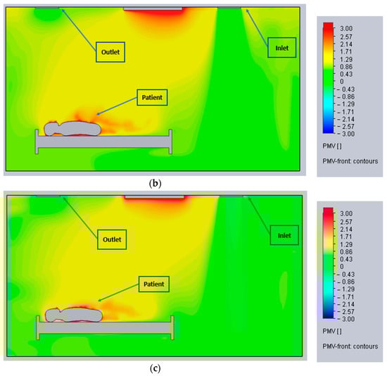
3.1.1. Predicted Mean Vote (PMV)
3.1.2. Predicted Percent Dissatisfied (PPD)
3.2. Cases 4, 5, and 6
3.2.1. Predicted Mean Vote (PMV)
3.2.2. Predicted Percent Dissatisfied (PPD)
3.3. Cases 7, 8, and 9
3.3.1. Predicted Mean Vote (PMV)
3.3.2. Predicted Percent Dissatisfied (PPD)
3.4. Cases 10, 11, and 12
3.4.1. Predicted Mean Vote (PMV)
3.4.2. Predicted Percent Dissatisfied (PPD)
3.5. PPD Variation along the Measuring Line
3.6. Air Diffusion Performance Index (ADPI)
4. Conclusions
Author Contributions
Funding
Data Availability Statement
Conflicts of Interest
References
- Alotaibi, B.S.; Lo, S.; Southwood, E.; Coley, D. Evaluating the Suitability of Standard Thermal Comfort Approaches for Hospital Patients in Air-Conditioned Environments in Hot Climates. Build Environ. 2020, 169, 106561. [Google Scholar] [CrossRef]
- Bouzidi, Y.; El Akili, Z.; Gademer, A.; Tazi, N.; Chahboun, A. How Can We Adapt Thermal Comfort for Disabled Patients? A Case Study of French Healthcare Buildings in Summer. Energies 2021, 14, 4530. [Google Scholar] [CrossRef]
- El akili, Z.; Bouzidi, Y.; Merabtine, A.; Polidori, G.; Kauffmann, J. Assessment of Thermal Comfort of Frail People in a Sitting Posture under Non-Uniform Conditions Using a Thermal Manikin. Build. Environ. 2022, 221, 4530. [Google Scholar] [CrossRef]
- Rad, H.R.; Khodaee, Z.; Ghiai, M.M.; Arjmand, J.T.; El Haj Assad, M. The Quantitative Assessment of the Effects of the Morphology of Urban Complexes on the Thermal Comfort Using the PMV/PPD Model (a Case Study of Gheytariyeh Neighborhood in Tehran). Int. J. Low Carbon Technol. 2021, 16, 672–682. [Google Scholar] [CrossRef]
- HVAC Design Manual for Hospitals and Clinics; American Society of Heating, Refrigerating and Air-Conditioning Engineers: Atlanta, GA, USA, 2013; ISBN 9781936504398.
- ANSI/ASHRAE Standard 55-2004; Thermal Environmental Conditions for Human Occupancy. ASHRAE Standard: Atlanta, GA, USA, 2004.
- Mohamed Kamar, H.; Kamsah, N.B.; Ghaleb, F.A.; Idrus Alhamid, M. Enhancement of Thermal Comfort in a Large Space Building. Alex. Eng. J. 2019, 58, 49–65. [Google Scholar] [CrossRef]
- Price Engineer’s HVAC Handbook. Engineering Guide Air Distribution. 2011. Available online: https://www.priceindustries.com/content/uploads/assets/literature/engineering-guides/air-distribution-engineering-guide.pdf (accessed on 5 March 2023).
- Borowski, M.; Łuczak, R.; Halibart, J.; Zwolińska, K.; Karch, M. Airflow Fluctuation from Linear Diffusers in an Office Building. The Thermal Comfort Analysis. Energies 2021, 14, 4808. [Google Scholar] [CrossRef]
- Chen, Z.; Xin, J.; Liu, P. Air Quality and Thermal Comfort Analysis of Kitchen Environment with CFD Simulation and Experimental Calibration. Build. Environ. 2020, 172, 106691. [Google Scholar] [CrossRef]
- Prabhakaran, R.T.D.; Curling, S.F.; Spear, M.; Ormondroyd, G.A. Simulation model to evaluate human comfort factors for an office in a building. Proceedings 2018, 2, 1126. [Google Scholar]
- Kainaga, T.; Sagisaka, K.; Yamada, R.; Nakaya, T. A Case Study of a Nursing Home in Nagano, Japan: Field Survey on Thermal Comfort and Building Energy Simulation for Future Climate Change. Energies 2022, 15, 936. [Google Scholar] [CrossRef]
- Hwang, R.L.; Cheng, M.J.; Lin, T.P.; Ho, M.C. Thermal Perceptions, General Adaptation Methods and Occupant’s Idea about the Trade-off between Thermal Comfort and Energy Saving in Hot-Humid Regions. Build Environ. 2009, 44, 1128–1134. [Google Scholar] [CrossRef]
- van Gaever, R.; Jacobs, V.A.; Diltoer, M.; Peeters, L.; Vanlanduit, S. Thermal Comfort of the Surgical Staff in the Operating Room. Build Environ. 2014, 81, 37–41. [Google Scholar] [CrossRef]
- Saadeddin, K.A.R. The Effects of Diffuser Exit Velocity and Distance between Supply and Return Apertures on the Efficiency of an air Distribution System in an Office Space. Master’s Thesis, South Dakota State University, Brookings, SD, USA, 2016. [Google Scholar]
- Cheng, Y.; Lin, Z.; Fong, A.M.L. Effects of Temperature and Supply Airflow Rate on Thermal Comfort in a Stratum-Ventilated Room. Build Environ. 2015, 92, 269–277. [Google Scholar] [CrossRef]
- Bolashikov, Z.D.; Melikov, A.K.; Brand, M. General Rights Reduced Exposure to Coughed Air by a Novel Ventilation Method for Hospital Patient Rooms Reduced Exposure to Coughed Air by a Novel Ventilation Method for Hospital Patient Rooms; APA. 2012. Available online: https://core.ac.uk/download/pdf/43245643.pdf (accessed on 24 June 2022).
- Alkhalaf, M.; Ilinca, A.; Hayyani, M.Y. CFD Investigation of Ventilation Strategies to Remove Contaminants from a Hospital Room. Designs 2023, 7, 5. [Google Scholar] [CrossRef]
- Lu, Y.; Oladokun, M.; Lin, Z. Reducing the Exposure Risk in Hospital Wards by Applying Stratum Ventilation System. Build Environ. 2020, 183, 107204. [Google Scholar] [CrossRef]
- Solidworks Flow Simulation Technical Reference Solidworks Flow Simulation. 2021. Available online: https://help.solidworks.com/2021/english/SolidWorks/cworks/r_solidworks_simulation_reference.htm (accessed on 5 June 2022).
- Abhinav, R.; Sunder, P.B.S.; Gowrishankar, A.; Vignesh, S.; Vivek, M.; Kishore, V.R. Numerical Study on Effect of Vent Locations on Natural Convection in an Enclosure with an Internal Heat Source. Int. Commun. Heat Mass Transf. 2013, 49, 69–77. [Google Scholar] [CrossRef]
- Ashrae Standard 62.1-2010; Ventilation for Acceptable Indoor Air Quality. ASHRAE Standard: Atlanta, GA, USA, 2010. Available online: https://www.lorisweb.com/LEEDv4/graphics/ASHRAE%20Standards/ASHRAE-D-86152%2062.1-2010.pdf (accessed on 12 September 2022).
- Cho, J. Investigation on the Contaminant Distribution with Improved Ventilation System in Hospital Isolation Rooms: Effect of Supply and Exhaust Air Diffuser Configurations. Appl. Therm. Eng. 2019, 148, 208–218. [Google Scholar] [CrossRef] [PubMed]
- Thatiparti, D.S.; Ghia, U.; Mead, K.R. Computational Fluid Dynamics Study on the Influence of an Alternate Ventilation Configuration on the Possible Flow Path of Infectious Cough Aerosols in a Mock Airborne Infection Isolation Room. Sci. Technol. Built Environ. 2017, 23, 355–366. [Google Scholar] [CrossRef] [PubMed]
- Çuhadaroğlu, B.; Yiğit, Ş.; Sungurlu, C. ID 8-A CFD Analysis of Air Distributing Performance of a New Type HVAC Diffuser. In Proceedings of the CLIMAMED 2015, Juan Les Pins, France, 10–11 September 2015. [Google Scholar]
- Mousavi, E. Airborne Infection in Healthcare Environments: Implications to Hospital Corridor Design; University of Nebraska: Lincoln, NE, USA, 2015; Available online: https://www.proquest.com/openview/af23e91396187791f139331f92ec66af/1?pq-origsite=gscholar&cbl=18750 (accessed on 15 March 2020).
- Khosravi, G. Prediction of Bioparticles Dispersion and Distribution in a Hospital Isolation Room. Master’s Thesis, École de Technologie Supérieure, Montréal, QC, Canada, 2016. [Google Scholar]
- Hjermann, T.; Georges, L.; Tjelflaat, P. CFD Simulation of Active Displacement Ventilation. Master’s Thesis, NTNU, Trondheim, Norway, 2017. [Google Scholar]
- Ventilation of Health Care Facilities 170-2017. 2020. Available online: https://fgiguidelines.org/wp-content/uploads/2020/04/170_2017_n_20200303.pdf (accessed on 1 August 2022).
- Ahmed, T. Performance Investigation of Building Ventilation System by Calculating Comfort Criteria through HVAC Simulation. IOSR J. Mech. Civ. Eng. 2012, 3, 7–12. [Google Scholar] [CrossRef]
- Yoon, S.H.; Ahn, H.S.; Choi, Y.H. Numerical study to evaluate the characteristics of HVAC-related parameters to reduce CO2 concentrations in cars. Int. J. Automot. Technol. 2016, 17, 959–966. [Google Scholar] [CrossRef]
- Cehlin, M.; Moshfegh, B. Numerical Modeling of a Complex Diffuser in a Room with Displacement Ventilation. Build Environ. 2010, 45, 2240–2252. [Google Scholar] [CrossRef]
- Cao, G.; Ruponen, M.; Paavilainen, R.; Kurnitski, J. Modelling and Simulation of the Near-Wall Velocity of a Turbulent Ceiling Attached Plane Jet after Its Impingement with the Corner. Build Environ. 2011, 46, 489–500. [Google Scholar] [CrossRef]
- Gao, N.; Niu, J. Transient CFD Simulation of the Respiration Process and Inter-Person Exposure Assessment. Build Environ. 2006, 41, 1214–1222. [Google Scholar] [CrossRef]
- Berlanga, F.A.; Olmedo, I.; de Adana, M.R.; Villafruela, J.M.; José, J.F.S.; Castro, F. Experimental Assessment of Different Mixing Air Ventilation Systems on Ventilation Performance and Exposure to Exhaled Contaminants in Hospital Rooms. Energy Build 2018, 177, 207–219. [Google Scholar] [CrossRef]
- Ganesh, G.A.; Sinha, S.L.; Verma, T.N.; Dewangan, S.K. Numerical Investigation to Study the Effect of Inlet Inclination on the Turbulence Intensity of the Naturally Ventilated Room Using CFD. Int. J. Eng. Adv. Technol. 2020, 9, 583–589. Available online: https://www.researchgate.net/publication/357905704_Numerical_Investigation_to_Study_the_Effect_of_Inlet_Inclination_on_the_Turbulence_Intensity_of_the_Naturally_Ventilated_Room_Using_CFD (accessed on 13 November 2022). [CrossRef]
- Karimipanah, T.; Awbi, H.B.; Moshfegh, B. Evaluating the Performance of Air Distribution Systems in Enclosures. In Proceedings of the 10th International Conference on Industrial Ventilation, Paris, France, 17–19 September 2012; p. 26. [Google Scholar]
- Fabbri, K.; Gaspari, J.; Vandi, L. Indoor Thermal Comfort of Pregnant Women in Hospital: A Case Study Evidence. Sustainability 2019, 11, 6664. [Google Scholar] [CrossRef]
- Rusly, E.; Airah, M.; Gagliardini, S.; Australia, T. The Truth about the Air Diffusion Performance Index (ADPI); TROX Australia: North Sydney, Australia, 2014. [Google Scholar]




























| Parameter | Value |
|---|---|
| Lini | From (3 to 7), respectively |
| hgap | 0.01 m |
| hwall | 0.01 m |
| y+ | 10 mm [26] |
| Level of refining fluid cells | 1 |
| Level of refining cells at fluid/solid boundary | 3 |
| Mesh No. | Number of Elements |
|---|---|
| 1 | 125,843 |
| 2 | 820,521 |
| 3 | 1,508,968 |
| 4 | 2,460,313 |
| 5 | 3,680,531 |
| Type | Value | |
|---|---|---|
| Room Air | Initial Temperature | 289 K [29,30,31] |
| Pressure | ||
| Humidity | 50% | |
| Turbulence Intensity | ||
| Turbulence Length | ||
| Supply Air | Volume Flow | |
| Temperature | ||
| Pressure | [29,30,31] | |
| Humidity | ||
| Turbulence Intensity | [32] | |
| Turbulence Length | ||
| Expired Air | Mass Flow | [29,30,31] |
| Temperature | 307 K | |
| Pressure | ||
| Humidity | [31] | |
| Turbulence Intensity | [33] | |
| Turbulence Length | [34] | |
| Exhaust | Pressure |
Disclaimer/Publisher’s Note: The statements, opinions and data contained in all publications are solely those of the individual author(s) and contributor(s) and not of MDPI and/or the editor(s). MDPI and/or the editor(s) disclaim responsibility for any injury to people or property resulting from any ideas, methods, instructions or products referred to in the content. |
© 2024 by the authors. Licensee MDPI, Basel, Switzerland. This article is an open access article distributed under the terms and conditions of the Creative Commons Attribution (CC BY) license (https://creativecommons.org/licenses/by/4.0/).
Share and Cite
Alkhalaf, M.; Ilinca, A.; Hayyani, M.Y.; Martini, F. Impact of Diffuser Location on Thermal Comfort Inside a Hospital Isolation Room. Designs 2024, 8, 19. https://doi.org/10.3390/designs8020019
Alkhalaf M, Ilinca A, Hayyani MY, Martini F. Impact of Diffuser Location on Thermal Comfort Inside a Hospital Isolation Room. Designs. 2024; 8(2):19. https://doi.org/10.3390/designs8020019
Chicago/Turabian StyleAlkhalaf, Mustafa, Adrian Ilinca, Mohamed Yasser Hayyani, and Fahed Martini. 2024. "Impact of Diffuser Location on Thermal Comfort Inside a Hospital Isolation Room" Designs 8, no. 2: 19. https://doi.org/10.3390/designs8020019
APA StyleAlkhalaf, M., Ilinca, A., Hayyani, M. Y., & Martini, F. (2024). Impact of Diffuser Location on Thermal Comfort Inside a Hospital Isolation Room. Designs, 8(2), 19. https://doi.org/10.3390/designs8020019

