Abstract
Most European cities are facing urban densification issues. In this context, a solution to create usable spaces without additional pressure on land consists in the vertical extension of existing buildings. Given their abundance in the building stock, tertiary buildings offer an important potential. The paper introduces the Working Space project, which aims to develop an innovative, modular and prefabricated timber construction system adapted to the vertical extension of existing office buildings. The dimensions of the system can be adjusted to a great variety of structural grids and allows for any new typological organisation. Based on the principles of bioclimatic architecture, the extension’s envelope provides high-performance insulation, a smart management of passive solar gains, natural ventilation and free cooling, but also offers large surfaces dedicated to photovoltaic energy production and urban biodiversity. The system is made up of eco-friendly, local materials with very low environmental impact. The project’s outcomes are presented at a variety of scales, from urban design to construction details, as well as the outputs of an extensive life cycle assessment including the induced mobility impacts. Finally, the paper introduces a first application of this innovative architectural concept, which is currently being completed in Lausanne, Switzerland.
1. Introduction
Most European cities are currently facing urban densification issues. Numerous studies on the built environment’s sustainability have shown the many negative consequences of urban sprawl: waste of land, pressure on landscape, environmental impacts due to mobility, high infrastructural costs and worsening of socio-cultural inequalities [1]. This has led to the development of new territorial strategies aiming to reverse the trend. Based on a better coordination between urbanization and mobility, the latter focus especially on an increase in population and employment density close to public transportation, on the valorisation of untapped potentials within constructed sites and on the promotion of high-density, mix-used urban polarities [2].
In this context, the vertical extension of existing buildings provides a solution to create usable spaces without wasting any additional land. A number of recent studies has already shown the potential of this approach in the field of residential buildings [3]. Little attention has been given to office buildings so far, although, given their abundance in the building stock, they offer an important potential. In Switzerland, for instance, residential buildings account for nearly half of the built-up areas, whereas tertiary buildings represent around 20% of the total floor surfaces. These figures have remained relatively stable over the last 25 years [4,5]. Furthermore, tertiary buildings usually present favourable conditions for vertical extensions in terms of construction typology (simple structural grids and large flat roofs, among others).
However, if an intensification of land use—in this case by vertical extension—is a necessary condition to reach more sustainability, it is certainly not sufficient [6]. It indeed requires a global approach, including energy efficiency and appropriate building materials, typo-morphological adaptability and architectural quality, without losing sight of other factors such as induced mobility, economic feasibility and social acceptance. In addition, urban context specific constraints must be considered, such as difficult access to the construction site and the need for a rapid intervention to reduce disturbances on buildings already in operation.
Several works have already been devoted to the use of timber in the field of sustainable vertical extensions. They show the relevance of lightweight construction systems—such as wood—in vertical extension projects, to address the limited load-bearing capacities of existing buildings [7]. Furthermore, prefabricated elements offer the shortest assembly time on the building site, which is a crucial requirement in a dense urban context [8]. Most of these studies note that prefabricated timber frame construction is widely represented in the sector of vertical extension, given its ability to adapt to existing structures, typologies and architectures, in terms of façade expression. Hence, this construction technique is commonly implemented in made-to-measure projects, with little application potential on other buildings. Consequently, timber space modules are given special attention in the field of research [9], because of their inherent replication potential. However, given their fixed dimensions, these systems tend to have little adaptability to existing structures. This in turn creates the need for a specific load transferring structure between the new rooftop structure and the existing one, and also leads to possible difficulties in architectural integration and façade expression.
This is precisely the ambition of the Working Space interdisciplinary research project, which aims at creating an exemplary timber construction system that could freely adapt to the most typical tertiary buildings, from architectural and structural point of view, and could at the same time be replicable on other buildings.
The present paper presents the structured approach underlying the development of the project. Section 2 features the specific context that led to the development of a new construction system, adapted to the vertical extension of existing office buildings. It depicts how sustainability criteria were considered from the very early stage of the design. It also describes how the system was designed, and how it can adapt to a great variety of different buildings—an ability representing its main innovation.
Section 3 presents the methodology and results of the multi-criteria assessment of the system, based on a real case study, namely a pilot project conducted in Lausanne, Switzerland. It includes energy efficiency, in terms of construction and operation, and the impacts of induced mobility.
Section 4 introduces the first test-application of this new architectural concept. This allowed checking the economic and technical relevance of the system, among others.
A future research phase will focus on the post-occupancy monitoring of the prototype to get real performance data as well as to identify possible gaps that need to be filled. This next step aims at improving the system for further applications.
2. Development of an Innovative, Modular and Prefabricated Timber Construction System
2.1. Local Context
The Working Space project was instigated in collaboration with the State (or Canton) of Vaud, Switzerland. Due to a significant economic and demographic growth in recent years, the cantonal administration is facing a corresponding increase in workload [10]. Therefore, the authorities are currently in search of new office spaces, especially—but not only—in the already dense city centre of the local chief town, Lausanne.
Among their numerous tasks, the State services are in charge of an important building stock, which includes in particular a series of administrative buildings from the second half of the 20th century. Most of them need forthcoming renovation; some have an interesting potential in terms of densification by vertical extension.
The guidelines regarding the State’s building stock are very clear: any intervention “should focus on conserving natural resources, safety and health of the users and the balance of public finances (…). Preserving resources includes a sparing use of land, by promoting densification and renovation projects (…). Buildings should integrate eco-friendly materials and give priority to renewable resources, with very low embodied energy and environmental impact” [11].
Furthermore, the project’s specifications asked for the development of a very simple, cost-effective and low-tech construction system that could allow to create new usable spaces by vertical extension of different office buildings. The system therefore had to prove its adaptability to a great variety of existing structural grids and typological organisation.
2.2. Integration of Sustainability Principles into the Architectural Concept
Several studies have shown that sustainable building projects demand an increased level of coordination between structure, envelope and architectural systems, as well as energy modelling and technical installations. Therefore, the integrated design process (IDP) is a particularly suitable approach to optimise these complex interactions [12,13,14].
From a more general point of view, Reed and Gordon [15] also noted that “cross-disciplinary teamwork early in the design process is essential for achieving the successful integration of building, community, natural and economic systems for sustainable development”.
Following these incentives, the Working Space project gathered an interdisciplinary research team around an integrated design process. It included architects, civil engineers, electric and photovoltaic technical planners; specialists in life cycle analysis, building physics, bioclimatic conception and urban biodiversity; and institutional property owners and representatives of local and regional authorities.
The design process was carried out so as to be:
- Inclusive and collaborative: every stakeholder contributing from the very beginning
- Holistic and multi-scaled: taking all requirements and constraints into consideration, from urban scale to construction detail
- Evaluative, iterative and adaptive; allowing for new information to refine previous decisions
- Creative, non-dogmatic and pragmatic; the latest being essential conditions for the production of a quality design [16]
This active IDP-process was pursued throughout the research and design phase, and finally led to the development of an innovative, modular and prefabricated timber construction system that will be introduced hereafter.
2.3. Static System and Timber Prefabrication
The construction system consists of a wooden structure, developed according to the principles of modularity and prefabrication. As mentioned in the Introduction (Section 1), wood was chosen because of its low own-weight, but also because of its low environmental impact, which was attested by a multi-criteria assessment of the system (see Section 3).
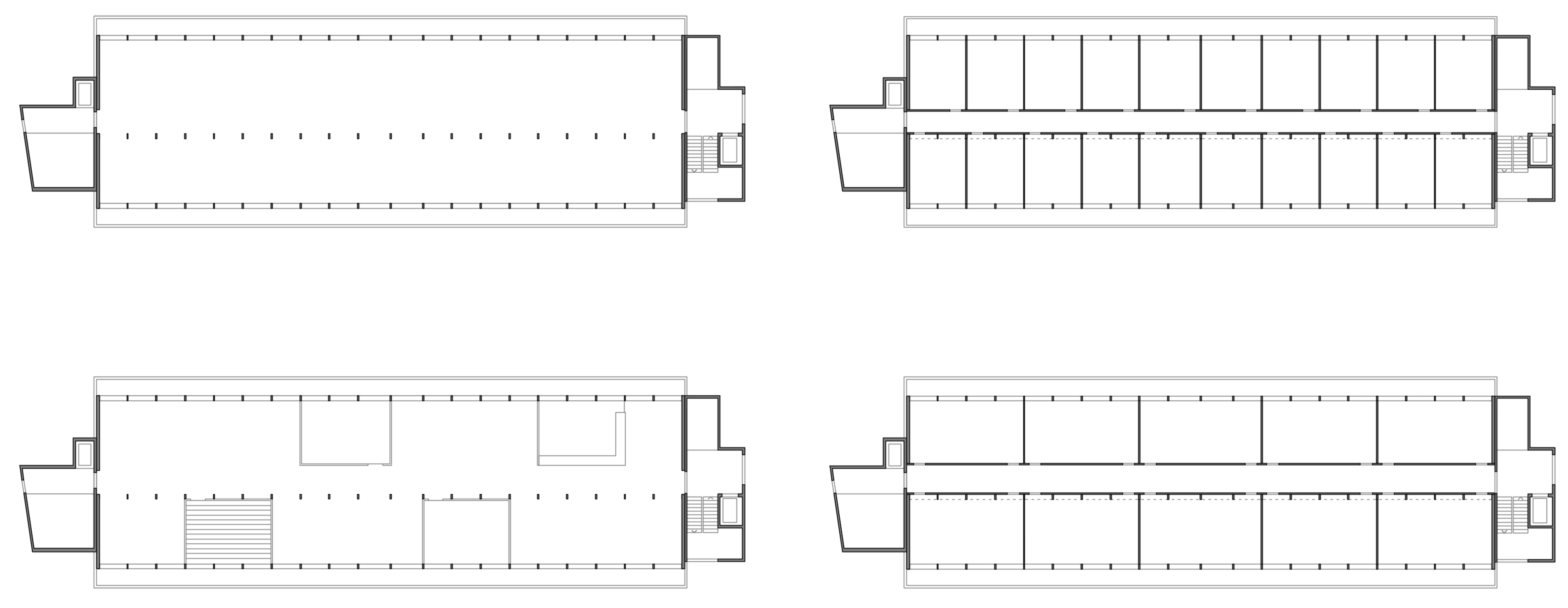
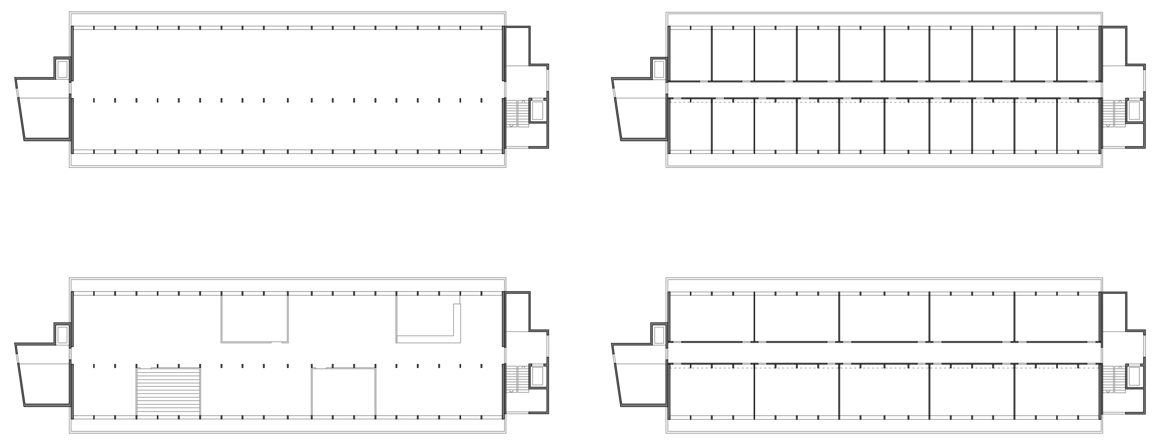
The wooden components are all adjustable to the different static systems and structural grids of existing buildings. Several buildings were studied with this in mind, ranging from office to school functions, with structural grids from 3.10 to 8.00 m, in metal and/or reinforced concrete, and with one or two new levels of potential vertical extensions (Figure 1).
Figure 1.
Different building configurations studied during the system’s development to check its adaptability to various dimensions of pre-existing structural grids, façade designs and orientations. Elements in red refer to the new construction, while elements in black refer to the existing building.
The vertical elements are made of a 12 cm × 36 cm post-and-beam structure in laminated wood. These large prefabricated elements also contain the main technical distributions. They can be placed either on the periphery or in the centre of the floor plan, thus giving maximum freedom for the design of interior spaces. The horizontal elements consist of wooden ribbed slabs, both for the flooring and for the ceiling. The dimensions of the latter exactly correspond to those of the vertical supports, and may vary in width from 1.80 to 3.60 m. The end side of the wooden floor slabs are supported by standard steel profiles, which allow leaning on a very limited number of points and easily transmitting the loads on the existing structures (see Figure 2, left).
Figure 2.
Axonometric views of the Working Space construction system, based on a reference grid.
As shown in Figure 2 (right), all façade components, such as the fixed glazing, the openings, the mobile solar protections and the wind deflectors (see section below for details), are designed in strict accordance with the same reference grid. This also applies to technical installations, notably the heating devices, the electrical wiring and the connections to the communication network. The result is a very high rate of prefabrication, as compared to common building standards. Moreover, the optimised design of each construction component fosters the desired expression of lightness and simplicity, thus enhancing the global architectural quality.
In terms of innovation, the goal of the project was not to develop new, specific building components or technical devices, but rather to use very simple, already existing techniques and materials in a highly optimised, modular combination. Wooden post-and-beam elements and ribbed slabs are time-tested systems, but in this case, they were statically dimensioned in order to adapt to other types of structures without having to recalculate their structural ability. The same applies to the components of the system’s envelope, that were designed to ensure thermal comfort and natural ventilation in any other building dimension or façade orientation.
2.4. Typological Flexibility and Inner Organisation
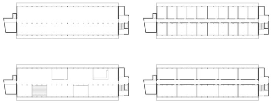
The modular principles of the Working Space system enable great flexibility in the organisation of interior spaces. The system’s adaptive dimensions and its large glazed façades offer true liberty in almost any typological organisation.
In the administrative field, it is for instance possible to design large open spaces, meeting rooms or shared closed offices, or even individual cell offices. The system thus provides the necessary adaptability to meet future requirements, by addition or removal of non-load-bearing partitions (Figure 3).
Figure 3.
Different possible organisations of the ground plan with the Working Space system.
Furthermore, with a ceiling height of 3.00 m, the system also makes it possible to create training and educational spaces such as workshops or classrooms. Such a possibility opens interesting perspectives for the extension of existing school buildings. No additional space is needed under the ceiling slabs for large technical installations (e.g., mechanical ventilation), as the system relies only on passive, bioclimatic functioning.
2.5. Envelope and Bioclimatic Design
To reduce the operation energy needs, the design of the Working Space system is mainly based on a bioclimatic approach, using the opportunities of local climatic conditions.
Here again, the challenge was to use simple, low-tech systems to ensure thermal comfort and natural ventilation. This is quite far from common practice, and needs fine-scale modelling and a high degree of coordination during the design phase to meet the given requirements. Furthermore, all façade components (e.g., openings, solar protections, and wind deflectors) were dimensioned in order to ensure thermal comfort and natural ventilation in any other orientation of the façades (N-S or E-W) or organisation of the inner space (e.g., open space or closed offices).
In winter, the high-performance building envelope—36 cm of recycled cellulose fibre—reduces heat loss and thereby the energy consumption for heating. The use of radiators fitted with thermostatic valves ensures maximum responsiveness of the system, which automatically adapts to the amount of solar and internal gains. The heat distribution is simply connected to the existing production, without inducing an increase of the power installed.
In summer, the functioning relies on a restriction of solar gains by means of fixed and mobile solar protections—a horizontal roof overhang combined with vertical blinds—along with a maximisation of natural lighting through large glazing. Manually opened windows of 60 cm × 240 cm allow for free natural ventilation and passive night cooling. Wind deflectors were set perpendicularly to every opening to optimise air inlet, in particular when wind blows in parallel with the façade. They are made of a simple, 36 cm × 240 cm laminated glass panel. Inside, an 8 cm thick cement screed ensures the necessary thermal inertia. In addition, 1.50 m wide vegetated surfaces located in front of the glazed façade contribute to summer heat reduction by natural evapotranspiration, but also to urban biodiversity (Figure 4). This results in an optimal quality of the indoor climate, with very little energy cost.
Figure 4.
Cross section through the system’s envelope showing its bioclimatic principles. Elements in red refer to the new construction, while elements in black refer to the existing building.
Finally, the system puts emphasis on renewable energy production, in particular by integrating photovoltaic roof panels covering the available area by nearly 100%.
3. Multi-Criteria Assessment of the Architectural Concept
3.1. Energy Balance: Methodology and Reference Standards
The Working Space system simultaneously intends to reduce embodied energy in the construction phase, to minimise operating energy and to produce renewable energy in the same building. An energy balance was carried out to assess how successfully these criteria were met. It bases on a real case study: namely, a pilot project currently being conducted in Lausanne. This first application of the system involves the vertical extension of an existing office building from the 1970s. The building’s static system consists of a steel structure with a reference grid of 4.80 m, with composite steel and concrete floors and non-load-bearing, prefabricated concrete façade elements. On each end of the central body, two concrete cores contain staircases, elevators and sanitary facilities (see Figure 3 and Figure 4 for details).
The extension comprises 30 workplaces and has an energy reference area (ERA) of 730 m2.
The framework of this multi-criteria assessment encompasses the timber extension itself, but also includes:
- Constructive impacts on the existing building: preparatory work on the flat roof and on the underlying steel structure, extension of concrete staircase cores
- A thermal balance naturally considering losses and gains—solar and internal—as well as impacts on the existing building: savings at roof level, possible increase of heating production
- Inputs and outputs of electricity, from and to the national power grid
- Impacts of induced mobility, taking into account the workers’ daily mobility (to and from work) and occasional mobility (due to specific working tasks)
The impacts of induced mobility, which are closely related to the effective location of a building, are not traditionally assessed in common practice. This aspect is nevertheless of importance from a global perspective towards the energy transition. If the construction and operation phases account for 40–50% of total energy consumption in Switzerland, mobility stands for more than 30% [17].
Figure 5 illustrates the considered framework and graphically summarises the results of the energy balance.
Figure 5.
Section through the extension, showing the framework and results of the energy balance. Elements in red refer to the new construction, while elements in black refer to the existing building.
Calculation of embodied energy uses the Swiss life cycle assessment (LCA) Database of Construction [18]. Regarding operating energy needs, results were derived from energy balances based on the Swiss technical standard SIA 380/1 [19]. A fine modelling of thermal losses, solar gains and natural ventilation was carried out, based on local meteorological records with hourly data [20]. To ensure comparison with other data of the assessment (e.g., electricity demand), this detailed thermal balance is not presented here but summarised in a yearly consumption.
Photovoltaic power generation was determined on the basis of average data from the system operator. For induced mobility, calculation bases on the Swiss technical standard SIA 2039 [21].
Finally, all these gross values were converted into non-renewable primary energy (NRE), using factors given by the Swiss LCA Database of Construction. Theses conversion factors are given in Table 1. The lifespan of the construction was set at 60 years, as required by these reference standards. Target and limit values for NRE requirements are drawn from SméO [22], a holistic sustainability assessment tool developed by the State of Vaud, the City of Lausanne and the Swiss federal institute of technology in Lausanne.
Table 1.
Estimated performances in non-renewable primary energy (NRE), rounded values.
3.2. Energy Efficiency and Mobility Impacts
As illustrated in Table 1, results show that the amount of embodied energy in construction materials (32 kWh/m2y) is about 10% lower than the target value given by SméO (36 kWh/m2y). This is mostly due to an abundant use of wood in the structural system and to the care taken in choosing insulation and finishing materials.
If the embodied energy included in the large photovoltaic roof is added (19 kWh/m2y), the total amount of NRE (51 kWh/m2y) exceeds the SméO limit value (45 kWh/m2y) by 10%. However, the roofing system is an active layer of the envelope producing renewable energy. Thus, the worsening of the grey energy balance is largely offset by corresponding power generation, as outlined below.
Regarding heating and domestic hot water, the energy demand of the system itself is very low (12 kWh/m2y), given the high-performance insulation and the use of internal and passive solar gains. Furthermore, some heating savings (–11 kWh/m2y) result directly from the vertical extension, as this leads de facto to reduce the energy loss of the existing flat roof by 100%. If this is also taken into account, the heating energy balance practically tends to be neutral.
Finally, the electricity demand (56 kWh/m2y) is widely balanced by photovoltaic power generation (−362 kWh/m2y).
As for the mobility assessment, the theoretical conditions were a priori ideal: a strategic location in the city centre, linked with close access to public transportation and short distances between place of residence and place of work. The outcomes of the assessment highlight that, even considering the optimal location of the building, the impact of induced mobility is very high (77 kWh/m2y).
In the end, this simulation shows a negative energy demand of −177 kWh/m2y, whereas the target value for the whole extension is set at 183 kWh/m2y. In other words, it is a positive-energy building, that generates as much energy as it is allowed to consume according to very demanding environmental criteria.
In summary, each square meter of usable area developed with the Working Space system induces one square meter of insulated roof on the existing building, thus reducing its heating demand, and produces another square meter of solar energy production on the new roof, resulting in a very favourable energy balance—and that without wasting any land.
3.3. Environmental Indicators
Two additional indicators of environmental impact were considered: global warming potential (GWP) in CO2 equivalents and UBP eco-points, a unit-less value. UBP eco-points base on the ecological scarcity method, that “allows for the assessment of the impacts generated by the releases of pollutants and extraction of resources identified in a life cycle inventory analysis” [23]. This holistic approach is specific to Switzerland and considers emissions to air, water and soil; use of non-renewable resources; and waste management.
Framework, calculation methods and sources are exactly the same as described in Section 3.1 concerning methodology and reference standard for the energy balance. As previously, target values are also drawn from the holistic sustainability assessment tool SméO.
Figure 6 summarises the results of the balance in terms of non-renewable primary energy (NRE), global warming potential (GWP) and UBP eco-points. It shows that the system has a negative energy demand (it produces more energy that it consumes), a very limited carbon footprint of 17 kg eq-CO2/m2y, below the target of 26 kg eq-CO2/m2y, and virtually no impact (0 UBP eco-points) regarding emissions of pollutants, use of resources and production of waste.
Figure 6.
Estimated performances in non-renewable primary energy (NRE), global warming potential (GWP) and Umweltsbelastungspunkte (UBP) eco-points.
4. From Design to Real Application
Following the first research phases focusing on the development of the general architectural and constructive concept and on the assessment of its environmental impacts, the experimental prototype was constructed in Lausanne in 2017–2018 (Figure 7). The specific project development lasted from September to December 2017, the prefabrication process took place in January and February 2018 and the on-site assembly from March to June 2018. The building stayed in operation during the whole process. This achievement provided an opportunity to test and validate the overall parameters and simulations developed within the research framework. It also allowed to evaluate the economic relevance, technical feasibility and typological flexibility of the modular extension.
Figure 7.
Visualisation of the vertical extension from the street.
4.1. Economic Relevance
Strict building specifications were prepared under guidance of the interdisciplinary research team and a public tender was organised to find a general contractor. All bids received were about 20% below the budgetary target. The forecast budget for this construction was about 3.6 million Swiss francs, but the final cost of the operation lies slightly below 3 million Swiss francs.
Moreover, the building process was awarded to a local timber construction company, ensuring a short supply chain between logging operations, manufacturing of the prefabricated elements and assembly on the building site itself. The wood for this prototype therefore came from sustainable forestry in the neighbouring Canton of Fribourg, less than 50 km from Lausanne. Despite its innovative character and very demanding standard in terms of ecological construction, the system showed its cost efficiency and ability to integrate the local economic fabric.
4.2. Technical Development
From a technical point of view, the experiment successfully tested the prefabrication and assembly processes as a whole (Figure 8). A 1:1-prototype of the bioclimatic façade elements, including all passive and active elements such as heating devices, solar protections, openings, wind deflectors, etc. were constructed and optimised during the implementation of the system. Minor adjustments were made to meet various administrative, normative or technical requirements, without losing sight of the overall environmental challenges. However, this confrontation with market reality showed the need for a close monitoring during the whole development process.
Figure 8.
On-site assembly of the prefabricated wooden elements.
At normative level, the system needed no optimisations regarding fire-prevention or other sanitary regulations (e.g., accessibility for disabled people), as these aspects were already taken into account in the integrated design phase.
Some dimensional adjustments had to be made to meet local town planning rules. For instance, the system’s roof overhang was designed with a width of 1.60 m for bioclimatic reasons (solar protection) and also to enable a standard photovoltaic panel of similar dimension (1.60 m) to be fitted on the roofing. However, the maximum allowed overhang in the city of Lausanne is 1.00 m wide and solar panels are not allowed on them. The thermal balance had to be checked again with this in mind, and a row of solar panels was lost.
Another aspect that was refined is that of room acoustics. Originally, they were thought to be solved with the interior fittings (partition walls and furnishing). However, the technical implementation of the ceiling slabs allowed integrating this parameter in the prefabrication process. Specific acoustic perforations where designed, without impacting the load-bearing capacities of the used cross-laminated timber panels. Finally, these where pre-painted at the constructor’s workshop, saving a lot of time on the construction site itself (Figure 9).
Figure 9.
The ceiling slabs with their specially designed acoustic perforations.
4.3. Architectural Integration
In terms of architectural integration, the specific context of this first test application was highly sensitive. The existing building is located in an already dense, central area with representative edifices such as the seat of the local government or the recently reconstructed parliament. The urban topography also offers a number of views looking down on the new extension. Consequently, the latter was conceived as an integral part of the existing building, but also of a wider urban landscape.
As pointed out above, the active photovoltaic roof is an essential component of the system, due to its substantial positive impact on the energy balance (see Section 3.1 for details).
Considering this particular urban context, the roofing was also intended to be a true “fifth façade”. The architectural integration of the intervention was to be ensured by the implementation of an integral, flat photovoltaic (PV) panelling. However, this goal was not completely fulfilled. Although technically feasible, the integrated option met resistance from the operating company from a maintenance point of view. In the end, the roofing consists of a traditional, gravelled flat roof on which the PV panels are laid with 8° slopes and technical pathways between the different rows (Figure 10).
Figure 10.
View of the photovoltaic roofing.
This attempt clearly shows the efforts that still need to be made towards an effective integration of PV panelling as an integral part of architectural design [24].
5. Conclusions
As a holistic concept, Working Space addresses sustainability issues at different levels. At urban scale, it enables densification within built up areas by developing new workplaces, in particular close to public transportation. At the building scale, it integrates structural and technical requirements into a coherent architectural design, especially in terms of bioclimatic building envelope and active photovoltaic roofing system. At the construction detail level, it uses materials with an environmentally-friendly life cycle assessment.
On the one hand, the pilot project conducted in Lausanne enabled verifying the technical and architectural relevance of the system, especially in terms of prefabrication, transport and assembly of large elements in a dense urban context and on a building in operation, as well as its typological flexibility. This test application was also an opportunity to validate the economic feasibility of the system, which was 20% below the budgetary target. On the other hand, the experience also pinpointed the limitations of the Working Space concept, in particular in terms of issues related to including PV panelling as an integral part of the architectural design. This experience clearly reveals that efforts still need to be made towards PV integration within the fifth façade, especially in sensitive urban contexts. Finally, the test application highlights the significance of mobility impacts for the energy transition.
Future studies will focus on post-occupancy monitoring to assess the actual energy efficiency. Lastly, psycho-social aspects such as user acceptance, indoor comfort and bioclimatic functioning based on user needs will also be studied with the aim of optimising the system. Further developments could also lead to the application of the system to other functions such as school buildings.
This interdisciplinary research project has allowed for the development of an innovative modular timber construction system for the extension of office buildings and its theoretical contribution to the long-term vision of the 2000-watt society. Integrating ecological criteria as essential components of any architectural design, Working Space is part of a global contribution towards a more sustainable built environment.
Author Contributions
Writing—Original Draft Preparation, A.D.; Writing—Review and Editing, S.L.; and Supervision, E.R.
Funding
This research was funded by the State of Vaud, Service Immeubles, Patrimoine et Logistique (SIPAL) and the Ecole Polytechnique Fédérale de Lausanne (EPFL).
Conflicts of Interest
The authors declare no conflict of interest. The founding sponsors had no role in the design of the study; in the collection, analyses, or interpretation of data; in the writing of the manuscript, and in the decision to publish the results.
References
- Rey, E. Retour en ville. In Green Density; PPUR: Lausanne, Switzerland, 2013; pp. 9–10. [Google Scholar]
- Rey, E. (Re)construire la ville autrement. Tracés 2011, 17, 7–10. [Google Scholar]
- Kompetenzzentrum Typologie & Planung in Architektur (HSLU/CCTP); Institut für Soziokulturelle Entwicklung (HSLU/ISE); Laboratoire D’architecture et Technologies Durables (EPFL/LAST). Das Modulare Bausystem Living Shell: Qualitätsvolle Verdichtung durch Ausbau und Sanierung von Dächern und Fassaden; vdf Hochschulverlag an der ETH Zürich: Zurich, Switzerland, 2016. [Google Scholar]
- Office Fédéral des Questions Conjoncturelles (OFQC). Documentation sur le Parc des Bâtiments en Suisse; OFQC: Bern, Switzerland, 1991. [Google Scholar]
- Office Fédéral de la Statistique (OFS). Statistique de la Superficie 2004/09; OFS: Neuchâtel, Switzerland, 2016. [Google Scholar]
- Williams, K. Does intensifying cities make them more sustainable? In Achieving Sustainable Urban Form; Williams, K., Burton, E., Jenks, M., Eds.; Spon Press: London, UK, 2000; pp. 30–45. [Google Scholar]
- Mooser, M.; Forestier, M.; Pittet-Baschung, M. Surélévations en Bois: Densifier, Assainir, Isoler; PPUR: Lausanne, Switzerland, 2011. [Google Scholar]
- Laboratoire D’architecture et Technologies Durables (EPFL/LAST). Projet de recherche living shell, rapport 1. In Enjeux et Opportunités de la Surélévation des Bâtiments dans le Contexte Genevois; EPFL/LAST: Lausanne, Switzerland, 2013. [Google Scholar]
- Tulamo, T.-S. (Ed.) SmartTES, Innovation in Timber Construction for the Modernisation of the Building Envelope Book 2. TES Extension; Aalto University School of Arts, Design and Architecture, Department of Architecture: Helsinki, Finnland; Technische Universität München, Chair for Timber Architecture: Munich, Germany, 2014. [Google Scholar]
- Service Immeubles, Patrimoine et Logistique (Etat de Vaud/DFIRE/SIPAL). Surélévation d’un Bâtiment Administratif, UNI 5. Rapport de Planification; Etat de Vaud: Lausanne, Switzerland, 2015. [Google Scholar]
- Service Immeubles, Patrimoine et Logistique (Etat de Vaud/DFIRE/SIPAL). La Stratégie Immobilière de L’ETAT de VAUD: Lignes Directrices à L’horizon 2020; Etat de Vaud: Lausanne, Switzerland, 2011. [Google Scholar]
- Lewis, M. Integrated design for sustainable buildings. ASHRAE J. 2004, 46, S22–S29. [Google Scholar]
- Magent, C.S.; Korkmaz, S.; Klotz, L.E.; Riley, D.R. A design process evaluation method for sustainable buildings. Archit. Eng. Des. Manag. 2009, 5, 62–74. [Google Scholar] [CrossRef]
- Keeler, M.; Vaidya, P. Fundamentals of Integrated Design for Sustainable Building, 2nd ed.; John Wiley & Sons: New York, NY, USA, 2016. [Google Scholar]
- Reed, W.G.; Gordon, E.B. Integrated design and building process: What research and methodologies are needed? Build. Res. Inf. 2000, 28, 325–337. [Google Scholar] [CrossRef]
- Rey, E. From Spatial Development to Detail; Notatio, Quart Publishers: Lucerne, Switzerland, 2014. [Google Scholar]
- Eberhard, J.; Philipp, R.R. Steps towards a Sustainable Development—A White Book for R&D of Energy-Efficient Technologies; Centre for Energy Policy and Economics (CEPE) & Novatlantis, Sustainability at the ETH Domain: Zurich, Switzerland, 2004. [Google Scholar]
- Koordinationskonferenz der Bau- und Liegenschaftsorgane der öffentlichen Bauherren (KBOB). Données des écobilans dans la Construction 2009/1:2016; Swiss Federal Office for Buildings and Logistics (BBL): Bern, Switzerland, 2016. [Google Scholar]
- Swiss Society of Engineers and Architects (SIA). SIA 380/1:2016—Besoins de Chaleur Pour le Chauffage; Swiss Society of Engineers and Architects (SIA): Zurich, Switzerland, 2016. [Google Scholar]
- Chuard, D.; Spitz, C. Système de surélévation léger et durable—Projet de recherche et réalisation d’un prototype UNI5. In Etude du Confort Thermique Estival. Rapport Final; Effin’art sàrl: Lausanne, Switzerland, 2016. [Google Scholar]
- Swiss Society of Engineers and Architects (SIA). Consommation Énergétique des Bâtiments en Fonction de Leur Localisation (SIA 2039:2016Mobilité); Swiss Society of Engineers and Architects (SIA): Zurich, Switzerland, 2016. [Google Scholar]
- Liman, M.U.; Riera, M.G.; Roulet, M.Y. SméO: Société à 2000 Watts; Ville de Lausanne & Etat de Vaud: Lausanne, Switzerland, 2014. [Google Scholar]
- Frischknecht, R.; Steiner, R.; Jungbluth, N. The Ecological Scarcity Method—Eco-Factors 2006: A Method for Impact Assessment in LCA; Federal Office for the Environment (FOEN), ÖBU, works for sustainability: Bern, Switzerland, 2009. [Google Scholar]
- Ballif, C.; Perret-Aebi, L.E.; Lufkin, S.; Rey, E. Integrated thinking for photovoltaics in buildings. Nat. Energy 2018, 3, 438–442. [Google Scholar] [CrossRef]
© 2018 by the authors. Licensee MDPI, Basel, Switzerland. This article is an open access article distributed under the terms and conditions of the Creative Commons Attribution (CC BY) license (http://creativecommons.org/licenses/by/4.0/).









