Performance-Based Fire Engineering Design of a Heritage Building: McDougall House Case Study
Abstract
:1. Introduction
2. Earthquake Damages and Conservation of McDougall House
3. Building Control System within New Zealand
4. Application of Verification Method C/VM2 to McDougall House
4.1. Design Scenario (BE): Fire Blocks Exit
4.2. Design Scenario (UT): Fire in Normally Unoccupied Room Threathening Occupants of Other Rooms
4.3. Design Scenario (CS): Fire Starts in a Concealed Space
4.4. Design Scenario (SF): Smouldering Fire
4.5. Design Scenario (HS): Horizontal Fire Spread
4.6. Design Scenario (VS): External Vertical Fire Spread
4.7. Design Scenario (IS): Rapid Fire Spread Involving Internal Surface Linings
4.8. Design Scenario (FO): Firefighting Operations
4.9. Design Scenario (CF): Challenging Fire
- Room with floor area less than 2 m2.
- Sanitary facilities adjoining an exitway.
- Room with a total floor area of less than 500 m2, single direction travel of less than 25 m, and occupant load of less than 150 or 100 for intermediate floor.
- Room with sleeping care use having no more than four occupants undergoing treatment.
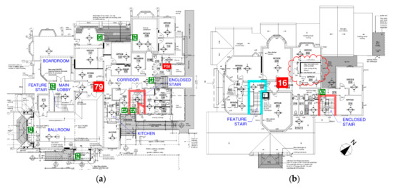
- CF1, Design fire in the Main Lobby/Feature Stair: This fire results in smoke spreading into the Ballroom, Corridor and the upper level Passage, which affects egress and challenges the integrity of the smoke separation around the Feature Stair.
- CF2, Design fire in the Ballroom: This fire results in smoke spreading into the Corridor and Main Lobby/Feature Stair, which affects egress and challenges the external egress past heritage windows of the Ballroom.
- CF3, Design fire in the Corridor: This fire results in smoke spread into the Ballroom, Main Lobby/Feature Stair and Safe Path Stair, which affects egress.
- CF4, Design fire in the Kitchen: This fire results in smoke spreading into the Ballroom and Corridor, which affects egress and challenges the external egress past heritage windows of the Kitchen.
- CF5, Design fire in the Level 1 Office: This fire results in smoke spreading into the Passage, Main Lobby/Feature Stair and Safe Path Stair, which affects egress.
4.10. Design Scenario (RC): Robustness Check
5. Upgrades to the Fire Safety and Fire Protection Systems of McDougall House
Author Contributions
Funding
Acknowledgments
Conflicts of Interest
References
- ICOMOS. New Zealand Charter for the Conservation of Places of Cultural Heritage Value; ICOMOS NZ (Inc.): Auckland, New Zealand, 2010. [Google Scholar]
- Duncan, C.R.; Whiting, P.; Wade, C.A.; Whiting, D.; Henderson, A. Fire Protection of New Zealand’s Traditional Māori Buildings; BRANZ: Porirua, New Zealand, 2004. [Google Scholar]
- Cosgroves Ltd. McDougall House Fire Strategy Report; Issue D; Cosgroves Ltd.: Christchurch, New Zealand, 2014. [Google Scholar]
- Fulton Ross Team Architects. McDougall House Heritage Report; Fulton Ross Team Architects: Christchurch, New Zealand, 2013. [Google Scholar]
- Pau, D.; Duncan, C.; Fleischmann, C. Fire Protection and Fire Safety Design of New Zealand Heritage Building. Fire Science and Technology 2018. In Proceedings of the 11th Asia-Oceania Symposium on Fire Science and Technology, Taipei, Taiwan, 21–25 October 2018; Springer: Singapore.
- Lewis & Barrow Ltd. McDougall House Earthquake Assessment; Lewis & Barrow Ltd.: Christchurch, New Zealand, 2012. [Google Scholar]
- Ministry of Business, Innovation and Employment. C/VM2 Verification Method: Framework for Fire Safety Design; Amendment 5; Ministry of Business, Innovation and Employment: Wellington, New Zealand, 2017.
- Building Act 2004. Available online: http://legislation.govt.nz/act/public/2004/0072/144.0/DLM306036.html (accessed on 5 June 2019).
- Ministry of Business, Innovation and Employment. Extract from the New Zealand Building Code; Ministry of Business, Innovation and Employment: Wellington, New Zealand, 2012.
- Ministry of Business, Innovation and Employment. C/AS1-C/AS7 Acceptable Solutions; Amendment 4; Ministry of Business, Innovation and Employment: Wellington, New Zealand, 2017.
- Wade, C.; Beever, P.; Fleischmann, C.; Lester, J.; Lloydd, D.; Moule, A.; Saunders, N.; Thorby, P. Developing Fire Performance Criteria for New Zealand’s Performance Based Building Code. In Proceedings of the Fire Safety Engineering International Seminar, Paris, France, 26–27 April 2007. [Google Scholar]
- Fleischmann, C.M. Is Prescription the Future of Performance-Based Design? Fire Safety Science. In Proceedings of the 10th International Symposium on Fire Safety Science, College Park, MD, USA, 19–24 June 2011. [Google Scholar]
- National Fire Protection Association. Performance-Based Option. In NFPA 101 Life Safety Code; 2018 ed.; National Fire Protection Association: Quincy, MA, USA, 2018; Chapter 5; pp. 44–48. [Google Scholar]
- Australian Building Codes Board. International Fire Engineering Guidelines; 2005 ed.; Australian Building Codes Board: Canberra, Australia, 2005.
- Chartered Institution of Building Services Engineers. CIBSE. Guide E: Fire Engineering, 2nd ed.; Chartered Institution of Building Services Engineers: London, UK, 2003. [Google Scholar]
- Standards New Zealand. NZS 4512:2010 Fire Detection and Alarm Systems in Buildings; Standards New Zealand: Wellington, New Zealand, 2010.
- Standards New Zealand. NZS 4541:2013 Automatic Fire Sprinkler Systems; Standards New Zealand: Wellington, New Zealand, 2013.
- Ministry of Business, Innovation and Employment. Commentary for Building Code Clauses C1-C6 and Verification Method C/VM2; Ministry of Business, Innovation and Employment: Wellington, New Zealand, 2013.
- International Organization for Standardization. ISO 5660-1:2015 Reaction-to-Fire Tests—Heat Release, Smoke Production and Mass Loss Rate—Part 1: Heat Release Rate (Cone Calorimeter Method) and Smoke Production Rate (Dynamic Measurement), 3rd ed.; International Organization for Standardization: Geneva, Switzerland, 2015. [Google Scholar]
- International Organization for Standardization. ISO 9705-1:2016 Reaction to Fire Tests—Room Corner Test for Wall and Ceiling Lining Products—Part 1: Test Method for a Small Room Configuration, 1st ed.; International Organization for Standardization: Geneva, Switzerland, 2016. [Google Scholar]
- International Organization for Standardization. ISO 9239-1:2010 Reaction to Fire Tests for Floorings—Part 1: Determination of the Burning Behaviour Using a Radiant Heat Source, 3rd ed.; International Organization for Standardization: Geneva, Switzerland, 2010. [Google Scholar]
- Standards New Zealand. NZS 4510:2008 Fire Hydrant Systems for Buildings; Standards New Zealand: Wellington, New Zealand, 2008.
- Wade, C.; Baker, G.; Frank, K.; Harrison, R.; Spearpoint, M. B-RISK 2016 User Guide and Technical Manual, 3rd ed.; BRANZ: Porirua, New Zealand, 2016. [Google Scholar]
- Wade, C.A. Room Size Limits when Using a Fire Zone Model for Smoke-Filing Calculations; BRANZ: Porirua, New Zealand, 2013. [Google Scholar]
- Gwynne, S.M.V.; Rosenbaum, E.R. Employing the Hydraulic Model in Assessing Emergency Movement. In SFPE Handbook of Fire Protection Engineering, 5th ed.; Hurley, M.J., Daniel, G., Eds.; Springer: New York, NY, USA, 2016; pp. 2115–2151. [Google Scholar]








| External Wall | Notional Boundary (DB) (m) | Fire Load Energy Density (FLED) (MJ/m2) | Height and Width of the Unprotected Areas (H × W) (m) | UPA 1 (%) |
|---|---|---|---|---|
| New entry | 1.3 | 800 | 3 × 3 | 90 |
| Reconstructed wall | 3.3 | 800 | 3 × 10 | 100 |
| Inputs | Characteristics |
|---|---|
| Design fire | Growth rate: 0.0469t2 Peak value: 20 MW Effective heat of combustion, Δhc,eff: 20 MJ/kg Radiative fraction, χr: 0.35 Fuel composition: C1H2O0.5 Soot yield, : 0.07 kg/kg (pre-flashover); 0.14 kg/kg (post-flashover) Carbon monoxide yield, : 0.04 kg/kg (pre-flashover); 0.40 kg/kg (post-flashover) Carbon dioxide yield, : 1.50 kg/kg Water vapor yield, : 0.82 kg/kg |
| Fire protection system | Sprinkler: Standard response, controls heat release rate upon activation Response time index, RTI: 135 m1/2s1/2 C-factor: 0.85 m1/2s1/2 Activation temperature, Tact: 68 °C Radial distance: 3.25 m Distance below ceiling: 0.025 m |
| Smoke detector: Point type Optical density at alarm: 0.097 m−1, measured outside chamber Radial distance: 7 m Distance below ceiling: 0.025 m | |
| Compartment 1 | Ballroom: 16.22-5.77-3.43 m; SF = 8.0 Kitchen: 5.09-2.18-3.43 m; SF = 0.9 Level 1 Office: 5.48-5.42-3.00 m; SF = 3.3 Level 1 Offices: 15.57-4.12-3.00 m; SF = 7.1 Corridor: 8.12-1.65-3.43 m (four connected compartments); SF = 1.1 Level 1 Passage: 5.38-1.14-3.00 m (three connected compartments); SF = 0.7 Main Lobby/Feature Stair: 5.36-1.94-7.14 m; SF = 0.2 Safe Path Stair: 3.24-2.60-7.14 m; SF = 0.2 |
| Ventilation | Internal doors: Non-fire-rated door considered open at all times Fire and/or smoke control door with self-closer considered open during egress only |
| External doors: Closed at all times | |
| Door leakage: 10-mm gap under fire and/or smoke control door | |
| Wall leakage: Fire- and/or smoke-rated wall has no leakage 0.1% leakage area for lined internal and external walls | |
| Integrity of wall partitions: Non-fire-rated and smoke-rated walls to fail at 200 °C |
| Parameters | Values |
|---|---|
| k | 1.4 for horizontal travel 1.0 for vertical travel |
| a | 0.266 |
| D | Calculated occupant density of the specific space, P/m2 for S calculation Assumed occupant density at constriction point, 1.9 P/m2 for Fc calculation |
| We | Effective width of constriction, which is the original clear width minus the 0.15-m boundary layer on each side of door and stair |
| Smax | Maximum horizontal walking speed, 1.20 m/s Maximum vertical walking speed, 0.85 m/s |
| Fc,max | Maximum flow rate for door with self-closer, 50 P/min/leaf No maximum limit for door without self-closer |
| Design Fires | Events |
|---|---|
| CF1 | Design fire in Main Lobby/Feature Stair Adjacent spaces modelled: Ballroom, Corridor and Passage. 47 s, smoke detector activation in the Main Lobby/Feature Stair. 130 s, failure of smoke separation of the Main Lobby/Feature Stair at 200 °C resulting in immediate smoke spread into upper level Passage. 164 s, sprinkler activation to control the heat release rate of design fire at 1261 kW. is 0.008 (≤0.15) and SF is 0.2 (<0.4), room of fire origin modelled as two layer and B-RISK is applicable. 484 s, FEDCO in the Corridor reaches 0.3. RSET = 47 + 30 + 60 + 15 (S governs) = 152 s < 484 s, ASET. 582 s, FEDCO in the Ballroom reaches 0.3. RSET = 47 + 30 + 60 + 29 (Fc governs) = 166 s < 582 s, ASET. FEDCO in the Passage never reaches 0.3 in 600 s. RSET = 47 + 30 + 60 + 24 (Fc governs) = 161 s < 600 s, ASET. RSET < ASET, occupants evacuate under tenable condition for CF1. |
| CF2 | Design fire in Ballroom Adjacent spaces modelled: Main Lobby/Feature Stair and Corridor. 32 s, smoke detector activation in the Ballroom. 167 s, sprinkler activation to control the heat release rate of design fire at 1308 kW. is 0.054 (≤0.15) and SF is 8.0 (≥0.4, ≤70), room of fire origin modelled as two layer and B-RISK is applicable. 251 s, non-fire-rated wall partitions of the Ballroom reaches 200 °C. The failure of the non-fire-rated wall partitions at 200 °C would cause immediate smoke to spread into the Corridor and Main Lobby/Feature Stair. Consequently, the tenability within these spaces will deteriorate. However, wall failure is not modelled to generate a worst-case condition within the Ballroom for the assessment of external egress past windows. 251 s, smoke spread into the Corridor. RSET = 32 + 30 + 60 + 15 (S governs) = 137 s < 251 s, ASET. 251 s, smoke spread into the Main Lobby/Feature Stair. RSET = 32 + 30 + 60 + 17 (S governs) = 139 s < 251 s, ASET. 408 s, FEDCO in the Ballroom reaches 0.3. RSET = 32 + 30 + 60 + 44 (Fc governs) = 166 s < 408 s, ASET. This is the evacuation time for the last Level 1 occupant to evacuate externally past the Ballroom windows. RSET < ASET, occupants evacuate under a tenable condition for CF2. |
| CF3 | Design fire in Corridor Adjacent spaces modelled: Main Lobby/Feature Stair, Safe Path Stair and Ballroom. 35 s, smoke detector activation in the Corridor. 151 s, sprinkler activation to control the heat release rate of design fire at 1069 kW. is 0.044 (≤0.15) and SF is 0.9 (≥0.4, ≤70), room of fire origin modelled as two layer and B-RISK is applicable. 166 s, non-fire-rated wall partitions of the Corridor reaches 200 °C. The failure of the non-fire-rated wall partitions at 200 °C would cause immediate smoke to spread into the Ballroom and Main Lobby/Feature Stair, and also other adjacent spaces which are not modelled. Consequently, the tenability within these spaces will deteriorate. However, wall failure is not modelled to generate a worst-case condition for smoke spread into the Safe Path Stair. 166 s, smoke spread into the Main Lobby/Feature Stair. RSET = 35 + 30 + 60 + 17 (S governs) = 142 s < 166 s, ASET. 166 s, smoke spread into the Ballroom. RSET = 35 + 30 + 60 + 29 (Fc governs) = 154 s < 166 s, ASET. FEDCO in the Safe Path Stair never reaches 0.3 in 600 s. RSET = 35 + 30 + 60 + 40 (Fc governs) = 165 s < 600 s, ASET. RSET < ASET, occupants evacuate under a tenable condition for CF3. |
| CF4 | Design fire in Kitchen Adjacent spaces modelled: Ballroom and Corridor. 54 s, smoke detector activation in the Corridor. Smoke detector is not installed within the Kitchen due to risk of false alarm. 95 s, failure of non-fire-rated wall partitions of the Kitchen at 200 °C resulting in immediate smoke spread into the Ballroom and Corridor. 156 s, sprinkler activation to control the heat release rate of design fire at 1141 kW. is 0.047 (≤0.15) and SF is 0.9 (≥0.4, ≤70), room of fire origin modelled as two layer and B-RISK is applicable. 227 s, fire becomes ventilation limited. This requires the failure of the Kitchen window to maintain the capped heat release rate. However, window failure is not modelled to prevent smoke outflow and to generate a worst-case condition within the Kitchen for the assessment of external egress past window. 317 s, FEDCO in the Kitchen reaches 0.3. RSET = 54 + 30 + 60 + 44 (Fc governs) = 188 s < 317 s, ASET. This is the evacuation time for the last Level 1 occupant to evacuate externally past the Kitchen window. 328 s, FEDCO in the Corridor reaches 0.3. RSET = 54 + 30 + 60 + 15 (S governs) = 159 s < 328 s, ASET. 333 s, FEDCO in the Ballroom reaches 0.3. RSET = 54 + 30 + 60 + 29 (Fc governs) = 173 s < 333 s, ASET. RSET < ASET, occupants evacuate under a tenable condition for CF4. |
| CF5 | Design fire in Level 1 Office Adjacent spaces modelled: Passage, Main Lobby/Feature Stair, Safe Path Stair and Level 1 Offices. 31 s, smoke detector activation in the Level 1 Office. 113 s, failure of non-fire-rated wall partitions of the Level 1 Office at 200 °C, resulting in immediate smoke to spread into the Passage and Main Lobby/Feature Stair. 121 s, fire and smoke control door into the Safe Path Stair is opened for egress allowing the ingress of smoke from the Passage. 137 s, sprinkler activation to control the heat release rate of design fire at 880 kW. is 0.051 (≤ 0.15) and SF is 3.3 (≥0.4, ≤70), room of fire origin modelled as two layer and B-RISK is applicable. 145 s, fire and smoke control door into the Safe Path Stair, which is closed as the last Level 1 occupant evacuates. 155 s, fire becomes ventilation limited. This requires the failure of the Level 1 Office window to maintain the capped heat release rate. However, window failure is not modelled to prevent smoke outflow, which will alleviate the tenability within the modelled compartments. 331 s, FEDCO in the Passage reaches 0.3. RSET = 31 + 30 + 60 + 24 (Fc governs) = 145 s < 331 s, ASET. 337 s, FEDCO in the Main Lobby/Feature Stair reaches 0.3. RSET = 31 + 30 + 60 + 17 (S governs) = 138 s < 337 s, ASET. FEDCO in the Safe Path Stair never reaches 0.3 in 600 s. RSET = 31 + 30 + 60 + 40 (Fc governs) = 161 s < 600 s, ASET. RSET < ASET, occupants evacuate under a tenable condition for CF5. |
| Scenario | Compartment | FEDCO = 0.3 | FEDtherm = 0.3 |
|---|---|---|---|
| With window failure | Level 1 Office Level 1 Offices Passage 1 Passage 2 Passage 3 Main Lobby/Feature Stair Safe Path Stair | 549 >600 >600 >600 >600 >600 >600 | 110 >600 176 282 388 188 >600 |
| Without window failure | Level 1 Office Level 1 Offices Passage 1 Passage 2 Passage 3 Main Lobby/Feature Stair Safe Path Stair | 296 508 331 389 454 337 >600 | 110 >600 172 >600 >600 187 >600 |
| Design Fires | Room of Fire Origin | RSET | ASET (FEDCO = 0.3) |
|---|---|---|---|
| CF1 | Main Lobby/Feature Stair | 154 | 419 |
| CF2 | Ballroom | 151 | 408 |
| CF3 | Corridor | 140 | 392 |
| CF4 | Kitchen | 147 | 317 |
| CF5 | Level 1 Office | 127 | 296 |
| Fire Safety/Protection Systems | Existing | Upgraded |
|---|---|---|
| Automatic fire sprinkler system | Exposed sprinkler pipework under ceiling. | Concealed sprinkler pipework above ceiling, particularly for the ornamental plasterwork ceiling of Ballroom. |
| Combination of outdated brass pendant sprinkler heads and standard response sprinkler heads. | Combination of standard and quick response sprinkler heads with concealed type installed within the Ballroom, Main Lobby and Boardroom. | |
| Exposed fire hose reel mounted on wall. | Fire hose reel located within recessed cabinet on the wall. | |
| Fire alarm system | Manual alarm system with supplementary smoke detection. | Automatic analogue addressable smoke detection system with manual call points. |
| Outdated bell-type sounder. | Electronic sounder with compliant alarm signature. | |
| Fire and/or smoke control door | Absence of fire and smoke control doors within the designated fire and smoke separations of the fire-rated Safe Path Stair. | Fire and smoke control doors -/30/30 sm rating leading into the fire-rated Safe Path Stair at ground and first floors. |
| Absence of smoke control doors within the designated smoke separations at first floor of the Feature Stair. | Smoke control doors -/-/- sm rating within the first-floor smoke separation of the Feature Stair. | |
| Absence of smoke seals, door closers, electromagnetic hold-open devices and certified door tags for the fire and/or smoke control doors. | Fire and/or smoke control doors equipped with smoke seals, door closers, electromagnetic hold-open devices and certified door tags. | |
| Fire- and smoke-rated construction | No fire rating to the first floor and its load-bearing walls and structural steel elements due to earthquake damage to the floor and wall linings. | Fire-rated plasterboard timber joist floor and ceiling system, achieving 30 min fire rating for exposure from the underside. |
| Fire-rated plasterboard wall system utilizing an existing lath substrate or new timber frame, or a composite wall, achieving 30 min fire rating with fire exposure from all sides. | ||
| Fire-rated plasterboard timber-framed system encapsulating structural steel elements, achieving 30 min fire rating with fire exposure from all sides. | ||
| No fire rating to the fire-rated Safe Path Stair and storage cupboard under stair due to earthquake damage to its wall linings. | Fire-rated plasterboard timber-framed ceiling system to underside of stair, achieving 30 min fire rating for exposure from the underside. | |
| Fire-rated plasterboard wall system utilizing an existing lath substrate, achieving 30 min fire rating for exposure from either side. | ||
| No fire rating to the existing chimney voids due to the removal of chimneys following earthquake damage. | Fire-rated plasterboard timber-framed shaft system, achieving 30 min fire rating for exposure from either side. | |
| No fire-stopping service penetrations through fire-rated floor and walls. | Proprietary fire-stopping products including fire-rated collars and wraps, fire-rated intumescent mastic, fire-rated mineral batts, etc., installed to maintain the fire rating of the floor and walls. | |
| Emergency lighting and exit signage | Outdated emergency lighting model with limited coverage (no coverage where there is a change in level, e.g., Feature Stair and external ramps), not complying with NZBC requirements. | Emergency lighting coverage, design and construction details meeting NZBC requirements. |
| Combination of illuminated exit signage and outdated non-illuminated exit signage, not complying with NZBC requirements. | Illuminated exit signage coverage, design and construction details meeting NZBC requirements. |
© 2019 by the authors. Licensee MDPI, Basel, Switzerland. This article is an open access article distributed under the terms and conditions of the Creative Commons Attribution (CC BY) license (http://creativecommons.org/licenses/by/4.0/).
Share and Cite
Pau, D.; Duncan, C.; Fleischmann, C. Performance-Based Fire Engineering Design of a Heritage Building: McDougall House Case Study. Safety 2019, 5, 45. https://doi.org/10.3390/safety5030045
Pau D, Duncan C, Fleischmann C. Performance-Based Fire Engineering Design of a Heritage Building: McDougall House Case Study. Safety. 2019; 5(3):45. https://doi.org/10.3390/safety5030045
Chicago/Turabian StylePau, Dennis, Christine Duncan, and Charles Fleischmann. 2019. "Performance-Based Fire Engineering Design of a Heritage Building: McDougall House Case Study" Safety 5, no. 3: 45. https://doi.org/10.3390/safety5030045
APA StylePau, D., Duncan, C., & Fleischmann, C. (2019). Performance-Based Fire Engineering Design of a Heritage Building: McDougall House Case Study. Safety, 5(3), 45. https://doi.org/10.3390/safety5030045

