Using Lean-and-Green Supersaturated Poly-Factorial Mini Datasets to Profile Energy Consumption Performance for an Apartment Unit
Abstract
1. Introduction
2. Materials and Methods
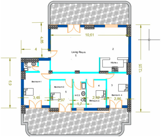
2.1. Technical Description of the Studied Building Apartment Unit
2.1.1. Basic Location and Energy Consumption Status Information for the Building Apartment Unit
2.1.2. Apartment Unit Structural Details
2.1.3. Electromechanical and Renewable Energy Systems
2.1.4. The Energy Efficiency Certification Software Package TEE-KENAK
2.2. The Statistical Analysis Approach
2.3. The Computational Aids
2.4. The Methodological Outline
- (1)
- Gather the required building apartment unit structural layout designs, along with the information for the installed electromechanical and renewable energy equipment information.
- (2)
- Determine which featured characteristics will be investigated for the selected apartment unit.
- (3)
- Determine the range values for the featured apartment unit characteristics and code them into controlling factor levels.
- (4)
- Select an appropriate supersaturated screening design to accommodate the large number of controlling factors from steps 2 and 3.
- (5)
- Execute the supersaturated plan runs by inputting each time trial recipe information (from step 4) into the TEE-KENAK software package.
- (6)
- Record the energy consumption (real and reference) estimates from each supersaturated trial run.
- (7)
- Prepare the response table and response graph for the energy consumption estimates.
- (8)
- Conduct stepwise regression analysis and evaluate the model summary results.
- (9)
- Determine the active controlling factors from step 8 and suggest a possible solution for the factorial settings.
- (10)
- Confirm the energy consumption performance improvement by inputting the optimal solution into the TEE-KENAK software package.
- (11)
- Assess and discuss the overall solution using other known methods such as PLS, entropic, and hierarchical clustering comparisons on key descriptive estimators of the energy consumption response.
3. Results
4. Discussion
5. Conclusions
Author Contributions
Funding
Institutional Review Board Statement
Informed Consent Statement
Data Availability Statement
Conflicts of Interest
References
- EC-COM(2019) 640 Final: The European Green Deal. Available online: https://eur-lex.europa.eu/resource.html?uri=cellar:b828d165-1c22-11ea-8c1f-01aa75ed71a1.0002.02/DOC_1&format=PDF (accessed on 30 March 2021).
- EC-COM(2020) 562 Final: Stepping Up Europe’s 2030 Climate Ambition. Available online: https://eur-lex.europa.eu/legal-content/EN/TXT/PDF/?uri=CELEX:52020DC0562&from=EN (accessed on 3 April 2021).
- EC-COM(2020) 662 Final: A Renovation Wave for Europe—Greening Our Buildings, Creating Jobs, Improving Lives. Available online: https://eur-lex.europa.eu/LexUriServ/LexUriServ.do?uri=OJ:L:2012:081:0018:0036:EN:PDF (accessed on 30 March 2021).
- IEA. Change in Final Energy Consumption by Sector, 2000–2018, and by Scenario to 2040; IEA: Paris, France, 2019. [Google Scholar]
- IEA. Tracking Buildings; IEA: Paris, France, 2019. [Google Scholar]
- IEA; IRENA; UNSD; WB; WHO. Tracking SDG 7: The Energy Progress Report; WB: Washington, DC, USA, 2019. [Google Scholar]
- United Nations Foundation. Sustainable Development Goals. 2023. Available online: https://unfoundation.org/what-we-do/issues/sustainable-development-goals/ (accessed on 30 January 2023).
- Bond, S.; Devine, A. Incentivizing green single-family construction: Identifying effective government policies and their features. J. Real Estate Financ. Econ. 2016, 52, 383–407. [Google Scholar] [CrossRef]
- Newsham, G.R.; Mancini, S.; Birt, B.J. Do LEED-Certified buildings save energy? Yes, but…. Energy Build. 2009, 41, 897–905. [Google Scholar] [CrossRef]
- Adekanye, O.G.; Davis, A.; Azevedo, I.L. Federal policy, local policy and green building certifications in the U.S. Energy Build. 2020, 209, 109700. [Google Scholar] [CrossRef]
- Porumb, V.A.; Maier, G.; Anghel, I. The impact of building location on green certification price premiums: Evidence from three European countries. J. Clean. Prod. 2020, 272, 122080. [Google Scholar] [CrossRef]
- Sanderford, A.R.; McCoy, A.P.; Keefe, M.J. Adoption of energy star certifications: Theory and evidence compared. Build. Res. Inf. 2018, 46, 207–219. [Google Scholar] [CrossRef]
- Kok, N.; McGraw, M.; Quigley, J.M. The diffusion of energy efficiency in building. Am. Econ. Rev. 2011, 101, 77–82. [Google Scholar] [CrossRef]
- Zhang, L.; Li, R. Impacts of Green Certification Programs on Energy Consumption and GHG Emissions in Buildings: A Spatial Regression Approach. Energy Build. 2022, 256, 111677. [Google Scholar] [CrossRef]
- Sołoducho-Pelc, L.; Sulich, A. Natural Environment Protection Strategies and Green Management Style: Literature Review. Sustainability 2022, 14, 10595. [Google Scholar] [CrossRef]
- He, Q.; Hossain, M.U.; Ng, S.T.; Skitmore, M.; Augenbroe, G. A cost-effective building retrofit decision-making model-Example of China’s temperate and mixed climate zones. J. Clean. Prod. 2021, 280, 124370. [Google Scholar] [CrossRef]
- Wilson, C.; Pettifor, H.; Chryssochoidis, G. Quantitative modelling of why and how homeowners decide to renovate energy efficiently. Appl. Energy 2018, 212, 1333–1344. [Google Scholar] [CrossRef]
- Jafari, A.; Valentin, V. An optimization framework for building energy retrofits decision-making. Build. Environ. 2017, 115, 118–129. [Google Scholar] [CrossRef]
- Chantrelle, F.P.; Lahmidi, H.; Keilholz, W.; El Mankibi, M.; Michel, P. Development of a multicriteria tool for optimizing the renovation of buildings. Appl. Energy 2011, 88, 1386–1394. [Google Scholar] [CrossRef]
- Jafari, A.; Valentin, V. Sustainable impact of building energy retrofit measures. J. Green Build. 2017, 12, 69–84. [Google Scholar] [CrossRef]
- Pardo-Bosch, F.; Cervera, C.; Ysa, T. Key aspects of building retrofitting: Strategizing sustainable cities. J. Environ. Manag. 2019, 248, 109247. [Google Scholar] [CrossRef]
- Ma, Z.; Cooper, P.; Daly, D.; Ledo, L. Existing building retrofits: Methodology and state-of-the-art. Energy Build. 2012, 55, 889–902. [Google Scholar] [CrossRef]
- Fan, Y.; Xia, X. Building retrofit optimization models using notch test data considering energy performance certificate compliance. Appl. Energy 2018, 228, 2140–2152. [Google Scholar] [CrossRef]
- Fan, Y.; Xia, X. Energy-efficiency building retrofit planning for green building compliance. Build. Environ. 2018, 136, 312–321. [Google Scholar] [CrossRef]
- Foucquier, A.; Robert, S.; Suard, F.; Stephan, L.; Jay, A. State of the art in building modelling and energy performances prediction: A review. Renew. Sustain. Energy Rev. 2013, 23, 272–288. [Google Scholar] [CrossRef]
- Asadi, E.; da Silva, M.G.; Henggeler Antunes, C.; Dias, L. Multi-objective optimization for building retrofit strategies: A model and an application. Energy Build. 2012, 44, 81–87. [Google Scholar] [CrossRef]
- Castro, S.S.; Lopez, M.J.S.; Menendez, D.G.; Marigota, E.B. Decision matrix methodology for retrofitting techniques of existing buildings. J. Clean. Prod. 2019, 240, 118153. [Google Scholar] [CrossRef]
- Andrade-Cabrera, C.; O’Dwyer, C.; Finn, D.P. Integrated cost-optimal residential envelope retrofit decision-making and power systems optimisation using Ensemble models. Energy Build. 2020, 214, 109833. [Google Scholar] [CrossRef]
- Wu, R.; Mavromatidis, G.; Orehounig, K.; Carmeliet, J. Multi-objective optimisation of energy systems and building envelope retrofit in a residential community. Appl. Energy 2017, 190, 634–649. [Google Scholar] [CrossRef]
- Schütz, T.; Schiffer, L.; Harb, H.; Fuchs, M.; Müller, D. Optimal design of energy conversion units and envelopes for residential building retrofits using a comprehensive MILP model. Appl. Energy 2017, 185, 1–15. [Google Scholar] [CrossRef]
- Costa, A.; Keane, M.M.; Torrens, J.I.; Corry, E. Building operation and energy performance: Monitoring, analysis and optimization toolkit. Appl. Energy 2013, 101, 310–316. [Google Scholar] [CrossRef]
- Kheiri, F. A review on optimization methods applied in energy-efficient building geometry and envelope design. Renew. Sustain. Energy Rev. 2018, 92, 897–920. [Google Scholar] [CrossRef]
- Waibela, C.; Evins, R.; Carmeliet, J. Co-simulation and optimization of building geometry and multi-energy systems: Interdependencies in energy supply, energy demand and solar potentials. Appl. Energy 2019, 242, 1661–1682. [Google Scholar] [CrossRef]
- Barber, K.A.; Krarti, M. A review of optimization based tools for design and control of building energy systems. Renew. Sustain. Energy Rev. 2022, 160, 112359. [Google Scholar] [CrossRef]
- Nguyen, A.-T.; Reiter, S.; Rigo, P. A review on simulation-based optimization methods applied to building performance analysis. Appl. Energy 2014, 113, 1043–1058. [Google Scholar] [CrossRef]
- Evins, R. A review of computational optimization methods applied to sustainable building design. Renew. Sustain. Energy Rev. 2022, 160, 112359. [Google Scholar]
- Shi, X.; Tian, Z.; Chen, W.; Si, B.; Jin, X. A review on building energy efficient design optimization from the perspective of architects. Renew. Sustain. Energy Rev. 2016, 65, 872–884. [Google Scholar] [CrossRef]
- Balali, A.; Yunusa-Kaltungo, A.; Edwards, R. A systematic review of passive energy consumption optimization strategy selection for building through multiple criteria decision-making techniques. Renew. Sustain. Energy Rev. 2023, 171, 113013. [Google Scholar] [CrossRef]
- Machairas, V.; Tsangrassoulis, A.; Axarli, K. Algorithms for optimization of building design: A review. Renew. Sustain. Energy Rev. 2014, 31, 101–112. [Google Scholar] [CrossRef]
- Kistelegdi, I.; Horvath, K.R.; Storcz, T.; Ercsey, Z. Building geometry as a variable in energy, comfort, and environmnetal design optimization-A review from the perspective of architects. Buildings 2022, 12, 69. [Google Scholar] [CrossRef]
- Hashempour, N.; Taherkhani, R.; Mahdikhani, M. Energy performance optimization of existing buildings: A literature review. Sustain. Cities Soc. 2020, 54, 101967. [Google Scholar] [CrossRef]
- Tian, Z.; Zhang, X.; Jin, X.; Zhou, X.; Si, B.; Shi, X. Towards adoption of building energy simulation and optimization for passive building design: A survey and a review. Energy Build. 2018, 158, 1306–1316. [Google Scholar] [CrossRef]
- Abbas, S.; Saleem, O.; Rizvi, M.A.; Kazmi, S.M.S.; Munir, M.J.; Ali, S. Investigating the Energy-Efficient Structures Using Building Energy Performance Simulations: A Case Study. Appl. Sci. 2022, 12, 9386. [Google Scholar] [CrossRef]
- Rong, A.; Su, Y. Polygeneration systems in buildings: A survey on optimization approaches. Energy Build. 2017, 151, 439–454. [Google Scholar] [CrossRef]
- Gassar, A.A.A.; Koo, C.; Kim, T.W.; Cha, S.H. Performance optimization studies on heating, cooling and lighting energy systems of buildings during the design stage: A review. Sustainability 2021, 13, 9815. [Google Scholar] [CrossRef]
- Azevedo, L.; Gomes, R.; Silva, C. Influence of model calibration and optimization techniques on the evaluation of thermal comfort and retrofit measures of a Lisbon household using building energy simulation. Adv. Build. Energy Res. 2021, 15, 630–661. [Google Scholar] [CrossRef]
- Bale, C.S.S.; Varga, L.; Foxon, T.J. Energy and complexity: New ways forward. Appl. Energy 2015, 138, 150–159. [Google Scholar] [CrossRef]
- Manson, S.M. Simplifying complexity: A review of complexity theory. Geoforum 2001, 32, 405–414. [Google Scholar] [CrossRef]
- Menassa, C.C. Evaluating sustainable retrofits in existing buildings under uncertainty. Energy Build. 2011, 43, 3576–3583. [Google Scholar] [CrossRef]
- Lopion, P.; Markewitz, P.; Robinius, M.; Stolten, D. A review of current challenges and trends in energy systems modeling. Renew. Sustain. Energy Rev. 2018, 96, 156–166. [Google Scholar] [CrossRef]
- Priesmann, J.; Nolting, L.; Praktiknjo, A. Are complex energy system models more accurate? An intra-model comparison of power system optimization models. Appl. Energy 2019, 255, 113783. [Google Scholar] [CrossRef]
- Pyzdek, T.; Keller, P. The Six Sigma Handbook; McGraw-Hill: New York, NY, USA, 2018. [Google Scholar]
- George, M.; Rowlands, D.; Price, M.; Maxey, J. The Lean Six Sigma Pocket Toolbook; McGraw-Hill: New York, NY, USA, 2005. [Google Scholar]
- Hussain, K.; He, Z.; Ahmad, N.; Iqbal, M.; Nazneen, S. Mapping green, lean, Six Sigma enablers through the lens of a construction sector: An emerging economy’s perspective. J. Environ. Plan. Manag. 2023, 66, 779–812. [Google Scholar] [CrossRef]
- Hussain, K.; He, Z.; Ahmad, N.; Iqbal, M.; Saeed, M.Z. Establishing a Green, Lean and Six Sigma implementation model for sustainable construction industry: An analysis of driving forces through ISM-MICMAC approach. Environ. Sci. Pol. Res. 2023, 30, 30462–30492. [Google Scholar] [CrossRef]
- Womack, J.P.; Jones, D.T. Lean Thinking: Banish Waste and Create Wealth in Your Corporation, 2nd ed.; Revised and Updated; Free Press: New York, NY, USA, 2003. [Google Scholar]
- Dhingra, R.; Kress, R.; Upreti, G. Does lean mean green? J. Clean. Prod. 2014, 85, 1–7. [Google Scholar] [CrossRef]
- Johansson, G.; Sundin, E. Lean and green product development: Two sides of the same coin? J. Clean. Prod. 2014, 85, 104–121. [Google Scholar] [CrossRef]
- Garza-Reyes, J.A. Lean and green—A systematic review of the state of the art literature. J. Clean. Prod. 2015, 102, 18–29. [Google Scholar] [CrossRef]
- Fercoq, A.; Lamouri, S.; Carbone, V. Lean/Green integration focused on waste reduction techniques. J. Clean. Prod. 2016, 137, 567–578. [Google Scholar] [CrossRef]
- Rathi, R.; Kaswan, M.S.; Garza-Reyes, J.A.; Antony, J.; Cross, J. Green Lean Six Sigma for improving manufacturing sustainability: Framework development and validation. J. Clean. Prod. 2022, 345, 131130. [Google Scholar] [CrossRef]
- Jum’a, L.; Zimon, D.; Ikram, M.; Madzik, P. Towards a sustainability paradigm; the nexus between lean green practices, sustainability-oriented innovation and Triple Bottom Line. Int. J. Prod. Econ. 2022, 245, 108393. [Google Scholar] [CrossRef]
- Mishra, M.N. Identify critical success factors to implement integrated green and Lean Six Sigma. Int. J. Lean Six Sigma 2022, 13, 765–777. [Google Scholar] [CrossRef]
- Kalemkerian, F.; Santos, J.; Tanco, M.; Garza-Reyes, J.A.; Viles, E. Analysing the alignment between the Green Lean and Circular strategies: Towards a Circular Lean approach. J. Manuf. Technol. Manag. 2022, 33, 1059–1079. [Google Scholar] [CrossRef]
- Allouhi, A.; El Fouih, Y.; Kouskou, T.; Jamil, A.; Zeraouli, Y.; Mourad, Y. Energy consumption and efficiency in buildings: Current status and future trends. J. Clean. Prod. 2015, 109, 118–130. [Google Scholar] [CrossRef]
- Gabbar, H.A. Energy Conservation in Residential, Commercial, and Industrial Facilities, 1st ed.; Wiley-IEEE Press: Piscataway, NJ, USA, 2018. [Google Scholar]
- Harvey, L.D.D. Reducing energy use in the building sector: Measures, costs, and examples. Energy Effic. 2009, 2, 139–163. [Google Scholar] [CrossRef]
- Chen, X.; Yang, H. Integrated energy performance optimization of a passively designed high-rise residential building in different climatic zones of China. Appl. Energy 2018, 215, 145–158. [Google Scholar] [CrossRef]
- Zhang, Y.; He, C.-Q.; Tang, B.-J.; Wei, Y.-M. China’s energy consumption in the building sector: A life cycle approach. Energy Build. 2015, 94, 240–251. [Google Scholar] [CrossRef]
- Ascione, F.; Bianco, N.; Mauro, G.M.; Vanoli, G.P. A new comprehensive framework for the multi-objective optimization of building energy design: Harlequin. Appl. Energy 2019, 241, 331–361. [Google Scholar] [CrossRef]
- Sorrell, S. Reducing energy demand: A review of issues, challenges and approaches. Renew. Sustain. Energy Rev. 2015, 47, 74–82. [Google Scholar] [CrossRef]
- Yao, J. Energy optimization of building design for different housing units in apartment buildings. Appl. Energy 2012, 94, 330–337. [Google Scholar] [CrossRef]
- Merkel, E.; McKenna, R.; Fehrenbach, D.; Fichtner, W. A model-based assessment of climate and energy targets for the German residential heat system. J. Clean. Prod. 2017, 142, 3151–3173. [Google Scholar] [CrossRef]
- Benndorf, G.A.; Wystrcil, D.; Rehault, N. Energy performance optimization in buildings: A review on semantic interoperability, fault detection, and predictive control. Appl. Phys. Rev. 2018, 5, 041501. [Google Scholar] [CrossRef]
- Harish, V.S.K.V.; Kumar, A. Reduced order modeling and parameter identification of a building energy system model through an optimization routine. Appl. Energy 2016, 162, 1010–1023. [Google Scholar] [CrossRef]
- Xia, X.; Zhang, J. Mathematical description for the measurement and verification of energy efficiency improvement. Appl. Energy 2013, 111, 247–256. [Google Scholar] [CrossRef]
- Dascalaki, E.; Droutsa, K.G.; Balaras, C.A.; Kontoyiannidis, S. Building typologies as a tool for assessing the energy performance of residential buildings—A case study for the Hellenic building stock. Energy Build. 2011, 43, 3400–3409. [Google Scholar] [CrossRef]
- Dascalaki, E.; Kontoyiannidis, S.; Balaras, C.A.; Droutsa, K.G. Energy certification of Hellenic buildings: First findings. Energy Build. 2013, 65, 429–437. [Google Scholar] [CrossRef]
- Technical Chamber of Greece TEE KENAK 1.31.1.19; Software Inspection & Certification Of Energy Buildings, Study of Energy Efficiency Boiler Inspection/Heating Installations and Facilities Air Conditioning-Manual. Technical Chamber of Greece: Athens, Greece, 2018.
- Technical Chamber of Greece TOTEE 20701-1/2017; Detailed National Specifications of Parameters for Calculating the Energy Efficiency of Buildings and the Issue of the Energy Performance Certificate. Technical Chamber of Greece: Athens, Greece, 2017.
- Fisher, R.A. The Design of Experiments; Macmillan: New York, NY, USA, 1971. [Google Scholar]
- Fisher, R.A. Statistical Methods, Experimental Design, and Scientific Inference; Oxford University Press: Oxford, UK, 1990. [Google Scholar]
- Tanco, M.; Viles, E.; Ilzarbe, L.; Alvarez, M.J. Implementation of Design of Experiments projects in industry. Qual. Reliab. Eng. Int. 2009, 25, 478–505. [Google Scholar] [CrossRef]
- Ilzarbe, L.; Alvarez, M.J.; Viles, E.; Tanco, M. Practical applications of design of experiments in the field of engineering: A bibliographical review. Qual. Reliab. Eng. Int. 2008, 24, 417–428. [Google Scholar] [CrossRef]
- Satterthwaite, F. Random balance experimentation. Technometrics 1959, 1, 111–137. [Google Scholar] [CrossRef]
- Booth, K.H.V.; Cox, D.R. Some Systematic Supersaturated Designs. Technometrics 1962, 4, 489–495. [Google Scholar] [CrossRef]
- Williams, K.R. Designed Experiments. Rubber Age 1968, 100, 67–71. [Google Scholar]
- Lin, D.K.J. A New Class of Supersaturated Designs. Technometrics 1993, 35, 28–31. [Google Scholar] [CrossRef]
- Allen, T.T.; Bernshteyn, M. Supersaturated Designs That Maximize the Probability of Identifying Active Factors. Technometrics 2003, 45, 90–97. [Google Scholar] [CrossRef]
- Weese, M.L.; Smucker, B.J.; Edwards, D.J. Searching for powerful supersaturated designs. J. Qual. Technol. 2015, 47, 66–84. [Google Scholar] [CrossRef]
- Rousali, C.; Besseris, G. Lean Screening for Greener Energy Consumption in Retrofitting a Residential Apartment Unit. Appl. Sci. 2022, 12, 6631. [Google Scholar] [CrossRef]
- Zarkadas, S. Quality Optimization of Electromechanical Systems and Building Shell Insulation. Master’s Thesis, Advanced and Industrial Manufacturing Systems, Kingston University, London, UK, 2022. [Google Scholar]
- Plackett, R.L.; Burman, J.P. The design of optimum multifactorial experiments. Biometrika 1946, 33, 303–325. [Google Scholar] [CrossRef]
- Draper, N.; Smith, H. Applied Regression Analysis, 2nd ed.; John Wiley & Sons, Inc.: New York, NY, USA, 1981. [Google Scholar]
- Schwarz, G.E. Estimating the dimension of a model. Ann. Stat. 1978, 6, 461–464. [Google Scholar] [CrossRef]
- Mallows, C.L. Some comment on Cp. Technometrics 1973, 8, 661–675. [Google Scholar]
- Hair, J.F.; Sarstedt, M.; Hopkins, L.; Kuppelwieser, V.G. Partial least squares structural equation modeling (PLS_SEM). Eur. Bus. Rev. 2014, 26, 106–121. [Google Scholar] [CrossRef]
- Dijkstra, T.K.; Henseler, J. Consistent partial least squares path modeling. MIS Quart. 2015, 39, 297–316. [Google Scholar] [CrossRef]
- Durbin, J.; Watson, G.S. Testing for serial correlation in least squares regression. Biometrika 1950, 37, 409–428. [Google Scholar] [PubMed]
- R Core Team. R: A Language and Environment for Statistical Computing, Version 4.2.2.; R Foundation for Statistical Computing: Vienna, Austria, 2022; Available online: https://www.R-project.org/ (accessed on 31 October 2022).
- Rousseuw, P.J. Silhouettes: A graphical aid to the interpretation and validation of cluster analysis. Comp. Appl. Math. 1987, 20, 53–65. [Google Scholar] [CrossRef]
- Spearman, C. The proof and measurement of association between two things. Am. J. Psychol. 1904, 15, 72–101. [Google Scholar]
- Tibshirani, R.; Walther, G.; Hastie, T. Estimating the number of clusters in a data set via the gap statistic. J. R. Stat. Soc. Ser. B 2001, 63, 411–423. [Google Scholar] [CrossRef]
- Mann, H.B.; Whitney, D.R. On a test of whether one of two random variables is stochastically larger than the other. Ann. Math. Stat. 1947, 18, 50–60. [Google Scholar] [CrossRef]
- Shannon, C.E.; Weaver, W. The Mathematical Theory of Communication; The University of Illinois Press: Urbana, IL, USA, 1949. [Google Scholar]
- Freedman, D.; Diaconis, P. On the histogram as a density estimator L2 theory. Prob. Theory Rel. Fields 1981, 57, 453–476. [Google Scholar]










| Room No. | Floor Surface Area (m2) | Windows Surface Area (m2) | Ventilation Surface Area (m2) |
|---|---|---|---|
| 1,2 | 72.6 | 7.6 | 5.08 |
| 3 | 20.2 | 2.99 | 1.42 |
| 4 | 18 | 2.99 | 1.26 |
| 5 | 18 | 2.99 | 1.26 |
| 6 | 24.3 | 2.99 | 1.7 |
| Structural Elements | Side A Surface Area (m2) | Side B Surface Area (m2) | Side C Surface Area (m2) | Side D Surface Area (m2) |
|---|---|---|---|---|
| Columns | 16.3 | 21.1 | 12.3 | 16.2 |
| Windows | 11.5 | 7.6 | 2.2 | 0 |
| Brick wall | 19 | 17.2 | 22.7 | 21 |
| Shell Element | Element Coding | Orientation (o) | Surface F (m2) | k (kcal/m2) |
|---|---|---|---|---|
| Walls | W1 | 346 | 35.3 | 0.61 |
| W2 | 166 | 38.3 | 0.61 | |
| W3 | 76 | 35 | 0.58 | |
| W4 | 256 | 37.2 | 0.59 | |
| Windows | F1 | 346 | 11.5 | 2.6 |
| F2 | 166 | 7.6 | 2.6 | |
| F3 | 76 | 2.2 | 3 | |
| F4 | 256 | |||
| S | 167.1 |
| Surface Area (m2) | 174.9 |
| Volume (m3) | 570.25 |
| Concrete Height Level (m) | 3.25 |
| Final Height Level (m) | 3.3 |
| System | Source | Distribution Network of Thermal Medium | Season | Power (kW) |
|---|---|---|---|---|
| Heating | Natural Gas | Yes | Winter | 25 |
| Cooling | Electricity | No | Summer | 9 |
| Hot Water | Solar/Electricity | No | Year-round | 5 |
| Panel Angle (o) | Panel Surface Area (m2) | Shade Coefficient | Orientation (o) |
|---|---|---|---|
| 45 | 4 | 0.8 | 180 |
| Coded | Factors | Natural Gas Boiler(−) | Petroleum Boiler(−) | Natural Gas Boiler(+) | Petroleum Boiler(+) |
|---|---|---|---|---|---|
| F1 | Automation for hot water | no | yes | ||
| F2 | Category of automatic control | A | D | ||
| F3 | Number of ceiling fans | 0 | 5 | ||
| F4 | Energy source for heating systems | gas | petroleum | ||
| F5 | Efficiency of power generation of heating systems | 0.977 | 0.9 | 0.955 | 0.84 |
| F6 | Passage of distribution network of heating systems | externally | internally | ||
| F7 | Efficiency of terminal units of heating systems | 0.89 | 0.93 | ||
| F8 | Type of cooling systems | air cooled | water cooled | ||
| F9 | Power of cooling systems (KW) | 6 | 9 | ||
| F10 | Efficiency of power generation of cooling systems (EER) | 2.5 | 5.3 | ||
| F11 | Efficiency of terminal units of cooling systems | 0.9 | 0.96 | ||
| F12 | Recirculation of distribution network (yes or no) | yes | no | ||
| F13 | Efficiency of domestic hot water storage system | 1 | 0.98 | 0.98 | 0.93 |
| F14 | Type of solar panels | Simple | Vacum | ||
| F15 | Surface area of solar panels | 2 | 4 | ||
| F16 | Utilization rate of solar radiation for domestic hot water | 0.344 | 0.38 | ||
| F17 | Thermal insulation of walls | yes | no | ||
| F18 | Installation of awnings | yes | no | ||
| F19 | Presence of shutters | yes | no | ||
| F20 | Thermal insulation of roof | yes | no | ||
| F21 | Type of window’s frame | wooden | metallic | ||
| F22 | Air gap between glasses | 6 mm | 12 mm | ||
| F23 | Percentage of window frame | 30% | 20% | ||
| F24 | Type of exit door | Thermal Insulation | No thermal insulation |
| Run # | 1 | 2 | 3 | 4 | 5 | 6 | 7 | 8 | 9 | 10 | 11 | 12 | 13 | 14 |
|---|---|---|---|---|---|---|---|---|---|---|---|---|---|---|
| Energy Consumption Response | 252.1 | 115.1 | 257.1 | 292 | 299.8 | 268.6 | 227.3 | 144.9 | 157.6 | 247.8 | 230.1 | 105.9 | 321.7 | 194 |
| Class | E | B | E | E | Z | E | D | C | C | E | D | B | Z | D |
| Energy Demand (kWh/m2) | Jan | Feb | Mar | Apr | May | Jun | Jul | Aug | Sep | Oct | Nov | Dec | Total |
|---|---|---|---|---|---|---|---|---|---|---|---|---|---|
| Heating | 44.1 | 35.3 | 26.3 | 4.6 | 0 | 0 | 0 | 0 | 0 | 0 | 17.8 | 37.2 | 165.3 |
| Cooling | 0 | 0 | 0 | 0 | 1 | 11.7 | 24.3 | 20.4 | 1.5 | 0 | 0 | 0 | 58.9 |
| Hot Water | 2.1 | 1.9 | 2.1 | 1.8 | 1.6 | 1.3 | 1.2 | 1.2 | 1.3 | 1.6 | 1.8 | 2 | 19.9 |
| Energy Consumption (kWh/m2) | Jan | Feb | Mar | Apr | May | Jun | Jul | Aug | Sep | Oct | Nov | Dec | Total |
| Heating | 55.6 | 44.5 | 33.1 | 5.8 | 0 | 0 | 0 | 0 | 0 | 0 | 22.5 | 46.8 | 208.3 |
| Cooling | 0 | 0 | 0 | 0 | 0.1 | 1.3 | 2.6 | 2.2 | 0.2 | 0 | 0 | 0 | 6.4 |
| Hot Water | 1.7 | 1.5 | 1.5 | 1.2 | 1 | 0.7 | 0.5 | 0.5 | 0.7 | 1 | 1.3 | 1.6 | 13.2 |
| Hot Water (from solar) | 0.4 | 0.4 | 0.5 | 0.5 | 0.6 | 0.6 | 0.6 | 0.6 | 0.6 | 0.5 | 0.4 | 0.3 | 6 |
| Total | 57.7 | 46.4 | 35.1 | 7.5 | 1.7 | 2.6 | 3.7 | 3.3 | 1.5 | 1.5 | 24.2 | 48.7 | 233.9 |
| Factor/ Setting | F1 | F2 | F3 | F4 | F5 | F6 | F7 | F8 | F9 | F10 | F11 | F12 |
|---|---|---|---|---|---|---|---|---|---|---|---|---|
| 1 | 217.47 | 195.56 | 197.95 | 171.07 | 200.58 | 228.28 | 235.03 | 228.13 | 217.24 | 223.81 | 230.61 | 229.03 |
| 2 | 227.47 | 249.39 | 246.9 | 273.87 | 244.36 | 216.66 | 209.91 | 216.81 | 227.7 | 221.13 | 214.32 | 215.91 |
| Range | 10 | 53.83 | 48.95 | 102.8 | 43.78 | 11.62 | 25.12 | 11.32 | 10.46 | 2.68 | 16.29 | 13.12 |
| Rank | 20 | 3 | 5 | 1 | 6 | 15 | 9 | 17 | 19 | 22 | 11 | 13 |
| Factor/ Setting | F13 | F14 | F15 | F16 | F17 | F18 | F19 | F20 | F21 | F22 | F23 | F24 |
| 1 | 223.53 | 224.85 | 210.86 | 223.52 | 200.61 | 214.38 | 228.29 | 179.87 | 240.39 | 246.9 | 228.21 | 227.7 |
| 2 | 221.41 | 220.1 | 234.1 | 221.41 | 244.3 | 230.43 | 216.66 | 265.07 | 204.56 | 198 | 216.73 | 217.23 |
| Range | 2.12 | 4.75 | 23.24 | 2.11 | 43.69 | 16.05 | 11.63 | 85.2 | 35.83 | 48.9 | 11.48 | 10.47 |
| Rank | 23 | 21 | 10 | 24 | 7 | 12 | 14 | 2 | 8 | 4 | 16 | 18 |
| Model e | R | R2 | Adjusted R2 | Std. Error of the Estimate | Change Statistics | Durbin-Watson | ||||
|---|---|---|---|---|---|---|---|---|---|---|
| R2 Change | F Change | df1 | df2 | Sig. F Change | ||||||
| 1 | 0.775 a | 0.600 | 0.567 | 45.30 | 0.600 | 18.024 | 1 | 12 | 0.001 | |
| 2 | 0.943 b | 0.889 | 0.868 | 24.97 | 0.288 | 28.485 | 1 | 11 | <0.001 | |
| 3 | 0.966 c | 0.933 | 0.912 | 20.38 | 0.044 | 6.516 | 1 | 10 | 0.029 | |
| 4 | 0.987 d | 0.974 | 0.962 | 13.41 | 0.041 | 14.100 | 1 | 9 | 0.005 | 3.167 |
| Model a | Unstandardized Coefficients | Standardized Coefficients | t | Sig. | 95.0% Confidence Interval for B | Collinearity Statistics | ||||
|---|---|---|---|---|---|---|---|---|---|---|
| B | Std. Error | Beta | Lower Bound | Upper Bound | Tolerance | VIF | ||||
| 1 | (Constant) | 222.471 | 12.107 | 18.375 | <0.001 | 196.092 | 248.851 | |||
| F4 | 51.400 | 12.107 | 0.775 | 4.245 | 0.001 | 25.021 | 77.779 | 1.000 | 1.000 | |
| 2 | (Constant) | 222.471 | 6.674 | 33.332 | <0.001 | 207.781 | 237.162 | |||
| F4 | 46.258 | 6.744 | 0.697 | 6.860 | <0.001 | 31.416 | 61.101 | 0.980 | 1.021 | |
| F20 | 35.992 | 6.744 | 0.543 | 5.337 | <0.001 | 21.149 | 50.834 | 0.980 | 1.021 | |
| 3 | (Constant) | 222.471 | 5.447 | 40.842 | <0.001 | 210.335 | 234.608 | |||
| F4 | 39.014 | 6.192 | 0.588 | 6.300 | <0.001 | 25.217 | 52.811 | 0.774 | 1.292 | |
| F20 | 39.285 | 5.653 | 0.592 | 6.950 | <0.001 | 26.690 | 51.880 | 0.929 | 1.077 | |
| F2 | 15.806 | 6.192 | 0.238 | 2.553 | 0.029 | 2.009 | 29.603 | 0.774 | 1.292 | |
| 4 | (Constant) | 222.471 | 3.584 | 62.074 | <0.001 | 214.364 | 230.579 | |||
| F4 | 35.781 | 4.164 | 0.539 | 8.593 | <0.001 | 26.361 | 45.201 | 0.741 | 1.350 | |
| F20 | 38.207 | 3.730 | 0.576 | 10.242 | <0.001 | 29.769 | 46.646 | 0.923 | 1.083 | |
| F2 | 19.039 | 4.164 | 0.287 | 4.572 | 0.001 | 9.619 | 28.459 | 0.741 | 1.350 | |
| F17 | 14.007 | 3.730 | 0.211 | 3.755 | 0.005 | 5.569 | 22.446 | 0.923 | 1.083 | |
| Key Settings | |||||||||||
|---|---|---|---|---|---|---|---|---|---|---|---|
| Factors | Natural Gas Boiler(−) | Petroleum Boiler(−) | Natural Gas Boiler(+) | Petroleum Boiler(+) | |||||||
| 1 | Automation for hot water | no | yes | ||||||||
| 2 | Category of automatic control | A | D | ||||||||
| 3 | Number of ceiling fans | 0 | 5 | ||||||||
| 4 | Energy source for heating systems | gas | petroleum | ||||||||
| 5 | Efficiency of power generation of heating systems | 0.977 | 0.9 | 0.955 | 0.84 | ||||||
| 6 | Passage of distribution network of heating systems | externally | internally | ||||||||
| 7 | Efficiency of terminal units of heating systems | 0.89 | 0.93 | ||||||||
| 8 | Type of cooling systems | Air-cooled | Water-cooled | ||||||||
| 9 | Power of cooling systems (KW) | 6 | 9 | ||||||||
| 10 | Efficiency of power generation of cooling systems (EER) | 2.5 | 5.3 | ||||||||
| 11 | Efficiency of terminal units of cooling systems | 0.9 | 0.96 | ||||||||
| 12 | Recirculation of distribution network (yes or no) | yes | no | ||||||||
| 13 | Efficiency of domestic hot water storage system | 1 | 0.98 | 0.98 | 0.93 | ||||||
| 14 | Type of solar panels | Simple | Vacuum | ||||||||
| 15 | Surface area of solar panels | 2 | 4 | ||||||||
| 16 | Utilization rate of solar radiation for domestic hot water | 0.344 | 0.38 | ||||||||
| 17 | Thermal insulation of walls | yes | no | ||||||||
| 18 | Installation of awnings | yes | no | ||||||||
| 19 | Presence of shutters | yes | no | ||||||||
| 20 | Thermal insulation of roof | yes | no | ||||||||
| 21 | Type of window’s frame | wooden | metallic | ||||||||
| 22 | Air gap between glasses | 6 mm | 12 mm | ||||||||
| 23 | Percentage of window frame | 30% | 20% | ||||||||
| 24 | Type of exit door | Thermal Insulation | No insulation | ||||||||
| Full Settings | |||||||||||
| 1 | 2 | 3 | 4 | 5 | 6 | 7 | 8 | 9 | 10 | 11 | 12 |
| - | - | - | - | - | + | + | + | - | + | + | + |
| 13 | 14 | 15 | 16 | 17 | 18 | 19 | 20 | 21 | 22 | 23 | 24 |
| + | + | - | + | - | - | + | - | + | + | + | + |
| X Variance | Cumulative X Variance | Y Variance | Cumulative Y Variance (R2) | Adjusted R2 | |
|---|---|---|---|---|---|
| 1 | 0.081 | 0.081 | 0.984 | 0.984 | 0.983 |
| 2 | 0.063 | 0.144 | 0.014 | 0.998 | 0.998 |
| 3 | 0.083 | 0.227 | 0.001 | 1.000 | 0.999 |
| 4 | 0.074 | 0.301 | 0.000 | 1.000 | 1.000 |
| 5 | 0.033 | 0.333 | 4.570 × 10−5 | 1.000 | 1.000 |
| Controlling Factors | Latent Factors * | |||||
|---|---|---|---|---|---|---|
| PLS Coefficients | 1 | 2 | 3 | 4 | 5 | |
| F1 | 3.208 | 0.268 | 0.270 | 0.270 | 0.271 | 0.271 |
| F2 | 12.227 | 1.443 | 1.436 | 1.436 | 1.436 | 1.436 |
| F3 | 13.633 | 1.315 | 1.308 | 1.307 | 1.307 | 1.307 |
| F4 | 26.549 | 2.756 | 2.738 | 2.736 | 2.736 | 2.735 |
| F5 | 12.178 | 1.174 | 1.170 | 1.169 | 1.169 | 1.169 |
| F6 | −1.606 | 0.312 | 0.313 | 0.317 | 0.318 | 0.318 |
| F7 | −7.509 | 0.673 | 0.669 | 0.669 | 0.670 | 0.670 |
| F8 | −4.134 | 0.303 | 0.324 | 0.324 | 0.324 | 0.324 |
| F9 | 0.856 | 0.280 | 0.312 | 0.313 | 0.313 | 0.313 |
| F10 | −1.585 | 0.072 | 0.102 | 0.137 | 0.145 | 0.145 |
| F11 | −6.211 | 0.437 | 0.452 | 0.454 | 0.454 | 0.454 |
| F12 | 0.563 | 0.352 | 0.469 | 0.470 | 0.470 | 0.470 |
| F13 | 0.491 | 0.057 | 0.095 | 0.098 | 0.107 | 0.107 |
| F14 | −3.333 | 0.128 | 0.188 | 0.192 | 0.193 | 0.193 |
| F15 | 4.502 | 0.623 | 0.636 | 0.636 | 0.636 | 0.636 |
| F16 | 0.491 | 0.057 | 0.095 | 0.098 | 0.107 | 0.107 |
| F17 | 10.085 | 1.172 | 1.164 | 1.166 | 1.167 | 1.167 |
| F18 | 3.653 | 0.427 | 0.427 | 0.428 | 0.428 | 0.428 |
| F19 | −2.059 | 0.312 | 0.313 | 0.313 | 0.313 | 0.313 |
| F20 | 25.524 | 2.284 | 2.281 | 2.280 | 2.280 | 2.280 |
| F21 | −7.199 | 0.961 | 0.968 | 0.967 | 0.967 | 0.967 |
| F22 | −13.994 | 1.312 | 1.306 | 1.306 | 1.305 | 1.305 |
| F23 | −3.650 | 0.308 | 0.308 | 0.307 | 0.308 | 0.308 |
| F24 | −1.843 | 0.281 | 0.284 | 0.284 | 0.284 | 0.284 |
| Model a | Sum of Squares | df | Mean Square | F | Sig. | |
|---|---|---|---|---|---|---|
| 1 | Regression | 36,987.440 | 1 | 36,987.440 | 18.024 | 0.001 b |
| Residual | 24,625.969 | 12 | 2052.164 | |||
| Total | 61,613.409 | 13 | ||||
| 2 | Regression | 54,752.927 | 2 | 27,376.463 | 43.895 | <0.001 c |
| Residual | 6860.482 | 11 | 623.680 | |||
| Total | 61,613.409 | 13 | ||||
| 3 | Regression | 57,459.467 | 3 | 19,153.156 | 46.108 | <0.001 d |
| Residual | 41,53.941 | 10 | 415.394 | |||
| Total | 61,613.409 | 13 | ||||
| 4 | Regression | 59,994.975 | 4 | 14,998.744 | 83.407 | <0.001 e |
| Residual | 1618.433 | 9 | 179.826 | |||
| Total | 61,613.409 | 13 | ||||
| Factor | Level | M | I | S | K | Cluster ID |
|---|---|---|---|---|---|---|
| F1 | 1 | 227.3 | 111.0 | 0.11 | −1.06 | 1 |
| 2 | 252.1 | 176.3 | −0.81 | −0.95 | 1 | |
| F2 | 1 | 194.0 | 152.9 | 0.15 | −1.48 | 1 |
| 2 | 252.1 | 61.9 | −0.95 | 2.04 | 2 | |
| F3 | 1 | 227.3 | 141.4 | −0.19 | −1.71 | 1 |
| 2 | 252.1 | 105.8 | −0.67 | −0.04 | 1 | |
| F4 | 1 | 157.6 | 111.6 | 0.35 | −1.38 | 1 |
| 2 | 268.6 | 52.0 | 0.19 | −1.02 | 2 | |
| F5 | 1 | 194.0 | 107.2 | 0.12 | −1.59 | 1 |
| 2 | 257.1 | 72.5 | −1.36 | 2.59 | 2 | |
| F6 | 1 | 230.1 | 63.1 | −0.57 | 1.59 | 2 |
| 2 | 247.8 | 147.1 | −0.36 | −2.03 | 1 | |
| F7 | 1 | 230.1 | 98.0 | −0.48 | −0.26 | 1 |
| 2 | 247.8 | 152.9 | −0.15 | −1.74 | 1 | |
| F8 | 1 | 257.1 | 134.4 | −0.52 | −1.01 | 1 |
| 2 | 230.1 | 107.2 | −0.67 | −0.44 | 1 | |
| F9 | 1 | 227.3 | 99.5 | −0.14 | −1.31 | 1 |
| 2 | 252.1 | 184.1 | −0.72 | −1.12 | 1 | |
| F10 | 1 | 230.1 | 142.2 | −0.11 | −1.03 | 1 |
| 2 | 252.1 | 123.7 | −1.01 | −0.43 | 1 | |
| F11 | 1 | 247.8 | 154.9 | −0.55 | −0.91 | 1 |
| 2 | 230.1 | 111.0 | −0.64 | −0.55 | 1 | |
| F12 | 1 | 252.1 | 147.1 | −0.86 | −0.88 | 1 |
| 2 | 227.3 | 99.5 | −0.17 | −0.04 | 1 | |
| F13 | 1 | 230.1 | 111.0 | 0.24 | −0.76 | 1 |
| 2 | 252.1 | 176.3 | −0.84 | −1.09 | 1 | |
| F14 | 1 | 252.1 | 154.9 | −0.30 | −2.11 | 1 |
| 2 | 230.1 | 63.1 | −1.61 | 2.72 | 2 | |
| F15 | 1 | 227.3 | 107.2 | 0.00 | 0.00 | 1 |
| 2 | 257.1 | 134.4 | −1.07 | −0.32 | 1 | |
| F16 | 1 | 230.1 | 111.0 | 0.24 | −0.76 | 1 |
| 2 | 252.1 | 176.3 | −0.84 | −1.09 | 1 | |
| F17 | 1 | 194.0 | 176.3 | 0.35 | −1.55 | 1 |
| 2 | 252.1 | 41.3 | −1.27 | 2.74 | 2 | |
| F18 | 1 | 247.8 | 112.2 | −0.59 | −0.86 | 1 |
| 2 | 230.1 | 134.4 | −0.51 | −0.70 | 1 | |
| F19 | 1 | 252.1 | 142.2 | −0.33 | −1.20 | 1 |
| 2 | 230.1 | 123.7 | −0.87 | −0.41 | 1 | |
| F20 | 1 | 157.6 | 132.1 | 0.16 | −2.25 | 1 |
| 2 | 268.6 | 72.5 | −0.46 | −0.59 | 2 | |
| F21 | 1 | 252.1 | 98.0 | −0.55 | −0.56 | 1 |
| 2 | 227.3 | 152.9 | 0.04 | −1.69 | 1 | |
| F22 | 1 | 247.8 | 64.7 | −0.36 | 0.88 | 2 |
| 2 | 194.0 | 152.9 | 0.06 | −2.07 | 1 | |
| F23 | 1 | 247.8 | 74.6 | −1.31 | 1.86 | 2 |
| 2 | 230.1 | 154.9 | −0.06 | −1.73 | 1 | |
| F24 | 1 | 257.1 | 147.1 | −0.41 | −1.46 | 1 |
| 2 | 230.1 | 94.5 | −0.82 | 0.30 | 1 |
| Spearman’s ρ | Significance(2-tailed) | 95% Confidence Intervals (2-tailed) a,b | ||
|---|---|---|---|---|
| Lower | Upper | |||
| M–I | −0.054 | 0.716 | −0.341 | 0.242 |
| M–S | −0.579 | <0.001 | −0.745 | −0.346 |
| M–K | 0.280 | 0.054 | −0.013 | 0.529 |
| I–S | 0.190 | 0.195 | −0.108 | 0.457 |
| I–K | −0.723 | <0.001 | −0.838 | −0.546 |
| S–K | −0.627 | <0.001 | −0.777 | −0.410 |
| Number of Clusters | Schwarz’s Bayesian Criterion (BIC) | BIC Change a | Ratio of BIC Changes b | Ratio of Distance Measures c |
|---|---|---|---|---|
| 1 | 162.043 | |||
| 2 | 154.178 | −7.865 | 1.000 | 1.378 |
| 3 | 156.959 | 2.781 | −0.354 | 1.864 |
| 4 | 172.807 | 15.849 | −2.015 | 1.365 |
| 5 | 192.696 | 19.889 | −2.529 | 1.456 |
| 6 | 216.057 | 23.361 | −2.970 | 2.013 |
| 7 | 243.246 | 27.189 | −3.457 | 1.072 |
| 8 | 270.690 | 27.444 | −3.489 | 1.090 |
| 9 | 298.424 | 27.734 | −3.526 | 1.082 |
| 10 | 326.404 | 27.980 | −3.558 | 1.355 |
| 11 | 355.168 | 28.764 | −3.657 | 1.551 |
| 12 | 384.715 | 29.547 | −3.757 | 1.022 |
| 13 | 414.294 | 29.578 | −3.761 | 1.074 |
| 14 | 443.968 | 29.674 | −3.773 | 1.126 |
| 15 | 473.787 | 29.819 | −3.791 | 1.214 |
| HIERARCHICAL | M | I | S | K | |
|---|---|---|---|---|---|
| 1 | N | 39 | 39 | 39 | 39 |
| Mean | 231.782 | 133.336 | −0.3441 | −1.0326 | |
| Std. Error of Mean | 4.0194 | 4.1793 | 0.06563 | 0.10261 | |
| 2 | N | 9 | 9 | 9 | 9 |
| Mean | 250.478 | 62.856 | −0.8556 | 1.4233 | |
| Std. Error of Mean | 4.6410 | 3.5568 | 0.19677 | 0.46687 | |
| Total | N | 48 | 48 | 48 | 48 |
| Mean | 235.288 | 120.121 | −0.4400 | −0.5721 | |
| Std. Error of Mean | 3.5261 | 5.2895 | 0.07009 | 0.18282 | |
Disclaimer/Publisher’s Note: The statements, opinions and data contained in all publications are solely those of the individual author(s) and contributor(s) and not of MDPI and/or the editor(s). MDPI and/or the editor(s) disclaim responsibility for any injury to people or property resulting from any ideas, methods, instructions or products referred to in the content. |
© 2023 by the authors. Licensee MDPI, Basel, Switzerland. This article is an open access article distributed under the terms and conditions of the Creative Commons Attribution (CC BY) license (https://creativecommons.org/licenses/by/4.0/).
Share and Cite
Zarkadas, S.; Besseris, G. Using Lean-and-Green Supersaturated Poly-Factorial Mini Datasets to Profile Energy Consumption Performance for an Apartment Unit. Processes 2023, 11, 1825. https://doi.org/10.3390/pr11061825
Zarkadas S, Besseris G. Using Lean-and-Green Supersaturated Poly-Factorial Mini Datasets to Profile Energy Consumption Performance for an Apartment Unit. Processes. 2023; 11(6):1825. https://doi.org/10.3390/pr11061825
Chicago/Turabian StyleZarkadas, Spyridon, and George Besseris. 2023. "Using Lean-and-Green Supersaturated Poly-Factorial Mini Datasets to Profile Energy Consumption Performance for an Apartment Unit" Processes 11, no. 6: 1825. https://doi.org/10.3390/pr11061825
APA StyleZarkadas, S., & Besseris, G. (2023). Using Lean-and-Green Supersaturated Poly-Factorial Mini Datasets to Profile Energy Consumption Performance for an Apartment Unit. Processes, 11(6), 1825. https://doi.org/10.3390/pr11061825
