Next Article in Journal
Urban Resident Travel Survey Method Based on Cellular Signaling Data
Previous Article in Journal
Evolution Characteristics and Causes—An Analysis of Urban Catering Cluster Spatial Structure
 
 
Font Type:
Arial Georgia Verdana
Font Size:
Aa Aa Aa
Line Spacing:
Column Width:
Background:
Article

The Influence of Street Morphology on Thermal Environment Based on ENVI-met Simulation: A Case Study of Hangzhou Core Area, China

School of Landscape Architecture and Architecture, Zhejiang Agriculture and Forestry University, Hangzhou 311300, China
*
Author to whom correspondence should be addressed.
ISPRS Int. J. Geo-Inf. 2023, 12(8), 303; https://doi.org/10.3390/ijgi12080303
Submission received: 4 May 2023 / Revised: 19 July 2023 / Accepted: 26 July 2023 / Published: 28 July 2023

Abstract

The urban thermal environment has become a challenging issue. Streets, as an essential public space in cities, can be laid out in such a way to effectively alleviate a problematic urban thermal environment. In this study, we calculated the layout characteristics of various types of streets in the study area based on network big data combined with field research. We used ENVI-met thermal environment numerical simulation technology to simulate the thermal environment, with a multiple linear regression model to explore the internal relationship between the street-level thermal environment of each land use type and its layout factors. The results indicate that streets in the study area are primarily oriented north–south and east–west, with distinct layout differences among various street types. Additionally, the daily variation trend of thermal comfort PMV of all street types is similar, though north–south streets show a larger daily variation than east–west streets. Lastly, the optimal thermal environment layout differs for each type of street; the relationship between street form and thermal comfort PMV also varies across different street types. This study provides scientific evidence to better understand the relationship between a street’s layout and its thermal environment, offering a theoretical basis for street layout planning aimed at mitigating the urban thermal environment.

1. Introduction

Construction in cities continues to outwardly expand with the continuous growth in urbanization, leading to a reduction in green spaces, which in turn gives rise to a series of ecological problems. One of the most prominent is the urban heat island effect, which has garnered extensive research attention [1].
As a quintessential social public space, the internal environment of urban streets directly affects physical and mental wellbeing [2]. Moreover, as a UN-Habitat report notes, streets are public spaces in their own right, and important drivers of urban prosperity [3]. The thermal environment of streets determines the thermal environment of the block and even the entire city. Currently, there are two main approaches used to improve the thermal environment of streets. The first involves changing the street’s greenery, including the layout of vegetation and increasing the green space. The second involves adjusting the street’s layout, such as the near-line rate, street height ratio, and other factors [4]. Research has shown that both methods can improve the thermal environment of urban streets to a varying extent. However, given the limited proportion of green space available in urban areas, adjusting the layout of streets has become the key to improving their thermal environment [5].
Adjusting street layouts can influence the thermal environment in two ways. First, it can change the shadow area created by building occlusion, which affects the solar radiation received by the street space [6]. Second, it can influence the street’s wind environment, including modifying the flow direction and speed of hot air moving through the street [7]. Despite increasing scholarly attention centered on urban thermal environments, it remains a highly complex subject that is not yet fully understood. There are both similarities and differences between streets [8], and further study is needed to allow for effective analyses of street-level thermal environments.
In this study, we focused on the thermal environment of streets in a central urban area, with the aim of exploring effective ways to mitigate the urban heat island effect at the street level. Specifically, we investigated the impact of different types of street layouts on the thermal environment and identified optimal layouts for various types of streets in urban areas of developing countries.
This introduction has given a brief overview of the research background and its significance. The remainder of this paper is organized as follows. Section 2 reviews methods utilized to research thermal environments, software commonly used for thermal environment simulation, and the common indices used to evaluate thermal comfort. Section 3 explains our rationale for selecting our study area as well as the region’s climatic and street characteristics, and outlines our research methodology. Section 4 presents our findings, which include an analysis of street forms, the street’s thermal environment, and the internal relationship between the street form and thermal environment. Section 5 proposes targeted street layout optimization strategies for various types of urban streets based on our findings. Section 6 summarizes the internal relationship between street form, street thermal environment, and those two factors as they act jointly on the urban space. It also identifies the limitations of this study and provides suggestions for future research.

2. Literature Review

Early research on the thermal environments of various scales of cities mainly relied on field measurements. At that time, researchers tended to focus on the differences in thermal environments between cities and suburbs [9]. Howard conducted the first field measurement study and discovered the heat island effect, whereby the average temperature in the urban area is 1.1 °C higher than that in the suburbs [10]. Field measurements involve a combination of fixed and mobile meteorological observation points to obtain high-quality meteorological data, which have good time continuity [11]. However, this method is too time-consuming, labor-intensive, and expensive for long-term or large-scale measurements, making it unsuitable for studying thermal environments at medium and macro scales.
Technological advancements have allowed for satellite remote sensing to emerge as a new technical platform for urban thermal environment research [12]. The remote sensing inversion method uses a thermal infrared remote sensing receiver to obtain ground brightness temperature parameters, followed by a surface temperature inversion equation method to calculate the surface temperature of the study area [13]. In 1972, Krishna first used satellite remote sensing technology to study the urban heat island effect [14]. Unlike field measurements, satellite remote sensing technology enables macro observations, particularly for large-scale urban thermal environment research, with good spatial continuity and ready accessibility [15]. However, it is unsuitable for mesoscale (e.g., city blocks) thermal environment research, especially when examining thermal environments that change over time [16].
Numerical simulation methods have emerged as a useful approach to urban thermal environment research in recent years. The thermal environment can be simulated by establishing a simplified numerical model of the study area based on dynamics and thermodynamics [17]. This method is typically applied to researching small and medium-scale urban thermal environments and is widely used in the study of block- and street-level thermal environments [18]. Unlike the above two methods, the numerical simulation method allows for adjustment of the simulation time and spatial scale according to the needs at hand and can output the required thermal environment data through repeated software-based experiments [19]. It can also be used to study single influence factors through an idealized model in investigating the influence of particular aspects of thermal environments [20]. Computational fluid dynamics (CFD) is currently the most widely used model in numerical simulations of thermal environments [21]. CFD software that are commonly used include Fluent, PHOENICS, and ENVI-met [22] (Table 1).
ENVI-met software was developed in 1998 by Professor Michael Bruse’s team in the Department of Geography at the University of Mainz in Germany, based on the principles of CFD and thermodynamics [31]. The accuracy of the software has been confirmed by scholars who compared ENVI-met results with field measurement data. For example, Shareef et al. [32] verified the thermal environment of residential areas in Dubai and found that air temperature and wind speed errors were within ±3%, confirming the accuracy of the software simulations. With continuous updates and improvements in recent years, ENVI-met has become the most widely used numerical simulation software for studying urban thermal environments. The software’s ability to model spatial grids is particularly conducive to accurate thermal environment simulations at block and street scales. Climate parameters can be simulated at any point in the model, allowing for hourly climate change data to be obtained. The minimum spatial resolution can reach 0.5 m [33]. We selected ENVI-met software to support our analysis of the impact of street layouts on the thermal environment.
In the study of urban thermal environments, “thermal comfort” is a commonly used evaluation index that enhances the scientificity of evaluations compared to using a single thermal environment index. Thermal comfort is a combination of multiple thermal environment indicators and human energy balance characteristics [34]. Currently, the main thermal comfort evaluation indicators include predicated mean vote (PMV), physiological equivalent temperature (PET), standard effective temperature (SET), and the Universal Thermal Climate Index (UTCI) [35] (Table 2). Numerous scholars have conducted research on the accuracy and adaptability of these verification models according to different climates and applied them to the study of outdoor thermal environments.
The PMV calculation takes into account thermal environment indices such as solar radiation, wind speed, air temperature, and relative humidity, as well as human clothing thermal resistance, metabolic rate, and others, resulting in a more comprehensive, accurate, and objective evaluation [44]. Guo et al. [45] studied the correlation between the street morphology and thermal environment of 12 street models representing multiple countries. They used the PMV obtained by an ENVI-met simulation to evaluate the impact of street morphology on the thermal environment. They found that the average PMV was positively correlated with the average sky view factor (SVF) at 12:00 and the building density at 21:00. The presence of street openings, building enclosure shape, and street symmetry exerted different effects on local thermal comfort during the day, leading to different PMV distributions.
In this study, we used the PMV model to evaluate the thermal comfort of different simulated street layouts and their corresponding thermal environments. Based on the thermal comfort evaluation results, we selected the optimal layout forms of various streets, then applied multiple linear regression analysis to explore the relationship between various street layout forms and thermal comfort. We used these findings to develop corresponding planning strategies.

3. Materials and Methods

3.1. Study Area

The geographical coordinates of Hangzhou, which is located on the southeast coast of China, are 118°21′–120°30′ E and 29°11′–30°33′ N. Hangzhou falls in the southern wing of the Yangtze River Delta and the northern part of Zhejiang Province, of which it is the capital city. It is an important transportation hub in China, a regional tourism and leisure center in the Yangtze River Delta, and a financial service center [46].
Hangzhou is located across the north subtropical and central subtropical region and has a subtropical monsoon climate [47]. In 2016, Hangzhou ranked third in China’s top ten hottest cities [48]. The annual average temperature in recent years is about 18 °C, the annual maximum temperature can reach 42 °C, and the average relative humidity is about 70%. Annual precipitation in Hangzhou is between 1400–1500 mm and the annual sunshine hours can reach 1800 h [49].
As the economic, cultural, scientific, and educational center of Zhejiang Province, Hangzhou has high-density urban development and construction in its central urban area. Thus, the city has a thermal environment typical of major cities in developing countries. Hangzhou is also a famous tourist city. Its West Lake Scenic Area is bordered by the central area of the city, which provides diverse street types that readily apply for urban thermal environment research. We focused on the core block bordering the central urban area and the West Lake Scenic Area as our research target, including the East Ring Road and Jiangcheng Road in the east, the West Ring Road and Nanshan Road in the west, the North Ring Road in the north, and the area within Wansongling Road in the south, altogether covering an area of 10.87 km2 (Figure 1). This area has high development density, numerous people-flow activities, and poor ventilation performance. A high-density urban center and scenic spot overlap there, resulting in a variety of land use types. The difference in land use functions determines construction indices such as building height, building density, and plot ratio, which, in turn, affect the street layout form [50]. Therefore, we divided the street types into four different categories based on the land use function of the study area (Table 3).

3.2. Data Sources and Processing

(1) Meteorological data: Download the average meteorological data through the National Meteorological Information Center (http://data.cma.cn/ (accessed on 17 July 2023)). According to the meteorological station, the meteorological station is selected as the Hangzhou meteorological station, and accessed date is from 1 January 2018 to 31 December 2022. The sunny and cloudless meteorological data on 8 September 2022 was selected as the typical summer climate data of Hangzhou for simulation parameter setting.
(2) Road-related data: Road network data for the study area was extracted from Open Street Map (OSM) (https://www.openstreetmap.org (accessed on 17 July 2023)), and accessed date is 1 January 2020.The road grid pixel accuracy was set to 30 m and the geographic coordinate system of the road network was unified as WGS1984, while the projection coordinate system was unified as WGS 1984 UTM Zone 50N. Using the Baidu map street view service, we crawled 1146 panoramic street views in PyCharm. We used Python language to call Baidu’s API interface, and we used the latitude and longitude coordinates of 100 m equidistant sampling points for batch crawling. The height and width of the panoramic image were 512 and 1024 pixels, respectively.
(3) Relevant data of street morphology: The external contour data of urban buildings in the study area were obtained by crawling the Baidu map platform. We vectorized the data in ArcGIS to obtain the external contour model of urban buildings in the study area. Field research was conducted on 32 selected research objects, and morphological parameter data of each street were collected and counted in combination with urban building models.

3.3. Methods

The layout and shape of the street affects the quality of its thermal environment. The street morphological parameters obtained by network big data crawling and field research provided the basic data of the sample plot design for subsequent thermal environment simulation. ENVI-met software was applied to design and model a total of 72 sample plots of various types of streets, each with 18 plots. The submodules Leonardo and BIO-met of ENVI-met software were used to calculate the average value of the thermal comfort index PMV for the different street types. We used a multiple linear regression model to explore the internal relationship between the morphological parameters of various street layouts and the thermal environment (Figure 2).

3.3.1. Network Big Data and Field Research, Combined

We first divided the sampling points of the road network in the study area every 100 m using Python. The Baidu map API interface was called to crawl the Baidu street view at each latitude and longitude coordinate. This provided a macro understanding of the street layout in the study area, which we used to characterize the layouts of the different street types. Based on this analysis, we selected eight typical streets to represent the four types of street under investigation.
Next, we obtained an outer contour model of buildings in the study area by a combination of network crawling and field investigation. Using this data, the street aspect ratio, near-line rate, and street orientation of each type of street were calculated to determine the value range of the layout form attribute of each type of street (Figure 3).
The street direction (d) was calculated as the clockwise angle between the north direction and the long axis of the street, mostly east–west and north–south [51]. Street orientation can affect the street thermal environment due to differences in solar radiation, wind environment, and other factors [52].
Different street orientations will change the angle of direct solar radiation, which will change the ability of buildings along the street to block solar radiation [53]. When the angle between the orientation and the direct sunlight is 90°, the shadow area in the street is the largest and the street heating rate is the slowest. When the angle is 0°, the shadow area in the street is the smallest, and the sunshine time is prolonged, which accelerates the heating of the street. Street orientation also has different degrees of influence on the wind environment. [54] When the angle between the street orientation and the wind direction is formed, the building will have different degrees of blocking effect on the wind. When the angle between the orientation and the wind direction is 90°, the wind speed in the street is the slowest, which is not conducive to the heat dissipation of the street. When the angle is 0°, it is most conducive to the circulation of air in the street and the heat dissipation of the street.
The street aspect ratio (H/W) was used to judge the ratio between the height of the building along the street (H) and the width of the street (W) [55]. Street width usually refers to the sum of the distance between the road width and the construction of buildings along the street.
The street aspect ratio changes the thermal environment of the street by affecting the solar radiation and wind environment in the street [56]. The larger the aspect ratio of the street, the larger the area of the buildings along the street to block the solar radiation, thereby reducing the heat generated by the solar radiation in the street, resulting in a better thermal environment of the street. However, the influence of the aspect ratio of the street on the wind environment is more complicated. The orientation and aspect ratio of the street will affect the wind speed and wind direction at the same time, thus affecting the thermal environment in the street. For example, when the street is perpendicular to the wind direction, the aspect ratio of the street has a negative impact on the wind speed, which is not conducive to the heat dissipation of the street. However, when the street is parallel to the wind direction, the aspect ratio of the street has a positive impact on the wind speed. The street with a large aspect ratio will form a “gorge tube effect”, which is conducive to street heat dissipation
Near-line rate (t) is the ratio of the length of the street building to the length of the road red line. Usually, near-line rate reflects indicators such as the distance between buildings along the street and the building density. It is also an important parameter of the street layout [57].
Near-line rate also has a great influence on the ventilation and heat dissipation of the street [58]. When the street is parallel to the wind direction, the higher the near-line rate, the more conducive to the ventilation and heat dissipation in the street; when the street orientation is perpendicular to the wind direction, the higher the near-line rate, the stronger the blocking effect on the wind environment, which is not conducive to the ventilation and heat dissipation in the street. However, when the street orientation is at other angles with the wind direction, near-line rate will have different effects on the thermal environment of the street (Figure 4).

3.3.2. ENVI-Met Model Parameter Settings

The simulation scale was controlled to 200 m × 200 m considering the characteristics of the study area and the accuracy of the software. The urban street model was simplified to suit the ENVI-met parameter simulation settings. The building was set as a body of 20 m × 20 m × 20 m. The height of the building was set to 20 m, so the upper boundary of the model was set to be greater than twice the height of the tallest building to ensure accuracy in ENVI-met. The model was established with 100 × 100 × 20 grids, grid size of 2 m × 2 m × 2 m, and latitude and longitude of 30°16′ N, 120°12′ E.
The simulation date was conducted for 8 September 2022, which is a typical summer day in Hangzhou. The simulation started at 00:00 on the same day and ran for 24 h, until 23:00 on that day. The simulation time interval was one hour. The main parameters of the thermal environment simulation are listed in Table 4.

3.3.3. Thermal Comfort Evaluation Index Calculation

We used PMV as an evaluation model for the thermal environment of urban streets. PMV was originally proposed by Professor Fanger in Denmark as a model for evaluating indoor thermal environments. The model has since been extended to outdoor conditions and it is more suitable for evaluating human thermal responses (cold and hot sensations) in mild summer months [59], which is consistent with the conditions of this study. PMV is calculated by taking into account air temperature, average radiation temperature, humidity, wind speed, energy generated in the human body, water vapor exchange between human skin and the air, energy exchange caused by respiration, and skin temperature under clothing.
PMV is calculated as follows:
P M V = 0.03 exp 0.036 M + 0.028 × { M W 0.35 × 10 3 5733 6.99 M W P a 0.42 M W 58.15 1.7 × 10 5 M 5.867 P a 0.0014 M 34 t a 3.96 × 10 8 f c l t c l + 273 4 M R T + 273 4 f c l × h c t c l t a }
t c l = 35.7 0.028 M W I c l { 3.96 × 10 8 f c l ( t c l + 273 ) 4 M R T + 273 4 + f c l × h c t c l + t a }
h c = { 2.38 t c l t a 0.25 12.1 v a
f c l { 1.00 + 0.2 I c l I c l < 0.5 c l o 1.05 + 0.21 I c l > 0.5 c l o
where W is the effective mechanical work performed by the human body (W/m2); M is the heat generated by the body through metabolism (W/m2); I c l is the thermal resistance (clo) of clothing; f c l is the area coefficient of clothing; MRT is the average radiation temperature (°C); v a is air temperature (°C); P a is water vapor partial pressure (Pa); v a is wind speed (m/s); t c l is the clothing surface temperature (°C); h c is the convective heat transfer coefficient (W/(m2·°C)).
ENVI-met also uses a metabolic rate of 1.5 in the walking state to calculate the outdoor thermal comfort PMV. In the BIO-met submodule of the ENVI-met software, “Clothing Parameters” was set to 0.6 clo to represent the clothing-related thermal resistance of pedestrians in the outdoor street space in summer.
The PMV value was divided into (+3~−3) seven grades, as shown in Table 5.

3.3.4. Average Calculation of Street Thermal Environment

As this study mainly centers on the influence of street morphology on the thermal environment within the street, we did not consider the external space here. To isolate the internal area of the street for the thermal environment simulation, we used the “Cut Map to Window” tool in the Leonardo module. We calculated the average thermal environment of the internal space of the street after cutting to secure the thermal environment of the street layout (Figure 5).

3.3.5. Correlation Analysis of Street Layout and Thermal Comfort

Multivariate linear regression model analysis mainly reveals the correlation between a dependent variable and multiple independent variables. It is a statistical method used to demonstrate the corresponding change law of a phenomenon or thing according to multiple linear or quantitative changes, and to establish a linear or nonlinear mathematical model between multiple variables [60]. Multivariate linear regression can be analyzed in multiple variables. Its principle is to find the optimal linear combination of the fitted independent variable and dependent variable [61]. This model has many advantages, is the most widely used in data modeling, and can demonstrate the relationship between respective variables and dependent variables.
In this study, we used the model to analyze the difference in the contribution of near-line rate and street aspect ratio to the street thermal environment mitigation of various types of streets. The general form of multiple regression equation is
y = β 0 + β 1 x 1 + β 2 x 2 + β i + ε
where β 0 , β 1 ,⋯ β i are partial regression coefficients; ε is the error term; x 1 and x 2 are street layout parameters; y is thermal comfort PMV value.

4. Results and Analysis

4.1. Various Street Layout Forms and Plot Designs

To eliminate the influence of intersection morphology on the street thermal environment, we set the street length to approximately 200 m; the distance between the two intersections in the central urban area is usually 300–400 m. Road sections with a symmetrical layout on both sides of the street were selected to calculate the average value of building height, street width, and building red line length within the 200 m length. The resulting data were used to calculate the street layout attributes and street shape parameters (Figure 6).
Based on our statistical analysis, the accurate value ranges of the four types of street morphological parameters are as follows: comprehensive street H/W = 0.6–0.8, t = 0.5–0.7; commercial street H/W = 0.4–0.6, t = 0.7–1; ecological street H/W = 0.2–0.4, t = 0.3–0.5; residential street H/W = 1–1.4, t = 0.6–0.9.
According to the layout parameters of various street types, we created a sample plot design by equal division. If the comprehensive street H/W = 0.6–0.8, it was equally divided into three sample plots of H/W = 0.6, 0.7, and 0.8; t = 0.5–0.7, it was divided into t = 0.5, 0.6, 0.7 plots. A final design was obtained for each type of street with 18 plots among the 72 total plots (Table 6).

4.2. Diurnal Variations in Street Thermal Environment

ENVI-met simulation technology was used to simulate diurnal variations in the thermal environment for four types of streets. We explored the differences in the thermal environments of four different types of streets over the course of one day. The thermal comfort PMV value at a pedestrian height of 1.4 m during 8:00–18:00 was statistically analyzed in two-hour intervals. The variations for the street layouts are described in Table 7.
The average PMV change map of thermal comfort between 8:00 and 18:00 in the eight streets we analyzed (Figure 7) shows that the hourly changes of thermal comfort PMV are similar for the street types. The PMV value increases from 8:00 to 12:00, peaks at 12:00–14:00, then declines after 14:00. However, there are also differences between street types. For example, at 8:00–12:00, the thermal comfort PMV of the north–south street increases faster than the east–west street, while at 12:00–18:00, the thermal comfort PMV of the north–south street decreases faster than that of east–west street.
The PMV of thermal comfort was less than 0 at 8:00 on all streets, indicating a cool sensation perceived there. The PMV value then increased rapidly as the perceived thermal sensation moved from slightly warm to warm. The PMV value peaked at 12:00–14:00, the hottest time of the day, and then began to decline. By 18:00, the PMV values in all streets except the east–west commercial streets decreased to less than 0 again, that is, the perceived thermal sensation was once again slightly cool.

4.3. Selection and Correlation Analysis of Various Street Forms

Based on the above, the thermal environment of all streets types peaks between 12:00 and 14:00. We compared the thermal comfort PMV simulation results of all street types at 12:00–14:00 to explore the thermal environment of all types. Multivariate linear regression was used to analyze the layout parameters of all street types and the corresponding thermal comfort PMV values.

4.3.1. Comprehensive Street Layout Form Selection, Correlation Analysis

As shown in Figure 8, the optimal layout of the thermal environment for the comprehensive street is H/W = 0.8, t = 0.7. The worst thermal environment layout is H/W = 0.5, t = 0.6. The overall thermal environment of the comprehensive-WE street is markedly better than that of the comprehensive-NS street.
Based on multiple linear regression analysis (Table 8), we found that the thermal comfort PMV of both directions of comprehensive streets is negatively correlated with the aspect ratio of the streets and near-line rate. Our t-test results show that the p value of the east–west street is less than 0.05, indicating that the street aspect ratio and near-line rate significantly affect the thermal comfort PMV of the east–west street, while the north–south street p value is greater than 0.05, indicating that the street aspect ratio and near-line rate have no significant effect on the thermal comfort PMV of the street. Regarding the explanatory degree R2 of the prediction model, the R2 of the east–west street is significantly better than that of the north–south street. The regression equation of the east–west street is, thus, better-suited to explaining the internal relationship between the street layout and the thermal comfort PMV.

4.3.2. Commercial Street Layout Form Selection, Correlation Analysis

As shown in Figure 9, the optimal layout of the commercial street thermal environment is H/W = 0.6, t = 0.9; the layout of the poor thermal environment is H/W = 0.4, t = 0.1. When the aspect ratio was the same, the thermal environment of t = 0.9 was optimal. When H/W = 0.4, there was little difference in the thermal environments between east–west and north–south streets. In other cases, the east–west street was markedly better than the north–south street.
Based on the multiple linear regression analysis shown in Table 9, we found that the thermal comfort PMV of the north–south street is negatively affected by the aspect ratio of the street and positively affected by the near-line rate. The east–west streets are negatively affected by the aspect ratio of streets and the near-line rate. The t-test results indicate that p values of the north–south streets are all greater than 0.05; thus, the influence of the street aspect ratio and near-line rate on thermal comfort is not significant. However, the p values of the east–west streets are less than 0.05, indicating that the aspect ratio significantly affects the thermal comfort PMV of the east–west streets. The explanatory degree R2 of the east–west street is significantly higher than that of the north–south street, so the regression equation of the east–west street is better-suited to explaining the internal relationship between the street layout and the thermal comfort PMV.

4.3.3. Ecological Street Layout Form Selection, Correlation Analysis

As shown in Figure 10, the optimal layout of the ecological north–south street thermal environment is t = 0.5 and the worst layout of the thermal environment is t = 0.3. The aspect ratio of the street has little effect on the thermal environment of the north–south street. The optimal layout of the thermal environment of the east–west street is H/W = 0.3 and H/W = 0.4, and the worst layout of the thermal environment is H/W = 0.2. The overall thermal environment of ecological east–west streets is significantly better than that of north–south streets.
Based on the multiple linear regression analysis shown in Table 10, combined with regression coefficient and t-test results, we found that the thermal comfort PMV of north–south ecological streets is only affected by significant negative correlation of the street aspect ratio, while the east–west streets are only affected by the significant negative correlation of near-line rate, and all of them show negative correlation. The R2 of the ecological streets in both directions is high, indicating that the regression equations of the two directions accurately explain the internal relationship between the street layout and the thermal comfort PMV.

4.3.4. Residential Street Layout Form Selection, Correlation Analysis

As shown in Figure 11, the optimal layout of the thermal environment of residential streets is H/W = 1.2, t = 0.9, while the worst layout of the thermal environment is H/W = 1, t = 0.6. The change trend of residential streets is similar in both directions. When the aspect ratio is the same, the thermal environment of the street decreases as the near-line rate increases. The overall thermal environment of east–west streets in residential areas is significantly better than that of north–south streets.
Our multiple linear regression analysis (Table 11) shows that the thermal comfort PMV of residential streets in both directions is negatively correlated with the aspect ratio of streets and the near-line rate. The t-test results show that p values of the two directions of street are less than 0.05, indicating that the street aspect ratio and near-line rate have a significant impact on the thermal comfort PMV of residential streets. R2 is close to 1, indicating that the regression equations of the two orientations can accurately explain the internal relationship between the street layout and the thermal comfort PMV.

5. Discussion

As the most important outdoor public space in the city, the street form has an important impact on the thermal environment. Drawing from the findings of our study, we have devised a specialized strategy to optimize street layouts for different types of urban streets. In the following sections, we present insightful planning recommendations for future urban street construction projects aimed at alleviating the thermal impact across diverse street types.

5.1. Comprehensive East–West Street Planning Suggestions

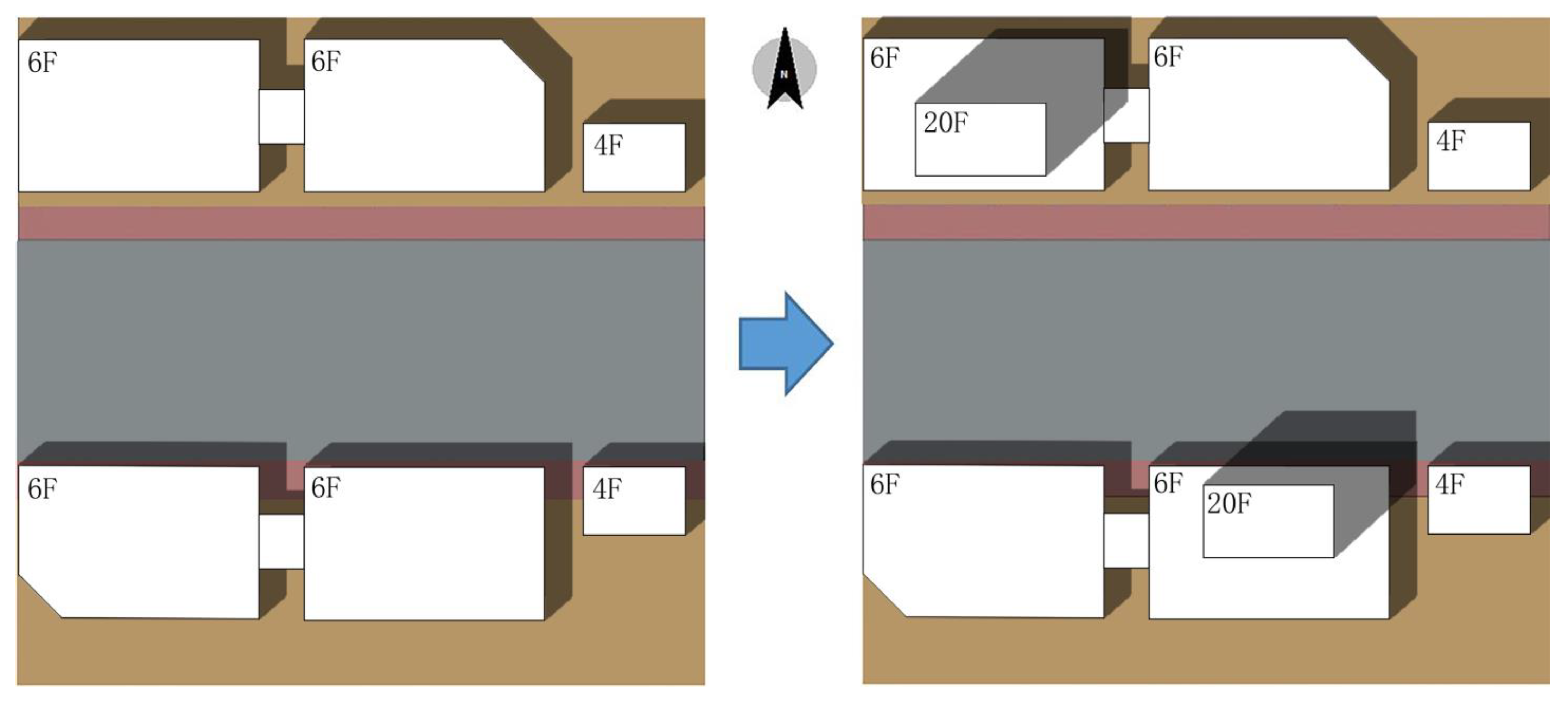
The thermal environment of streets is significantly negatively affected by their aspect ratio and the near-line rate. The optimal layout is H/W = 0.8, t = 0.7. The width of the comprehensive street is about 50–70 m, so the average height of the buildings along the street should be controlled to 40–56 m, which can be converted into about 12–18 layers of buildings. Buildings along comprehensive streets are generally high-rises such as service offices and landmark hotels. The number of floors in such buildings can reach 18 or more, though the footprint of the building is relatively small. There are some low-rise buildings as well, such as theaters, stadiums, and exhibition halls. The number of floors of such buildings is usually less than 10, and the footprint is relatively large. When planning the layout of buildings along such streets, it is necessary to arrange high- and low-rise buildings in a staggered manner and scientifically control the aspect ratio of streets and near-line rate (Figure 12).

5.2. Commercial East–West Street Planning Suggestions

The thermal environment of these streets is only significantly negatively affected by their aspect ratio, and the optimal layout is H/W = 0.6. According to the survey results, the width of commercial streets is about 30–50 m, so the average height of buildings along the street should be controlled to 18–30 m. The number of building layers is about 6–10. The buildings surrounding commercial streets are mainly large-scale integrated commercial buildings and small-scale independent commercial buildings. Commercial buildings usually have only 4–7 floors. The number of building floors can be increased by supporting high-rise apartment buildings above commercial spaces, which can improve the service function of large commercial buildings (Figure 13).

5.3. Ecological North–South Street Planning Suggestions

The thermal environment of these streets is only significantly negatively affected by near-line rate, and the optimal layout is t = 0.5. We found that the main reason affecting the line rate of buildings on this type of street is that the volume of historical buildings is small and scattered. For small-scale historical buildings scattered along the street, similar forms of antique buildings can be constructed and connected with corridors to improve the street line rate while protecting historical structures (Figure 14).

5.4. Ecological East–West Street Planning Suggestions

The thermal environment of these streets is only significantly negatively affected by the aspect ratio of the street, and the best layout form is H/W = 0.3–0.4. We found that the main factor affecting the aspect ratio of such streets is that the building volume along the street is small, the number of layers is low, and the building concession distance is large. The concession distance of buildings along the street should be restricted and high-rise buildings should be added to increase the average building height (Figure 15).

5.5. Residential Street Planning Suggestions

The thermal environment of these streets is significantly negatively affected by their aspect ratio and the near-line rate. The best layout form is H/W = 1.2, t = 0.9. The width of residential streets is about 20–30 m, so the average height of buildings along the street should be controlled to 24–42 m and the number of building layers to about 8–14. Residential buildings may be low-rise (1–3 layers), multistory (4–6 layers), small high-rise (7–9 layers), or high-rise (10 or more layers). When controlling the height of buildings along the street, multifactor planning and the construction of small and high-rise buildings should be considered. When controlling the near-line rate, it is recommended to construct commercial spaces in the lower levels of residential buildings along the street to ensure continuity and enrich the commercial functions of the residential area (Figure 16).

6. Conclusions

In this study, we investigated the mitigation of urban thermal environments from the perspective of the urban street layout. We collected data on street morphology in the early stages by combining field research and big data, then applied ENVI-met software to simulate the thermal environments of streets. Using the multiple linear regression method, we analyzed the internal relationship between the thermal environment of various types of streets and their layout forms, then investigated the influence of urban street morphology on their respective thermal environments. We reached three main conclusions regarding the street layout, street thermal environment, and the correlation between the street shape and thermal environment.
(1) The streets in our study area are mainly oriented north–south and east–west. However, there are obvious differences in street morphology among different types of streets. The larger the aspect ratio of the street, the lower the openness of the street. The residential street is the narrowest and the ecological street is the most open. The higher the rate of building wiring, the higher the continuity of buildings along the street. The level of continuity of commercial street buildings is the highest, and the level of continuity of ecological street buildings is the lowest.
(2) We also found that the daily variation trend of thermal comfort PMV is similar for all street types. However, the daily variation range of thermal comfort PMV for north–south streets is larger than that of east–west streets.
(3) The optimal layout of the thermal environment for each type of street is different, and there are different internal relationships between the street form and the thermal comfort PMV. Accordingly, targeted planning strategies are proposed for various types of streets to achieve effective mitigation of street thermal environment.
This study introduces the research framework of “street type division, multisource data collection, bare building model formation, street shape and thermal environment correlation analysis”, which provides a reference research framework for the study of the influence of street form on thermal environment.
On the one hand, a new idea of dividing streets according to land use function and road grade is proposed to avoid the confusion of all streets, which can prevent hindered implementation of research results and provide a reference for related studies on street form. The function of land use determines factors such as building height, building density, and plot ratio, while the road grade determines the road width to a certain extent. Therefore, the street form is closely related to the function of land use and the road grade. However, in most previous studies on the influence of street form on the thermal environment, streets were not classified properly for research, leading to a lack of relevance and practical significance in the research conclusions. This study proposes using multisource big data combined with field research methods to divide the streets into four types: comprehensive, commercial, ecological, and residential areas based on land use function and road grade. Subsequently, street form data statistics are conducted. Within the variable range of various street forms, the study explores the optimal form for their thermal environment, enhancing the scientific rigor and relevance of the research results.
On the other hand, the numerical simulation method is used to construct the research system of “bare building model”, and the influence of the single factor of street form on the thermal environment is studied, which provides a theoretical framework for future street form research. In the past, the research on street thermal environment was mostly carried out by field measurement. This method cannot avoid the complexity of street thermal environment factors, and it is difficult to study the influence of single factor on street thermal environment. In this study, a numerical simulation method is used to study the influence of single factor of street form on thermal environment by establishing a “bare building model”, and the influence of other factors on thermal environment is excluded. Combined with the multiple linear regression model, the internal relationship between street morphology and street thermal environment is studied in order to provide scientific evidence for the interpretation of the relationship between street form and street thermal environment, and provide theoretical basis for the mitigation of street thermal environment from the perspective of street form.
Because this is an idealized study based on ENVI-met numerical simulations, the street environment is modeled as bare buildings with no green spaces. We did not take into account that the street thermal environment is also affected by many factors, such as street greening and people-flow activities. As a result, a gap exists between the simulation results and reality. In the future, we hope to improve the shortcomings of our research, improve the precision and generalizability of our findings, and provide more guidance for the planning and design of street layouts for mitigating their thermal environments.

Author Contributions

Conceptualization, Jin Bao and Lihua Xu; methodology, Jin Bao and Lihua Xu; writing—original draft, Jin Bao, Lihua Xu, Yijun Shi, Qiwei Ma, and Zhangwei Lu; writing—review and editing, Jin Bao, Lihua Xu, and Yijun Shi; visualization, Jin Bao; supervision, Lihua Xu, Yijun Shi, Qiwei Ma, and Zhangwei Lu; funding acquisition, Jin Bao, Lihua Xu, and Yijun Shi. All authors have read and agreed to the published version of the manuscript.

Funding

This research was funded by the Key Program of Zhejiang Province Philosophy and Social Science Planning Interdisciplinary (No. 22JCXK06Z), Zhejiang Provincial Natural Science Foundation (No. LQ22E080007), General Program of National Natural Science Foundation of China (No. 41871216), Zhejiang Province Natural Science Foundation of China (No. LQ20D010002), and Zhejiang Provincial College Student Science and Technology Innovation Plan and Planted Talent Plan Funding Project (No. 2021R412046).

Data Availability Statement

Not applicable.

Acknowledgments

The authors gratefully acknowledge the funding support.

Conflicts of Interest

The authors declare no conflict of interest.

References

  1. Rao, Y.; Dai, J.; Dai, D. Effect of compactness of urban growth on regional landscape ecological security. Land 2021, 10, 848. [Google Scholar] [CrossRef]
  2. Hematian, H.; Ranjbar, E. Evaluating urban public spaces from mental health point of view: Comparing pedestrian and car-dominated streets. J. Transp. Health 2022, 27, 101532. [Google Scholar] [CrossRef]
  3. Tieben, H. Public space trends in Hong Kong. A view from the new territories. J. Public Space 2016, 1, 25–34. [Google Scholar] [CrossRef]
  4. Chen, T.; Yang, H.; Chen, G. Integrated impacts of tree planting and aspect ratios on thermal environment in street canyons by scaled outdoor experiments. Sci. Total Environ. 2021, 764, 142920. [Google Scholar] [CrossRef]
  5. Yao, L.; Li, T.; Xu, M. How the landscape features of urban green space impact seasonal land surface temperatures at a city-block-scale: An urban heat island study in Beijing, China. Urban For. Urban Green. 2020, 52, 126704. [Google Scholar] [CrossRef]
  6. Chatzipoulka, C.; Steemers, K.; Nikolopoulou, M. Density and coverage values as indicators of thermal diversity in open spaces: Comparative analysis of London and Paris based on sun and wind shadow maps. Cities 2020, 100, 102645. [Google Scholar] [CrossRef]
  7. Niachou, K.; Livada, I.; Santamouris, M. Experimental study of temperature and airflow distribution inside an urban street canyon during hot summer weather conditions. Part II: Airflow analysis. Build. Environ. 2008, 43, 1393–1403. [Google Scholar] [CrossRef]
  8. Lai, D.; Liu, W.; Gan, T. A review of mitigating strategies to improve the thermal environment and thermal comfort in urban outdoor spaces. Sci. Total Environ. 2019, 661, 337–353. [Google Scholar] [CrossRef]
  9. Feng, R.; Wang, F.; Zhou, M. Spatiotemporal effects of urban ecological land transitions to thermal environment change in mega-urban agglomeration. Sci. Total Environ. 2022, 838, 156158. [Google Scholar] [CrossRef]
  10. Oke, T.R. The energetic basis of the urban heat island. Q. J. R. Meteorol. Soc. 1982, 108, 1–24. [Google Scholar] [CrossRef]
  11. Zhang, Y.; Qu, Y.; Wang, J. Estimating leaf area index from MODIS and surface meteorological data using a dynamic Bayesian network. Remote Sens. Environ. 2012, 127, 30–43. [Google Scholar] [CrossRef]
  12. Chen, Y.; Yang, J.; Yang, R. Contribution of urban functional zones to the spatial distribution of urban thermal environment. Build. Environ. 2022, 216, 109000. [Google Scholar] [CrossRef]
  13. Yang, G.; Pu, R.; Huang, W. A novel method to estimate subpixel temperature by fusing solar-reflective and thermal-infrared remote-sensing data with an artificial neural network. IEEE Trans. Geosci. Remote Sens. 2009, 48, 2170–2178. [Google Scholar] [CrossRef]
  14. Zhou, D.; Xiao, J.; Bonafoni, S. Satellite remote sensing of surface urban heat islands: Progress, challenges, and perspectives. Remote Sens. 2018, 11, 48. [Google Scholar] [CrossRef]
  15. Li, K.; Yu, Z. Comparative and combinative study of urban heat island in Wuhan City with remote sensing and CFD simulation. Sensors 2008, 8, 6692–6703. [Google Scholar] [CrossRef]
  16. Mirzaei, P.A.; Haghighat, F. Approaches to study urban heat island–abilities and limitations. Build. Environ. 2010, 45, 2192–2201. [Google Scholar] [CrossRef]
  17. Yang, J.; Yang, Y.; Sun, D. Influence of urban morphological characteristics on thermal environment. Sustain. Cities Soc. 2021, 72, 103045. [Google Scholar] [CrossRef]
  18. Lam, C.K.C.; Lee, H.; Yang, S.R. A review on the significance and perspective of the numerical simulations of outdoor thermal environment. Sustain. Cities Soc. 2021, 71, 102971. [Google Scholar] [CrossRef]
  19. Chen, Z.; Xin, J.; Liu, P. Air quality and thermal comfort analysis of kitchen environment with CFD simulation and experimental calibration. Build. Environ. 2020, 172, 106691. [Google Scholar] [CrossRef]
  20. Chen, G.; Wang, D.; Wang, Q. Scaled outdoor experimental studies of urban thermal environment in street canyon models with various aspect ratios and thermal storage. Sci. Total Environ. 2020, 726, 138147. [Google Scholar] [CrossRef]
  21. Lin, J.R.; Cao, J.; Zhang, J.P. Visualization of indoor thermal environment on mobile devices based on augmented reality and computational fluid dynamics. Autom. Constr. 2019, 103, 26–40. [Google Scholar] [CrossRef]
  22. Liu, Z.; Cheng, W.; Jim, C.Y. Heat mitigation benefits of urban green and blue infrastructures: A systematic review of modeling techniques, validation and scenario simulation in ENVI-met V4. Build. Environ. 2021, 200, 107939. [Google Scholar] [CrossRef]
  23. Li, G.; Ren, Z.; Zhan, C. Sky View Factor-based correlation of landscape morphology and the thermal environment of street canyons: A case study of Harbin, China. Build. Environ. 2020, 169, 106587. [Google Scholar] [CrossRef]
  24. Fabbri, K.; Di Nunzio, A.; Gaspari, J. Outdoor Comfort: The ENVI-BUG tool to evaluate PMV values Output Comfort point by point. Energy Procedia 2017, 111, 510–519. [Google Scholar] [CrossRef]
  25. Salatav, F.; Golasi, I. Urban microclimate and outdoor thermal comfort. A proper procedure to fit ENVI-met simulation outputs to experimental data. Sustain. Cities Soc. 2016, 26, 318–343. [Google Scholar] [CrossRef]
  26. Thomas, G.; Thomas, J.; Mathews, G.M. Assessment of the potential of green wall on modification of local urban microclimate in humid tropical climate using ENVI-met model. Ecol. Eng. 2023, 187, 106868. [Google Scholar] [CrossRef]
  27. Matzarakis, A.; Rutz, F.; Mayer, H. Modelling radiation fluxes in simple and complex environments—Application of the RayMan model. Int. J. Biometeorol. 2007, 51, 323–334. [Google Scholar] [CrossRef] [PubMed]
  28. Matzarakis, A. RayMan and SkyHelios model-two tools for urban climatology. Proc. MettoolsVIII 2012, 8, 1–6. [Google Scholar]
  29. Chen, S.L.; Lu, J.; Yu, W.W. A Simple Three-dimensional Terrain Modeling method for Complex Terrain Wind Environment Simulation. Appl. Mech. Mater. 2013, 397, 2420–2425. [Google Scholar] [CrossRef]
  30. Choi, J.; Kim, Y.; Sivasubramaniam, A. A CFD-based tool for studying temperature in rack-mounted servers. IEEE Trans. Comput. 2008, 57, 1129–1142. [Google Scholar] [CrossRef]
  31. Huo, H.; Chen, F.; Geng, X. Simulation of the Urban Space Thermal Environment Based on Computational Fluid Dynamics: A Comprehensive Review. Sensors 2021, 21, 6898. [Google Scholar] [CrossRef]
  32. Shareef, S.; Abu-Hijleh, B. The effect of building height diversity on outdoor microclimate conditions in hot climate. A case study of Dubai-UAE. Urban Clim. 2020, 32, 100611. [Google Scholar] [CrossRef]
  33. Crank, P.J.; Sailor, D.J.; Ban-Weiss, G. Evaluating the ENVI-met microscale model for suitability in analysis of targeted urban heat mitigation strategies. Urban Clim. 2018, 26, 188–197. [Google Scholar] [CrossRef]
  34. Xi, T.; Li, Q.; Mochida, A. Study on the outdoor thermal environment and thermal comfort around campus clusters in subtropical urban areas. Build. Environ. 2012, 52, 162–170. [Google Scholar] [CrossRef]
  35. Lai, D.; Guo, D.; Hou, Y. Studies of outdoor thermal comfort in northern China. Build. Environ. 2014, 77, 110–118. [Google Scholar] [CrossRef]
  36. Migliari, M.; Babut, R.; De Gaulmyn, C. The Metamatrix of Thermal Comfort: A compendious graphical methodology for appropriate selection of outdoor thermal comfort indices and thermo-physiological models for human-biometeorology research and urban planning. Sustain. Cities Soc. 2022, 81, 103852. [Google Scholar] [CrossRef]
  37. Tsitoura, M.; Tsoutsos, T.; Daras, T. Evaluation of comfort conditions in urban open spaces. Application in the island of Crete. Energy Convers. Manag. 2014, 86, 250–258. [Google Scholar] [CrossRef]
  38. Fang, Z.; Lin, Z.; Mak, C.M. Investigation into sensitivities of factors in outdoor thermal comfort indices. Build. Environ. 2018, 128, 129–142. [Google Scholar] [CrossRef]
  39. Nitta, R.; Lin, H.E.; Kubota, Y. CuO nanostructure-based flexible humidity sensors fabricated on PET substrates by spin-spray method. Appl. Surf. Sci. 2022, 572, 151352. [Google Scholar] [CrossRef]
  40. Zeng, D.; Wu, J.; Mu, Y. Spatial-temporal pattern changes of UTCI in the China-Pakistan economic corridor in recent 40 years. Atmosphere 2020, 11, 858. [Google Scholar] [CrossRef]
  41. Jin, H.; Liu, S.; Kang, J. Gender differences in thermal comfort on pedestrian streets in cold and transitional seasons in severe cold regions in China. Build. Environ. 2020, 168, 106488. [Google Scholar] [CrossRef]
  42. Hasan, M.H.; Alsaleem, F.; Rafaie, M. Sensitivity study for the PMV thermal comfort model and the use of wearable devices biometric data for metabolic rate estimation. Build. Environ. 2016, 110, 173–183. [Google Scholar] [CrossRef]
  43. Baquero, M.T.; Forcada, N. Thermal comfort of older people during summer in the continental Mediterranean climate. J. Build. Eng. 2022, 54, 104680. [Google Scholar] [CrossRef]
  44. Shimazaki, Y.; Yoshida, A.; Suzuki, R. Application of human thermal load into unsteady condition for improvement of outdoor thermal comfort. Build. Environ. 2011, 46, 1716–1724. [Google Scholar] [CrossRef]
  45. Guo, C.; Buccolieri, R.; Gao, Z. Characterizing the morphology of real street models and modeling its effect on thermal environment. Energy Build. 2019, 203, 109433. [Google Scholar] [CrossRef]
  46. Zhang, W.; Derudder, B.; Wang, J. An analysis of the determinants of the multiplex urban networks in the Yangtze River Delta. Tijdschr. Voor Econ. En Soc. Geogr. 2020, 111, 117–133. [Google Scholar] [CrossRef]
  47. Wu, J.; Liu, C.; Wang, H. Analysis of Spatio-temporal patterns and related factors of thermal comfort in subtropical coastal cities based on local climate zones. Build. Environ. 2022, 207, 108568. [Google Scholar] [CrossRef]
  48. Tong, Z.; Chen, Y.; Malkawi, A. Energy saving potential of natural ventilation in China: The impact of ambient air pollution. Appl. Energy 2016, 179, 660–668. [Google Scholar] [CrossRef]
  49. Zhang, Y.; Cheng, J. Spatio-temporal analysis of urban heat island using multisource remote sensing data: A case study in Hangzhou, China. IEEE J. Sel. Top. Appl. Earth Obs. Remote Sens. 2019, 12, 3317–3326. [Google Scholar] [CrossRef]
  50. Gago, E.J.; Roldan, J.; Pacheco-Torres, R. The city and urban heat islands: A review of strategies to mitigate adverse effects. Renew. Sustain. Energy Rev. 2013, 25, 749–758. [Google Scholar] [CrossRef]
  51. Gong, F.Y.; Zeng, Z.C.; Ng, E. Spatiotemporal patterns of street-level solar radiation estimated using Google Street View in a high-density urban environment. Build. Environ. 2019, 148, 547–566. [Google Scholar] [CrossRef]
  52. Zaki, S.A.; Toh, H.J.; Yakub, F. Effects of roadside trees and road orientation on thermal environment in a tropical city. Sustainability 2020, 12, 1053. [Google Scholar] [CrossRef]
  53. Ali-Toudert, F.; Mayer, H. Numerical study on the effects of aspect ratio and orientation of an urban street canyon on outdoor thermal comfort in hot and dry climate. Build. Environ. 2006, 41, 94–108. [Google Scholar] [CrossRef]
  54. Chen, L.; Mak, C.M.; Hang, J. Large eddy simulation study on pedestrian-level wind environments around elevated walkways and influential factors in ideal urban street canyons. Build. Environ. 2023, 235, 110236. [Google Scholar] [CrossRef]
  55. Sini, J.F.; Anquetin, S.; Mestayer, P.G. Pollutant dispersion and thermal effects in urban street canyons. Atmos. Environ. 1996, 30, 2659–2677. [Google Scholar] [CrossRef]
  56. Kim, S.W.; Brown, R.D. Pedestrians’ behavior based on outdoor thermal comfort and micro-scale thermal environments, Austin, TX. Sci. Total Environ. 2022, 808, 152143. [Google Scholar] [CrossRef] [PubMed]
  57. Mei, S.J.; Hu, J.T.; Liu, D. Wind driven natural ventilation in the idealized building block arrays with multiple urban morphologies and unique package building density. Energy Build. 2017, 155, 324–338. [Google Scholar] [CrossRef]
  58. Hang, J.; Li, Y.; Sandberg, M. The influence of building height variability on pollutant dispersion and pedestrian ventilation in idealized high-rise urban areas. Build. Environ. 2012, 56, 346–360. [Google Scholar] [CrossRef]
  59. Höppe, P. Different aspects of assessing indoor and outdoor thermal comfort. Energy Build. 2002, 34, 661–665. [Google Scholar] [CrossRef]
  60. Park, H.A. An introduction to logistic regression: From basic concepts to interpretation with particular attention to nursing domain. J. Korean Acad. Nurs. 2013, 43, 154–164. [Google Scholar] [CrossRef]
  61. Bai, J.; Perron, P. Computation and analysis of multiple structural change models. J. Appl. Econom. 2003, 18, 1–22. [Google Scholar] [CrossRef]
Figure 1. Study area location.
Figure 1. Study area location.
Ijgi 12 00303 g001
Figure 2. Technical flowchart.
Figure 2. Technical flowchart.
Ijgi 12 00303 g002
Figure 3. Baidu street view and building outline model.
Figure 3. Baidu street view and building outline model.
Ijgi 12 00303 g003
Figure 4. Street shape diagram.
Figure 4. Street shape diagram.
Ijgi 12 00303 g004
Figure 5. Calculation of average thermal environment at street level.
Figure 5. Calculation of average thermal environment at street level.
Ijgi 12 00303 g005
Figure 6. Street shape parameter measurement diagram.
Figure 6. Street shape parameter measurement diagram.
Ijgi 12 00303 g006
Figure 7. Street thermal comfort PMV hourly variation diagram.
Figure 7. Street thermal comfort PMV hourly variation diagram.
Ijgi 12 00303 g007
Figure 8. Average PMV in different forms of comprehensive street from 12:00 to 14:00.
Figure 8. Average PMV in different forms of comprehensive street from 12:00 to 14:00.
Ijgi 12 00303 g008
Figure 9. Average PMV in different forms of commercial streets from 12:00 to 14:00.
Figure 9. Average PMV in different forms of commercial streets from 12:00 to 14:00.
Ijgi 12 00303 g009
Figure 10. Average PMV in different forms of ecological streets from 12:00 to 14:00.
Figure 10. Average PMV in different forms of ecological streets from 12:00 to 14:00.
Ijgi 12 00303 g010
Figure 11. Average PMV in different forms of residential streets from 12:00 to 14:00.
Figure 11. Average PMV in different forms of residential streets from 12:00 to 14:00.
Ijgi 12 00303 g011
Figure 12. Comprehensive east–west street planning model diagram.
Figure 12. Comprehensive east–west street planning model diagram.
Ijgi 12 00303 g012
Figure 13. Commercial east–west street planning model diagram.
Figure 13. Commercial east–west street planning model diagram.
Ijgi 12 00303 g013
Figure 14. Ecological north–south street planning model diagram.
Figure 14. Ecological north–south street planning model diagram.
Ijgi 12 00303 g014
Figure 15. Ecological east–west street planning model diagram.
Figure 15. Ecological east–west street planning model diagram.
Ijgi 12 00303 g015
Figure 16. Residential street planning model diagram.
Figure 16. Residential street planning model diagram.
Ijgi 12 00303 g016
Table 1. Advantages and disadvantages of common thermal environment simulation software.
Table 1. Advantages and disadvantages of common thermal environment simulation software.
SoftwareAdvantagesDisadvantages
ENVI-met
The simulations accurately reflect climatic factors such as air temperature, average solar radiation, wind speed, and relative humidity in the thermal environment, providing a spatial distribution map of the climate [23,24]; it can also directly calculate thermal comfort configuration indicators such as PMV, PET, SET, and UTCI.
It has high accuracy and can simulate climatic parameters of each point in the model and reveal their hourly values; the minimum spatial resolution is 0.5 m.
The model is broad and cannot be effectively refined, losing elements such as building doors, windows, garden sketches, and others [25].
There are few types of underlying surface available. Using only ordinary buildings, green spaces, water bodies, and other broader elements does not accurately restore the complex environment [26].
RayMan
The operation interface is user-friendly and straightforwardly operated, quickly yielding results. Through a simple modeling process, the solar radiation index and thermal comfort index can be obtained by simply inputting meteorological data and human body data [27].
It is well suited to calculating radiation density and evaluating the radiation temperature in outdoor thermal environments.
Without considering the influence of air velocity, the data of the corresponding solid surface cannot be output.
Due to the limitations of a one-dimensional grid, it is difficult to deal with complex terrain. The tool also regards greenery (plants) as fixed shelters to participate in the calculation of shadows, sky openness, and other indicators in the area [28].
Phoenics
Modeling and model simplification are easily realized; the software comes with its own modeling tools suited to multiple shapes, the external data has a variety of interfaces, and it can be docked with CAD, Sketchup, Revit, and others for importing various shape models [29].
It is more biased towards plant-related simulations.
There are strict requirements for the user’s operation capabilities, such as manually adding the source equation. There are relatively few output thermal comfort evaluation indicators; only PMV, PPD, WBGT, etc. [30].
Table 2. Advantages and disadvantages of thermal comfort evaluation indices.
Table 2. Advantages and disadvantages of thermal comfort evaluation indices.
Evaluating IndicatorAdvantagesDisadvantages
Outdoor standard effective temperature (OUT-SET)
Fully considers effects of climatic factors and human differences in thermophysiological factors [36].
Easy to calculate; the calculation unit is °C.
Poor adaptability; applicable only to the calculation of thermal comfort for people with standard thermal physiological variables, not to the calculation of low temperature environmental conditions [37].
Accuracy is relatively low. Relative humidity is a fixed value, and the actual relative humidity affects thermal comfort by altering the air temperature.
Physiological equivalent temperature (PET)
Applicable to the whole year.
Fully incorporates influence of the body’s own thermal energy thermoregulation, including related heat flow, body temperature, and sweating rate [38].
The effects of activity intensity and clothing thermal resistance on thermal comfort are not included.
The effect of human skin moisture on thermal comfort is also not included, and it is not sensitive to relative humidity changes [39].
Universal Thermal Climate Index (UTCI)
Fully considers the influence of thermal physiological factors in heat exchange.
Includes the human body’s heat balance. Applicable to any season and scale [40].
The active metabolic rate and clothing thermal resistance are not specified, so there is an error of about 20% [41].
Predicated mean vote (PMV)
Considers the influence of human thermal physiological factors.
Has high calculation accuracy based on the thermal sensation voting mechanism of most people in the same venue [42].
It is suitable for people with light clothing who are relatively inactive, i.e., is more suitable for summer [43].
Table 3. Four types of street.
Table 3. Four types of street.
Street TypeCharacteristics
Comprehensive streetsRoad grade is high and the surrounding land use functions are comprehensive and diverse. Includes urban expressways and urban trunk roads. Road width is mostly 40–55 m and height of roadside buildings is uneven and sparse.
Commercial streetsRoad width is mostly 30–40 m and the height of roadside buildings is limited and relatively homogeneous. The building spacing is small and the connections between them are tight.
Ecological streetsGreen spaces and water bodies are inside and surrounding the streets. Road width is 10–30 m. The roadside buildings are sparsely arranged and the building height is low. Some streets have unilateral building arrangements or scenic areas on both sides.
Residential StreetsRoad width is 6–30 m, building density is high, roadside buildings are tall and closely connected, and the street is “canyon-like”.
Table 4. Thermal environment simulation parameters.
Table 4. Thermal environment simulation parameters.
TypeInput ParameterNumerical Value
Model scaleNumber of grids 100 × 100 × 20
Grid size 2 m × 2 m × 2 m
Simulation time periodDate 8 September 2022
Length of time 24 h
Meteorological parameterWind speed 1.92 m/s
Wind direction 202°
Maximum air temperature 32 °C
Minimum air temperature 23 °C
Maximum relative humidity 92%
Minimum relative humidity59%
Table 5. PMV value grading.
Table 5. PMV value grading.
Thermal SensationHotWarmSlightly WarmMezzoSlightly CoolCoolCold
PMV3210−1−2−3
Table 6. Street plot design attributes.
Table 6. Street plot design attributes.
Layout Attribute Value RangePlot Property SettingsSample Plot NumberTotal Number of Plots
Comprehensive streetsH/W = 0.6–0.8H/W = 0.5, 0.6, 0.83 × 3 × 2 = 1872
t = 0.5–0.7t = 0.5, 0.6, 0.7
d = NS, WENS, WE
Commercial streetsH/W = 0.4–0.6H/W = 0.4, 0.5, 0.63 × 3 × 2 = 18
t = 0.8–1t = 0.7, 0.9, 1
d = NS, WENS, WE
Ecological streetsH/W = 0.2–0.4H/W = 0.2, 0.3, 0.43 × 3 × 2 = 18
t = 0.3–0.5t = 0.3, 0.4, 0.5
d = NS, WENS, WE
Residential streetsH/W = 1–1.4H/W = 1, 1.2, 1.43 × 3 × 2 = 18
t = 0.6–0.9t = 0.6, 0.7, 0.9
d = NS, WENS, WE
Table 7. Diurnal variations in thermal environment by street form.
Table 7. Diurnal variations in thermal environment by street form.
Comprehensive StreetCommercial StreetEcological StreetResidential Street
Street directionNS, WENS, WENS, WENS, WE
H/W0.80.50.21.4
t0.50.90.30.7
Table 8. Multiple linear regression results for comprehensive streets.
Table 8. Multiple linear regression results for comprehensive streets.
ParameterUnstandardized CoefficientStandardized Coefficientt-TestpRegression EquationR2
BBeta
Comprehensive-NS(constant)1.117 34.4040y = −0.058 H/W − 0.075t + 1.1170.53
H/W−0.058−0.556−1.9910.094
t−0.075−0.473−1.6930.141
Comprehensive-WE(constant)1.101 54.7280y = −0.049 H/W − 0.097t + 1.1010.77
H/W−0.049−0.539−2.7550.033
t−0.097−0.692−3.5360.012
Note: p is less than 0.05, indicating a significant correlation.
Table 9. Multiple linear regression results for commercial streets.
Table 9. Multiple linear regression results for commercial streets.
ParameterUnstandardized CoefficientStandardized Coefficientt-TestpRegression EquationR2
BBeta
Commercial-NS(constant)1.066 30.7270y = −0.089 H/W + 0.011t + 1.0660.4
H/W−0.089−0.62−1.960.098
t0.0110.1190.3760.72
Commercial-WE(constant)1.119 35.8480y = −0.213 H/W − 0.005t + 1.1190.818
H/W−0.213−0.904−5.1940.002
t−0.005−0.032−0.1840.86
Note: p is less than 0.05, indicating a significant correlation.
Table 10. Multiple linear regression results for ecological streets.
Table 10. Multiple linear regression results for ecological streets.
ParameterUnstandardized CoefficientStandardized Coefficientt-TestpRegression EquationR2
BBeta
Ecological-NS(constant)1.096 261.040y = −0.004 H/W − 0.094t + 1.0960.956
H/W−0.004−0.043−0.4970.637
t−0.094−0.977−11.3910
Ecological-WE(constant)1.055 70.7220y = −0.11 H/W + 0.008t + 1.0550.702
H/W−0.11−0.835−3.7490.01
t0.0080.0630.2840.786
Note: p is less than 0.05, indicating a significant correlation.
Table 11. Multiple linear regression results for residential streets.
Table 11. Multiple linear regression results for residential streets.
ParameterUnstandardized CoefficientStandardized Coefficientt-TestpRegression EquationR2
BBeta
Residential NS(constant)1.221 38.0310y = −0.19 H/W − 0.072t + 1.2210.91
H/W−0.19−0.855−6.980
t−0.072−0.424−3.4620.013
Residential-WE(constant)1.233 54.7280y = −0.254 H/W − 0.073t + 1.2330.99
H/W−0.254−0.931−22.780
t−0.073−0.35−8.5640
Note: p is less than 0.05, indicating a significant correlation.
Disclaimer/Publisher’s Note: The statements, opinions and data contained in all publications are solely those of the individual author(s) and contributor(s) and not of MDPI and/or the editor(s). MDPI and/or the editor(s) disclaim responsibility for any injury to people or property resulting from any ideas, methods, instructions or products referred to in the content.

Share and Cite

MDPI and ACS Style

Bao, J.; Xu, L.; Shi, Y.; Ma, Q.; Lu, Z. The Influence of Street Morphology on Thermal Environment Based on ENVI-met Simulation: A Case Study of Hangzhou Core Area, China. ISPRS Int. J. Geo-Inf. 2023, 12, 303. https://doi.org/10.3390/ijgi12080303

AMA Style

Bao J, Xu L, Shi Y, Ma Q, Lu Z. The Influence of Street Morphology on Thermal Environment Based on ENVI-met Simulation: A Case Study of Hangzhou Core Area, China. ISPRS International Journal of Geo-Information. 2023; 12(8):303. https://doi.org/10.3390/ijgi12080303

Chicago/Turabian Style

Bao, Jin, Lihua Xu, Yijun Shi, Qiwei Ma, and Zhangwei Lu. 2023. "The Influence of Street Morphology on Thermal Environment Based on ENVI-met Simulation: A Case Study of Hangzhou Core Area, China" ISPRS International Journal of Geo-Information 12, no. 8: 303. https://doi.org/10.3390/ijgi12080303

APA Style

Bao, J., Xu, L., Shi, Y., Ma, Q., & Lu, Z. (2023). The Influence of Street Morphology on Thermal Environment Based on ENVI-met Simulation: A Case Study of Hangzhou Core Area, China. ISPRS International Journal of Geo-Information, 12(8), 303. https://doi.org/10.3390/ijgi12080303

Note that from the first issue of 2016, this journal uses article numbers instead of page numbers. See further details here.

Article Metrics

Back to TopTop