Next Article in Journal
“If You Call Yourself a Jew”: A Reconsideration on Identifying Paul’s Interlocutor(s) in Romans 2
Next Article in Special Issue
In the Footsteps of Tradition: Reinventing the Paths of Santa Faz Within the Paradigm of Sustainability and Territorial Development in Alicante
Previous Article in Journal
Socioeconomic Variation in Motivations for Ritual Practice
Previous Article in Special Issue
Constructing Local Religious Landscapes: Spatiotemporal Evolution of Tibetan Buddhist Temples in the Tibetan–Yi Corridor
 
 
Font Type:
Arial Georgia Verdana
Font Size:
Aa Aa Aa
Line Spacing:
Column Width:
Background:
Article

The Baroque Religious Architecture of Paredes de Coura, Portugal, and the Transformation of the Territory

by
Fátima Matos Silva
1,2,3,* and
Carlos Gouveia da Silva
4
1
Department of Tourism, Heritage and Culture, University Portucalense Infante D. Henrique, 4200-072 Porto, Portugal
2
REMIT—Research on Economics, Management and Information Technologies, Portucalense University, 4200-072 Porto, Portugal
3
CITCEM—Transdisciplinary Culture, Space and Memory Research Centre, Porto University, 4150-564 Porto, Portugal
4
Independent Researcher, 4200-072 Porto, Portugal
*
Author to whom correspondence should be addressed.
Religions 2024, 15(12), 1563; https://doi.org/10.3390/rel15121563
Submission received: 25 September 2024 / Revised: 2 December 2024 / Accepted: 15 December 2024 / Published: 21 December 2024

Abstract

This study explores the intricate relationship between Baroque religious architecture and the transformation of the territory in Paredes de Coura, Portugal. Between the second half of the 17th century and the first half of the 19th century, Paredes de Coura, located in northern Portugal, gradually transformed its religious spaces and buildings. Parish communities and private initiatives, driven by a deep religious motivation and favourable conjuncture factors, rebuilt, enlarged, and built dozens of chapels and churches from scratch, mostly in Baroque configuration but with differentiating characteristics. This process gradually gave the rural landscape a unique singularity, i.e., a transformation of significant cultural and historical importance. Numerous artisans constructed these buildings and filled their interior spaces with works of sacred art, mainly carved altars, originating primarily from Paredes de Coura and Alto-Minho municipalities. This systematic study, based on the analysis of contemporary documentation of religious buildings and extensive fieldwork, ensures the thoroughness and reliability of our research and aims to disseminate the data related to this process, presenting an overall reading of religious architecture and seeking to understand the reasons which were at the base of the construction of such a large number of temples in the municipality of Paredes de Coura during this period that changed the territory. This also highlights how Baroque religious architecture was a product of artistic and spiritual ambitions and a powerful agent of territorial reconfiguration, affecting settlement patterns, infrastructure, and social hierarchy. The legacy of these transformations continues to influence the region’s cultural landscape today.

1. Introduction and Historical Contextualization

Born from the complex conjuncture of the Restoration War, the Baroque expanded and triumphantly affirmed itself in the shadow of illusory economic prosperity, supported by the gold and the precious stones that the Kingdom of Portugal imported from Brazil, as well as a significant change introduced in agricultural practices that provided better living conditions for the entire Portuguese population (Angoulvent 1996; Argan 1989; Levenson 1993; Pereira 2009).
The Baroque of the South of Portugal dominated artistically during an essential part of the 18th century, having austere characteristics as monumental classics to the taste of the Italianizing and Germanic Baroque (Santos 1953; Santos n.d.; Serrão 2003).
In the North was the festive Baroque—scenographic, theatrical, exuberant, and sometimes shocking. It is, therefore, in the North of Portugal, especially in Porto, Braga, and Viana do Castelo, among other places, that we ought to focus our research to evaluate the absolute originality and regionality of the Baroque, which we can label Portuguese, and, in the present case, of markedly regional and even rural characteristics—the case of Paredes de Coura (Gonçalves 1969; Reis 1995; Oliveira 1973; Alves 2005).
More than introducing new space solutions, the men of the North of Portugal were mainly concerned with the scenographic effects on the interior and exterior of its religious buildings. These effects provoked joy and enthusiasm in those who witnessed them (Atanásio 1991).
Taking advantage of the northern penchant for festivities, pilgrimages, colour, and extravagance, the Church and the secular institutions that connected to it knew, almost always using the local artists, how to transpose to the stone, the wood, and other materials the scenic motifs that brought the faithful closer to the values of the Christian faith. In sum, the Baroque in the North is presented as a manifestation of sculptors, carvers, and painters (Bury 1956; Alves 2000; Moreira 2021).
As a philosophical, aesthetic, and existential attitude, the Baroque movement sought to provide answers to a pivotal moment in the history of European man and, later, Latin America. As a religious movement, the Baroque responded to the Catholic Church’s need to counter the challenging questions posed by the Protestant-type reformist movements of that time (Gomes 1987). In this perspective, the new artistic style utilised the exuberance of forms to perform various renovations in the erudite churches of the cities and, in the case of Paredes de Coura, in the rural churches. By intervening and renewing, adding richer scenarios, now in the apparatus, and now in the illusion of majesty, the Baroque movement aimed to achieve the principles that were the basis of all Baroque rhetoric: to teach, delight, and convince.
Between the second half of the 17th century and the first half of the 19th century, the municipality of Paredes de Coura, like the municipalities of Alto Minho (northwest of Portugal, Figure 1), gradually transformed its buildings and religious spaces. Driven by diverse factors, parish communities and private initiatives undertook a process of rebuilding, enlarging, and constructing dozens of religious buildings, primarily in Baroque configuration, from scratch. This process, which gradually gave the rural landscape a unique singularity, was marked by the constant presence of bell towers with bulbous trim. In constructing these buildings and the subsequent adornment of their interior space with works of sacred art, mainly carved highs, numerous craftsmen (masons, carvers, carpenters, etc.) from Paredes de Coura and the surrounding municipalities played a significant role.
Through a methodology of resorting, essentially to primary sources, with the study of the original documents deposited in the District Archive of Viana do Castelo, fourteen contracts of the obligation of work and donations for various constructions and extensive fieldwork, supported by a minimal bibliography, the baseline survey of this investigation was made. Based on the study of the fifteen chapels and churches from which documentation exists and that allowed the textual analysis and the analysis and survey of dozens of chapels and churches of the county, we have as an essential purpose the characterisation of religious architecture attributed to the Baroque style existing in the territory belonging to the municipality of Paredes de Coura. We also intend to try to understand the fundamentals of building so many monuments in a geographical space that is not very large and over a relatively short period. The fourteen existing work obligation contracts date between 1739 and 1795, corresponding to a chronological space of only 56 years. Although this finding is not proof that all were built or rebuilt during this period, it stirs curiosity in seeking answers.
This article is organized into four sections for clarity and coherence. The first section, which concludes here, introduces the topic, provides historical context, and outlines the article’s objectives. The second section summarizes the methodology employed to investigate religious architecture. The third section focuses on describing and analyzing the subject of the study. Finally, a discussion of the unique development of the Baroque style in northern Portugal is presented and discussed.

2. Materials and Methods

Given the lack of studies on religious architecture in the geographical area, it has become urgent to study and survey these religious architectural structures and carry out their characterisation. We also raise a pertinent question, which we mentioned above: What was the reason for the construction of so many worship buildings in a relatively short chronological period and in a geographical area that was not very extensive? To try to clarify these issues, we followed a methodology of our own, which was essentially practical.
Using various information provided by the Municipality of Paredes de Coura and other municipal entities, as well as using a survey that was elaborated and distributed through all the parish council presidents and parish priests, we proceeded to inventory all religious architecture of the Baroque period existing in the municipality of Paredes de Coura. With previous knowledge of fact and because the existing data were not abundant nor particularly clarifying, we tried to go directly to the documentary sources. We conducted an exhaustive survey of the notarial and handwritten documentation in the District Archive of Viana do Castelo, where the books referring to the Notary Office of Paredes de Coura are deposited. Of all the available documentation, we mainly collected the one that provided us with more and better information: work obligation contracts. We then dedicate ourselves to its reading, transcription, and analysis. Although few (fourteen), considering the number of existing buildings in the county (about a hundred), the documents in question, as primary and contemporary sources of the architectural constructions they are, proved to be extremely important, due to the richness of data they contained, which made their analysis obligatorily meticulous.
The next phase consisted of a survey of secondary sources, the bibliographical works, which, in some way, were related to the study, through different libraries. Considering that few sources deal with the object of research and that they are limited to a monographic work by Narcizo Alves da Cunha, published in 1909 (with a 1979 reprint), we also resorted to several publications on the geographic and specific area on the theme and period in question (Almeida 1866; Brandão 1998; Correia 1957; Costa 1868; Leal 1873–1886; Oliveira 1976; Vieira 1886, among others).
Later, considering the collected documentary elements, it was necessary to select the buildings to study. Thus, our choice fell on fifteen churches and chapels from whose building process we knew substantial parts through analysing the documents already alluded to—work obligation contracts and other documents we have found. However, in addition to the study of the 15 mentioned, we also surveyed all the churches and chapels of the municipality, totalling 94, from which 74 were chapels, and 20 were churches (Figure 2). Except in the case of the Rubiães Romanesque Church, all others from the 94 (although they may have, in many cases, previous foundations) are chapels built between the 17th and 19th centuries and that, throughout this article, we refer according to the theme under analysis. There are still some more recent ones, built already in the 20th century, which we do not count, such as the Paredes de Coura Church, which replaces an older one that must have been destroyed.
The fifteen churches and chapels, distributed through twelve of the twenty-one parishes according to the map of Figure 3, of which we found the contracts of work obligation and donation for the construction of highs, are as follows:
Agualonga Parish—S. Paio Church;
Cossourado Parish—Cossourado Church and São Bento Chapel;
São Martinho de Coura Parish—Nossa Senhora das Dores Chapel;
Cristelo Parish—Santa Ana Chapel and S. Sebastião Chapel;
Ferreira Parish—Ferreira Church;
Formariz Parish—Nossa Senhora do Livramento Chapel;
Infesta Parish—S. Sebastião Chapel;
Insalde Parish—Insalde Church;
Padornelo Parish—”Ecce Homo” Chapel;
Parada Parish—Nossa Senhora das Dores Chapel;
Paredes de Coura Parish (county seat)—Divino Espírito Santo Chapel (we only have one reference dated from 1706);
Resende Parish—Nossa Senhora da Lapa Chapel;
Vascões Parish—Santo António Chapel.
The fieldwork focused on the inloco study of the selected constructions. To this end, we created a template sheet that assisted in collecting fieldwork data. It followed several points, such as cartographic implantation, architectural and decorative data collection, photographic surveys, and the execution of plants.
The construction and elaboration of plans of chapels and churches, an element rarely used and of great value in the research, made the study quite time-consuming, given the need for permits and measurements of the building’s interior and exterior. With the sketches and the measures taken, the plants were subsequently prepared on millimetric paper, later passed to Chinese ink, and digitised so they could be included in the work. This type of survey was unavoidable, and the only way to approach it was, in fact, through exhaustive in loco recognition. Otherwise, there would be a risk of basing the investigation on theoretical speculation, either because the structures no longer existed or because it was necessary to rely on the population to obtain information. In later desk work, we collected all the material and elements for the written compilation of everything we wished to transmit. Among parish churches, public chapels, and private chapels, nearly a hundred buildings have been inventoried, and virtually all chapels and churches in the county are already there. Although we only have documentation of 15 temples, the detailed fieldwork allowed us to obtain diverse information from the various temples and comprehensively characterise the Rural Baroque architecture from Paredes de Coura.
In summary, we can mention that the methodology followed privileged actions of recognition in the territory as fieldwork since it is practically the only possible way. In parallel, existing documentary, bibliographic, cartographic, and iconographic sources were analysed.
As was evident from the outset, any work intended to be carried out on this theme would face an obstacle difficult to overcome: the absence of credible documentary sources on all monuments that would enable the achievement of historical and chronological elements necessary for the study of each monument, in particular, and religious architecture as a whole. There were also several other obstacles, such as the slowness of the process resulting from the large number of religious structures under study or the difficulty of studying the interior since many were closed1.

3. The Churches of Paredes de Coura

Those who walk today through the municipality of Paredes de Coura will not be indifferent to the many churches and chapels found along the route. In fact, among parish churches, public chapels, and private chapels, there are close to a hundred buildings inventoried, a number worthy of registration for a municipality currently consisting of sixteen parishes (given the recent aggregation of some, the number was originally twenty-one) and a geographical area corresponding to only 138.19 km2.

3.1. The Churches of Paredes de Coura—Exterior

Although it is plausible that many churches have existed since at least the foundation of Portugal, few buildings or vestiges have reached us from these further centuries. Among those that may have existed, it is notable to mention the S. Pedro Church, in Rubiães, of Romanesque origin, probably from the 13th century and enlarged in the 16th and 18th centuries, where the axial portal with three archivolt highlights itself, with many columns on each side and the central column being sculpted with the figures of the angel Gabriel and the Virgin Mary, representing the Annunciation (Almeida 1987, p. 187); some Romanesque architectural elements, datable of the 13th century, present in the current Cunha Church (ibid., p. 187); and the S. Bartolomeu de Antas Chapel, in Rubiães, founded in 1592 by Lopo d’ Antas, ‘the Roman’ (Cunha [1909] 1979), around which six Roman milia stones are placed (Silva 2015, p. 50), with two of them supporting the respective porch. Therefore, most religious monuments currently existing owe their construction to later periods of those mentioned. Both the analysis of the available textual sources and the formal study of the buildings indicate that the chapels and churches of the municipality of Paredes de Coura were built mainly in the period between the second half of the 17th century and the first half of the 19th century, chronologically between 1739 and 1795 (Figure 4). This is not surprising if we consider the apparent similarities between many of them, especially at the facade level.
An architectural reading of the works produced or somewhat intervened over this period allows us to conclude that their composition is identical in almost all cases. In-ground plans, we can generally observe a building in an elongated way, consisting of a single nave—with no construction with side naves in Paredes de Coura—and, at the headboard, of a narrower chancel. As a rule, next to the façade is the bell tower, sometimes on the right or the left, and the top or next to the body of the chancel is the sacristy, also undifferentiated on the right or left.
In some cases, the space reserved for worship is expanded, adding a small side chapel to the nave, as in the eighteenth century in the Espírito Santo Chapel and some parish churches. As can be seen, the differences lie only in the placement of the bell tower and the sacristy, in creating more or fewer dependencies, and in the greater or lesser lengthening of the nave and the chancel. Therefore, the disposition of the central bodies of the temples is almost always identical, with few exceptions being made concerning this rule.
The Ferreira Church, the largest parish church in the municipality of Paredes de Coura, was constructed beginning in the second half of the 18th century and completed in the 19th century. Its design includes a chancel, nave, sacristy, and bell tower. However, additional structures were added around the chancel, increasing the width near the rear of the building (Silva 1993).
The current São Martinho de Coura Church, built at the end of the 18th century, features a Latin cross plan, differing from the usual model. Even so, the current plant does not match the original design, as the right transept arm, which served as a sacristy until the 1960s, was converted into part of the worship space (Silva 1993/1994b).
In all cases, they are small to medium-sized buildings, never reaching the proportions evidenced by most Baroque churches built in urban areas or surrounding municipalities.
The construction of these religious spaces in Paredes de Coura can be framed in chronological and typologically distinct periods. In the first phase, which we can situate roughly between the second half of the 17th century and the first quarter of the 18th century, churches of markedly rural features are built. These are small, simple churches, presenting, on the main façade, a portal of straight lines, a small entrance of light a bit higher and, at the top, a triangular pediment topped by a cross in the center, and pyramids at the lateral ends. Next to the facade is usually a tiny bell tower. Examples can be seen in the Santa Marinha Church (former parish of Padornelo Church), in the Cristelo Church (similar buildings) and in the Vascões Church, where a small bell tower already appears. The large bell towers, which will later characterise the churches of this region, do not exist at this stage.
A new phase then takes place throughout the entire 18th century. The panorama regarding religious architecture is now changing substantially, above all at the level of the main façade, with the appearance of Baroque buildings bearing a new style that is imposing itself and will undergo small evolutions over the years.
The dimensions of the temples increase (but never becoming very large, as mentioned), the lines become undulating and broken, decorative motifs appear involving windows and portals with arched lintel, and the pediments abandon the triangular shape and acquire new contours. The main façade demarcates a central body that rises from the base to the top, as can be seen in the S. Bento Chapel, in Cossourado, and in the Nossa Senhora do Livramento Chapel, in Formariz, where the portal, window, and niche succeed in a continuous vertical axis. In Table 1, we present the churches and chapels for which documentation has been obtained according to the date and parish; we provide the plants we have made and the photographs of the façade, allowing a comparative analysis.
In the last quarter of the eighteenth century, features of the rural Baroque style of architecture began to coexist with what may be called the rural Rococo style, as seen in the Ferreira Church (with its tripartite façade, but with a body of a single nave), the Agualonga Church, and the Ecce Homo Chapel, in Padornelo.
The Ecce Homo Chapel is an example more than evidence of the new taste that was imposed at the time, highlighting the imposing main façade, wisely torn from granite by the hands of master mason João Rodrigues, from the parish of Infesta (Paredes de Coura). The portal, surrounded by undulating decorative motifs, the large window with a profusely decorated frame, the coat of arms of D. Gaspar de Bragança (son of D. João V and Archbishop of Braga) surmounted by the royal crown, and the richly worked pediment of spans, which develop harmoniously upwards, stand out in an unparalleled construction in the municipality of Paredes de Coura. This façade is also enhanced by a front staircase comprising several flights and landings, decorated along its entire length with balustrades and pinnacles.
In the 19th century, the construction rate slowed down a little without, nonetheless, stagnating since, while new buildings continued to be built and others underwent interventions with a view to their enhancement. The dates that appear on the façades of the parish churches of Romarigães (1803, root construction), Formariz (1873, reconstruction), and Infesta (1895, reconstruction) are clear examples (Silva 1993).
Although the available documentation is somewhat unclear, it is believed that the distinctive bell towers featuring bulbous tops began to emerge during the 18th century (Figure 5, Figure 6 and Figure 7). These towers, while not unique to Paredes de Coura, are particularly abundant in this municipality, a proliferation unmatched by that observed in other municipalities, including those in Alto Minho, located in northwestern Portugal.
The origin of this architectural solution and why it came to this region continue to raise doubts among researchers. However, Manuel Moreira, in his work The Baroque in Alto-Minho (Moreira 2006), states that this bell tower finish was created by the masons of Sopo (Vila Nova de Cerveira) and Lanhelas (Caminha) and that these parishes will have radiated to other places.
However, little can be added about this issue since the documentation referring to Paredes de Coura offers little information. The available data only allow for the chronological framing of the evolution of its application, assuming that the building of the tower immediately followed the construction of the bulbous top. The work obligation contracts known refer, in a general way, to the tower’s construction but do not provide details about its configuration.
What we know concretely is that in the bell towers of Paredes de Coura, bulbous tops (bulb-shaped dome or onion-domes) of different shapes were applied, with some very simple and stocky, as can be seen in the bell tower of the Linhares Church; others more elaborate, such as the one in the Espírito Santo Chapel, from the mid-18th century; and even more slender ones, such as the Ecce Homo Chapel, in Padornelo, built in 1871 by António Manuel Góis de Melo, from Lanhelas (Cunha [1909] 1979). On this last tower, Narcizo Alves da Cunha, admiring the elegance of its configuration, wrote the following: “(…) the bell tower, slender, well proportioned, shooting his high arrow into space, is undoubtedly the first of this county” (Cunha [1909] 1979, p. 51).
These bulbed finishes were still applied to the bell towers in the middle of the 20th century in response to the construction in the same year of the bell tower of the nearby Romarigães Church.
Regarding the bell towers, one fact still deserves a particular reference: the non-existence, in Paredes de Coura, of any religious building with two bell towers. Indeed, visible in buildings located near the boundaries of the municipality (see the case of the Sanctuary of Senhor do Socorro, in the parish of Labruja, in Ponte do Lima), this solution does not occur in the ‘courense’ territory even in the larger churches, in which its construction would be justified, even for the sake of symmetry at the level of the main façade.
Two key reasons help explain this phenomenon. First, financial constraints played a major role: constructing even a single bell tower was already a significant expense, as projects often spanned several years, and building two towers would have been prohibitively costly. Second, parochial rivalry influenced decisions, as parishes tended to imitate what was achieved in neighboring communities. The construction of one bell tower in a parish was often met with a similar response nearby. As no parish undertook the construction of two towers, all were left with a single bell tower, creating an unmistakable feature of the rural landscape in the upper Coura River valley.
On this subject, Manuel Moreira writes the following:
“We have no doubts in claiming that these are the most beautiful specimens and characteristics of the whole country [bell towers of Coura and Cerveira]. They are a model that began to be designed in that region and was then exported to other areas, extending in time and space, such is its art and beauty. They’re unique in their kind. They were created by the masons of Sopo and Lanhelas. Its structure is composed of two elements: the body of the tower, which typically encompasses three floors, separated from each other by a recessed cornice, appearing to tear through; the third, the four bells; the top, which forms part of the bulb-shaped dome, the pan or hat or balcony equipped with a balustrade and various pyramids. The originality of these examples resides in the illusion of heights, in the balance and harmony of the lines, in the contrast between the straight and vertical lines of the body, and in the accentuated sinuosity of the dome. Everything comes together in them to reinforce the conquest of heights: disproportion between base and height, the verticality of corners and sharp edges, the projection in the blue sky suggested by the slender and arrow-shaped pyramids, the lightness created by the extensive whitewashed panels, the absence of lush decor. (…) The appearance of this model of bell towers in Alto-Minho, often in complete opposition to the squat appearance of the church body, finds its explanation in its functionality and geographical context. In the Christian tradition, Bells are the voice of God and the community’s life. They invite the faithful to the liturgical celebration, announce the rites of passage, and make known sinister and unexpected events such as fire, piracy, plague, or the presence of gangs. They use a ringing code that the locals know. (…). The need to be heard (…) forced the inhabitants of Alto-Minho to build ever higher towers (…). Beautiful, elegant, light, true arrows or needles defying the heavens, whose construction was only within reach of notable artists, skilled in laying and working granite, here, in short, is the portrait of the most original and genuine element of the baroque ‘alto-minhoto’”.
The small chapels and hermitages that, sometimes throughout the county, were also built with considerable profusion represent another side of the religious architecture of Paredes de Coura. Evidencing a more popular and rural character because they are closer to the communities that built them, creating a greater religious affection (so they continue to protect and preserve them), these simple buildings mirror the devotion that the ‘minhotos’ had for a long time mainly for the Virgin Mary and most saints.
Currently, few chapels, however rich or modest, whose surrounding space does not serve as a stage, once a year, carry out a feast in honour of the patron who gave it its name, in a manifestation of rejoicing the point where the sacred ends and the profane begins. The construction of these small religious monuments in the municipality of Paredes de Coura can be traced back this period. However, in the period chronologically attributable to the Baroque era, for parish churches, the process intensified, extending until the 19th century. They are, in general, constructions of reduced dimensions and of austere lines, following an almost model scheme at the level of the façade: a simple portal bordered by two small windows, a triangular pediment, and, at the top, a cross or a small bell tower bordered by spires.
The variations in this typology are not very significant. It should be noted that in the chapels of S. Silvestre in Ferreira, S. João and Santa Ana in Reirigo, Formariz, and of Nossa Senhora do Pilar in Porreiras, there is evidence of the construction of an outdoor pulpit.
The simplicity in its most evident expression is achieved in the S. Sebastião Chapel in Cristelo, which is so simple and small that Narcizo Alves da Cunha pointed out that the “view from a distance resembles a geodesic landmark” (Cunha [1909] 1979, p. 39).
In the second half of the 18th century, like parish churches, the lines became more undulating and jagged, but never moving away from a general trend of simplicity.
The Nossa Senhora da Conceição Chapel in Ferreira stands out as a unique example within the religious architecture of Paredes de Coura. Its main façade, the robustness of its construction (with walls over one-and-a-half meters thick and a roof made of a granite vault), and the artwork inside the chapel make it exceptional. According to local tradition, the chapel was built based on the initiative of a Portuguese emigrant in Brazil, who, like many others immortalized more by legend than reality, felt threatened one day by a snake. In his distress, he sought the protection of Our Lady of Conception, vowing to build a chapel in her honor on his land if spared.
As the request was fulfilled and he had a considerable quantity of gold, he returned to Paredes de Coura to fulfil the promise made, which he materialised in 1736 (Cunha [1909] 1979; Brandão 1998). We do not know, of course, the story’s veracity and the motivations that would have been at the origin of this chapel. We note that both its construction and the interior decoration introduced in it, especially the gilded works and the various paintings on the walls and ceiling, implied the sensitivity, taste, and investment of significant funds, only possible for a small number of this municipality.
Due to the quality of its façades, two other private buildings justify a particular mention: the Nossa Senhora do Amparo Chapel in Romarigães (Figure 8), and the Nossa Senhora do Rosário Chapel in Linhares (Figure 9). The first, whose bond was established in 1618 by Gonçalo da Cunha (Cunha [1909] 1979), was immortalised by the writer Aquilino Ribeiro (1957) in the novel A Casa Grande de Romarigães and is still considered a singular work throughout the region of Alto-Minho, with several editions. The second, a building from 1753, belonging to Quinta da Cruz, is preceded by a small staircase with a richly crafted and elegant façade that emerges within the surrounding rural environment.
The S. Lourenço Chapel, erected in the place of Cerdeira, parish of Cunha, “is not recommended neither by grandeur, nor by style, nor by wealth. It’s very modest” (Cunha [1909] 1979, p. 414). However, it deserves attention for the symbolism it contains. It was built to commemorate the victory achieved by the Portuguese troops, commanded by the Count of the Prado, D. Francisco de Sousa, against the Spanish military forces, led by D. Baltasar Pantoja, on the night of 9 to 10 August 1662, which became known as the Combats of The Travanca. The victory in these fights, which took place on the day that the Catholic Church consecrated St. Lourenço, was associated with the legend that recalls the saint’s intercession in favour of the Portuguese. The chapel was built in 1670, and to pay the expenses, King D. Afonso VI offered the residents of the place of Cerdeira 100,000 ‘réis’ (Cunha [1909] 1979).
Although the documentary sources do not quantitatively correspond to the considerable number of built temples, it is possible to conclude that in this whole process of constructing chapels and churches, numerous master masons of the municipality of Paredes de Coura have intervened significantly.
According to the information contained in work obligation contracts carried out, we know the activity was developed, mainly in the 18th century, by the master masons António Barbosa (Linhares), António da Cunha (Mozelos), António Ferreira (Ferreira), António José Barbosa (Linhares), António José Fernandes (Porreiras), Brás António da Cunha (Mozelos), Frutuoso da Cunha (Ferreira), João Félix de Sousa (Formariz), João Rodrigues (Infesta), Joaquim da Cunha (Linhares), José Joaquim Fernandes (Rubiães), José Rodrigues (Padornelo), Manuel José Nogueira (Porreiras) and Manuel Mendes (Ferreira), not only in the municipality but also abroad (Silva 2002/2003; Moreira 2006).
Among the names mentioned, to which we must add many others that time has hidden for various reasons, João Rodrigues deserves a special mention. In addition to other works carried out in Paredes de Coura and neighbouring municipalities (namely interventions carried out in the Nossa Senhora da Peneda Sanctuary, in Arcos de Valdevez), it is his own work (as has already been pointed out), the Ecce Homo Chapel in Padornelo, that is viewed as an emblematic work of the architecture built in Paredes de Coura in the 1700s, highlighted by several authors (Oliveira 2003, 2012, 2018, 2021; Moreira 2006, 2021).
When municipal artists were not selected, master masons were hired in the nearest municipalities, namely Caminha, Vila Nova de Cerveira and Valença, with no known records of activity in Paredes de Coura of master masons from lands beyond the limits of Alto Minho, which does not mean, however, that it did not occur (Soromenho 1998).
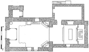
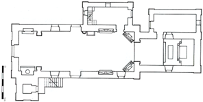
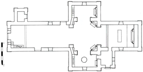
Interestingly, there is no evidence of architects’ direct or indirect involvement in the religious constructions of Paredes de Coura. Similarly, the original plans and related notes, often referenced in work contracts, have not survived. This absence of documentation is one of the reasons why we had to create new plants of these monuments to more effectively analyse the various typologies, the spatial distribution of religious spaces, and their organization concerning the worship of different saints.

3.2. The Churches of Paredes de Coura—Interior

Inside the larger churches and chapels, the space reserved for worship consists of a single nave and the chancel, which is narrower and lowered, is joined by a transept arch, which is generally round and resting on straight feet, and often with a side chapel that opens from the nave.
Both the chancel and the nave almost always have roofs lined with paintings that differ minimally between the various buildings. Eucharistic themes predominate in the chancel, with the Sacred Custody in the centre and the image of the patron saint in the nave.
The nave is also made up of elements common to all constructions: a high choir at the entrance, one or two pulpits on the side walls, a variable number of altars, and a pelmet (Figure 10) to decorate the chancel arch, which follows a configuration with few variants, complemented with gilded carving ornamentation with decorative motifs from the reign of Queen D. Maria.
The chancel is, in turn, dominated almost exclusively by the main altarpiece, where it figures, in the center, the throne, a typical element of the Baroque in Portugal that finds no parallel in catholic Europe at that time (Alves 1989, 2003).
The main reasons for interest in the interior of the churches reside, of course, in the altarpieces. Built in different periods, they reflect different styles, concepts, and ways of carving, which mirror the various tastes and economic capabilities of those who commissioned them.
In fact, the most common and widespread element in the ornamentation of the interior of the churches is the carving. Its forms and colors extend across ceilings, cornices, pediments, and pulpits, creating a distinctive atmosphere.
The ‘courense’ religious art is unique even in this aspect. Contrary to what Robert Smith (1963) pointed out as being characteristic of the art of carving in the Alto Minho region, the “fat carving” of strong Germanic influences does not dominate in this council, but rather minimal carving that is small and very detailed dominates, including the carving called D. Maria, which extends, mostly, across altars of already neoclassical features, but still with archaic persistence, belonging to Rococo ideals (Meco 2009; Sanches 1991). This carving is predominant, but there are also magnificent carvings from the Rococo period, such as the side aisle of the Ferreira Church.
It may be noted that from the Baroque period, not many altars remain. Carried out following the intense construction of religious buildings that crossed the county during this period, they were later replaced by more innovative ones according to the tastes of the various eras and styles. In any case, we can still observe some of these works in the parish churches of Bico (in Figure 11, altars of Souls of Nossa Senhora do Rosário and Nossa Senhora de Fátima, Joanine style), Cristelo (in Figure 12, altars of Nossa Senhora de Fátima and Santo António, in a national style) and, mainly, Mozelos, where the main altarpiece, with a structure in a national style and an upper part in the Joanine style (Figure 13), presents decorative grammar, exuberance and load scenography bearing the values of a church renewed by the Counter-Reformation.
We have records of alters from the Rococo period (Borges 1987). We highlight, by way of example, for its quality, the altar of Nossa Senhora das Dores (Figure 14) of the Parish Church of Infesta, which is somewhat exuberant due to the marble painting of pink and blue tones that were conferred on it; the main altarpiece and side altars of Nossa Senhora do Rosário and of the Sacred Heart of Jesus, from the Parochial Church of Agualonga (Figure 15 and Figure 16), which were both made in the late 18th century by the same carver and the side altars of the Parish Church of Ferreira. They are works of small dimensions and simple details, and gilded carving practically does not occur.
With the arrival of Neoclassicism in Paredes de Coura, many of the altars were again removed and replaced by others with a different shape and decoration. In the early days, the main altarpieces, primarily Baroque, were almost identical in their main lines and the carving decoration, which was minimal and lacy, i.e., the carving from the period of D. Maria. The altarpieces of the Chapel of Ecce Homo (Figure 17) and of the Parish Churches of Infesta (Figure 18), Formariz (Figure 19), and Insalde are similar in every way and attest to this reality.
Soon after, the decoration was abandoned. However, with a similar style, the altars became more austere, as seen in the altar of the Ferreira Church (Figure 20), constructed in the early 19th century.
The taste for the new style was imposed so intensely between customers and artisans that, in some constructions, it eliminated the carving works produced in previous periods. The Chapel of the Divine Holy Spirit in Paredes de Coura was constructed in the 17th century and restructured throughout the 18th century. It has a mostly neoclassical style; other styles were developed in the 20th century. Little remains of the older tastes (Silva 1993/1994a).
The evolution of these currents in the art of carving is also present in the small chapels, where we can admire interesting carving works, mainly in their altarpieces. Very briefly, a mention should be made of the altarpiece in the Chapel of S. Caetano, in Agualonga, with Mannerist persistence and as small as it is popular in flavour (Figure 21), and the altarpiece in the Chapel of S. Pedro (Figure 22 and Figure 23), in Insalde, a work of polychrome carving, unique in the municipality for its characteristics, where the structure and decorative motifs characteristic of the national-style Baroque are present (twisted columns, concentric arch finishing, vine leaves, bunches of grapes, boys, among others).
The altarpiece of the Nossa Senhora da Conceição Chapel in Ferreira (Figure 24, Figure 25 and Figure 26), of Baroque configuration, is a remarkable work of gilded carving of the Joanine period, especially if considered in the context of Baroque art of the county.
The documentary and bibliographical sources related to the work of the stonemasons are very limited; however, they are even scarcer regarding the activity carried out by the carvers.
The few references recorded inform us that some of the carving works scattered throughout the municipality were executed by artists from Paredes de Coura, who, mainly in the second half of the 18th and 19th centuries, dedicated a significant amount of time responding to the growing demand for works to fill the interior spaces of the churches.
Working in the municipality of Paredes de Coura and elsewhere, we are aware of the carvers António José de Barros (Linhares), António José da Silva (Resende), António José da Silva Júnior (Resende), António Pereira (Paredes de Coura), António Rodrigues da Cunha (Linhares), Francisco Pereira Rocha (Ferreira), João Bento Barbosa de Brito (Padornelo), José da Cunha Bacelar (Ferreira) and Manuel Soares (Formariz) (Silva 2002/2003; Moreira 2006), with some of the works and their chronologies perfectly identified.
As was the case with the stonework, the use of Alto Minho artists to operate inside the temples, in the fields of carving, gilding/painting, and carpentry, was also a reality. However, the documentary references did not provide us with much information since, in most cases, they no longer exist, unlike the works that, full of beauty and functionality, still endure.
Regarding the production of religious imagery, no documentary records are known, most likely because the work to be carried out would have been agreed upon orally between the artist and the client, based on mutual trust and not relying on written documentation. For this reason, the names of the men who, in this municipality and in times long past, gave form to many of the saints who continue to inspire the faithful’s devotion remain unknown (Weiz 1997). There are numerous sculptures, most of them from the 17th and 18th centuries, scattered throughout various churches and chapels, whose significance and religious function are crucial in sustaining faith and devotion, and which provide opportunities for various research studies (Ribeiro 2002/2003; Tedim 2002/2003). We present as an example some with clearly Baroque characteristics: Our Lady Head (Ferreira Church, Figure 27), Our Lady of Pain—Mater Dolorosa (Cossourado Church, Figure 28) and Santa Ana Mestra or with the Virgin Girl (Infesta Church, Figure 29).

4. Discussion and Conclusions

From what has been mentioned throughout this work, some ideas can already be reinforced, although some are not conclusive. Regarding the question we are facing about why many cult buildings have been built in a relatively short chronological space and a not a very extensive geographical area, we can obtain the answer to not one but rather a combination of reasons. As a unifying motif, it is necessary to remember the characteristic religiosity of the ‘minhota’ populations that, in their relationship with the Sacred since ancient times, have revealed a propensity to materialise their faith and devotion in constructions of various typologies. In addition to chapels and churches, let us remember the abundance of shrines and crosses built over time, indelibly characterising the ‘minhota’ rural landscape.
Several other motivations must also be taken into consideration, some of a distinct nature, others clearly interconnected:
-
A favourable political situation resulting from the end of the War of the Restoration of Independence of Portugal (1640–1668);
-
A significant change in agricultural practices, which involved increasing corn production and resulting in increased income and improved living conditions for rural communities (and let us remember that, due to the fundamental role it played during the Restoration War in providing this cereal to the troops in conflict and the surrounding populations, the municipality of Paredes de Coura became known as “Celeiro do Minho”);
-
The state of degradation of some of the churches, probably built during the Middle Ages, can be seen from the warnings made when the visitors were present in the parishes;
-
The regional pride characteristic of the region, which explains the construction of several chapels and churches in different parishes practically simultaneously, was most evident in the 1790s.
The application of income from emigrants from Coura in Brazil to construct religious buildings is also documented in Paredes de Coura. However, even in studies with contrary beliefs, the importance that is usually attributed to it, and which traditionally serves as the main justification for the proliferation of religious architecture in this period, is not considered. The motivations set out are partly the result of subjective reading since there are no in-depth investigations into these matters, and, as such, we can only work in the field of hypothesis formulation based on some concrete data.
We do not doubt that in the space of approximately two centuries, in the municipality of Paredes de Coura, there has been a gradual transformation process of its buildings and religious spaces. The intense devotion of the parish and private communities was the foundation that gave strength to the construction, reconstruction, and expansion of dozens of chapels and churches, primarily Baroque in configuration, which gradually gave the rural landscape a unique, marked, singularity from a particular moment onwards, due to the constant presence of bell towers with a bulb-shaped finish.
Churches and chapels are privileged testimonies of the process of sacralisation of the territory. Mostly in excellent condition and with a value of use that remains unchanged through time, it demonstrates the local communities’ religiosity and its strong connection to past generations’ traditions, pilgrimages, and devotions. As such, they are invaluable identity references.
The study was based mainly on an architectural analysis of the buildings. Therefore, this exercise is always fallible and capable of misleading without documentary evidence that supports the studies. On the one hand, as in several constructions, certain architectural solutions characteristic of a specific period are applied in later phases. On the other hand, in the reconstruction of façades, inscriptions are sometimes replaced with dates corresponding to the initial construction and not to the intervention carried out. Some general ideas seen as safe may eventually be based on fallacious interpretations without us being aware.
The insufficiency of the sources currently available to those who intend to deepen the study of the religious architecture of Paredes de Coura was and will be an extraordinarily complex and challenging task to be carried out with positive results. The most suitable strategy and likely to provide more satisfactory results is the establishment of cooperation between those, mainly in Alto Minho, who are dedicated to investigating this heritage and sharing data and experiences. This is a step that has gradually come to fruition through the publication of some works structured around exhaustive documental research and is a task that must be continued.
Although the documentary sources are not sufficiently enlightening, we think that most of the Baroque religious architecture of Paredes de Coura does not owe its initial construction to the 18th century. As we can conclude by analysing the documents, the current churches and chapels are reconstructions of older works, most likely from the 17th century. However, although in some of these documents, the bulk of the structure dates back to the 1600s, its façade—the last part of the work to be carried out—is almost always the result of the 18th century or even a later period. These findings clearly show the remarkable similarity between nearly all of them, especially at the frontage level, which suggests, in turn, the existence of a regional school.
If we look at the data that the work obligation contracts analysed to provide us, we can easily verify that of the fifteen masters hired to perform stonework, eight belong to the municipality of Paredes de Coura, and the remaining seven come from abroad. However, they come from neighbouring municipalities, including three from Vila Nova de Cerveira, two from Valença, and two from Caminha. We can conclude that it is not at all unlikely that there was a circulation of constructive conceptions between them all since the distance that separated them was not significant, thereby providing a proliferation of ideals very close to each other. As we have already mentioned, João Rodrigues stands out from all the masters hired, from Paredes de Coura and from the parish of Infesta, being associated with the most important constructions (and others) in the northwest of Portugal.
In Paredes de Coura, mainly during the chronological period attributable to the Baroque, religious works were produced in considerable quantity but with modest dimensions and very simple characteristics. Without great economic resources, the populations of the upper valley of the Coura River used, in most cases, the wisdom of masters and officers linked to local or regional production, who were undoubtedly less expensive than those who in urban centers embodied the buildings of the Baroque period in the north of the country.
The chapels and churches were thus emerging or being reconstructed in the image of the knowledge and techniques available locally, without significant external influences, except for some pictures that came from abroad that revealed the new trends. Therefore, the main characteristics that defined the Baroque period had a very specific interpretation in this region, sometimes almost familiar, which will explain the similarity between many churches and chapels, both in Paredes de Coura and in parishes of neighbouring municipalities.
Of all the constructions studied, the Igreja Matriz de Ferreira and the chapel of Ecce Homo in Padornelo stand out for their monumentality. While the first has considerable dimensions and stands out for the thickness of its walls, in addition to magnificent works of gilded carving—the best in the municipality—the second stands out for the beauty of its granite façade. It is a unique example of its kind. Both are essential works of art, and undoubtedly, there would have been considerable monetary donations.
However, the architecture of small buildings, with a greater incidence than the previous genre, has several chapels that stand out. One of them, Santa Ana, in Cristelo, has simple and sober characteristics and is full of rusticity, encompassing the so-called Rural Baroque. They reflect a very simple and humble human and geographical environment, where economic income is not significant but where faith and religious belief are entirely impregnated in the mental universe of its people. They are assumed, therefore, to be one of the most characteristic signs of the ‘minhota’ religiosity.
In the art of decorating, as in building, the opposite situation also makes you notice its presence in small-scale buildings. Another case to be highlighted is that of the São Sebastião Chapel in Cristelo, where a single altar of naif features fills the interior space. It contains a popular conception of art and, when contemplated, necessarily refers to the idea that art is not only the erudite forms but everything that expresses a people’s mentality.
Distant geographically and intellectually from the great diffusers of culture, the people of the upper valley of the Coura River only seized from the various artistic currents their master lines, which, then, as time went by, were shaped and worked according to the knowledge, mentality, taste and economic capacity of each one.
Churches and chapels were places of worship but also visual focal points that redefined the surrounding space. These buildings have often become central to the identity of the community, also symbolising the religious authority and influence of the Catholic Church. The territorial changes in Paredes de Coura during this period were closely linked to the growing protagonism of these religious structures. New paths will have been developed to connect the inhabitants of the villages to these spiritual centers, reshaping the physical geography. Architecture also catalysed economic and social change as villages grew around these sacred sites, integrating them into the population’s daily lives.
Signs of faith, art, and culture, a mirror of the convictions and experiences of communities that, for many centuries, had in the Church one of the few means of accessing knowledge—in addition to that acquired in the cyclical sphere of rural daily life, the chapels and churches de Paredes de Coura are, therefore, a unique heritage that is important to understand, study and disseminate, so that people’s memories do not fade and so that this heritage that belongs to everyone in everyone finds its most effective and efficient protection.

Author Contributions

Conceptualization, F.M.S. and C.G.d.S.; analysis, F.M.S. and C.G.d.S.; investigation, F.M.S. and C.G.d.S.; writing—original draft preparation, F.M.S. and C.G.d.S.; writing—review and editing, F.M.S. and C.G.d.S.; visualisation, F.M.S. and C.G.d.S. All authors have read and agreed to the published version of the manuscript.

Funding

This research received no external funding.

Data Availability Statement

The original contributions presented in the study are included in the article. Further inquiries can be directed to the corresponding author.

Acknowledgments

We thank Helena Albuquerque for drawing up the maps of Figure 1 and Figure 3.

Conflicts of Interest

The authors declare no conflict of interest.

Note

1
It was necessary to obtain permits from the various parish priests and willingness to access the buildings, due to the existing mistrust stemming from previous theft and the fact that we are researchers from research institutions outside the county.

References

  1. Primary Sources

    Arquivo Distrital de Viana do Castelo (ADVC), Cartório Notarial de Paredes de Coura, 1º, 2º 3º 4º e 5º Ofícios de Tabelionado, Livros de notas 10, 15, 19, 22, 27, 30, 31, 38, 39, 40, 42, 44, 48, 49, 53, 54, 57 e 67 (manuscripts).
  2. Secondary Sources

  3. Almeida, Carlos Alberto Ferreira. 1987. Alto Minho, 1st ed. Lisboa: Editorial Presença. [Google Scholar]
  4. Almeida, José. 1866. Diccionario Abreviado de Chorographia. 3 vols. Valença. [Google Scholar]
  5. Alves, Joaquim Ferreira. 2005. Ensaio sobre a arquitectura barroca e neoclássica a norte da bacia do Douro. Revista da Faculdade de Letras: Ciências e Técnicas do Património 4: 135–53. [Google Scholar]
  6. Alves, Lourenço. 2000. Arquitectura Religiosa do Alto Minho II: Séc. XVIII ao séc. XX. Viana do Castelo. Escola Superior de Teologia e Ciências Humanas—Instituto Católico. [Google Scholar]
  7. Alves, Natália Ferreira. 1989. A Talha. In Dicionário da Arte Barroca em Portugal. Lisboa: Editorial Presença. [Google Scholar]
  8. Alves, Natália Ferreira. 2003. Pintura, talha e escultura (séculos XVII e XVIII) no norte de Portugal. Revista da Faculdade de Letras: Ciências e Técnicas do Património 2: 735–56. [Google Scholar]
  9. Angoulvent, Anne-Laure. 1996. O Barroco. Lisboa: Publicações Europa-América. [Google Scholar]
  10. Argan, Giulio Carlo. 1989. The Baroque Age. Genève: Skira. [Google Scholar]
  11. Atanásio, Manuel Mendes. 1991. O barroco e a cultura religiosa. In Congresso Internacional do Barroco. Porto: p. 151. [Google Scholar]
  12. Borges, Nélson Correia. 1987. Do Barroco ao Rococó. In História de Arte em Portugal. Lisboa: Alfa, vol. 9. [Google Scholar]
  13. Brandão, Manuel da Cunha. 1998. Efemérides de Coura, 3ª edição. Câmara Municipal de Paredes de Coura. [Google Scholar]
  14. Bury, J. B. 1956. Late Baroque and Rococo in North Portugal. Journal of the Society of Architectural Historians 15: 7–15. [Google Scholar] [CrossRef]
  15. Correia, José. 1957. Cidades e Vilas de Portugal. Paredes de Coura: V. N. de Famalicão. [Google Scholar]
  16. Costa, António. 1868. Corografia Portugueza. I, Lisboa. pp. 261–63. [Google Scholar]
  17. Cunha, Narcizo Alves. 1979. No Alto Minho. Paredes de Coura, 2nd ed. Paredes de Coura. First published 1909. [Google Scholar]
  18. Direção-Geral do Território. 2023. Carta Administrativa Oficial de Portugal—CAOP2023 (Continente). Licença de Utilização—CC-BY-4.0. Available online: https://creativecommons.org/licenses/by/4.0/ (accessed on 13 May 2023).
  19. Gomes, Paulo. 1987. O essencial Sobre a Arquitectura Barroca em Portugal. Lisboa: Imprensa Nacional Casa da Moeda. [Google Scholar]
  20. Gonçalves, Flávio. 1969. Um Século de Arquitetura e Talha no Noroeste de Portugal: 1750–1850. Porto. [Google Scholar]
  21. Leal, Pinho. 1873–1886. Portugal Antigo e Moderno. 8 vols. Lisboa. [Google Scholar]
  22. Levenson, Jay. 1993. The Age of the Baroque in Portugal. New Haven and London: Yale University Press. [Google Scholar]
  23. Meco, José. 2009. Talha, Arte Portuguesa. Da Pré-História ao século XX. Lisboa: Fubu Editores, vol. 13, pp. 75–109. [Google Scholar]
  24. Moreira, Manuel. 2006. O Barroco no Alto-Minho. In Centro de Estudos Regionais. Viana do Castelo. [Google Scholar]
  25. Moreira, Manuel. 2021. O património do barroco: Contributo para um olhar sobre o barroco no alto Minho. In Viagem no Tempo História e Património Cultural do Alto Minho. Centro Cultural do Alto Minho, Edição Comunidade Intermunicipal do Alto Minho, Viana do Castelo: pp. 253–63. [Google Scholar]
  26. Oliveira, António. 1973. Elementos para a História do Barroco no Noroeste Português. Porto. [Google Scholar]
  27. Oliveira, António. 1976. Terras de Coura. Póvoa de Varzim. [Google Scholar]
  28. Oliveira, Eduardo Pires. 2003. Artistas minhotos a trabalhar nas dioceses de Lamego e Viseu no século XVIII. IN: Os alvores do rococó em Guimarães e outros estudos sobre o barroco e o rococó do Minho. Braga: APPACDM Distrital de Braga, p. 306. [Google Scholar]
  29. Oliveira, Eduardo Pires. 2012. André Soares e o rococó do Minho. 4 vols. Tese de doutoramento apresentada à Faculdade de Letras/Universidade do Porto. Available online: http://hdl.handle.net/10216/62456 (accessed on 13 May 2023).
  30. Oliveira, Eduardo Pires. 2018. A Capela do Senhor Ecce Homo, Padornelo, Paredes de Coura. Paredes de Coura. [Google Scholar]
  31. Oliveira, Eduardo Pires. 2021. O Património do Barroco. Do Rigor do Risco ao Esplendor da Forma: A Arte no Alto Minho nos Séculos XVII e XVIII. In Viagem no Tempo História e Património Cultural do Alto Minho. Centro Cultural do Alto Minho, Edição Comunidade Intermunicipal do Alto Minho, Viana do Castelo. [Google Scholar]
  32. Pereira, José F. 2009. Estética Barroca I: A Arquitectura. In Arte Portuguesa. Da Pré-História ao século XX. Lisboa: Fubu Editores, vol. 12, pp. 9–85. [Google Scholar]
  33. Reis, António Matos. 1995. Caminhos da História da Arte no Noroeste de Portugal no primeiro quartel do séc. XVIII. Cadernos Vianenses 19: 155–71. [Google Scholar]
  34. Ribeiro, Aquilino. 1957. A Casa Grande de Romarigães. Porto: Livraria Bertrand. [Google Scholar]
  35. Ribeiro, José Manuel. 2002/2003. Significado e Função das Imagens. In Imaginária Religiosa Barroca. Paredes de Coura: pp. 13–17. [Google Scholar]
  36. Sanches, Martins F. 1991. Trono eucarístico do retábulo Barroco Português: Origem, Função, Forma e Simbolismo. In Actas do I Congresso Internacional do Barroco. Porto: Reitoria da Universidade do Porto, vol. 2, pp. 17–58. [Google Scholar]
  37. Santos, Reynaldo. n.d. Oito séculos de Arte Portuguesa. Lisboa: Empresa Nacional de Publicidade.
  38. Santos, Reynaldo. 1953. História da Artes em Portugal. Porto: Portucalense Editora, vol. III. [Google Scholar]
  39. Serrão, Vítor. 2003. História da Arte em Portugal, o Barroco. Lisboa: Presença. [Google Scholar]
  40. Sevdari, Kristian, and Drin Marmullaku. 2023. Shapefile of European Countries. Lyngby: Technical University of Denmark, This Dataset Is Distributed Under a CCBY-NC-SA 4.0 License. [Google Scholar] [CrossRef]
  41. Silva, Carlos Gouveia. 1993. Igrejas Barrocas do Concelho de Paredes de Coura. In Cadernos de Arqueologia e Património. Câmara Municipal de Paredes de Coura, Paredes de Coura. [Google Scholar]
  42. Silva, Carlos Gouveia. 1993/1994a. A Igreja do Divino Espírito Santo: Primeiras Considerações. Cadernos de Arqueologia e Património, Paredes de Coura 2/3: 97–117. [Google Scholar]
  43. Silva, Carlos Gouveia. 1993/1994b. Subsídios para a História da Igreja Matriz de Ferreira: Novas Considerações sobre a Capela-Mor. Cadernos de Arqueologia e Património 2/3: 133–42. [Google Scholar]
  44. Silva, Carlos Gouveia. 2002/2003. A Talha em Paredes de Coura: Os artistas, o tempo e a obra. In Imaginária Religiosa Barroca. Paredes de Coura 2002/2003. Paredes de Coura: pp. 18–22. [Google Scholar]
  45. Silva, Fátima Matos. 2015. Montes, Pedras e Gente—A Ocupação Proto-Histórica do vale Superior do Coura. Idioteque, Colecção IdioScience, Santo Tirso. 298p. [Google Scholar]
  46. Smith, Robert C. 1963. A Talha em Portugal. Livros Horizonte. Oficinas Gráficas da Editorial Minerva. Lisboa. [Google Scholar]
  47. Soromenho, Miguel. 1998. Contributos Para a História de Arte no Alto-Minho Nos Séculos XVII e XVIII—1: Uma Linhagem de Pedreiros do Noroeste: Os Alves do Rego. Viana do Castelo: Câmara Municipal de Viana do Castelo, vol. 23, pp. 221–42. [Google Scholar]
  48. Tedim, José M. 2002/2003. Lendo o Barroco. In Imaginária Religiosa Barroca. Paredes de Coura: pp. 11–12. [Google Scholar]
  49. Vieira, José A. 1886. O Minho Pittoresco. I, Lisboa. pp. 121–41. [Google Scholar]
  50. Weiz, Suely de Godoy. 1997. Imagem Barroca instrumento de persuasão. In Actas do III colóquio luso-brasileiro de História de Arte. Évora: Universidade de Évora, pp. 55–64. [Google Scholar]
Figure 1. Location of the municipality of Paredes de Coura in Portugal and the Iberian Peninsula. Source: Cartography by Helena Albuquerque, based on CAOP (Carta Administrativa Oficial de Portugal (Direção-Geral do Território 2023) and (Sevdari and Marmullaku 2023)).
Figure 1. Location of the municipality of Paredes de Coura in Portugal and the Iberian Peninsula. Source: Cartography by Helena Albuquerque, based on CAOP (Carta Administrativa Oficial de Portugal (Direção-Geral do Território 2023) and (Sevdari and Marmullaku 2023)).
Religions 15 01563 g001
Figure 2. Quantitative distribution by the parish of the churches and chapels of the municipality of Paredes de Coura. Source: authors.
Figure 2. Quantitative distribution by the parish of the churches and chapels of the municipality of Paredes de Coura. Source: authors.
Religions 15 01563 g002
Figure 3. Location of the 15 chapel churches, of which there is documentation—contracts for the obligation of work. Cartography by Helena Albuquerque, based on CAOP (Carta Administrativa Oficial de Portugal (Direção-Geral do Território 2023)).
Figure 3. Location of the 15 chapel churches, of which there is documentation—contracts for the obligation of work. Cartography by Helena Albuquerque, based on CAOP (Carta Administrativa Oficial de Portugal (Direção-Geral do Território 2023)).
Religions 15 01563 g003
Figure 4. Chronology of documentary references—work obligation contracts. Source: authors.
Figure 4. Chronology of documentary references—work obligation contracts. Source: authors.
Religions 15 01563 g004
Figure 5. Bell towers with a bulbous top from Divino Espírito Santo Chapel. Source: authors.
Figure 5. Bell towers with a bulbous top from Divino Espírito Santo Chapel. Source: authors.
Religions 15 01563 g005
Figure 6. Bell tower with a bulbous top from Ecce Homo Chapel. Source: authors.
Figure 6. Bell tower with a bulbous top from Ecce Homo Chapel. Source: authors.
Religions 15 01563 g006
Figure 7. Bell tower with a bulbous top from Linhares Church. Source: authors.
Figure 7. Bell tower with a bulbous top from Linhares Church. Source: authors.
Religions 15 01563 g007
Figure 8. Nossa Senhora do Amparo Chapel in Romarigães. Source: authors.
Figure 8. Nossa Senhora do Amparo Chapel in Romarigães. Source: authors.
Religions 15 01563 g008
Figure 9. Nossa Senhora do Rosário Chapel in Linhares. Source: authors.
Figure 9. Nossa Senhora do Rosário Chapel in Linhares. Source: authors.
Religions 15 01563 g009
Figure 10. Pelmet to adorn the cruise arch in Ferreira Church. Source: authors.
Figure 10. Pelmet to adorn the cruise arch in Ferreira Church. Source: authors.
Religions 15 01563 g010
Figure 11. Baroque altar: Bico Church, Joanine style. Source: authors.
Figure 11. Baroque altar: Bico Church, Joanine style. Source: authors.
Religions 15 01563 g011
Figure 12. Baroque altar: Cristelo Church, national style. Source: authors.
Figure 12. Baroque altar: Cristelo Church, national style. Source: authors.
Religions 15 01563 g012
Figure 13. Baroque altar: Mozelos Church, national style and Joanino superior finish. Source: authors.
Figure 13. Baroque altar: Mozelos Church, national style and Joanino superior finish. Source: authors.
Religions 15 01563 g013
Figure 14. Rococo Altar: Our Lady of Pain of the Infesta Church. Source: authors.
Figure 14. Rococo Altar: Our Lady of Pain of the Infesta Church. Source: authors.
Religions 15 01563 g014
Figure 15. Rococo Altar: Our Lady of the Rosary, Agualonga Church. Source: authors.
Figure 15. Rococo Altar: Our Lady of the Rosary, Agualonga Church. Source: authors.
Religions 15 01563 g015
Figure 16. Rococo Altars: High Altar, Agualonga Church. Source: authors.
Figure 16. Rococo Altars: High Altar, Agualonga Church. Source: authors.
Religions 15 01563 g016
Figure 17. Altarpiece of D. Maria’s period from Ecce Homo Chapel. Source: authors.
Figure 17. Altarpiece of D. Maria’s period from Ecce Homo Chapel. Source: authors.
Religions 15 01563 g017
Figure 18. Altarpiece of D. Maria’s period from Infesta Churche. Source: authors.
Figure 18. Altarpiece of D. Maria’s period from Infesta Churche. Source: authors.
Religions 15 01563 g018
Figure 19. Altarpiece of D. Maria’s period from Formariz Church. Source: authors.
Figure 19. Altarpiece of D. Maria’s period from Formariz Church. Source: authors.
Religions 15 01563 g019
Figure 20. Altarpiece of the Ferreira Church. Source: authors.
Figure 20. Altarpiece of the Ferreira Church. Source: authors.
Religions 15 01563 g020
Figure 21. Altarpiece of S. Caetano Chapel, in Agualonga. Source: authors.
Figure 21. Altarpiece of S. Caetano Chapel, in Agualonga. Source: authors.
Religions 15 01563 g021
Figure 22. Altarpiece of the S. Pedro Chapel, in Insalde. Source: authors.
Figure 22. Altarpiece of the S. Pedro Chapel, in Insalde. Source: authors.
Religions 15 01563 g022
Figure 23. Detail of the Altarpiece and S. Pedro Chapel, in Insalde. Source: authors.
Figure 23. Detail of the Altarpiece and S. Pedro Chapel, in Insalde. Source: authors.
Religions 15 01563 g023
Figure 24. Façade of the Nossa Senhora da Conceição Chapel in Ferreira. Source: authors.
Figure 24. Façade of the Nossa Senhora da Conceição Chapel in Ferreira. Source: authors.
Religions 15 01563 g024
Figure 25. Altarpiece of the Nossa Senhora da Conceição Chapel in Ferreira. Source: authors.
Figure 25. Altarpiece of the Nossa Senhora da Conceição Chapel in Ferreira. Source: authors.
Religions 15 01563 g025
Figure 26. Pulpit of the Nossa Senhora da Conceição Chapel in Ferreira. Source: authors.
Figure 26. Pulpit of the Nossa Senhora da Conceição Chapel in Ferreira. Source: authors.
Religions 15 01563 g026
Figure 27. Imaginary Baroque of the 18th century: Nossa Senhora da Cabeça. Source: authors.
Figure 27. Imaginary Baroque of the 18th century: Nossa Senhora da Cabeça. Source: authors.
Religions 15 01563 g027
Figure 28. Imaginary Baroque of the 18th century: Nª Sª das Dores. Source: authors.
Figure 28. Imaginary Baroque of the 18th century: Nª Sª das Dores. Source: authors.
Religions 15 01563 g028
Figure 29. Imaginary Baroque of the 18th century: Santa Ana Mestra. Source: authors.
Figure 29. Imaginary Baroque of the 18th century: Santa Ana Mestra. Source: authors.
Religions 15 01563 g029
Table 1. The churches and chapels from which documentation has been obtained. Source of photos and plants: authors.
Table 1. The churches and chapels from which documentation has been obtained. Source of photos and plants: authors.
Name and Date of the Work Obligation ContractPlantChurch or Chapel Façade
S. Paio de
Agualonga Church
19 February 1786
Religions 15 01563 i001Religions 15 01563 i002
Cossourado Church
2 April 1774
Religions 15 01563 i003Religions 15 01563 i004
S. Bento Chapel, Cossourado
7 September 1739
Religions 15 01563 i005Religions 15 01563 i006
N. S. Dores
Chapel,
S. Martinho de Coura
20 September 1795
Religions 15 01563 i007Religions 15 01563 i008
Santa Ana Chapel,
Cristelo
13 December 1767
Religions 15 01563 i009Religions 15 01563 i010
S. Sebastião Chapel, Cristelo
26 May 1785
Religions 15 01563 i011Religions 15 01563 i012
Ferreira Church
2 February 1783
Religions 15 01563 i013Religions 15 01563 i014
N. S. Livramento Chapel, Formariz
14 October 1746
Religions 15 01563 i015Religions 15 01563 i016
S. Sebastião Chapel, Infesta
15 July 1790
Religions 15 01563 i017Religions 15 01563 i018
Insalde Church
25 February 1791
Religions 15 01563 i019Religions 15 01563 i020
Ecce Homo Chapel,
Padornelo
1776
Religions 15 01563 i021Religions 15 01563 i022
N. S. Dores
Chapel,
Parada
13 December 1789
Religions 15 01563 i023Religions 15 01563 i024
Divino Espírito Santo Chapel,
Paredes de Coura
1706 (1st reference)
Religions 15 01563 i025Religions 15 01563 i026
N. S. Lapa
Chapel, Resende
15 January 1764
Religions 15 01563 i027Religions 15 01563 i028
Santo António Chapel, Vascões
17 September 1741
Religions 15 01563 i029Religions 15 01563 i030
Disclaimer/Publisher’s Note: The statements, opinions and data contained in all publications are solely those of the individual author(s) and contributor(s) and not of MDPI and/or the editor(s). MDPI and/or the editor(s) disclaim responsibility for any injury to people or property resulting from any ideas, methods, instructions or products referred to in the content.

Share and Cite

MDPI and ACS Style

Silva, F.M.; da Silva, C.G. The Baroque Religious Architecture of Paredes de Coura, Portugal, and the Transformation of the Territory. Religions 2024, 15, 1563. https://doi.org/10.3390/rel15121563

AMA Style

Silva FM, da Silva CG. The Baroque Religious Architecture of Paredes de Coura, Portugal, and the Transformation of the Territory. Religions. 2024; 15(12):1563. https://doi.org/10.3390/rel15121563

Chicago/Turabian Style

Silva, Fátima Matos, and Carlos Gouveia da Silva. 2024. "The Baroque Religious Architecture of Paredes de Coura, Portugal, and the Transformation of the Territory" Religions 15, no. 12: 1563. https://doi.org/10.3390/rel15121563

APA Style

Silva, F. M., & da Silva, C. G. (2024). The Baroque Religious Architecture of Paredes de Coura, Portugal, and the Transformation of the Territory. Religions, 15(12), 1563. https://doi.org/10.3390/rel15121563

Note that from the first issue of 2016, this journal uses article numbers instead of page numbers. See further details here.

Article Metrics

Back to TopTop