Study on an Optimal Strut-And-Tie Model for Concrete Deep Beams
Abstract
1. Introduction
2. Experimental Design
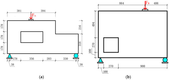
2.1. Specimen Geometry
2.2. STM Model Construction
2.3. Reinforcement Design
2.4. Specimen Preparation and Installation
2.5. Material Property Test
3. Test Results and Analysis
3.1. Crack Morphology
3.2. Mechanical Properties
3.3. Amount of Steel Used
4. Conclusions
Author Contributions
Funding
Conflicts of Interest
References
- Smarzewski, P. Analysis of Failure Mechanics in Hybrid Fibre-Reinforced High-Performance Concrete Deep Beams with and without Openings. Materials 2019, 12, 101. [Google Scholar] [CrossRef] [PubMed]
- Marti, P. Basic tools of reinforced concrete beam design. J. Am. Concr. Inst. 1985, 82, 46–56. [Google Scholar]
- Schlaich, J.; Schäfer, K. Towards a consistent design of reinforced concrete structures. IABSE Congress Report = Rapport du Congrès AIPC = IVBH Kongressbericht, Band (Jahr) 1984, 12, 887–894. [Google Scholar] [CrossRef]
- Breen, J.E.; Burdet, O.; Roberts, C.; Sanders, D.; Wollmann, G. Anchorage Zone Reinforcement for Post-Tensioned Concrete Girders; NCHRP Report; Transportation Research Board: Washington, DC, USA, 1994; Available online: http://onlinepubs.trb.org/Onlinepubs/nchrp/nchrp_rpt_356.pdf (accessed on 21 August 2019).
- Chen, B.S.; Hagenberger, M.J.; Breen, J.E. Evaluation of strut-and-tie modeling applied to dapped beam with opening. ACI Struct. J. 2002, 99, 445–450. [Google Scholar]
- Novak, L.C.; Sprenger, H. Example 4: Deep Beam with Opening. In Examples for the Design of Structural Concrete with Strut-and-Tie Models, Proceedings of the ACI Fall Convention, Phoenix, AZ, USA, 27 October–1 November 2002; American Concrete Institute: Farmington Hills, MI, USA, 2002; pp. 129–143. Available online: http://worldcat.org/isbn/0870310860 (accessed on 21 August 2019).
- American Concrete Institute. Building Code Requirements for Structural Concrete (ACI 318-02) and Commentary; ACI: Farmington Hills, MI, USA, 2002. [Google Scholar]
- Ye, L.P.; Meng, J.; Wang, Y.H. Application of Strut-and-tie Model in Design of Reinforced Concrete Deep Beams. J. Arch. Civ. Eng. 2009, 26, 81–86. [Google Scholar]
- American Concrete Institute. Building Code Requirements for Structural Concrete (ACI 318M–05) and Commentary; ACI: Farmington Hills, MI, USA, 2005. [Google Scholar]
- The State Standard of the People’s Republic of China. Code for Design of Concrete Structures (GB50010-2010); China Architecture & Building Press: Beijing, China, 2010. [Google Scholar]
- American Association of State Highway and Transportation Officials. AASHTO LRFD Bridge Design Specifications; American Association of State Highway and Transportation Officials: Washington, DC, USA, 2007. [Google Scholar]
- Deutsche Norm, Concrete, Reinforced and Prestressed Concrete Structures-Part 1:3 Design and Construction, Corrigenda to DIN 1045-1:2001-07; German Institute for Standardisation (Deutsches Institut für Normung): Berlin, Germany, 2008.
- Canadian Standards Association (CSA). Design of Concrete Structures for Buildings (CAN3-A23.3-M84); CSA: Toronto, ON, Canada, 1984. [Google Scholar]
- Xie, Y.M.; Steven, G.P. A simple evolutionary procedure for structural optimization. Comput. Struct. 1993, 49, 885–896. [Google Scholar] [CrossRef]
- Yang, X.Y.; Xie, Y.M.; Steven, G.P.; Querin, O.M. Bidirectional Evolutionary Method for Stiffness Optimization. AIAA J. 1999, 37, 1483–1488. [Google Scholar] [CrossRef]
- Herranz, U.P.; María, H.S.; Gutiérrez, S.; Riddell, R. Optimal Strut-and-Tie Models Using the Full Homogenization Optimization Method. ACI Struct. J. 2012, 109, 605–614. [Google Scholar]
- Victoria, M.; Querin, O.M.; Martí, P. Generation of strut-and-tie models by topology design using different material properties in tension and compression. Struct. Multidiscip. Optim. 2011, 44, 247–258. [Google Scholar] [CrossRef]
- Muttoni, A.; Ruiz, M.F.; Niketic, F. Design versus assessment of concrete structures using stress fields and strut-and-tie models. ACI Struct. J. 2015, 112, 605–616. [Google Scholar] [CrossRef]
- Ali, M.A.; White, R.N. Formulation of optimal strut-and-tie models in design of reinforced concrete structures. Spec. Publ. 2000, 193, 979–998. [Google Scholar]
- Wang, C.; Huang, H.; Liu, B.; Xiao, J. Reinforcement design and nonlinear finite element analysis of concrete deep beam with abnormal opening. Build. Struct. 2015, 45, 525–529. [Google Scholar]
- Huang, X.; Xie, Y.M. Evolutionary Topology Optimization of Continuum Structures: Methods and Applications; John Wiley and Sons Ltd.: Chichester, West Sussex, UK, 2010; pp. 17–38. [Google Scholar]
- Sun, X.F.; Yang, J.; Xie, Y.M.; Huang, X.; Zuo, Z.H. Topology Optimization of Composite Structure Using Bi-Directional Evolutionary Structural Optimization Method. Procedia Eng. 2011, 14, 2980–2985. [Google Scholar] [CrossRef][Green Version]
- Ley, M.T.; Riding, K.A.; Bae, S.; Breen, J.E. Experimental Verification of Strut-and-Tie Model Design Method. ACI Struct. J. 2007, 104, 749–755. [Google Scholar]
- Maxwell, B.S.; Breen, J.E. Experimental evaluation of strut-and-tie model applied to deep beam with opening. ACI Struct. J. 2000, 97, 142–148. [Google Scholar]
- American Concrete Institute. Building Code Requirements for Structural Concrete (ACI 318-08) and Commentary; American Concrete Institute: Farmington Hills, MI, USA, 2008. [Google Scholar]
- The State Standard of the People’s Republic of China. Tensile Testing of Metallic Materials Part 1: Method of Test at Room Temperature (GB/T228.1-2010); China Architecture & Building Press: Beijing, China, 2010. [Google Scholar]
- The State Standard of the People’s Republic of China. Standard for Test Method of Mechanical Properties on Ordinary Concrete (GB/T50081-2002); China Architecture & Building Press: Beijing, China, 2002. [Google Scholar]


















| Diameter (mm) | Yield Strength fy,m (MPa) | Ultimate Strength fu,m (MPa) | Yield Strain εy,m (10−6) |
|---|---|---|---|
| 8 | 332 | 420 | 1661 |
| 10 | 340 | 511 | 1701 |
| 12 | 497 | 626 | 2483 |
| Specimen | Pc (kN) | Pd (kN) | Pu (kN) | Cw (mm) | Δd (mm) | Δu (mm) | Pu/Pd |
|---|---|---|---|---|---|---|---|
| A-01 | 5.5 | 40 | 5.5 | - | - | 0.75 | 0.14 |
| A-02 | 30 | 40 | 55 | 0.4 | 2.25 | 5.70 | 1.38 |
| A-03 | 26 | 40 | 45 | 0.5 | 2.80 | 4.30 | 1.13 |
| A-04 | 33 | 40 | 59 | 0.3 | 2.10 | 5.60 | 1.48 |
| B-01 | - | 100 | 22 | - | - | 0.60 | 0.22 |
| B-02 | 85 | 100 | 120 | 0.3 | 2.69 | 3.98 | 1.20 |
| B-03 | 91 | 100 | 136 | 0.4 | 2.17 | 3.71 | 1.36 |
| B-04 | 95 | 100 | 141 | - | 2.54 | 4.73 | 1.41 |
© 2019 by the authors. Licensee MDPI, Basel, Switzerland. This article is an open access article distributed under the terms and conditions of the Creative Commons Attribution (CC BY) license (http://creativecommons.org/licenses/by/4.0/).
Share and Cite
Chen, H.; Wang, L.; Zhong, J. Study on an Optimal Strut-And-Tie Model for Concrete Deep Beams. Appl. Sci. 2019, 9, 3637. https://doi.org/10.3390/app9173637
Chen H, Wang L, Zhong J. Study on an Optimal Strut-And-Tie Model for Concrete Deep Beams. Applied Sciences. 2019; 9(17):3637. https://doi.org/10.3390/app9173637
Chicago/Turabian StyleChen, Haitao, Lai Wang, and Jitao Zhong. 2019. "Study on an Optimal Strut-And-Tie Model for Concrete Deep Beams" Applied Sciences 9, no. 17: 3637. https://doi.org/10.3390/app9173637
APA StyleChen, H., Wang, L., & Zhong, J. (2019). Study on an Optimal Strut-And-Tie Model for Concrete Deep Beams. Applied Sciences, 9(17), 3637. https://doi.org/10.3390/app9173637

