Multi-Objective Optimization for Controlling Conflicts in Roadway Surrounding Rock Induced by Floor Stress-Relief Groove
Abstract
1. Introduction
2. Methodology
2.1. Engineering Background
2.1.1. Characteristics of the Main Mining Coal (Rock) Seams
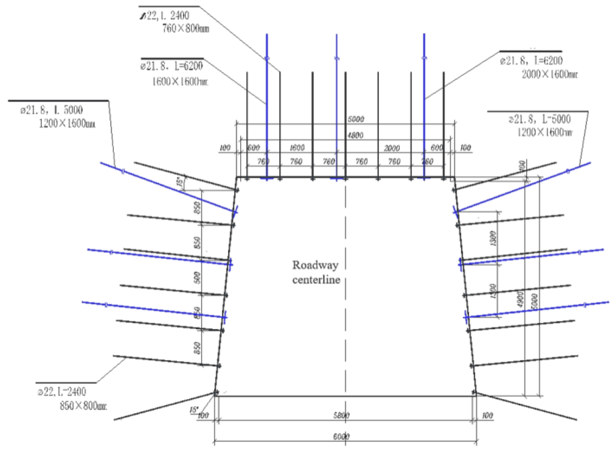
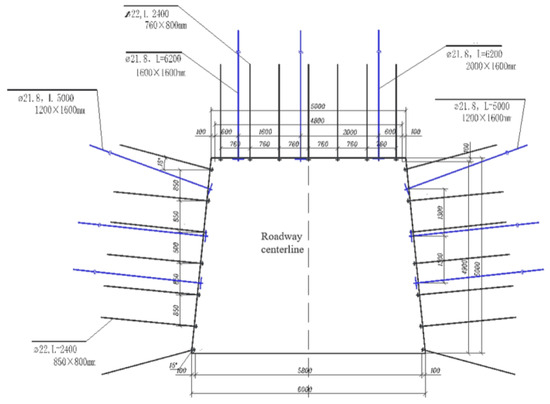
2.1.2. Roadway Support Program
2.2. Numerical Simulation of Floor Stress-Relief Groove
2.2.1. Numerical Simulation Modeling
2.2.2. Numerical Simulation Program Design
2.2.3. Stress Monitoring Methods
2.2.4. Calculation of the Volume of the Plastic Zone
2.3. Multi-Objective Optimization of Stress-Relief Groove Parameters
2.3.1. Feature Engineering and Evaluation Indicators
2.3.2. Description of the Dataset
2.3.3. Objective Function Construction
2.3.4. Multi-Objective Optimization Theory
- Pareto dominance: for multiple objective values, random independent variables x1, x2, for any objective function with f(x1) < f(x2), then x1 dominates x2.
- Weak dominance: for multiple objective values, random independent variables x1, x2, for an objective function with f(x1) <= f(x2), and there exists at least one objective function with g(x1) < g(x2), and then x1 weakly dominates x2.
- Mutual non-dominance: For multiple objective values, random independent variables x1 and x2 such that f(x1) <= f(x2), and, at the same time, there exists an objective function g(x1) > g(x2), then x1 and x2 do not dominate each other.
2.3.5. Self-Elitism Genetic Algorithm (SEGA)
3. Results and Discussion
3.1. Numerical Simulation of Stress-Relief Groove Utility Analysis
3.1.1. Grooving of the Floor-Middle for Stress-Relief
- (i)
- Concentration of stress in the surrounding Rock
- (ii)
- Trends in perimeter surrounding rock displacement
- (iii)
- Plastic zone of the surrounding rock
3.1.2. Grooving of the Floor-Side Corner for Stress-Relief
- (i)
- Concentration of stress in the surrounding rock
- (ii)
- Trends in perimeter surrounding rock displacement
- (iii)
- Plastic zone of the surrounding rock
3.1.3. Perimeter Rock Condition After Backfilling of Stress-Relief Groove
3.1.4. Influence of Pressure Relief Tanks on Roadway Support
3.1.5. Summary of the Effects of Trenching and Unloading on the Surrounding Rock
- (i)
- Grooving for stress relief exhibits significant stress transfer effects, with a clear trend of stress concentration moving in the direction away from the tunnel. Central grooving proves to be more effective than corner grooving, as corner grooving can cause a certain degree of asymmetric stress distribution.
- (ii)
- While floor grooving reduces displacement at the tunnel floor, it increases displacement at the tunnel sides, with the impact of the groove’s depth being more significant than its width. Changes in the tunnel structure due to grooving may lead to conflicts in surrounding rock control; however, backfilling the central floor post-grooving can effectively reduce side displacements.
- (iii)
- As the depth and width of the groove increase, the volume of the plastic zone continuously decreases. Under high-ground stress conditions, support measures can slightly reduce the volume of the plastic zone, although this reduction is relatively modest.
3.2. Multi-Objective Optimization of Stress-Relief Groove Parameters
3.2.1. SEGA Optimization Machine Learning Hyperparameters
3.2.2. Multi-Objective Optimization
- No. 1: Floor-side groove with dimensions 1.8 m × 0.5 m
- No. 2: Floor-central groove with dimensions 0.7 m × 1.5 m
- No. 3: Floor-central groove with dimensions 1.1 m × 1.8 m
- No. 4: Floor-central groove with dimensions 0.6 m × 1.8 m
3.2.3. Post-Validation Model for Numerical Simulation
4. Industrial Test
5. Future Work and Limitations
- Coal mine roadway rock control is an important proposition, especially at depth. Due to the difficulty of on-site experimental comparisons, simulation is generally used as a means to analyze the effects of process parameters (including anchor support, top-cutting, bottom-cutting, drilling pressure relief, etc.) on the control of roadway perimeter rock in terms of indicators. When changing the parameters, it often results in stress redistribution, leading to the phenomenon of perimeter rock control conflict. The machine learning objective function fitting-multi-objective optimization provides a reasonable solution for conflict resolution, which can be extended to different tunnel types and different processes.
- The finite element simulation has some limitations and does not take into account the resulting geological phenomena such as cracking, dilatancy, creep, etc. This study did not focus on an in-depth study of the effects that differences in rock and bulk fill material properties (including water content, rock anisotropy, etc.) can have on the stress-relief groove. We plan to simulate these heterogeneities with more sophisticated models and test their specific effects on the performance of the stress-relief groove in future work.
- In the field of Artificial Intelligence in mining engineering, it is important to increase the interpretability and transparency of models. The concept of Explainable Artificial Intelligence (XAI) enhances the explanatory power of our models [35,36]. XAI models can help to explain the decision-making process of complex models, which is crucial to increase the trust of stakeholders and the transparency of the models in real engineering applications. Among other things, real-world engineering data and feedback are very important to further validate and improve our models [37,38].
6. Conclusions
- Analysis of Deep Roadway Floor Grooving: The study determined that central grooving offers the best control effect on surrounding rock stability while side grooving shows weaker results and causes asymmetric stress distribution, which is unfavorable for surrounding rock control. The research is a detailed supplement to the study of deep roadway floor grooving.
- The study completed a qualitative analysis of underground engineering models and quantified the control indicators for surrounding rock. Stress indicators were quantified using circular measurement lines to assess stress concentration, while the volume of the plastic zone was used to quantify the state of the surrounding rock in three-dimensional space. The study provides a pathway from qualitative to quantitative research for large-scale engineering simulations.
- The SEGA algorithm was used to optimize machine learning models suitable for small datasets, selecting the optimal objective function model. Multi-objective optimization provided solutions for conflicts in surrounding rock control indicators. Additionally, a solution screening method based on the Pareto front was designed.
Author Contributions
Funding
Institutional Review Board Statement
Informed Consent Statement
Data Availability Statement
Acknowledgments
Conflicts of Interest
Appendix A


| Name | Parameters to be Optimized | Explanation | Range with Experience |
|---|---|---|---|
| KNN | k | The number of choices for the sample representation. | [1, 50] |
| RT | max_depth | Maximum depth of the tree | [1, 50] |
| min_samples_leaf | The minimum number of samples that can be divided by nodes. | [1, 10] | |
| RF | n_estimators | Number of decision trees | [1, 100] |
| min_samples_split | The minimum number of samples contained in leaf nodes. | [2, 10] | |
| min_samples_leaf | The minimum number of samples that can be divided by nodes. | [1, 5] | |
| max_leaf_nodes | Maximum number of leaf nodes. | [1, 50] | |
| max_features | The maximum number of features for decision tree parameters. | [1, x] x: Maximum number of features | |
| SVR | C | Penalty parameters | [0.1, 50] |
| epsilon | Loss function | [0.01, 10] | |
| MLP | hidden_layers | Number of hidden neurons | [1, 100] |
| learning_rate | Learning rate | [0.001, 1] | |
| iters | Number of iterations | 1000 |
| Name | Optimal Parameters | R2 | MSE | ||
|---|---|---|---|---|---|
| Train_Set | Test_Set | Train_Set | Test_Set | ||
| KNN | K = 4 | 0.908 | 0.879 | 0.042 | 0.052 |
| RT | max_depth = 47 | 0.974 | 0.903 | 2.365 | 0.040 |
| min_samples_leaf = 1 | |||||
| RF | n_estimators = 87 | 0.937 | 0.919 | 0.033 | 0.0426 |
| min_samples_split = 2 | |||||
| min_samples_leaf = 2 | |||||
| max_leaf_nodes = 68 | |||||
| max_features = 4 | |||||
| SVR | C = 19.74 | 0.964 | 0.923 | 0.015 | 0.033 |
| Epsilon = 0.03 | |||||
| MLP | hidden_layers = 90 | 0.926 | 0.902 | 0.042 | 0.051 |
| learning_rate = 0.001 | |||||
| Iters = 1000 | |||||
| Width (%) | Depth (%) | Position | Backfill | Support | Stress Indicator (MPa) | Floor Displacement (m) | Sidewall Displacement (m) | Plastic Zone Volume (m³/m) |
|---|---|---|---|---|---|---|---|---|
| 0.26 | 0.04 | 0 | 1 | 1 | 240.16 | 0.22 | 0.32 | 54.79 |
| 0.08 | 0.01 | 0 | 1 | 0 | 240.10 | 0.25 | 0.31 | 52.70 |
| 0.28 | 0.42 | 1 | 1 | 1 | 232.53 | 0.12 | 0.34 | 33.05 |
| 0.47 | 0.23 | 0 | 0 | 1 | 239.32 | 0.20 | 0.32 | 45.76 |
| 0.13 | 0.31 | 1 | 1 | 1 | 237.63 | 0.18 | 0.32 | 55.94 |
| 0.24 | 0.29 | 0 | 0 | 1 | 237.63 | 0.17 | 0.32 | 60.13 |
| 0.20 | 0.28 | 0 | 0 | 0 | 231.41 | 0.17 | 0.33 | 65.78 |
| 0.33 | 0.28 | 0 | 0 | 1 | 237.32 | 0.17 | 0.33 | 54.61 |
| 0.18 | 0.45 | 1 | 0 | 0 | 222.30 | 0.13 | 0.35 | 37.07 |
| 0.28 | 0.46 | 1 | 0 | 1 | 232.53 | 0.12 | 0.34 | 33.05 |
References
- Vardar, O.; Wei, C.; Zhang, C.; Canbulat, I. Numerical investigation of impacts of geological faults on coal burst proneness during roadway excavation. Bull. Eng. Geol. Environ. 2021, 81, 2. [Google Scholar] [CrossRef]
- Li, W.; Tu, S.; Tu, H.; Li, Y.; Liu, X.; Miao, K. Failure characteristics and control techniques for mining roadway affected by stress accumulation of residual pillars in contiguous coal seams. Eng. Fail. Anal. 2022, 141, 106646. [Google Scholar] [CrossRef]
- Zhang, X.; Hu, J.; Xue, H.; Mao, W.; Gao, Y.; Yang, J.; He, M. Innovative approach based on roof cutting by energy-gathering blasting for protecting roadways in coal mines. Tunn. Undergr. Space Technol. 2020, 99, 103387. [Google Scholar] [CrossRef]
- Xie, X.; Liu, H.; Fang, X.; Yang, J.; Liu, J.; Liang, M.; Wu, G. Deformation mechanism and control technology of surrounding rock of three-soft coal roadways under high horizontal stress. Energies 2023, 16, 728. [Google Scholar] [CrossRef]
- Wang, H.; Zhang, B.; Yuan, L.; Wang, S.; Yu, G.; Liu, Z. Analysis of precursor information for coal and gas outbursts induced by roadway tunneling: A simulation test study for the whole process. Tunn. Undergr. Space Technol. 2022, 122, 104349. [Google Scholar] [CrossRef]
- Zhu, Q.; Li, T.; Wang, B.; Li, C.; Ran, J.; Zhang, H. A case study on the deformation and failure mechanism of a soft rock mining roadway in the Xin‘Shang’Hai No. 1 coal mine, China. Eng. Fail. Anal. 2023, 146, 107136. [Google Scholar] [CrossRef]
- Kang, H.; Jiang, P.; Huang, B.; Guan, X.; Wang, Z.; Wu, Y.; Gao, F.; Yang, J.; Cheng, L.; Zheng, Y. Roadway strata control technology by means of bolting-modificationdestressing in synergy in 1 000 m deep coal mines. J. China Coal Soc. 2020, 45, 845–864. [Google Scholar] [CrossRef]
- Kang, H.; Gao, F.; Xu, G.; Ren, H. Mechanical behaviors of coal measures and ground control technologies for China’s deep coal mines—A review. J. Rock Mech. Geotech. Eng. 2023, 15, 37–65. [Google Scholar] [CrossRef]
- Sun, Y.; Li, G.; Zhang, J.; Qian, D. Experimental and numerical investigation on a novel support system for controlling roadway deformation in underground coal mines. Energy Sci. Eng. 2019, 8, 490–500. [Google Scholar] [CrossRef]
- Xiong, X.; Ouyang, Y.; Dai, J.; Ling, Z. Analysis and control of self stable balance circle of surrounding rock of roadway in inclined coal seam. Appl. Math. Model. 2023, 124, 749–767. [Google Scholar] [CrossRef]
- Sun, Y.; Li, G.; Zhang, J.; Xu, J. Failure mechanisms of rheological coal roadway. Sustainability 2020, 12, 2885. [Google Scholar] [CrossRef]
- Li, W.; Guo, Y.; Liu, X.; Du, F.; Li, G.; Ma, Q. Failure mechanisms and reinforcement support of roadway in deep coal seam: A case study. Eng. Fail. Anal. 2024, 165, 108745. [Google Scholar] [CrossRef]
- Hu, Q.; Feng, X.; Ding, Z.; Aihemaiti, A.; Sa, L.; Cao, X. Failure mechanism features and precursor characteristics of coal roadway groups in fault zone under confined conditions. Eng. Fail. Anal. 2024, 161, 108274. [Google Scholar] [CrossRef]
- Yang, T.; Liu, J.; Luo, J.; Shen, Y.; Fu, P. Study on instability mechanism of soft rock roadway and pressure-relief bolt-grouting support technology. Sci. Rep. 2023, 13, 20667. [Google Scholar] [CrossRef]
- Sun, Y.; Li, G.; Zhang, J.; Huang, J. Rockburst intensity evaluation by a novel systematic and evolved approach: Machine learning booster and application. Bull. Eng. Geol. Environ. 2021, 80, 8385–8395. [Google Scholar] [CrossRef]
- Luo, Y.; Xu, K.; Huang, J.; Li, X.; Liu, T.; Qu, D.; Chen, P. Impact analysis of pressure-relief blasting on roadway stability in a deep mining area under high stress. Tunn. Undergr. Space Technol. 2021, 110, 103781. [Google Scholar] [CrossRef]
- Wang, X.; Luo, W.; Qiu, L.; Gao, Y.; Lu, M.; Li, S.; Chen, Z. Unloading mechanism and design analysis of surrounding rock in deep high stress roadway. IOP Conf. Ser. Earth Environ. Sci. 2020, 428, 012056. [Google Scholar] [CrossRef]
- Sakhno, I.; Sakhno, S. Numerical studies of floor heave mechanism and the effectiveness of grouting reinforcement of roadway in soft rock containing the mine water. Int. J. Rock Mech. Min. Sci. Géoméch. Abstr. 2023, 170, 105484. [Google Scholar] [CrossRef]
- Xie, S.; Jiang, Z.; Chen, D.; Wang, E.; Lv, F. A new pressure relief technology by internal hole-making to protect roadway in two sides of deep coal roadway: A case study. Rock Mech. Rock Eng. 2022, 56, 1537–1561. [Google Scholar] [CrossRef]
- Salaim, M.E.; Ma, H.; Hu, X.; Quer, H. An Artificial Neural Network Approach for Predicting TOC and Comprehensive Pyrolysis Parameters from Well Logs and Applications to Source Rock Evaluation. Nat. Resour. Res. 2024, 33, 2063–2087. [Google Scholar] [CrossRef]
- Sun, Y.; Zhang, J.; Li, G.; Wang, Y.; Sun, J.; Jiang, C. Optimized neural network using beetle antennae search for predicting the unconfined compressive strength of jet grouting coalcretes. Int. J. Numer. Anal. Methods Géoméch. 2019, 43, 801–813. [Google Scholar] [CrossRef]
- Ai, H.; Ekinci, Y.L.; Balkaya, Ç.; Alvandi, A.; Ekinci, R.; Roy, A.; Su, K.; Pham, L.T. Modified barnacles mating optimizing algorithm for the inversion of self-potential anomalies due to ore deposits. Nat. Resour. Res. 2024, 33, 1073–1102. [Google Scholar] [CrossRef]
- Nguyen, H.; Bui, X.-N.; Drebenstedt, C.; Choi, Y. Enhanced Prediction Model for Blast-Induced Air Over-Pressure in Open-Pit Mines Using Data Enrichment and Random Walk-Based Grey Wolf Optimization–Two-Layer ANN Model. Nat. Resour. Res. 2024, 33, 943–972. [Google Scholar] [CrossRef]
- Lawal, A.I.; Onifade, M.; Bada, S.O.; Shivute, A.P.; Abdulsalam, J. Prediction of thermal coal ash behavior of South African coals: Comparative applications of ANN, GPR, and SVR. Nat. Resour. Res. 2023, 32, 1399–1413. [Google Scholar] [CrossRef]
- Singh, V.K.; Panda, K.C.; Sagar, A.; Al-Ansari, N.; Duan, H.F.; Paramaguru, P.K.; Vishwakarma, D.K.; Kumar, A.; Kumar, D.; Kashyap, P.S.; et al. Novel Genetic Algorithm (GA) based hybrid machine learning-pedotransfer Function (ML-PTF) for pre-diction of spatial pattern of saturated hydraulic conductivity. Eng. Appl. Comput. Fluid Mech. 2022, 16, 1082–1099. [Google Scholar]
- Shahabi, H.; Shirzadi, A.; Ronoud, S.; Asadi, S.; Pham, B.T.; Mansouripour, F.; Geertsema, M.; Clague, J.J.; Bui, D.T. Flash flood susceptibility mapping using a novel deep learning model based on deep belief network, back propagation and genetic algorithm. Geosci. Front. 2021, 12, 101100. [Google Scholar] [CrossRef]
- Deng, W.; Zhang, X.; Zhou, Y.; Liu, Y.; Zhou, X.; Chen, H.; Zhao, H. An enhanced fast non-dominated solution sorting genetic algorithm for multi-objective problems. Inf. Sci. 2022, 585, 441–453. [Google Scholar] [CrossRef]
- Liu, D.; Huang, Q.; Yang, Y.; Liu, D.; Wei, X. Bi-objective algorithm based on NSGA-II framework to optimize reservoirs operation. J. Hydrol. 2020, 585, 124830. [Google Scholar] [CrossRef]
- Ma, H.; Zhang, Y.; Sun, S.; Liu, T.; Shan, Y. A comprehensive survey on NSGA-II for multi-objective optimization and applications. Artif. Intell. Rev. 2023, 56, 15217–15270. [Google Scholar] [CrossRef]
- Guo, Z.; Qiu, D.; Yu, Y.; Xue, Y.; Liu, Q.; Zhang, W.; Li, Z. Analysis and prediction of nonuniform deformation in composite strata during tunnel excavation. Comput. Geotech. 2023, 157, 105338. [Google Scholar] [CrossRef]
- Chang, X.; Wang, H.; Zhang, Y. Back analysis of rock mass parameters in tunnel engineering using machine learning techniques. Comput. Geotech. 2023, 163, 105738. [Google Scholar] [CrossRef]
- Cong, R.; Yang, R.; Gong, Y.; Li, G.; Huang, Z.; Zhang, B. Numerical investigation of mechanical responses and failure features of coal measure strata using combined finite-discrete element method. Comput. Geotech. 2024, 171, 106346. [Google Scholar] [CrossRef]
- Xue, X.; Zhang, K.; Ma, B.; Xiao, F.; Jiang, T. Numerical simulating of pre-grouting in multi-jointed rock mass in deep coalmine roadway excavated via TBM. Comput. Geotech. 2022, 154, 105166. [Google Scholar] [CrossRef]
- Dong, Y.; Zhang, X.; Lin, J.; Zhao, J.; Meng, Z. Experimental study on the compaction and deformation of filling gangue by reducing waste gangue for filling mining. Front. Mater. 2021, 8, 700118. [Google Scholar] [CrossRef]
- Zheng, D.; Zhong, H.; Camps-Valls, G.; Cao, Z.; Ma, X.; Mills, B.; Hu, X.; Hou, M.; Ma, C. Explainable deep learning for automatic rock classification. Comput. Geo-Sci. 2024, 184, 105511. [Google Scholar] [CrossRef]
- Omar, M.; Alotaibi, E.; Arab, M.G.; Shanableh, A.; Malkawi, D.A.H.; Elmehdi, H.; Tahmaz, A. Harnessing nature-inspired soft computing for reinforced soil bearing capacity prediction: A neuro-nomograph approach for efficient design. Int. J. Geosynth. Ground Eng. 2023, 9, 53. [Google Scholar] [CrossRef]
- Nassif, N.; Al-Sadoon, Z.A.; Hamad, K.; Altoubat, S. Cost-based optimization of shear capacity in fiber reinforced concrete beams using machine learning. Struct. Eng. Mech. 2022, 83, 671–680. [Google Scholar]
- Alotaibi, E.; Nassif, N.; Barakat, S. Data-driven reliability and cost-based design optimization of steel fiber reinforced concrete suspended slabs. Struct. Concr. 2023, 24, 1856–1867. [Google Scholar] [CrossRef]

























| Rock Type | Density/ Kg·m−3 | Bulk Modulus/ GPa | Shear Modulus/ Gpa | Tensile Strength/ MPa | Adhesion Cohesion/ MPa | The Angle of Internal Friction/ ° |
|---|---|---|---|---|---|---|
| Siltstone | 2603 | 8.73 | 5.24 | 3.61 | 5.18 | 28.39 |
| Mudstone | 2461 | 6.08 | 3.31 | 2.61 | 1.20 | 30.00 |
| Fine sandstone | 2570 | 7.01 | 4.83 | 4.62 | 3.88 | 26.89 |
| Coal | 1440 | 1.60 | 0.70 | 1.19 | 1.59 | 21.48 |
| Grooving Position | Parameters | 0.5 m | 1 m | 1.5 m | 2 m | 2.5 m |
|---|---|---|---|---|---|---|
| Middle of the floor | Width | ✓ | ✓ | ✓ | ✓ | |
| Depth | ✓ | ✓ | ✓ | |||
| Floor-side | Width | ✓ | ✓ | ✓ | ✓ | |
| Depth | ✓ | ✓ | ✓ |
| Input | Range | Status | Explanation |
|---|---|---|---|
| Position of stress-relief groove | [0, 2] | Continuous | 0 for no groove, 1 for central groove, 2 for corner groove |
| Width | [0, 1] | Discrete | Groove width/roadway |
| depth | [0, 1] | Discrete | Groove depth/roadway |
| Support conditions | [0, 1] | Continuous | 0 for no support, 1 for support |
| Backfilling | [0, 1] | Continuous | 0 for no support, 1 for support |
| Objective Function | Explanation | Unit |
|---|---|---|
| Stress indicator | The total sum of maximum principal stress values measured along three concentric circular lines around the roadway. | Pa |
| Floor displacement | The maximum vertical displacement of the roadway floor. | M |
| Sidewall displacement | The maximum horizontal displacement of the roadway sidewalls. | M |
| Plastic zone volume | The volume of the plastic deformation zone generated in the surrounding rock per meter of roadway. When the roadway orientation is horizontal, this can be simplified to the area of the plastic zone. | m3/m, m2 |
| Width (m) | 1 | 1.5 | 2 | 2.5 | |
|---|---|---|---|---|---|
| Depth (m) | |||||
| 1 | 0.205 | 0.198 | 0.189 | 0.193 | |
| 1.5 | 0.169 | 0.162 | 0.152 | 0.140 | |
| 2 | 0.128 | 0.114 | 0.100 | 0.090 | |
| Width (m) | 1 | 1.5 | 2 | 2.5 | |
|---|---|---|---|---|---|
| Depth (m) | |||||
| 1 | 0.322 | 0.324 | 0.326 | 0.326 | |
| 1.5 | 0.332 | 0.334 | 0.336 | 0.338 | |
| 2 | 0.345 | 0.347 | 0.353 | 0.357 | |
| Width (m) | 1 | 1.5 | 2 | 2.5 | |
|---|---|---|---|---|---|
| Depth (m) | |||||
| 1 | 54.428 | 50.558 | 39.894 | 32.406 | |
| 1.5 | 68.130 | 50.923 | 56.271 | 51.295 | |
| 2 | 37.379 | 40.459 | 11.844 | 20.554 | |
| Width (m) | 0.5 | 1 | 1.5 | 2 | |
|---|---|---|---|---|---|
| Depth (m) | |||||
| 1 | 0.289 | 0.267 | 0.247 | 0.236 | |
| 1.5 | 0.235 | 0.237 | 0.274 | 0.220 | |
| 2 | 0.232 | 0.232 | 0.224 | 0.205 | |
| Width (m) | 0.5 | 1 | 1.5 | 2 | |
|---|---|---|---|---|---|
| Depth (m) | |||||
| 1 | 0.340 | 0.340 | 0.394 | 0.393 | |
| 1.5 | 0.358 | 0.353 | 0.357 | 0.355 | |
| 2 | 0.383 | 0.375 | 0.372 | 0.373 | |
| Width (m) | 0.5 | 1 | 1.5 | 2 | |
|---|---|---|---|---|---|
| Depth (m) | |||||
| 1 | 34.361 | 54.428 | 50.558 | 39.894 | |
| 1.5 | 56.479 | 68.130 | 50.923 | 39.257 | |
| 2 | 29.619 | 37.379 | 40.459 | 9.365 | |
| Constraints | Range | Continuity |
|---|---|---|
| Groove width | [0, 0.5] | Continuous |
| Groove depth | [0, 0.5] | Continuous |
| Groove position | [0, 1] | Discrete |
| Backfilling | [0, 1] | Discrete |
| Support | [0, 1] | Discrete |
| No. | Width (%) | Depth (%) | Position | Backfill | Support | Stress Indicator (MPa) | Floor Displacement (m) | Sidewall Displacement (m) | Plastic Zone Volume (m3/m) |
|---|---|---|---|---|---|---|---|---|---|
| 1 | 0.36 | 0.09 | 0 | 0 | 1 | 239.83 | 0.22 | 0.32 | 41.95 |
| 2 | 0.13 | 0.31 | 1 | 1 | 1 | 237.63 | 0.17 | 0.32 | 55.94 |
| 3 | 0.21 | 0.35 | 1 | 1 | 1 | 233.65 | 0.13 | 0.34 | 34.59 |
| 4 | 0.13 | 0.36 | 1 | 1 | 1 | 233.65 | 0.14 | 0.34 | 33.30 |
Disclaimer/Publisher’s Note: The statements, opinions and data contained in all publications are solely those of the individual author(s) and contributor(s) and not of MDPI and/or the editor(s). MDPI and/or the editor(s) disclaim responsibility for any injury to people or property resulting from any ideas, methods, instructions or products referred to in the content. |
© 2024 by the authors. Licensee MDPI, Basel, Switzerland. This article is an open access article distributed under the terms and conditions of the Creative Commons Attribution (CC BY) license (https://creativecommons.org/licenses/by/4.0/).
Share and Cite
Qin, Y.; Sun, Y.; Li, G.; Li, J.; Yang, S.; Chen, E.; Zhang, C. Multi-Objective Optimization for Controlling Conflicts in Roadway Surrounding Rock Induced by Floor Stress-Relief Groove. Appl. Sci. 2024, 14, 10178. https://doi.org/10.3390/app142210178
Qin Y, Sun Y, Li G, Li J, Yang S, Chen E, Zhang C. Multi-Objective Optimization for Controlling Conflicts in Roadway Surrounding Rock Induced by Floor Stress-Relief Groove. Applied Sciences. 2024; 14(22):10178. https://doi.org/10.3390/app142210178
Chicago/Turabian StyleQin, Yanting, Yuantian Sun, Guichen Li, Jinghua Li, Sen Yang, Enqing Chen, and Cheng Zhang. 2024. "Multi-Objective Optimization for Controlling Conflicts in Roadway Surrounding Rock Induced by Floor Stress-Relief Groove" Applied Sciences 14, no. 22: 10178. https://doi.org/10.3390/app142210178
APA StyleQin, Y., Sun, Y., Li, G., Li, J., Yang, S., Chen, E., & Zhang, C. (2024). Multi-Objective Optimization for Controlling Conflicts in Roadway Surrounding Rock Induced by Floor Stress-Relief Groove. Applied Sciences, 14(22), 10178. https://doi.org/10.3390/app142210178

