Influence Analysis of Liquefiable Interlayer on Seismic Response of Underground Station Structure
Abstract
1. Introduction
2. Numerical Calculation Method
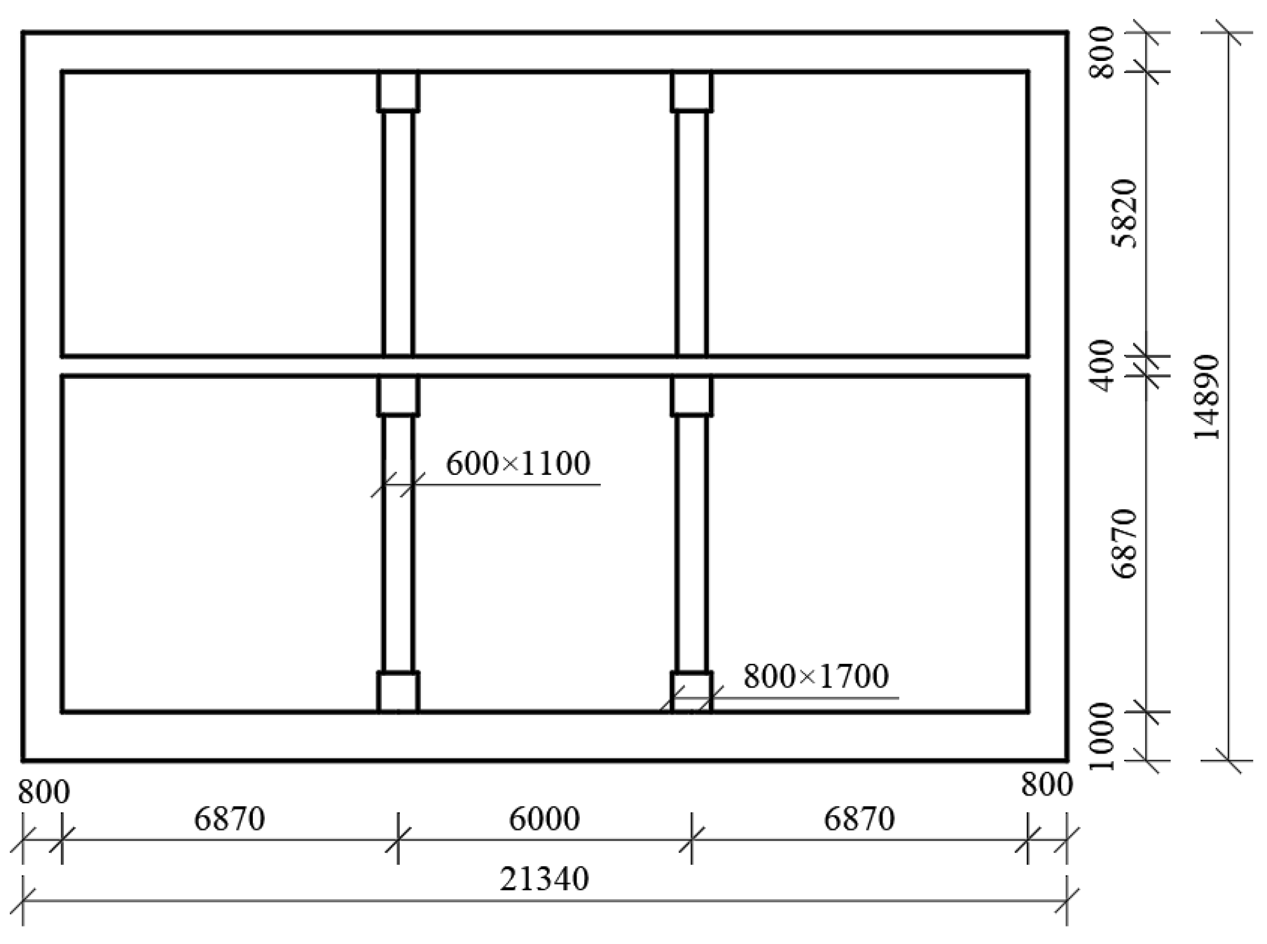
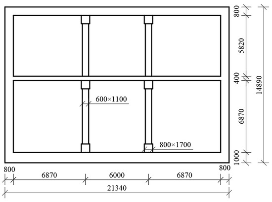
2.1. Geometric Model and Site Condition Setting
2.2. Numerical Model Establishment and Parameter Setting
2.3. Material Damping Selection
2.4. Boundary Conditions and Ground Vibration Input
3. Liquefaction Distribution Characteristics
4. Dynamic Response Analysis of Station Structure
4.1. Influence of the Relative Position of the Liquifiable Interlayer
4.2. Influence of the Relative Density of the Liquifiable Interlayer
4.3. Influence of the Layer Thickness of the Liquifiable Interlayer
5. Conclusions
- (1)
 - The liquefaction range of the liquefiable interlayer is basically symmetrically distributed, and the liquefied area is mainly distributed at the bottom of the station structure and on both sides, away from the structure area. When the wall stiffness is great compared with the surrounding soil, the site soil near the structural side wall cannot easily liquefy.
 - (2)
 - The relative location distribution of the liquifiable interlayer has a strong influence on the structural seismic response. When the liquifiable interlayer crosses the middle of the station, the shear stress and lateral deformation of the structure are the greatest, while when the liquifiable interlayer is located in the bottom area of the station structure, the dynamic response of the station structure is greatly reduced, and at this time, the liquifiable interlayer has certain effects of seismic damping and seismic isolation, which are beneficial in supporting the seismic resistance of the station structure to a certain extent.
 - (3)
 - When the liquifiable interlayer is distributed in the middle of the lateral foundation of the station structure, the shear stress of the negative one-story wall and column decreases with increasing relative density, and the structural shear stress of the wall column near the bottom plate is not greatly affected by the relative density. When the relative density of the sand interlayer is low, the internal acceleration response of the structure is strong, and the acceleration amplification effect of the middle column structure is especially prominent.
 - (4)
 - When the whole liquifiable interlayer is only located in the lateral foundation of the structure, with an increase in the thickness of the interlayer, the shearing effect on the station structure under the earthquake action becomes stronger, and the probability of damage becomes greater. However, when the thickness of the liquifiable layer increases to a certain extent, the station structure is wholly placed in the liquifiable interlayer, and although the horizontal disturbance of the structure decreases at this time, the uplift displacement of the structure reaches its maximum.
 
Author Contributions
Funding
Institutional Review Board Statement
Informed Consent Statement
Data Availability Statement
Conflicts of Interest
References
- Zhuang, H.; Chen, G.; Hu, Z.; Qi, C. Influence of Soil Liquefaction on the Seismic Response of a Subway Station in Model Tests. Bull. Eng. Geol. Environ. 2016, 75, 1169–1182. [Google Scholar] [CrossRef]
 - Boulanger, R.W.; Kamai, R.; Ziotopoulou, K. Liquefaction induced strength loss and deformation: Simulation and design. Bull. Earthq. Eng. 2014, 12, 1107–1128. [Google Scholar] [CrossRef]
 - Uenishi, K.; Sakurai, S. Characteristic of the vertical seismic waves associated with the 1995 Hyogo-ken Nanbu (Kobe), Japan earthquake estimated from the failure of the Daikai Underground Station. Earthq. Eng. Struct. Dyn. 2000, 29, 813–821. [Google Scholar] [CrossRef]
 - Parra-Montesinos, G.J.; Bobet, A.; Ramirez, J.A. Evaluation of soil-structure interaction and structural collapse in Daikai subway station during Kobe earthquake. ACI Mater. J. 2006, 103, 113. [Google Scholar]
 - Okimura, T.; Takada, S.; Koid, T.H. Outline of the great Hanshin earthquake, Japan 1995. Nat. Hazards 1996, 14, 39–71. [Google Scholar] [CrossRef]
 - Li, X.N.; Shi, R. The Dynamic Stability Analysis of Shapai Arch Dam Affected by Wenchuan Earthquake. IOP Conf. Ser. Earth Environ. Sci. 2018, 189, 052020. [Google Scholar] [CrossRef]
 - Huang, Y.; Jiang, X. Field-observed phenomena of seismic liquefaction and subsidence during the 2008 Wenchuan earthquake in China. Nat. Hazards 2010, 54, 839–850. [Google Scholar] [CrossRef]
 - Mimura, N.; Yasuhara, K.; Kawagoe, S.; Yokoki, H.; Kazma, S. Damage from the Great East Japan Earthquake and Tsunami-a quick report. Mitig. Adapt. Strateg. Glob. Chang. 2011, 16, 803–818. [Google Scholar] [CrossRef]
 - Bhattacharya, S.; Hyodo, M.; Goda, K.; Tazoh, T.; Taylor, C.A. Liquefaction of soil in the Tokyo Bay area from the 2011 Tohoku (Japan) earthquake. Soil Dyn. Earthq. Eng. 2011, 31, 1618–1628. [Google Scholar] [CrossRef]
 - Su, C.; Baizan, T.; Haiyang, Z.; Jianning, W.; Xiaojun, L.; Kai, Z. Experimental investigation of the seismic response of shallow-buried subway station in liquefied soil. Soil Dyn. Earthq. Eng. 2020, 136, 106153. [Google Scholar] [CrossRef]
 - Zhuang, H.; Wang, X.; Miao, Y.; Yao, E.; Chen, S.; Ruan, B.; Chen, G. Seismic responses of a subway station and tunnel in a slightly inclined liquefiable ground through shaking table test. Soil Dyn. Earthq. Eng. 2019, 116, 371–385. [Google Scholar]
 - Ding, X.; Zhang, Y.; Wu, Q.; Chen, Z.; Wang, C. Shaking table tests on the seismic responses of underground structures in coral sand. Tunn. Undergr. Space Technol. 2021, 109, 103775. [Google Scholar] [CrossRef]
 - Bao, X.; Xia, Z.; Ye, G.; Fu, Y.; Su, D. Numerical analysis on the seismic behavior of a large metro subway tunnel in liquefiable ground. Tunn. Undergr. Space Technol. Inc. Trenchless Technol. Res. 2017, 66, 91–106. [Google Scholar] [CrossRef]
 - Hu, J.L.; Liu, H.B. The uplift behavior of a subway station during different degree of soil liquefaction. Procedia Eng. 2017, 189, 18–24. [Google Scholar] [CrossRef]
 - Hu, J.; Chen, Q.; Liu, H. Relationship between earthquake-induced uplift of rectangular underground structures and the excess pore water pressure ratio in saturated sandy soils. Tunn. Undergr. Space Technol. 2018, 79, 35–51. [Google Scholar] [CrossRef]
 - Tian, T.; Yao, A.; Li, Y.; Gong, Y. Seismic Response of Utility Tunnels with Different Burial Depths at the Non-Homogeneous Liquefiable Site. Appl. Sci. 2022, 12, 11767. [Google Scholar] [CrossRef]
 - Shen, Y.; Zhong, Z.; Li, L.; Du, X.; EI Naggar, M.H. Seismic response of shield tunnel structure embedded in soil deposit with liquefiable interlayer. Comput. Geotech. 2022, 152, 105015. [Google Scholar] [CrossRef]
 - Chen, R.; Taiebat, M.; Wang, R.; Zhang, J. Effects of layered liquefiable deposits on the seismic response of an underground structure. Soil Dyn. Earthq. Eng. 2018, 113, 124–135. [Google Scholar] [CrossRef]
 - Martin, G.R.; Seed, H.B.; Finn WD, L. Fundamentals of liquefaction under cyclic loading. J. Geotech. Eng. Div. 1975, 101, 423–438. [Google Scholar] [CrossRef]
 - Byrne, P.M. A cyclic shear-volume coupling and pore pressure model for sand. In Proceedings of the Second International Conference on Recent Advances in Geotechnical Earthquake Engineering and Soil Dynamics, St. Louis, MO, USA, 11–15 March 1991. [Google Scholar]
 - Kwon, S.Y.; Yoo, M. Study on the dynamic soil-pile-structure interactive behavior in liquefiable sand by 3D numerical simulation. Appl. Sci. 2020, 10, 2723. [Google Scholar] [CrossRef]
 - Unutmaz, B. 3D liquefaction assessment of soils surrounding circular tunnels. Tunn. Undergr. Space Technol. 2014, 40, 85–94. [Google Scholar] [CrossRef]
 - Lu, C.C.; Hwang, J.H. Safety assessment for a shield tunnel in a liquefiable deposit using a practical dynamic effective stress analysis. Eng. Fail. Anal. 2019, 102, 369–383. [Google Scholar] [CrossRef]
 - Itasca, F.D. V6. 0, Fast Lagrangian Analysis of Continua in 3 Dimensions, User’s Guide; Itasca Consulting Group: Minneapolis, MN, USA, 2020. [Google Scholar]
 - An, J.; Yan, H.; Zhao, Z.; Jiang, L. Seismic Response Analysis of Liquefiable Soil Layer on Subway Station Structure. Sci. Technol. Eng. 2022, 22, 7080–7088. [Google Scholar]
 - He, J.; Chen, W. Numerical Analysis of Dynamic Characteristics of Shallow Buried Underground Structure in Liquefaction Field. Chin. J. Undergr. Space Eng. 2013, 9, 66–72. [Google Scholar]
 - Seed, H.B.; Idriss, I.M. Soil Moduli and Damping Factors for Dynamic Response Analyses; Technical Report; University of California Berkeley Structural Engineers and Mechanics: Berkeley, CA, USA, 1970; p. EERC-70. [Google Scholar]
 - Mirassi, S.; Rahnema, H. Deep cavity detection using propagation of seismic waves in homogenous half-space and layered soil media. Asian J. Civ. Eng. 2020, 21, 1431–1441. [Google Scholar] [CrossRef]
 - Rahnema, H.; Mirassi, S.; Dal Moro, G. Cavity effect on Rayleigh wave dispersion and P-wave refraction. Earthq. Eng. Eng. Vib. 2021, 20, 79–88. [Google Scholar] [CrossRef]
 - Mirassi, S.; Rahnema, H. Improving the performance of absorbing layers with increasing damping in the numerical modeling of surface waves propagation using finite element method. Sci. Q. J. Iran. Assoc. Eng. Geol. 2020, 13, 13–26. [Google Scholar]
 - Lan, J.; Diwakar, K.C.; Hu, L.; Gao, Y. An Experimental Study of the Dynamic Shear Modulus and Damping Ratio of Calcareous Sand in the South China Sea. J. Coast. Res. 2021, 37, 964–972. [Google Scholar] [CrossRef]
 - Lan, J.Y.; Liu, J.; Wang, T.; Diwakar, K.C.; Naqvi, M.W.; Hu, L.B.; Liu, X.Q. A centrifuge study on the effect of the water cover on the ground motion of saturated marine sediments. Soil Dyn. Earthq. Eng. 2022, 152, 107044. [Google Scholar] [CrossRef]
 - Xia, Z.; Ye, G.; Wan, J.; Ye, B.; Zhang, F. Numerical analysis on the influence of thickness of liquefiable soil on seismic response of underground structure. J. Shanghai Jiaotong Univ. 2010, 15, 279–284. [Google Scholar] [CrossRef]
 

















| Case | Top Buried Depth (D) | Thickness (H) | Relative Density (Dr) | Position Relative to Station Structure | 
|---|---|---|---|---|
| a | 0 m | 5 m | 50% | top | 
| b | 9 m | 5 m | 50% | middle | 
| c | 19.89 m | 5 m | 50% | bottom | 
| d | 9 m | 5 m | 30% | middle | 
| e | 9 m | 5 m | 70% | middle | 
| f | 6 m | 12 m | 50% | middle | 
| g | 2.5 m | 20 m | 50% | middle | 
| Soil Material Parameters | Structure and Interface Parameters | ||||||
|---|---|---|---|---|---|---|---|
| Clay | Sand | Wall and Plate | Column | ||||
| Dr (%) | 30 | 50 | 70 | material grade | C40 | C40 | |
| G (Pa) | 1.65 × 107 | 4.30 × 106 | 5.92 × 106 | 7.55 × 106 | G (Pa) | 1.35 × 1010 | 1.36 × 109 | 
| K (Pa) | 5.36 × 107 | 1.51 × 107 | 1.65 × 107 | 2.73 × 107 | K (Pa) | 1.81 × 1010 | 2.18 × 109 | 
| φ (°) | 15.4 | 29 | 32 | 35 | ρ (kg/m3) | 2500 | 302 | 
| ρd (kg/m3) | 1450 | 1400 | 1460 | 1520 | ks (Pa/m) | 1 × 109 | |
| n | 0.45 | 0.46 | 0.42 | 0.38 | kn (Pa/m) | 1 × 109 | |
| k (cm/s) | 1 × 10−6 | 1 × 10−2 | 7 × 10−3 | 5.5 × 10−3 | δ (°) | 15 | |
| c (Pa) | 3 × 104 | 0 | 0 | 0 | |||
| C1 | 0.77 | 0.21 | 0.09 | ||||
| C2 | 0.26 | 0.93 | 2.16 | ||||
Disclaimer/Publisher’s Note: The statements, opinions and data contained in all publications are solely those of the individual author(s) and contributor(s) and not of MDPI and/or the editor(s). MDPI and/or the editor(s) disclaim responsibility for any injury to people or property resulting from any ideas, methods, instructions or products referred to in the content.  | 
© 2023 by the authors. Licensee MDPI, Basel, Switzerland. This article is an open access article distributed under the terms and conditions of the Creative Commons Attribution (CC BY) license (https://creativecommons.org/licenses/by/4.0/).
Share and Cite
Yao, J.; Lin, Y. Influence Analysis of Liquefiable Interlayer on Seismic Response of Underground Station Structure. Appl. Sci. 2023, 13, 9210. https://doi.org/10.3390/app13169210
Yao J, Lin Y. Influence Analysis of Liquefiable Interlayer on Seismic Response of Underground Station Structure. Applied Sciences. 2023; 13(16):9210. https://doi.org/10.3390/app13169210
Chicago/Turabian StyleYao, Jiantao, and Yongliang Lin. 2023. "Influence Analysis of Liquefiable Interlayer on Seismic Response of Underground Station Structure" Applied Sciences 13, no. 16: 9210. https://doi.org/10.3390/app13169210
APA StyleYao, J., & Lin, Y. (2023). Influence Analysis of Liquefiable Interlayer on Seismic Response of Underground Station Structure. Applied Sciences, 13(16), 9210. https://doi.org/10.3390/app13169210
        