Structural Assessment Based on Vibration Measurement Test Combined with an Artificial Neural Network for the Steel Truss Bridge
Abstract
1. Introduction
2. Theoretical Approach
2.1. Using Dynamic Features to Detect Damage
2.2. Artificial Neural Network
3. Case Study
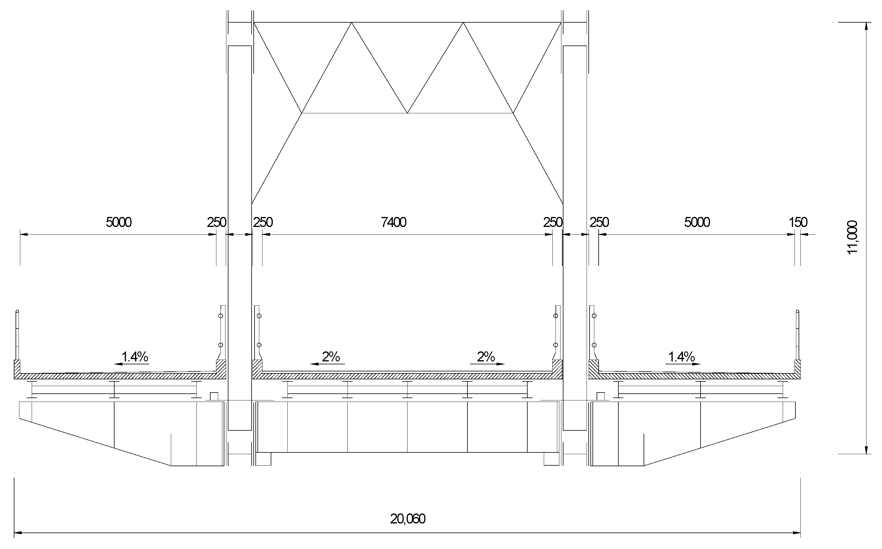
3.1. Chuong Duong Bridge Introduction
3.2. On-Site Measurement Campaign before Damage
3.2.1. Description of Experiment
3.2.2. Data Processing and Feature Extraction
3.3. FEM Creation and Updating
3.3.1. Initial FE Model
3.3.2. Update Model Parameters through Particle Swarm Optimisation (PSO) Algorithm
3.4. Generate Data and Train the ANN Model
3.4.1. Single Damages
3.4.2. Two Damaged Elements
3.5. The Service of the Trained ANN Model in Actual
3.5.1. Single Damage
3.5.2. 2 Damaged Elements
4. Conclusions
- By combining the vibration measurement results of the structure with the artificial neural network, routine structural health monitoring tasks could be reduced. Specifically, an artificial neural network trained using the vibration measurement results were able to localise and quantify preliminary damage, minimising logistics. In this study, the test was applied to a large steel truss bridge in Vietnam (Chuong Duong Bridge). The results show the potential of the method in similar bridges.
- The results of the comprehensive vibration measurement of the structure were used for the first time to update the structure; as such, this took time and effort, but this requirement could be reduced many times over in future checks.
- An initial FE model was created and updated based on the modal characteristics extracted from the field vibration measurement experiment. Using the PSO algorithm, an FE model with a behaviour close to reality was built. Before the update, the FE model had a big difference from the actual measurement (the biggest difference in frequency was 5.58%, the MAC value was only 0.87). After updating, the similarity between the FE model and the experiment increased significantly (the biggest difference in frequency being 0.74%, MAC value increasing to the lowest value of 0.94).
- Based on the updated model, damage scenarios were performed, and data was extracted for input into the ANN. In this study, damages were performed on the model by reducing the stiffness of the main elements.
- Creating and organising data from a finite element model is very important if one wants to get good results when training ANNs. With a large number of samples, training the network takes time, but the improved effects after training can make up for this.
- Compared with other methods, this approach had various advantages: saving human resources; being able to identify damage in hard-to-detect locations; and reducing the number of measuring points in the case of vibration tests.
- In the case study of this research, with a single damage, the ANN was able to identify and quantify the damage relatively accurately. For damage occurring on two elements, since there is no actual data, the network usage after training was measured on the model. The results were quite satisfactory. The case using the data of two simultaneous damages seemed to be more accurately predicted using the network. This can be explained because actual experimental data will more or less have noise, in addition to being simultaneously affected by many factors. Meanwhile, the data used to confirm the case of two damages at the same time was taken directly from the model.
- In future studies, the authors will implement a number of different types of structures, such as cable-stayed bridges, suspension bridges, and continuous bridges. At the same time, the current training of artificial neural networks is also quite time consuming, with large data sets. Further studies will also focus on solving this problem by applying algorithms combined with ANN.
Author Contributions
Funding
Data Availability Statement
Acknowledgments
Conflicts of Interest
References
- Encardio Rite Group [Updated] A Guide on Geodetic Survey and Monitoring—Encardio Rite. Available online: https://www.encardio.com/blog/a-guide-on-geodetic-survey-and-monitoring (accessed on 30 May 2023).
- Beshr, A.A.E.-W. Structural Deformation Monitoring and Analysis of Highway Bridge Using Accurate Geodetic Techniques. Engineering 2015, 7, 488–498. [Google Scholar] [CrossRef]
- Eteje, S.O. Detailed Geodetic Technique Procedures for Structural Deformation Monitoring and Analysis. Int. J. Sci. Technol. Res. 2020, 6, 7–23. [Google Scholar] [CrossRef]
- Liu, S.; Liu, X.; Yang, F. Control Surveying and Structural Health Monitoring Applied in Large Bridge. Adv. Mater. Res. 2013, 639–640, 243–246. [Google Scholar] [CrossRef]
- Lienhart, W. Geotechnical Monitoring Using Total Stations and Laser Scanners: Critical Aspects and Solutions. J. Civ. Struct. Health Monit. 2017, 7, 315–324. [Google Scholar] [CrossRef]
- Segalini, A.; Carri, A.; Savi, R. Role of Geotechnical Monitoring: State of the Art and New Perspectives. In Proceedings of the GEO-EXPO, Drustvo za geotehniku u Bosni i Hercegovini, Sarajevo, Bosnia and Herzegovina, 10 October 2017; pp. 19–26. [Google Scholar]
- Viola, E.; Bocchini, P. Non-Destructive Parametric System Identification and Damage Detection in Truss Structures by Static Tests. Struct. Infrastruct. Eng. 2013, 9, 384–402. [Google Scholar] [CrossRef]
- Ugalde, U.; Anduaga, J.; Martinez, F.; Iturrospe, A. A SHM Method for Detecting Damage with Incomplete Observations Based on VARX Modelling and Granger Causality. arXiv 2016, arXiv:1602.00557. [Google Scholar]
- Martínez, D.; Obrien, E.J.; Sevillano, E. Damage Detection by Drive-by Monitoring Using the Vertical Displacements of a Bridge. Insights and Innovations in Structural Engineering, Mechanics and Computation, Proceedings of the 6th International Conference on Structural Engineering, Mechanics and Computation, SEMC, Cape Town, South Africa, 5–7 September 2016; CRC Press: London, UK, 2016; pp. 1915–1918. [Google Scholar] [CrossRef]
- Hjelmstad, K.D.; Shin, S. Damage Detection and Assessment of Structures from Static Response. J. Eng. Mech. 1997, 123, 568–576. [Google Scholar] [CrossRef]
- Bakhtiari-Nejad, F.; Rahai, A.; Esfandiari, A. A Structural Damage Detection Method Using Static Noisy Data. Eng. Struct. 2005, 27, 1784–1793. [Google Scholar] [CrossRef]
- Bonopera, M.; Chang, K.-C.; Chen, C.-C.; Lin, T.-K.; Tullini, N. Bending Tests for the Structural Safety Assessment of Space Truss Members. Int. J. Space Struct. 2018, 33, 138–149. [Google Scholar] [CrossRef]
- Doebling, S.W.; Farrar, C.R.; Prime, M.B. A Summary Review of Vibration-Based Damage Identification Methods. Shock Vib. Dig. 1998, 30, 91–105. [Google Scholar] [CrossRef]
- Salawu, O.S. Detection of Structural Damage through Changes in Frequency: A Review. Eng. Struct. 1997, 19, 718–723. [Google Scholar] [CrossRef]
- Khatir, S.; Khatir, T.; Boutchicha, D.; Le Thanh, C.; Tran-Ngoc, H.; Bui, T.Q.; Capozucca, R.; Abdel-Wahab, M. An Efficient Hybrid TLBO-PSO-ANN for Fast Damage Identification in Steel Beam Structures Using IGA. Smart Struct. Syst. 2020, 25, 605–617. [Google Scholar]
- Farrar, C.R.; Doebling, S.W. Damage Detection and Evaluation II. In Modal Analysis and Testing; 1999 NATO Science Series, Springer Link; Springer: Berlin/Heidelberg, Germany, 1999; pp. 345–378. [Google Scholar] [CrossRef]
- Carden, E.P.; Fanning, P. Vibration Based Condition Monitoring: A Review. Struct. Health Monit. 2004, 3, 355–377. [Google Scholar] [CrossRef]
- Catbas, F.N.; Brown, D.L.; Aktan, A.E. Use of Modal Flexibility for Damage Detection and Condition Assessment: Case Studies and Demonstrations on Large Structures. J. Struct. Eng. 2006, 132, 1699–1712. [Google Scholar] [CrossRef]
- Alvandi, A.; Cremon, C. Assessment of Vibration-Based Damage Identification Techniques. J. Sound Vib. 2006, 292, 179–202. [Google Scholar] [CrossRef]
- Nhung, N.T.C.; Minh, T.Q.; Matos, J.C.; Sousa, H.S. Research and Application of Indirect Monitoring Methods for Transport Infrastructures to Monitor and Evaluate Structural Health. In Proceedings of the 2nd International Conference on Structural Damage Modelling and Assessment, Ghent, Belgium, 4–5 August 2021. [Google Scholar]
- Mazurek, D.F. Modal Sensitivity to Damage in Multigirder Bridges. SPIE 1997, 3089, 1892. [Google Scholar]
- Doebling, S.; Farrar, C. Statistical Damage Identification Techniques Applied to the I-40 Bridge over the Rio Grande River. In Proceedings of the International Modal Analysis Conference, Santa Barbara, CA, USA, 2–5 February 1998. [Google Scholar]
- Alvandi, A. Contribution à L’utilisation Pratique de L’évaluation Dynamique Pour La Détection D’endommagements Dans Les Ponts. Ph.D. Thesis, 2003, Sciences de l’ingénieur [physics]. Ecole des Ponts ParisTech, Français.
- Minh, T.Q.; Nhung, N.T.C.; Quyet, N.H.; Helder, S.; Sou, S.; Jose, C. Matos Opportunities and Challenges of Digital Twins in Structural Health Monitoring. In Proceedings of the 4th International Conference on Sustainability in Civil Engineering, Hanoi, Vietnam, 25–27 November 2023. [Google Scholar]
- Yang, Y.B.; Yang, J.P. State-of-the-Art Review on Modal Identification and Damage Detection of Bridges by Moving Test Vehicles. Int. J. Struct. Stab. Dyn. 2018, 18, 1850025. [Google Scholar] [CrossRef]
- Karbhari, V.M.; Lee, L.S. W Vibration-Based Damage Detection Techniques for Structural Health Monitoring of Civil Infrastructure Systems. Struct. Health Monit. Civ. Infrastruct. Syst. 2009, 177–212. [Google Scholar] [CrossRef]
- Farrar, C.R.; Doebling, S.W.; Nix, D.A. Vibrationbased Structural Damage Identification. Philos. Trans. R. Soc. London. Ser. A Math. Phys. Eng. Sci. 2001, 359, 131–149. [Google Scholar] [CrossRef]
- Minh, T.Q.; Helder, S.S.; Jose, C.M. Application of AI Tools in Creating Datasets from A Real Data Component for Structural Health Monitoring. In Data Driven Methods for Civil Structural Health Monitoring and Resilience: Latest Developments and Applications, 1st ed.; CRC Press: Boca Raton, FL, USA, 2023. [Google Scholar]
- Khiem, N.T.; Lien, T.V. A Simplified Method for Natural Frequency Analysis of a Multiple Cracked Beam. J. Sound Vib. 2001, 245, 737–751. [Google Scholar] [CrossRef]
- Nguyen, T.; Chan, T.H.T.; Thambiratnam, D.P. Field Validation of Controlled Monte Carlo Data Generation for Statistical Damage Identification Employing Mahalanobis Squared Distance. Struct. Health Monit. 2014, 13, 473–488. [Google Scholar] [CrossRef]
- Zhang, Z.; Shankar, K.; Morozov, E.V.; Tahtali, M. Vibration-Based Delamination Detection in Composite Beams through Frequency Changes. J. Vib. Control 2014, 22, 496–512. [Google Scholar] [CrossRef]
- Jeong, M.-J.; Choi, J.-H.; Koh, B.-H. Isomap-Based Damage Classification of Cantilevered Beam Using Modal Frequency Changes. Struct. Control Health Monit. 2014, 21, 590–602. [Google Scholar] [CrossRef]
- Gillich, G.R.; Ntakpe, J.L.; Abdel Wahab, M.; Praisach, Z.I.; Mimis, M.C. Damage Detection in Multi-Span Beams Based on the Analysis of Frequency Changes. J. Phys. Conf. Ser. 2017, 842, 012033. [Google Scholar] [CrossRef]
- Wang, L.; Lie, S.T.; Zhang, Y. Damage Detection Using Frequency Shift Path. Mech. Syst. Signal Process. 2016, 66–67, 298–313. [Google Scholar] [CrossRef]
- Sha, G.; Radzieński, M.; Cao, M.; Ostachowicz, W. A Novel Method for Single and Multiple Damage Detection in Beams Using Relative Natural Frequency Changes. Mech. Syst. Signal Process. 2019, 132, 335–352. [Google Scholar] [CrossRef]
- Khan, M.W.; Din, N.A.; Ul Haq, R. Damage Detection in a Fixed-Fixed Beam Using Natural Frequency Changes. Vibroengineering Procedia 2020, 30, 38–43. [Google Scholar] [CrossRef]
- He, K.; Zhu, W.D. Structural Damage Detection Using Changes in Natural Frequencies: Theory and Applications. J. Phys. Conf. Ser. 2011, 305, 012054. [Google Scholar] [CrossRef]
- Mohan, V.; Parivallal, S.; Kesavan, K.; Arunsundaram, B.; Ahmed, A.K.F.; Ravisankar, K. Studies on Damage Detection Using Frequency Change Correlation Approach for Health Assessment. Procedia Eng. 2014, 86, 503–510. [Google Scholar] [CrossRef]
- Worden, K.; Manson, G. The Application of Machine Learning to Structural Health Monitoring. Philos. Trans. R. Soc. A Math. Phys. Eng. Sci. 2007, 365, 515–537. [Google Scholar] [CrossRef]
- Hakim, S.J.S.; Abdul Razak, H. Adaptive Neuro Fuzzy Inference System (ANFIS) and Artificial Neural Networks (ANNs) for Structural Damage Identification. Struct. Eng. Mech. 2013, 45, 779–802. [Google Scholar] [CrossRef]
- Nguyen, D.H.; Bui, T.T.; De Roeck, G.; Abdel Wahab, M. Damage Detection in Ca-Non Bridge Using Transmissibility and Artificial Neural Networks. Struct. Eng. Mech. 2019, 71, 175–183. [Google Scholar]
- Kaveh, A.; Maniat, M.; Kaveh, A.; Maniat, M. Damage Detection Based on MCSS and PSO Using Modal Data. Smart Struct. Syst. 2015, 15, 1253. [Google Scholar] [CrossRef]
- Mares, C.; Surace, C. An Application of Genetic Algorithms to Identify Damage in Elastic Structures. J. Sound Vib. 1996, 195, 195–215. [Google Scholar] [CrossRef]
- Seyedpoor, S.M. A Two Stage Method for Structural Damage Detection Using a Modal Strain Energy Based Index and Particle Swarm Optimization. Int. J. Non Linear Mech. 2012, 47, 1–8. [Google Scholar] [CrossRef]
- Yu, L.; Xu, P. Structural Health Monitoring Based on Continuous ACO Method. Microelectron. Reliab. 2011, 51, 270–278. [Google Scholar] [CrossRef]
- Guo, H.Y.; Li, Z.L. A Two-Stage Method to Identify Structural Damage Sites and Extents by Using Evidence Theory and Micro-Search Genetic Algorithm. Mech. Syst. Signal Process. 2009, 23, 769–782. [Google Scholar] [CrossRef]
- Hao, H.; Xia, Y. Vibration-Based Damage Detection of Structures by Genetic Algorithm. J. Comput. Civil Eng. 2002, 16, 222–229. [Google Scholar] [CrossRef]
- Na, C.; Kim, S.P.; Kwak, H.G. Structural Damage Evaluation Using Genetic Algorithm. J. Sound Vib. 2011, 330, 2772–2783. [Google Scholar] [CrossRef]
- Anil, K. Chopra Dynamics of Structures: Theory and Applications to Earthquake Engineering; Pearson Education: Upper Saddle River, NJ, USA, 2013; ISBN 978-0-13-285803-8. [Google Scholar]
- Montesinos López, O.A.; Montesinos López, A.; Crossa, J. Fundamentals of Artificial Neural Networks and Deep Learning. In Multivariate Statistical Machine Learning Methods for Genomic Prediction; Springer: Cham, Switzerland, 2022. [Google Scholar] [CrossRef]
- Makridakis, S.; Spiliotis, E.; Assimakopoulos, V. Statistical and Machine Learning Forecasting Methods: Concerns and Ways Forward. PLoS ONE 2018, 13, e0194889. [Google Scholar] [CrossRef]
- Shalev-Shwartz, S. Shai Ben-David Understanding Machine Learning from Theory to Algorithms; Cambridge University Press: Cambridge, UK, 2014. [Google Scholar] [CrossRef]
- Edwin, R.; Mattias, S.; Guido, D.R. Macec—The Matlab Toolbox for Experimental and Operational Modal Analysis; 2021; Volume MACEC 3.4. Available online: https://bwk.kuleuven.be/bwm/macec/macec.pdf (accessed on 30 May 2023).
- MIDAS IT Company Midas Civil Manuals and Tutorials. Available online: https://globalsupport.midasuser.com (accessed on 25 May 2023).
- Pastor, M.; Binda, M.; Harčarik, T. Modal Assurance Criterion. Procedia Eng. 2012, 48, 543–548. [Google Scholar] [CrossRef]
- Kennedy, J.; Eberhart, R. Particle Swarm Optimization. In Proceedings of the ICNN’95—International Conference on Neural Networks, Perth, Australia, 27 November–1 December 1995; Volume 4, pp. 1942–1948. [Google Scholar] [CrossRef]
- Zeugmann, T.; Poupart, P.; Kennedy, J.; Jin, X.; Han, J.; Saitta, L.; Sebag, M.; Peters, J.; Bagnell, J.A.; Daelemans, W.; et al. Particle Swarm Optimization. In Encyclopedia of Machine Learning; Springer: Berlin, Germany, 2011; pp. 760–766. [Google Scholar] [CrossRef]

























| Setup | Reference Point | Moving Point | ||||||
|---|---|---|---|---|---|---|---|---|
| Setup 1 | 103 z | 103 y | 100 y | 100 x | 200 y | 200 x | 101 y | 101 z |
| Setup 2 | 103 z | 103 y | 102 y | 102 z | 104 y | 104 z | 201 z | 202 z |
| Setup 3 | 103 z | 103 y | 105 y | 105 z | 106 y | 106 z | 204 z | 205 z |
| Setup 4 | 103 z | 103 y | 107 y | 107 z | 108 y | 108 z | 205 z | 206 z |
| Setup 5 | 103 z | 103 y | 109 y | 109 z | 110 y | 110 z | 207 z | 208 z |
| Setup 6 | 103 z | 103 y | 111 y | 111 x | 211 y | 211 x | 209 z | 210 z |
| Setup 7 | 103 z | 103 y | 1001 y | 1001 x | 1002 y | 1003 y | 1003 x | 1004 y |
| Setup 8 | 103 z | 103 y | 1005 y | 1006 y | 1007 y | 1008 y | 1009 y | 1010 y |
| No. | Frequencies [Hz] | Damping Ratios [%] | Modal Phase Collinearity | Mode Type |
|---|---|---|---|---|
| 1 | 1.79 | 1.50 | 0.999 | First vertical bending |
| 2 | 2.25 | 1.06 | 0.998 | First lateral |
| 3 | 3.57 | 0.77 | 0.999 | Second torsion |
| 4 | 4.30 | 1.21 | 0.999 | Second vertical bending |
| 5 | 4.60 | 0.40 | 0.996 | lateral movement |
| 6 | 5.03 | 1.50 | 0.998 | Second lateral bending |
| 7 | 8.09 | 1.06 | 0.997 | Third vertical bending |
| No. | Type of Element | Number of Elements | Properties | |
|---|---|---|---|---|
| Cross Sections | Material | |||
| 1 | Beam element | 461 | Top chords, bottom chords, cantilevers, and gate frames | Steel |
| 2 | Truss element | 158 | Wind bracing, stiffening frame, and longitudinal linkage | Steel |
| No. | Truss Members | Area (mm2) | Moment of Inertia Iy (mm4) | Moment of Inertia Iz (mm4) |
|---|---|---|---|---|
| 1 | Bridge gate frame | 4.27 × 104 | 2.9 × 109 | 1.15 × 109 |
| 2 | Top lateral bracing | 4.75 × 104 | 3.31 × 109 | 1.75 × 109 |
| 3 | Bottom lateral bracing | 4.75 × 104 | 3.31 × 109 | 1.75 × 109 |
| 4 | Struts | 1.83 × 104 | 1.03 × 109 | 5.29 × 107 |
| 5 | Diagonal chords | 4.17 × 104 | 2.82 × 109 | 1.04 × 109 |
| 6 | Vertical chords | 1.83 × 104 | 1.03 × 109 | 5.29 × 107 |
| 7 | Top chords | 1.83 × 104 | 1.03 × 109 | 5.29 × 107 |
| 8 | Bottom chords | 1.83 × 104 | 1.03 × 109 | 5.29 × 107 |
| Mode | f-Simulation (Hz) | f-Measurement (Hz) | Error (%) | MAC | Type |
|---|---|---|---|---|---|
| 1 | 1.83 | 1.79 | 2.23 | 0.87 | 1st vertical bending |
| 2 | 2.34 | 2.25 | 4 | 0.85 | 1st lateral |
| 3 | 3.45 | 3.57 | 3.36 | 0.86 | 2nd torsion |
| 4 | 4.06 | 4.30 | 5.58 | 0.69 | 2nd vertical bending |
| 5 | 4.52 | 4.60 | 1.74 | 0.83 | lateral movement |
| 6 | 5.16 | 5.03 | 2.58 | 0.72 | 2nd lateral bending |
| 7 | 8.39 | 8.09 | 3.71 | 0.69 | 3rd vertical bending |
| No. | Uncertain Parameters | Initial Value | Upper Bound | Lower Bound |
|---|---|---|---|---|
| 1 | Young’s modulus —Steel Es (GPa) | 200 | 210 | 190 |
| 2 | Weight density —Steel ρs (kg/m3) | 7850 | 8000 | 7800 |
| 3 | Masses of non-structural —mb (kg/m) | 3000 | 3000 | 5000 |
| No. | Uncertain Parameters | Initial Value | Updated Value |
|---|---|---|---|
| 1 | Young’s modulus —Steel Es (GPa) | 200 | 205.54 |
| 2 | Weight density —Steel ρs (kg/m3) | 7850 | 7956.5 |
| 3 | Masses of non-structural —mb (kg/m) | 3000 | 3600 |
| Mode | f-Simulation (Hz) | f-Measurement (Hz) | Error (%) | MAC | Type |
|---|---|---|---|---|---|
| 1 | 1.79 | 1.79 | 0.00 ↓ | 0.99 ↑ | 1st vertical bending |
| 2 | 2.24 | 2.25 | 0.44 ↓ | 0.95 ↑ | 1st lateral |
| 3 | 3.58 | 3.57 | 0.28 ↓ | 0.96 ↑ | 2nd torsion |
| 4 | 4.33 | 4.30 | 0.69 ↓ | 0.94 ↑ | 2nd vertical bending |
| 5 | 4.61 | 4.60 | 0.21 ↓ | 0.94 ↑ | lateral movement |
| 6 | 5.05 | 5.03 | 0.39 ↓ | 0.94 ↑ | 2nd lateral bending |
| 7 | 8.15 | 8.09 | 0.74 ↓ | 0.94 ↑ | 3rd vertical bending |
Disclaimer/Publisher’s Note: The statements, opinions and data contained in all publications are solely those of the individual author(s) and contributor(s) and not of MDPI and/or the editor(s). MDPI and/or the editor(s) disclaim responsibility for any injury to people or property resulting from any ideas, methods, instructions or products referred to in the content. |
© 2023 by the authors. Licensee MDPI, Basel, Switzerland. This article is an open access article distributed under the terms and conditions of the Creative Commons Attribution (CC BY) license (https://creativecommons.org/licenses/by/4.0/).
Share and Cite
Tran, M.Q.; Sousa, H.S.; Ngo, T.V.; Nguyen, B.D.; Nguyen, Q.T.; Nguyen, H.X.; Baron, E.; Matos, J.; Dang, S.N. Structural Assessment Based on Vibration Measurement Test Combined with an Artificial Neural Network for the Steel Truss Bridge. Appl. Sci. 2023, 13, 7484. https://doi.org/10.3390/app13137484
Tran MQ, Sousa HS, Ngo TV, Nguyen BD, Nguyen QT, Nguyen HX, Baron E, Matos J, Dang SN. Structural Assessment Based on Vibration Measurement Test Combined with an Artificial Neural Network for the Steel Truss Bridge. Applied Sciences. 2023; 13(13):7484. https://doi.org/10.3390/app13137484
Chicago/Turabian StyleTran, Minh Q., Hélder S. Sousa, Thuc V. Ngo, Binh D. Nguyen, Quyen T. Nguyen, Huan X. Nguyen, Edward Baron, José Matos, and Son N. Dang. 2023. "Structural Assessment Based on Vibration Measurement Test Combined with an Artificial Neural Network for the Steel Truss Bridge" Applied Sciences 13, no. 13: 7484. https://doi.org/10.3390/app13137484
APA StyleTran, M. Q., Sousa, H. S., Ngo, T. V., Nguyen, B. D., Nguyen, Q. T., Nguyen, H. X., Baron, E., Matos, J., & Dang, S. N. (2023). Structural Assessment Based on Vibration Measurement Test Combined with an Artificial Neural Network for the Steel Truss Bridge. Applied Sciences, 13(13), 7484. https://doi.org/10.3390/app13137484

