A Probabilistic Framework for Robustness Quantification of Precast Concrete Frames under Seismic Loading
Abstract
:1. Introduction
2. The Methodologies for Robustness Quantification
2.1. Essence of Structural Robustness
- Accidental event: structural robustness refers to the capacity of the considered structure to resist accidental events such as explosion, impacts, earthquakes and so on.
- Local damage: the structure subjected to the specified accidental event is partially damaged. The damage due to the event is restricted to a small portion (with respect to volume or area) of the structure and the degree of the damage is seen to be proportionate to the accidental event. The damage is often referred to as local (or direct) damage (or failure or consequence) and a notional central column removal scenario is the most frequently adopted damage scenario.
- Disproportionality: a structure of adequate robustness will not suffer from disproportionate damage which may be the direct failure or collapse (i.e., the local damage) due to the accidental event or the indirect/progressive failure or collapse triggered by the local damage.
2.2. Philosophy of Robustness Quantification
- Structural-property-based: given an accidental exposure, the considered structure might be damaged. The possibility of damage is only related to the (internal) structural properties (the simplest case is related to the load-bearing capacity). If the structure is damaged, the loss directly due to the exposure initiation (e.g., a loss of a column) is seen as the direct consequence. In this case, the robustness quantification is structural-property-based.
- Structural-performance-based: consider that in practice the structure is subjected to (external) loadings such as self-weight and wind load, then damage in the structure is possible to trigger a follow-up failure or collapse of the whole structure. Note that the loss from the follow-up failure or collapse (e.g., the monetary value of the structure, fatalities due to collapse, etc.) is seen as the indirect consequence. In this case, the probability of collapse is calculated conditionally on the damage initiation as well as the sustained loadings on the structure before the damage occurs, and the afterwards robustness quantification is seen as structural-performance-based.
- Probability- or reliability-based: if the uncertainties corresponding to the internal and external characteristics are taken into account, the probability of damage or collapse can be obtained and then either a property-based or a performance-based methodology is updated to be probability- or reliability-based.
- Risk-based: if a methodology is to compare the changes of direct and indirect risks based on consequences, then this methodology is seen as a risk-based approach.

2.3. Robustness Index Selection
3. The Robustness Quantification Framework for Precast Concrete Frames under Seismic Loading
3.1. Failure Criterion and the Beta-Unzipping Method
3.2. Failure Element and Limit State Function
3.3. Uncertainty Characterization and Failure Probability
3.4. Robustness Quantification
- (1)
- Collect the necessary basic inputs for robustness quantification, including geometric and material properties, boundary conditions, building class, site class, seismic design category and so on;
- (2)
- With the basic inputs at hand, perform structural analysis and determine the resistances (Ri), load effect coefficients (aij, bij) of structural element i subjected to the distributed and pointed loads (qj, Pj);
- (3)
- Set up the limit state function of element i;
- (4)
- By considering the main sources of uncertainties, calculate the failure probability P(Fi) of element i using reliability analysis methods (e.g., the first-order reliability method) or simulation techniques;
- (5)
- Calculate the failure probability Pf of the structure using the beta-unzipping method at level 1;
- (6)
- Repeat procedures (2)–(5) to obtain the failure probabilities Pf(intact) and Pf(damaged) of the intact and damaged structures;
- (7)
- Quantify the structural robustness by adopting the redundancy and vulnerability-based robustness indices based on Equations (1)–(3) accordingly.

4. Robustness Quantification of a Precast Concrete Frame: An Illustration Example
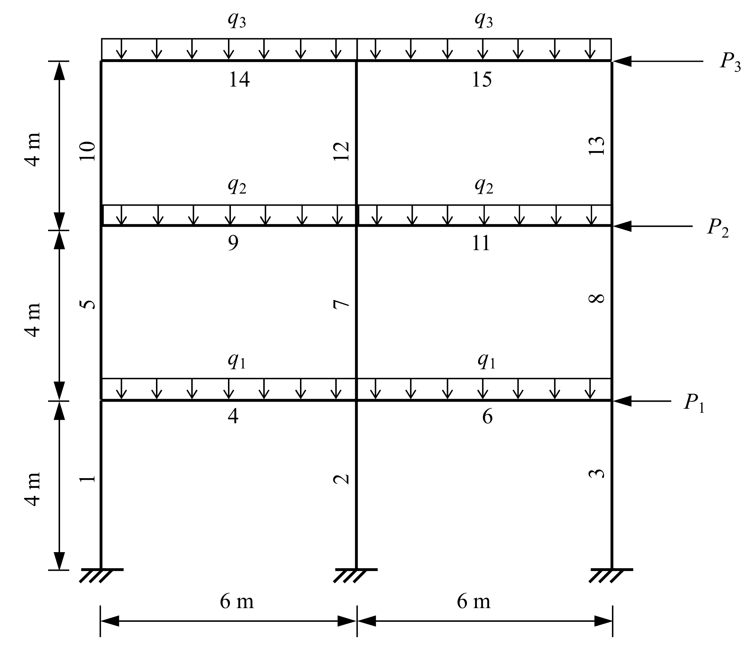
4.1. Problem Description
4.2. Structural Design of the Precast Concrete Frame
4.3. Reliability Index and Robustness Index
5. Conclusions and Remarks
Author Contributions
Funding
Institutional Review Board Statement
Informed Consent Statement
Data Availability Statement
Acknowledgments
Conflicts of Interest
References
- Ellingwood, B.R.; Leyendecker, E.V. Approaches for design against progressive collapse. J. Struct. Div. 1978, 104, 413–423. [Google Scholar] [CrossRef]
- Adam, J.M.; Parisi, F.; Sagaseta, J.; Lu, X. Research and practice on progressive collapse and robustness of building structures in the 21st century. Eng. Struct. 2018, 173, 122–149. [Google Scholar] [CrossRef]
- JCSS—The Joint Committee on Structural Safety. Risk Assessment in Engineering Principles, System Representation & Risk Criteria; JCSS: Lausanne, Switzerland, 2008. [Google Scholar]
- Canisius, T. Structural Robustness Design for Practising Engineers—COST Action TU0601; Robustness of Structures; European Cooperation in Science and Technology: Lausanne, Switzerland, 2011. [Google Scholar]
- Khandelwal, K.; El-Tawil, S. Pushdown resistance as a measure of robustness in progressive collapse analysis. Eng. Struct. 2011, 33, 2653–2661. [Google Scholar] [CrossRef]
- Ahmadi, H.R.; Mahdavi, N.; Bayat, M. Applying adaptive pushover analysis to estimate incremental dynamic analysis curve. J. Earthq. Tsunami 2020, 14, 2050016. [Google Scholar] [CrossRef]
- Shafigh, A.; Ahmadi, H.R.; Bayat, M. Seismic investigation of cyclic pushover method for regular reinforced concrete bridge. Struct. Eng. Mech. Int’l J. 2021, 78, 41–52. [Google Scholar]
- Sae-Long, W.; Limkatanyu, S.; Panedpojaman, P.; Prachasaree, W.; Damrongwiriyanupap, N.; Kwon, M.; Hansapinyo, C. Nonlinear winkler-based frame element with inclusion of shear-flexure interaction effect for analysis of non-ductile RC members on foundation. J. Appl. Comput. Mech. 2021, 7, 148–164. [Google Scholar]
- Limkatanyu, S.; Sae-Long, W.; Damrongwiriyanupap, N.; Imjai, T.; Chaimahawan, P.; Sukontasukkul, P. Shear-flexure Interaction Frame Model on Kerr-type Foundation for Analysis of Non-ductile RC Members on Foundation. J. Appl. Comput. Mech. 2022, 8, 1076–1090. [Google Scholar]
- Khoo, J.H.; Li, B.; Yip, W.K. Tests on precast concrete frames with connections constructed away from column faces. ACI Struct. J. 2006, 103, 18–27. [Google Scholar]
- Park, R. Seismic design and construction of precast concrete buildings in New Zealand. PCI J. 2002, 47, 60–75. [Google Scholar] [CrossRef]
- Shiohara, H.; Watanabe, F. The Japan PRESS precast concrete connection design. In Proceedings of the 12th WCEE, Auckland, New Zealand, 30 January–4 February 2000; pp. 1–8. [Google Scholar]
- Chen, S.C.; Yan, W.M.; Gao, J. Experimental investigation on the seismic performance of large-scale interior beam-column joints with composite slab. Adv. Struct. Eng. 2012, 15, 1227–1237. [Google Scholar] [CrossRef]
- Park, R.; Bull, D.K. Seismic resistance of frames incorporating precast prestressed concrete beam shells. PCI J. 1986, 31, 54–93. [Google Scholar]
- Cheok, G.S.; Lew, H. Performance of precast concrete beam-to-column connections subject to cyclic loading. PCI J. 1991, 36, 56–67. [Google Scholar] [CrossRef]
- Xue, W.C.; Yang, X.L. Seismic tests of precast concrete, moment-resisting frames and connections. PCI J. 2010, 55, 102–121. [Google Scholar] [CrossRef]
- Guan, D.; Guo, Z.; Xiao, Q.; Zheng, Y. Experimental study of a new beam-to-column connection for precast concrete frames under reversal cyclic loading. Adv. Struct. Eng. 2016, 19, 529–545. [Google Scholar] [CrossRef]
- Wang, C.; Liu YZheng, X.; Wu, J. Experimental investigation of a precast concrete connection with all-steel bamboo-shaped energy dissipaters. Eng. Struct. 2019, 178, 298–308. [Google Scholar] [CrossRef]
- Pampanin, S.; Priestley, M.N.; Sritharan, S. Analytical modelling of the seismic behaviour of precast concrete frames designed with ductile connections. J. Earthq. Eng. 2001, 5, 329–367. [Google Scholar] [CrossRef]
- De La Fuente, A.; Aguado, A.; Molins, C.; Armengou, J. Numerical model for the analysis up to failure of precast concrete sections. Comput. Struct. 2012, 106, 105–114. [Google Scholar] [CrossRef]
- Feng, D.C.; Wu, G.; Lu, Y. Finite element modelling approach for precast reinforced concrete beam-to-column connections under cyclic loading. Eng. Struct. 2018, 174, 49–66. [Google Scholar] [CrossRef] [Green Version]
- Feng, D.C.; Wang, Z.; Wu, G. Progressive collapse performance analysis of precast reinforced concrete structures. Struct. Des. Tall Spec. Build. 2019, 28, e1588. [Google Scholar] [CrossRef]
- Feng, D.C.; Xie, S.C.; Deng, W.N.; Ding, Z.D. Probabilistic failure analysis of reinforced concrete beam-column sub-assemblage under column removal scenario. Eng. Fail. Anal. 2019, 100, 381–392. [Google Scholar] [CrossRef]
- Yekrangnia, M.; Taheri, A.; Zahrai, S.M. Experimental and numerical evaluation of proposed precast concrete connections. Struct. Concr. 2016, 17, 959–971. [Google Scholar] [CrossRef]
- Brunesi, E.; Nascimbene, R. Experimental and numerical investigation of the seismic response of precast wall connections. Bull. Earthq. Eng. 2017, 15, 5511–5550. [Google Scholar] [CrossRef]
- Baker, J.W.; Schubert, M.; Faber, M.H. On the assessment of robustness. Struct. Saf. 2008, 30, 253–267. [Google Scholar] [CrossRef]
- CEN (Comité Européen de Normalisation). EN 1990; Eurocode 0: Basis of Structural Design; European Committee for Standardization: Brussels, Belgium, 2002. [Google Scholar]
- Biondini, F.; Restelli, S. Damage propagation and structural robustness. In Proceedings of the International Symposium on Life-Cycle Civil Engineering (IALCCE’08), Lake Como, Italy, 11–14 June 2008; pp. 131–136. [Google Scholar]
- Frangopol, D.M.; Curley, J.P. Effects of damage and redundancy on structural reliability. J. Struct. Eng. 1987, 113, 1533–1549. [Google Scholar] [CrossRef]
- Starossek, U.; Haberland, M. Approaches to measures of structural robustness. Struct. Infrastruct. Eng. 2011, 7, 625–631. [Google Scholar] [CrossRef]
- Kanda, J. Normalized failure cost as a measure of a structure importance. Nucl. Eng. Des. 1996, 160, 299–305. [Google Scholar] [CrossRef]
- Faber, M.H.; Kübler, O.; Fontana, M.; Knobloch, M. Failure Consequences and Reliability Acceptance Criteria for Exceptional Building Structures; Verlag der Fachvereine Hochschulverlag: Zurich, Switzerland, 2004. [Google Scholar]
- Fu, G.; Frangopol, D.M. Balancing weight, system reliability and redundancy in a multiobjective optimization framework. Struct. Saf. 1990, 7, 165–175. [Google Scholar] [CrossRef]
- Lind, N.C. A measure of vulnerability and damage tolerance. Reliab. Eng. Syst. Saf. 1995, 48, 1–6. [Google Scholar] [CrossRef]
- Thoft-Christensen, P.; Murotsu, Y. Application of Structural Systems Reliability Theory; Springer: Berlin/Heidelberg, Germany, 1986. [Google Scholar]
- JCSS—The Joint Committee on Structural Safety. Probabilistic Model Code; Joint Committee on Structural Safety: Lausanne, Switzerland, 2001. [Google Scholar]
- Gao, X.; Bao, A. Probabilistic model and its statistical parameters for seismic load. Earthq. Eng. Eng. Vib. 1985, 5, 13–22. [Google Scholar]
- Holický, M.; Sýkora, M. Stochastic models in analysis of structural reliability. In Proceedings of the International Symposium on Stochastic Models in Reliability Engineering, Life Sciences and Operation Management, Beer Sheva, Israel, 8–11 February 2010; pp. 8–11. [Google Scholar]
- CEN (Comité Européen de Normalisation). EN 1992-1-1; Eurocode 2: Design of Concrete Structures—Part 1-1: General Rules and Rules for Buildings; European Committee for Standardization: Brussels, Belgium, 2004. [Google Scholar]
- Rackwitz, R.; Flessler, B. Structural reliability under combined random load sequences. Comput. Struct. 1978, 9, 489–494. [Google Scholar] [CrossRef]
- JGJ 1-2014; Technical Specification for Precast Concrete Structure. The Ministry of Housing and Urban-Rural Development, Architecture & Building Press: Beijing, China, 2014.
- Zeng, Y.; Botte, W.; Caspeele, R. Reliability analysis of FRP strengthened RC beams considering compressive membrane action. Constr. Build. Mater. 2018, 169, 473–488. [Google Scholar] [CrossRef]



| X | Description | Distribution Type | Mean μX | std., σX |
|---|---|---|---|---|
| G | Permanent load | Normal | specified | 0.05μX |
| Q | Variable load (50 year) | Gumbel | 0.6 Qk | 0.35μX |
| F | Equivalent static shear force | Gumbel | 1.0 Fk | 0.3 μX |
| as | Concrete cover | Beta * | specified | 10 mm |
| fck | Concrete strength | Lognormal | fck + 2 σ | 0.15μX |
| Ec | Concrete modulus of elasticity | Lognormal | 22[(fck + 8)/10]0.3 | 0.15μX |
| εcu | Concrete ultimate compressive strain | Lognormal | specified | 0.15μX |
| fy | Steel yield strength | Lognormal | fyk + 2 σ | 30 MPa |
| Element | Failure Probability | Reliability Index | ||
|---|---|---|---|---|
| Intact | Damaged | Intact | Damaged | |
| Beam No. 4 | 8.55 × 10−2 | 6.25 × 10−1 | 1.37 | −0.32 |
| Beam No. 6 | 7.51 × 10−2 | 1.61 × 10−2 | 1.44 | 2.14 |
| Beam No. 9 | 5.14 × 10−2 | 5.63 × 10−1 | 1.63 | −0.16 |
| Beam No. 11 | 4.57 × 10−2 | 2.37 × 10−2 | 1.69 | 1.98 |
| Beam No. 14 | 1.25 × 10−4 | 7.44 × 10−2 | 3.66 | 1.44 |
| Beam No. 15 | 4.17 × 10−5 | 1.29 × 10−3 | 3.93 | 3.01 |
| Column No. 1 | 3.48 × 10−3 | 2.53 × 10−1 | 2.70 | 0.67 |
| Column No. 2 | 4.28 × 10−2 | N/A | 1.72 | N/A |
| Column No. 3 | 7.38 × 10−3 | 9.52 × 10−2 | 2.44 | 1.31 |
| Column No. 5 | 2.14 × 10−2 | 3.74 × 10−2 | 2.02 | 1.78 |
| Column No. 7 | 6.19 × 10−2 | 1.75 × 10−1 | 1.54 | 0.93 |
| Column No. 8 | 1.55 × 10−2 | 1.66 × 10−2 | 2.16 | 2.13 |
| Column No. 10 | 8.72 × 10−3 | 1.01 × 10−1 | 2.38 | 1.27 |
| Column No. 12 | 2.89 × 10−2 | 4.42 × 10−2 | 1.90 | 1.70 |
| Column No. 13 | 3.82 × 10−3 | 1.39 × 10−2 | 2.67 | 2.20 |
| i/j | 4 | 6 | 7 | 9 | 11 | 2 | 12 | 5 | 8 | 10 | 3 | 13 | 1 | |
|---|---|---|---|---|---|---|---|---|---|---|---|---|---|---|
| ρij = | 4 | 1.000 | 0.933 | 0.466 | 0.895 | 0.887 | 0.442 | 0.305 | 0.476 | 0.404 | 0.300 | 0.286 | 0.284 | 0.425 |
| 6 | 0.933 | 1.000 | 0.462 | 0.887 | 0.878 | 0.438 | 0.302 | 0.472 | 0.400 | 0.297 | 0.281 | 0.281 | 0.423 | |
| 7 | 0.466 | 0.462 | 1.000 | 0.446 | 0.443 | 0.433 | 0.280 | 0.455 | 0.454 | 0.264 | 0.325 | 0.273 | 0.351 | |
| 9 | 0.895 | 0.887 | 0.446 | 1.000 | 0.928 | 0.403 | 0.381 | 0.450 | 0.367 | 0.373 | 0.239 | 0.351 | 0.374 | |
| 11 | 0.887 | 0.878 | 0.443 | 0.928 | 1.000 | 0.400 | 0.378 | 0.447 | 0.363 | 0.370 | 0.238 | 0.349 | 0.371 | |
| 2 | 0.442 | 0.438 | 0.433 | 0.403 | 0.400 | 1.000 | 0.252 | 0.414 | 0.410 | 0.239 | 0.388 | 0.246 | 0.393 | |
| 12 | 0.305 | 0.302 | 0.280 | 0.381 | 0.378 | 0.252 | 1.000 | 0.230 | 0.216 | 0.443 | 0.179 | 0.444 | 0.186 | |
| 5 | 0.476 | 0.472 | 0.455 | 0.450 | 0.447 | 0.414 | 0.230 | 1.000 | 0.436 | 0.218 | 0.307 | 0.225 | 0.342 | |
| 8 | 0.404 | 0.400 | 0.454 | 0.367 | 0.363 | 0.410 | 0.216 | 0.436 | 1.000 | 0.203 | 0.311 | 0.214 | 0.329 | |
| 10 | 0.300 | 0.297 | 0.264 | 0.373 | 0.370 | 0.239 | 0.443 | 0.218 | 0.203 | 1.000 | 0.169 | 0.415 | 0.178 | |
| 3 | 0.286 | 0.281 | 0.325 | 0.239 | 0.238 | 0.388 | 0.179 | 0.307 | 0.311 | 0.169 | 1.000 | 0.178 | 0.349 | |
| 13 | 0.284 | 0.281 | 0.273 | 0.351 | 0.349 | 0.246 | 0.444 | 0.225 | 0.214 | 0.415 | 0.178 | 1.000 | 0.182 | |
| 1 | 0.425 | 0.423 | 0.351 | 0.374 | 0.371 | 0.393 | 0.186 | 0.342 | 0.329 | 0.178 | 0.349 | 0.182 | 1.000 |
| i/j | 4 | 9 | 1 | 7 | 10 | 3 | 14 | 12 | 5 | 11 | 8 | 6 | 13 | |
|---|---|---|---|---|---|---|---|---|---|---|---|---|---|---|
| ρij = | 4 | 1.000 | 0.900 | 0.503 | 0.463 | 0.405 | 0.361 | 0.778 | 0.397 | 0.478 | −0.812 | 0.376 | −0.861 | 0.340 |
| 9 | 0.900 | 1.000 | 0.454 | 0.434 | 0.445 | 0.314 | 0.856 | 0.435 | 0.450 | −0.813 | 0.334 | −0.808 | 0.366 | |
| 1 | 0.503 | 0.454 | 1.000 | 0.434 | 0.331 | 0.435 | 0.385 | 0.338 | 0.407 | −0.418 | 0.377 | −0.467 | 0.306 | |
| 7 | 0.463 | 0.434 | 0.434 | 1.000 | 0.365 | 0.430 | 0.363 | 0.394 | 0.448 | −0.435 | 0.446 | −0.466 | 0.371 | |
| 10 | 0.405 | 0.445 | 0.331 | 0.365 | 1.000 | 0.300 | 0.442 | 0.434 | 0.335 | −0.386 | 0.288 | −0.353 | 0.368 | |
| 3 | 0.361 | 0.314 | 0.435 | 0.430 | 0.300 | 1.000 | 0.254 | 0.338 | 0.376 | −0.326 | 0.397 | −0.377 | 0.336 | |
| 14 | 0.778 | 0.856 | 0.385 | 0.363 | 0.442 | 0.254 | 1.000 | 0.431 | 0.369 | −0.745 | 0.257 | −0.682 | 0.356 | |
| 12 | 0.397 | 0.435 | 0.338 | 0.394 | 0.434 | 0.338 | 0.431 | 1.000 | 0.341 | −0.438 | 0.329 | −0.396 | 0.436 | |
| 5 | 0.478 | 0.450 | 0.407 | 0.448 | 0.335 | 0.376 | 0.369 | 0.341 | 1.000 | −0.405 | 0.411 | −0.443 | 0.304 | |
| 11 | −0.812 | −0.813 | −0.418 | −0.435 | −0.386 | −0.326 | −0.745 | −0.438 | −0.405 | 1.000 | −0.363 | 0.898 | −0.421 | |
| 8 | 0.376 | 0.334 | 0.377 | 0.446 | 0.288 | 0.397 | 0.257 | 0.329 | 0.411 | −0.363 | 1.000 | −0.400 | 0.331 | |
| 6 | −0.861 | −0.808 | −0.467 | −0.466 | −0.353 | −0.377 | −0.682 | −0.396 | −0.443 | 0.898 | −0.400 | 1.000 | −0.383 | |
| 13 | 0.340 | 0.366 | 0.306 | 0.371 | 0.368 | 0.336 | 0.356 | 0.436 | 0.304 | −0.421 | 0.331 | −0.383 | 1.000 |
Publisher’s Note: MDPI stays neutral with regard to jurisdictional claims in published maps and institutional affiliations. |
© 2022 by the authors. Licensee MDPI, Basel, Switzerland. This article is an open access article distributed under the terms and conditions of the Creative Commons Attribution (CC BY) license (https://creativecommons.org/licenses/by/4.0/).
Share and Cite
Zeng, Y.; Huang, Y.; Sun, Z. A Probabilistic Framework for Robustness Quantification of Precast Concrete Frames under Seismic Loading. Appl. Sci. 2022, 12, 3814. https://doi.org/10.3390/app12083814
Zeng Y, Huang Y, Sun Z. A Probabilistic Framework for Robustness Quantification of Precast Concrete Frames under Seismic Loading. Applied Sciences. 2022; 12(8):3814. https://doi.org/10.3390/app12083814
Chicago/Turabian StyleZeng, Yihua, Yan Huang, and Zeyang Sun. 2022. "A Probabilistic Framework for Robustness Quantification of Precast Concrete Frames under Seismic Loading" Applied Sciences 12, no. 8: 3814. https://doi.org/10.3390/app12083814
APA StyleZeng, Y., Huang, Y., & Sun, Z. (2022). A Probabilistic Framework for Robustness Quantification of Precast Concrete Frames under Seismic Loading. Applied Sciences, 12(8), 3814. https://doi.org/10.3390/app12083814

