Imaging Diagnostics of Inside of a Building Wall Using Millimeter-Wave Reflectometer
Abstract
:Featured Application
Abstract
1. Introduction
2. Reflectometric Measurement
2.1. Principle
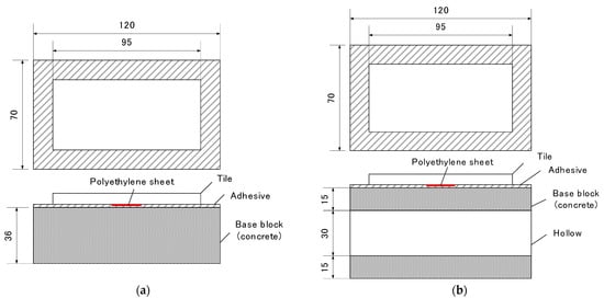
2.2. Principle Verification
3. Practical Application
3.1. System Fabrication
3.2. Signal Processing
4. Experimental Results and Discussion
- a.
- Non-adhesive state: red dot.
- b.
- Half-adhesive state: yellow dot.
- c.
- Adhesive state: green dot.
5. Conclusions
6. Patents
Author Contributions
Funding
Institutional Review Board Statement
Informed Consent Statement
Data Availability Statement
Acknowledgments
Conflicts of Interest
References
- Bareira, E.; de Freitas, V.P. Evaluation of building materials using infrared thermography. Constr. Build. Mater. 2007, 21, 218–224. [Google Scholar] [CrossRef]
- Tso, S.K.; Feng, T. Robot Assisted Wall Inspection for Improved Maintenance of High-Rise Buildings. In Proceedings of the International Symposium on Automation and Robotics in Construction (IAARC), Eindhoven, The Netherlands, 21–24 September 2003. [Google Scholar]
- Montero, R.; Victores, J.G.; Martínez, S.; Jardón, A.; Balaguer, C. Past, present and future of robotic tunnel inspection. Autom. Constr. 2015, 59, 99–112. [Google Scholar] [CrossRef]
- Balaras, C.A.; Argiriou, A.A. Infrared thermography for building diagnostics. Energy Build. 2002, 34, 171–183. [Google Scholar] [CrossRef]
- Ocaña, S.M.; Guerrero, I.C.; Requena, I.G. Thermographic survey of two rural buildings in Spain. Energy Build. 2004, 36, 515–523. [Google Scholar] [CrossRef]
- Albatici, R.; ATonelli, M. Infrared thermovision technique for the assessment of thermal transmittance value of opaque building elements on site. Energy Build. 2010, 42, 2177–2183. [Google Scholar] [CrossRef]
- Ribarić, S.; Marčetić, D.; Vedrina, D.S. A knowledge-based system for the non-destructive diagnostics of façade isolation using the information fusion of visual and IR images. Expert Syst. Appl. 2009, 36, 3812–3823. [Google Scholar] [CrossRef]
- Monchau, J.P.; Marchetti, M.; Ibos, L.; Dumoulin, J.; Feuillet, V.; Candau, Y. Infrared emissivity measurements of building and civil engineering materials. Int. J. Thermophys. 2014, 35, 1817–1831. [Google Scholar] [CrossRef]
- Datcu, S.; Ibos, L.; Candau, Y.; Matteï, S. Contribution to improvement of building wall surface temperature measurements by infrared thermography. Infrared Phys. Technol. 2005, 46, 451–467. [Google Scholar] [CrossRef]
- Kylili, A.; Fokaides, P.; Christou, P.; Kaiogirou, S. Infrared thermography (IRT) applications for building diagnostics: A review. Appl. Energy 2014, 134, 531–549. [Google Scholar] [CrossRef]
- Kersemans, M.; Verboven, E.; Segers, J.; Hedayatrasa, S.; Paepegem, W.V. Non-Destructive Testing of Composites by Ultrasound, Local Defect Resonance and Thermography; Multidisciplinary Digital Publishing Institute Proceedings: Basel, Switzerland, 2018; Volume 2, pp. 554–563. [Google Scholar]
- Álvarez-Arenas, T.G.; Camacho, J. Air-Coupled and Resonant Pulse-Echo Ultrasonic Technique. Sensors 2019, 19, 2221–2238. [Google Scholar] [CrossRef] [PubMed] [Green Version]
- Mase, A.; Kogi, Y.; Kuwahara, D.; Nagayama, Y.; Ito, N.; Maruyama, T.; Ikezi, H.; Wang, X.; Inutake, M.; Tokuzawa, T.; et al. Development and application of radar reflectometer using micro to infrared waves. Adv. Phys. X 2018, 3, 1472529. [Google Scholar] [CrossRef] [Green Version]
- Ministry of Internal Affairs and Communications (MIC), The Radio Use Web Site. Available online: https://www.tele.soumu.go.jp/j/adm/system/ml/small/ (accessed on 7 January 2022).








| Sample Type | Adhesion Rate Evaluated from Microwave Measurement | Adhesion Rate Evaluated from Visual Inspection | Difference between Microwave Measurement and Visual Inspection |
|---|---|---|---|
| Normal | 56.9% | 61.0% | 4.1 pp |
| Hollow | 77.0% | 75.0% | 2.0 pp |
Publisher’s Note: MDPI stays neutral with regard to jurisdictional claims in published maps and institutional affiliations. |
© 2022 by the authors. Licensee MDPI, Basel, Switzerland. This article is an open access article distributed under the terms and conditions of the Creative Commons Attribution (CC BY) license (https://creativecommons.org/licenses/by/4.0/).
Share and Cite
Osaki, S.; Mase, A.; Hirata, Y.; Iwakura, M. Imaging Diagnostics of Inside of a Building Wall Using Millimeter-Wave Reflectometer. Appl. Sci. 2022, 12, 2879. https://doi.org/10.3390/app12062879
Osaki S, Mase A, Hirata Y, Iwakura M. Imaging Diagnostics of Inside of a Building Wall Using Millimeter-Wave Reflectometer. Applied Sciences. 2022; 12(6):2879. https://doi.org/10.3390/app12062879
Chicago/Turabian StyleOsaki, Shota, Atsushi Mase, Yoshikazu Hirata, and Munehiro Iwakura. 2022. "Imaging Diagnostics of Inside of a Building Wall Using Millimeter-Wave Reflectometer" Applied Sciences 12, no. 6: 2879. https://doi.org/10.3390/app12062879
APA StyleOsaki, S., Mase, A., Hirata, Y., & Iwakura, M. (2022). Imaging Diagnostics of Inside of a Building Wall Using Millimeter-Wave Reflectometer. Applied Sciences, 12(6), 2879. https://doi.org/10.3390/app12062879

