Research on Deformation Analysis and Rehabilitation for a Beam–Arch Combination Bridge Suffering an Extreme Temperature Field
Abstract
:1. Introduction
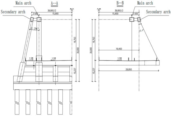
2. The Engineering Background of a Beam–Arch Combination Bridge after a Typhoon
- (1)
- Foundation treatment of the frame scaffolding, October 2018;
- (2)
- Construction of the arch springing and the crossbeam, January 2019;
- (3)
- Manufacture of arch ribs and steel box girder components in the factory, October 2018 to January 2019;
- (4)
- Assembly and welding of the steel box girder on-site in open air conditions (shown in Figure 4), 7 May to 27 June 2019. The construction order was as follows: first the bottom plates of the steel box girder were installed, then the diaphragm plate and the belly plate, and lastly the top plates; the top plates of the steel box girder were closed from 11 June to 27 June 2019, the environment temperature was 30–36 °C in the day time;
- (5)
- Assembly and welding of the arch ribs in open air conditions, 20 March to 27 June 2019;
- (6)
- Installation of the tie bars, June 2019;
- (7)
- Installation of the hanger rods, July 2019;
- (8)
- Pre-stress of the hanger rods, 5 August to 10 August 2019;
- (9)
- Demolition of the frame scaffolding of the box girder, 25 August to 29 August 2019; demolition of rest of the frame scaffolding, 17 October 2019.
3. Cause Analysis of the Abnormal Deformation of the Bridge
3.1. Result of Temperature and Deformation Monitoring
3.2. Numerical Analysis Results
4. Rehabilitation Measures and Rehabilitation Effect
5. Discussions and Suggestion
6. Conclusions
- (1)
- The exact cause of the abnormal deformation of the bridge was the inconsistency of the temperature field between the top and bottom plates, and the sudden approach of the typhoon aggravated the inconsistency of this temperature field;
- (2)
- Abnormal deformation of the construction bridge was the result of a temperature decrease caused by the typhoon, and other abnormal weather conditions should be addressed with special treatments, such as replacing bearings by jacking the whole superstructure before forming the bridge because short-term recovery is difficult.
- (3)
- An extreme temperature field should be considered in the design of a beam–arch combination bridge. To prevent abnormal deformation of the beam–arch combination bridge caused by the extreme temperature field, controlling measures should be taken to ensure the uniform distribution of the temperature field inside and outside the steel box girder during the construction period, such as assembling the steel box girder in a construction shed with a constant temperature. These results can provide a reference for the design and construction of similar bridges.
Author Contributions
Funding
Institutional Review Board Statement
Informed Consent Statement
Data Availability Statement
Acknowledgments
Conflicts of Interest
References
- Kehlbeck, F. The Influence of Solar Radiation on the Bridge Structure; China Railway Publishing House: Beijing, China, 1981. [Google Scholar]
- Hao, C. Study on nonlinear influence of temperature on long-span steel cable-stayed bridge during construction. J. Highw. Transp. Res. Dev. 2013, 20, 63–66. [Google Scholar]
- Dilger, W.H.; Ghali, A.; Chan, M.; Cheung, M.S.; Maes, M.A. Temperature stresses in composite box girder bridges. J. Struct. Eng. 1983, 109, 1460–1478. [Google Scholar] [CrossRef]
- Saetta, A.; Scotta, R.; Vitaliani, R. Stress analysis of concrete structures subjected to variable thermal loads. J. Struct. Eng. 1995, 121, 446–457. [Google Scholar] [CrossRef]
- Cao, Y.; Yim, J.; Zhao, Y.; Wang, M.L. Temperature efects on cable stayed bridge using health monitoring system: A case study. Struct. Health Monit. 2011, 10, 523–537. [Google Scholar] [CrossRef]
- Kim, S.; Kim, C.Y.; Lee, J. Monitoring Results of a Selfanchored Suspension Bridge; Springer: Dordrecht, The Netherlands, 2005. [Google Scholar]
- Xia, Y.; Chen, B.; Zhou, X.Q.; Xu, Y.L. Field monitoring and numerical analysis of Tsing Ma Suspension Bridge temperature behavior. Struct. Control Health Monit. 2013, 20, 560–575. [Google Scholar] [CrossRef]
- Chang, S.P.; Yee, J.; Lee, J. Necessity of the bridge health monitoring system to mitigate natural and man-made disasters. Struct. Infrastruct. Eng. 2009, 5, 173–197. [Google Scholar] [CrossRef]
- Xu, Y.L.; Chen, B.; Ng, C.L.; Wong, K.Y.; Chan, W.Y. Monitoring temperature effect on a long suspension bridge. Struct. Control Health Monit. 2010, 17, 632–653. [Google Scholar] [CrossRef]
- Yarnold, M.T.; Moon, F.L. Temperature-based structural health monitoring baseline for long-span bridges. Eng. Struct. 2015, 86, 157–167. [Google Scholar] [CrossRef]
- Liu, H.; Chen, Z.; Zhou, T. Investigation on temperature distribution and thermal behavior of large span steel structures considering solar radiation. Adv. Steel Constr. 2013, 9, 41–58. [Google Scholar] [CrossRef] [Green Version]
- Zhao, Z.; Liu, H.; Chen, Z. Field monitoring and numerical analysis of thermal behavior of large span steel structures under solar radiation. Adv. Steel Constr. 2017, 13, 190–205. [Google Scholar] [CrossRef] [Green Version]
- Zhao, Z.; Liu, H.; Chen, Z. Thermal behavior of large-span reticulated domes covered by ETFE membrane roofs under solar radiation. Thin-Walled Struct. 2017, 115, 1–11. [Google Scholar] [CrossRef]
- Lee, J.; Loh, K.J.; Choi, H.S.; An, H. Effect of structural change on temperature behavior of a long-span suspension bridge pylon. Int. J. Steel Struct. 2019, 19, 2073–2089. [Google Scholar] [CrossRef]
- Yu, X.M.; Chen, D.W.; Bai, Z.Z. A stability study of the longest steel truss deck cable-stayed bridge during construction. KSCE J. Civ. Eng. 2019, 23, 1717–1724. [Google Scholar] [CrossRef]
- Hrichi, S.; Chaabane-Banaoues, R.; Bayar, S.; Flamini, G.; Oulad El Majdoub, Y.; Mangraviti, D.; Mondello, L.; El Mzoughi, R.; Babba, H.; Mighri, Z.; et al. An experimental study of temperature efect on modal parameters of the Alamosa Canyon Bridge. Earthq. Eng. Struct. Dyn. 1999, 28, 879–897. [Google Scholar] [CrossRef]
- Park, G.; Kabeya, K.; Cudney, H.H.; Inman, D.J. Impedance-Based Structural Health Monitoring for Temperature Varying Applications. JSME Int. J. Ser. A 2012, 42, 249–258. [Google Scholar] [CrossRef] [Green Version]
- Lynch, J.P.; Loh, K.J. A summary review of wireless sensors and sensor networks for structural health monitoring. Shock Vib. Dig. 2006, 38, 91–128. [Google Scholar] [CrossRef] [Green Version]
- Magalhaes, F.; Cunha, A.; Caetano, E. Vibration based structural health monitoring of an arch bridge: From automated OMA to damage detection. Mech. Syst. Signal Processing 2012, 28, 212–228. [Google Scholar] [CrossRef]
- Liu, J.; Liu, Y.J.; Bai, Y.X.; Liu, G.L. Regional Variation and Zoning of Temperature Gradient Pattern of Concrete Box Girder. China J. Highw. Transp. 2020, 33, 73–84. [Google Scholar] [CrossRef]
- Chen, J.Q.; Yan, Q.S. Observation and analysis of Zhanjiang Bay Bridge temperature field during construction. In Proceedings of the 13th Computer Application Academic Conferences Symposium of Engineering Construction, Foshan, China, 7–9 November 2006; pp. 512–518. [Google Scholar]
- Wang, J.F.; Zhang, J.T.; Yang, Z.X.; Xu, R.Q. Control measures for thermal effects during placement of span-scale girder segments on continuous steel box girder bridges. J. Zhejiang Univ.-Sci. A 2020, 21, 255–267. [Google Scholar] [CrossRef]
- Han, S.; Liu, Y.J.; Wang, Z.H.; Bai, Y.X.; Liu, J.; Wang, Z.X. Study on Temperature Effect of Composite Girder Cable-stayed Bridge During Construction in Alpine Region. J. Archit. Civ. Eng. 2021, 38, 107–117. [Google Scholar] [CrossRef]
- Wei, M.C.; Qiao, J.G.; Wang, W.G. Effect of temperature gradient on force of steel box girder support under construction. Hunan Commun. Sci. Technol. 2015, 41, 100–102. [Google Scholar]
- European Committee for Standardization (CEN). Eurocode 1: Actions on Structures—Part 1–5: General Actions—Thermal Actions. EN 1991-1-5; European Committee for Standardization: Brussels, Belgium, 2003. [Google Scholar]
- British Standards Institution (BSI). Steel, Concrete and Composite Bridges—Part2: Specification for Loads; BS 5400-2; British Standards Institution: London, UK, 1978. [Google Scholar]
- AASHTO. LRFD Bridge Design Specifications; Customary U.S. Unit; American Association of State Highway and Transportation Officials: Washington, DC, USA, 2012. [Google Scholar]
- Ministry of Transport of the People’s Republic of China (MOT). The General Specifications for Design of Highway Bridges and Culverts; JTG D60-2015; Ministry of Transport of the People’s Republic of China: Beijing, China, 2015.
- Wang, Z.W.; Zhang, W.M.; Zhang, Y.F.; Liu, Z. Temperature prediction of flat steel box girders of long-span bridges utilizing in situ environmental parameters and machine learning. J. Bridge Eng. 2022, 27, 04022004. [Google Scholar] [CrossRef]
- Gao, W.B.; Su, Q.K.; Zhang, J.W.; Xie, H.B.; Liu, J.Z. Steel bridge construction of Hong Kong-Zhuhai-Macao Bridge. Int. J. Steel Struct. 2020, 20, 1498–1508. [Google Scholar] [CrossRef]
- Jing, Q. Continuous steel box girders and reinforced concrete structures in the main bridge project of Hong Kong-Zhuhai-Macao Bridge. J. Zhejiang Univ.-Sci. A 2020, 21, 249–254. [Google Scholar] [CrossRef]






































| Classification | Main Arch | Secondary Arch | Concrete Arch Foot | Steel Box Girder | Tie Bar |
|---|---|---|---|---|---|
| Elastic modulus [MPa] | 2.06 × 105 | 2.06 × 105 | 3.25 × 104 | 2.06 × 105 | 1.95 × 105 |
| Bulk density (Y) [kN/m3] | 76.98 | 76.98 | 25.00 | 76.98 | 78.50 |
| Resistance to moment of Inertia (Iy) [m4] | 0.1774 | 0.1153 | 8.1920 | / | / |
| Coefficient of linear expansion [1/°C] | 1.20 × 10−6 | 1.20 × 10−6 | 1.20 × 10−5 | 1.20 × 10−6 | 1.20 × 10−6 |
| Cross section (A) [m2] | 0.2819 | 0.1987 | 9.60 | 0.46 | 0.0013 |
| Elements of the Bridge Parts | Initial Temperature Values/°C | Final Temperature Values/°C | |
|---|---|---|---|
| Arches | 20 | 35 | |
| Hanging rods | 20 | 35 | |
| Steel box girder | top plate | 20 | 60 |
| belly plate | 20 | 25 | |
| transverse plate | 20 | 25 | |
| bottom plate | 20 | 20 | |
| Dates | Primary Issues |
|---|---|
| 27 June 2019 | Installation of box girder completed |
| 12 August 2019 | The day before Typhoon Lekima arrived |
| 14 August 2019 | The day after Typhoon Lekima arrived |
| 11 September 2019 | Pre-stress of the hanger rods completed |
| 17 October 2019 | Demolition of the frame scaffolding completed |
| 24 December 2019 | Plan of rehabilitation measures research completed |
| 29 December 2019 | Overall jacking-up of the box girder completed |
| 2 January 2020 | First time of descent of the box girder |
| 4 January 2020 | Adjustment of the force of the hanging rods completed |
| 8 January 2020 | Second time of descent of the box girder |
| 12 January 2020 | Rehabilitation measures completed |
Publisher’s Note: MDPI stays neutral with regard to jurisdictional claims in published maps and institutional affiliations. |
© 2022 by the authors. Licensee MDPI, Basel, Switzerland. This article is an open access article distributed under the terms and conditions of the Creative Commons Attribution (CC BY) license (https://creativecommons.org/licenses/by/4.0/).
Share and Cite
Fu, M.; Liang, Y.; Wu, B.; Zhang, L.; Tang, G. Research on Deformation Analysis and Rehabilitation for a Beam–Arch Combination Bridge Suffering an Extreme Temperature Field. Appl. Sci. 2022, 12, 6909. https://doi.org/10.3390/app12146909
Fu M, Liang Y, Wu B, Zhang L, Tang G. Research on Deformation Analysis and Rehabilitation for a Beam–Arch Combination Bridge Suffering an Extreme Temperature Field. Applied Sciences. 2022; 12(14):6909. https://doi.org/10.3390/app12146909
Chicago/Turabian StyleFu, Meizhen, Yuxiong Liang, Bitao Wu, Ling Zhang, and Guoxi Tang. 2022. "Research on Deformation Analysis and Rehabilitation for a Beam–Arch Combination Bridge Suffering an Extreme Temperature Field" Applied Sciences 12, no. 14: 6909. https://doi.org/10.3390/app12146909
APA StyleFu, M., Liang, Y., Wu, B., Zhang, L., & Tang, G. (2022). Research on Deformation Analysis and Rehabilitation for a Beam–Arch Combination Bridge Suffering an Extreme Temperature Field. Applied Sciences, 12(14), 6909. https://doi.org/10.3390/app12146909

