Relationships between the Macrostructure Features and Acoustic Parameters of Resonance Spruce for Piano Soundboards
Abstract
1. Introduction
2. Materials and Methods
2.1. Determination of Macroscopic Features
2.1.1. Calculation of Latewood Percentage
2.1.2. Longitudinal Angle and Slope of Grain
2.1.3. Orientation of Annual Rings in Cross Section
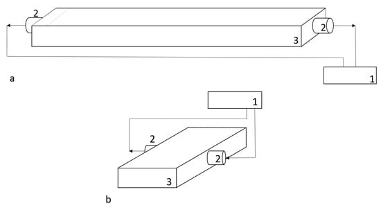
2.2. Determination of Acoustic Parameters through Ultrasonic Direct Transmission Method
2.3. Determination of Acoustic Parameters through Transitory Excitation Method
2.3.1. Pre-Analysis by Finite Element Simulation
2.3.2. Analysis of the Longitudinal Vibration Mode
2.3.3. Analysis of Flexural Vibration Mode (Free-Free Vibration)
2.4. Statistical Analysis
3. Results
3.1. Macroscopic Features
3.2. Acoustic Properties
3.3. Correlation and Regression between Macrostructure and Acoustic Parameters
3.4. Comparison of the Ultrasonic Direct Transmission and the Transitory Excitation methods
3.5. Comparison of Dynamic MOE in Longitudinal and Flexural Directions for the Resonance Method
3.6. Comparison of Longitudinal and Transversal Acoustic Properties
3.7. Analysis of Variance of Selected Factors
4. Conclusions
- The FEM analysis results displayed the range for setting up the experimental analysis of frequency for the resonance method.
- Important correlation coefficients between the latewood component and the density were obtained. Therefore, the %LW showed strong correlations with all density dependent properties and most of all with the acoustic radiation. The R in bending displayed the maximum correlation index (r) value among %LW and all Rs. Consequently, the equation to calculate RFREQB according to %LW for resonance spruce was defined: RFREQB = –0.1533%LW + 15.58.
- A strong correlation was also attained between L velocities defined by both methods and MOEFREQB. Thus, MOE in bending could be estimated according to L velocity: VFREQL; the equation is MOEFREQB = 5.564 VFREQL –17431.
- The comparison of the two methods in L direction showed no significant differences in acoustic properties. Both methods were suitable to estimating the VL, dynamic MOEL, RL, and ZL for resonance spruce for piano soundboard. A significant difference in L and bending directions was established. The dynamic Young’s modulus from L direction to bending had a reduction of 5%, and the R from L to bending had a reduction of 3%.
- Differences between the L and the RT directions occurred. Therefore, VUSRT, RUSRT, and ZUSRT correspond to 1/5 of the equivalent properties of the L direction. The reduction was greater in the dynamic Young’s moduli, reaching a reduction of 96% from L to RT.
- Kruskal Wallis Anova highlighted that more than 1° of slope of grain produced an important reduction in L velocities. The slope of grain would never be more than 1°.
- Another Kruskal Wallis Anova defined the limit of rings’ angle in the cross section. Not to reduce the transversal velocity, the angle should be less than 15°.
- Similar analysis, as mentioned above, was performed based on density. Generally, the higher the density, the greater increase in L velocity. The increase lessened when ρwas > 440 kg m−3.
- The average width of the growing rings should be less than 2.80 cm to maintain density and all density dependent properties constant.
Author Contributions
Funding
Institutional Review Board Statement
Informed Consent Statement
Data Availability Statement
Acknowledgments
Conflicts of Interest
References
- Giuliano Zugliani; Lisa Dotta Resonance wood. Technical features and ecological conditions. Sherwood 2009, 154, 7–13. [Google Scholar]
- Bucur, V. Aging, a modifying factor of resonance wood properties (in Rumanian). Ind. Lemn 1975, 26, 169–174. [Google Scholar]
- Bucur, V.; Feeney, F. Attenuation of ultrasound in silicone-oil-in-water emulsions. Ultrasonics 1992, 30, 76–81. [Google Scholar] [CrossRef]
- Ghelmezien, N.; Beldie, I. On the characteristics of resonance spruce wood. Bullettin Transilv. Univiversity Brasov 1970, 12, 315–326. [Google Scholar]
- Holz, D. Investigations on resonance wood. Communication: On the simultaneous determination of the dynamic modulus of elasticity and the damping of wooden bars in the audible frequency range. Holztechnologie 1967, 8, 221–224. [Google Scholar]
- Bucur, V. Acoustics of Wood, 2nd ed.; Timell, T.E., Wimmer, R., Eds.; Springer: Berlin/Heidelberg, Germany, 2006; ISBN 13 978-3-642-06555-2. [Google Scholar]
- Caniato, M. Caratterizzazione microstrutturale di legno per strumenti musicali-Microstructural characterization of wood for musical instruments. In Proceedings of the Italian Acoustic Association Congress, Firenze, Italy, 13–15 June 2014. [Google Scholar]
- Mania, P.; Fabisiak, E.; Skrodzka, E. Investigation of Modal Behaviour of Resonance Spruce Wood Samples (Picea abies L.). Arch. Acoust. 2017, 42, 23–28. [Google Scholar] [CrossRef][Green Version]
- Buksnowitz, C.; Teischinger, A.; Müller, U.; Pahler, A.; Evans, R. Resonance wood [ Picea abies (L.) Karst.] – evaluation and prediction of violin makers’ quality-grading. J. Acoust. Soc. Am. 2007, 121, 2384–2395. [Google Scholar] [CrossRef] [PubMed]
- Gabriele Bonamini La ricerca sul legno di risonanza di Paneveggio-The research on Paneveggio’s resonance wood. In Proceedings of the Conference Proceeding The Resonance Wood of Paneveggio Forest, Trento, Italy, 10–11 September 1998; pp. 49–82.
- Krzysik, F. Untersuchungen uber den Einfluss der Rohdichte auf die Verwendungsmoglichkeit von Fichtenklangholz - Investigations on resonance wood. Communication: On the simultaneous determination of the dynamic modulus of elasticity and the damping of wooden bars in. Holz als Roh- und Werkst. 1967, 25, 37. [Google Scholar]
- Tsoumis, G. Science and Technology of Wood, 1st ed.; Van Nostrand Reinold: New York, NY, USA, 1991; ISBN 0-412-07851-1. [Google Scholar]
- Barlow, C. Materials selection for musical instruments. Proc. Inst. Acoust. 1997, 19, 69–78. [Google Scholar]
- Wegst, U.G.K. WOOD FOR SOUND. Am. J. Bot. 2006, 93, 1439–1448. [Google Scholar] [CrossRef]
- Yoshikawa, S. Acoustical classification of woods for string instruments. J. Acoust. Soc. Am. 2007, 122, 568–573. [Google Scholar] [CrossRef] [PubMed]
- Sedik, Y.; Hamdan, S.; Jusoh, I.; Hasan, M. Acoustic properties of selected tropical wood species. J. Nondestruct. Eval. 2010, 29, 38–42. [Google Scholar] [CrossRef]
- Roohnia, M.; Hossein, M.A.; Alavi-Tabar, S.E.; Tajdini, A.; Jahan-Latibari, A.; Manouchehri, N. Acoustic properties in arizona cypress logs: A tool to select wood for sounding board. BioResources 2011, 6, 386–399. [Google Scholar] [CrossRef]
- Roohnia, M.; Tajdini, A.; Manouchehri, N. Assessing wood in sounding boards considering the ratio of acoustical anisotropy. NDT E Int. 2011, 44, 13–20. [Google Scholar] [CrossRef]
- Brémaud, I.; El Kaïm, Y.; Guibal, D.; Minato, K.; Thibaut, B.; Gril, J. Characterisation and categorisation of the diversity in viscoelastic vibrational properties between 98 wood types. Ann. For. Sci. 2012, 69, 373–386. [Google Scholar] [CrossRef]
- Baar, J.; Tippner, J.; Gryc, V. Wood anatomy and acoustic properties of selected tropical hardwoods. IAWA J. 2016, 37, 69–83. [Google Scholar] [CrossRef]
- Ross, R.J.; Brashaw, B.K.; Pellerin, R.F. Nondestructive evaluation of wood. For. Prod. J. 1998, 48, 14–19. [Google Scholar]
- Ilic, J. Variation of the dynamic elastic modulus and wave velocity in the fibre direction with other properties during the drying of Eucalyptus regnans F. Muell. Wood Sci. Technol. 2001, 35, 157–166. [Google Scholar] [CrossRef]
- Hassan, K.T.S.; Horáček, P.; Tippnera, J. Evaluation of stiffness and strength of scots pine wood using resonance frequency and ultrasonic techniques. BioResources 2013, 8, 1634–1645. [Google Scholar] [CrossRef]
- Kasal, B.; Anthony, R.W. Advances inin situ evaluation of timber structures. Prog. Struct. Eng. Mater. 2004, 6, 94–103. [Google Scholar] [CrossRef]
- Horáček, P.; Tippner, J. Nondestructive Evaluation of Static Bending Properties of Scots Pine Wood Using Stress Wave Technique. Wood Res. 2012, 57, 359–366. [Google Scholar]
- Jung, J. Stress-Wave Grading Techniques on Veneer Sheets. USDA For. Serv. Gen. Tech. Rep. FPL (Forest Prod. Lab.) 1979. [Google Scholar]
- SMULSKI, S. Relationship of stress wave- and static bending-determined properties of four northeastern hardwoods. Wood Fiber Sci. 1991, 23, 44–57. [Google Scholar]
- Tippner, J.; Gryc, V.; Baar, J. Application of microwave treatment for the plasticisation of beech wood (Fagus sylvatica L.) and its densification for flooring system purposes. Wood Sci. Technol. 2016, 48, 1–14. [Google Scholar] [CrossRef]
- Giordano, G. Tecnologia del Legno- Wood Technology, 3rd ed.; UTET: Torino, Italy, 1981; ISBN 8802036233. [Google Scholar]
- Haines, D.; Leban, J.-M.; Herbe, C. Determination of Young’s modulus for spruce, fir and isotropic materials by the resonance flexure method with comparisons to static flexure and other dynamic methods. Wood Sci. Technol. 1996, 30, 253–263. [Google Scholar] [CrossRef]
- Haines, D.W.; Leban, J.M. Evaluation of the MOE of Norway spruce by the resonance flexure method. For. Prod. J. 1997, 47, 91–93. [Google Scholar]
- Hearmon, R.F.S. Elasticity of Wood and Plywood. Nature 1948, 162, 826. [Google Scholar] [CrossRef]
- Fletcher, N.H.; Rossing, T.D. The Physics of Musical Instruments, 2nd ed.; Springer Science+ Business: New York, NY, USA, 1998; ISBN 978-1-4419-3120-7. [Google Scholar]
- Abdolahian Sohi, A.M.; Khademi-Eslam, H.; Hemmasi, A.H.; Roohnia, M.; Talaiepour, M. Nondestructive detection of the effect of drilling on acoustic performance of wood. BioResources 2011, 6, 2632–2646. [Google Scholar]
- Barducci, I.; Pasqualini, G. Misura dell’attrito interno e delle costanti elastiche del legno- Measurement of internal friction and elastic constants of wood. Nuovo Cim. 1948, 5, 416–446. [Google Scholar] [CrossRef]
- Haines, D.W. On musical instrument wood. Catgut Acoust. Soc. Newsl. 1979, 31, 23–32. [Google Scholar]
- Bucur, V. Handbook of Materials for String Musical Instruments; Springer: Berlin/Heidelberg, Germany, 2016; ISBN 9783319320786. [Google Scholar]
- Brémaud, I. Diversity of Woods Used or Usable in Musical Instruments Making; University of Montpellier II: Montpellier, France, 2006. [Google Scholar]
- Benade, A.H. Fundamentals of musical acoustics, 2nd ed.; Dover Publications Inc.: New York, NY, USA, 1990; ISBN 0486670473. [Google Scholar]









| Parameter | Mean | st. dev. | CV(%) | |
|---|---|---|---|---|
| Macrostructure Parameters | ρ (kg m−3) | 463 | 48 | 10 |
| AWAR (mm) | 2.16 | 0.63 | 29 | |
| %LW (%) | 20.96 | 5.19 | 25 | |
| α (°) | 0.85 | 0.93 | 110 | |
| β(°) | 26.82 | 16.24 | 61 |
| Method: US | Range of Values | Method: FREQ | Range of Values | ||
|---|---|---|---|---|---|
| VL (m s−1) | 4891.30 | 6818.18 | VL (m s−1) | 4635.00 | 6367.50 |
| MOEL (GPa) | 9865.53 | 22,369.25 | MOEL (GPa) | 9854.53 | 22,607.64 |
| ZL (MPa s m−1) | 1.93 | 3.63 | ZL (MPa s m−1) | 1.95 | 3.63 |
| RL (m4 kg−1 s−1) | 9.82 | 17.77 | RL (m4 kg−1 s−1) | 9.34 | 15.77 |
| Parameter | Mean | st. dev. | CV(%) | |
|---|---|---|---|---|
| Acoustic Parameters | VUSL (m s−1) | 5843 | 278 | 5 |
| MOEUSL (GPa) | 15901 | 2518 | 16 | |
| ZUSL (MPa s m−1) | 2.71 | 0.34 | 13 | |
| RUSL (m4 kg−1 s−1) | 12.72 | 1.28 | 10 | |
| VUSRT (m s−1) | 1165 | 351 | 30 | |
| MOEUSRT (GPa) | 681 | 429 | 63 | |
| ZUSRT (MPa s m−1) | 0.54 | 0.16 | 31 | |
| RUSRT (m4 kg−1 s−1) | 2.55 | 0.84 | 33 | |
| VFREQL (m s−1) | 5833 | 313 | 5 | |
| MOEFREQL (GPa) | 15857 | 2641 | 17 | |
| ZFREQL (MPa s m−1) | 2.71 | 0.35 | 13 | |
| RFREQL (m4 kg−1 s−1) | 12.70 | 1.31 | 10 | |
| MOEFREQB (GPa) | 15040 | 2512 | 17 | |
| RFREQB (m4 kg−1 s−1) | 12.37 | 1.23 | 10 |
Publisher’s Note: MDPI stays neutral with regard to jurisdictional claims in published maps and institutional affiliations. |
© 2021 by the authors. Licensee MDPI, Basel, Switzerland. This article is an open access article distributed under the terms and conditions of the Creative Commons Attribution (CC BY) license (http://creativecommons.org/licenses/by/4.0/).
Share and Cite
Manzo, G.; Tippner, J.; Zatloukal, P. Relationships between the Macrostructure Features and Acoustic Parameters of Resonance Spruce for Piano Soundboards. Appl. Sci. 2021, 11, 1749. https://doi.org/10.3390/app11041749
Manzo G, Tippner J, Zatloukal P. Relationships between the Macrostructure Features and Acoustic Parameters of Resonance Spruce for Piano Soundboards. Applied Sciences. 2021; 11(4):1749. https://doi.org/10.3390/app11041749
Chicago/Turabian StyleManzo, Ginevra, Jan Tippner, and Petr Zatloukal. 2021. "Relationships between the Macrostructure Features and Acoustic Parameters of Resonance Spruce for Piano Soundboards" Applied Sciences 11, no. 4: 1749. https://doi.org/10.3390/app11041749
APA StyleManzo, G., Tippner, J., & Zatloukal, P. (2021). Relationships between the Macrostructure Features and Acoustic Parameters of Resonance Spruce for Piano Soundboards. Applied Sciences, 11(4), 1749. https://doi.org/10.3390/app11041749

