Seismic Behavior of Concrete-Filled Circular Steel Tubular Column–Reinforced Concrete Beam Frames with Recycled Aggregate Concrete
Abstract
:1. Introduction
2. Experimental Program
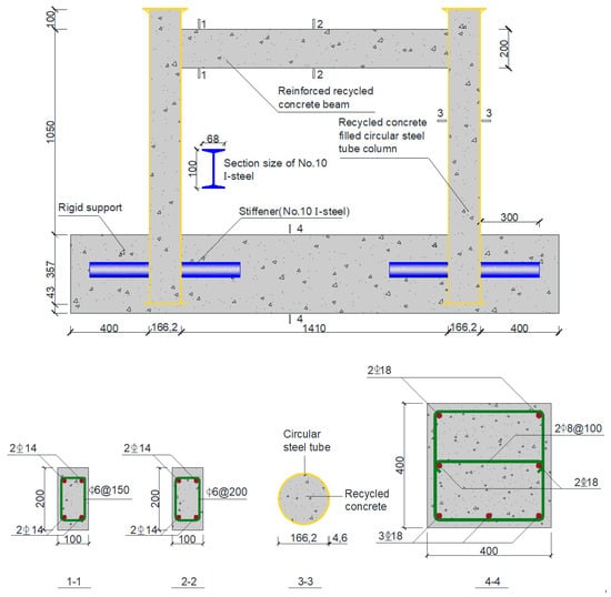
2.1. Specimen Details
2.2. Material Properties
2.3. Test and Measuring Devices
3. Test Process and Failure Characteristics
3.1. Test Process Description
3.2. Analysis of Failure Characteristics
4. Test Results and Analysis
4.1. Hysteresis Curve
4.2. Skeleton Curve
4.3. Ductility
4.4. Energy Dissipation Capacity
4.5. Stiffness Degradation
5. Conclusions
Author Contributions
Funding
Acknowledgments
Conflicts of Interest
References
- Foti, D.; Cavallo, D. Mechanical behavior of concretes made with non-conventional organic origin calcareous aggregates. Constr. Build. Mater. 2018, 179, 100–106. [Google Scholar] [CrossRef]
- Tam, V.W.; Butera, A.; Le, K.N. Carbon-conditioned recycled aggregate in concrete production. J. Clean. Prod. 2016, 133, 672–680. [Google Scholar] [CrossRef]
- Ceia, F.; Raposo, J.; Guerra, M. Shear strength of recycled aggregate concrete to natural aggregate concrete interfaces. Constr. Build. Mater. 2016, 109, 139–145. [Google Scholar] [CrossRef]
- Kou, S.C.; Poon, C.S. Enhancing the durability properties of concrete prepared with coarse recycled aggregate. Constr. Build. Mater. 2012, 35, 69–76. [Google Scholar] [CrossRef]
- Li, X. Recycling and reuse of waste concrete in China: Part I. Material behavior of recycled aggregate concrete. Resour. Conserv. Recycl. 2008, 53, 36–44. [Google Scholar] [CrossRef]
- Lye, C.Q.; Dhir, R.K.; Ghataora, G.S. Creep strain of recycled aggregate concrete. Constr. Build. Mater. 2016, 102, 244–259. [Google Scholar] [CrossRef]
- Matias, D.; De Brito, J.; Rosa, A. Mechanical properties of concrete produced with recycled coarse aggregates—Influence of the use of superplasticizers. Constr. Build. Mater. 2013, 44, 101–109. [Google Scholar] [CrossRef]
- Silva, R.V.; De Brito, J.; Dhir, R.K. Establishing a relationship between modulus of elasticity and compressive strength of recycled aggregate concrete. J. Clean. Prod. 2016, 112, 2171–2186. [Google Scholar] [CrossRef]
- Thomas, C.; Setién, J.; Polanco, J. Durability of recycled aggregate concrete. Constr. Build. Mater. 2013, 40, 1054–1065. [Google Scholar] [CrossRef]
- Vieira, T.; Alves, A.; De Brito, J. Durability-related performance of concrete containing fine recycled aggregates from crushed bricks and sanitary ware. Mater. Des. 2016, 90, 767–776. [Google Scholar] [CrossRef]
- Zega, C.J.; Di Maio, A.A. Recycled concretes made with waste ready-mix concrete as coarse aggregate. J. Mater. Civ. Eng. 2011, 23, 281–286. [Google Scholar] [CrossRef]
- Konno, K.; Sato, Y.; Kakuta, Y. The property of recycled concrete column encased by steel tube subjected to axial compression. Trans. Jpn. Concr. Inst. 1998, 19, 231–238. [Google Scholar]
- Yang, Y.F.; Han, L.H. Experimental behavior of recycled aggregate concrete filled steel tubular columns. J. Constr. Steel Res. 2006, 62, 1310–1324. [Google Scholar] [CrossRef]
- Yang, Y.F.; Han, L.H.; Zhu, L.T. Experimental performance of recycled aggregate concrete-filled circular steel tubular columns subjected to cyclic flexural loadings. Adv. Struct. Eng. 2009, 12, 183–194. [Google Scholar] [CrossRef]
- Zhang, X.G.; Chen, Z.P.; Xue, J.Y. Experimental study and mechanical behavior analysis of recycled aggregate concrete filled steel tubular long columns under axial compression. J. Build. Struct. 2012, 33, 12–20. (In Chinese) [Google Scholar]
- Zhang, X.G.; Chen Z., P.; Wang, J.M. Study on eccentric compression behaviors of recycled aggregate concrete filled steel tubular long columns. Eng. Mech. 2013, 30, 331–340. (In Chinese) [Google Scholar]
- Zhang, X.G.; Chen, Z.P.; Xue, J.Y. Experimental study on seismic behavior of recycled aggregate concrete filled steel tube columns. China Civ. Eng. J. 2014, 47, 45–56. (In Chinese) [Google Scholar]
- Chen, J.; Wang, Y.; Roeder, C.W. Behavior of normal-strength recycled aggregate concrete filled steel tubes under combined loading. Eng. Struct. 2017, 130, 23–40. [Google Scholar] [CrossRef]
- Chen, Z.; Jing, C.; Xu, J. Seismic performance of recycled concrete-filled square steel tube columns. Earthq. Eng. Eng. Vib. 2017, 16, 119–130. [Google Scholar] [CrossRef]
- Wu, B.; Zhao, X.Y.; Zhang, J.S. Cyclic behavior of thin-walled square steel tubular columns filled with demolished concrete lumps and fresh concrete. J. Constr. Steel Res. 2012, 77, 69–81. [Google Scholar] [CrossRef]
- Wu, B.; Zhao, X.Y.; Zhang, J.S. Cyclic testing of thin-walled circular steel tubular columns filled with demolished concrete blocks and fresh concrete. Thin Walled Struct. 2013, 66, 50–61. [Google Scholar] [CrossRef]
- Zhou, Y.; Yi, Q.L.; Lin, S.M. Seismic performance investigations of RC frame structures with buckling-restrained haunch braces. China Civ. Eng. J. 2012, 45, 29–38. [Google Scholar]
- GB50011-2010. Code for Seismic Design of Buildings; China Academy of Building Research: Beijing, China, 2010. (In Chinese) [Google Scholar]
- GB 50010-2010. Code for Design of Concrete Structures; China Academy of Building Research: Beijing, China, 2010. (In Chinese) [Google Scholar]
- GB/T228. 1–2010. Tensile Test for Metallic Materials; Standardization Administration of China: Beijing, China, 2010. (In Chinese) [Google Scholar]
- JGJ101-1996. Specification of Testing Methods for Earthquake Resistant Building; China Academy of Building Research: Beijing, China, 1996. (In Chinese) [Google Scholar]















| Target Concrete Strength | Material Content (kg/m3) | |||||
|---|---|---|---|---|---|---|
| W/C | Cement | Sand | RCA | NCA | Water | |
| 50 MPa | 0.47 | 520 | 628 | 1117 | 0 | 155 |
| Coarse Aggregate | Grading (mm) | Apparent Density (kg/m3) | Bulk Density (kg/m3) | Water Absorption (%) | Water Content (%) |
|---|---|---|---|---|---|
| Natural | 5~20 | 2722 | 1435 | 0.05 | 0.00 |
| Recycled | 5~20 | 2655 | 1270 | 3.16 | 1.82 |
| Member | Compressive Strength of Cube (N/mm2) | Compressive Strength of Prism (N/mm2) | Modulus of Elasticity (N/mm2) |
|---|---|---|---|
| Column | 53.8 | 48.6 | 4.24 × 104 |
| Beam | 47.3 | 37.7 | 3.56 × 104 |
| Member | Yield Strength (N/mm2) | Ultimate Strength (N/mm2) | Modulus of Elasticity (N/mm2) | Yield Strain (με) |
|---|---|---|---|---|
| Steel tube | 406.5 | 478.3 | 2.18 × 105 | 1865 |
| Longitudinal reinforcement | 470.5 | 672.8 | 1.99 × 105 | 2364 |
| Stirrup | 419.9 | 548.5 | 2.16 × 105 | 1944 |
| Specimen Name | Loading Direction | Yield Point | Ultimate Point | Failure Point | μ = Δu/Δy | μaverage | |||
|---|---|---|---|---|---|---|---|---|---|
| Py | Δy | Pu | Δu | Pf | Δf | ||||
| RACFCST frame | + | 148.60 | 9.88 | 172.14 | 17.98 | 146.32 | 25.50 | 2.58 | 2.58 |
| - | 132.48 | 8.83 | 158.62 | 18.02 | 134.83 | — | — | ||
| Specimen Name | Loading Direction | Yield Point | Ultimate Point | Failure Point | |||
|---|---|---|---|---|---|---|---|
| θy | (θy)average | θu | (θu)average | θf | (θf)average | ||
| RACFCST frame | + | 1/86 | 1/91 | 1/47 | 1/47 | 1/33 | 1/33 |
| - | 1/96 | 1/47 | — | ||||
© 2020 by the authors. Licensee MDPI, Basel, Switzerland. This article is an open access article distributed under the terms and conditions of the Creative Commons Attribution (CC BY) license (http://creativecommons.org/licenses/by/4.0/).
Share and Cite
Chen, Z.; Zhou, J.; Li, Z.; Wang, X.; Zhou, X. Seismic Behavior of Concrete-Filled Circular Steel Tubular Column–Reinforced Concrete Beam Frames with Recycled Aggregate Concrete. Appl. Sci. 2020, 10, 2609. https://doi.org/10.3390/app10072609
Chen Z, Zhou J, Li Z, Wang X, Zhou X. Seismic Behavior of Concrete-Filled Circular Steel Tubular Column–Reinforced Concrete Beam Frames with Recycled Aggregate Concrete. Applied Sciences. 2020; 10(7):2609. https://doi.org/10.3390/app10072609
Chicago/Turabian StyleChen, Zongping, Ji Zhou, Zhibin Li, Xinyue Wang, and Xingyu Zhou. 2020. "Seismic Behavior of Concrete-Filled Circular Steel Tubular Column–Reinforced Concrete Beam Frames with Recycled Aggregate Concrete" Applied Sciences 10, no. 7: 2609. https://doi.org/10.3390/app10072609
APA StyleChen, Z., Zhou, J., Li, Z., Wang, X., & Zhou, X. (2020). Seismic Behavior of Concrete-Filled Circular Steel Tubular Column–Reinforced Concrete Beam Frames with Recycled Aggregate Concrete. Applied Sciences, 10(7), 2609. https://doi.org/10.3390/app10072609
