Design and Application of a Smart Lighting System Based on Distributed Wireless Sensor Networks
Abstract
1. Introduction
- (1)
- A smart lighting system for real-application is developed. The system is based on a distributed WSN consisting of sensing modules colocated with luminaries. Combined with the neighbor-aided dimming method, decentralized control provides sufficient illumination in a timely manner.
- (2)
- The performance of the proposed system is verified by experiments in practical environments. The proposed system is evaluated in two different scenarios, a metro station and an office room. The factors influencing energy savings are analyzed, and the results show that the energy saving in a metro station is inversely proportional to the people flow density and the energy saving in an office room was influenced by weather, desired illuminance level, location of worktables, and the number of staff in the room. Based on the results, the proposed system can facilitate the smart lighting system design.
2. Related Works
2.1. Occupancy Sensors for Smart Lighting Control
2.2. Lighting Control
3. Materials and Methods
3.1. System Overview
3.2. Occupancy Sensing and Daylight Sensing
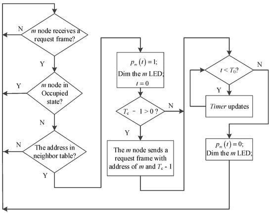
3.3. Lighting Control Based on Rules
3.3.1. Lighting Control Rules for Office Environment
3.3.2. Lighting Control Rules for subway environment
4. Results
4.1. Scenario 1: Metro Station
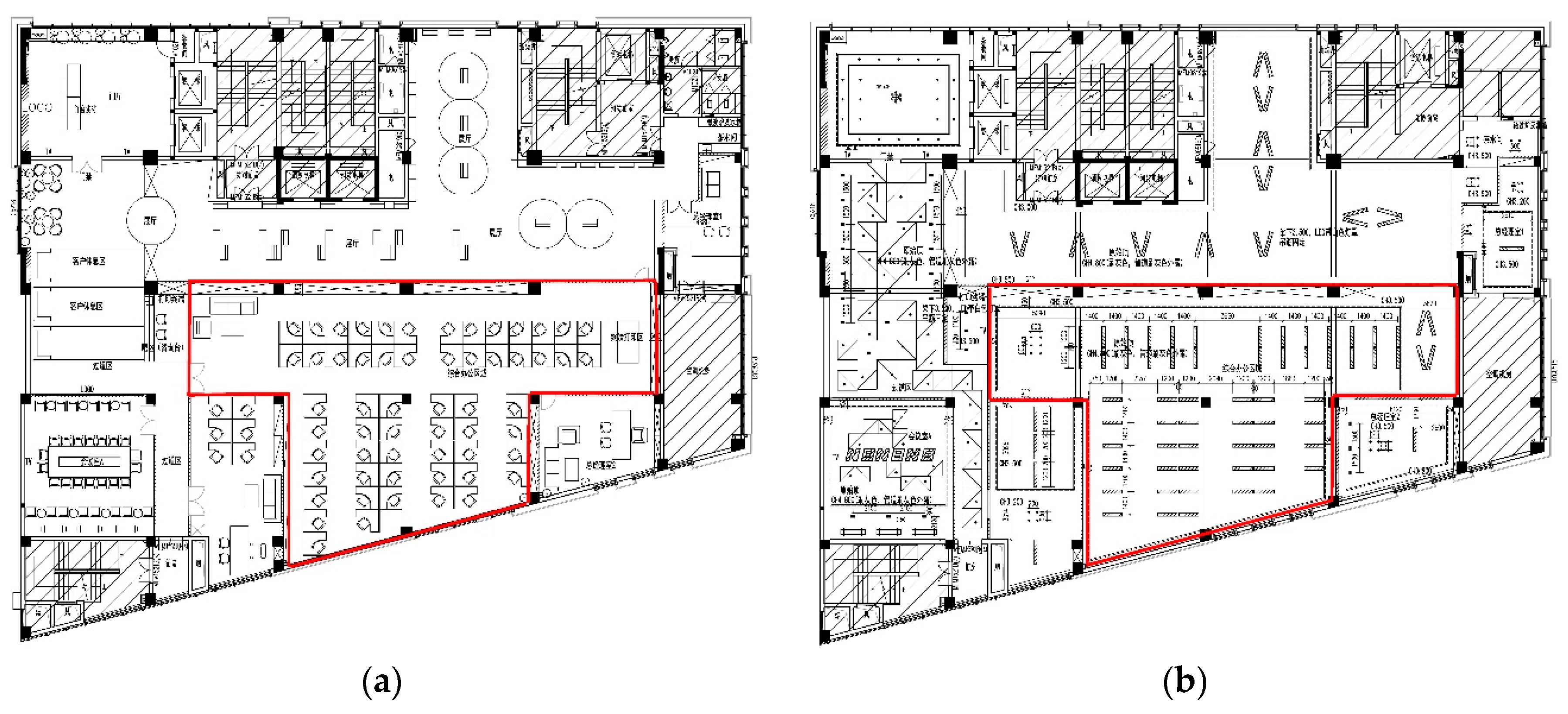
4.2. Scenario 2: Company Office
5. Discussion
Author Contributions
Funding
Conflicts of Interest
References
- Allouhi, A.; El Fouih, Y.; Kousksou, T.; Jamil, A.; Zeraouli, Y. Energy consumption and efficiency in buildings: Current status and future trends. J. Clean. Prod. 2015, 109, 118–130. [Google Scholar] [CrossRef]
- IEA. Transition to Sustainable Buildings; IEA: Paris, France, 2013. [Google Scholar]
- Lowry, G. Energy saving claims for lighting controls in commercial buildings. Energy Build. 2016, 133, 489–497. [Google Scholar] [CrossRef]
- Chiesa, G.; Di Vita, D.; Ghadirzadeh, A.; Herrera, A.H.M.; Rodriguez, J.C.L. A fuzzy-logic IoT lighting and shading control system for smart buildings. Autom. Constr. 2020, 120, 103397. [Google Scholar] [CrossRef]
- Sun, F.; Yu, J. Indoor intelligent lighting control method based on distributed multi-agent framework. Optik 2020, 213, 164816. [Google Scholar] [CrossRef]
- Imam, M.H.T.; Afshari, S.; Mishra, S. Smart lighting control systems. In Intelligent Building Control Systems; Wen, J., Mishra, S., Eds.; Springer International Publishing: Cham, Switzerland, 2018; pp. 221–251. [Google Scholar]
- Cho, Y.; Seo, J.; Lee, H.; Choi, S.; Choi, A.; Sung, M.; Hur, Y. Platform design for lifelog-based smart lighting control. Build. Environ. 2020, 185, 107267. [Google Scholar] [CrossRef]
- Pandharipande, A.; Li, S. Ligh-harvesting wireless sensors for indoor lighting control. IEEE Sens. J. 2013, 13, 4599–4606. [Google Scholar] [CrossRef]
- Peruffo, A.; Pandharipande, A.; Caicedo, D.; Schenato, L. Lighting control with distributed wireless sensing and actuation for daylight and occupancy adaptation. Energy Build. 2015, 97, 13–20. [Google Scholar] [CrossRef]
- Liu, J.; Zhang, W.; Chu, X.; Liu, Y. Fuzzy logic controller for energy savings in a smart LED lighting system considering lighting comfort and daylight. Energy Build. 2016, 127, 95–104. [Google Scholar] [CrossRef]
- Labeodan, T.; de Bakker, C.; Rosemann, A.; Zeiler, W. On the application of wireless sensors and actuators network in existing buildings for occupancy detection and occupancy-driven lighting control. Energy Build. 2016, 127, 75–83. [Google Scholar] [CrossRef]
- Wen, Y.-J.; Agogino, A.M. Personalized dynamic design of networked lighting for energy-efficiency in open-plan offices. Energy Build. 2011, 43, 1919–1924. [Google Scholar] [CrossRef]
- Nagy, Z.; Yong, F.Y.; Frei, M.; Schlueter, A. Occupant centered lighting control for comfort and energy efficient building operation. Energy Build. 2015, 94, 100–108. [Google Scholar] [CrossRef]
- Caicedo, D.; Pandharipande, A. Distributed illumination control with local sensing and actuation in networked lighting systems. IEEE Sens. J. 2013, 13, 1092–1104. [Google Scholar] [CrossRef]
- Pandharipande, A.; Caicedo, D. Smart indoor lighting systems with luminaire-based sensing: A review of lighting control approaches. Energy Build. 2015, 104, 369–377. [Google Scholar] [CrossRef]
- Delvaeye, R.; Ryckaert, W.; Stroobant, L.; Hanselaer, P.; Klein, R.; Breesch, H. Analysis of energy savings of three daylight control systems in a school building by means of monitoring. Energy Build. 2016, 127, 969–979. [Google Scholar] [CrossRef]
- Van de Meugheuvel, N.; Pandharipande, A.; Caicedo, D.; van den Hof, P.P.J. Distributed lighting control with daylight and occupancy adaption. Energy Build. 2014, 75, 321–329. [Google Scholar] [CrossRef]
- Magno, M.; Polonelli, T.; Benini, L.; Popovici, E. A low cost, highly scalable wireless sensor network solution to achieve smart LED light control for green buildings. IEEE Sens. J. 2015, 15, 2963–2973. [Google Scholar] [CrossRef]
- Li, S.; Pandharipande, A. Networked illumination control with distributed light-harvesting wireless sensors. IEEE Sens. J. 2015, 15, 1662–1669. [Google Scholar] [CrossRef]
- Papatsimpa, C.; Linnartz, J.P.M.G. Propagating sensor uncertainty to better infer office occupancy in smart building control. Energy Build. 2018, 179, 73–82. [Google Scholar] [CrossRef]
- Jia, R.; Jin, M.; Chen, Z.; Spanos, C. Soundloc: Accurate room-level indoor localization using acoustic signatures. In Proceedings of the IEEE International Conference on Automation Science and Engineering (IEEE CASE 2015), Gothenburg, Sweden, 24–28 August 2015; pp. 186–193. [Google Scholar]
- Zou, H.; Zhou, Y.; Jiang, H.; Chien, S.-C.; Xie, L.; Spanos, C.J. WinLight: A WiFi-based occupancy-driven lighting control system for smart building. Energy Build. 2018, 158, 924–938. [Google Scholar] [CrossRef]
- Han, K.H.; Zhang, J. Energy-saving building system integration with a smart and low-cost sensing/control network for sustainable and healthy living environments: Demonstration case study. Energy Build. 2020, 214, 109861. [Google Scholar] [CrossRef]
- Ahmad, J.; Larijani, H.; Emmanuel, R.; Mannion, M.; Javed, A. Occupancy detection in non-residential buildings-A survey and novel privacy preserved occupancy monitoring solution. Comput. Inform. 2020, in press. [Google Scholar] [CrossRef]
- Wang, H.; Li, C.; Zhang, Y.; Liu, Z.; Hui, Y.; Mao, G. A scheme on pedestrian detection using multi-sensor data fusion for smart roads. In Proceedings of the 2020 IEEE 91st Vehicular Technology Conference (VTC2020-Spring), Antwerp, Belgium, 25–28 May 2020; pp. 1–5. [Google Scholar]
- Fraden, J. Occupancy and motion detectors. In Handbook of Modern Sensors; Springer: New York, NY, USA, 2010; pp. 247–278. [Google Scholar]
- Dong, B.; Andrews, B.; Lam, K.P.; Höynck, M.; Zhang, R.; Chiou, Y.-S.; Benitez, D. An information technology enabled sustainability test-bed (ITEST) for occupancy detection through an environmental sensing network. Energy Build. 2010, 42, 1038–1046. [Google Scholar] [CrossRef]
- Gao, C.; Li, P.; Zhang, Y.; Liu, J.; Wang, L. People counting based on head detection combining Adaboost and CNN in crowded surveillance environment. Neurocomputing 2016, 208, 108–116. [Google Scholar] [CrossRef]
- Sun, K.; Zhao, Q.; Zou, J. A review of building occupancy measurement systems. Energy Build. 2020, 216, 109965. [Google Scholar] [CrossRef]
- Chen, Z.; Jiang, C.; Xie, L. Building occupancy estimation and detection: A review. Energy Build. 2018, 169, 260–270. [Google Scholar] [CrossRef]
- Yang, Z.; Li, N.; Becerik-Gerber, B.; Orosz, M. A multi-sensor based occupancy estimation model for supporting demand driven hvac operations. In Proceedings of the 2012 Symposium on Simulation for Architecture and Urban Design, Orlando, Florida, 26–30 March 2012. Article No. 2. [Google Scholar]
- Amayri, M.; Arora, A.; Ploix, S.; Bandhyopadyay, S.; Ngo, Q.-D.; Badarla, V.R. Estimating occupancy in heterogeneous sensor environment. Energy Build. 2016, 129, 46–58. [Google Scholar] [CrossRef]
- Zikos, S.; Tsolakis, A.; Meskos, D.; Tryferidis, A.; Tzovaras, D. Conditional Random Fields-based approach for real-time building occupancy estimation with multi-sensory networks. Autom. Constr. 2016, 68, 128–145. [Google Scholar] [CrossRef]
- Wagiman, K.R.; Abdullah, M.N.; Hassan, M.Y.; Radzi, N.H.M.; Bakar, A.H.A.; Kwang, T.C. Lighting system control techniques in commercial buildings: Current trends and future directions. J. Build. Eng. 2020, 31, 101342. [Google Scholar] [CrossRef]
- Guo, X.; Tiller, D.K.; Henze, G.P.; Waters, C.E. The performance of occupancy-based lighting control systems: A review. Light. Res. Technol. 2010, 42, 415–431. [Google Scholar] [CrossRef]
- Wagiman, K.R.; Abdullah, M.N.; Hassan, M.Y.; Radzi, N.H.M. A review on sensing-based strategies of interior lighting control system and their performance in commercial buildings. Indones. J. Electr. Eng. Comput. Sci. 2019, 16, 208–215. [Google Scholar] [CrossRef]
- De Bakker, C.; Aries, M.; Kort, H.; Rosemann, A. Occupancy-based lighting control in open-plan office spaces: A state-of-the-art review. Build. Environ. 2017, 112, 308–321. [Google Scholar] [CrossRef]
- Wang, L.; Zou, X.; Meng, Q.; Song, X. An optimal strategy for the deployment of sensor nodes in green buildings. In Proceedings of the Six International Conference on Intelligent Control and Information Processing, Wuhan, China, 26–28 November 2015; pp. 209–213. [Google Scholar]
- Norouziasl, S.; Jafari, A.; Wang, C. Analysis of lighting occupancy sensor installation in building renovation using agent-based modeling of occupant behavior. In Proceedings of the ASCE International Conference on Computing in Civil Engineering 2019, Atlanta, Georgia, 17–19 June 2019; pp. 593–601. [Google Scholar]
- Juntunen, E.; Sarjanoja, E.-M.; Eskeli, J.; Pihlajaniemi, H.; Österlund, T. Smart and dynamic route lighting control based on movement tracking. Build. Environ. 2018, 142, 472–483. [Google Scholar] [CrossRef]
- Oviedo, R.M.; Ramos, F.; Gormus, S.; Kulkarni, P.; Sooriyabandara, M. A comparison of centralized and distributed monitoring architectures in the smart grid. IEEE Syst. J. 2013, 7, 832–844. [Google Scholar] [CrossRef]
- Seyedolhosseini, A.; Masoumi, N.; Modarressi, M.; Karimian, N. Daylight adaptive smart indoor lighting control method using artificial neural networks. J. Build. Eng. 2020, 29, 101141. [Google Scholar] [CrossRef]
- Kandasamy, N.K.; Karunagaran, G.; Spanos, C.; Tseng, K.J.; Soong, B.-H. Smart lighting system using ANN-IMC for personalized lighting control and daylight harvesting. Build. Environ. 2018, 139, 170–180. [Google Scholar] [CrossRef]
- Li, H.; Jia, Z.; Xue, X. Application and analysis of ZigBee security services specification. In Proceedings of the 2010 Second International Conference on Networks Security, Wireless Communications and Trusted Computing, Wuhan, China, 24–25 April 2010; pp. 494–497. [Google Scholar]
- Olawumi, O.; Haataja, K.; Asikainen, M.; Vidgren, N.; Toivanen, P. Three practical attacks against ZigBee security: Attack scenario definitions, practical experiments, countermeasures, and lessons learned. In Proceedings of the 2014 14th International Conference on Hybrid Intelligent Systems, Hawally, Kuwait, 14–16 December 2014; pp. 199–206. [Google Scholar]
















| Sensor | Specification |
|---|---|
| PIR sensor (RE46BN-P) | Maximum sensing angle: 132° Operating wavelength: 5–14 μm Operating temperature range: −30 to 70 °C |
| Microwave doppler sensor (MS-220) | Maximum sensing angle: 360° Sensing distance: adjustable Operating temperature range: −35 to 75 °C |
| Illuminance sensor (BH1750FVI) | Detection range: 0–65 525 lx Operating temperature range: 40–85 °C |
| Zone | Sensor Type |
|---|---|
| A | PIR sensors |
| B | Light sensors (nearest to the windows) PIR sensors and microwave sensors |
| C | PIR sensors and microwave sensors |
| Stage | Time | Rule |
|---|---|---|
| 1: Off-duty | 10 p.m. the day before to 6 a.m. next day |
|
| 2: Before work | 6 a.m. to 9 a.m. |
|
| 3: On-duty | 9 a.m. to noon |
|
| 4: Lunch break | noon to 1 p.m. |
|
| 5: On-duty | 1:30 p.m. to 6:30 p.m. |
|
| 6: Work overtime | 6:30 p.m. to 10 p.m. |
|
| Subzone | Type | Power (W) | Number of Luminaires |
|---|---|---|---|
| 1 | Grille light | 16× | 10 |
| 2 | Grille light | 16× | 13 |
| Zone | Time | Energy Consumption (KWh) | Energy Savings (%) | |
|---|---|---|---|---|
| Normal CONTROL | Smart Control | |||
| Subzone 1 | 5 h | 1.25 | 0.97 | 22.4% |
| 3 days | 14.72 | 7.87 | 46.54% | |
| 23 days | 103.14 | 87.28 | 15.38% | |
| Subzone 2 | 5 h | 1.72 | 0.91 | 47.09% |
| 3 days | 19.34 | 6.43 | 66.75% | |
| 23 days | 199.07 | 56.72 | 71.51% | |
| Type | Power (W) | Number of Luminaires |
|---|---|---|
| Line light | 40 | 92 |
| Downlight | 12 | 85 |
| Binocular downlight | 12× | 24 |
Publisher’s Note: MDPI stays neutral with regard to jurisdictional claims in published maps and institutional affiliations. |
© 2020 by the authors. Licensee MDPI, Basel, Switzerland. This article is an open access article distributed under the terms and conditions of the Creative Commons Attribution (CC BY) license (http://creativecommons.org/licenses/by/4.0/).
Share and Cite
Cheng, Y.; Fang, C.; Yuan, J.; Zhu, L. Design and Application of a Smart Lighting System Based on Distributed Wireless Sensor Networks. Appl. Sci. 2020, 10, 8545. https://doi.org/10.3390/app10238545
Cheng Y, Fang C, Yuan J, Zhu L. Design and Application of a Smart Lighting System Based on Distributed Wireless Sensor Networks. Applied Sciences. 2020; 10(23):8545. https://doi.org/10.3390/app10238545
Chicago/Turabian StyleCheng, Yusi, Chen Fang, Jingfeng Yuan, and Lei Zhu. 2020. "Design and Application of a Smart Lighting System Based on Distributed Wireless Sensor Networks" Applied Sciences 10, no. 23: 8545. https://doi.org/10.3390/app10238545
APA StyleCheng, Y., Fang, C., Yuan, J., & Zhu, L. (2020). Design and Application of a Smart Lighting System Based on Distributed Wireless Sensor Networks. Applied Sciences, 10(23), 8545. https://doi.org/10.3390/app10238545

