Next Article in Journal
Investigating the Influence of Light Shelf Geometry Parameters on Daylight Performance and Visual Comfort, a Case Study of Educational Space in Tehran, Iran
Next Article in Special Issue
Establishing Priorities for Sustainable Environmental Design in the Rural Villages of Yunnan, China
Previous Article in Journal
Norwegian Pitched Roof Defects
 
 
Font Type:
Arial Georgia Verdana
Font Size:
Aa Aa Aa
Line Spacing:
Column Width:
Background:
Article

Optimization of Natural Ventilation of “Yinzi” Dwellings in Western Hunan Based on Orthogonal Experiment and CFD

1
School of Architecture and Urban Planning, Hunan University of Technology, Zhuzhou 412007, China
2
School of Architecture and Art, Central South University, Changsha 410083, China
*
Author to whom correspondence should be addressed.
Buildings 2016, 6(3), 25; https://doi.org/10.3390/buildings6030025
Submission received: 25 May 2016 / Revised: 3 July 2016 / Accepted: 5 July 2016 / Published: 8 July 2016
(This article belongs to the Special Issue Sustainable Building in Rural Areas)

Abstract

:
The unique architectural style of traditional “Yinzi” dwellings in Western Hunan, China, needs to be protected and their natural ventilation of patio space should also be promoted. Therefore, this study aimed at finding out the natural ventilation values and limitations of “Yinzi” dwellings as well as designing an optimum ventilation strategy for such dwellings. In this work, the thermal environment of a typical “Yinzi” dwelling was tested. The two patios and living room space of “Yinzi” dwellings was selected for a quantitative analysis, and CFD software was adopted to simulate the stack effect of different patio proportions under the same static wind environment conditions. In addition, an orthogonal experiment is combined with CFD simulation to explore the best proportion and position of patio of “Yinzi” dwellings. A final optimum ventilation strategy is provided for the “Yinzi” dwellings, which can significantly promote the natural stack effect of “Yinzi” dwellings in summer.

1. Introduction

In recent years, a large number of Chinese traditional dwellings in the ethnic minority areas have been largely demolished and abandoned. The main reason for these difficulties is attributed to the poor indoor environment quality and inadequacy in organic upgrading. Over the past decades, the great ecological values of Chinese traditional dwellings have been discussed in some research [1,2]. However, the analysis and improvement for natural ventilation of traditional vernacular dwellings are often ignored by researchers, and relevant study is seldom reported as a research focus. Due to technological limits, previous research has only focused on qualitative analysis to accumulate experiences; however, quantitative analysis can be achieved due to progress in computational software. Computational Fluid Dynamics (CFD) is a widely accepted method of building’s wind environment investigation [3]. In recent years, in order to obtain comfortable indoor environment as well as avoid adverse effects of climate upon traditional dwellings, passive design technologies have been applied to some traditional dwellings. In addition, the ventilation performance of Chinese traditional dwellings have been gradually explored based on quantitative analysis and CFD simulation in some typical areas [4,5]. Nevertheless, the ecological values of many different vernacular dwellings in China need to be further explored and protected through using quantitative analysis.
Western Hunan is a mountainous and multi-ethnic area in eastern Yunnan-Guizhou Plateau, China. Its climate belongs to mountainous subtropics with the weather being hot in the summer and coldin the winter [6]. The annual average rainfall is from 1290 to 1600 mm and annual sunshine hours range from 1200 to 1500 h. Through 1000 years of development and evolution, traditional Western Hunan vernacular dwellings have become highly adaptable to the local environment. Especially, the typical “Yinzi” dwellings were built by the local merchants in the last century. They are climate-responsive and ecologically conscious, e.g., having two narrow patios at the front and back of the house and a thermal mass external envelope. These ecological values of such vernacular houses are repositories of ethnic culture that need to be respected, protected and explored.
In the distinct space of Western Hunan traditional dwellings, the two deep patios play an important role in the interior and exterior environmental connection, promoting the lighting and ventilation environment for indoor environment quality. The deep patios in such dwellings have a strong stack effect, providing the prime power of indoor natural ventilation, because of the solar radiation and temperature differences of the patio in summer [7]. As an example of passive ventilation building, the ventilation effect of “Yinzi” dwellings is influenced by many factors, such as building orientation, size of patio, indoor layout, etc. To find out the natural ventilation values and limitations of traditional “Yinzi” dwellings, the ventilation effect of quantitative sizes of patio and rooms is analyzed under the steady ambient conditions, based on the wind environment parameters of CFD simulation results of a typical traditional “Yinzi” dwelling in Qianzhou old city, Western Hunan, China, in summer.

2. Methodology

2.1. Description of the Measured “Yinzi” Building

Qianzhou old city is located at the upper reaches of Yuan River, Western Hunan, China. It is an important traffic hub linking the eastern and southwestern regions of China in the aspects of economy, technology and transportation [8]. This high-traffic location objectively resulted in the fusion and integration of different ethnic cultures and was profoundly reflected in all kinds of architectural activities in this area, playing a part in shaping the particulararchitectural culture [9]. “Yingzi” dwelling is the typical regional architecture which was jointly formed by local society, economy, history and natural environment. Typical “Yingzi” dwellings usually consist of four function areas: corridor, main living room, bedroom, patios. Those two narrow patios are usually located at the front and back of the house, connecting the main living room and promoting the indoor natural ventilation and lighting. Being an exterior envelope, the tall and heavy fire brick wall can be used as a wind and fire barrier and security wall.
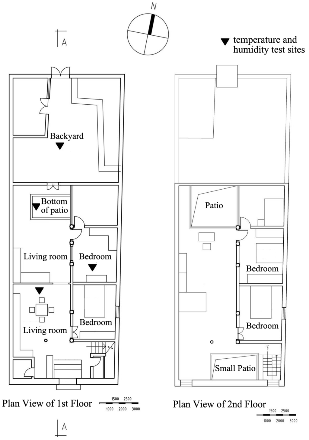
The test object building, built in 1920s, is located in the Nanmen alley in Qianzhou old city, with the typical characteristics of “Yinzi” dwelling. It is surrounded by a 200 mm–480 mm gray brick fire wall and the inside wall is made of local fir-wood. The total area of the dwelling is 208 square meters, containing 66 square meters of back yard. Most of the rooms gather together in the middle and the west room of the ground floor is the living room (Length C: 10 m), which is directly connected with the patios. The eastern rooms of the ground floor are three bedrooms and the second floor is used as a store room to collect some debris and grains. Two deep patios are at the front (Length B: 2.5 m; Width: 3 m; Height: 6 m) and back (Length A: 3.5 m; Width: 3 m; Height: 6 m) of the building, those patios and the living room spaces form a complete stack effect ventilation system, shown in Figure 1 and Figure 2.

2.2. Thermal Measurement Campaign

In order to get the accurate thermal boundary and environment conditions of the measured dwelling, a typical thermal environment test in summer was conducted. The test day (10 July) was a typical day in summer as that day was mostly sunny. The living room, patio, bedrooms and outdoor area were selected for the measurement, as shown in Figure 1. The thermal environment tests included measurement of air temperature and humidity (every 10 min automatically record and 1.5 m above ground) in different spaces. The instruments for all corresponding parameters are shown in the Table 1.

2.3. CFD Modeling and Simulation

By using the computational fluid dynamics (CFD) method and Fluent, version 6.3.26, quantitative models of the “Yinzi” dwelling were built up. The interior natural ventilation in typical climate of the summer season was simulated and analyzed. As the indoor air flow belongs to incompressible and steady turbulence, the k-ε model features cost effectiveness, small fluctuation and high precision and is consequently rather often employed in many low-speed turbulent numerical simulations [10]. In this paper, we selected the default k-ε turbulence model in Fluent. To simplify the model and influential parameters, only the two patios and the living rooms are selected as the simplified model in Fluent, and all their widths are set to 3 m (shown in Figure 3).
The geographical location set in the simulations is 109°71′ E and 28°3′ N. The ambient thermal conditions are based on the thermal measurement results (air temperature: 33 °C, relative humidity: 75%) at 15:00 (10 July), and the temperature of the building envelope of this dwelling is based on Fluent solar radiation calculation at 15:00 (10 July). In order to evaluate the ventilation effect under static wind environment, only the thermal wind pressure ventilation is considered and airflow of outdoor environment is neglected in the simulation; the patio openings are set to static press (ambient); the middle section (width: 1.5 m) of the building is selected as the analysis interface, the interface used the non-uniform grid: the opening and vicinity of patios are set to a comparatively intensive grid.
According to principles of the stack effect [11,12], it is proportional to diffuser height and indoor-outdoor air density difference. For those dwellings, the diffuser height equals the height of the patio, and indoor-outdoor air density difference means the solar radiation of the patio. Therefore, it can be concluded that the height and size of patio and the length of living room are the decisive factors for the stack effect of those patio dwellings. According to the literature [13], “Yinzi” dwellings normally have 2~3 storeys and the height of patio is normally 1.5~4 times higher than the length. Under the same ambient conditions, this paper selected the original test building model (Length A: 3.5 m, Length B: 2.5 m, Patio height: 6 m, Length of living room: 10 m) as a comparison group, other models that set the different heights of patio (8 m, 10 m), lengths of patio (2.5 m, 4.5 m) and lengths of living room (6 m, 8 m) are compared by wind speed, mean age of air and thermal pressure.

3. Results and Discussion

3.1. Thermal Environment Test Results

Through analyzing the test data, it can be observed that the basic characteristics of thermal environment in “Yinzi” building have an average temperature of 29.1 °C outdoors. The highest temperature was up to 33.8 °C at 15:30 and 25.7 °C for the lowest. In contrast, fluctuation of indoor temperature was relatively small. The peak value of the bedroom and the bottom of the patio in the ground floor were 29.1 °C and 29.2 °C, respectively, about 4.7 °C lower than outdoor temperature, and the temperature range was about 3.1 °C, as shown in Figure 4. Since the “Yinzi” building has many transitional spaces such as eaves, patio, open-type hall, and the patio floor is made of the stone strips combining drainage and storage systems, which can provide a cooling effect and comfortable thermal space in daytime, the patio exerted a good cooling effect, especially after noon. During the night, due to the thermal pressure effect, the temperature of the bottom of patio dropped to 27 °C which is close to the temperature outdoors.
The whole recorded temperature data (shown in Figure 5) changed from 74% to 99% with an increased average value of 93.5% in the outdoor area, 94.1% in the bedroom, 96.7% in the second floor, 98.2% in the living room and 98.6% in the bottom of the patio. According to the humidity control conditions of ASHRAE55-2010 [14] and GB/T5701-2008 [15], when the calculated temperature is higher than 27 °C, the relative humidity should not be higher than 55%. Thus, the indoor humidity fluctuation was between 89% and 99% in this dwelling, which was in an extremely high humidity condition. Therefore, it is worthwhile to discuss the natural ventilation performance in this traditional dwelling.
The above data indicates that the patio space and heavy building envelope have imposed a significant influence on insulation and cooling, showing a large outdoor temperature difference in summer. Specifically, the deep patio can provide a thermal buffer space which can greatly promote the natural ventilation of the surrounding rooms. However, the ventilation between the deep patio and surrounding rooms should be further strengthened and optimized.

3.2. Stack Effect Simulation Results

After running the thermal pressure ventilation simulation of three different patio heights (6 m, 8 m, 10 m), thermal pressure, wind speed and mean age of air distributing are compared in Figure 6. This indicates that the two patios and living room ventilation system have had an obvious stack effect, because the top and bottom of patio received asymmetrical solar radiation. The two patios directly connected the living room, pressurizing the thermal pressure ventilation from the living room to the top of the patio. This ventilation effect can promote the indoor ventilation and thermal environment of surrounding rooms in the daytime during summer.
With the growth of patio height, more patio floor and the interior wall can be shaded by its higher wall and the bottom of the patio received less solar radiation and became cooler. The temperature between the top and bottom of the patio was enlarged and then the mean thermal pressure difference increased from 2.91 Pa (6 m) to 4.89 Pa (10 m). Conversely, when the height of the patio increased to 8 m, the mean speed of wind became worse from 0.079 m/s to 0.076 m/s and mean age of air rose from 172 s to 184 s, respectively. This is because the solar radiation of the bottom of the patio decreased and the mean temperature in the patio also declined with the increase of height of the patio, resulting in the narrowed indoor-outdoor air density difference. In addition, the narrowed air density exerted a negative influence on stack effect. Eventually, when the height reached 10 m, the mean speed of wind significantly rose to 0.128 m/s and the mean age declined to 133 s. It is obvious that the increase of patio height imposed a significant influence on the stack effect when the height reaches beyond 8 m.
Figure 7 illustrates the comparison of stack effect under different lengths of living room (6 m, 8 m, 10 m). Obviously, the whole ventilation performance has made an improvement while the changes are not quite noticeable, as the length of living room decreases. When the length of living room was shortened to 8 m, the mean speed of wind was strengthened from 0.079 m/s to 0.086 m/s and mean age of air declined from 172 s to 149 s. When the length continues to drop to 6 m, the wind speed (0.084 m/s) and age of air (146 s) remained almost the same with ventilation performance throughout the 8 m length of living room. In most cases, the north and south patios have thermal pressure difference due to solar radiation asymmetry, which can induce a stronger slit effect in a longer living room. However, the larger space of a long room has an adverse influence on the indoor air flow, so it can be concluded that a shorter length of living room exerted a limited effect on the stack effect of such dwellings, when it reached beyond a certain value (6 m~8 m).
Figure 8 shows that the stack effect of “Yinzi” dwelling is considerably influenced by the change of patio length (Case1 A: 2.5 m B: 1.5 m, Case 2 A: 3.5 m B: 2.5 m, Case 3 A: 4.5 m B: 3.5 m). When the length of patio changed into 2.5 m (Length A) and 1.5 m (Length B), the mean of wind speed rose to 0.093 m/s and the mean age of air decreased to 134 s. Furthermore, when the length was enlarged to 4.5 m (Length A) and 3.5 m (Length B), the mean wind speed also increased to 0.093 m/s and the mean age of air decreased to 150 s. According to the results, length of patio transformation has an uncertain effect on the stack effects, which should be comprehensively considered with other factors, such as the solar radiation degree, solar azimuth and building orientation, etc. Compared with the change of patio height, the stack effect was less influenced by the length of the patio. Given that land saving in rural areas is important, the change of patio height should be given the priority so that the size of patio should keep deep and narrow, the optimization of length of the patio should be determined by the next orthogonal experiment.

3.3. An Orthogonal Experiment Optimization

The orthogonal experiment design is regarded as the widely used method to optimizing system performance through three or more influential parameters [16]. This method can be used to select representative factors from the full influential parameters in such a way that it reduces the number of experiments and can adequately represent the overall situation. The comprehensive stack effect of “Yinzi” dwellings is affected by some key factors, such as the height of patio, length of patio and length of living room, but their comprehensive influences are uncertain. In order to evaluate the comprehensive natural ventilation effect of a patio under the different factors, an orthogonal experiment is designed to find out an optimum strategy. Selecting the four key change options: Length A, Length B, patio height, Length of living room, the literature [17] shows that the L9(34) orthogonal table should be selected to arrange the different factors, without taking the interaction effect of each factor into account, as shown in Table 2. Nine controlled tests are presented in Table 3.
After calculating the tests’ case and comparing the mean age of air and mean speed of wind (as shown in Figure 9 and Figure 10) under thermal pressure effect, a sequence from high to low weighting factor is C > B > A > D, which means that the patio height imposed the greatest influence on the wind speed, while the influence of length of living room is comparatively small. Based on the results of indexes from each factor in each level, a comprehensive optimum ventilation strategy (Test 2), an assembly of A1 (Length A: 2 m), B2 (Length B: 3 m), C2 (Patio height: 8 m), D4 (Length of living room: 8 m), is concluded for the traditional “Yinzi” dwelling.
According to the final optimum natural ventilation conditions, Test 2 simulation results show that the mean age of air decreased from 172 s to 108 s and the mean speed of wind significantly increased from 0.079 m/s to 0.113 m/s, which suggests that the natural ventilation performance will be significantly improved only with the optimization of the size of patios and living room.

4. Conclusions

Two deep patios and a narrow living room constitute the complete stack effect ventilation system and this unique climatic responding architectural space design plays an important role in the promotion of natural ventilation. The patio space and heavy envelope of such dwellings have exerted a great effect on insulation and cooling, which make large contributions to modern architectural design. The Western Hunan traditional dwellings are repositories of ethnic culture that need to be explored, respected, protected and updated. The ventilation performance improvement of those houses is a key factor for their organic renewal. The numerical simulation enables the architects to efficiently complete quantitative analysis and evaluation of the passive retrofitting strategies, and hence plays a key role for the optimization of ventilation performance. Furthermore, the analysis of natural ventilation in such buildings based on numerical simulation can not only evaluate values and limitations of their ventilation effects, but also provide a significant reference for retrofitting and design of such dwellings.
Based on the CFD calculation and simulation results, the growth of the height of patio has exerted the prime influence on the stack effect of the “Yinzi” dwellings. Comparatively, the increase of patio length and decrease of living room length have a limited effect on the ventilation performance. A comprehensive optimum ventilation strategy: length A of patio select 2 m, length B of patio select 3 m, patio height choose 8 m, length of living room change to 8 m, is concluded for “Yinzi” dwellings, with the improvement of significant stack effect. Given the low incremental costs, this passive strategy has the economic feasibility and broad applicability for the design and retrofitting of such similar dwellings. Meanwhile, the optimized sizes of patios and living room of “Yinzi” dwellings can provide guidance and reference for retrofitting of existing dwellings and modern dwellings’ design with climate adaptability. For the similar modern residences, architects can get a clear picture of some passive design factors, such as the size of the patio and the layout of rooms, that influence natural ventilation in a project, thus improving ventilation performance in designs of plane, elevation and section.

Acknowledgments

We extend our gratitude to the National Sci-Tech Support Project, China (2013BAJ10B14), Hunan Provincial Social Science Foundation, China (15YBA130). Those supports are gratefully acknowledged.

Author Contributions

Sheng Liu conducted the field measurements and simulation and wrote the manuscript. Chunhua Huang provided guidance and suggestions.

Conflicts of Interest

The authors declare no conflict of interest.

References

  1. Wei, S.; Jones, R.; Wilde, P. Driving factors for occupant-controlled space heating in residential buildings. Energy Build. 2014, 70, 36–44. [Google Scholar] [CrossRef]
  2. Gou, S.Q.; Li, Z.R.; Zhao, Q. Climate responsive strategies of traditional dwellings located in an ancient village in hot summer and cold winter region of China. Energy Build. 2015, 86, 151–165. [Google Scholar] [CrossRef]
  3. Huang, C.H.; Liu, S.; Jiang, B.; Tang, L.S. Field study on thermal environment in traditional dwelling of Xiangxi in summer. Build. Energy Environ. 2016, 35, 79–83. [Google Scholar]
  4. Guo, G.C.; Xu, C.W.; Jiao, J.J.; Liu, Y.; Xie, S. Investigation of moisture condensation on paper making plant envelopes in high humidity environment by orthogonal analysis and CFD simulation. Build. Environ. 2011, 46, 1639–1648. [Google Scholar]
  5. Tang, L.; Nikolopoulou, M.; Zhao, F.Y.; Zhang, N. CFD modeling of the built environment in Chinese historic settlements. Energy Build. 2012, 55, 601–606. [Google Scholar] [CrossRef]
  6. Ministry of Housing and Urban-Rural Development of the People’s Republic of China. JGJ 134–2010 Design Standard for Energy Efficiency of Residential Building in Hot Summer and Cold Winter Zone; Building Industry Press: Beijing, China, 2010; pp. 4–8.
  7. Valdiserri, P.; Biserni, C.; Garai, M. Energy performance of a ventilation system for an apartment according to the Italian regulation. Int. J. Energy Environ. Eng. 2015. [Google Scholar] [CrossRef]
  8. He, S.Y.; Mao, T.H. Test and study of energy-saving effect of traditional timber folk house in the western. Hunan Arch. J. 2010, 28, 96–97. [Google Scholar]
  9. Cheng, H.; Hu, R.R.; Liu, J.P. Exploration and practice at ecological reconstruction of rural architecture after disaster. Arch. J. 2009, 26, 86–89. [Google Scholar]
  10. Launder, B.E.; Spalding, D.B. Lectures in Mathematical Models of Turbulence; Academic Press: England, UK, 1972. [Google Scholar]
  11. Chen, Q.Y. Ventilation performance prediction for buildings: A method overview and recent applications. Build. Environ. 2009, 44, 848–858. [Google Scholar] [CrossRef]
  12. Loreti, L.; Barbaresi, L.; De, C.S.; Garai, M. Overall indoor quality of a non-renewed secondary-school building. Energy Proc. 2015, 78, 3126–3131. [Google Scholar] [CrossRef]
  13. Li, Z.; Liu, S.; He, S.Y. The research on evolution of the residential pattern of Miao ethnic group in Xiangxi. Arch. J. 2010, S1, 76–80. [Google Scholar]
  14. Standard 55–2010 Thermal Environmental Conditions for Human Occupancy; ASHRAE: Atlanta, GA, USA, 2010.
  15. Ministry of Housing and Urban-Rural Development of the People’s Republic of China. GB/T 50785–2012 Evaluation Standard for Indoor Thermal Environment in Civil Building; Building Industry Press: Beijing, China, 2012; pp. 9–21.
  16. Tang, J.C.; Gong, G.C.; Su, H.; Wu, F.; Herman, C. Performance evaluation of a novel method of frost prevention and retardation for air source heat pumps using the orthogonal experiment design method. Appl. Energy 2016, 169, 696–708. [Google Scholar] [CrossRef]
  17. Wang, R.X. Mathematical Statistics; Xi’an Jiaotong University Press: Xi’an, China, 1996; pp. 148–158. [Google Scholar]
Figure 1. A-A section of “Yinzi” dwelling in Qianzhou, Western Hunan, China.
Figure 1. A-A section of “Yinzi” dwelling in Qianzhou, Western Hunan, China.
Buildings 06 00025 g001
Figure 2. Plan view of “Yinzi” dwelling in Qianzhou, Western Hunan, China.
Figure 2. Plan view of “Yinzi” dwelling in Qianzhou, Western Hunan, China.
Buildings 06 00025 g002
Figure 3. Physical model for stack effect simulation.
Figure 3. Physical model for stack effect simulation.
Buildings 06 00025 g003
Figure 4. Comparison of temperatures.
Figure 4. Comparison of temperatures.
Buildings 06 00025 g004
Figure 5. Comparison of relative humidity.
Figure 5. Comparison of relative humidity.
Buildings 06 00025 g005
Figure 6. Comparison of different height of patio. (a) Thermal pressure; (b) Wind speed (c) Mean age of air.
Figure 6. Comparison of different height of patio. (a) Thermal pressure; (b) Wind speed (c) Mean age of air.
Buildings 06 00025 g006
Figure 7. Comparison of different length of living room. (a) Wind speed; (b) Mean age of air.
Figure 7. Comparison of different length of living room. (a) Wind speed; (b) Mean age of air.
Buildings 06 00025 g007
Figure 8. Comparison of different length of patio. (a) Wind speed; (b) Mean age of air.
Figure 8. Comparison of different length of patio. (a) Wind speed; (b) Mean age of air.
Buildings 06 00025 g008
Figure 9. Comparison of age of air in nine tests.
Figure 9. Comparison of age of air in nine tests.
Buildings 06 00025 g009
Figure 10. Comparison of wind speed in nine tests.
Figure 10. Comparison of wind speed in nine tests.
Buildings 06 00025 g010
Table 1. Test apparatus and parameters.
Table 1. Test apparatus and parameters.
Measured ParameterTest ApparatusTypePrecisionRange
Indoor and outdoor temperature and humidityTemperature and humidity recorderTesto 175-H2Temperature: ±0.5 °C; Humidity: ±3%−20~80 °C
Table 2. Orthogonal factor standard table.
Table 2. Orthogonal factor standard table.
LevelFactor
A. Length AB. Length BC. Patio HeightD. Length of Living Room
12 m2 m7 m6 m
23 m3 m8 m8 m
34 m4 m9 m10 m
Table 3. L9(34) Orthogonal experimental table.
Table 3. L9(34) Orthogonal experimental table.
Test NumberA. Length AB. Length BC. Patio HeightD. Length of Living Room
11111
21222
31333
42123
52231
62312
73132
83213
93321

Share and Cite

MDPI and ACS Style

Liu, S.; Huang, C. Optimization of Natural Ventilation of “Yinzi” Dwellings in Western Hunan Based on Orthogonal Experiment and CFD. Buildings 2016, 6, 25. https://doi.org/10.3390/buildings6030025

AMA Style

Liu S, Huang C. Optimization of Natural Ventilation of “Yinzi” Dwellings in Western Hunan Based on Orthogonal Experiment and CFD. Buildings. 2016; 6(3):25. https://doi.org/10.3390/buildings6030025

Chicago/Turabian Style

Liu, Sheng, and Chunhua Huang. 2016. "Optimization of Natural Ventilation of “Yinzi” Dwellings in Western Hunan Based on Orthogonal Experiment and CFD" Buildings 6, no. 3: 25. https://doi.org/10.3390/buildings6030025

APA Style

Liu, S., & Huang, C. (2016). Optimization of Natural Ventilation of “Yinzi” Dwellings in Western Hunan Based on Orthogonal Experiment and CFD. Buildings, 6(3), 25. https://doi.org/10.3390/buildings6030025

Note that from the first issue of 2016, this journal uses article numbers instead of page numbers. See further details here.

Article Metrics

Back to TopTop