Study on the Coupling of Air-Source Heat Pumps (ASHPs) and Passive Heating in Cold Regions
Abstract
1. Introduction
2. Methods
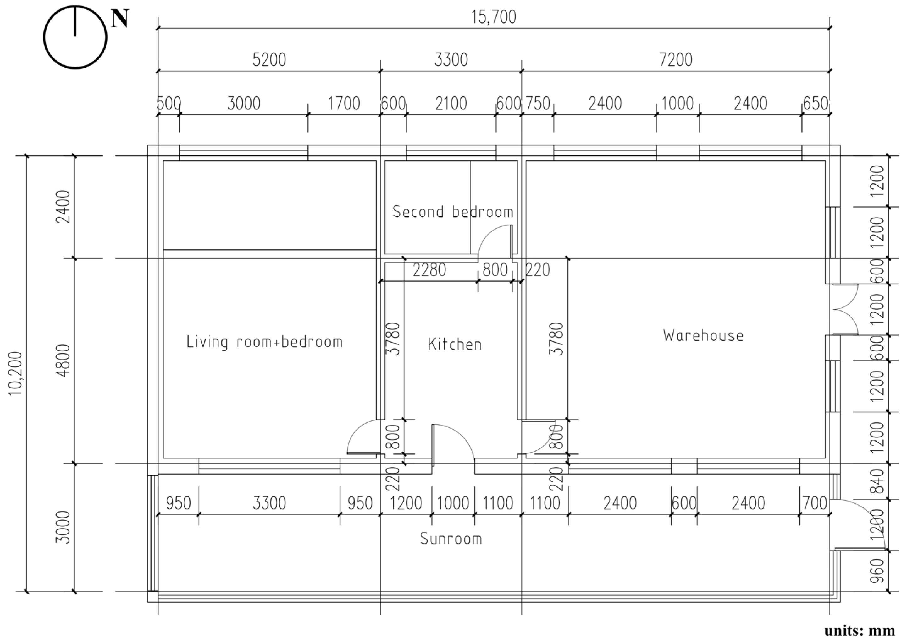
2.1. Building Model Establishment
2.2. Air-Source Heat Pump Model Establishment
2.3. Simulation and Analysis
2.3.1. Simulation and Analysis of Traditional Mode (Mode 1)
2.3.2. ASHP and Passive Heating Coupled System Simulation and Analysis (Mode 2)
3. Results and Discussions
3.1. Analysis and Discussion of Operational Results for Mode 1 and Mode 2
- In Mode 1, when the outdoor temperature is above −25 °C, meeting the minimum operating conditions for the air-source heat pump, heating can be performed. However, at lower temperatures, the heat pump’s heating efficiency is reduced. The heating system is jointly provided by the air-source heat pump and the electric heating water tank. When the outdoor temperature is below −25 °C the heat pump cannot operate, stopping its function, and only the electric heating water tank works.
- In Mode 2, the additional sunroom continuously captures solar energy during the day, maintaining the sunroom temperature and continuously providing energy for the ASHP’s heating. All the heat required for the building’s heat load is provided by the air-source heat pump, achieving the design target indoor temperature of 20 °C. The input heat of the air-source heat pump is less than the heat gained by the heating sunroom, indicating that under the given conditions, the input heat of the air-source heat pump can be fully supplied by the sunroom, as shown in Figure 13.
- Mode 2 has a significant advantage over Mode 1 in reducing energy consumption. Compared to Mode 1, the average power consumption is reduced by 74.63 kWh, and energy consumption is decreased by 66.88%. Moreover, Mode 2 is simpler to operate, with the heat pump outdoor unit placed in the sunroom. Therefore, in practical applications, the ASHP coupled with the passive heating system has great prospects for use in severely cold regions.
3.2. All-Weather Operational Design Strategy and Application
- Placing PCM alongside heating equipment: This method allows the PCM to absorb or release heat, achieving energy savings in heating. When the heating system is operating, the PCM absorbs heat; when the heating system stops, the PCM releases the absorbed heat, delaying the drop in indoor temperature [46], as shown in Figure 14.
- 2.
- Applying PCM to the enclosing structure of the heating space: The PCM is influenced by the indoor temperature; it absorbs heat when the indoor temperature is higher than the PCM temperature and releases the absorbed heat when the indoor temperature is lower than the PCM temperature [47], as shown in Figure 15.
- 3.
- Adding phase change heat storage materials to the floor can also enhance heating efficiency. When the heating medium flows back to the water tank from the heating terminal, it passes through the phase change heat storage materials inside the floor. At night, when the system stops heating, the phase change materials release the absorbed heat [48], as shown in Figure 16.
4. Conclusions
Author Contributions
Funding
Data Availability Statement
Conflicts of Interest
References
- Xu, X.; Yu, H.; Sun, Q.; Tam, V.W. A critical review of occupant energy consumption behavior in buildings: How we got here, where we are, and where we are headed. Renew. Sustain. Energy Rev. 2023, 182, 113396. [Google Scholar] [CrossRef]
- Jiang, L.; Wang, R.Q.; Tao, X.; Roskilly, A.P. A hybrid resorption-compression heat transformer for energy storage and upgrade with a large temperature lift. Appl. Energy 2020, 280, 115910. [Google Scholar] [CrossRef]
- Li, C.; Li, Z.; Bai, L.; Guo, Y.; Qin, J.; Wang, H. Estimating air pollutant emissions from burning straw for heating in rural Northeast China: Based on the heat load for building heating. J. Build. Eng. 2023, 72, 106642. [Google Scholar] [CrossRef]
- Chen, X.; Li, Z.; Dai, L.; Zeng, W.; Liu, M. Occupant Heating Patterns of Low-Temperature Air-to-Air Heat Pumps in Rural Areas during Different Heating Periods. Buildings 2023, 13, 679. [Google Scholar] [CrossRef]
- Luo, J.; Zhang, Q.; Liang, C.; Wang, H.; Ma, X. An overview of the recent development of the Ground Source Heat Pump (GSHP) system in China. Renew. Energy 2023, 210, 269–279. [Google Scholar] [CrossRef]
- Liu, Y.; Xu, R.; Luo, N.; Liu, Y.; Wu, Y.; Yu, B.; Zhou, F. All-Day Anti-Icing/De-Icing Coating by Solar-Thermal and Electric-Thermal Effects. Adv. Mater. Technol. 2021, 6, 2100371. [Google Scholar] [CrossRef]
- Di, Y.; Zhao, C.; Lian, X.; Li, X.; Bao, D.; Liu, J. Study on the Performance of a New Ultra-Low Temperature Air Source Heat Pump (ASHP) Unit in Cold Regions. Buildings 2023, 13, 2107. [Google Scholar] [CrossRef]
- Liu, Z.; Wu, D.; He, B.J.; Wang, Q.; Yu, H.; Ma, W.; Jin, G. Evaluating potentials of passive solar heating renovation for the energy poverty alleviation of plateau areas in developing countries: A case study in rural Qinghai-Tibet Plateau, China. Sol. Energy 2019, 187, 95–107. [Google Scholar] [CrossRef]
- Xu, J.; Zhao, Y.; Quan, Z.; Wang, G.; Wang, J. Air–water dual-source heat pump system with new composite evaporator. Appl. Therm. Eng. 2018, 141, 483–493. [Google Scholar] [CrossRef]
- Deng, J.; Wei, Q.; Liang, M.; He, S.; Zhang, H. Does heat pumps perform energy efficiently as we expected: Field tests and evaluations on various kinds of heat pump systems for space heating. Energy Build. 2019, 182, 172–186. [Google Scholar] [CrossRef]
- Elaouzy, Y.; El Fadar, A. Energy, economic and environmental benefits of integrating passive design strategies into buildings: A review. Renew. Sustain. Energy Rev. 2022, 167, 112828. [Google Scholar] [CrossRef]
- Renuka, S.M.; Maharani, C.M.; Nagasudha, S.; Raveena Priya, R. Optimization of energy consumption based on orientation and location of the building. Mater. Today Proc. 2022, 65, 527–536. [Google Scholar] [CrossRef]
- Ismaiel, M.; Gouda, M.; Li, Y.; Chen, Y. Airtightness evaluation of Canadian dwellings and influencing factors based on measured data and predictive models. Indoor Built Environ. 2023, 32, 553–573. [Google Scholar] [CrossRef] [PubMed]
- Xu, W.; Guo, H.; Ma, C. An Active Solar Water Wall for Passive Solar Greenhouse Heating. Appl. Energy 2022, 308, 118270. [Google Scholar] [CrossRef]
- Teixeira, H.; Gomes, M.G.; Rodrigues, A.M.; Aelenei, D. Assessment of the visual, thermal and energy performance of static vs thermochromic double-glazing under different European climates. Build. Environ. 2022, 217, 109115. [Google Scholar] [CrossRef]
- Rostami, S.; Afrand, M.; Shahsavar, A.; Sheikholeslami, M.; Kalbasi, R.; Aghakhani, S.; Shadloo, M.S.; Oztop, H.F. A review of melting and freezing processes of PCM/nano-PCM and their application in energy storage. Energy 2020, 211, 118698. [Google Scholar] [CrossRef]
- Kishore, R.A.; Bianchi, M.V.A.; Booten, C.; Vidal, J.; Jackson, R. Optimizing PCM-integrated walls for potential energy savings in US Buildings. Energy Build. 2020, 226, 110355. [Google Scholar] [CrossRef]
- Gu, W.; Li, G.; Xiermaimaiti, A.; Ma, T. A review of recent techniques in performance augmentation and evaluation metrics of Trombe walls. Energy Build. 2023, 301, 113693. [Google Scholar] [CrossRef]
- Askari, M.; Jahangir, M.H. Evaluation of thermal performance and energy efficiency of a Trombe wall improved with dual phase change materials. Energy 2023, 284, 128587. [Google Scholar] [CrossRef]
- Ma, Q.; Gao, W.; Fukuda, H.; Wei, X.; Chen, X. Heat utilization of a ventilated sunspace in a non-insulated apartment. Energy Sources Part A Recov. Util. Environ. Eff. 2020, 1–13. [Google Scholar] [CrossRef]
- Zhang, S.; Jiang, J.; Gao, W. Application evaluation and optimization of the sunroom in rural residential houses in Southeast Shandong Province, China. Sol. Energy 2023, 251, 208–222. [Google Scholar] [CrossRef]
- Yang, Y.; Wang, K.; Zhou, D.; Wang, Y.; Zhang, Q.; Xu, D. Improvement of Human Comfort in Rural Cave Dwellings via Sunrooms in Cold Regions of China. Buildings 2024, 14, 734. [Google Scholar] [CrossRef]
- Li, E.; Yang, L.; Liu, J. Analysis on the passive design optimization for residential buildings in Lhasa based on the case study of attached sunroom system for apartment buildings. J. Xi’an Univ. Arch. Technol. Nat. Sci. Ed. 2016, 48, 258–264. [Google Scholar]
- Ma, L.; Zhang, X.; Li, D.; Arıcı, M.; Yıldız, Ç.; Li, Q.; Zhang, S.; Jiang, W. Influence of sunspace on energy consumption of rural residential buildings. Sol. Energy 2020, 211, 336–344. [Google Scholar] [CrossRef]
- Leonzio, G.; Fennell, P.S.; Shah, N. Air-source heat pumps for water heating at a high temperature: State of the art. Sustain. Energy Technol. Assess. 2022, 54, 102866. [Google Scholar] [CrossRef]
- Gollamudi, S.; Fauchoux, M.; Krishnan, E.; Ramin, H.; Joseph, A.; Simonson, C. Methodology to evaluate design modifications intended to eliminate frosting and high discharge temperatures in air-source heat pumps (ASHPs) in cold climates. Energy Build. 2024, 312, 114209. [Google Scholar] [CrossRef]
- Shuxue, X.; Guoyuan, M. Research on air-source heat pump coupled with economized vapor injection scroll compressor and ejector. Int. J. Refrig. 2011, 34, 1587–1595. [Google Scholar] [CrossRef]
- Wang, W.; Li, Y. Intermediate pressure optimization for two-stage air-source heat pump with flash tank cycle vapor injection via extremum seeking. Appl. Energy 2019, 238, 612–626. [Google Scholar] [CrossRef]
- Wang, W.; Zhou, Q.; Tian, G.; Hu, B.; Li, Y.; Cao, F. The intermediate temperature optimization for cascade refrigeration system and air source heat pump via extreme seeking control. Int. J. Refrig. 2020, 117, 150–162. [Google Scholar] [CrossRef]
- Rahman, M.A.; Jacobi, A.M. Effects of microgroove geometry on the early stages of frost formation and frost properties. Appl. Therm. Eng. 2013, 56, 91–100. [Google Scholar] [CrossRef]
- Zhang, S.; Liu, S.; Shen, Y.; Shukla, A.; Mazhar, A.R.; Chen, T. Critical review of solar-assisted air source heat pump in China. Renew. Sustain. Energy Rev. 2024, 193, 114291. [Google Scholar] [CrossRef]
- Abbasi, B.; Li, S.; Mwesigye, A. Investigation of the thermodynamic performance of a direct-expansion solar-assisted heat pump under very cold climatic conditions with and without glazing. Int. J. Refrig. 2024, 158, 329–344. [Google Scholar] [CrossRef]
- Li, J.; Sun, X.; Zhu, J.; Karkon, E.G.; Novakovic, V. Performance comparison of air source heat pump coupling with solar evacuated tube water heater and that with micro heat pipe PV/T. Energy 2024, 300, 131600. [Google Scholar] [CrossRef]
- Han, Z.; Liu, Y.; Zhong, M.; Shi, G.; Li, Q.; Zeng, D.; Zhang, Y.; Fei, Y.; Xie, Y. Influencing factors of domestic waste characteristics in rural areas of developing countries. Waste Manag. 2018, 72, 45–54. [Google Scholar] [CrossRef] [PubMed]
- Sun, F.; Xu, W.; Chen, H.; Hao, B.; Zhao, X. Configuration optimization of solar-driven low temperature district heating and cooling system integrated with distributed water-lithium bromide absorption heat pumps. Sol. Energy 2023, 253, 401–413. [Google Scholar] [CrossRef]
- Huang, R.; Mahvi, A.; James, N.; Kozubal, E.; Woods, J. Evaluation of phase change thermal storage in a cascade heat pump. Appl. Energy 2024, 359, 122654. [Google Scholar] [CrossRef]
- Han, Z.; Bai, C.; Ma, X.; Li, B.; Hu, H. Study on the performance of solar-assisted transcritical CO2 heat pump system with phase change energy storage suitable for rural houses. Sol. Energy 2018, 174, 45–54. [Google Scholar] [CrossRef]
- Gao, J.; Li, S.; Wu, F.; Jiang, L.; Zhao, Y.; Zhang, X. Study on efficient heating method by solar coupled air source heat pump system with phase change heat storage in severe cold region. Appl. Energy 2024, 367, 123206. [Google Scholar] [CrossRef]
- Qv, D.; Ni, L.; Yao, Y.; Hu, W. Reliability verification of a solar–air source heat pump system with PCM energy storage in operating strategy transition. Renew. Energy 2015, 84, 46–55. [Google Scholar] [CrossRef]
- Ni, L.; Qv, D.; Yao, Y.; Niu, F.; Hu, W. An experimental study on performance enhancement of a PCM based solar-assisted air source heat pump system under cooling modes. Appl. Therm. Eng. 2016, 100, 434–452. [Google Scholar] [CrossRef]
- Suárez López, M.J.; Castro, S.S.; Manso, A.N.; Marigorta, E.B. Heat Collection in an Attached Sunspace. Renew. Energy 2020, 145, 2144–2150. [Google Scholar] [CrossRef]
- Sun, R.; Dong, J.; Zhao, H.; Wang, L.; Qin, D. Typical Village and Town Houses in the Cold Region of Northeast China: Simulation Analysis of Courtyard Layout and Winter Wind Environment Habitability. Buildings 2023, 14, 109. [Google Scholar] [CrossRef]
- GB 50176-2016; Thermal Design Code for Civil Buildings. Ministry of Housing and Urban-Rural Development of the People’s Republic of China: Beijing, China; China Architecture & Building Press: Beijing, China, 2016.
- GB/T 50824-2013; Energy Efficiency Design Standards for Rural Residential Buildings. Ministry of Housing and Urban-Rural Development of the People’s Republic of China: Beijing, China; China Architecture & Building Press: Beijing, China, 2014.
- Gu, H.; Chen, Y.; Yao, X.; Huang, L.; Zou, D. Review on heat pump (HP) coupled with phase change material (PCM) for thermal energy storage. Chem. Eng. J. 2023, 455, 140701. [Google Scholar] [CrossRef]
- Gao, L.; Zhang, X.; Hua, W. Recent progress in photovoltaic thermal phase change material technology: A review. J. Energy Storage 2023, 65, 107317. [Google Scholar] [CrossRef]
- Anter, A.G.; Sultan, A.A.; Hegazi, A.A.; El Bouz, M.A. Thermal performance and energy saving using phase change materials (PCM) integrated in building walls. J. Energy Storage 2023, 67, 107568. [Google Scholar] [CrossRef]
- Rebelo, F.; Figueiredo, A.; Vicente, R.; Almeida, R.M.S.F.; Ferreira, V.M. Innovation and progress in the incorporation of phase change materials into radiant floor systems. J. Energy Storage 2023, 74, 109495. [Google Scholar] [CrossRef]
















| Length (m) | Width (m) | Height (m) | South Window (m2) | North Window (m2) | Exterior Door (m2) | Heating Area (m2) |
|---|---|---|---|---|---|---|
| 15.7 | 7.2 | 3.3 | 12.15 | 15.3 | 4.4 | 57.5 |
| Name | Structure | U-Value (W/m2·K) |
|---|---|---|
| Exterior Wall | Clay brick wall with external insulation board | 0.40 |
| Interior Wall | Clay brick wall | 1.189 |
| Exterior Door | Metal insulated door | 1.84 |
| Building + Sunroom Windows | 13 mm thick double-glazed window | 1.96 |
| Roof | Insulated sloped roof with steel sheet | 0.25 |
| Equipment Name | Parameter | Quantity |
|---|---|---|
| Air-Source Heat Pump | Heating capacity: 14 kW, rated power: 4.2 kW (ambient temperature: 7 °C DB/6 °C WB), operating temperature range: −25 to 43 °C, water flow rate: 1.75 m3/h, water pressure drop: 50 kPa. | 1 |
| Thermal Storage Tank | Capacity 80 L, height 940 mm, bottom diameter 462 mm | 1 |
| Time | Heat Gain (kWh) | Time | Heat Gain (kWh) |
|---|---|---|---|
| 8:00–9:00 | 2.03 | 13:00–14:00 | 26.84 |
| 9:00–10:00 | 10.77 | 14:00–15:00 | 23.08 |
| 10:00–11:00 | 21.00 | 15:00–16:00 | 14.17 |
| 11:00–12:00 | 26.07 | 16:00–17:00 | 0.86 |
| 12:00–13:00 | 27.94 | 17:00–18:00 | 0.00 |
| Building Heating Load (kWh) | Average Indoor Temperature (°C) | Heat Pump Electricity Consumption (kWh) | System Heat Output (kWh) | Water Tank Electricity Consumption (kWh) | Total System Electricity Consumption (kWh) |
|---|---|---|---|---|---|
| 86.67 | 16.74 | 2.35 | 64.88 | 109.24 | 111.59 |
| Building Heating Load (kWh) | Average Indoor Temperature (°C) | Heat Pump Electricity Consumption (kWh) | System Heat Output (kWh) | Water Tank Electricity Consumption (kWh) | Total System Electricity Consumption (kWh) |
|---|---|---|---|---|---|
| 86.67 | 20.00 | 36.96 | 99.41 | 0.00 | 36.96 |
Disclaimer/Publisher’s Note: The statements, opinions and data contained in all publications are solely those of the individual author(s) and contributor(s) and not of MDPI and/or the editor(s). MDPI and/or the editor(s) disclaim responsibility for any injury to people or property resulting from any ideas, methods, instructions or products referred to in the content. |
© 2024 by the authors. Licensee MDPI, Basel, Switzerland. This article is an open access article distributed under the terms and conditions of the Creative Commons Attribution (CC BY) license (https://creativecommons.org/licenses/by/4.0/).
Share and Cite
Jiao, F.; Li, G.; Zhang, C.; Liu, J. Study on the Coupling of Air-Source Heat Pumps (ASHPs) and Passive Heating in Cold Regions. Buildings 2024, 14, 2410. https://doi.org/10.3390/buildings14082410
Jiao F, Li G, Zhang C, Liu J. Study on the Coupling of Air-Source Heat Pumps (ASHPs) and Passive Heating in Cold Regions. Buildings. 2024; 14(8):2410. https://doi.org/10.3390/buildings14082410
Chicago/Turabian StyleJiao, Feipeng, Guopeng Li, Chunjie Zhang, and Jiyuan Liu. 2024. "Study on the Coupling of Air-Source Heat Pumps (ASHPs) and Passive Heating in Cold Regions" Buildings 14, no. 8: 2410. https://doi.org/10.3390/buildings14082410
APA StyleJiao, F., Li, G., Zhang, C., & Liu, J. (2024). Study on the Coupling of Air-Source Heat Pumps (ASHPs) and Passive Heating in Cold Regions. Buildings, 14(8), 2410. https://doi.org/10.3390/buildings14082410
