Planning Regulations and Modelled Constraints in BIM: A Dutch Case Study
Abstract
1. Introduction: Planning Compliance in BIM
- The generate-and-test view of design and the consequent (temporal) precedence of synthesis to analysis, which are, moreover, treated as discrete process stages;
- The view of design knowledge as tacit, even when it refers to explicit information;
- Analogue workflows, unrelated to the potential of digital environments.
2. Design as Generate-and-Test
2.1. Information and Tacit Knowledge
2.2. Time–Effort Distribution Curves
2.3. Creativity
2.4. Feedback and Feedforward
- Timeliness and information: When the analysis taking place is critical for the quality of feedback. Having first to produce a design, largely on the basis of tacit knowledge, requires time. If the analysis of something takes place at the wrong moment, e.g., when relevant information is unavailable yet, feedback can be impossible or inconclusive.
- Sunk costs: Reversely, if the analysis takes place too late, the time and effort already invested in subsequent steps often results in uncritical commitment to the particular solution and in sunk costs: the design must go on at all costs, regardless of quality or performance [19].
2.5. Frame Conclusion
- The integration of predesign information ordering in BIM workflows and representations, so that the collected information remains explicit and supports better design decision making, including creativity.
- The feedforward of constraints as an alternative to the generate-and-test and feedback-based approach to compliance checking, in a way that supports a fuller understanding of problems to be solved, including the identification of conflicts and design options.
3. Dutch Planning Regulations
- A land-use plan (bestemmingsplan), which determines exactly what may be built on each plot of land;
- A welstandsnota, which addresses aesthetic matters, mostly at a morphological level [63];
- A monumentennota, which deals with listed buildings of various grades, also at a morphological level.
3.1. Uniformity
- Maximum building height;
- Setbacks from the front and back sides of the plot;
- Roof pitch;
- Fence height.

- The number and dimensions of bay windows on the front façade, usually relative to the façade width and the storey height. (Although planning documents frequently refer to storey height, they do not specify it. This is carried out in the national building code for various kinds of building uses).
- The number and dimensions of dormers (loft conversion being quite popular in a country where space is at a premium), usually through setbacks from the roof sides and top. There may also be an absolute maximum height and a maximum width relative to the roof width. In any conflict that arises, the lower value applies.
3.2. Flexibility
3.3. Variation
4. Materials and Methods
- Select a small residential plot anywhere in the world, preferably one well-known to them, e.g., that of their current residence or their family home. As most students who took the course were Dutch, it was expected that the majority would choose an urban or suburban plot for a single-family home in the Netherlands.
- Collect the planning regulations for that plot, starting from the national portal www.ruimtelijkplannen.nl (accessed on 27 December 2023) and extending the search to municipal websites, which often contained additional planning policy documents. In non-Dutch cases, it was assumed that applicable planning regulations were also accessible on the Internet. In all cases, the collected constraints were expected to include the following:
- Building dimensions;
- Building footprint (area, position in plot, etc.);
- Dimensions of building features (roofs, dormers, bay windows, etc.);
- Dimensions of additions and extensions.
- Connect the collected constraints and plot dimensions in a spreadsheet, so as to make explicit as many dimensions and relations as possible; e.g., calculate the footprint of a building if the regulations use only setbacks to define it. This should also reveal any missing information.
- Make a basic model for the known part of the building in BIM, using either massing elements (volumetric model) or building elements dimensioned and positioned according to the spreadsheet calculations. Students were advised to ignore the existing building and focus instead on what was allowed.
- Make the planning constraints explicit in the model and its setup, e.g., using dimension lines locked to the appropriate values.
- Veracity: Did students include all actual constraints for their plot? This involved tracking the sources for each plot and comparing them to what students reported.
- Comprehensiveness: How much of the building envelope could be produced on the basis of planning regulations. This (as well as the next two) was carried out by examining each model and comparing it to the verified spreadsheet.
- Coherence: Do planning regulations fit together to produce the building envelope?
- Consistency: Are all constraints specified in a compatible manner?
- Efficacity: Does the proposed workflow return the expected results (i.e., models of the building envelope in BIM)?
- Consistency: Do the planning regulations of different municipalities stipulate similar constraints for the building envelope?
- BIM requirements: What is the level of skills necessary for modelling a building envelope on the basis of building constraints?
5. Results
- Fence height (important for the sense of community and privacy in a densely populated country): almost uniformly one metre for the front yard and two metres for the back and side yards.
- Building setbacks from the plot boundaries.
- Maximum building height (including the roof).
- Roof height, either directly given or indirectly through the roof pitch and the roof gutter height.
- Roof pitch, often as a bandwidth.
- Dormer number, dimensions, and location (on which side of the roof). In most cases, the dormer roof type was also specified (usually flat for urban areas and pitched in rural ones). Practically all cases also referred to local precedents.
- Bay window number and dimensions, usually with a degree of fuzziness that allowed room for design decisions. Typically, one or two bay windows were allowed with a total width expressed as a fraction or percentage of the width of the building façade. Here, again, references were made to precedent bay windows in the neighbourhood, as well as to storey height.
- Additions and extensions: these came in various forms, commonly including a two-metre-deep extension on the back façade and small outbuildings, usually with setbacks from the sides of the plot. The total area of all additions and extensions was usually a percentage of the unbuilt plot area, while their height was determined by the storey height.
5.1. Connecting Constraints
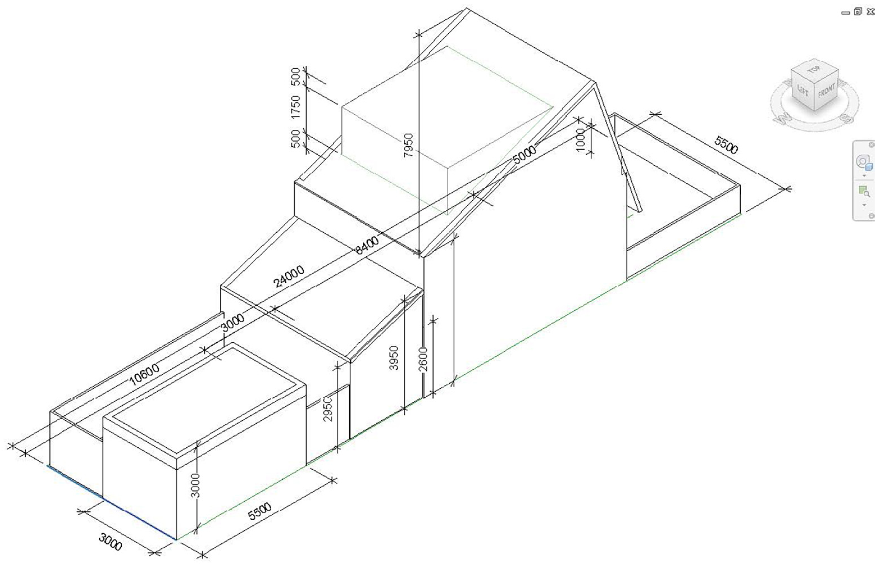
5.2. Modelling in BIM
5.3. Comparison to Other Countries
5.4. Exploration and Creativity
6. Conclusions
6.1. Limitations
6.2. Workflow
6.3. Modelling Issues
7. Discussion
7.1. Design Analysis
7.2. Analysis in BIM
7.3. Wicked, Ill-Defined, and Open-Ended
7.4. Design Preliminaries and Creativity
7.5. Future Work
Funding
Data Availability Statement
Acknowledgments
Conflicts of Interest
Appendix A
| Student ID | Country | Municipality | Plan Type | Type | Setback Front | Setback Side | Setback Back | Max Width | Max Depth | Max Footprint | Max Area | Gutter Height | Roof Pitch | Roof Height |
|---|---|---|---|---|---|---|---|---|---|---|---|---|---|---|
| 5258901 | Colombia | Bogota | Terraced | 3.5 | - | 3.0 | 9.0 | 26.0 | 163.8 | 491.4 | - | - | 7.5 | |
| 5137489 | Colombia | Bogotá | Detached | 8.0 | 7.0 | 7.0 | 90.7 | 203.3 | 9222.0 | - | - | - | 25.0 | |
| 5264782 | Costa Rica | Moravia | Detached | 2.0 | 3.0 | 3.0 | 20.5 | 62.1 | 892.7 | 1785.5 | - | - | 7.0 | |
| 5340551 | Ecuador | Cuenca | Detached | 5.0 | 3.0 | 3.0 | 11.0 | 26.7 | 155.3 | - | - | 25.00% | 13.4 | |
| 5370891 | Iran | Tehran | Detached | 6.6 | - | - | 10.0 | 21.4 | 145.2 | - | - | - | 12.3 | |
| 4663691 | The Netherlands | Amersfoort | Uniform | Semidetached | - | - | - | - | - | 82.5 | - | - | 45.00% | - |
| 593731 | The Netherlands | Amersfoort | Uniform | Terraced | 4.0 | - | - | 5.0 | 15.0 | 30.0 | - | - | 30.00% | - |
| 4717317 | The Netherlands | Amstelveen | Uniform | Terraced | - | - | 14.0 | 6.0 | 22.0 | 48.0 | - | 6.0 | 60.00% | 10.0 |
| 4850483 | The Netherlands | Amstelveen | Uniform | Terraced | 2.5 | - | 13.0 | 5.5 | 25.5 | 55.0 | - | - | 60.00% | 10.0 |
| 4608488 | The Netherlands | Amstelveen | Uniform | Terraced | - | - | 10.8 | 5.6 | 20.1 | - | - | 7.0 | 40.00% | 10.0 |
| 4476727 | The Netherlands | Amsterdam | Uniform | Apartment | - | - | - | - | 12.8 | - | - | 15.0 | - | 18.0 |
| 4443543 | The Netherlands | Amsterdam | Uniform | Terraced | 6.0 | - | 6.0 | 8.0 | 33.0 | 192.6 | - | - | - | 9.0 |
| 4602323 | The Netherlands | Amsterdam | Uniform | Terraced | - | - | 10.3 | 9.0 | 20.0 | 44.5 | 133.5 | - | - | Max 9 m at front, 6 m at back |
| 4687744 | The Netherlands | Bergen | Variation | Detached | 6.0 | 3.0 | 12.0 | 15.0 | 25.0 | 70.0 | 210.0 | - | 40.00% | 12.5 |
| 4459849 | The Netherlands | Berkel en Rodenrijs | Uniform | Detached | 4.0 | - | - | 13.6 | 25.0 | - | - | 6.5 | 30–60% | 12.0 |
| 4498496 | The Netherlands | Blaricum | Variation | Semidetached | 8.0 | - | 8.0 | 10.0 | 25.0 | - | - | 4.0 | - | 8.0 |
| 4782720 | The Netherlands | Boxmeer | Variation | Terraced | 1.0 | - | - | 6.0 | 18.0 | 60.0 | - | 6.5 | 35.00% | 10.0 |
| 4826671 | The Netherlands | Breestraat 4 | Uniform | Detached | - | 1.0 | - | 19.0 | 18.0 | - | - | - | - | 9.0 |
| 5265711 | The Netherlands | Bunnik | Uniform | Terraced | 5.0 | - | - | 6.0 | 30.0 | - | - | - | 60.00% | 10.0 |
| 4731131 | The Netherlands | Capelle a/d IJssel | Uniform | Terraced | - | - | - | - | - | 70.0 | - | - | - | 15.0 |
| 4837886 | The Netherlands | De Bilt | Uniform | Detached | 16.0 | 3.0 | 13.0 | 15.0 | 50.0 | 96.0 | - | 7.0 | - | 11.0 |
| 4714415 | The Netherlands | De Bilt | Uniform | Semidetached | - | - | 18.0 | 11.0 | 30.3 | - | - | - | 41.50% | 8.5 |
| 4686640 | The Netherlands | De Bilt | Uniform | Terraced | - | - | 14.5 | 14.0 | 9.0 | 48.0 | - | - | 60.00% | 10.0 |
| 4853342 | The Netherlands | De Ronde Venen | Uniform | Detached | - | - | - | - | - | - | 116.0 | 4.0 | 40.00% | 9.0 |
| 9842023 | The Netherlands | De Wolden | Variation | Detached | 3.0 | - | 9.0 | 30.0 | 40.0 | 80.0 | - | 3.0 | 15.00% | 7.0 |
| 5223318 | The Netherlands | Delft | Uniform | Apartment | - | - | 9.0 | 7.5 | 22.0 | 97.5 | - | 17.0 | 30.00% | 20.0 |
| 4687965 | The Netherlands | Delft | Uniform | Apartment | 1.0 | - | - | 8.0 | 24.0 | - | - | 10.0 | - | 12.0 |
| 4495071 | The Netherlands | Delft | Uniform | Apartment | - | - | 1.0 | 8.0 | 24.0 | - | - | - | - | 12.0 |
| 4697162 | The Netherlands | Delft | Uniform | Detached | - | At least 2× height of building | - | 30.0 | 55.0 | 330.0 | - | - | 25–55% | 9.0 |
| 4444698 | The Netherlands | Delft | Uniform | Terraced | - | - | - | 4.5 | 32.5 | 152.0 | 146.0 | 8.5 | 45–75% | 12.5 |
| 5252118 | The Netherlands | Delft | Uniform | Terraced | 5.5 | - | 10.0 | 7.0 | 25.0 | 66.5 | - | - | 60.00% | 9.0 |
| 5216265 | The Netherlands | Delft | Uniform | Terraced | 12.0 | - | - | 10.0 | 35.0 | 75.0 | 230.0 | 8.0 | 35.00% | 12.0 |
| 4558693 | The Netherlands | Delft | Uniform | Terraced | - | - | 12.0 | 4.0 | 24.0 | 48.0 | 144.0 | 6.0 | 30.00% | 10.0 |
| 4370570 | The Netherlands | Delft | Uniform | Terraced | - | - | 10.0 | 8.1 | 19.2 | 74.5 | - | - | 30.00% | 13.0 |
| 4631218 | The Netherlands | Delft | Uniform | Terraced | - | - | - | 3.8 | 10.0 | 38.0 | 149.0 | - | - | 14.0 |
| 4653955 | The Netherlands | Delft | Uniform | Terraced | 1.5 | - | 12.0 | 5.7 | 22.0 | 56.5 | - | 5.4 | 30.00% | - |
| 4489454 | The Netherlands | Delft | Uniform | Terraced | - | - | 16.0 | 4.8 | 30.3 | 67.7 | - | 9.0 | 45–75% | - |
| 4644026 | The Netherlands | Delft | Uniform | Terraced | - | - | 2.0 | 5.0 | 10.0 | 40.0 | - | - | 44.00% | 9.0 |
| 4672313 | The Netherlands | Delft | Uniform | Terraced | - | - | 4.5 | 4.8 | 30.3 | - | - | - | 30.00% | 12.0 |
| 5635047 | The Netherlands | Delft | Uniform | Terraced | - | - | - | 8.4 | 24.6 | - | - | 6.0 | - | 10.0 |
| 4455428 | The Netherlands | Delft | Uniform | Terraced | - | - | 8.0 | 5.8 | 32.8 | - | 142.3 | 6.0 | 45.00% | 9.0 |
| 4382226 | The Netherlands | Delft | Uniform | Terraced | - | - | 12.0 | 8.0 | 24.0 | 120.0 | 384.0 | - | - | 12.0 |
| 4598105 | The Netherlands | Delft | Uniform | Terraced | 2.5 | - | - | 5.7 | 18.7 | 57.0 | - | - | 30.00% | 10.0 |
| 4554086 | The Netherlands | Delft | Uniform | Terraced | 6.0 | - | 18.0 | 5.0 | 34.0 | 50.0 | 243.0 | 9.0 | 60.00% | 13.0 |
| 5505003 | The Netherlands | Delft | Uniform | Terraced | 1.0 | 1.0 | 1.0 | 9.5 | 13.0 | 114.0 | - | - | 45.00% | 8.0 |
| 5320607 | The Netherlands | Delft | Uniform | Terraced | 2.0 | - | - | 8.8 | 20.6 | 87.9 | 351.6 | - | - | 14.0 |
| 5377188 | The Netherlands | Delft | Uniform | Terraced | - | - | 12.0 | 6.0 | 24.0 | 72.0 | - | - | 30.00% | 10.0 |
| 4712749 | The Netherlands | Delft | Variation | Terraced | - | - | 9.0 | 6.0 | 19.0 | 60.0 | - | - | - | 13.0 |
| 4647963 | The Netherlands | Delft | Variation | Terraced | - | - | - | 5.0 | 20.0 | - | - | - | - | 13.0 |
| 4447778 | The Netherlands | Delft | Variation | Terraced | - | - | 12.0 | 8.0 | 24.0 | 96.0 | - | - | 30.00% | 12.0 |
| 5260272 | The Netherlands | Delft | Variation | Terraced | - | - | - | 4.0 | 10.0 | 40.0 | - | - | - | 14.0 |
| 4656954 | The Netherlands | Den Haag | Uniform | Apartment | - | - | 5.0 | 8.0 | 12.0 | 96.0 | - | 7.0 | - | 10.0 |
| 4450884 | The Netherlands | Den Haag | Uniform | Semidetached | 16.5 | - | 14.5 | 11.0 | 39.0 | 64.0 | - | 7.0 | 56.30% | 13.0 |
| 4718941 | The Netherlands | Den Haag | Uniform | Terraced | 3.0 | - | - | 5.0 | 22.0 | 65.0 | - | - | - | 9.0 |
| 4713095 | The Netherlands | Den Haag | Uniform | Terraced | 2.0 | - | 6.0 | 5.0 | 10.0 | 50.0 | 150.0 | - | - | 9.0 |
| 5367425 | The Netherlands | Den Haag | Uniform | Terraced | 5.5 | - | - | 7.0 | 17.5 | 84.0 | - | - | 30.00% | 11.0 |
| 4822544 | The Netherlands | Den Hoorn | Uniform | Terraced | 3.0 | 3.0 | 3.0 | 8.0 | 24.0 | - | - | 6.0 | 30–60% | - |
| 4487494 | The Netherlands | Deventer | Uniform | Terraced | - | - | 9.6 | 6.0 | 20.5 | - | - | - | 30.00% | 7.8 |
| 5417465 | The Netherlands | Diepenveen | Uniform | Detached | - | 1.0 | - | - | - | 96.0 | - | 4.5 | 20–55% | 10.0 |
| 4475410 | The Netherlands | Doetinchem | Uniform | Semidetached | 3.0 | - | - | 4.5 | 22.0 | 45.4 | - | 4.5 | 30–60% | 9.0 |
| 5075610 | The Netherlands | Drechterland | Variation | Detached | 13.0 | 1.0 | 10.0 | 39.0 | 34.0 | 99.0 | 297.0 | 3.5 | 30–70% | 10.0 |
| 4960939 | The Netherlands | Eindhoven | Uniform | Terraced | - | - | 4.3 | 5.4 | 9.9 | 87.5 | - | 5.7 | 45.00% | 11.0 |
| 4844416 | The Netherlands | Elburg | Variation | Detached | - | - | - | 4.0 | 11.6 | 46.4 | - | - | - | 3.5 |
| 4681940 | The Netherlands | Epe | Uniform | Detached | 3.0 | 3.0 | 3.0 | 16.5 | 28.0 | 181.3 | 6.0 | 25–60% | 9.0 | |
| 5229960 | The Netherlands | Etten-Leur | Uniform | Terraced | - | - | 10.0 | 5.4 | 12.0 | 64.8 | - | - | 30.00% | 10.0 |
| 4449711 | The Netherlands | Gilze en Rijen | Uniform | Terraced | 2.0 | - | 2.0 | 6.8 | 26.6 | 125.7 | 150.0 | 6.0 | 40.00% | 9.0 |
| 4556585 | The Netherlands | Gorinchem | Flexible | Detached | - | - | - | 10.0 | 16.0 | 160.0 | - | 10.0 | - | 10.0 |
| 4720873 | The Netherlands | Gouda | Uniform | Terraced | 3.4 | - | - | 6.7 | 22.8 | 57.6 | - | 6.0 | 33.69% | 10.0 |
| 4874439 | The Netherlands | Groningen | Uniform | Semidetached | 2.0 | 3.0 | 3.0 | - | - | - | - | 6.0 | 30–70% | 12.0 |
| 4669177 | The Netherlands | Groningen | Uniform | Semidetached | 5.0 | - | 8.5 | 13.0 | 25.5 | 120.0 | - | - | 60.00% | 11.0 |
| 4565673 | The Netherlands | Groningen | Variation | Detached | - | 3.0 | - | 23.0 | 24.0 | 88.5 | - | - | 44.00% | 7.4 |
| 4445740 | The Netherlands | Haarlem | Uniform | Terraced | 2.5 | - | 10.0 | 6.0 | 22.0 | 57.0 | - | 6.0 | 30–70% | 10.0 |
| 4722949 | The Netherlands | Haarlemmermeer | Uniform | Detached | - | - | - | - | - | - | - | - | 60.00% | 9.0 |
| 4439740 | The Netherlands | Heusden | Flexible | Terraced | ||||||||||
| 5470587 | The Netherlands | Houten | Uniform | Terraced | - | - | - | - | - | - | - | - | - | - |
| 4693280 | The Netherlands | Huizen | Uniform | Terraced | - | - | - | 6.0 | 32.0 | 76.8 | - | 6.0 | 55.00% | 11.0 |
| 4587693 | The Netherlands | IJsselstein | Uniform | Terraced | 2.0 | - | - | 6.0 | 23.0 | - | - | 6.0 | - | 9.0 |
| 4709268 | The Netherlands | IJsstelstein | Uniform | Terraced | - | - | - | 5.0 | 11.0 | 55.0 | - | - | 45.00% | 9.7 |
| 4273834 | The Netherlands | Kaag en Braassem | Uniform | Detached | 3.1 | - | - | 20.0 | 21.0 | - | 420.0 | 4.0 | - | 7.5 |
| 5423902 | The Netherlands | Kapelle | Uniform | Semidetached | - | - | 5.0 | 11.0 | 31.5 | - | - | 5.0 | - | 7.0 |
| 4708105 | The Netherlands | Leiden | Uniform | Terraced | 2.5 | - | - | 5.5 | 25.5 | 60.5 | - | 7.0 | 45.00% | 10.0 |
| 4711262 | The Netherlands | Lelystad | Uniform | Terraced | 2.0 | - | 7.0 | 5.6 | 22.0 | 72.8 | 218.4 | - | - | 11.0 |
| 5221404 | The Netherlands | Middelburg | Uniform | Terraced | 5.0 | - | - | 6.0 | 25.0 | 60.0 | - | 60.0 | - | 10.0 |
| 4452348 | The Netherlands | Oegstgeest | Uniform | Terraced | - | - | - | 5.9 | 10.3 | 60.8 | 182.3 | 6.0 | - | 10.0 |
| 4590236 | The Netherlands | Oirschot | Uniform | Terraced | 3.0 | - | - | 8.0 | 25.0 | 200.0 | - | 8.0 | 25–65% | 10.0 |
| 4661257 | The Netherlands | Oisterwijk | Flexible | Detached | 1.0 | 5.0 | - | 12.0 | 25.7 | 137.8 | - | 3.5 | 45.00% | 9.0 |
| 4690710 | The Netherlands | Oldebroek | Uniform | Detached | - | - | - | - | - | - | - | 3.5 | -% | 8.0 |
| 4678087 | The Netherlands | Oosterhout | Uniform | Terraced | 1.9 | - | - | 9.4 | 7.3 | - | - | - | - | 9.0 |
| 5509262 | The Netherlands | Oss | Uniform | Terraced | 2.0 | - | - | 5.8 | 22.0 | 69.6 | - | 6.0 | 31.00% | 9.0 |
| 4477480 | The Netherlands | Overbetuwe | Variation | Detached | - | - | 12.0 | 63.0 | 23.0 | 162.0 | 239.0 | - | 30.00% | 10.0 |
| 4658469 | The Netherlands | Pijnacker-Nootdorp | Uniform | Semidetached | 2.0 | - | - | 9.0 | 25.0 | - | - | - | 30.00% | 10.0 |
| 4445171 | The Netherlands | Pijnacker-Nootdorp | Uniform | Terraced | - | - | 4.0 | 5.0 | 20.0 | 80.0 | - | - | 30.00% | 9.0 |
| 5270693 | The Netherlands | Pijnacker-Nootdorp | Uniform | Terraced | - | - | 15.0 | 8.0 | 26.0 | 88.0 | - | - | 10.00% | 10.0 |
| 4579968 | The Netherlands | Pijnacker-Nootdorp | Uniform | Terraced | - | - | - | 5.5 | 23.5 | 52.3 | - | 7.0 | - | 10.0 |
| 5308384 | The Netherlands | Pijnacker-Nootdorp | Uniform | Terraced | - | - | - | 10.0 | 60.0 | - | - | - | - | 10.0 |
| 4391411 | The Netherlands | Purmerend | Uniform | Terraced | 3.5 | - | 14.0 | 5.0 | 26.0 | 42.5 | - | - | - | 9.0 |
| 5357462 | The Netherlands | Rijswijk | Variation | Detached | 3.0 | 3.0 | 6.0 | - | - | 169.6 | 254.5 | 3.0–7.0 | 45.00% | 10.0 |
| 4379381 | The Netherlands | Roermond | Uniform | Semidetached | - | 8.0 | 32.0 | 15.0 | 42.0 | - | 240.4 | 6.0 | 28.96% | 9.0 |
| 4562275 | The Netherlands | Rotterdam | Uniform | Apartment | - | - | - | 7.0 | 20.0 | 140.0 | - | - | 25–75% | 11.8 |
| 4369416 | The Netherlands | Rotterdam | Uniform | Apartment | - | - | 17.0 | 13.0 | 32.0 | 195.0 | - | - | - | 13.0 |
| 4441869 | The Netherlands | Schiedam | Uniform | Semidetached | - | - | 12.0 | 9.7 | 20.0 | 193.0 | - | - | 30.00% | 12.0 |
| 4707036 | The Netherlands | Schiedam | Uniform | Terraced | - | - | - | 7.5 | 11.5 | 50.0 | 200.0 | - | 45–60% | 12.0 |
| 4576977 | The Netherlands | Schouwen-Duiveland | Uniform | Semidetached | 4.0 | - | - | 10.4 | 30.0 | - | - | 6.0 | 38.00% | 10.0 |
| 5248965 | The Netherlands | Spaarnebuiten | Flexible | Detached | 1.0 | 1.0 | 1.0 | - | - | 55% of plot | - | - | - | 11.0 |
| 5243572 | The Netherlands | Spijkenisse | Uniform | Terraced | 4.0 | - | 12.0 | 5.0 | 20.0 | 45.0 | - | 6.0 | - | 9.0 |
| 5479029 | The Netherlands | Tiel | Uniform | Semidetached | 6.5 | - | - | 9.7 | 31.8 | 67.0 | - | 6.0 | - | 10.0 |
| 5407788 | The Netherlands | Venlo | Uniform | Terraced | 3.0 | - | 14.5 | 8.0 | 26.5 | - | - | - | 60.00% | 10.0 |
| 4869427 | The Netherlands | Vlist | Uniform | Terraced | 2.0 | - | 10.0 | 5.0 | 21.0 | 45.0 | - | 7.0 | 41.63% | 11.0 |
| 5190770 | The Netherlands | Voorburg | Uniform | Terraced | 7.5 | - | - | 6.0 | 27.5 | 60.0 | - | - | - | 9.5 |
| 4532740 | The Netherlands | Wateringen | Uniform | Terraced | 1.0 | - | - | 5.0 | 21.0 | - | - | 6.0 | - | 10.0 |
| 4594215 | The Netherlands | Woerden | Uniform | Terraced | 2.0 | - | 8.0 | 5.0 | 8.0 | 60.0 | - | - | - | 9.0 |
| 5184614 | The Netherlands | Woerden | Uniform | Terraced | 4.0 | - | - | 5.8 | 24.0 | 58.0 | - | 5.0 | - | 7.0 |
| 4695682 | The Netherlands | Zaandam | Uniform | Terraced | 3.0 | - | 8.0 | 5.5 | 21.0 | 55.0 | - | - | 30.00% | 9.0 |
| 4867521 | The Netherlands | Zoetermeer | Flexible | Detached | - | 1.0 | - | 14.0 | 24.0 | - | - | - | 30.00% | 10.0 |
| 4731093 | The Netherlands | Zwijndrecht | Uniform | Semidetached | 2.5 | - | 12.0 | 10.0 | 27.0 | 125.0 | - | - | 30.00% | 12.0 |
| 4534522 | The Netherlands | Zwolle | Uniform | Terraced | 1.0 | - | 19.0 | 9.0 | 42.0 | 207.0 | 414.0 | - | - | 6.5 |
| 4558332 | The Netherlands | Zwolle | Uniform | Terraced | - | - | 5.0 | 5.9 | 15.0 | 59.6 | - | 6.0 | 30–50% | 9.0 |
| 5199468 | South Africa | Johannesburg | Detached | 1.0 | 1.0 | 1.0 | - | - | 297.6 | - | - | 22–45% | - | |
| 5339117 | Thailand | Bangkok | Detached | 3.0 | 2.0 | 3.0 | 26.0 | 39.0 | 333.0 | - | - | - | 9.0 |
References
- Amor, R.; Dimyadi, J. The promise of automated compliance checking. DIBE 2021, 5, 100039. [Google Scholar] [CrossRef]
- Andrich, W.; Daniotti, B.; Pavan, A.; Mirarchi, C. Check and Validation of Building Information Models in Detailed Design Phase: A Check Flow to Pave the Way for BIM Based Renovation and Construction Processes. Buildings 2022, 12, 154. [Google Scholar] [CrossRef]
- Guler, D.; Yomralioglu, T. A reformative framework for processes from building permit issuing to property ownership in Turkey. Land Use Policy 2021, 101, 105115. [Google Scholar] [CrossRef]
- Kim, I.; Choi, J.; Teo, E.A.L.; Sun, H. Development of kbim e-submission prototypical system for the openbim-based building permit framework. J. Civ. Eng. Manag. 2020, 26, 744–756. [Google Scholar] [CrossRef]
- Macit İlal, S.; Günaydın, H.M. Computer representation of building codes for automated compliance checking. Autom. Constr. 2017, 82, 43–58. [Google Scholar] [CrossRef]
- Noardo, F.; Ellul, C.; Harrie, L.; Overland, I.; Shariat, M.; Arroyo Ohori, K.; Stoter, J. Opportunities and challenges for GeoBIM in Europe: Developing a building permits use-case to raise awareness and examine technical interoperability challenges. J. Spat. Sci. 2020, 65, 209–233. [Google Scholar] [CrossRef]
- Noardo, F.; Guler, D.; Fauth, J.; Malacarne, G.; Mastrolembo Ventura, S.; Azenha, M.; Olsson, P.-O.; Senger, L. Unveiling the actual progress of Digital Building Permit: Getting awareness through a critical state of the art review. Build. Environ. 2022, 213, 108854. [Google Scholar] [CrossRef]
- Shahi, K.; McCabe, B.Y.; Shahi, A. Framework for Automated Model-Based e-Permitting System for Municipal Jurisdictions. J. Manag. Eng. 2019, 35, 04019025. [Google Scholar] [CrossRef]
- Tan, X.; Hammad, A.; Fazio, P. Automated Code Compliance Checking for Building Envelope Design. J. Comput. Civ. Eng. 2010, 24, 203–211. [Google Scholar] [CrossRef]
- Yang, Q.Z.; Xu, X. Design knowledge modeling and software implementation for building code compliance checking. Build. Environ. 2004, 39, 689–698. [Google Scholar] [CrossRef]
- Zhang, J.; El-Gohary, N.M. Integrating semantic NLP and logic reasoning into a unified system for fully-automated code checking. Autom. Constr. 2017, 73, 45–57. [Google Scholar] [CrossRef]
- Demir Altıntaş, Y.; Ilal, M.E. Loose coupling of GIS and BIM data models for automated compliance checking against zoning codes. Autom. Constr. 2021, 128, 103743. [Google Scholar] [CrossRef]
- Koutamanis, A. Building Information—Representation and Management: Principles and Foundations for the Digital Era; TU Delft OPEN: Delft, The Netherlands, 2022. [Google Scholar] [CrossRef]
- Koutamanis, A.; Dainty, A.; Kvan, T.; Turk, Ž. The Enigma of BIM. Archit. Struct. Constr. 2021, 3, 1–9. [Google Scholar] [CrossRef]
- Lee, H.; Lee, J.-K.; Park, S.; Kim, I. Translating building legislation into a computer-executable format for evaluating building permit requirements. Autom. Constr. 2016, 71, 49–61. [Google Scholar] [CrossRef]
- Nawari, N.O.; Alsaffar, A. The Role of BIM in Simplifying Construction Permits in Kuwait. In AEI 2017; ASCE: Washington, DC, USA, 2017; pp. 855–866. [Google Scholar] [CrossRef]
- Fauth, J.; Bloch, T.; Noardo, F.; Nisbet, N.; Kaiser, S.-B.; Nørkjær Gade, P.; Tekavec, J. Taxonomy for building permit system—Organizing knowledge for building permit digitalization. Adv. Eng. Inform. 2024, 59, 102312. [Google Scholar] [CrossRef]
- Bovill, C. Architectural Design: Integration of Structural and Environmental Systems; Van Nostrand Reinhold: New York, NY, USA, 1991; pp. 9–213. [Google Scholar]
- Kahneman, D. Thinking, Fast and Slow, 1st ed.; Farrar, Straus and Giroux: New York, NY, USA, 2013; 499p. [Google Scholar]
- Rietveld, E.; Kiverstein, J. A Rich Landscape of Affordances. Ecol. Psychol. 2014, 26, 325–352. [Google Scholar] [CrossRef]
- Withagen, R.; Araújo, D.; de Poel, H.J. Inviting affordances and agency. New Ideas Psychol. 2017, 45, 11–18. [Google Scholar] [CrossRef]
- Polanyi, M. The Tacit Dimension; Routledge & K. Paul: London, UK, 1967; pp. 11–108. [Google Scholar]
- Polanyi, M. Personal Knowledge: Towards a Post-Critical Philosophy; Routledge: London, UK, 1997; 428p. [Google Scholar]
- Henderson, K. On Line and on Paper: Visual Representations, Visual Culture, and Computer Graphics in Design Engineering; (Inside technology); MIT Press: Cambridge, MA, USA, 1999; pp. 10–237. [Google Scholar]
- Pressman, A. Design Thinking: A Guide to Creative Problem Solving for Everyone; Routledge: London, UK; New York, NY, USA, 2019; pp. 22–154. [Google Scholar]
- Brereton, M. Distributed Cognition in Engineering Design: Negotiating between Abstract and Material Representations. In Design Representation; Goldschmidt, G., Porter, W.L., Eds.; Springer: London, UK, 2004; pp. 83–103. [Google Scholar] [CrossRef]
- Sacks, R.; Eastman, C.; Lee, G.; Teicholz, P. BIM Handbook, 3rd ed.; Wiley: Hoboken NJ, USA, 2018. [Google Scholar] [CrossRef]
- Paulson, B.C. Designing to Reduce Construction Costs. J. Constr. Div. 1976, 102, 587–592. [Google Scholar] [CrossRef]
- MacLeamy, P. Collaboration, Integrated Information and the Project Lifecycle in Building Design, Construction and Operation; CURT: Cincinnati, OH, USA, 2004; p. 20. [Google Scholar]
- Lu, W.; Fung, A.; Peng, Y.; Liang, C.; Rowlinson, S. Demystifying Construction Project Time-Effort Distribution Curves: BIM and Non-BIM Comparison. J. Manag. Eng. 2015, 31, 04015010. [Google Scholar] [CrossRef]
- Chabris, C.F.; Simons, D.J. The Invisible Gorilla: And Other Ways Our Intuitions Deceive Us, 1st ed.; Crown: New York, NY, USA, 2010; pp. 11–306. [Google Scholar]
- Vigen, T. Spurious Correlations, 1st ed.; Hachette Books: New York, NY, USA, 2015; pp. 15–189. [Google Scholar]
- Sacks, R.; Gurevich, U.; Shrestha, P. A review of Building Information Modeling protocols, guides and standards for Large construction clients. J. Inf. Technol. Constr. 2016, 21, 479–503. [Google Scholar]
- Koutamanis, A. Briefing and Building Information Modelling: Potential for integration. Int. J. Archit. Comput. 2017, 15, 119–133. [Google Scholar] [CrossRef]
- Flyvbjerg, B. Over Budget, Over Time, Over and Over Again: Managing Major Projects. In The Oxford Handbook of Project Management; Morris, P.W.G., Pinto, J., Söderlund, J., Eds.; Oxford University Press: Oxford, UK, 2011. [Google Scholar] [CrossRef]
- Broadbent, G. Design in Architecture, 2nd ed.; David Fulton: London, UK, 2000. [Google Scholar]
- Weisberg, R. The study of creativity: From genius to cognitive science. Int. J. Cult. Policy 2010, 16, 235–253. [Google Scholar] [CrossRef]
- Weisberg, R.; Pichot, N.; Bonetto, E.; Pavani, J.-B.; Arciszewski, T.; Bonnardel, N. From Explicit to Implicit Theories of Creativity and Back: The Relevance of Naive Criteria in Defining Creativity. J. Creat. Behav. 2021, 55, 839–856. [Google Scholar] [CrossRef]
- Weisberg, R.W. Frank Lloyd Wrights Fallingwater: A Case Study in Inside-the-Box Creativity. Creat. Res. J. 2011, 23, 296–312. [Google Scholar] [CrossRef]
- Csikszentmihalyi, M. Creativity: The Psychology of Discovery and Invention; First Harper Perennial modern classics ed. Harper Perennial Modern Classics: New York, NY, USA, 2013; pp. 13, 416, 456. [Google Scholar]
- Sternberg, R.J.; Davidson, J.E. The Nature of Insight; MIT Press: Cambridge, MA, USA, 1995; pp. 18–618. [Google Scholar]
- Gilson, L.L.; Madjar, N.Y. Radical and Incremental Creativity: Antecedents and Processes. Psychol. Aesthet. Creat. Arts 2011, 5, 21–28. [Google Scholar] [CrossRef]
- Mednick, S. The associative basis of the creative process. Psychol. Rev. 1962, 69, 220–232. [Google Scholar] [CrossRef] [PubMed]
- Craft, A.; Gardner, H.; Claxton, G. Creativity, Wisdom, and Trusteeship: Exploring the Role of Education; Corwin Press: Thousand Oaks, CA, USA, 2008; pp. 13–181. [Google Scholar]
- Sanchez-Burks, J.; Karlesky, M.J.; Lee, F. Psychological Bricolage: Integrating Social Identities to Produce Creative Solutions. In The Oxford Handbook of Creativity, Innovation, and Entrepreneurship; Shalley, C.E., Hitt, M.A., Zhou, J., Eds.; Oxford University Press: New York, NY, USA, 2015; pp. 93–102. [Google Scholar] [CrossRef]
- Walsh, C.; Knott, P.; Collins, J. The driving mindsets of innovation: Curiosity, creativity and clarity. J. Bus. Strategy 2022, 43, 71–78. [Google Scholar] [CrossRef]
- Mainemelis, C.; Dionysiou, D.D. Play, Flow, and Timelessness. In The Oxford Handbook of Creativity, Innovation, and Entrepreneurship; Shalley, C.E., Hitt, M.A., Zhou, J., Eds.; Oxford University Press: New York, NY, USA, 2015; pp. 121–140. [Google Scholar] [CrossRef]
- Acar, O.A.; Tarakci, M.; van Knippenberg, D. Creativity and Innovation Under Constraints: A Cross-Disciplinary Integrative Review. J. Manag. 2019, 45, 96–121. [Google Scholar] [CrossRef]
- Beghetto, R.A. Structured Uncertainty: How Creativity Thrives Under Constraints and Uncertainty. In Creativity Under Duress in Education? Resistive Theories, Practices, and Actions; Mullen, C.A., Ed.; Springer International Publishing: Cham, Switzerland, 2019; pp. 27–40. [Google Scholar] [CrossRef]
- Finke, R.A.; Ward, T.B.; Smith, S.M. Creative Cognition: Theory, Research, and Applications; MIT Press: Cambridge, MA, USA, 1992; pp. 6–236. [Google Scholar]
- Tromp, C. The Mr. Plumbean Approach: How Focusing Constraints Anchor Creativity. Creat. Res. J. 2023; 1–12. [Google Scholar] [CrossRef]
- Tromp, C. Integrated Constraints in Creativity: Foundations for a Unifying Model. Rev. Gen. Psychol. 2023, 27, 41–61. [Google Scholar] [CrossRef]
- Ramaprasad, A. On the definition of feedback. Behav. Sci. 1983, 28, 4–13. [Google Scholar] [CrossRef]
- Logan, R.K. Feedforward, I.A. Richards, cybernetics and Marshall McLuhan. Syst. Connect. Catter Life Cult. Technol. 2015, 3, 177–185. [Google Scholar]
- Svrcek, W.Y.; Mahoney, D.P.; Young, B.R. A Real-Time Approach to Process Control, 3rd ed.; Wiley: Chichester, UK, 2014; pp. 18–342. [Google Scholar]
- Marlin, T.E. Process Control: Designing Processes and Control Systems for Dynamic Perfomance, 2nd ed.; McGraw-Hill: Boston, MA, USA, 2000; pp. 33–1017. [Google Scholar]
- Basso, D.; Olivetti Belardinelli, M. The role of the feedforward paradigm in cognitive psychology. Cogn. Process. 2006, 7, 73–88. [Google Scholar] [CrossRef] [PubMed]
- Dowrick, P.W. Self model theory: Learning from the future. WIREs Cogn. Sci. 2012, 3, 215–230. [Google Scholar] [CrossRef] [PubMed]
- Schacter, D.L.; Addis, D.R.; Buckner, R.L. Remembering the past to imagine the future: The prospective brain. Nat. Rev. Neurosci. 2007, 8, 657–661. [Google Scholar] [CrossRef] [PubMed]
- Ismail, M.T.; Bukhori, A. The Role of Feedback and Feed Forward Control System to Improve Competitive Advantage of SMEs in Indonesia. Eur. Res. Stud. J. 2017, 496–506. [Google Scholar] [CrossRef][Green Version]
- Government of the Netherlands. Spatial Planning in the Netherlands. Available online: https://www.government.nl/topics/spatial-planning-and-infrastructure (accessed on 27 December 2023).
- Needham, B. Dutch Land-Use Planning: The Principles and the Practice; Taylor & Francis Group: Farnham, UK, 2014. [Google Scholar]
- van Weert, C. Aesthetic control management in The Netherlands. Urban Des. Int. 1999, 4, 15–20. [Google Scholar] [CrossRef]
- Koutamanis, A. Fuzzy modelling for early architectural design. Int. J. Archit. Comput. 2007, 5, 589–610. [Google Scholar] [CrossRef]
- Ezzeldin, M.; Assem, A.; Abdelmohsen, S. Automated assessment of architectural spatial layout configurations using fuzzy logic. Archnet-IJAR Int. J. Archit. Res. 2021, 15, 328–343. [Google Scholar] [CrossRef]
- Fuge, M.; Yumer, M.E.; Orbay, G.; Kara, L.B. Conceptual design and modification of freeform surfaces using dual shape representations in augmented reality environments. Comput.-Aided Des. 2012, 44, 1020–1032. [Google Scholar] [CrossRef]
- Woodbury, R. Elements of Parametric Design; Routledge: London, UK; New York, NY, USA, 2010; pp. 11–300. [Google Scholar]









![]() | Variation per building |
![]() | Building height |
![]() | Plinth height |
![]() | Building width |
![]() | Roof form |
| Terraced | Semidetached | Detached | Apartment | Total | |
|---|---|---|---|---|---|
| Uniform | 64 | 14 | 10 | 7 | 94 |
| Flexible | 1 | 0 | 4 | 0 | 5 |
| Variation | 5 | 0 | 7 | 0 | 13 |
| Total | 70 | 14 | 21 | 7 | 112 |
| Category | Type | Value | Notes | |
|---|---|---|---|---|
| general constraints | plot dimensions | width | 5.00 m | stroke of land of 3.5 × 0.5 at the rear of the parcel is ignored |
| length | 25.00 m | |||
| setback | 12.00 m | from back. defined as ‘building area’ | ||
| setback | 4.00 m | from front. defined as ‘building area’ | ||
| building height | 9.00 m | 3 m from front. defined by existing situ | ||
| Gutter height front | 6.00 m | maximum. defined by drawing | ||
| Gutter height back | 3.00 m | maximum. defined by existing situation | ||
| fence height | 2.00 m | When dividing 2 parcels | ||
| 1.00 m | When dividing the parcel from public space | |||
| dormer | maximal height | 1.75 m | flat roof | |
| setback | 0.50 m | from either end of roof | ||
| Maximal vertical setback | 1.00 m | from roof bottom | ||
| minimal vertical setbacks | 0.50 m | from roof bottom | ||
| 0.50 m | from roof top | |||
| Extensions/or bay windows | maximal total area | 15 m2 | total width × max 3 m depth | |
| height | 2.90 m | 1 × storey height + 0.3 m | ||
| Additions | maximal total area | 21.50 m2 | 40% of rear area—area extension beyond erfzone (2.5 m) with max of 25 m2 | |
| height | 3.00 m | If the structure has no roof | ||
| height | 4.50 m | If the structure has a roof | ||
| extras | storey height | 2.60 m | ||
| storey area | 45 m2 | |||
| number of storeys | 3 | lowest integer of building height/storey height | ||
| Project information | Location | Loper 18, 8162 KD, Epe (The Netherlands) | |
| Plot 7935 (width)—simplified | 16.5–20 | m | |
| Plot 7935 (length)—simplified | 28–29.5 | m | |
| Building plot (width)—simplified | 14.5 | m | |
| Building plot (length)—simplified | 12.5 | m | |
| Zoning plan information | Relevant zoning plan | Zoning plan Epe Zuid (established on 15 January 2009) | |
| IMRO-idn zoning plan | NL.IMRO.0232.EPE008EpeZuid-VBP1 | ||
| Purpose | residential (only) | ||
| Main building | Maximum building height | 9 | m |
| Maximum gutter height | 6 | m | |
| Minimum width residential house | 5 | m | |
| Minimum distance to plot boundary | 3 | m | |
| Minimum roof slope | 25 | degrees | |
| Maximum roof slope | 60 | degrees | |
| Story height (perceived as general) | 3 | m | |
| Dormer | not allowed without a permit | ||
| Bay windows | Maximal width (from formula) | 9.67 | m (also dependent on windows in neighbourhood) |
| Maximal height (from formula) | 6.5 | m (also dependent on windows in neighbourhood) | |
| Additions, extensions and outbuildings | Maximum distance to extended front façade | 3 | m |
| Minimum distance to plot boundary (or build on boundary) | 1 | m | |
| Maximum surface area (stacked plot), also outside building plot | 175 | m2 | |
| Maximum building height | 5 | m | |
| Maximum ground area (2 floors) | 87.5 | m2 | |
| Maximum gutter height | 3 | m | |
| Canopy | Maximum building height | 3 | m |
| Welstandsnota information | Public-private distinction | Clear | |
| Front building faced towards | Street | ||
| Special attention to | Side façades, corner solutions | ||
| Limited materials and colours | Brickwork | Orange-red | |
| Concrete elements | White | ||
| Façade cladding | Silver-grey | ||
| Pergolas | Steel | ||
| Roof tiles | Anthracite | ||
| Value | Notes | |||
|---|---|---|---|---|
| general constraints | plot dimensions | width | 6.00 m | |
| length | 18.00 m | |||
| Total buildable area | max 60 m2 | For all buildings on plot | ||
| setback | max 1.00 m | from front, at a different setback than adjacent housing | ||
| building height | max 10.00 m | |||
| Length building | max 12.00 m | |||
| Proportions | b < h < 2b | |||
| Gutter height | max 6.50 m | |||
| roof pitch | 35° | Roof must be traditionally sloped | ||
| fence height | max 2.00 m | |||
| dormer | maximal height | 1.80 m | one volume, flat roof, Not allowed at front facade | |
| setback | 0.50 m | from either end of roof | ||
| minimal vertical setbacks | 0.50 m | from roof top | ||
| 0.50 m | from roof bottom | |||
| bay windows | Front facade | Not allowed | ||
| Other facades | width | 3.00 m | 50% of front facade | |
| height | max story height | |||
| depth | 1.00 m | |||
| extensions and additions | Width | max 6.00 m | Front facade | |
| height | max 3.00 m | gutter height | ||
| surface area | not specified | Included in maximum buildable area | ||
| setback from side | 0.00 m | For plot next to road | ||
| extras | storey height | not specified | ||
| storey area | max 180 m2 | max 3× surface area | ||
| number of storeys | 1 or 2 with a pitch | |||
| Below ground | max −3.50 m | |||
| Material | Brick facade. roof tile. wooden window frame | Variation with adjacent housing | ||
| Variable | Requirement |
|---|---|
| Number of Storeys | Height zone A Number of storeys 3 storeys |
| Density development requirements | 1 dwelling per erf |
| Permissible height in metres This is a context specific constraint that relies on the width of the road easements. See part 3 for derivation. | Building not to be 57° line to be drawn from horizontal line on opposite street boundary |
| Permissible site coverage in % of site | 60% for first storey 50% for second storey 40% for third storey |
| Permissible for area ratio Building’s floor area in relation to the size of the lot/parcel | 1.2 |
| Setbacks: Building lines residential Minimum distance between building line and street boundary | Erven larger than 500 m2 1 m Erven Larger than 500 m2 3 m 0 meters side and rear with the provision than Council may invoke an omnibus servitude (2 m wide) along any boundary other than a street boundary. |
| Parking pg 75 | (1 bay per unit + 1 bay per 3 units for visitors |
| Roof pitch | 22° and/or 45° for pitched roofs. 1:100 slope for flat roofs. |
| Green landscaping | 10 percent |
| trees | 1 tree per 3 parking bays |
| Extensions and Additions | No specific rules exist for extensions. All extensions including swimming pools, out house, garage, and additions to conform to Floor area Ratios (FAR) and coverage rules including building lines and setbacks. |
Disclaimer/Publisher’s Note: The statements, opinions and data contained in all publications are solely those of the individual author(s) and contributor(s) and not of MDPI and/or the editor(s). MDPI and/or the editor(s) disclaim responsibility for any injury to people or property resulting from any ideas, methods, instructions or products referred to in the content. |
© 2024 by the author. Licensee MDPI, Basel, Switzerland. This article is an open access article distributed under the terms and conditions of the Creative Commons Attribution (CC BY) license (https://creativecommons.org/licenses/by/4.0/).
Share and Cite
Koutamanis, A. Planning Regulations and Modelled Constraints in BIM: A Dutch Case Study. Buildings 2024, 14, 939. https://doi.org/10.3390/buildings14040939
Koutamanis A. Planning Regulations and Modelled Constraints in BIM: A Dutch Case Study. Buildings. 2024; 14(4):939. https://doi.org/10.3390/buildings14040939
Chicago/Turabian StyleKoutamanis, Alexander. 2024. "Planning Regulations and Modelled Constraints in BIM: A Dutch Case Study" Buildings 14, no. 4: 939. https://doi.org/10.3390/buildings14040939
APA StyleKoutamanis, A. (2024). Planning Regulations and Modelled Constraints in BIM: A Dutch Case Study. Buildings, 14(4), 939. https://doi.org/10.3390/buildings14040939





