Integration of Phase Change Materials in Service Areas of Building Envelopes for Improved Thermal Performance: An Experimental Study in Saudi Arabia
Abstract
1. Introduction
2. Materials and Methods
2.1. Methods
2.1.1. Selection of Experimental Parameters
2.1.2. Specimen Preparation
Gypsum Specimen
Cement Specimen
3. Results and Discussion
3.1. DSC
3.2. Pure PCM Containment (Phase 1)
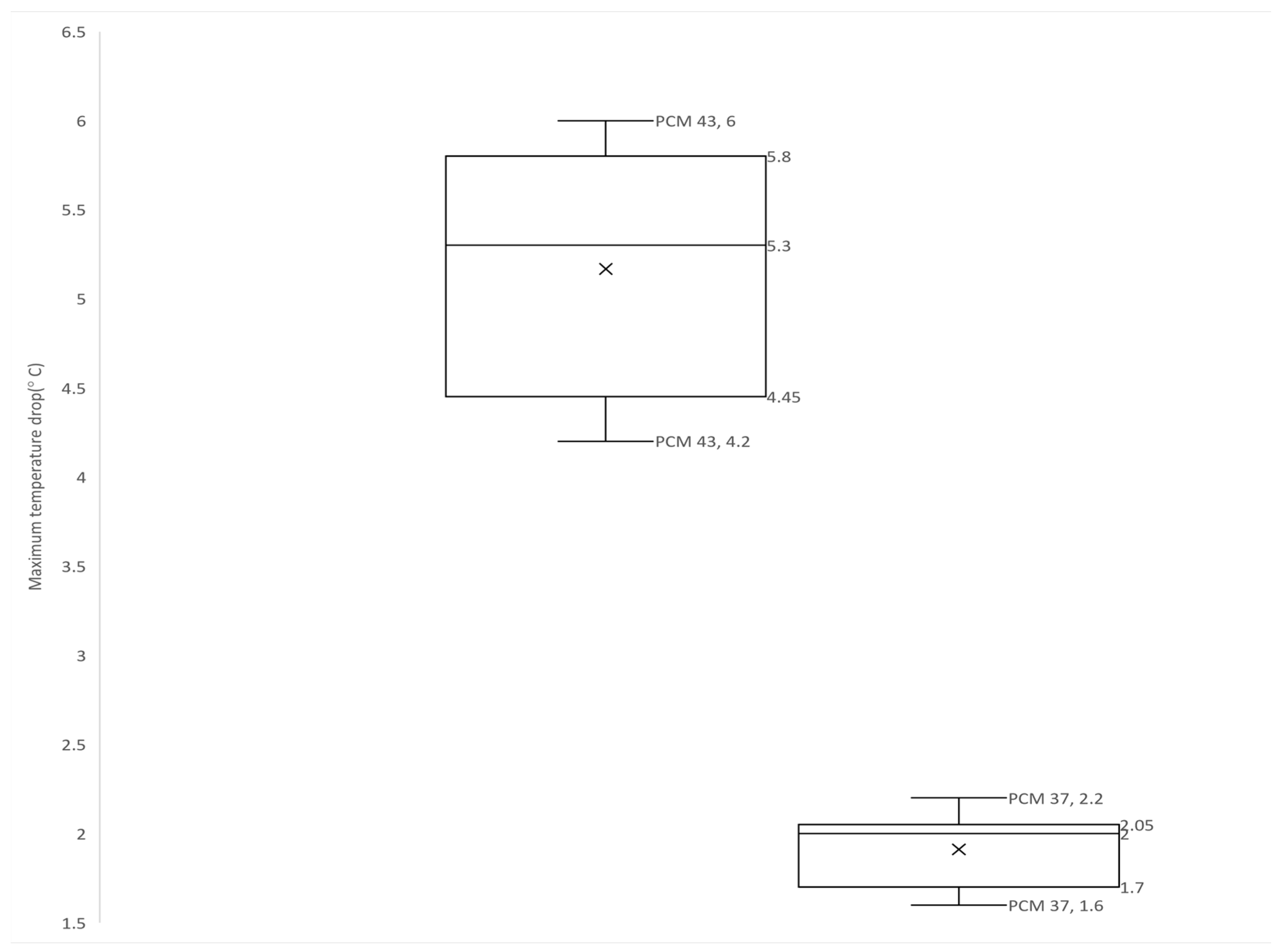
PCM Selection
3.3. PCM with Cement Mix (Phase 2)
3.4. PCM with Gypsum Mix (Phase 2)
3.5. Comparison between Cement and Gypsum
4. Conclusions
Author Contributions
Funding
Data Availability Statement
Conflicts of Interest
References
- Alijani, S.; Pourahmad, A.; Nejad, H.H.; Ziari, K.; Sodoudi, S. A new approach of urban livability in Tehran: Thermal comfort as a primitive indicator. Case study, district 22. Urban Clim. 2020, 33, 100656. [Google Scholar] [CrossRef]
- European Union. Directive 2010/31/EU of the European Parliament and of the Council of 19 May 2010 on the Energy Performance of Buildings; European Union: Maastricht, The Netherlands, 2010. [Google Scholar]
- Lu, S.; Li, Y.; Kong, X.; Pang, B.; Chen, Y.; Zheng, S.; Sun, L. A review of PCM energy storage technology used in buildings for the global warming solution. In Energy Solutions to Combat Global Warming; Zhang, X., Dincer, I., Eds.; Springer International Publishing: Cham, Switzerland, 2017; Volume 336, pp. 611–644. [Google Scholar] [CrossRef]
- Khudhair, A.M.; Farid, M.M. A review on energy conservation in building applications with thermal storage by latent heat using phase change materials. Energy Convers. Manag. 2004, 45, 263–275. [Google Scholar] [CrossRef]
- Hauer, A.; Mehling, H.; Schossig, P.; Yamaha, M.; Cabeza, L.F.; Martin, V.; Setterwall, F. International Energy Agency Implementing Agreement on Energy Conservation through Energy Storage Annex 17 ‘Advanced Thermal Energy Storage through Phase Change Materials and Chemical Reactions-Feasibility Studies and Demonstration Projects’ Final Report; International Energy Agency: Paris, France, 2005. [Google Scholar]
- Zhou, G.; Zhang, Y.; Wang, X.; Lin, K.; Xiao, W. An assessment of mixed type PCM-gypsum and shape-stabilized PCM plates in a building for passive solar heating. Sol. Energy 2007, 81, 1351–1360. [Google Scholar] [CrossRef]
- Fokaides, P.A.; Christoforou, E.; Ilic, M.; Papadopoulos, A. Performance of a Passive House under subtropical climatic conditions. Energy Build. 2016, 133, 14–31. [Google Scholar] [CrossRef]
- Diaconu, B.M.; Cruceru, M. Novel concept of composite phase change material wall system for year-round thermal energy savings. Energy Build. 2010, 42, 1759–1772. [Google Scholar] [CrossRef]
- Mathieu-Potvin, F.; Gosselin, L. Thermal shielding of multilayer walls with phase change materials under different transient boundary conditions. Int. J. Therm. Sci. 2009, 48, 1707–1717. [Google Scholar] [CrossRef]
- Regin, A.F.; Solanki, S.; Saini, J. Heat transfer characteristics of thermal energy storage system using PCM capsules: A review. Renew. Sustain. Energy Rev. 2008, 12, 2438–2458. [Google Scholar] [CrossRef]
- Akgün, M.; Aydın, O.; Kaygusuz, K. Experimental study on melting/solidification characteristics of a paraffin as PCM. Energy Convers. Manag. 2007, 48, 669–678. [Google Scholar] [CrossRef]
- Hawes, D.; Feldman, D.; Banu, D. Latent heat storage in building materials. Energy Build. 1993, 20, 77–86. [Google Scholar] [CrossRef]
- Souayfane, F.; Fardoun, F.; Biwole, P.H. Phase change materials (PCM) for cooling applications in buildings: A review. Energy Build. 2016, 129, 396–431. [Google Scholar] [CrossRef]
- Zalba, B.; Marín, J.M.; Cabeza, L.F.; Mehling, H. Review on thermal energy storage with phase change: Materials, heat transfer analysis and applications. Appl. Therm. Eng. 2003, 23, 251–283. [Google Scholar] [CrossRef]
- Lin, X.; Jia, S.; Liu, J.; Wang, W.; Cao, H.; Guo, X.; Sun, W. Fabrication of thermal energy storage wood based on graphene aerogel encapsulated polyethylene glycol as phase change material. Mater. Res. Express 2020, 7, 095503. [Google Scholar] [CrossRef]
- Athienitis, A.K.; Liu, C.; Hawes, D.; Banu, D.; Feldman, D. Investigation of the thermal performance of a passive solar test-room with wall latent heat storage. Build. Environ. 1997, 32, 405–410. [Google Scholar] [CrossRef]
- Li, H.; Liu, X.; Fang, G. Preparation and characteristics of n-nonadecane/cement composites as thermal energy storage materials in buildings. Energy Build. 2010, 42, 1661–1665. [Google Scholar] [CrossRef]
- Hadjieva, M.; Stoykov, R.; Filipova, T. Composite salt-hydrate concrete system for building energy storage. Renew. Energy 2000, 19, 111–115. [Google Scholar] [CrossRef]
- Zhou, D.; Zhao, C.Y.; Tian, Y. Review on thermal energy storage with phase change materials (PCMs) in building applications. Appl. Energy 2012, 92, 593–605. [Google Scholar] [CrossRef]
- Cunha, S.; Leite, P.; Aguiar, J. Characterization of Innovative Mortars with Direct Incorporation of Phase Change Materials. J. Energy Storage 2020, 30, 101439. [Google Scholar] [CrossRef]
- Boussaba, L.; Lefebvre, G.; Makhlouf, S.; Grados, A.; Royon, L. Investigation and Properties of a Novel Composite bio-PCM to Reduce Summer Energy Consumptions in Buildings of Hot and Dry Climates. Sol. Energy 2020, 214, 119–130. [Google Scholar] [CrossRef]
- Akeiber, H.; Nejat, P.; Majid, M.Z.A.; Wahid, M.A.; Jomehzadeh, F.; Famileh, I.Z.; Calautit, J.K.; Hughes, B.R.; Zaki, S.A. A Review on Phase Change Material (PCM) for Sustainable Passive Cooling in Building Envelopes. Renew. Sustain. Energy Rev. 2016, 60, 1470–1497. [Google Scholar] [CrossRef]
- Zhang, Y.; Zhou, G.; Lin, K.; Zhang, Q.; Di, H. Application of latent heat thermal energy storage in buildings: State-of-the-art and outlook. Build. Environ. 2007, 42, 2197–2209. [Google Scholar] [CrossRef]
- Huang, M.; Eames, P.; Hewitt, N. The application of a validated numerical model to predict the energy conservation potential of using phase change materials in the fabric of a building. Sol. Energy Mater. Sol. Cells 2006, 90, 1951–1960. [Google Scholar] [CrossRef]
- Li, F.; Wang, X.; Wu, D. Fabrication of multifunctional microcapsules containing n-eicosane core and zinc oxide shell for low-temperature energy storage, photocatalysis, and antibiosis. Energy Convers. Manag. 2015, 106, 873–885. [Google Scholar] [CrossRef]
- Alghamdi, M.S.; Beach, T.H.; Rezgui, Y. Reviewing the effects of deploying building information modelling (BIM) on the adoption of sustainable design in Gulf countries: A case study in Saudi Arabia. City Territ. Archit. 2022, 9, 18. [Google Scholar] [CrossRef]
- Raja, I.A.; Nicol, J.F.; McCartney, K.J.; Humphreys, M.A. Thermal comfort: Use of controls in naturally ventilated buildings. Energy Build. 2001, 33, 235–244. [Google Scholar] [CrossRef]
- Cui, Y.; Xie, J.; Liu, J.; Wang, J.; Chen, S. A review on phase change material application in building. Adv. Mech. Eng. 2017, 9, 1687814017700828. [Google Scholar] [CrossRef]
- Felimban, A.; Prieto, A.; Knaack, U.; Klein, T.; Qaffas, Y. Assessment of current energy consumption in residential buildings in Jeddah, Saudi Arabia. Buildings 2019, 9, 163. [Google Scholar] [CrossRef]
- Kuznik, F.; David, D.; Johannes, K.; Roux, J.-J. A review on phase change materials integrated in building walls. Renew. Sustain. Energy Rev. 2010, 15, 379–391. [Google Scholar] [CrossRef]
- Dafalla, M.A.; Al Shuraim, M.I. Efficiency of polystyrene insulated cement blocks in arid regions. Int. J. GEOMATE 2017, 13, 35–38. [Google Scholar] [CrossRef]
- Kosny, J.; Shukla, N.; Fallahi, A. Cost Analysis of Simple Phase Change Material-Enhanced Building Envelopes in Southern U.S. Climates; Building Technologies Program, U.S. Department of Energy, DOE/GO-102013-3692; National Renewable Energy Lab. (NREL): Golden, CO, USA, 2013.
- Marani, A.; Madhkhan, M. Thermal performance of concrete sandwich panels incorporating phase change materials: An experimental study. J. Mater. Res. Technol. 2021, 12, 760–775. [Google Scholar] [CrossRef]
- Kheradmand, M.; Vicente, R.; Azenha, M.; de Aguiar, J.L. Influence of the incorporation of phase change materials on temperature development in mortar at early ages: Experiments and numerical simulation. Constr. Build. Mater. 2019, 225, 1036–1051. [Google Scholar] [CrossRef]
- Frahat, N.B.; Amin, M.; Heniegal, A.M.; Ibrahim, O.M.O. Optimizing microencapsulated PCM ratios of sustainable cement mortar for energy savings in buildings. Constr. Build. Mater. 2023, 391, 131844. [Google Scholar] [CrossRef]
- Wang, X.; Yu, H.; Li, L.; Zhao, M. Research on temperature dependent effective thermal conductivity of composite-phase change materials (PCMs) wall based on steady-state method in a thermal chamber. Energy Build. 2016, 126, 408–414. [Google Scholar] [CrossRef]
- Marani, A. Hydration Kinetics, Microstructure, and Mechanical Strength Development of Cement-Based Composites Incorporating Phase Change Materials. Electronic Thesis and Dissertation Repository. Ph.D. Thesis, The University of Western Ontario, London, ON, Canada, 2022. Available online: https://ir.lib.uwo.ca/etd/8617 (accessed on 7 July 2022).














| Components | Thermal Conductivity (W/m·K) |
|---|---|
| PCM | 0.1–0.3 |
| Gypsum | 0.314 |
| Cement | 0.874 |
| Components | Amount | Percentage |
|---|---|---|
| Water | 2 kg | 0.44 |
| Gypsum | 1.5 kg | 0.33 |
| PCM | 1 kg | 0.22 |
| Components | Amount | Percentage |
|---|---|---|
| Sand | 3.5 kg | 0.53 |
| Cement | 1.75 kg | 0.27 |
| PCM | 1.32 kg | 0.20 |
| Zone | Chamber | Tf | Ti | Heat (kJ) | Heat Stored (+) or Released (−) in the PCM 43 (kJ) |
|---|---|---|---|---|---|
| I | Control | 49.10 | 35.10 | 1.08 | +0.46 |
| PCM | 43.10 | 35.10 | 0.62 | ||
| II | Control | 39.80 | 49.10 | 0.72 | +0.46 |
| PCM | 39.80 | 43.10 | 0.26 | ||
| III | Control | 33.90 | 39.80 | 0.46 | −0.14 |
| PCM | 35.70 | 39.80 | 0.32 | ||
| IV | Control | 36.10 | 33.90 | 0.17 | −0.14 |
| PCM | 36.10 | 35.70 | 0.03 | ||
| Net heat saved in each cycle | 0.65 |
| Zone | Chamber | Tf | Ti | Heat kJ | Heat Stored (+) or Released (−) in the PCM 37 (kJ) |
|---|---|---|---|---|---|
| I | No PCM | 49.10 | 36.60 | 0.97 | +0.17 |
| PCM | 46.90 | 36.60 | 0.80 | ||
| II | No PCM | 41.00 | 49.10 | 0.63 | +0.17 |
| PCM | 41.00 | 46.90 | 0.46 | ||
| III | No PCM | 33.90 | 41.00 | 0.55 | −0.09 |
| PCM | 35.10 | 41.00 | 0.46 | ||
| IV | No PCM | 36.10 | 33.90 | 0.17 | −0.09 |
| PCM | 36.10 | 35.10 | 0.08 | ||
| Net heat saved in each cycle | 0.15 |
| Zone | Chamber | Tf | Ti | Heat kJ | Heat Stored (+) or Released (−) in the PCM 43+cement (kJ) |
|---|---|---|---|---|---|
| I | No PCM | 49.30 | 34.90 | 1.11 | 0.40 |
| PCM | 44.10 | 34.90 | 0.71 | ||
| II | No PCM | 41.70 | 49.30 | 0.59 | 0.40 |
| PCM | 41.70 | 44.10 | 0.19 | ||
| III | No PCM | 34.90 | 41.70 | 0.53 | −0.33 |
| PCM | 39.20 | 41.70 | 0.19 | ||
| IV | No PCM | 33.50 | 34.90 | 0.11 | −0.22 |
| PCM | 35.00 | 39.20 | 0.33 | ||
| V | No PCM | 35.60 | 33.50 | 0.16 | −0.12 |
| PCM | 35.60 | 35.00 | 0.05 | ||
| Net heat saved in each cycle | 0.14 |
| Zone | Chamber | Tf | Ti | Heat kJ | Heat Stored (+) or Released (−) in the PCM 43+gypsum (kJ) |
|---|---|---|---|---|---|
| I | No PCM | 49.20 | 37.00 | 0.94 | 0.15 |
| PCM | 47.20 | 37.00 | 0.79 | ||
| II | No PCM | 41.30 | 49.20 | 0.61 | 0.15 |
| PCM | 41.30 | 47.20 | 0.46 | ||
| III | No PCM | 34.20 | 41.30 | 0.55 | −0.07 |
| PCM | 35.10 | 41.30 | 0.48 | ||
| IV | No PCM | 36.90 | 34.20 | 0.21 | −0.07 |
| PCM | 36.90 | 35.10 | 0.14 | ||
| Net heat saved in each cycle | 0.17 |
| Performance | Cement–PCM Composite | Gypsum–PCM Composite | % Improvement (Cement Composite) |
|---|---|---|---|
| Heat storage during the day | 0.8 kJ | 0.3 kJ | 63% |
| Temperature reduction period/day | 16 h | 12 h | 25% |
| Maximum temperature reduction | 5.2 °C | 2 °C | 62% |
Disclaimer/Publisher’s Note: The statements, opinions and data contained in all publications are solely those of the individual author(s) and contributor(s) and not of MDPI and/or the editor(s). MDPI and/or the editor(s) disclaim responsibility for any injury to people or property resulting from any ideas, methods, instructions or products referred to in the content. |
© 2024 by the authors. Licensee MDPI, Basel, Switzerland. This article is an open access article distributed under the terms and conditions of the Creative Commons Attribution (CC BY) license (https://creativecommons.org/licenses/by/4.0/).
Share and Cite
Alrashdan, A.; Ghaleb, A.M.; Ahmad, K.H.; Daoud, A.N. Integration of Phase Change Materials in Service Areas of Building Envelopes for Improved Thermal Performance: An Experimental Study in Saudi Arabia. Buildings 2024, 14, 904. https://doi.org/10.3390/buildings14040904
Alrashdan A, Ghaleb AM, Ahmad KH, Daoud AN. Integration of Phase Change Materials in Service Areas of Building Envelopes for Improved Thermal Performance: An Experimental Study in Saudi Arabia. Buildings. 2024; 14(4):904. https://doi.org/10.3390/buildings14040904
Chicago/Turabian StyleAlrashdan, Abdalla, Atef M. Ghaleb, Khalid Haj Ahmad, and Abdel Naser Daoud. 2024. "Integration of Phase Change Materials in Service Areas of Building Envelopes for Improved Thermal Performance: An Experimental Study in Saudi Arabia" Buildings 14, no. 4: 904. https://doi.org/10.3390/buildings14040904
APA StyleAlrashdan, A., Ghaleb, A. M., Ahmad, K. H., & Daoud, A. N. (2024). Integration of Phase Change Materials in Service Areas of Building Envelopes for Improved Thermal Performance: An Experimental Study in Saudi Arabia. Buildings, 14(4), 904. https://doi.org/10.3390/buildings14040904

