Experimental Study on CO2 and Radon Mitigations in an Apartment Using a Mechanical Ventilation System
Abstract
1. Introduction
2. Materials and Methods
2.1. Research Sequence
- Preliminary test for understanding the characteristics of experimental space
- 2.
- Determination of experimental cases of air change rate
- 3.
- Survey for traditional and achievable levels of indoor CO2 and radon
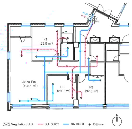
2.2. Information on Subject Space and Measurements of Indoor Pollutants
2.3. Survey and Preliminary Test for Experimental Setup Conditions
2.3.1. Indoor CO2 Level
2.3.2. Indoor Radon in Dwellings
2.3.3. Calculating Removal Rates
3. Results
3.1. Airtightness and Air Infiltration
3.2. Removal of Indoor CO2
3.3. Removal of Indoor Radon
4. Discussion
5. Conclusions
- As a result of evaluating the air permeability of the subject space to be tested according to the ISO 9972 fan pressurization method, the general airtight performance of Korean apartments was evaluated according to existing research.
- The main experimental conditions, air change rate per hour, and indoor air pollutant concentrations (target and achievable) were determined using statistical data and previous surveys. Every batch of the experiment was started at an indoor concentration of 3000 ppm CO2 and nearly 148 Bq/m3 radon, and then a mechanical ventilation system was operated with an air change rate of 0.0 ACH, 0.5 ACH, 1.0 ACH, 1.5 ACH, and 2.0 ACH with all doors and windows closed until the concentration reached 1000 ppm CO2 and 20 Bq/m3 radon.
- Because of the excellent airtightness of the subject space, the indoor CO2 and radon were barely removed without ventilation. The indoor CO2 concentration met the mandatory standard (1000 ppm) after more than ten hours, despite excluding emission activities. In the case of radon, the reduction due to infiltration and radioactive decay was insignificant, and the base level in an unventilated indoor area reached approximately 100 Bq/m3, which is still considerable.
- The removal rate of indoor CO2 significantly improved when the ventilation volume increased. Under simultaneously ventilated conditions, indoor CO2 levels declined to 1000 ppm almost linearly within 1–3 h at air change rates of 0.5 to 2.0 ACH. As a result of this study, when the level of indoor CO2 exceeded 3000 ppm, an air change rate of 0.5 ACH, legally recommended by the Korean government, should be maintained for at least three hours, even in the absence of additional emissions.
- The indoor radon could not be effectively controlled within a short period with the legally recommended ventilation air volume of 0.5 ACH, and it was possible to lower it to the level of 20 Bq/m3 only when the air change rate was 1.0 ACH or higher. At 1.5 ACH and 2.0 ACH, indoor radon concentrations did not increase for a few hours after the mechanical ventilation system stopped in this subject space. As the mechanical ventilation system operated continuously, the indoor radon was removed at a similar outdoor concentration, and over 75% removal rates were obtained within six hours.
Author Contributions
Funding
Data Availability Statement
Conflicts of Interest
References
- Ghaffarianhoseini, A.; AlWaer, H.; Omrany, H.; Ghaffarianhoseini, A.; Alalouch, C.; Clements-Croome, D.; Tookey, J. Sick building syndrome: Are we doing enough? Archit. Sci. Rev. 2018, 61, 99–121. [Google Scholar] [CrossRef]
- Finnegan, M.J.; Pickering, C.A.; Burge, P.S. The sick building syndrome: Prevalence studies. Br. Med. J. (Clin. Res. Ed.) 1984, 289, 1573–1575. [Google Scholar] [CrossRef] [PubMed]
- World Health Organization (WHO). Household Air Pollution. Available online: https://www.who.int/news-room/fact-sheets/detail/household-air-pollution-and-health (accessed on 31 January 2023).
- World Health Organization (WHO). WHO Guidelines for Indoor Air Quality: Selected Pollutants; World Health Organization: Geneva, Switzerland, 2010.
- Kempton, L.; Daly, D.; Kokogiannakis, G.; Dewsbury, M. A rapid review of the impact of increasing airtightness on indoor air quality. J. Build. Eng. 2022, 57, 104798. [Google Scholar] [CrossRef]
- Hernandez, G.; Wallis, S.L.; Graves, I.; Narain, S.; Birchmore, R.; Berry, T.A. The effect of ventilation on volatile organic compounds produced by new furnishings in residential buildings. Atmos. Environ. X 2020, 6, 100069. [Google Scholar] [CrossRef]
- Jones, A.P. Indoor air quality and health. Atmos. Environ. 1999, 33, 4535–4564. [Google Scholar] [CrossRef]
- Kelly, F.J.; Fussell, J.C. Improving indoor air quality, health and performance within environments where people live, travel, learn and work. Atmos. Environ. 2019, 200, 90–109. [Google Scholar] [CrossRef]
- Afshari, A.; Ekberg, L.; Forejt, L.; Mo, J.; Rahimi, S.; Siegel, J.; Chen, W.; Wargocki, P.; Zurami, S.; Zhang, J. Electrostatic precipitators as an indoor air cleaner—A literature review. Sustainability 2020, 12, 8774. [Google Scholar] [CrossRef]
- Cheek, E.; Guercio, V.; Shrubsole, C.; Dimitroulopoulou, S. Portable air purification: Review of impacts on indoor air quality and health. Sci. Total Environ. 2021, 766, 142585. [Google Scholar] [CrossRef]
- Zhang, Y.; Mo, J.; Li, Y.; Sundell, J.; Wargocki, P.; Zhang, J.; Little, J.C.; Corsi, R.; Deng, Q.; Leung, M.H.K.; et al. Can commonly-used fan-driven air cleaning technologies improve indoor air quality? A literature review. Atmos. Environ. 2011, 45, 4329–4343. [Google Scholar] [CrossRef]
- Azuma, K.; Kagi, N.; Yanagi, U.; Osawa, H. Effects of low-level inhalation exposure to carbon dioxide in indoor environments: A short review on human health and psychomotor performance. Environ. Int. 2018, 121, 51–56. [Google Scholar] [CrossRef] [PubMed]
- Zhang, X.; Wargocki, P.; Lian, Z. Physiological responses during exposure to carbon dioxide and bioeffluents at levels typically occurring indoors. Indoor Air 2017, 27, 65–77. [Google Scholar] [CrossRef]
- Seppänen, O.A.; Fisk, W.J.; Mendell, M.J. Association of ventilation rates and CO2 concentrations with health and other responses in commercial and institutional buildings. Indoor Air 1999, 9, 226–252. [Google Scholar] [CrossRef] [PubMed]
- Myhrvold, A.N.; Olsen, E.; Lauridsen, O. Indoor environment in schools–pupils health and performance in regard to CO2 concentrations. Indoor Air 1996, 96, 369–371. [Google Scholar]
- Lim, W.C. Literature review of the effect of the carbon dioxide concentration in classroom air on the students learning performance. J. Environ. Educ. 2015, 28, 134–145. [Google Scholar]
- International Agency for Research on Cancer (IARC). Man-Made Mineral Fibres and Radon. In IARC Monographs on the Evaluation of the Carcinogenic Risks to Humans; IARC: Lyon, France, 1988; Volume 43. [Google Scholar]
- Dorizas, P.V.; Assimakopoulos, M.N.; Helmis, C.; Santamouris, M. An integrated evaluation study of the ventilation rate, the exposure and the indoor air quality in naturally ventilated classrooms in the Mediterranean region during spring. Sci. Total Environ. 2015, 502, 557–570. [Google Scholar] [CrossRef] [PubMed]
- Madureira, J.; Paciência, I.; Rufo, J.; Severo, M.; Ramos, E.; Barros, H.; de Oliveira Fernandes, E. Source apportionment of CO2, PM10 and VOCs levels and health risk assessment in naturally ventilated primary schools in Porto, Portugal. Build. Environ. 2016, 96, 198–205. [Google Scholar] [CrossRef]
- Challoner, A.; Gill, L. Indoor/outdoor air pollution relationships in ten commercial buildings: PM2.5 and NO2. Build. Environ. 2014, 80, 159–173. [Google Scholar] [CrossRef]
- Jung, C.; El Samanoudy, G. Mitigating Indoor Air Pollution in University Dormitory: The Need for Better Ventilation and Resident Awareness. Buildings 2023, 13, 1144. [Google Scholar] [CrossRef]
- Toftum, J.; Kjeldsen, B.U.; Wargocki, P.; Menå, H.R.; Hansen, E.M.; Clausen, G. Association between classroom ventilation mode and learning outcome in Danish schools. Build. Environ. 2015, 92, 494–503. [Google Scholar] [CrossRef]
- Gil-Baez, M.; Barrios-Padura, Á.; Molina-Huelva, M.; Chacartegui, R. Natural ventilation systems in 21st-century for near zero energy school buildings. Energy 2017, 137, 1186–1200. [Google Scholar] [CrossRef]
- Ben-David, T.; Waring, M.S. Impact of natural versus mechanical ventilation on simulated indoor air quality and energy consumption in offices in fourteen US cities. Build. Environ. 2016, 104, 320–336. [Google Scholar] [CrossRef]
- Stabile, L.; Dell’Isola, M.; Russi, A.; Massimo, A.; Buonanno, G. The effect of natural ventilation strategy on indoor air quality in schools. Sci. Total Environ. 2017, 595, 894–902. [Google Scholar] [CrossRef]
- Ye, W.; Gao, J.; Zhang, X.; Yu, C.W. Studies of relationship between ventilation, pollution exposure and environmental health of buildings. Indoor Built Environ. 2017, 26, 147–151. [Google Scholar] [CrossRef]
- Almeida, R.M.; Pinto, M.; Pinho, P.G.; de Lemos, L.T. Natural ventilation and indoor air quality in educational buildings: Experimental assessment and improvement strategies. Energy Effic. 2017, 10, 839–854. [Google Scholar] [CrossRef]
- Hu, J.; Yang, G.; Hegedűs, M.; Iwaoka, K.; Hosoda, M.; Tokonami, S. Numerical modeling of the sources and behaviors of 222Rn, 220Rn and their progenies in the indoor environment—A review. J. Environ. Radioact. 2018, 189, 40–47. [Google Scholar] [CrossRef]
- Chauhan, N.; Chauhan, R.P. Active-passive measurements and CFD based modelling for indoor radon dispersion study. J. Environ. Radioact. 2015, 144, 57–61. [Google Scholar] [CrossRef]
- Akbari, K.; Mahmoudi, J.; Ghanbari, M. Influence of indoor air conditions on radon concentration in a detached house. J. Environ. Radioact. 2013, 116, 166–173. [Google Scholar] [CrossRef]
- Ministry of Land, Infrastructure and Transport (MOLIT). Enforcement Degree of the Building Act, Chapter VII—Article 87—Principles of Installation of Building Service, Presidential Decree No. 31986. Available online: https://elaw.klri.re.kr/kor_service/lawView.do?hseq=59594&lang=ENG&joseq=JO0087000 (accessed on 23 November 2022).
- Ministry of Land, Infrastructure and Transport (MOLIT). Research for Establishment of Ventilation Facility Installation and Maintenance Standards; Policy Report; MOLIT: Seoul, Republic of Korea, 2016.
- Ministry of Environment (ME). Indoor Air Quality Control Act, Act No. 17326. Available online: https://elaw.klri.re.kr/kor_service/lawView.do?hseq=60420&lang=ENG (accessed on 16 December 2022).
- Ministry of Land, Infrastructure and Transport (MOLIT). Housing Act, Chapter II—Article 2—Definitions, Act np. 18856. Available online: https://elaw.klri.re.kr/kor_service/lawView.do?hseq=61456&lang=ENG (accessed on 10 September 2022).
- Shi, S.; Chen, C.; Zhao, B. Air infiltration rate distributions of residences in Beijing. Build. Environ. 2015, 92, 528–537. [Google Scholar] [CrossRef]
- Chen, C.; Zhao, B. Review of relationship between indoor and outdoor particles: I/O ratio, infiltration factor and penetration factor. Atmos. Environ. 2011, 45, 275–288. [Google Scholar] [CrossRef]
- ISO 9972:2015; Thermal Performance of Buildings—Determination of Air Permeability of Buildings—Fan Pressurization Method. International Organization for Standard (ISO): Geneva, Switzerland, 2020.
- Ministry of Environment (ME). Enforcement Degree of the Environmental Testing and Inspection Act, Chapter II—Article 6—Official Test Standards of Indoor Air Pollutants—Indoor Air Sampling and Evaluation Method, Act. No. 17326. Available online: https://elaw.klri.re.kr/kor_service/lawView.do?hseq=50366&lang=ENG (accessed on 16 December 2022).
- KS F 2278; Standard Test Method for Thermal Resistance for Windows and Doors. Korean Agency for Technology and Standards (KATS): Seoul, Republic of Korea, 2022.
- Hodgkinson, J.; Smith, R.; Ho, W.O.; Saffell, J.R.; Tatam, R.P. Non-dispersive infra-red (NDIR) measurement of carbon dioxide at 4.2 μm in a compact and optically efficient sensor. Sens. Actuators B Chem. 2013, 186, 580–588. [Google Scholar] [CrossRef]
- Statistics Korea (KOSTAT). 2019 Time Use Survey Results, Social Statistics Bureau Social Statistics Planning Division; Statistics Korea: Seoul, Republic of Korea, 2020.
- National Institute of Meteorological Science (NIMS). Report of Global Atmosphere Watch 2020; NIMS: Seogwipo-si, Republic of Korea, 2021.
- Sherman, M.H.; Modera, M.P. Comparison of measured and predicted infiltration using the LBL infiltration model. Proc. Meas. Air Leakage Build. 1986, 904, 325–347. [Google Scholar]
- National Institute of Environmental Research (NIER). Nationwide Survey (2017–2018) of Indoor Radon at Home in Korea, National. (In Korean with English Abstract). Available online: https://www.data.go.kr/en/data/15069041/fileData.do (accessed on 17 October 2022).
- The International Commission on Radiological Protection (ICRP). Radiological Protection against Radon Exposure; ICRP Publication 126, Ann. ICRP 43; ICRP: Stockholm, Sweden, 2014. [Google Scholar]
- Kim, Y.S.; Lee, C.M.; Kim, K.Y.; Jeon, H.J.; Kim, J.C.; Iida, T. Time series observations of atmospheric radon concentration in Seoul, Korea for an analysis of long-range transportation of air pollutants in the North-East Asia. J. Environ. Health Sci. 2007, 33, 283–292, (In Korean with English Abstract). [Google Scholar] [CrossRef]
- Song, J.M.; Bu, J.O.; Kim, W.H.; Kang, C.H.; Ko, H.J.; Chambers, S. Background level and time series variation of atmospheric radon concentrations at Gosan site in Jeju Island. J. Korean Soc. Atmos. Environ. 2017, 33, 174–183, (In Korean with English Abstract). [Google Scholar] [CrossRef]
- Chan, S.W.; Lee, C.W.; Tsui, K.C. Atmospheric radon in Hong Kong. J. Environ. Radioact. 2010, 101, 494–503. [Google Scholar] [CrossRef] [PubMed]
- Shaw, M.; Mueller, J.F. Time integrative passive sampling: How well do chemcatchers integrate fluctuating pollutant concentrations? Environ. Sci. Technol. 2009, 43, 1443–1448. [Google Scholar] [CrossRef] [PubMed]
- Howieson, S.G.; Sharpe, T.; Farren, P. Building tight–ventilating right? How are new air tightness standards affecting indoor air quality in dwellings? Build. Serv. Eng. Res. Technol. 2014, 35, 475–487. [Google Scholar] [CrossRef]
- Deng, Q.; Yang, X.; Zhang, J.S. Key factor analysis of VOC sorption and its impact on indoor concentrations: The role of ventilation. Build. Environ. 2012, 47, 182–187. [Google Scholar] [CrossRef]
- Moreno-Rangel, A.; Sharpe, T.; McGill, G.; Musau, F. Indoor air quality in Passivhaus dwellings: A literature review. Int. J. Environ. Res. Public Health 2020, 17, 4749. [Google Scholar] [CrossRef]
- Broderick, A.; Byrne, M.; Armstrong, S.; Sheahan, J.; Coggins, A.M. A pre and post evaluation of indoor air quality, ventilation, and thermal comfort in retrofitted co-operative social housing. Build. Environ. 2017, 122, 126–133. [Google Scholar] [CrossRef]
- United Nations Scientific Committee on the Effects of Atomic Radiation (UNSCEAR). Effects of Ionizing Radiation. In UNSCEAR 2006 Report to the General Assembly; UNSCEAR: New York, NY, USA, 2008; Volume II: Scientific Annexes C, D and E. United Nations. [Google Scholar]
- World Health Organization (WHO). WHO Handbook on Indoor Radon: A Public Health Perspective; World Health Organization: Geneva, Switzerland, 2009.
- Wrixon, A.D. New ICRP recommendations. J. Radiol. Prot. 2008, 28, 161. [Google Scholar] [CrossRef]
- The International Commission on Radiological Protection (ICRP). 1990 Recommendations of the International Commission on Radiological Protection; ICRP Publication 60, Ann. ICRP 21(1–3); ICRP: Stockholm, Sweden, 1991. [Google Scholar]
- Ben-David, T.; Wang, S.; Rackes, A.; Waring, M.S. Measuring the efficacy of HVAC particle filtration over a range of ventilation rates in an office building. Build. Environ. 2018, 144, 648–656. [Google Scholar] [CrossRef]
- Wang, J.; Meisenberg, O.; Chen, Y.; Karg, E.; Tschiersch, J. Mitigation of radon and thoron decay products by filtration. Sci. Total Environ. 2011, 409, 3613–3619. [Google Scholar] [CrossRef] [PubMed]
- Kim, M.K.; Baldini, L.; Leibundgut, H.; Wurzbacher, J.A.; Piatkowski, N. A novel ventilation strategy with CO2 capture device and energy saving in buildings. Energy Build. 2015, 87, 134–141. [Google Scholar] [CrossRef]









| Types of Houses | Mean | SD | Q10 | Q25 | Q50 | Q75 | Q90 | N |
|---|---|---|---|---|---|---|---|---|
| Detached house | 79.4 | 89.4 | 20.0 | 31.5 | 53.2 | 92.6 | 162.2 | 5745 |
| Multi-family house | 45.9 | 36.5 | 15.6 | 23.5 | 36.0 | 56.4 | 83.8 | 1496 |
| Nationwide | 72.4 | 82.5 | 18.7 | 29.2 | 48.5 | 84.2 | 144.7 | 7241 |
| Air Change Rate | (Case 0) 0.0 ACH | (Case 1) 0.5 ACH | (Case 2) 1.0 ACH | (Case 3) 1.5 ACH | (Case 4) 2.0 ACH |
|---|---|---|---|---|---|
| Calculated value | 455 min | 183 min | 92 min | 51 min | 46 min |
| Measured value (max.) | 701 min | 184 min | 109 min | 72 min | 54 min |
| Measured value (min.) | 610 min | 155 min | 91 min | 61 min | 47 min |
| Time of Ventilation (h) | (Case 0) 0.0 ACH | (Case 1) 0.5 ACH | (Case 2) 1.0 ACH | (Case 3) 1.5 ACH | (Case 4) 2.0 ACH |
|---|---|---|---|---|---|
| 0 | - | - | - | - | - |
| 1 | 4.1 | 23.5 | 30.4 | 39.7 | 60.2 |
| 2 | (2.1) | 44.8 | 48.6 | 58.1 | 70.8 |
| 3 | 7.5 | 51.9 | 66.7 | 68.2 | 82.8 |
| 4 | (4.5) | 61.2 | 76.0 | 72.1 | 89.1 |
| 5 | (0.1) | 72.5 | 78.7 | 77.6 | 83.6 |
| 6 | 6.9 | 76.5 | 77.6 | 77.5 | 84.8 |
| 7 | 11.6 | 77.5 | 81.7 | 78.1 | 85.4 |
| 8 | 21.5 | 74.7 | 81.7 | 78.7 | 86.6 |
| 9 | 14.5 | 76.4 | 75.4 | 77.8 | 83.4 |
Disclaimer/Publisher’s Note: The statements, opinions and data contained in all publications are solely those of the individual author(s) and contributor(s) and not of MDPI and/or the editor(s). MDPI and/or the editor(s) disclaim responsibility for any injury to people or property resulting from any ideas, methods, instructions or products referred to in the content. |
© 2023 by the authors. Licensee MDPI, Basel, Switzerland. This article is an open access article distributed under the terms and conditions of the Creative Commons Attribution (CC BY) license (https://creativecommons.org/licenses/by/4.0/).
Share and Cite
Jeong, J.; Cho, K. Experimental Study on CO2 and Radon Mitigations in an Apartment Using a Mechanical Ventilation System. Buildings 2023, 13, 1439. https://doi.org/10.3390/buildings13061439
Jeong J, Cho K. Experimental Study on CO2 and Radon Mitigations in an Apartment Using a Mechanical Ventilation System. Buildings. 2023; 13(6):1439. https://doi.org/10.3390/buildings13061439
Chicago/Turabian StyleJeong, Jinhee, and Kyungjoo Cho. 2023. "Experimental Study on CO2 and Radon Mitigations in an Apartment Using a Mechanical Ventilation System" Buildings 13, no. 6: 1439. https://doi.org/10.3390/buildings13061439
APA StyleJeong, J., & Cho, K. (2023). Experimental Study on CO2 and Radon Mitigations in an Apartment Using a Mechanical Ventilation System. Buildings, 13(6), 1439. https://doi.org/10.3390/buildings13061439

