Next Article in Journal
Low-Carbon Emission Demolition of an Existing Urban Bridge Based on SPMT Technology and Full Procedure Monitoring
Next Article in Special Issue
Additional Stress of Soil and Surface Settlement during Tunnel Shield Construction
Previous Article in Journal
Design Method and Impact Response of Energy-Consuming High-Fall Flexible Protection System for Construction
Previous Article in Special Issue
Projected Effects of a Deep Excavation Pit on the Existing Metro Tunnel and Findings of Geotechnical Monitoring: A Comparative Analysis
 
 
Font Type:
Arial Georgia Verdana
Font Size:
Aa Aa Aa
Line Spacing:
Column Width:
Background:
Article

Thermal Insulation, Antifreeze, and Anti-Drainage Technology for Tunnels in the Cold Area of Jinpen Bay

1
School of Highway, Chang’an University, Xi’an 710064, China
2
Inner Mongolia Transport Construction Engineering Quality Supervision Station, Hohhot 010000, China
3
Inner Mongolia Highway Group Limited Liability Company, Hohhot 010000, China
4
Liaoning Provincial Transportation Planning and Design Institute Co., Ltd., Shenyang 110000, China
*
Author to whom correspondence should be addressed.
Buildings 2023, 13(6), 1377; https://doi.org/10.3390/buildings13061377
Submission received: 18 April 2023 / Revised: 11 May 2023 / Accepted: 23 May 2023 / Published: 25 May 2023

Abstract

There are a large number of tunnels built in permafrost regions every year in China. When investigating the road tunnels that have been in operation in cold regions, it was found that most of these tunnels have various freezing damages. Therefore, in the design, construction, operation, and maintenance of tunnels in cold regions, there are still many technical problems that need to be solved urgently. Among them, the problems of heat preservation, anti-freezing, and anti-drainage are the key technical problems to determine whether the tunnels in cold regions are affected by freezing damage. The project was based on the completed highway tunnels in Inner Mongolia. Given a series of special problems faced by the construction and management of tunnels in cold regions, a large number of reference documents were consulted. This paper designed thermal insulation, antifreeze, and anti-drainage technology for tunnels in the cold area of Jinpen Bay. The research in this paper can effectively reduce the probability of the occurrence of tunnel freezing damage, ensure the safety of the long-term operation of the tunnel lining structure, and greatly reduce maintenance costs, which have good economic and social benefits.

1. Introduction

The permafrost area in China accounts for about 75% of the land area, of which permafrost and seasonally frozen soil account for 21% and 54% of the country’s total land area, respectively, and most of these areas are distributed in the western and northeastern regions [1]. In recent years, with rapid economic development, the demand for transportation infrastructure construction, especially road network improvement, has increased. It was urgent to build highways and railway tunnels in the northeastern and western regions of China to improve the economic development of the region.
Judging from the operating conditions of existing highway tunnels, the problem of freezing damage to drainage facilities and fire-fighting facilities already appeared at the beginning of construction and was universal to a certain extent [2]. Moreover, most areas in Northeast China are seasonally frozen soil areas. The temperature changes in seasonal permafrost areas, especially in winter, have brought more problems to the design and construction of tunnel engineering, as well as more problems and difficulties for later operation and maintenance [3]. Once frost damage occurs, it causes great safety hazards in traffic operation and vehicle driving and greatly increases the maintenance and operation costs of the tunnel. The number of tunnels built per year in cold regions in China is very large. When investigating the operating highway tunnels in cold regions, it was found that more than 80% of the tunnels in cold regions had various frost damage phenomena, of which 60% had leakage, and about 24% had problems such as peeling, cracking, collapse, and subsidence of lining concrete [4].
Research on the temperature field of tunnels in cold regions started from the permafrost in cold regions, and its basic theoretical research began in the former Soviet Union. Since the 1940s, the former Soviet Union used experimental research and theoretical calculation methods to study the temperature field of tunnels in cold regions [5]. In the late 1970s, the development of computer technology brought temperature field research into a stage of rapid development and that continues to this day [6]. The former Soviet Union adopted comprehensive waterproof and drainage measures (waterproof layer, drainage pipes in the lining, drainage ditches) to prevent icing and frost damage. Drainage measures were generally set outside the seasonal freezing range of rock formations [7]. When the freezing depth was quite large, then thermal insulation materials were used on the contact surface between the lining and the rock, or a thermal layer was added to the drainage facilities [8]. The drainage ditch was artificially heated with hot water or steam water. For the section where the lining was leaking, local heating was performed on the surface [9]. Tunnel seepage was not only a problem of waterproof and drainage engineering construction but also a loophole in management [10]. Therefore, to solve the waterproofing and drainage problem of the tunnel, we must adhere to the principle of prevention first, supplemented by remediation.
For long tunnels, service tunnels are usually provided parallel to the main tunnel, so that in winter, when the temperature is less than 0 °C, the outside air is heated to 2 °C by an electric heater that is installed near the shaft and is then passed through the ventilation shaft to the ventilation tunnel [11]. Norway adopted the measures of adding waterproof and antifreeze sheds to prevent frost damage [12]. At first, aluminum plates and asbestos plates were used as waterproof sheds, and later, plate members made of plastic foam sandwiched between aluminum plates, steel plates, or glass fiber-reinforced polyester plates were developed. Some tunnels were equipped with double-layer cold-proof doors. When the train approaches the tunnel, the automatic device opens the double-layer door to let the train pass and then closes the door. The United States uses insulated drainage systems to prevent frost damage [13]. Airtight microporous polyurethane material is made into a board, which is pasted on the rock or sewage lining surface. For the drainage system, insulation at the outlet of the drainage hole was adopted, the drainage ditch was insulated with foam material, the heating cable was placed in the drainage pipe, and other measures were taken [14]. France installed a partition wall panel in the tunnel to prevent the occurrence of tunnel freezing damage [15]. The back of the partition wall is made of polyethylene foam and the front is made of reinforced concrete. In Japan, two methods of thermal insulation and heating were used to solve the problem of freezing damage in tunnels [16]. The thermal insulation method includes installing thermal insulation material on the lining surface or between the primary support and the secondary lining. The heating method includes using electric heating or the warm-pipe method for freezing damage prevention and control for places with severe local freezing [17]. There is little research on the optimal design and reliability theory of tunnels in cold regions. In China, some scholars have deduced the formula for the optimal design of the thickness of the antifreeze insulation layer of water pipes in cold regions and have analyzed the reliability of the insulation performance of the insulation layer of the pipeline system [18]. However, their analysis did not consider the convective heat transfer of the fluid in the water pipe; thus, they cannot be directly applied to the optimal design and reliability analysis of the thermal insulation layer of tunnel engineering in cold regions [19].
The Jinpen Bay Tunnel is located in Jinpen Village, Jinpen Township, Chahar Right Wing Middle Banner, Ulanqab City, Inner Mongolia. After the tunnel was completed and opened to traffic, damage to the drainage system and fire protection system caused water leakage and freezing damage, which endangered traffic safety [20]. The project was based on the completed highway tunnels in Inner Mongolia. Because of a series of special problems faced by the construction and management of tunnels in cold regions, a large number of reference documents were consulted. According to the climate characteristics of cold regions in Inner Mongolia, the cold-proof design of highway tunnels in the cold area of Jinpen Bay was summarized and optimized, including lining structure, waterproof and drainage system, thermal insulation layer, expansion joint, inspection shaft, etc. The structural form of a utility tunnel for mountain tunnels was proposed. The research in this paper can effectively reduce the probability of the occurrence of tunnel freezing damage, ensure the safety of the long-term operation of the tunnel lining structure, and greatly reduce the maintenance cost, which has good economic and social benefits.

2. Drainage Design and Optimization

2.1. Design and Optimization of Drainage in the Tunnel

The waterproof and drainage technical measures for tunnel engineering in cold regions, especially in permafrost regions, were divided into two parts: inside and outside the tunnel. ① A general drainage ditch was set in the tunnel with complete permafrost, and its main function was to undertake a small amount of pore water and fissure water from the thawing and seepage of the surrounding rock of permafrost in the warm season. Gutters were set at the cutting section of the portal to prevent ice melt water from penetrating the cutting. ② Local permafrost tunnels were usually permafrost at the entrance and exit sections and non-permafrost at the middle section. The surrounding rock in the non-frozen section of the tunnel was generally water-bearing and had a perennial groundwater supply. The lower limit of permafrost in the inlet and outlet section was 8~10 m deeper than the tunnel floor.
Drainage design in the tunnel: An MF12 plastic blind ditch was arranged in the circumferential direction between the initial support and the waterproof board so that the water could be discharged along the circumferential pipe to the lining foot of the wall. The cross-section was punched to collect the catchment water of the annular blind ditch and the seepage of the contact surface between the primary branch and the flashing board, and then we used the transverse aqueduct to guide the water in the longitudinal drainage pipe to the central drainage ditch of the tunnel. The longitudinal spacing of the transverse aqueduct was generally 20 m. According to the predicted total water inflow of the tunnel, and according to the design rules of highway tunnels (JTG/T D70-2010 [21]), the central water ditch in the tunnel was obtained. The design radius was generally made of concrete flower tubes with an inner diameter of 400~600 mm. The water outlet of the central ditch adopted a buried thermal insulation water outlet.
Optimization of drainage design in the tunnel:
  • Encrypted ring blind groove
Between the annular blind ditch and the initial support and the flashing board, we collected groundwater infiltrated from the initial support to the flashing board and diverted it to the longitudinal drainage pipe. The circumferential blind ditch was the source of the drainage system. Design indicators mainly included material, cross-section, and longitudinal spacing. Generally, an MF12 annular plastic blind ditch is used. An MF12 plastic blind drain is a high-performance drainage material that can effectively resist the erosion of chemicals, such as acids and alkalis, can withstand certain mechanical forces, and that is not easily deformed or damaged, thus ensuring the long-term stable operation of the drainage system. The Code for Design of Highway Tunnels, Volume 1 Civil Engineering (JTG3370.1-2018 [22]) stipulated that the longitudinal spacing of a blind ditch should not be greater than 20 m. In the past design, the longitudinal spacing was generally 8 m. In order for the blind ditch to work effectively, it is recommended to take a length of 4 m for the newly designed tunnel (considering that the length of the formwork trolley is 8 m, with two for each formwork).
2.
Encrypt and deepen the lateral aqueduct
The lateral aqueduct is the channel through which the longitudinal drainage pipes at the bottom of the walls on both sides of the tunnel collect water to the central ditch, and it is one of the important components of the drainage system. Design indicators mainly include material, diameter, transverse slope, and longitudinal spacing. The transverse drainage pipe is generally not less than 100 mm in diameter, and the transverse slope was not less than 2%. Highway Tunnel Design Specifications-Volume 1 Civil Engineering (JTG 3370.1-2018 [22]) stipulated that the longitudinal spacing of the horizontal aqueducts was generally 30–50 m. In the past design, the longitudinal spacing was generally 25 m. Due to the construction situation, the lateral aqueducts were blocked, the bending failure was serious, and some tunnels even reached 70% failure. Given this situation, the longitudinal spacing of the horizontal aqueducts in the currently designed tunnels is generally 10 m. To ensure that the horizontal drainage pipes can work efficiently, it was recommended that the pair of newly designed tunnels be 4 m (considering that the length of the formwork trolley is 8 m, two for each formwork). Field tests showed that the low-temperature effect period of the horizontal drainage pipe was about 5.5 months, and the period below −4 °C reached 3.5 months. The negative temperature period was long, and the temperature was low, which increased the buried depth of the horizontal drainage ditch.
3.
Deepen the burial depth of the central ditch
The central ditch is the main channel for tunnel drainage. In general, there is only one central gutter in a single hole. Once blocked, the entire drainage system becomes ineffective or inefficient. Therefore, the smoothness of the central ditch is a prerequisite for the effective operation of the drainage system. The central water ditch is generally made of circular concreted flower tubes with holes perforated in the upper-half section. Past engineering experience believed that the water volume in winter was generally not large, and the possibility of groundwater filling the half section of the central water ditch was very small, as long as the center of the circle was located at the location of the tunnel. The area below the maximum freezing depth can meet the antifreeze requirements of the central ditch. After research, it was believed that tunnels were generally located in mountainous areas, with large topographic changes and large changes in the maximum freezing depth valued in the area. The maximum freezing depth data provided by the meteorological department may not match the maximum freezing depth of the tunnel location. The amount of groundwater was still relatively abundant, and it cannot be confirmed whether the drainage section does not exceed the semicircular section. Therefore, the current design requires all drainage sections to be below the maximum freezing depth.
When the depth of the inverted arch of the tunnel structure is limited and the maximum freezing depth cannot be met, a deep-buried central ditch is used within 150 m of the outlet end of the tunnel; the ditch lies below the inverted arch structure. Deepening the central water ditch should be adopted when the antifreeze protection level of the tunnel is Level 1 or Level 2 (Figure 1).
4.
Set up cold-proof drainage holes
This project was designed to concentrate the groundwater into the longitudinal drainage hidden pipes at the bottom of the left- and right-side walls, which then lead into the central drainage pipes of the tunnel. The optimal solution was to set up a cold-proof sluice hole at a sufficient depth below the tunnel. The cold-proof drainage tunnel was connected with the drainage system constructed by itself, and the drainage system was constructed outside the secondary lining of the upper tunnel to form a comprehensive and connected drainage system. The cold-proof drainage tunnel is adopted when the tunnel’s anti-freezing protection is Level 1.

2.2. Design and Optimization of External Drainage

The external drainage design of the tunnel includes the external extraction of the central drainage ditch, the drainage works at the top of the tunnel, and the surface waterproofing treatment of the potholes and valleys of the tunnel.
Top interception and drainage project: According to the topographic conditions of the tunnel, we determined whether it was necessary to set up an interception ditch to conduct drainage treatment of the surface water. The construction of the intercepting ditch should be completed before the construction of the opening to ensure smooth drainage.
Waterproofing treatment on the surface of tunnels and valleys: When there are potholes on the top of the tunnel, if there is a certain catchment upstream, it is easy to form groundwater recharge, and the tunnel waste can be used to backfill and form a certain drainage slope, and then conduct the drainage on the surface. The clay barrier prevents the rate of infiltration of surface water, allowing the surface water to flow away quickly. When there is a gully running across the top of the tunnel, a groundwater supply is also likely to be formed. Tunnel waste can be used to backfill and level the bottom of the ditch appropriately, and then a clay impermeable layer can be applied to the surface to prevent water seepage from the gully. An impermeable layer can be set up upstream of the gully. The edge of the layer is used as a water barrier to avoid the direct scouring of the clay water barrier by the catchment water flow.
Optimization of external drainage design:
  • Optimize the splicing method of central gutter pipes
In the previous design, the joints of the central water ditch outside the tunnel were spliced head-to-head, the joints were filled with asphalt-impregnated fluff, and the outside was wrapped with linoleum coated with hot asphalt. After investigation, it was found that the construction quality of the joints in some tunnels was poor, with staggered pipe joints, large joint spacing, unpainted asphalt, and wrapping, which caused filling to block part of the drainage section and cause poor drainage. Therefore, in the current design, the pipe joint of the central water ditch outside the tunnel was adjusted to the socket type, which is convenient for construction and made it easier to control construction quality (Figure 2).
2.
Optimization of the location and structure of the water outlet of the central ditch
The location of the water outlet of the central ditch should be set in a leeward, sunny, and unobstructed position, and thermal insulation measures should be taken. When selecting the location of the water outlet, a comprehensive comparison of multiple locations should be carried out, and full attention should be paid to the requirements of anti-freezing.
The outlet of the central ditch is the end structure where groundwater is discharged to the surface. Due to the process of water flowing into the surface drainage ditch, it directly comes into contact with the cold air and the frozen layer on the surface. Ice tends to move to the outlet. Once the outlet is blocked by ice, the tunnel drainage channel is blocked, and groundwater accumulates in the vertical drainage pipes and side walls, causing water seepage and freezing at the side walls and horizontal construction joints. Therefore, a thermal design must be carried out for the outlet of tunnels in cold regions.
We set up a buried thermal insulation water outlet; that is, the water outlet was buried and covered with a permeable layer of sand and gravel, covered with a cinder insulation layer, and covered with dry masonry rubble. The buried heat preservation water outlet can prevent cold air from directly entering the central water ditch and is provided with a cinder heat preservation layer, which can effectively slow down the speed of groundwater temperature drop.
After years of practice, it was found that the buried thermal insulation water outlet is a concealed project, and the construction quality is generally poor. Therefore, the current design adopted the retaining wall-type water outlet (Figure 3).
The deep-buried water ditch, cold-proof sluice tunnel, and underdrain outside the tunnel are provided with a thermal insulation water outlet for each anti-freeze protection level tunnel. The water outlet is made of a retaining wall type. Because of the height difference, even if ice is formed at the falling point, it will not easily block the water outlet, and the ice is easy to clean.

3. Tunnel Insulation and Frost Resistance Design and Optimization

3.1. Tunnel Insulation Design and Optimization

The application of thermal insulation materials in tunnel engineering in cold regions is an effective measure to reduce the freezing depth of surrounding rock and the melting depth of permafrost (rock). When the thermal insulation material is placed between the initial support and the secondary lining, it also acts as a stress buffer layer. Especially after the initial support, the lining layer and surrounding rock still have obvious rheological stress. The thermal insulation material can protect the secondary lining concrete from rheological stress to a certain exten to ensure the quality of concrete. Tunnel thermal insulation is mainly to add a thermal insulation layer. The specific methods include laying a thermal insulation layer on the waterproof board, laying a thermal insulation board on the inner contour of the lining, and adding a thermal insulation layer or thermal insulation facilities around the vertical and horizontal drainage pipes and the central water ditch.
  • Insulation design of lining structure
With the occurrence of tunnel freezing damage, the design considers setting the lining thermal insulation layer in an area with low temperature. Improving the strength of the lining layer so that the tunnel lining layer can resist the effect of in-situ stress and frost heaving without rupture is a common problem to be solved by tunnels in cold regions at home and abroad, especially in permafrost regions. The current solution includes the following: the design and calculation of the lining layer should not only consider the mountain pressure, but they should also take into account the strong frost-heaving force of water-bearing surrounding rock. The current design uses 50 mm for the full length of the tunnel arch, side wall to the full section of the cable trough. A thick polyurethane (PU) rigid polyurethane insulation board was used for insulation, and the surface of the insulation board was set with a 6 mm thick calcium silicate fireproof board.
The main steps of construction are as follows:
(1)
Before installing the insulation board, we checked the surface flatness, seepage, and water leakage of the secondary lining of the tunnel. The lining surface must be smooth and dry before installing the insulation board. If there is any problem, it should be dealt with in advance.
(2)
According to the size of the insulation board, we measured, laid out, and drilled holes on the surface of the second lining of the tunnel and installed expansion bolts.
(3)
After filling the U-groove of the keel with the insulation board, we fixed the keel with self-tapping screws; the extension direction of the keel was the same as the tunnel depth direction.
(4)
The PU rigid polyurethane thermal insulation board was embedded in the keel frame, and the thermal insulation boards were tightly connected. The two adjacent environmental thermal insulation boards were arranged in staggered seams; the thermal insulation boards must completely cover the secondary lining surface and have no void.
(5)
We fixed the fireproof board on the keel frame with self-tapping screws. When the insulation board was connected to the insulation board, we left a 2–3 mm expansion joint. A 25 mm wide expansion joint was left every 30 m along the entire construction surface along the tunnel depth.
(6)
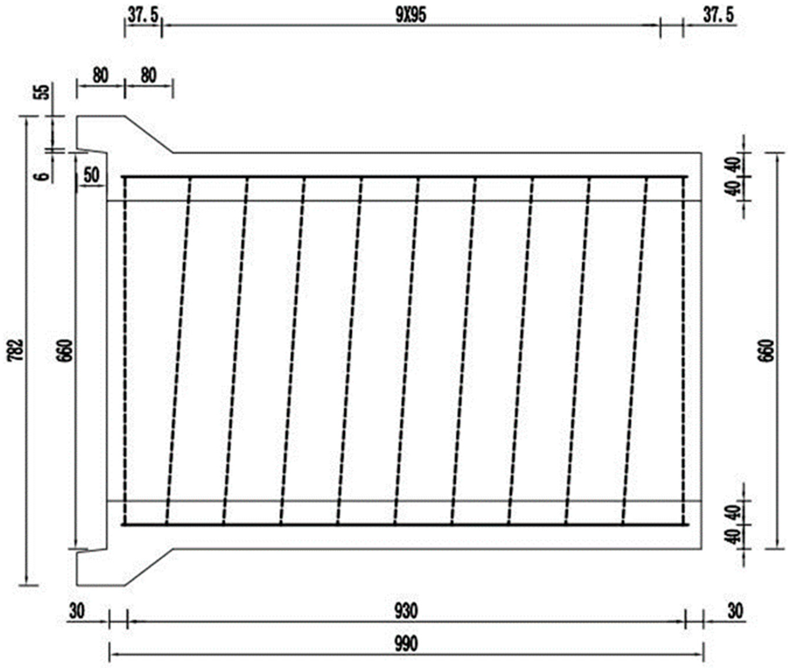
We used special putty and mesh belts to seal the gap between the fireproof boards. Each board seam should be completely closed and flat, and then the caulking joint should be polished and smooth; the width of the caulking line should be as consistent as possible (Figure 4).

3.2. Thermal Insulation Design and Optimization of Tunnel Auxiliary Trenches

(1)
Install insulation layer on vertical and horizontal drainage pipes.
The vertical and horizontal drainage pipes within a certain range from the opening were provided with perlite insulation layers (Figure 5). According to the climatic conditions of the area where the tunnel was located, as well as the terrain and orientation near the tunnel entrance, we determined whether it was necessary to set the length of the section.
The central ditch is the main channel of the tunnel drainage system, and thermal insulation measures were adopted in the ditch to prevent the water flow from freezing in winter. Insulation materials generally include coal slag, slag, asphalt glass wool, slag wool, foam plastic, etc.

3.3. Insulation Measures for the Water Outlet of the Central Ditch and Cable Heating

The water outlet of the central ditch generally adopts a buried thermal insulation outlet, using a sand-gravel layer as the permeable layer for the water outlet, coal slag as the thermal insulation material, and dry-laid rubble to protect the surface (Figure 6).
Wing walls were arranged at both ends of the outer side of the retaining wall. A reinforced concrete cover plate was arranged at the top of the wing wall; the ends were shielded by thermal insulation boards, and water openings were reserved at the bottom of the thermal insulation boards. However, the mouth of the retaining wall-type water outlet was directly in contact with the atmosphere, and the central water pipe in the section near the water outlet was connected to the atmosphere. Therefore, in the design, it was recommended to install MI cables for electric heating facilities in the central water ditch within 20 m of the direction of the water outlet.
It was also equipped with automatic and manual control switches used when the water outlet freezes (Figure 7). Mineral-insulated (MI) cables use single or multiple alloy heating wires as heating sources; high-purity, high-temperature, fused crystalline magnesium oxide as thermal insulators; and seamless continuous stainless steel or copper tubes as sheaths. The design and structure of the heating cable should be able to meet the requirements of point resistance, heat resistance, and mechanical force resistance to ensure reliable performance during normal use and no harm to the user and the surrounding environment.

3.4. Longitudinal Antifreeze Design and Optimization

At present, the longitudinal section anti-freezing design of the Inner Mongolia highway tunnel is still blank. Given the current situation, that the freezing damage of highway tunnels has occurred frequently in recent years, it is necessary to study the section’s anti-freezing design. At present, the opening section of railway tunnels in the northeast is generally selected as the cold protection section of 500 m. The secondary lining concrete of the 500 m cold-proof section of the tunnel opening where the thermal insulation layer is set is made of C40 reinforced concrete.
For the section 500 m away from the opening without a thermal insulation layer, the secondary lining concrete is C40 reinforced concrete, and the structural strengthening design also takes into account the effect of certain frost heave force. The main reinforcement in the circumferential direction is strengthened.

4. Analysis of Wind Speed Data in Hohhot End-Tunnel

The longitudinal direction of the Jinpen Bay Tunnel is east-west; the annual dominant wind direction is northwest, as shown in Table 1. This article used a hot wire anemometer, TSI 9535-A VelociCalc Air Velocity Meter. It was placed inside the tunnel to ensure that the measuring instrument was perpendicular to the airflow path inside the tunnel, to obtain accurate wind direction and speed information. We measured within a month and recorded daily wind speed values. Through data acquisition and data analysis, the average wind speed curve in the tunnel is shown in Figure 8, and the average temperature curve outside the tunnel is shown in Figure 9. According to the data statistics, the dominant wind direction of the tunnel was 315 degrees (northwest, NW) from January to July, while the tunnel was east-west, and the intersection angle with the horizontal line was 3°; thus, the angle between the dominant wind direction and the tunnel axis was 42°, and the wind direction was attributed to a comprehensive index of wind speed. Thus, the wind speed V entered the tunnel inner = Voutside* cos (42°). This formula is used in Table 1, comparing it with the temperature and giving the wind speed and temperature in the tunnel.
As can be seen from Table 1 and Figure 8, the wind speed in the tunnel in January and February each year was small, with an average wind speed of 0.99 m/s and 0.87 m/s, respectively. From March and April, the wind speed in the tunnel reached 1.4 m/s and 1.2 m/s. Over time, the wind speed in the tunnel gradually decreased and circulated in turn. Comparing this with the wind speed in the tunnel can provide some basic data for the ventilation of the tunnel and the air temperature and water temperature in the tunnel. As can be seen from Figure 9, the temperature outside the tunnel gradually increased with time. At the end of March, the average temperature outside the tunnel changed from negative to positive temperature, and then the temperature gradually increased with the month’s passage.

5. Changes in Atmospheric Pressure and Humidity over Time

One meteorological station was arranged in Hohhot City to monitor the temperature, wind direction, wind speed, atmospheric pressure, rainfall, and atmospheric humidity outside the tunnel. A GP2Y0A02YK0F digital pressure sensor was installed inside the meteorological station. The data from the pressure sensor were automatically read and sent to the data collection system of the meteorological station, which were then converted into pressure values. Through data collection and analysis, the curve of atmospheric pressure over time is shown in Figure 10.
As can be seen from Figure 10, the atmospheric pressure from December 2019 to July 2020 changed as follows: the average atmospheric pressure at this stage was 822.7 hpa, the minimum atmospheric pressure was 816.8 hpa, and the maximum atmospheric pressure was 825.4 hpa. The extreme pressure difference was 8.6 hpa.
The measurement of humidity used a SHT10 capacitive humidity sensor. The humidity sensor measured the humidity value in the air in real-time and sent it to the data collection system of the meteorological station and converted it into a humidity value. Figure 11 shows the curve of atmospheric humidity over time.
As can be seen from Figure 11, the changing pattern of atmospheric humidity from December 2019 to 19 July 2020 is as follows: from December 10 to early March 20, 60.5% (relative humidity, RH), 40.1% (RH) from mid-May, and 64.4% from mid-May to late July (RH), indicating that the atmospheric humidity was relatively low from March to May each year.

6. Study on Anti-Freezing Classification of Tunnels in Inner Mongolia

The thermal conductivity of conventional soil was 0.15 W/m K, while the thermal conductivity of frozen soil was generally between 0.5 and 2.5 W/m K. In the case of frozen soil, the temperature changes below the ground every 5 °C had an impact on the freezing depth of about 5 cm. Therefore, taking the main index of the coldest monthly average temperature and the maximum freezing depth as the auxiliary index, the cold degree was divided into four grades, according to one grade of 5 °C.
The groundwater condition in the tunnel was taken as the qualitative index, the tunnel water inflow was taken as the quantitative index, and the harm degree of groundwater to the tunnel was divided into four grades.
According to the cold degree of the tunnel site (Table 2) and the harm of groundwater (Table 3), the tunnel freezing damage was divided into level 1 (light freezing damage), level 2 (moderate freezing damage), and level 3 (severe freezing damage).
The frost damage of expressways and first-class highway tunnels in Inner Mongolia was divided into three grades: (Table 4)
Grade I freezing damage (severe freezing damage): red area, the score of freezing damage area is 6, 7, and 8.
Grade II freezing damage (moderate freezing damage): yellow area, with scores of 4 and 5.
Grade III freezing damage (slight freezing damage): green area, the score of freezing damage area is 1, 2 and 3.
According to the above-mentioned divisional study of tunnel frost damage, the frost damage conditions of highway tunnels, first-class highway tunnels, second-class, and below highway tunnels were divided into three levels of frost damage, first-class freezing damage (severe freezing damage), second-class freezing damage (moderate freezing damage), and third-class freezing damage (slight freezing damage). (Table 5).
According to the three-level frost damage zone, the three-level frost damage protection classification was carried out, as shown in Table 6.
In the follow-up study of the subject, according to the different meteorological and hydrological conditions in Inner Mongolia, the antifreeze zoning of the tunnel was discriminated, and then the antifreeze protection classification was deduced. According to the different antifreeze protection classifications, the design of the drainage system of the new tunnel, the management and maintenance of the drainage system of the existing tunnel, and the antifreeze design and maintenance of the tunnel water fire protection system were studied. Figure 12 shows the average minimum temperature values in Inner Mongolia from 2008 to 2018. The vertical axis represents the latitude of the Inner Mongolia region. The horizontal axis represents the longitude of the region. The color difference indicates the temperature difference.

7. Longitudinal Antifreeze Design and Optimization

At present, the frost resistance design of the Inner Mongolia expressway tunnel longitudinal sections is still blank. Because of the current situation, that frost damage to highway tunnels occurs from time to time in recent years, it is necessary to study the frost resistance design of sections. At present, the entrance section of railway tunnels in Northeast China generally selects 500 m as the cold protection section. Regardless of whether an insulation layer is set, frost heave force is considered to a certain extent. C40 reinforced concrete is used for the secondary lining concrete of the 500 m cold protection section of the tunnel portal with an insulation layer. The reinforcement of the secondary lining concrete of the cold protection section of the portal with an insulation layer is shown in Table 7.
For the section 500 m away from the portal without a thermal insulation layer, C40 reinforced concrete was used for the secondary lining, and a certain frost heave force was also considered for the structural strengthening design. In addition, considering the large temperature difference in winter and summer in Northeast China, which produces large tensile stress on the lining, the longitudinal distribution reinforcement of the lining within 500 m of the tunnel portal was optimized and adjusted to prevent the lining from tensile cracking and disease. The concrete grade and reinforcement of the secondary lining in the cold protection section of the portal without a temperature protection layer are shown in Table 8.

8. Analysis and Evaluation of Frost Resistance Grade of Lining Concrete in the Alpine Region

It was found through experimental research that when the freezing and thawing environment of cement concrete is D1, the service environment of concrete is a salt-free environment with less than 10 freezing and thawing times per year and moderate water saturation. After 200 freezing and thawing cycles, the mass loss of concrete is 5.8% and the relative dynamic elastic modulus loss is 58.2%. At this time, the mass loss of concrete reaches 5% or the relative dynamic elastic modulus loss of concrete reaches 60%, and the concrete is damaged. When the freezing and thawing environment of cement concrete is D3, the service environment of concrete is 60–120 times freezing and thawing every year, and it is a moderately saturated salt-free environment. After 200 cycles of freezing and thawing, the mass loss of concrete is 3.3%, and the relative dynamic elastic modulus loss is 35.6%. The concrete is not damaged. When the concrete passes 300 cycles of freezing and thawing, the mass loss is 4.8%, and the relative dynamic elastic modulus loss is 62.5%, At this time, the mass loss of concrete reaches 5%, or the relative dynamic elastic modulus loss of concrete reaches 60%, and the concrete is damaged. When the freeze-thaw environment of cement concrete is D7, the service environment of concrete is a salt-free environment with more than 180 freeze-thaw times per year and moderate water saturation. After 300 freeze-thaw cycles, the mass loss of concrete is 3.4%, and the relative dynamic elastic modulus loss is 39.6%. The concrete is not damaged. After 350 freeze-thaw cycles, the mass loss of concrete is 4.2%, and the relative dynamic elastic modulus loss is 50.5%, The concrete is not damaged. After 450 freeze-thaw cycles, the mass loss of concrete is 5.2% and the relative dynamic elastic modulus loss is 62.4%. At this time, the mass loss of concrete reaches 5% or the relative dynamic elastic modulus loss of concrete reaches 60%, and the concrete is damaged.
According to the test summary, relevant documents, and construction specifications, the impermeability grade of secondary lining concrete shall not be lower than P8. The frost resistance grade of the secondary lining concrete shall be comprehensively determined according to the freeze-thaw environment and the designed service life of the structure. The frost resistance grade of cement concrete materials for tunnels in cold regions can be divided into eight grades, which are determined according to Table 9.

9. Conclusions

Given a series of special problems faced by the construction and management of tunnels in cold regions, a large number of reference documents were consulted. We designed the thermal insulation, antifreeze, and anti-drainage technology for tunnels in the cold area of Jinpen Bay. The results are as follows:
(1)
According to the climatic characteristics of the cold region of Inner Mongolia, the cold-proof design of highway tunnels was summarized and optimized, including lining structure, waterproof and drainage system, thermal insulation layer, expansion joints, inspection wells, etc., and the structure of the common ditch of mountain tunnels was proposed.
(2)
Tunnel builders, designers, constructors, and supervisors generally do not pay enough attention to the tunnel drainage system. Defects in waterproofing and drainage materials and construction quality defects cause the drainage system to be imperfect, leading to tunnel leakage problems, which can cause problems in cold regions. Freezing damage in winter has become the most difficult disease for tunnel operators. It is the goal of future efforts to implement the concept of the grading and protection of frost damage, to take active heating in necessary locations and periods, to improve the antifreeze performance of drainage systems, and to strictly control drainage materials and overall construction quality.
(3)
The temperature value at the top of the inspection well is closely related to the seasonal temperature change, which gradually increases with the temperature increase, and it gradually decreases with the temperature decrease. In the early days of December every year, the top of the inspection well changed from positive temperature to negative temperature, and the temperature reached a very low value in the middle of February of the following year, and then the temperature gradually increased. In the middle of April, the temperature turned from negative temperature to positive temperature, and the negative temperature lasted about 4.5 months. The temperature period below −4 °C occurred from late December to early March of the following year, which lasted for three months. The influence cycle of low temperature was long, and the temperature reached the freezing threshold; thus, there is a risk of freezing damage. It can be comprehensively considered according to the longitudinal slope of the central drainage ditch, the water flow rate in the inspection well, and the insulation measures, and targeted measures can be taken in combination with the actual site.
(4)
Annual angle variation of wind direction inside the tunnel: The annual leading wind direction is 315°~340° (NW), and its probability exceeds 30% of the annual wind direction probability; thus, it is the dominant wind direction, while the subdominant wind direction is located in the 115°~140° range (southeast, SE), and the probability of subdominant wind direction is more than 10%.
(5)
The wind speed range with a large annual occurrence probability was 1.0 m/s~3.6 m/s, while other wind speed ranges had a small probability, especially the probability of occasional gusts greater than 6 m/s is lower. The average wind speed value from January to mid-March was less than 3 m/s, while mid-late March to late May was the period of high wind speed, and the wind speed value was likely to exceed 3 m/s, and then the wind speed gradually decreased.
(6)
The wind speed in the tunnel in January and February was small, with an average wind speed of 0.99 m/s and 0.87 m/s, respectively. From March to April, the wind speed in the tunnel was large, reaching 1.4 m/s and 1.2 m/s. After a time, the wind speed in the tunnel gradually decreased and circulated in turn. Comparing this with the wind speed in the tunnel can provide some basic data for the ventilation of the tunnel and the air temperature and water temperature in the tunnel. The temperature outside the tunnel gradually increased over time. At the end of March, the average temperature outside the tunnel changed from negative temperature to positive temperature, and then the temperature gradually increased with the passage of months.
(7)
Changes in atmospheric pressure over time throughout the year: The average atmospheric pressure was 822.7 hpa; the minimum atmospheric pressure was 816.8 hpa; the maximum atmospheric pressure was 825.4 hpa. The extreme pressure difference was 8.6 hpa.
(8)
Changes in atmospheric humidity over time throughout the year: From December to early March of the following year, the average atmospheric humidity was 60.5% (RH). The average atmospheric humidity from early March to mid-May was 40.1% (RH). The average atmospheric humidity from mid-May to late July was 64.4% (RH). This indicates that the atmospheric humidity was relatively low from March to May.

Author Contributions

Conceptualization, T.H. and S.L.; Methodology, T.H., L.S. and X.Z.; Software, T.H., S.L., W.L., H.Z. and X.Z.; Validation, L.L. and L.S.; Formal analysis, T.H. and H.Z.; Investigation, T.H., S.L., L.L., H.Z. and L.S.; Resources, T.H., S.L., L.L., H.Z. and X.Z.; Data curation, S.L., L.L. and W.L.; Writing—original draft, T.H., S.L., L.L., W.L., H.Z., L.S. and X.Z.; Writing—review & editing, T.H., S.L., L.L., W.L., H.Z., L.S. and X.Z.; Visualization, S.L., L.L., W.L., H.Z., L.S. and X.Z.; Supervision, T.H.; Project administration, T.H. and W.L.; Funding acquisition, S.L., L.L. and W.L. All authors have read and agreed to the published version of the manuscript.

Funding

This work was supported by Inner Mongolia Autonomous Region Transportation Technology Project (NJ-2019-09).

Data Availability Statement

The figures used to support the findings of this study are included in the article.

Acknowledgments

The authors would like to show sincere thanks to the technical staff members who contributed to this research.

Conflicts of Interest

The authors declare that they have no conflict of interest.

References

  1. Zhao, L.; Zou, D.; Hu, G.; Du, E.; Pang, Q.; Xiao, Y.; Li, R.; Sheng, Y.; Wu, X.; Sun, Z. Changing Climate and the Permafrost Environment on the Qinghai–Tibet (Xizang) Plateau. Permafr. Periglac. Process. 2020, 31, 396–405. [Google Scholar] [CrossRef]
  2. Zhou, X.; Ren, X.; Ye, X.; Tao, L.; Zeng, Y.; Liu, X. Temperature field and anti-freezing system for cold-region tunnels through rock with high geotemperatures. Tunn. Undergr. Space Technol. 2021, 111, 103843. [Google Scholar] [CrossRef]
  3. Luo, Y.; Chen, J. Research status and progress of tunnel frost damage. J. Traffic Transp. Eng. 2019, 6, 297–309. [Google Scholar] [CrossRef]
  4. Lai, J.; Wang, X.; Qiu, J.; Zhang, G.; Chen, J.; Xie, Y.; Luo, Y. A state-of-the-art review of sustainable energy-based freeze proof technology for cold-region tunnels in China. Renew. Sustain. Energy Rev. 2018, 82, 3554–3569. [Google Scholar] [CrossRef]
  5. Wei, J.; Cheng, H.; Fan, B.; Tan, Z.; Tao, L.; Ma, L. Research and practice of “one opening-one closing” productivity testing technology for deep water high permeability gas wells in South China Sea. Fresenius Environ. Bull. 2020, 29, 9438–9445. [Google Scholar]
  6. Zhang, S.; Lai, Y.; Zhang, X.; Pu, Y.; Yu, W. Study on the damage propagation of surrounding rock from a cold-region tunnel under freeze–thaw cycle condition. Tunn. Undergr. Space Technol. 2004, 19, 295–302. [Google Scholar] [CrossRef]
  7. Sun, J.; Chen, M.M. A theoretical analysis of heat transfer due to particle impact. Int. J. Heat Mass Transf. 1988, 31, 969–975. [Google Scholar] [CrossRef]
  8. Wu, J.M.; Huang, X.; Zhang, H. Theoretical analysis on heat and mass transfer in a direct evaporative cooler. Appl. Therm. Eng. 2009, 29, 980–984. [Google Scholar] [CrossRef]
  9. Domenico, P.A.; Palciauskas, V.V. Theoretical analysis of forced convective heat transfer in regional ground-water flow. Geol. Soc. Am. Bull. 1973, 84, 3803–3814. [Google Scholar] [CrossRef]
  10. Longo, G.A.; Gasparella, A. Experimental and theoretical analysis of heat and mass transfer in a packed column dehumidifier/regenerator with liquid desiccant. Int. J. Heat Mass Transf. 2005, 48, 5240–5254. [Google Scholar] [CrossRef]
  11. Ouyang, J.; Ge, J.; Hokao, K. Economic analysis of energy-saving renovation measures for urban existing residential buildings in China based on thermal simulation and site investigation. Energy Policy 2009, 37, 140–149. [Google Scholar] [CrossRef]
  12. Banfi, S.; Farsi, M.; Filippini, M.; Jakob, M. Willingness to pay for energy-saving measures in residential buildings. Energy Econ. 2008, 30, 503–516. [Google Scholar] [CrossRef]
  13. Chedwal, R.; Mathur, J.; Agarwal, G.D.; Dhaka, S. Energy saving potential through Energy Conservation Building Code and advance energy efficiency measures in hotel buildings of Jaipur City, India. Energy Build. 2015, 92, 282–295. [Google Scholar] [CrossRef]
  14. Hwang, R.L.; Cheng, M.J.; Lin, T.P.; Ho, M.C. Thermal perceptions, general adaptation methods and occupant’s idea about the trade-off between thermal comfort and energy saving in hot–humid regions. Build. Environ. 2009, 44, 1128–1134. [Google Scholar] [CrossRef]
  15. Zhao, T.S.; Liao, Q. Theoretical analysis of film condensation heat transfer inside vertical mini triangular channels. Int. J. Heat Mass Transf. 2002, 45, 2829–2842. [Google Scholar] [CrossRef]
  16. Jenkins, D.P. The value of retrofitting carbon-saving measures into fuel poor social housing. Energy Policy 2010, 38, 832–839. [Google Scholar] [CrossRef]
  17. Papadopoulos, A.M.; Theodosiou, T.G.; Karatzas, K.D. Feasibility of energy saving renovation measures in urban buildings: The impact of energy prices and the acceptable payback time criterion. Energy Build. 2002, 34, 455–466. [Google Scholar] [CrossRef]
  18. Pombo, O.; Allacker, K.; Rivela, B.; Neila, J. Sustainability assessment of energy saving measures: A multi-criteria approach for residential buildings retrofitting—A case study of the Spanish housing stock. Energy Build. 2016, 116, 384–394. [Google Scholar] [CrossRef]
  19. Wong, P.W.; Shimoda, Y.; Nonaka, M.; Inoue, M.; Mizuno, M. Semi-transparent PV: Thermal performance, power generation, daylight modelling and energy saving potential in a residential application. Renew. Energy 2008, 33, 1024–1036. [Google Scholar] [CrossRef]
  20. Tanabe, S.I.; Iwahashi, Y.; Tsushima, S.; Nishihara, N. Thermal comfort and productivity in offices under mandatory electricity savings after the Great East Japan earthquake. Archit. Sci. Rev. 2013, 56, 4–13. [Google Scholar] [CrossRef]
  21. JTG/T D70-2010; Guidelines for Design of Highway Tunnel. Ministry of Transport of the People’s Republic of China: Beijing, China, 2010.
  22. JTG3370.1-2018; Specifications for Design of Highway Tunnels. China Communications Press Co., Ltd.: Beijing, China, 2018.
Figure 1. Design of the central water ditch at the entrance of the tunnel.
Figure 1. Design of the central water ditch at the entrance of the tunnel.
Buildings 13 01377 g001
Figure 2. Schematic diagram of socket-type central gutter pipe joint.
Figure 2. Schematic diagram of socket-type central gutter pipe joint.
Buildings 13 01377 g002
Figure 3. Schematic diagram of the retaining wall-type water outlet of the central ditch.
Figure 3. Schematic diagram of the retaining wall-type water outlet of the central ditch.
Buildings 13 01377 g003
Figure 4. Tunnel insulation decoration design.
Figure 4. Tunnel insulation decoration design.
Buildings 13 01377 g004
Figure 5. Design of the insulation layer of vertical and horizontal drainage pipes.
Figure 5. Design of the insulation layer of vertical and horizontal drainage pipes.
Buildings 13 01377 g005
Figure 6. Schematic diagram of buried thermal insulation water outlet.
Figure 6. Schematic diagram of buried thermal insulation water outlet.
Buildings 13 01377 g006
Figure 7. Schematic diagram of retaining wall-type thermal insulation water outlet.
Figure 7. Schematic diagram of retaining wall-type thermal insulation water outlet.
Buildings 13 01377 g007
Figure 8. Average wind speed curve in the tunnel.
Figure 8. Average wind speed curve in the tunnel.
Buildings 13 01377 g008
Figure 9. The average temperature curve outside the tunnel opening.
Figure 9. The average temperature curve outside the tunnel opening.
Buildings 13 01377 g009
Figure 10. Curve of Hohhot terminal atmospheric pressure over time.
Figure 10. Curve of Hohhot terminal atmospheric pressure over time.
Buildings 13 01377 g010
Figure 11. The curve of atmospheric humidity over time.
Figure 11. The curve of atmospheric humidity over time.
Buildings 13 01377 g011
Figure 12. Schematic diagram of the antifreeze protection classification.
Figure 12. Schematic diagram of the antifreeze protection classification.
Buildings 13 01377 g012
Table 1. Average wind speed inside the tunnel and average temperature outside the tunnel.
Table 1. Average wind speed inside the tunnel and average temperature outside the tunnel.
MonthMonthly Average Wind Speed
(m/s)
Prevailing Wind
Direction
(°)
Tunnel and Prevailing Wind Direction (°)Wind Speed in the Tunnel
(m/s)
Temperature Outside the Tunnel
(°C)
January1.33315420.99−11.9
February1.17315420.87−8.9
March1.88315421.40−2.6
April1.67315421.242.3
May1.55315421.159.4
June1.41315421.0513.6
July1.18315420.8814.2
Table 2. Cold degree of the tunnel.
Table 2. Cold degree of the tunnel.
No.Temperature of the
Coldest Month
(°C)
Frost Depth
(m)
Cold DegreeRating Indicators
1−5~−100.7~1.3Cold1
2−10~−151.3~1.8Cold2
3−15~−251.8~2.9Severe cold3
4<−25>2.9Severe cold4
Table 3. Hazard of groundwater to the tunnel.
Table 3. Hazard of groundwater to the tunnel.
No.Groundwater Condition and Water Inflow in the TunnelExtent of DamageRating Indicators
1Dripping (Q 25)Slight1
2Dripping and small flow
(25 Q 125)
Moderate2
3Continuous surge flow (125 Q 200)Heavy3
4Jet injection (Q 200)Severe4
Note: Q is unit, geological prospecting, L/min·m.
Table 4. Classification of the freezing damage grade of the expressway and primary highway tunnels.
Table 4. Classification of the freezing damage grade of the expressway and primary highway tunnels.
Frost Damage GradeGroundwater Impact
Slight
(1)
Moderate
(2)
Heavy
(3)
Severe
(4)
Temperature effectCold (1)2345
Cold (2)3456
Heavy Cold (3)4567
Cold (4)5678
Table 5. Classification of freezing damage grades of secondary and lower highway tunnels.
Table 5. Classification of freezing damage grades of secondary and lower highway tunnels.
Freezing LevelEffects of Groundwater
Light
(1)
Moderate
(2)
Heavy
(3)
Severe
(4)
Temperature effectCold (1)2345
Cold (2)3456
Heavy cold (3)4567
Cold (4)5678
Table 6. Classification of frost damage protection.
Table 6. Classification of frost damage protection.
No.Frost Damage ZoneAntifreeze Protection Classification
1Grade I freezing damage (severe freezing damage)First level protection
2Grade II freezing damage (moderate freezing damage)Second level protection
3Grade III freezing damage (slight freezing damage)Third level protection
Table 7. Setting of antifreeze reinforcement at the entrance of the section with an insulation layer.
Table 7. Setting of antifreeze reinforcement at the entrance of the section with an insulation layer.
Surrounding Rock TypeDesign Reinforcement Changes
Circumferential Main Bars/mmLongitudinal Distribution Bars/mmStirrups/mm
IIaφ16@250φ12@200φ8
IIIaφ18@250φ12@200φ8
IVaφ18@200φ12@200φ8
IVbφ20@200φ12@200φ8
IVcφ20@200φ12@200φ8
Vaφ20@200φ12@200φ8
Vbφ22@200φ12@200φ8
Vcφ22@200φ12@200φ8
φ: Bar diameter; mm. @: Bar spacing; mm. φ16@250 represents bars with a diameter of 16 mm and a spacing of 250 mm.
Table 8. Grade and reinforcement of lining concrete in the cold protection section of the portal.
Table 8. Grade and reinforcement of lining concrete in the cold protection section of the portal.
Surrounding Rock TypeConcrete GradeDesign Reinforcement Changes
Circumferential Main Bars/mmLongitudinal Distribution Bars/mmStirrups/mm
ⅡaC40φ18@200φ12@200φ8
ⅢaC40φ18@200φ12@200φ8
ⅣaC40φ18@200φ12@200φ8
ⅣbC40φ20@200φ12@200φ8
ⅣcC40φ20@200φ12@200φ8
ⅤaC40φ20@200φ12@200φ8
ⅤbC40φ22@200φ12@200φ8
ⅤcC40φ22@200φ12@200φ8
φ: Bar diameter; mm. @: Bar spacing; mm.
Table 9. Relevant provisions on the frost resistance grade of tunnel-lining concrete.
Table 9. Relevant provisions on the frost resistance grade of tunnel-lining concrete.
Freeze-Thaw Environment LevelDesign Base Period (Year)30
10050
D1F200F150F100
D2F250F200F150
D3F300F250F200
D4F350F300F250
D5F400F350F300
D6F450F400F350
D7F450F400F400
Disclaimer/Publisher’s Note: The statements, opinions and data contained in all publications are solely those of the individual author(s) and contributor(s) and not of MDPI and/or the editor(s). MDPI and/or the editor(s) disclaim responsibility for any injury to people or property resulting from any ideas, methods, instructions or products referred to in the content.

Share and Cite

MDPI and ACS Style

Ha, T.; Liu, S.; Lin, L.; Liu, W.; Zhang, H.; Sun, L.; Zhao, X. Thermal Insulation, Antifreeze, and Anti-Drainage Technology for Tunnels in the Cold Area of Jinpen Bay. Buildings 2023, 13, 1377. https://doi.org/10.3390/buildings13061377

AMA Style

Ha T, Liu S, Lin L, Liu W, Zhang H, Sun L, Zhao X. Thermal Insulation, Antifreeze, and Anti-Drainage Technology for Tunnels in the Cold Area of Jinpen Bay. Buildings. 2023; 13(6):1377. https://doi.org/10.3390/buildings13061377

Chicago/Turabian Style

Ha, Tu, Shengjun Liu, Libin Lin, Wei Liu, Hongwei Zhang, Lijun Sun, and Xuemin Zhao. 2023. "Thermal Insulation, Antifreeze, and Anti-Drainage Technology for Tunnels in the Cold Area of Jinpen Bay" Buildings 13, no. 6: 1377. https://doi.org/10.3390/buildings13061377

APA Style

Ha, T., Liu, S., Lin, L., Liu, W., Zhang, H., Sun, L., & Zhao, X. (2023). Thermal Insulation, Antifreeze, and Anti-Drainage Technology for Tunnels in the Cold Area of Jinpen Bay. Buildings, 13(6), 1377. https://doi.org/10.3390/buildings13061377

Note that from the first issue of 2016, this journal uses article numbers instead of page numbers. See further details here.

Article Metrics

Back to TopTop