Next Article in Journal
Evaluation Model for Seismic Resilience of Urban Building Groups
Previous Article in Journal
Research on the Dynamic Response of a Slope Reinforced by a Pile-Anchor Structure under Seismic Loading
 
 
Font Type:
Arial Georgia Verdana
Font Size:
Aa Aa Aa
Line Spacing:
Column Width:
Background:
Article

An Analysis of the Isomerism of Tibetan Vernacular Dwellings Based on Space Syntax: A Case Study of the Semi-Agricultural and Semi-Pastoral District in Gannan Prefecture, China

1
School of Design and Art, Lanzhou University of Technology, Lanzhou 730000, China
2
School of Humanaties, Xi’an Shiyou University, Xi’an 710000, China
*
Author to whom correspondence should be addressed.
Buildings 2023, 13(10), 2501; https://doi.org/10.3390/buildings13102501
Submission received: 16 August 2023 / Revised: 19 September 2023 / Accepted: 28 September 2023 / Published: 1 October 2023
(This article belongs to the Topic SDGs 2030 in Buildings and Infrastructure)

Abstract

:
Vernacular dwellings carry both material and spiritual connotations, playing a significant role in preserving and developing regional culture. While current research on vernacular dwellings has primarily focused on the cultural center, there is a critical knowledge gap regarding the “differentiation” of dwellings in border areas. This knowledge gap poses risks to the sustainable development of vernacular dwellings. Therefore, this study employs a space syntax approach to analyze the spatial configuration of the Tibetan vernacular dwellings of the semi-agricultural and semi-pastoral areas in Gannan prefecture, China, which is situated in the Tibetan border area. The findings reveal the following key insights: (i) disparities exist in the spatial organization of “sacred–secular” node spaces and the structural characteristics of buildings, resulting in a misalignment between physical center spaces and psychological center spaces; (ii) variation in cultural intensity contributes to distinct characteristics, i.e., “prototype”, “transition”, and “mutant”, among dwellings in different counties; and (iii) the continuous development and adaptation of dwellings hinge on the homogeneity and differentiation of regional culture. The crux of achieving sustainable dwelling development lies in preserving the diversity of dwellings. This study offers a more comprehensive understanding of the relationship between the spatial configuration of vernacular dwellings in the Tibetan border area and their sociocultural connotations. Consequently, it provides valuable guidance for promoting the sustainable development of these dwellings.

1. Introduction

Vernacular dwellings constitute a vital category of traditional architecture steeped in profound historical and cultural significance. Their construction embodies the values of harmonious coexistence between humans and their environment, as well as the synergy between regional characteristics and architectural design. China has a vast territory, a long history, and a large number of ethnic groups. Different geographical environments, cultural backgrounds, and economic conditions have given birth to a variety of vernacular dwellings. On one hand, Chinese vernacular dwellings distinctly reflect regional disparities influenced by natural factors such as topography, climate, and available building materials. Consequently, we observe a spectrum of residential styles, exemplified by the Siheyuan in the North China Plain [1], cave dwellings in the Loess Plateau [2], and Tulou in the western Fujian Mountain area [3]. On the other hand, Chinese vernacular dwellings are intricately intertwined with the socio-cultural milieu, encompassing factors such as the distribution of ethnic groups, social organizations, and cultural traditions. This interplay bestows upon them a profusion of ethnic characteristics, exemplified by the Diaolou of the Tibetan ethnicity [4], bamboo houses of the Dai ethnicity [5], and yurts of the Mongolian ethnicity [6]. Indeed, within the dynamic framework of regional and humanistic environments, socio-economic considerations, and other factors at play, some vernacular dwellings in China elude precise categorization. They have both “common” characteristics and “differentiation” characteristics such as mixing, adaptation, and integration. This phenomenon often occurs in natural geographical transition areas and cultural fringe areas. As one of the important residential types in China, Tibetan residences have garnered global recognition for their unassuming architectural designs, colorful architectural decoration, and profound religious ambiance. In recent years, Tibetan studies have expanded beyond the central Tibetan areas to encompass the peripheral realms of Amdo and Kham [7]. This evolution in research paradigms has shifted from the pursuit of commonalities to the exploration of complexity, diversity, locality, and pluralism. This transformation aptly mirrors the essence of Tibetan culture’s pluralistic integration. Hence, Tibetan vernacular dwellings possess a dual nature—rooted in shared origins yet marked by significant differentiation.
The Gannan Tibetan Autonomous Prefecture, known as the “gateway to the Qinghai-Tibet Plateau”, occupies a unique geographical position at the crossroads of the Qinghai-Tibet Plateau and Loess Plateau. Its topography is marked by complexity and diversity, with higher elevations in the northwest gradually giving way to lower terrain in the southeast, resulting in a transition in natural conditions. Gannan is also a transitional zone between agricultural and pastoral regions, with agriculture and animal husbandry serving as its primary economic cornerstones [8]. Additionally, Gannan represents a convergence of Tibetan and Han cultures, which is the Tibetan border area. This Tibetan border area can be categorized into two levels: one encompasses Tibetan regions beyond the Tibet Autonomous Region, including the four provinces of Gansu, Qinghai, Sichuan, and Yunnan, while the other includes the northeastern and southeastern fringes of the Tibetan Plateau. Cultural differentiation often manifests prominently in border areas due to the gradual attenuation of cultural characteristics with increasing distances of transmission. These cultural border regions are particularly susceptible to the influences of neighboring cultures, leading to a dynamic interplay and mutual enrichment among two or more cultures, ultimately fostering compatibility and symbiosis [9]. Within this intricate backdrop, Gannan has borne witness to the emergence of distinctive Tibetan vernacular dwellings, particularly in its semi-agricultural and semi-pastoral regions—a quintessential district exemplifying cultural compatibility. These Tibetan dwellings have undergone isomerism, evolving, developing, and varying over time. They bear witness to the harmonious coexistence between humanity and the natural environment, encapsulating the historical and cultural transformations within Gannan Prefecture.
In the 17 Sustainable Development Goals (SDGs) proposed by the United Nations in 2015, SDG11 aimed for inclusive, safe, resilient, and sustainable cities. In terms of human settlements, its specific targets emphasized the preservation of cultural heritage and positive social links between urban, peri-urban, and rural areas [10]. The configuration of vernacular dwellings conveys culture because it follows the layout and form of the dwellings and can be considered the materialized expression of regional culture [11]. As part of the cultural heritage, the preservation of tangible and intangible values of vernacular dwellings is crucial to achieving the goals of sustainable development.
In early 2003, the Central Committee of the Communist Party of China (CPC) introduced a rural construction strategy, marking the inception of efforts towards rural revitalization. The formal proposal for rural revitalization was enshrined in the report of the 19th National Congress. Subsequently, the 20th National Congress report underscored the comprehensive advancement of rural revitalization, emphasizing the need for the robust development of rural industries, talents, culture, ecology, and organizations [12]. In this context, vernacular dwellings assume a pivotal role in facilitating sustainable development in rural areas. As L.Y. Wu expressed, “Our objective is to create a sustainable and delightful living environment. To achieve this, we must harness the inherent richness of architectural culture across different regions, uphold traditions, incorporate innovation, and construct living spaces imbued with health, positivity, and profound cultural significance” [13]. Balancing material production and regional cultural inheritance amid rapid urbanization and continuing the diverse daily lifestyle of rural residents have become urgent issues.
The examination of peripheral areas serves as more than just an extension of our comprehension of regional dwellings; it also signifies a renewed recognition and contemplation of domains that have long been overlooked or disregarded. Such investigations are instrumental in preserving cultural diversity and fostering the sustainable development of vernacular dwellings. To deeply explore the spatial configuration of the Tibetan dwellings in Gannan’s semi-agricultural and semi-pastoral areas, this study posits three fundamental questions: (1) How to identify an effective tool for unveiling the isomerism phenomenon in residential buildings? (2) What is the corresponding sociocultural connotation behind the isomerism phenomenon of residential configuration? (3) How can residential buildings attain sustainable development? This study employs space syntax as the research methodology, acquires firsthand data via field research and mapping, quantifies the spatial attributes of Tibetan dwellings in Gannan’s semi-agricultural and semi-pastoral regions through numerical analysis, and constructs mathematical models to extract spatial and cultural insights from these dwellings. As a result, it unveils the sociocultural rationale that underpins their physical structure.

2. Literature Review

2.1. Vernacular Architecture

In the 1960s, an exhibition of vernacular dwellings titled “Architecture Without Architects” [14] held in the New York Museum showed people the spontaneous construction behavior and results of settlement residents. This exhibition extended research to include vernacular architecture and settlement for the first time. This prompted the architectural communities in Europe and America to pay attention to vernacular dwellings. In House Form and Culture (1969), Rapoport conducted a comparative analysis of various living forms and settlement patterns. He claimed that material factors are mostly secondary and cultural factors tend to be primary because what is materially feasible is always countered by the culturally unfeasible [11]. Allen (1973) argued that consistency, anonymity, and continuity may be viewed as hallmarks of vernacular dwellings, revealing cultural consistency, simplicity, and the preservation of traditions ingrained in the contemporary communities and construction trade that underpin the culture [15]. In the final two decades of the 20th century, the status of vernacular dwellings in the field of architectural studies was further enhanced [16]. Kopytoff (1986) emphasized the processual character of all kinds of buildings being driven by a constant change in their use, function, and meaning [17]. Bourdier (1989) believed that the study of habitation traditions is relevant to anthropology, archaeology, geography, and art in addition to architecture [18]. The research methodology for vernacular dwellings has been gradually specialized and systematized since the turn of the 21st century. Traditional vernacular dwellings research has progressively shifted under Oliver’s advocacy to multidisciplinary and multiperspective, interdisciplinary research, including human geography, history, ecology, folklore, and phenomenology. Additionally, the mechanism of vernacular dwellings research has significantly improved [19].
The United Nations has identified three pillars for achieving sustainable development: economic growth, social inclusion, and environmental protection [20]. Jon Hawkes identified culture as the fourth pillar of sustainable development. He argued that “to succeed in achieving sustainable development, the first strategy to be implemented must be a cultural strategy” [21]. Susanna Ferran Vila et al. emphasized, however, that culture is not only a pillar of sustainable development but also a horizontal dimension (UNESCO, 2018) [22]. According to Erlewein (2017) [23], “People are realizing that culture plays many roles in sustainable development” today. The study of vernacular architecture is increasingly focusing on the relationship between cultural connotations and architectural configuration, with the support of sustainable development theory. B. A. Kazimee (2008) found that the spatial form of the vernacular dwellings in Nuristan, northeastern Afghanistan, was consistent with the region’s culture. These dwellings were quite densely packed together, and their design principles and construction techniques reflected high sustainability [24]. Based on the study of cultural semiotics, Maknun et al. (2020) found that the form and structure of traditional bamboo houses in the Makassar culture were influenced by socioeconomic and sociocultural factors (cosmology, beliefs, and social stratification) [25]. Gilli-Piqueras et al. (2021) classified ksour by typology and found that the most common ksar was square by studying sustainable soil architecture in southeast Morocco. After conducting a sociological analysis of its defensive, functional, social, productive, and other characteristics, they concluded that the construction of a ksar is related to the lifestyle and culture of its residents [26]. However, one of the challenges in trying to reveal the relationship between the spatial configuration and cultural connotation of folk houses is to find an efficient and effective scientific method to include culture in it.

2.2. Vernacular Dwellings of Semi-Agricultural and Semi-Pastoral Areas in Gannan Prefecture, China

Before the 1980s, Chinese architectural research on vernacular dwellings was mainly based on surveys and mappings. The publication of Chinese Traditional Residence in 1957 aroused the enthusiasm of the architectural community to conduct surveys and mappings of vernacular dwellings throughout China [27]. After the 1980s, under the influence of the international “cultural turn” trend [28], the study of vernacular dwellings has no longer been limited to the description of the surface architectural structure. It now explores the deep structure, i.e., the internal mechanism of residential architecture—culture.
The earliest academic studies on the Gannan Tibetan region have begun to pay attention to the distinctive sociocultural forms of Tibetan ethnic groups. At the beginning of the 20th century, Joseph F. Rock sorted out the overview and influence of the cross-cultural dissemination of Tibetan culture in the Gannan Tibetan area at that time [29]. Robert Ekvall discussed the relationship between nomadic Tibetans, sedentary Tibetans, Han, and Muslims in the border areas of the provinces of Gansu and Qinghai [30]. Gu personally inspected the counties of Xiahe, Lintan, and Zhuoni in Gannan during the end of the 1930s, pointing out the social situation of multi-ethnicity and multi-religious coexistence in Gannan as well as the intrinsic linkages [31]. These studies were the original record of the pure Tibetan fringe cultural forms of the region at the beginning of the 20th century, and they revealed the complex human–Earth relations and cultural diversity of Gannan, laying the foundation for a profound understanding of the homology and differences of Tibetan dwellings in the Tibetan border areas. The study of Tibetan dwellings in Gannan began in the 1990s. Sangji Choedang (1999) studied the types and characteristics of Tibetan dwellings in Gannan’s purely pastoral areas, agricultural areas, and towns as well as explored the influence of religious culture on the Tibetan dwellings in Gannan [32]. An (2004) presented a thorough analysis of the Diaolou in the semi-agricultural and semi-pastoral areas and divided them into courtyard-type, patio-type, and monocoque-type structures according to different spatial forms [33].
There are few studies on Tibetan dwellings in Gannan’s semi-agricultural and semi-pastoral areas. Qi (2007) applied typology, dividing the spatial form of Tibetan dwellings in Gannan’s semi-agricultural and semi-pastoral areas into two categories: a-type plan forms, where the main room is located on the first floor, and b-type plan forms, where the main room is located in the “Makang”. Then Qi subdivided these two categories into ten subcategories and pointed out the influence of the economy, religious belief, local custom, regional culture, and other aspects on the development of the dwellings [34]. From the perspective of folklore, Zhang (2019) claimed that the layout of Tibetan dwellings in Gannan’s Shaomahou Village was dominated by enclosed courtyards, and the organization of dwellings mainly centered on the main house and the hall of sutras. Such architectural forms are closely related to Tibetan Buddhism and influenced by the surrounding Han culture [35]. Yang used the comparative method and horizontally compared the plan forms of the Tibetan and Hui dwellings in the border area between Hui and Tibet in Gannan. This revealed that the Hui and Tibetan dwellings not only had their cultural tendencies but also shared common characteristics [36]. From the perspective of architectural ontology, these studies revealed the uniqueness, diversity, and blending characteristics of the spatial form of Tibetan dwellings in Gannan’s semi-agricultural and semi-pastoral areas. They identified the close relationship between the spatial form of residential dwellings and social culture, providing a research basis for this study. However, present research fails to establish a systematic cognition in terms of thinking paradigm and is inadequately aware of the essential characteristics of “differentiation”, such as complexity, difference, locality, and plurality. At the same time, there is a dearth of in-depth exploration of the content of the spatial configuration, especially the absence of a scientific and rational method to quantify the spatial pattern and based on that reveal the phenomenon of differentiation and the associated sociocultural connotation behind the spatial configuration. Therefore, in the cultural fringe area, the current valuable research is how to explore an applicable method to visualize and quantify the spatial form, to scientifically analyze the logical relationship between the spatial structural morphology of dwellings and social culture, which is of great significance to the inheritance of the cultural diversity of residential dwellings in this region.

2.3. Space Syntax

It is worth noting that with the change in the vernacular dwellings research from the descriptive study of spatial form at the material level to the empirical study of the relationship between spatial form and culture at the non-material level, there have been innovations in research methods. In 1970, Bill Hillier from University College London first proposed “space syntax” in his research project on the relationship between space and society. The Social Logic of Space [37], which he completed with Hanson in 1984, was the first work on space syntax and profoundly revealed the underlying logic of spatial structure and social order contained within architectural spatial units. Later, Space is the Machine [38] and Decoding Homes and Houses [39] systematically explained the specific analytical process of spatial syntax and improved its scope of application. Hillier believed that the use of domestic spaces is closely related to a certain social culture, and the function, location, and connection of each space is the expression of a certain culture and rules in the form of domestic space [38]. Space syntax uses computers to analyze spatial data, divide spatial scales, describe and analyze them based on a visual language, and combine spatial features with graphics and data [37]. Therefore, as a scientific analysis method, space syntax offers the possibility of studying the relationship between traditional architecture and culture.
Currently, the study of the relationship between residential space and social culture based on spatial syntax can be broadly divided into the following types: (1) The exploration of residential spatial genotypes. The cultural phenomenon is spatial and regional, and “genotype” explains the spatial attributes of the dwellings’ spatial forms; it specifically describes the relationship between the spatial forms and their cultures. Orhun et al. (1995) found that there are two different spatial patterns in Turkey, namely kitchen-integrated and living-room-integrated. They revealed that the differences in the syntactic dimensions of the different patterns reflect the differences in the “genotypes” of the houses, and the existence and distribution of these “genotypes” of houses are closely related to the migration and integration of nomadic people in Turkey [40]. Jungmin Kim et al. (2021) extracted the spatial configuration patterns of the traditional and urban hanok through a comparative analysis in the 1930s. They revealed the genotypes of their residential spatial layout and proved that the urban hanok inherited the spatial structural patterns of the traditional hanok [41]. (2) The historical traceability of the culture carried by the residential space, i.e., the analysis of the historical changes in the spatial configuration of dwellings to explore the temporal attributes of spatial configuration in the cultural logic. Manum (2005) selected 150 flats of different ages from the 1930s onward in Oslo, Norway, as research samples, compared the differences in the use of family interior spaces under different spatial areas and fabric, and found that the family interior space still has very clear functional divisions. Additionally, the integration degree of each functional space is different. The diverse needs of people’s lifestyles and family activities have not been met in contemporary housing space design, and the isolation of housing space remains dominant [42]. Seo (2003) pointed out that in the transformation from traditional houses to separated composite houses to modern apartments since the 1970s in Seoul, with the changes in lifestyle and concept of family, the function, name, location, and connection relationship of each space in traditional houses changed too. Further, the function of space strengthened and was differentiated [43]. (3) Analysis of the “duality” of residential space. Space contains the essentially logical concept of “relationship”, i.e., the emergence of the “inside” and “outside”. The logic of this complex of relations makes the house begin to reflect and intervene in social relations [44]. Lv (2020) interpreted the spatial structure of Wang Mansion in Suzhou in graphic form and found that under the requirement of the strict etiquette culture of separating the “inside and outside”, the space of the mansion in Jiangnan of China exhibited an “hourglass” structure. Additionally, under different living modes, various dividing lines divided the “inside and outside” of the mansion [45]. Huang et al. (2019) analyzed the structural form of traditional Chinese Siheyuan by using quantitative indicators of space syntax and found that the courtyard connecting the inner courtyard as a welcoming space had the highest degree of integration. Additionally, the outer courtyard as a master residence had the second degree of integration, and the inner courtyard as a female residence had the lowest degree of integration. This is consistent with the traditional Chinese culture of “men being in charge of the outside and women being in charge of the inside [46]”. The above three types of studies focused on exploring the relationship between spatial configuration and cultural connotation, and they mostly focused on one of the three types of studies. However, the cultural periphery area involves complex relationships of multiethnicity and multicultural integration. In order to more thoroughly evaluate the logical relationship between space and social culture, this research tries to unite the three different types of investigations. The vernacular dwellings in the peripheral areas are connected with those in the central cultural areas and play an important role in the sustainable development of Chinese vernacular dwellings. Therefore, from the perspective of space syntax, this study attempts to explore the logical relationship between the vernacular residential architecture and cultural connotation in the semi-agricultural and semi-pastoral areas of Gannan Tibetan Autonomous Prefecture, which is located in the Tibetan border area of China. It also intends to supplement similar studies.

3. Cases and Methods

3.1. Cases

The Gannan Tibetan Autonomous Prefecture is located in the southwest of China’s Gansu Province, where the Tibetan population accounts for 55.96%, Han for 36.87%, and Hui, Tu, and other ethnic groups account for 7.17%. In the Gannan Prefecture, a combination of agricultural and pastoral production is conducted, and the semi-agricultural and semi-pastoral economy occupies a considerable proportion of the territory [47]. The research scope of this study includes Lintan County, Xiahe County, and Zhuoni County, which are typical semi-agricultural and semi-pastoral counties in the Gannan Tibetan Autonomous Prefecture. Twelve typical Tibetan dwellings in nine representative villages (Figure 1) comprise the research samples.
Twelve Tibetan dwellings in Gannan’s semi-agricultural and semi-pastoral areas were surveyed and mapped, including five in Zhuoni County, three in Xiahe County, and four in Lintan County, which were numbered according to the villages in which they were located (Table 1, Table 2 and Table 3).

3.2. Methods

Space syntax was adopted to interpret space, which can reveal the logical relationship between space and social culture by analyzing space configuration. When using this method, we must first understand the configuration of space. Spatial configuration is defined along with all relationships that exist between some spaces in a simple or complex spatial system, taking into account other spaces in the complex system [48]. The basic analysis methods include visibility graph analysis, axis analysis, and convex space analysis [49]. Since the axial analysis is more suitable for analyzing large-scale public spaces, and the two analysis methods of visual graph analysis and convex spatial analysis are more suitable for analyzing the indoor spaces of residential houses with smaller volumes, visual graph analysis and convex spatial analysis were selected. Analysis was conducted with the help of Depthmap (an open-source, multi-platform spatial analysis software developed by Alasdair Turner of the Space Syntax Group of the University College London).

3.2.1. Justified Permeability Graph

In convex space analysis, convex space means that the line of sight between any two points in the space is not blocked, that they can see each other, and that the connection between the convex spaces can be transformed into the Justified Permeability Graph (JPG) [50] for representation. In JPG, each node represents a space, and connection lines between the nodes represent the connectedness between the nodes. One node is chosen as the root node of the whole graph, and other nodes are placed hierarchically above the root node according to the minimum number of nodes they must pass through to reach the root node (Figure 2). This gives a clear picture of the connectivity and hierarchy of the spaces. As a practical spatial analysis technique, JPG can establish a link between residents’ behavior and sociocultural factors on a feasible level when explaining the use and configuration of spaces [51]. The JPG is the starting point for making quantitative calculations and defining the spaces.
Two variable indexes, integration value (I) and relative asymmetry value (RA) (Table 4), were selected for quantitative analysis. This helps understand the configuration relationships between unit spaces as well as patterns of human movement behavior [43]. Relative asymmetry value (RA) is calculated based on the mean depth value (MD). The calculation of RA value is carried out through horizontal comparison, eliminating the influence caused by the asymmetric space in the JPG, and standardizing the concept MD value to calculate the building space node with the least asymmetric value, i.e., the core space in the building [51]. The integration degree (I) further calculates the aggregation degree of a space through the MD value and the RA value, and it measures the ability of a space to attract people as a destination. The higher the integration degree of space, the easier it is to gather people [52].

3.2.2. Visibility Graph Analysis

  • Visual Graph Analysis (VGA) is the analysis of the visibility of a point of view in space. It explores the spatial configuration describing the mutual visible relationship between positions in space. VGA helps find the visual connection of spaces and analyze the control and influence of a certain space from the visual level [53]. The VGA is obtained by Depthmap, and the generation process of VGA avoids the interference of researchers’ subjectivity. Convex space analysis can be used to analyze the lines and surfaces in the space, but it is more appropriate to use the VGA to analyze nodes.
  • We obtained sample residential data based on field investigation and mapping and then processed and analyzed them. Space syntax, a scientific spatial quantitative analysis method, was used to ensure the objectivity of the analysis results. With the support of relevant cultural historical materials, the isomerism of residential spaces has been explained reasonably. This study implemented the following steps for the analysis:
  • Conduct field surveys of and map residential buildings to obtain accurate data, and use AutoCAD software to draw plans, which is the research basis of this study.
  • Convert the residential floor plans to the JPG and subsequently analyze the configuration of space in the context of the sacred–secular dichotomy.
  • Clarify the genotypes of the dwellings by calculating the RA value and the I value.
  • Map the spatial configurations using the VGA as a supplement to the JPG.
  • Clarify the isomerism phenomenon of residential buildings based on the above-mentioned analysis.
  • Explore the causes of isomerism in Tibetan dwellings along with historical documents.

4. Data Analysis

4.1. Justified Permeability Graph Analysis

JPG was used to decode the spatial relationship of the sample dwellings. This study classifies its node space, explores the spatial structure characteristics, and analyzes the calculation results of quantitative indexes.

4.1.1. Node Types

Translation of the JPG diagrams indicated that the spatial level number of sample dwellings ranges from 4 to 8, among which the sample dwellings account for the largest proportion. The lowest number of spatial nodes is 7, which is the sample residence of Niba Village in Zhuoni County (ZN-NB1), and the highest number of spatial nodes is 22, which is the sample residence of Guzhan Village in Lintan County (LT-GZ2). The average number of space nodes is 14. The number of nodes in the JPG diagrams determines the conversion times of each function space in the system. The more nodes, and the more conversion times of each function space, the more complex its JPG diagram.
Hillier defined four types of spaces, namely a-type space, b-type space, c-type space, and d-type space [38], each of which has its specific properties. The a-type space is a terminal space with only one link, which satisfies the need for privacy or isolation. The b-type space has more links, is located on the path to the end space or other spaces, and is usually more open and accessible. The c-type space has multiple links that form a ring with other spaces and usually has two or more paths. The d-type space is located at the intersection of at least two rings and usually has the best publicity and accessibility.
Figure 3 shows the following: (1) A-type space overlaps in the sample residential dwellings of the three counties, which is the bedroom and the utility room. The bedroom is a resting place and requires a high degree of privacy. The utility room is a space for placing idle items, the utilization is not high, and it entails high isolation. Thus, these two functional spaces are presented as an a-type space. The difference lies in the sutra hall and the kitchen. The sutra hall is the spiritual space of the Tibetan residents. They believe in Tibetan Buddhism, focusing on the relationship between God and man, and making a binary division between the sacred and secular space in their living space. The sacred space generally includes the sutra hall, the simmering mulberry platform, and so on. The sutra hall is usually set on the second floor or one side of the main room, and it is not to be entered by outsiders. It is also the room with the most gorgeous color and the most exquisite decoration. A Buddhist niche is set in the middle to worship the Buddha. In the sample dwellings of Zhuoni County and Xiahe County, the sutra hall is an a-type space, which is located in the main house or on the side of the main house. In the sample dwellings of Lintan County, the sutra hall is not an a-type space, and it is located in the central axis of the dwelling, connecting the secular spaces, such as the bedroom, the main house, and the sunroom. Additionally, the kitchen, as an a-type space, appears in part of the dwellings in Xiahe County and all the dwellings in Lintan County. There is no independent kitchen in the sample dwellings in Zhuoni County. Instead, the kitchen in the sample dwellings in this county is a composite space that combines functions, such as resting, meeting guests, and worshiping the Buddha. (2) B-type space mostly implies the corridor, courtyard, sunroom, stairs, main room, threshing ground, and other functional spaces with transportation. These spaces have strong openness and are usually connected with bedrooms, utility rooms, and other terminal spaces. (3) C-type space only appears in the sample dwellings of the Wangjiazui Village (LT-WJ1) and Xijie Village (LT-XJ1). In the residence of the Wangjiazui Village (LT-WJ1), the c-type space is the courtyard and corridor. In the residence of the Xijie Village (LT-XJ1), the c-type space is the main house, utility room, bedroom, and kitchen. (4) D-type space only appears in the sample dwellings of the Wangjiazui Village (LT-WJ1) and Xijie Village (LT-WJ1) and these two sample houses. The d-type space is the main house, the sunroom, and the sutra hall. The sutra hall is directly connected to the main house, the sunroom, and the bedroom, which has very strong openness and accessibility.

4.1.2. Structural Features

By combining the node space types and connection modes of the JPG diagrams, it can be found that there are certain typical features in the JPG structure, which are classified into two typical structural features in this study:
  • The tree structure, with multiple levels of depth, shows tree-like distribution characteristics, which can be divided into multilayer and single-branch structures and multilayer and multi-branch structures. The multilayer and single-branch structure is relatively simple, with 1–3 nodes in each level and only 1 central transition space. Among the sample dwellings, only the dwellings of the Niba village in Zhuoni County (ZN-NB1, ZN-NB3) are multilayer and single-branch structures. The multilayers and multi-branch structure is more complex, showing the characteristics of sub-centers, which can be understood as connecting two or more sub-centers with a main central space; the number of sample dwellings exhibiting this structural feature is the largest, such as the dwellings of the Tawa Village in Xiahe County (XH-TW1).
  • In the ring structure, there is a closed relationship between the nodes on this structure, and there are multiple path options from one node to another on this structure. The dwelling of the Wangjiazui Village in Lintan County (LT-WJ1) and the dwelling of the Xijie Village in Lintan County (LT-XJ1) exhibit a ring-shaped structure.

4.1.3. Analysis of Calculation Results of Variable Indexes

Due to the excessive number of spaces, the main functional spaces (SR, CY, SH, C, CL, MR, BR, and BN) were selected to calculate and analyze their RA value and I value when performing the calculation of quantitative indexes (Table 5, Table 6 and Table 7).
By comparing the RA value of each functional space in the residential samples, it is found that the minimum RA value is mainly distributed in the four core spaces, corridors, stairwells, sunrooms, and courtyards. According to the function and nature of the core space of dwellings, it can be divided into three types of dwellings: corridor-centered type, sunroom-centered type, and courtyard-centered type.
The corridor-centered dwellings take corridors and staircases as the core space, and the RA value is concentrated between 0.1583 and 0.3091. There are five corridor-centered dwellings in the samples, four in Zhuoni County, and one in Xiahe County (Figure 4a). The courtyard-centered dwellings take the courtyards as the core space, and the RA value is concentrated between 0.1099 and 0.1795. There are three courtyard-centered dwellings in the samples, two are located in Xiahe County (Figure 4b), among which the Qingshui village dwelling (XH-QS1) in Xiahe County is both sunroom-centered and courtyard-centered. The sunroom-centered dwellings take sunrooms as the core space, and the RA value is concentrated between 0.0667 and 0.1795. There are five sunroom-centered dwellings in the samples, three are located in Lintan County (Figure 4c).
It can be seen that the core spatial types of dwellings in the three counties are different. The corridor-centered (Figure 5) is the main type of Tibetan dwelling in Zhuoni County, and the corridors have the highest value of integration in the whole dwelling space system, distributed between 0.9217 and 1.7451. The plan form of the dwelling is relatively compact, mainly presented as “—” and “L” shapes. The corridor-centered dwellings are centered on the corridors, which connect the main rooms, bedrooms, utility rooms, and other functional spaces. Corridors play an important role in carrying, transitioning, and organizing space in the dwellings.
Courtyard-centered (Figure 6) is the main type of Tibetan dwelling in Xiahe County, with the highest value of integration of courtyard in the whole dwelling space system, distributed between 0.1099 and 0.1795. The residential structure of the courtyard-centered Tibetan dwellings is relatively compact, and the courtyard is mostly located in the geometric center of the building plan, surrounded by various functional spaces, presenting a “mouth”-shaped plan form.
Sunroom-centered (Figure 7) is the main type of Tibetan dwelling in Lintan County, and the sunroom has the highest value of integration in the whole dwelling space system, distributed between 1.4865 and 3.6588. The plan form of this type shows a “square” shape, and the structure is more complex. The sunroom evolved from the corridor space in front of the main room, which was initially used as a traffic space. With the improvement of living standards, the residents expanded the corridor space in front of the main room and used modern building materials, such as aluminum alloy and glass, to enclose the space, making it a passive solar room. Afterward, the sunroom gradually evolved into a living space for multiple functions, such as leisure, entertainment, hospitality, and so on, which not only improved the space utilization rate but also the indoor thermal environment.

4.2. Visibility Graph Analysis

To further interpret the isomerism of the Tibetan people’s residence in Gannan, in addition to the above-mentioned abstract parameters, the VGA of Depthmap was also used to map the overall configuration of residential spaces and explore the psychological and emotional behavior patterns of people in residential buildings [53]. In Depthmap, the value obtained by the VGA is represented by cold and warm colors. The warmer the color, the higher the value, and the colder the color, the lower the value. The VGA diagrams were analyzed by taking three typical Tibetan dwellings in Zhuoni County, Xiahe County, and Lintan County as examples.
As shown in Figure 8a, the spatial layout of the Tibetan dwellings in Zhuoni County is free without obvious symmetry. In the VGA diagram, the highest value is distributed in the main room, which has strong control over the other spaces around it. This is because the Kang (a heatable brick bed), the Buddhist niche, and so on, are set up in the main room so that activities such as living, cooking, dining, and Buddhist rituals can be conducted in the same space, and there is no separation between food and bed which makes the main room the center of daily life. As shown in Figure 8b,c, the VGA diagrams of Tibetan dwellings in Xiahe County and Lintan County, the highest values are distributed at the intersection of the courtyard and the sunroom where the visual publicity is the best. This area can affect the overall visual connectivity of the dwellings to the greatest extent. The difference in the Tibetan dwellings of Xiahe County (Figure 8b) is that the visual control scope of this area is mainly oriented toward the sunroom. Additionally, it takes into account the courtyard, and the sunroom can directly control this area. In the Tibetan dwellings of Lintan County (Figure 8c), visual control of the area is oriented toward the sunroom and courtyard, the VGA diagram clearly shows a tree shape. The courtyard and sunroom form the backbone of the spatial system, and the surrounding spaces act like branches, with an obvious linear transition from the center to the periphery.

4.3. The Isomerism of the Tibetan Dwellings

Based on the results of the analysis of the JPG and the VGA, in the three counties of Gannan’s semi-agricultural and semi-pastoral areas (Zhuoni County, Xiahe County, and Lintan County) under the influence of the same Tibetan cultural genes, the spatial structure of the dwellings is divided into a duality. However, at the same time, the genotypes of dwellings in the three counties present obvious differences and exhibit a rich isomerism phenomenon:
  • There are distinct differences between the binary nodes of the “sacred and secular”. The distinctive differences are concentrated in the “sacred–secular” nodes of the sutra hall and the kitchen. The sutra hall, as a sacred space, appears as an a-type space in the sample dwellings in Xiahe County and Zhuoni County. In some sample dwellings in Lintan County, the sutra hall appears as a d-type space, which usually connects to the main room, bedroom, and sunroom. The sacred space is different in the “inside” and “outside”. The sacred space of the Tibetan dwellings in Xiahe County and Zhuoni County faces “inside” and has strong privacy and isolation. It can be seen that religious space has a sacred and lofty status in the dwellings in these two counties. The sacred space of the Tibetan dwellings in Lintan County faces the “outside” and has strong connectivity and openness in the whole house, which greatly strengthens its secularity and weakens its sacredness. As a secular space, the kitchen has undergone new changes with the changes in daily life and the social economy. In the sample dwellings of Zhuoni County, the kitchen is not an independent space, but a multifunctional living space integrated with functions, such as resting and Buddha worshipping, which shows the continuation of the Tibetan nomadic lifestyle. However, in Xiahe County, independent kitchens are installed in some of the dwellings, showing the differentiation of kitchen functions. All sample houses in Lintan County have independent kitchens, and these are presented as a-type spaces, which shows the complete separation of kitchen functions and the complete independence of living and eating.
  • The spatial structure varies in complexity. The spatial structure of the sample dwellings in Zhuoni County is the simplest, especially in the Niba Village. Most of the dwellings are multilayer and single-branch tree structures. Although the structure presents many layers, there are fewer nodes in each level, and there is only one path between the nodes, showing a series state. The spatial structure of the sample dwellings in Xiahe County is complex, showing a multilayer and multi-branch tree structure, with more nodes at each level and multiple central nodes in the structure. The sample dwellings in Lintan County have the most complex structure, showing a multilayer and multi-branch tree structure and ring structure, with multiple nodes on each level. The nodes of the dwellings in the ring structure form a ring between them, showing a parallel state.
  • There is a deviation between the physical and the psychological core spaces of residential buildings. The analysis of the calculation results of variable indicators indicated that on the feasible level, the sample dwellings in Zhuoni County are mainly corridor-centered, those in Xiahe County are mainly courtyard-centered, and those in Lintan County are mainly sunroom-centered. Through the analysis of the VGA diagrams of residential buildings, the psychological and emotional behavior patterns of residents surfaced to a certain extent. On the visual level, in the sample dwellings of Zhuoni County, the dwelling spaces face “inside”, and the main room becomes the center of daily life. In the Tibetan dwellings in Xiahe County, although the spaces also face “inside”, they are weakened in the degree of being inward, and the sunroom has become the center of daily life. In the sample dwellings in Lintan County, the visual characteristics of the intersection between the courtyard and the sunroom support this area as the core control space, which connects the “inside” and “outside” of the residential spaces.

5. Discussion

5.1. Discussion of Research Methodology

This study conducts a quantitative analysis of the spatial configuration of residential buildings using space syntax methodology, thus revealing the latent logic governing spatial structure and social organization within architectural spatial units. Spatial structure typically manifests in the form of points, lines, and planes, and a single syntactic analysis method may not comprehensively identify all three forms. To address this limitation, the Depthmap software is employed to perform JPG and VGA analyses, offering insights into the spatial configuration of residential dwellings from both feasible and visible perspectives. The JPG analysis method is applied to examine node types, structural characteristics, and calculations of variable indexes concerning residential buildings. These analyses uncover residents’ behavioral trajectories within residential spaces, establishing connections with the unique sociocultural factors in Gannan. This comprehensive analysis complements our understanding of the overall spatial configuration of residential buildings through VGA diagrams. For instance, consider the residence in the Niba village, Zhuoni County (ZN-NB1), where both the corridor and the main room possess identical integration values, signifying their central importance. However, the VGA diagram reveals a heightened level of interaction within the main room, a phenomenon further elucidated by psycho-emotional behaviors, historical context, and cultural influences. The combined utilization of these two analytical methods allows for an exploration of lifestyle, behavioral patterns, psychological states, and cultural underpinnings based on the spatial configuration of residential buildings. This approach unveils the role of sociocultural order behind isomerism and introduces a novel perspective for the in-depth examination of the spatial morphology of residential buildings.

5.2. Tracing the Origin of the Isomerism of Residential Buildings

5.2.1. The Historical Evolution of Residential Buildings

Under the influence of different historical opportunities, the spatial configuration of Tibetan dwellings in different counties witnessed differences. The structure of the JPGs of the Tibetan dwellings in Zhuoni County is simple, especially in the Niba Village. Inside the dwellings, the space for Buddhist rituals is shared with the living space. Since the settlement of the Niba ancestors, they have been deeply influenced by the culture of central Tibet, and the spatial layout of this undifferentiated dwelling has inherited the spatial organization logic of the tents used in nomadic life (Figure 9), which shows prototypical characteristics. The structure of the JPGs of the Tibetan dwellings in Xiahe County is relatively complex, with compact spaces and independent space functions. This spatial configuration is closely related to the Labrang Monastery built in Xiahe County during the Kangxi period of the Qing Dynasty [54]. Since its construction, the religious influence of the Labrang Monastery has been growing, and it has become an important node on the Ancient Tea-Horse Road, attracting many Han merchants and Hui merchants to settle and trade here. With the infiltration of Han and Hui residential culture, the spatial configuration of Tibetan residential houses in Xiahe County absorbed favorable parts based on the prototype of Tibetan residential dwellings, resulting in transitional characteristics. The structure of the JPGs of the Tibetan dwellings in Lintan County is the most complex, and the layout of dwellings has strong symmetry. It is closely related to the historical development of Lintan County. Lintan County was known as “Taozhou” in ancient times. At the beginning of the Ming Dynasty, Jianghuai soldiers stationed in Taozhou defended the city and cultivated the land [55], which formed and laid the foundation of the Jianghuai culture in Taozhou. The form of dwellings in the Jianghuai area is influenced by the Confucian rituals. The interior of the dwelling is orderly, with a clear central axis and emphasis on primary and secondary (Figure 10a). The Tibetan dwellings in Lintan County were deeply influenced by the Han culture of the Jianghuai area. The sutra hall is located on the central axis of the building, and the other spaces are lined up around the sutra hall (Figure 10b), which shows mutant characteristics (Figure 10b).

5.2.2. The Sociocultural Connotation Continuity of Residential Buildings

The Gannan Tibetan Autonomous Prefecture is located in the transition area between the two strong cultures of Tibet and Han. The kernel of the isomerism of Tibetan residential space lies in the long-term contact, conflict, and integration of the Tibetan culture and Han culture. In Zhuoni County and Lintan County, the potential differences in the cultural intensity between the Tibetan culture and Han culture are obvious. When a certain cultural intensity feature is obvious in the residential space, it plays a dominant role in the spatial configuration. The spatial form of the Tibetan dwellings in Zhuoni County is simple and pure, with no distinction between eating and sleeping, which is more similar to the spatial form of the tents used by Tibetan nomads in central Tibet. The spatial form of the Tibetan dwellings in Lintan County is complex, and the central axis is clear, which is similar to the spatial form of the Han courtyard dwellings in the Jianghuai area. In Xiahe County, in the process of cultural dissemination and evolution, the potential cultural intensity differences between the Tibetan culture and Han culture are relatively small, with comparable control over the spatial configuration of dwellings.
It is not difficult to blindly “copy” the tradition in the process of the continuation and development of architectural culture, but this is not the purpose. We should fully consider the relationship between the space utilization mode of the residential buildings in each town and the cultural connotation. The genotypes of the Gannan Tibetan dwellings are different, but under the historical succession, the Tibetan dwellings inherited the division of the dual space of the “sacred and secular” and paid special attention to the sacred space of the sutra hall. Therefore, in the process of protecting and developing the Tibetan dwellings in Gannan, it is necessary to fully respect the cultural beliefs of the ethnic groups in the area and continue with the fundamental elements of the houses that represent their ethnic culture.
The research results not only consider the architectural form and spatial structure, but also illustrate the cultural connotation and cultural essence conveyed by the vernacular residence in the cultural border area and provide a scientific basis for the inheritance and development of the Tibetan dwellings in Gannan according to local conditions.

5.3. Limitations and Further Research

This study has limitations. It only includes three typical semi-agricultural and semi-pastoral counties in the Gannan Tibetan Autonomous Prefecture. In future studies, the research scope can be expanded, for example, to the entire Tibetan border area, aiming to establish a research system that can summarize the relationship between the use of the residential architecture space and the potential difference in the cultural intensity of the border area. This will provide a sufficient reference for exploring the genotypes of residential buildings in the Gannan area and other cultural fringe areas as well as the continuous development of architectural culture.

6. Conclusions

The Tibetan border area exhibits a distribution pattern characterized by the coexistence of Tibetans and various multi-ethnic groups. It maintains close historical, cultural, and customary ties with central Tibet, particularly in religion. However, these regions also display noteworthy distinctions in certain aspects. Employing a space syntax perspective, this study delves into the isomerism of Tibetan dwellings in Gannan, a Tibetan border area, to scrutinize the pivotal role of cultural intensity difference in the spatial configuration of residential buildings within the context of multicultural integration along cultural fringe areas. The aim is to offer insights for the sustainable development of Tibetan dwellings in Gannan. Some conclusions can be drawn:
  • Quantitative and graphical analysis employing space syntax methodology has unveiled the isomerism inherent in Tibetan dwellings within Gannan’s semi-agricultural and semi-pastoral areas. To begin, an examination of the node types within the JPGs reveals noteworthy distinctions in the binary node space denoting the “sacred–secular” divide. While this binary division of “sacred–secular” space is a prevalent characteristic in Tibetan dwellings across Gannan’s semi-agricultural and semi-pastoral areas, there are differences between the “inside” and “outside” of the sacred space within dwellings in different counties. Moving forward, an analysis of the structural attributes within the JPGs uncovers differences in the spatial complexity of residential dwellings, and the results of various index calculations point to the existence of three categories of central space within dwellings at the physical center level. Lastly, the VGA analysis sheds light on the psychological and emotional behavioral patterns of residents, revealing a deviation between the physical and psychological center space of residential buildings.
  • The isomerism observed in the Tibetan dwellings of Gannan’s semi-agricultural and semi-pastoral regions stems from several key factors, including variations in cultural intensity, the degree of influence exerted by the cultural core area on the surrounding cultural radiated region, and the gradual and abrupt shifts in cultural transmission dynamics. In Zhuoni County, where Tibetan culture wields significant influence, the structural development of Tibetan dwellings evolves steadily, drawing from the “prototype” of these dwellings in central Tibet as its foundational model. Conversely, Lintan County, under the sway of Han culture and impacted by migration as a prominent influencing factor, manifests characteristics akin to the “mutation type” within Tibetan dwellings. In Xiahe County, the long-term developmental process is marked by the interplay, integration, and coexistence of Tibetan, Han, and other ethnicities. Consequently, Tibetan dwellings in this region exhibit characteristic of the “transition type”. This multifaceted dynamic reflects the intricate cultural landscape that shapes the architectural isomerism observed in Gannan’s Tibetan dwellings.
  • The continuous evolution and adaptation of Tibetan dwellings in Gannan’s semi-agricultural and semi-pastoral regions hinge on the interplay of homogeneous and differentiated cultural aspects within this locale. Situated within the Tibetan border area, these dwellings share commonalities shaped by the strong influence of Tibetan culture. The core of Tibetan culture, embodied within their dwellings, particularly in the sacred spaces representing religious beliefs, remains steadfast and unaltered. Nonetheless, various factors such as production methods, natural surroundings, economic trade, and multicultural factors have prompted adaptive changes in the Tibetan dwellings of Gannan’s semi-agricultural and semi-pastoral regions. It is under the continuous development of this continuity and adaptability that the spatial configuration of the Tibetan dwellings in Gannan has generated diversity, and the maintenance of such diversity is precisely the kernel for realizing the sustainable development of the Tibetan vernacular dwellings in the Tibetan border area.

Author Contributions

Conceptualization, Y.A. and L.L.; methodology, Y.A. and L.L.; software, L.L.; validation, L.L., Y.G. and X.W.; investigation, L.L., X.W. and P.L.; data curation, L.L., X.W. and P.L.; writing—original draft preparation, Y.A. and L.L.; writing—review and editing, Y.A. and L.L.; visualization, L.L. and Y.G.; supervision, Y.A. All authors have read and agreed to the published version of the manuscript.

Funding

This research was funded by the National Natural Science Foundation of China (Grant No. 52168005).

Data Availability Statement

The data presented in this study are available upon request from the author, L.L.

Conflicts of Interest

The authors declare no conflict of interest.

References

  1. Wang, Y.; Agkathidis, A.; Crompton, A. Parametrising historical Chinese courtyard-dwellings: An algorithmic design framework for the digital representation of Siheyuan iterations based on traditional design principles. Front. Archit. Res. 2020, 9, 751–773. [Google Scholar] [CrossRef]
  2. Yoon, H.-k. Loess cave-dwellings in Shaanxi province, China. Geo J. 1990, 21, 95–102. [Google Scholar] [CrossRef]
  3. Wang, S.-S.; Li, S.-Y.; Liao, S.-J. The Genes of Tulou: A Study on the Preservation and Sustainable Development of Tulou. Sustainability 2012, 4, 3377–3386. [Google Scholar] [CrossRef]
  4. Zhang, M.J.; Shi, Y.A.; Liu, L.X.; Guo, H. Study on the Seismic Performance of the Tibetan Diaolou in Golog of Qinghai. Appl. Mech. Mater. 2015, 744–746, 915–919. [Google Scholar] [CrossRef]
  5. Bai, Y.; Gao, J.; Pitts, A.; Gao, Y.; Bai, W.; Tao, Z. Improving the Sustainability of Traditional Dwellings in Yunnan, China: Seismic Resistance Testing of Wood-frame and Earth-Built Wall Dwellings. Sustainability 2019, 11, 977. [Google Scholar] [CrossRef]
  6. Che, J.; Su, W.; Bai, L.; Guo, H. A Grounded Theory Approach to the Influence Mechanism of Residential Behavior among Mongolian Yurt Dwellers in China. Buildings 2023, 13, 1268. [Google Scholar] [CrossRef]
  7. Goldstein, M.C. The Snow Lion and the Dragon: China, Tibet, and the Dalai Lama; University of California Press: Oakland, CA, USA, 1997. [Google Scholar]
  8. Chi, Y.; Ni, Z. A Study of Partly Farming and Animal Husbandry Economy in Tibetan Area of Gansu. J. Northwest Norm. Univ. (Soc. Sci.) 2012, 49, 80–86. [Google Scholar]
  9. Clark, W. Man and Culture; The Commercial Press: Beijing, China, 2004. [Google Scholar]
  10. Transforming Our World: The 2030 Agenda for Sustainable Development. Available online: https://www.un.org/development/desa/socialperspectiveondevelopment/2015/08/26/transforming-our-world-the-2030-agenda-for-sustainable-development/ (accessed on 20 July 2023).
  11. Rapoport, A. House Form and Culture; Prentice Hall: New Jersey, NJ, USA, 1969. [Google Scholar]
  12. Zheng, Y. Solid Promotion of the Revitalisation of Rural Organisations. Available online: https://epaper.gmw.cn/gmrb/html/2023-02/15/nw.D110000gmrb_20230215_1-06.htm (accessed on 20 July 2023).
  13. Wu, L. Introduction to Sciences of Human Settlement; China Architecture & Building Press: Beijing, China, 2001. [Google Scholar]
  14. Lawrence, R.J. The Interpretation of Vernacular Architecture. Vernac. Archit. 1983, 14, 19–28. [Google Scholar] [CrossRef]
  15. Noble, A.G. Traditional Buildings: A Global Survey of Structural Forms and Cultural Functions; I. B. Tauris: London, UK, 2007. [Google Scholar]
  16. Asquith, L.; Vellinga, M. Vernacular Architecture in the 21st Century; Taylor& Francis: London, UK, 2005. [Google Scholar]
  17. Appadurai, A. The Social Life of Things: Commodities in Cultural Perspective; Cambridge University Press: New York, NY, USA, 1986. [Google Scholar]
  18. Bourdier, J.-P. Dwellings Settlements and Tradition: Cross-Cultural Perspectives; University Press of America: New York, NY, USA, 1989. [Google Scholar]
  19. Oliver, P. Encyclopedia of Vernacular Architecture of the World; Cambridge University Press: Cambidge, UK, 1998. [Google Scholar]
  20. Purvis, B.; Mao, Y.; Robinson, D. Three pillars of sustainability: In search of conceptual origins. Sustain. Sci. 2019, 14, 681–695. [Google Scholar] [CrossRef]
  21. Hawkes, J. The Fourth Pillar of Sustainability: Culture’s Essential Role in Public Planning; Commen Ground Publishing: Urbana–Champaign, IL, USA, 2001. [Google Scholar]
  22. Ferran, S.; Miotto, G.; Rom-Rodríguez, J. Cultural Sustainability and the SDGs: Strategies and Priorities in the European Union Countries. Eur. J. Sustain. Dev. 2021, 10, 73. [Google Scholar] [CrossRef]
  23. Erlewein, S.-N. Culture, Development and Sustainability: The Cultural Impact of Development and Culture’s Role in Sustainability. In Heritage Studies; Springer International Publishing: New York, NY, USA, 2017; pp. 85–97. [Google Scholar]
  24. Kazimee, B. Learning from Vernacular Architecture: Sustainability and Cultural Conformity; WIT Press: Southampton, UK, 2008; Volume 113, pp. 3–13. [Google Scholar]
  25. Maknun, T.; Hasjim, M.; Muslimat, M.; Hasyim, M. The form of the traditional bamboo house in the Makassar culture: A cultural semiotic study. Semiotica 2020, 2020, 153–164. [Google Scholar] [CrossRef]
  26. Gil-Piqueras, T.; Rodríguez-Navarro, P. Tradition and Sustainability in Vernacular Architecture of Southeast Morocco. Sustainability 2021, 13, 684. [Google Scholar] [CrossRef]
  27. Liu, D. Chinese Traditional Residence; Huazhong University of Science & Technology Press: Wuhan, Chian, 2018. [Google Scholar]
  28. Dikovitskaya, M. Visual Culture: The Study of the Visual after the Cultural Turn; The MIT Press: Cambridge, MA, USA, 2005. [Google Scholar]
  29. Huang, J. Gannan in the Eyes of Western Scholars in the 1930s; Northwest Minzu University: Lanzhou, China, 2020. [Google Scholar]
  30. Ekvall, R.B.; Laufer, B. Cutural Exchanges between Tibetans and Other Ethnic Groups; China Minzu University Press: Beijing, China, 2013. [Google Scholar]
  31. Wang, Z. Field Work Foundation and Academic Support for “the Chinese Nation as One”—Gu Jiegang’s Study and Acquisition of Ethnic Knowledge in Northwestern China. J. Minzu Univ. China (Philos. Soc. Sci. Ed.) 2021, 48, 66–75. [Google Scholar]
  32. Tselet, S. A Brief Description of Gannan Tibetan Residential Architecture. J. Northwest Minzu Univ. (Philos. Soc. Sci.) 1999, 4, 78–83. [Google Scholar]
  33. An, Y. The Evolution of Traditional Settlements and the Inheritance of Settlement Traditions; Tsinghua University: Beijing, China, 2004. [Google Scholar]
  34. Qi, L. The Region Adaptability Research of Gannan Tibetan Residences; Huazhong University of Science & Technology: Wuhan, China, 2007. [Google Scholar]
  35. Zhang, H. Tibetan Residents’Customs and Their Cultural Features in Semi-Agricultural and Semi-Pastoral Areas; Northwest Minzu University: Lanzhou, China, 2019. [Google Scholar]
  36. Yang, K. Study on the Hui and Tibetan Border Area of Amdo Tibetan Areas Traditional Settlement and Vernacular Architecture in Xiahe County; Xi’an University of Architecture and Technology: Xi’an, China, 2015. [Google Scholar]
  37. Hillier, B.; Hanson, J. The Social Logic of Space; Cambridge University Press: Cambridge, MA, USA, 1984. [Google Scholar]
  38. Hillier, B. Space is the Machine: A Configurational Theory of Architecture; Cambridge University Press: Cambridge, UK, 1996. [Google Scholar]
  39. Hanson, J. Decoding Homes and Houses; Cambridge University Press: Cambridge, UK, 1999. [Google Scholar]
  40. Orhun, D.; Hillier, B.; Hanson, J. Spatial Types in Traditional Turkish Houses. Environ. Plan. B Plan. Des. 1995, 22, 475–498. [Google Scholar] [CrossRef]
  41. Kim, J.; Kwak, D. Extraction of Spatial Genetic Characteristics and Analysis of 1930s Korean Urban Hanok Based on Application of Space Syntax. J. Asian Archit. Build. Eng. 2021, 21, 197–210. [Google Scholar] [CrossRef]
  42. Manum, B. Generality versus Specificity: A study on the interior space of apartments. In Proceedings of the 5th International Space Syntax Symposium, Delft, The Netherlands, 13–17 June 2005. [Google Scholar]
  43. Seo, K.W. Topological paths in housing evolution. In Proceedings of the 4th International Space Syntax Symposium, London, UK, 17–19 June 2003. [Google Scholar]
  44. Zhang, Y.; Wang, J. Rediscuss “Space Syntax”. Architect 2004, 3, 33–44. [Google Scholar]
  45. Lv, M. Between Inside and Outside and the Spatial Pattern: A Study on Spatial Layout of the Wang Mansion in Suzhou Based on Space Syntax. Archit. J. 2020, 6, 120–123. [Google Scholar]
  46. Huang, B.-X.; Chiou, S.-C.; Li, W.-Y. Study on Courtyard Residence and Cultural Sustainability: Reading Chinese Traditional Siheyuan through Space Syntax. Sustainability 2019, 11, 1582. [Google Scholar] [CrossRef]
  47. Zhang, W. The Dictionary of Human Geography; Shaanxi People’s Publishing House: Xi’an, China, 1990. [Google Scholar]
  48. Nourian, P.; Rezvani, S.; Sariyildiz, S. Designing with Space Syntax A configurative approach to architectural layout, proposing a computational methodology. In Proceedings of the the 31st eCAADe Conference, Delft, The Netherlands, 18–20 September 2013. [Google Scholar]
  49. Hillier, B. Designing safer streets: An evidence-based approach. Plan. Lond. 2004, 48, 45–49. [Google Scholar]
  50. Mustafa, F.; Hassan, A. Mosque layout design: An analytical study of mosque layouts in the early Ottoman period. Front. Archit. Res. 2013, 2, 445–456. [Google Scholar] [CrossRef]
  51. Krüger, M.; Pera Vieira, A. Scaling relative asymmetry in space syntax analysis. Archit. Eng. 2012, 3, 194–203. [Google Scholar]
  52. van der Laag Yamu, C.; Nes, A.; Garau, C. Bill Hillier’s Legacy: Space Syntax—A Synopsis of Basic Concepts, Measures, and Empirical Application. Sustainability 2021, 13, 3394. [Google Scholar] [CrossRef]
  53. Turner, A.; Doxa, M.; O’Sullivan, D.; Penn, A. From Isovists to Visibility Graphs: A Methodology for the Analysis of Architectural Space. Environ. Plan. B Plan. Des. 2001, 28, 103–121. [Google Scholar] [CrossRef]
  54. Gao, Q.; Meng, X.; Luo, D. Construction Skills and Inheritance Development of Labrang Monastery. J. Xi’an Univ. Archit. Technol. (Nat. Sci. Ed.) 2019, 729–734. [Google Scholar]
  55. Wang, Y. Discussion of Zhu Yuanzhang’s strategy of Taozhou. Gansu Soc. Sci. 2003, 6, 142–144. [Google Scholar]
  56. Gyaltsan, M.C. Tibetan Residential Buildings; China Architecture & Building Press: Beijing, China, 2009. [Google Scholar]
  57. Yin, J. Study on the Spatial Characteristics of Huaijun Traditional Residential Courtyard around Chaohu Lake; Hefei University of Technology: Hefei, China, 2021. [Google Scholar]
Figure 1. Location of the sample villages: (a) location of Gansu province in China; (b) location of Gannan Tibetan Autonomous Prefecture in Gansu province; (c) location of samples counties in Gannan Tibetan Autonomous Prefecture; and (d) location of sample villages in sample counties.
Figure 1. Location of the sample villages: (a) location of Gansu province in China; (b) location of Gannan Tibetan Autonomous Prefecture in Gansu province; (c) location of samples counties in Gannan Tibetan Autonomous Prefecture; and (d) location of sample villages in sample counties.
Buildings 13 02501 g001
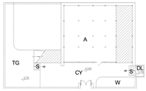
Figure 2. Justified plan graph transformation process diagram: (a) is the space plan of the original building; (b) is the transformed convex map system diagram; and (c) is the transformed justified plan graph. P (porch), W (woodshed), CY (courtyard), A (animals), UR (utility room), SR (sunroom), BR (bedroom), SI (side hall), MR (main room), and K (kitchen).
Figure 2. Justified plan graph transformation process diagram: (a) is the space plan of the original building; (b) is the transformed convex map system diagram; and (c) is the transformed justified plan graph. P (porch), W (woodshed), CY (courtyard), A (animals), UR (utility room), SR (sunroom), BR (bedroom), SI (side hall), MR (main room), and K (kitchen).
Buildings 13 02501 g002
Figure 3. Justified permeability graphs of the sample dwellings.
Figure 3. Justified permeability graphs of the sample dwellings.
Buildings 13 02501 g003
Figure 4. The RA value scatter plot of Tibetan residential spaces in Gannan: (a) is the RA value scatter plot of residential space in Zhuoni County; (b) is the RA value scatter plot of residential space in Xiahe County; and (c) is the RA value scatter plot of residential space in Lintan County.
Figure 4. The RA value scatter plot of Tibetan residential spaces in Gannan: (a) is the RA value scatter plot of residential space in Zhuoni County; (b) is the RA value scatter plot of residential space in Xiahe County; and (c) is the RA value scatter plot of residential space in Lintan County.
Buildings 13 02501 g004
Figure 5. The spatial integration value of ZN-NB3.
Figure 5. The spatial integration value of ZN-NB3.
Buildings 13 02501 g005
Figure 6. The spatial integration value of XH-TW1.
Figure 6. The spatial integration value of XH-TW1.
Buildings 13 02501 g006
Figure 7. The spatial integration value of LT-GZ1.
Figure 7. The spatial integration value of LT-GZ1.
Buildings 13 02501 g007
Figure 8. Visibility graph analysis of the Tibetan dwellings in Gannan: (a) is the VGA diagram of ZN-NB1; (b) is the VGA diagram of XH-QS1; and (c) is the VGA diagram of LT-WJ1.
Figure 8. Visibility graph analysis of the Tibetan dwellings in Gannan: (a) is the VGA diagram of ZN-NB1; (b) is the VGA diagram of XH-QS1; and (c) is the VGA diagram of LT-WJ1.
Buildings 13 02501 g008
Figure 9. Tibetan cow hair tents: (a) is the floor plan of a Tibetan cow hair tent; (b) is the elevation of a Tibetan cow hair tent (source: [56], page 84, redrawn).
Figure 9. Tibetan cow hair tents: (a) is the floor plan of a Tibetan cow hair tent; (b) is the elevation of a Tibetan cow hair tent (source: [56], page 84, redrawn).
Buildings 13 02501 g009
Figure 10. Residential plans: (a) is the plan of the former residence of Wu Changqing, a general of the Huai Army (source: [57], page 31, redrawn); (b) is the plan of LT-GZ2.
Figure 10. Residential plans: (a) is the plan of the former residence of Wu Changqing, a general of the Huai Army (source: [57], page 31, redrawn); (b) is the plan of LT-GZ2.
Buildings 13 02501 g010
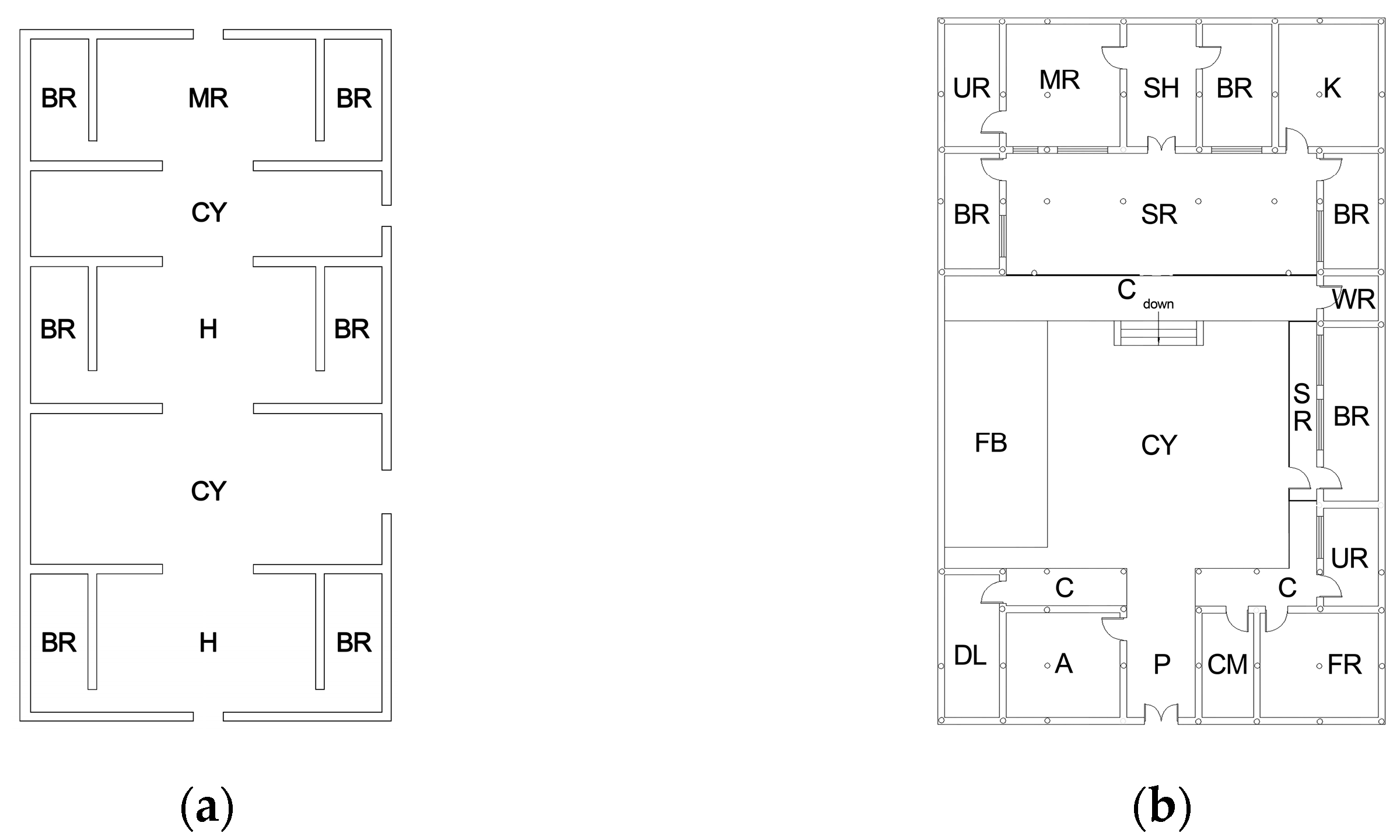
Table 1. Vernacular dwellings’ floor plans of Zhuoni County.
Table 1. Vernacular dwellings’ floor plans of Zhuoni County.
LocationNumberPlanScenario of Inside Space
Diedangshi Village, Zhuoni CountyZN-D1Buildings 13 02501 i001Buildings 13 02501 i002Buildings 13 02501 i003
Ground floorUpper floor
Laligou Village, Zhuoni CountyZN-L1Buildings 13 02501 i004Buildings 13 02501 i005Buildings 13 02501 i006
Ground floorUpper floor
Niba Village, Zhuoni CountyZN-NB1Buildings 13 02501 i007Buildings 13 02501 i008
Ground floor
ZN-NB2Buildings 13 02501 i009Buildings 13 02501 i010Buildings 13 02501 i011
Ground floorUpper floor
ZN-NB3Buildings 13 02501 i012Buildings 13 02501 i013
Ground floor
CY (courtyard), C (corridor), SR (sunroom), UR (utility room), DL (dry lavatory), WR (washroom), MR (main room), SH (sutra hall), BR (bedroom), BN (Buddha’s niche), P (porch), W (woodshed), A (animals), S (staircase), TG (threshing ground), AM (agricultural machinery room), and E (enter); direction: Buildings 13 02501 i029.
Table 2. Vernacular dwellings’ floor plans of Xiahe County.
Table 2. Vernacular dwellings’ floor plans of Xiahe County.
LocationNumberPlanScenario of Inside Space
Wuhuzha Village, Xiahe CountyXH-W1Buildings 13 02501 i014Buildings 13 02501 i015Buildings 13 02501 i016
Ground floorUpper floor
Qingshui Village, Xiahe CountyXH-QS1Buildings 13 02501 i017Buildings 13 02501 i018
Ground floor
Tawa Village, Xiahe CountyXH-TWBuildings 13 02501 i019Buildings 13 02501 i020
Ground floor
SM (simmering mulberry platform), K (kitchen), G (garden), and FR (forage room); direction: Buildings 13 02501 i029.
Table 3. Vernacular dwellings’ floor plans of Lintan County.
Table 3. Vernacular dwellings’ floor plans of Lintan County.
LocationNumberPlanScenario of Inside Space
Guzhan Village, Lintan CountyLT-GZ1Buildings 13 02501 i021Buildings 13 02501 i022
Ground floor
LT-GZ2Buildings 13 02501 i023Buildings 13 02501 i024
Ground floor
Wangjiazui Village, Lintan CountyLT-WJ1Buildings 13 02501 i025Buildings 13 02501 i026
Ground floor
Xijie Village, Lintan CountyLT-XJ1Buildings 13 02501 i027Buildings 13 02501 i028
Ground floor
CR (coal room); direction: Buildings 13 02501 i029.
Table 4. Space syntax variable indexes.
Table 4. Space syntax variable indexes.
Variable IndicatorsFormulaCharacterConnotation
MD T D = 0 × n k + 1 × n k + 2 × n k + + k × n k
M D = T D / k 1
AccessibilityThe average step from a node to all other nodes in the space system.
I R R A = R A / D k , (D is a standard value, and RRA describes how much it deviates from the standard value)
I = 1 / R R A
AggregationThe degree of aggregation and dispersion of a node from all other nodes in the spatial system.
RA R A = 2 M D 1 / k 2 CentralityThe relative position of a node in the overall space.
Table 5. RA and I value rank order of the Tibetan dwellings of Zhuoni County.
Table 5. RA and I value rank order of the Tibetan dwellings of Zhuoni County.
Sample DwellingRank Order Key Functions (Based on RA)Rank Order Key Functions (Based on I)
ZN-D1BN 0.4579 > BR 0.3789 > DL 0.3737 > MR 0.3579 > SR 0.2789 > CR 0.2737 > S 0.2000 > C 0.1947C 1.1273 > S 1.0976 > CR 0.8021 > SR 0.7870 > MR 0.6134 > DL 5875 > BR 0.5793 > BN 0.4794
ZN-L1SM 0.3590 = DL 0.3590 > S 0.2564 = MR 0.2564 = SH 0.2564 > BR 0.2564 > C 0.1538 > SR 0.1026SR 2.6013 > C 1.7342 > BR 1.1192 = SH 1.1192 = MR 1.1192 = S 1.1192 > DL 0.7857 = SM 0.7857
ZN-NB1BN 0.6000 = BR 0.6000 > MR 0.2000 = C 0.2000C 1.7451 = MR 1.7451 > BR 0.5817 = BN 0.5817
ZN-NB2DL 0.5641 > MR 0.5128 = BR 0.5128 > C 0.3590 > SR 0.2821 = CY 0.2821 > S 0.2308 S 1.1561 > CY 0.9459 = SR 0.9459 > C 0.7432 > BR 0.5203 = MR 0.5203 > DL 0.4730
ZN-NB3BN 0.6000 > CY 0.5273 > BR 0.4909 > MR 0.4182 = S 0.4182 > SR 0.3455 > C 0.3091 C 0.9217 > SR 0.8247 > S 0.6812 = MR 0.6812 > BR 0.5803 > CY 0.5403 > BN 0.4748
Table 6. RA and I value rank order of the Tibetan dwellings of Xiahe County.
Table 6. RA and I value rank order of the Tibetan dwellings of Xiahe County.
Sample DwellingRank Order Key Functions (Based on RA)Rank Order Key Functions (Based on I)
XH-W1SH 0.4667 > MR 0.4250 > BR 0.3417 > DL 0.3167 > SR 0.2333 > CY 0.1917 > S 0.1583S 1.5405 > CY 1.2726 > SR 1.0454 > DL 0.7703 > BR 0.7139 > MR 0.5739 > SH 0.5227
XH-QS1SH 0.5641 > DL 0.4615 > BR 0.4103 > C 0.2821 = MR 0.2821 > CY 0.1795 = SR 0.1795SR 1.4865 = CY 1.4865 > MR 0.9459 = C 0.9459 > BR 0.6503 > DL 0.5781 > SH 0.4730
XH-TW1DL 0.3077 > BR 0.2747 = MR 0.2747 > SM 0.2527 > C 0.1538 > SR 0.1429 > CY 0.1099CY 2.3538 > SR 1.8106 > C 1.6813 > SM 1.023 > MR 0.9415 = BR 0.9415 > DL 0.8406
Table 7. RA and I value rank order of the Tibetan dwellings of Lintan County.
Table 7. RA and I value rank order of the Tibetan dwellings of Lintan County.
Sample DwellingRank Order Key Functions (Based on RA)Rank Order Key Functions (Based on I)
LT-GZ1BR 3.8571 > MR 0.2967 > DL 0.2747 > SH 0.1758 > CY 0.1319 > SR 0.0989SR 2.6153 > CY 1.9615 > SH 1.4711 > DL 0.9415 > MR 0.8718 > BR 0.5884
LT-GZ2BR 0.3238 > MR 0.3143 > DL 0.3048 > SH 0.2286 > C 0.1905 > SR 0.1619 > CY 0.1238CY 1.7308 > SR 1.3235 > C 1.1250 > SH 0.9375 > DL 0.7031 > MR 0.6818 > BR 0.6618
LT-WJ1BR 0.3000 > DL 0.2417 > MR 0.1833 > SH 0.1750 > C 0.1167 > CY 0.1000 > SR 0.0667SR 3.6588 > CY 2.4392 > C 2.0907 > SH 1.3938 > MR 1.3305 > DL 1.0093 > BR 0.8131
LT-XJ1BR 0.3015 > MR 0.2647 > DL 0.2353 > C 0.2206 > SH 0.1765 > CY 0.1176 > SR 0.1029SR 2.3047 > CY 2.0166 > SH 1.3444 > C 1.0755 > DL 1.0083 > MR 0.8963 > BR 0.7870
Disclaimer/Publisher’s Note: The statements, opinions and data contained in all publications are solely those of the individual author(s) and contributor(s) and not of MDPI and/or the editor(s). MDPI and/or the editor(s) disclaim responsibility for any injury to people or property resulting from any ideas, methods, instructions or products referred to in the content.

Share and Cite

MDPI and ACS Style

An, Y.; Liu, L.; Guo, Y.; Wu, X.; Liu, P. An Analysis of the Isomerism of Tibetan Vernacular Dwellings Based on Space Syntax: A Case Study of the Semi-Agricultural and Semi-Pastoral District in Gannan Prefecture, China. Buildings 2023, 13, 2501. https://doi.org/10.3390/buildings13102501

AMA Style

An Y, Liu L, Guo Y, Wu X, Liu P. An Analysis of the Isomerism of Tibetan Vernacular Dwellings Based on Space Syntax: A Case Study of the Semi-Agricultural and Semi-Pastoral District in Gannan Prefecture, China. Buildings. 2023; 13(10):2501. https://doi.org/10.3390/buildings13102501

Chicago/Turabian Style

An, Yuyuan, Lu Liu, Yixin Guo, Xiao Wu, and Pengquan Liu. 2023. "An Analysis of the Isomerism of Tibetan Vernacular Dwellings Based on Space Syntax: A Case Study of the Semi-Agricultural and Semi-Pastoral District in Gannan Prefecture, China" Buildings 13, no. 10: 2501. https://doi.org/10.3390/buildings13102501

APA Style

An, Y., Liu, L., Guo, Y., Wu, X., & Liu, P. (2023). An Analysis of the Isomerism of Tibetan Vernacular Dwellings Based on Space Syntax: A Case Study of the Semi-Agricultural and Semi-Pastoral District in Gannan Prefecture, China. Buildings, 13(10), 2501. https://doi.org/10.3390/buildings13102501

Note that from the first issue of 2016, this journal uses article numbers instead of page numbers. See further details here.

Article Metrics

Back to TopTop