Co-Housing to Ease and Share Household Chores? Spatial Visibility and Collective Deliberation as Levers for Gender Equality
Abstract
1. Introduction
2. Domestic Drudgery, Gender Inequalities and Co-Housing
2.1. Dwelling: Reconciling Roles and Gender Inequalities
2.2. Co-Housing, a Means to Reconsider Reproductive Work?
3. Methodology: Co-Housing Survey through Cross-Disciplinary Study
3.1. Research Scope
3.2. Co-Housing in Brussels
3.3. A Cross-Disciplinary Study
4. Dwelling Management in Co-Housing
4.1. Space Management
4.1.1. Project Descriptions
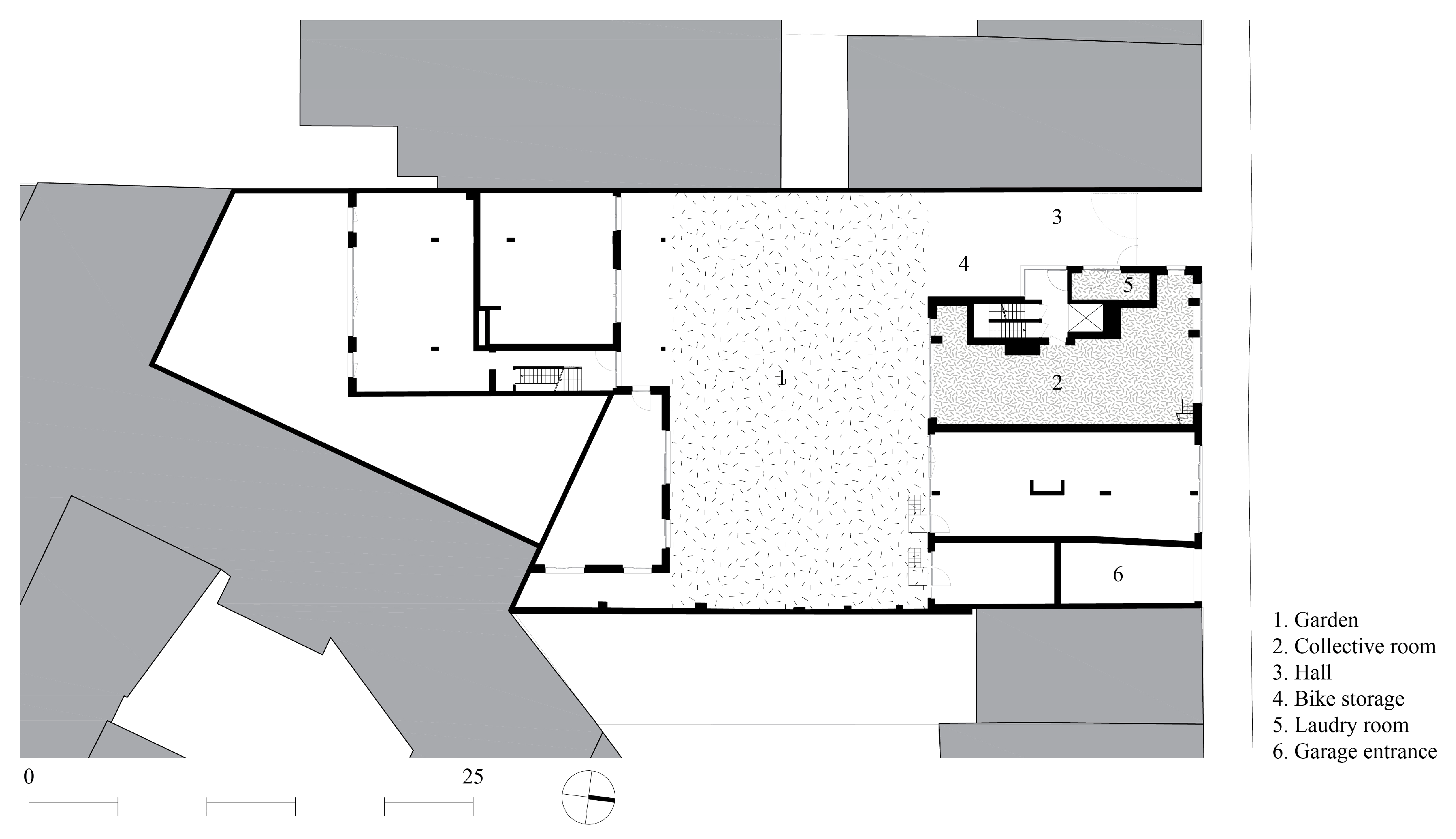
4.1.2. Spatial Layouts
4.2. Time Management
4.2.1. Organising Dwelling for the Long Term
4.2.2. Managing the Dwelling on a Day-to-Day Basis
5. Discussion
5.1. Circular versus Linear Time
5.2. Visibility and the Rewarding Value of the Chore
5.3. Mutualisation and Potential Breathing Space and Gained Time
6. Conclusions
Author Contributions
Funding
Data Availability Statement
Conflicts of Interest
References
- Vestbro, D.U.; Horelli, L. Design for gender equality—The history of cohousing ideas and realities. Built Environ. 2012, 38, 315–335. [Google Scholar] [CrossRef]
- Hayden, D. The Grand Domestic Revolution: A History of Feminist Designs for American Homes, Neighborhoods, and Cities; MIT Press: Cambridge, MA, USA, 1981. [Google Scholar]
- Sangregorio, I.-L. Collaborative Housing from a Woman’s Perspective. In Living Together: Cohousing Experiences around the World; Vestbro, D.U., Ed.; RIT Division of Urban Studies with Kollektivhus NU: Stockholm, Sweden, 2010; pp. 114–124. [Google Scholar]
- Tummers, L.; MacGregor, S. Beyond wishful thinking: A FPE perspective on commoning, care, and the promise of co-housing. Int. J. Commons 2019, 13, 62–83. [Google Scholar] [CrossRef]
- Horelli, L. The role of shared space for the building and maintenance of community from the gender perspective—A longitudinal case study in a neighbourhood of Helsinki. Soc. Sci. Dir. 2013, 2, 1–20. [Google Scholar] [CrossRef][Green Version]
- Kern, L. Feminist City: Claiming Space in a Man-Made World; Verso: London, UK, 2020. [Google Scholar]
- Denèfle, S. Utopies Féministes et Expérimentations Urbaines; Presses universitaires de Rennes: Rennes, France, 2009. [Google Scholar]
- Mosconi, N.; Paoletti, M.; Raibaud, Y. Le genre, la ville. Trav. Genre Soc. 2015, 33, 23–28. [Google Scholar] [CrossRef]
- Power, K. The COVID-19 pandemic has increased the care burden of women and families. Sustain. Sci. Pract. Policy 2020, 16, 67–73. [Google Scholar] [CrossRef]
- Jarvis, H. Saving space, sharing time: Integrated infrastructures of daily life in cohousing. Environ. Plan. A 2011, 43, 560–577. [Google Scholar] [CrossRef]
- Salembier, C. Questionner “l’Habiter” en Temps de Transition Post-Communiste: Du Corps au Monde: Parcours Ethnographique des Espaces d’un Quartier Menacé D’expulsion; Université catholique de Louvain: Louvain-la-Neuve, Belgium, 2015. [Google Scholar]
- Moser, C. Gender planning in the third world: Meeting practical and strategic gender needs. World Dev. 1989, 17, 1799–1825. [Google Scholar] [CrossRef]
- Delphy, C. L’ennemi Principal: Penser le Genre; Éd. Syllepse: Paris, France, 2001. [Google Scholar]
- Horelli, L.; Vepsä, K. In Search of Supportive Structures for Everyday Life. In Women and the Environment; Altman, I., Churchman, A., Eds.; Plenum Press: New York, NY, USA, 1994; pp. 201–226. [Google Scholar] [CrossRef]
- Federici, S. Falling Wall Press and the Power of Women. In Wages against Housework; National Library of Australia: Canberra, Australia, 1975. [Google Scholar]
- Benería, L.; Sen, G. Class and Gender Inequalities and Women’s Role in Economic Development: Theoretical and Practical Implications. Fem. Stud. 1982, 8, 157–176. [Google Scholar] [CrossRef]
- Pugh, C. A new approach to housing theory: Sex, gender and the domestic economy. Hous. Stud. 1990, 5, 112–129. [Google Scholar] [CrossRef]
- Bowlby, S.; Gregory, S.; McKie, L. “Doing home”: Patriarchy, caring, and space. Women Stud. Int. Forum 1997, 20, 343–350. [Google Scholar] [CrossRef]
- Mencarini, L.; Sironi, M. Happiness, Housework and Gender Inequality in Europe. Eur. Sociol. Rev. 2012, 28, 203–219. [Google Scholar] [CrossRef]
- Herla, R. Apports féministes à la critique du travail. In Collectif Contre les Violences Familiales et L’exclusion; CVFE asbl: Brussels, Belgium, 2018. [Google Scholar]
- Tummers, L. The re-emergence of self-managed co-housing in Europe: A critical review of co-housing research. Urban Stud. Int. J. Res. Urban Stud. 2016, 2016, 1–19. [Google Scholar] [CrossRef]
- McCamant, K.; Durrett, C. Cohousing—A Contemporary Approach to Housing Ourselves; Ten Speed Press: Berkeley, CA, USA, 1988. [Google Scholar]
- Bouchain, P. Construire Ensemble le Grand Ensemble: Habiter Autrement; Actes Sud: Paris, France, 2010. [Google Scholar]
- Ring, K. Self Made City; Jovis: Berlin, Germany, 2013. [Google Scholar]
- Van Geest, J. A generation that is growing up that can’t even share a single facility. In Building Together. The Architecture of Collective Private Commissions. Samen Bouwen. De Architectuur van Het Collectief Particulier Opdrachtgeverschap; Housing, D., Ed.; DASH|Delft Architectural Studies on Housing: Delft, The Netherlands, 2013; Volume 8, pp. 48–58. [Google Scholar]
- Czischke, D. Collaborative housing and housing providers: Towards an analytical framework of multi-stakeholder collaboration in housing co-production. Int. J. Hous. Policy 2018, 18, 55–81. [Google Scholar] [CrossRef]
- Vestbro, D.U. From central kitchen to community cooperation: Development of collective housing in Sweden. Open House Int. 1992, 17, 30–38. [Google Scholar]
- Dessouroux, C.; Bensliman, R.; Bernard, N.; De Laet, S.; Demonty, F.; Marissal, P.; Surkyn, J. Le logement à Bruxelles: Diagnostic et enjeux. Bruss. Stud. 2016, 99. [Google Scholar] [CrossRef]
- Criekingen, V. ‘Gentrifying the re-urbanisation debate’, not vice versa: The uneven socio-spatial implications of changing transitions to adulthood in Brussels. Popul. Space Place 2010, 16, 381–394. [Google Scholar] [CrossRef]
- Lenel, E.; Demonty, F.; Schaut, C. Les expériences contemporaines de co-habitat en Région de Bruxelles-Capitale. Bruss. Stud. 2020, 142. [Google Scholar] [CrossRef]
- Metamorfose Project Team. CôtéKaNaL, L’histoire D’un Achat Collectif; Metamorfose Project Team: Brussels, Belgium, 2004. [Google Scholar]
- Kaufmann, J.-C. L’entretien Compréhensif; Armand Colin: Paris, France, 2011. [Google Scholar]
- Kaufmann, J.-C. Casseroles, Amour et Crises. Ce Que Cuisiner Veut Dire; Armand Colin: Paris, France, 2005. [Google Scholar]
- Horelli, L. Self-planned housing and the reproduction of gender and identity. In Gender and the Built Environment; Ottes, L., Poventud, E., van Schendelen, M., Segond von Banchet, G., Eds.; Van Gorcum: Assen, The Netherlands, 1995. [Google Scholar]
- Règlement Régional d’Urbanisme. Arrêté du Gouvernement de la Région de Bruxelles-Capitale du 21 Novembre 2006; Règlement Régional d’Urbanisme: Région de Bruxelles-Capitale: Brussels, Belgium, 2006. [Google Scholar]
- Haircault, M. La gestionordinairedelavieendeux. Sociol. Travail 1984, 26, 268–277. [Google Scholar]
- De la Pena Valdivia, M. Outils de L’approche Genre, Collection; Le Monde selon les femmes: Brussels, Belgium, 2016. [Google Scholar]
- Gorz, A. Métamorphoses du Travail: Quête du Sens. Critique de la Raison Économique; Essais, F., Ed.; Éditions Galilée: Paris, France, 1988. [Google Scholar]
- Kan, M.Y.; Sullivan, O.; Gershuny, J. Gender Convergence in Domestic Work: Discerning the Effects of Interactional and Institutional Barriers from Large-scale Data. Sociology 2011, 45, 234–251. [Google Scholar] [CrossRef]
- Ledent, G.; Salembier, C.; Vanneste, D. Sustainable Dwelling. Between Spatial Polyvalence and Residents’ Empowerment; Presses Universitaires de Louvain: Louvain-la-Neuve, Belgium, 2019. [Google Scholar]
- Boer, R.; Minkjan, M. Self-Builds: Between Unruly Real Estate Markets and Failed Housing Policies. In Proceedings of the International Architecture Biennale Rotterdam, Rotterdam, The Netherlands, 1–8 July 2018. [Google Scholar]
- Bresson, S. L’habitat participatif en France: Une alternative sociale à la « crise »? Les Cahiers de Cost 2016, 5, 107–119. [Google Scholar]













| CHORE | SPHERE | RESIDENTS | CHARACTERISATION | PLACES | CHARACTERISATION |
|---|---|---|---|---|---|
| COOKING | Private | Men take care of the exceptional meals while women do the day-to-day meals and often the washing up | I enjoy it. He cooks better and does it faster. He does more extravagant meals and shops accordingly while I do the day-to-day basics. I can have a drink with friends while preparing dinner. | Private kitchen | Open space Very visible and relatively large Centrally located in the dwelling Not just a kitchen (also a place to talk, to play (swing in one of the kitchens)) |
| Collective | Men tend to do a greater share of the collective meals although it seems more egalitarian | It’s a relief to know that the meal is already made by someone else. I see the preparation of the collective meal as a burden. | At home Collective room Garden (bbq) | Open and very visible space Centrally located Professional kitchen Shared amenities (bbq, raclette grill, ice cream maker, etc.) | |
| CHILDCARE | Private | Women take care of bathing, clothing and preparing school bags while waking up and taking the children to school/kindergarten are usually shared duties | I’m the one who takes care of bathing and clothing. We alternately take care of the morning duties. When he takes the kids to school, I still prepare the bags myself to make sure everything is there. Sometimes, the collective spaces are making it difficult to bring the kids back to our home. | Bedrooms Bathrooms | Generally small rooms Small, and usually without windows Standard and practical spaces |
| Collective | All residents leave the children to play in the collective spaces. Children mobility is a shared task. Women organise clothing chains + breastfeeding in the garden. Specific groups are set up to take care of the kids | Kids take care of themselves in the cohousing I leave the kids to play in the collective garden when I come home from school so that I can go back to work. Most of us bike to school with the kids. We rarely share rides with other kids on a regular basis. It is usually improvised. There is a group that organises activities for the children, according to their age. We wanted to take care of our children and in fact, in the co-habitat, we really found the solution. | Garden Collective room (l’Echappée) Bike garage | Open to all Closed off from the public realm Generally seen from most dwellings | |
| LAUNDRY | Private | Men and women do the washing but the tasks of hanging, folding and putting the laundry away is usually taken care of by women | He does not fold well. I prefer to store the clothes myself. | Dark closet Bathroom | Residual spaces Poor quality of spaces Usually not a dedicated space from the start |
| Collective | Men tend to take care of the laundry in a more egalitarian way. Women organise empty dressing room and share clothes | We often share clothes with other women of the community. That the guy does not do the laundry while his wife is a real feminist. The washing machines were pooled at the beginning of the project. | Bright room (l’Echappée, none in Casa Nova) | In the circulation space Visible Shared amenities (the machines are commonly owned) | |
| GARDENING | Private | Mostly men | Nobody takes care of my plants! I would like to plant a hedge. | Terraces Private gardens (rare) | Visible (+ complaints that make it even more visible |
| Collective | Usually a shared chore | We take care of the garden on the ‘Minga’ days. | Collective garden Vegetable garden (project) | Collective groups of gardening (mixed in Casa Nova) Minga day (l’Echappée) | |
| ADMINISTRATION | Private | Shared or done by women. Men usually take care of the long-term duties | He does the paper work and I take care of everything that comes through internet. He takes care of the care lease and the home insurance. | / | / |
| Collective | Shared or done by women. Syndic: two women in Casa Nova | Administrative work is taken care of by a specific group. | / | / | |
| MAINTENANCE | Private | Mostly men | I did a lot of the works myself. He is in charge of calling the contractors if there is a problem at home. | Fitting out the dwellings | Very visible Sometimes help from the dads of the couple |
| Collective | Shared chores since more competences are put together | Our female neighbour is incredibly good at tinkering and she has all the tools … so she coordinated the heavy works in the collective room. | Collective spaces (swings, tables, mezzanine space) | Very visible Minga day (l’Echappée) | |
| CLEANING | Private | Outsourced generally. Women usually take a greater part in tidying | We both hate cleaning. We have a different conception of what ‘tidy’ is. | / | Invisible Cyclic time |
| Collective | Shared on special occasions (Mingas) | It can really be anyone who gets to clean! My male neighbour, who is useless at using a drilling machine ends up cleaning the floor. | / | Not as often as the domestic chore | |
| SHOPPING | Private | Mostly shared | I do it on my day off so we can enjoy the weekend. | / | / |
| Collective | Shared shopping for some foodstuff | I ask my neighbour to get us cheese from the market. | Gasap/Food baskets Shared shopping lists | / |
Publisher’s Note: MDPI stays neutral with regard to jurisdictional claims in published maps and institutional affiliations. |
© 2021 by the authors. Licensee MDPI, Basel, Switzerland. This article is an open access article distributed under the terms and conditions of the Creative Commons Attribution (CC BY) license (https://creativecommons.org/licenses/by/4.0/).
Share and Cite
Ledent, G.; Salembier, C. Co-Housing to Ease and Share Household Chores? Spatial Visibility and Collective Deliberation as Levers for Gender Equality. Buildings 2021, 11, 189. https://doi.org/10.3390/buildings11050189
Ledent G, Salembier C. Co-Housing to Ease and Share Household Chores? Spatial Visibility and Collective Deliberation as Levers for Gender Equality. Buildings. 2021; 11(5):189. https://doi.org/10.3390/buildings11050189
Chicago/Turabian StyleLedent, Gérald, and Chloé Salembier. 2021. "Co-Housing to Ease and Share Household Chores? Spatial Visibility and Collective Deliberation as Levers for Gender Equality" Buildings 11, no. 5: 189. https://doi.org/10.3390/buildings11050189
APA StyleLedent, G., & Salembier, C. (2021). Co-Housing to Ease and Share Household Chores? Spatial Visibility and Collective Deliberation as Levers for Gender Equality. Buildings, 11(5), 189. https://doi.org/10.3390/buildings11050189
