Seismic Upgrading of a Historical Masonry Bell Tower through an Internal Dissipative Steel Structure
Abstract
:1. Introduction
2. Historical Analysis
- (1)
- (XI–XII century)—On the site of the current Church of San Zenone there was a primitive church dedicated to San Leucio, owned by the Sabine abbey of “Santa Maria di Farfa”, an ecclesiastical body.
- (2)
- (1171)—The in-office bishop demolished the church and the construction of the Church of San Zenone began, as attested by a walled inscription inside the church (Figure 3a). The main entrance portal was realized with features that can still be appreciated today.
- (3)
- (1222)—Refurbishment of the construction, as attested by the inscription placed above the rose window (Figure 3b); the church was given a new configuration with three naves, each ending with a semicircular apse. New single lancet windows were made in the clerestory, to provide light inside, as well as a large rose window made of white stone.
- (4)
- (1422)—Construction of a bell tower, located to the right of the main facade. The bell tower is square in plan and was built using brick masonry, punctuated by half pilaster, small arches and the single lancet windows of the bell cell. The cuspidate roof (as depicted in a celebratory coin in Figure 3c) was damaged because it was repeatedly struck by lightning and thus it was rebuilt between 1624 and 1634.
- (5)
- (Second half of the 18th century)—The church was modernized according to the design of the architect Pietro Augustoni, who maintained the three-nave structure, the main facade and the tower, making a neoclassical modification to the interior. The internal works also involved modifications to the outer part where the pitched roof of the side naves was lowered to make way for the larger windows, which replaced the original single lancet windows.
- (6)
- (Second half of the 19th century)—The pinnacle of the bell tower collapsed and was replaced with a simple hip roof.
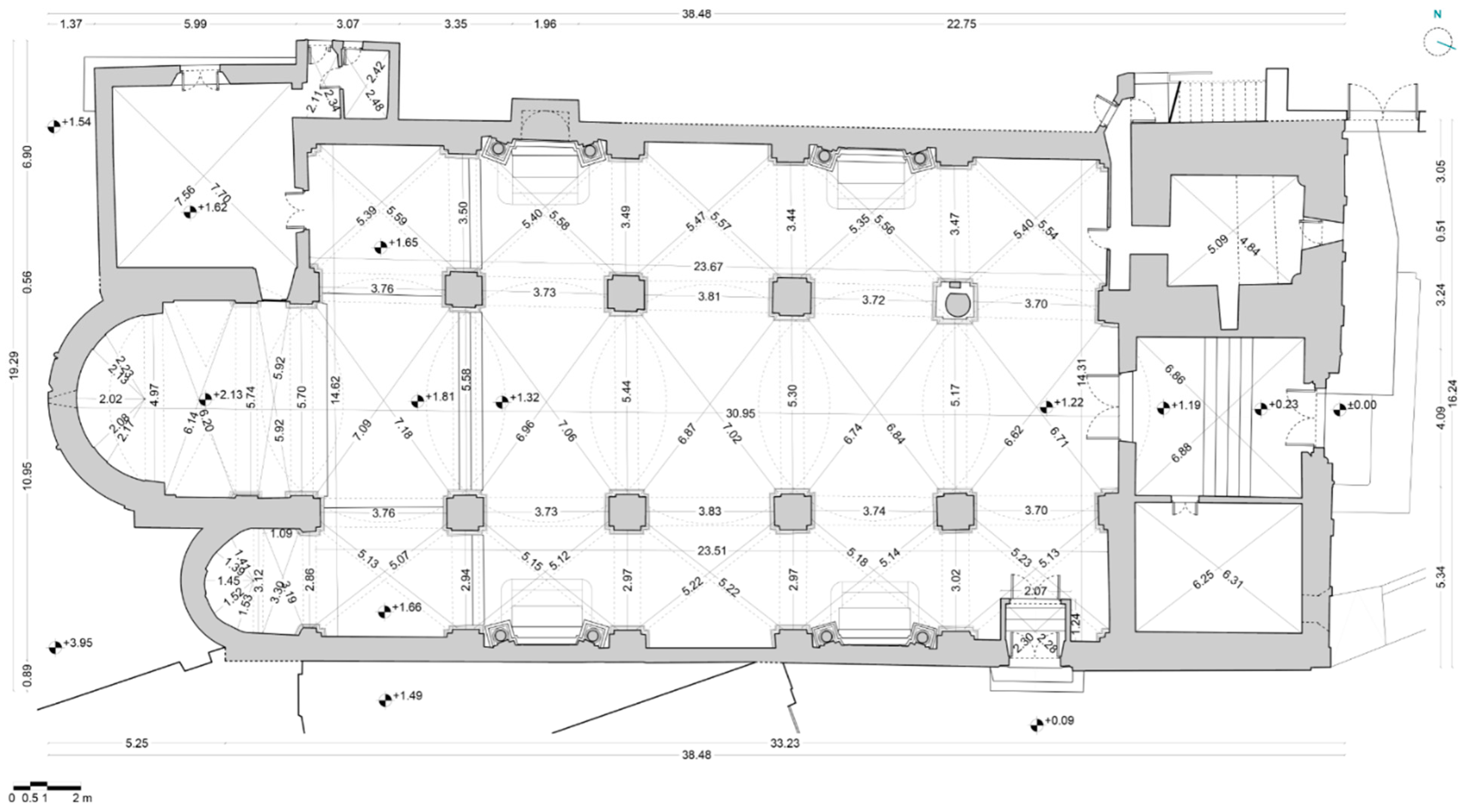
2.1. Methodology for the Geometric and Architectural Survey
2.2. Materials, Construction Techniques and Pathologies of Decay
2.3. Foundation and Soil Characterization
2.4. Survey of the Damage after the 2016–2017 Central Italy Earthquakes and Safety Interventions
2.5. Seismic Hazard
3. Preliminary Study for Seismic Upgrading through a Steel Dissipative Tower
3.1. Structural Model of the Masonry Tower and Modal Properties
3.2. Ground Motion Samples
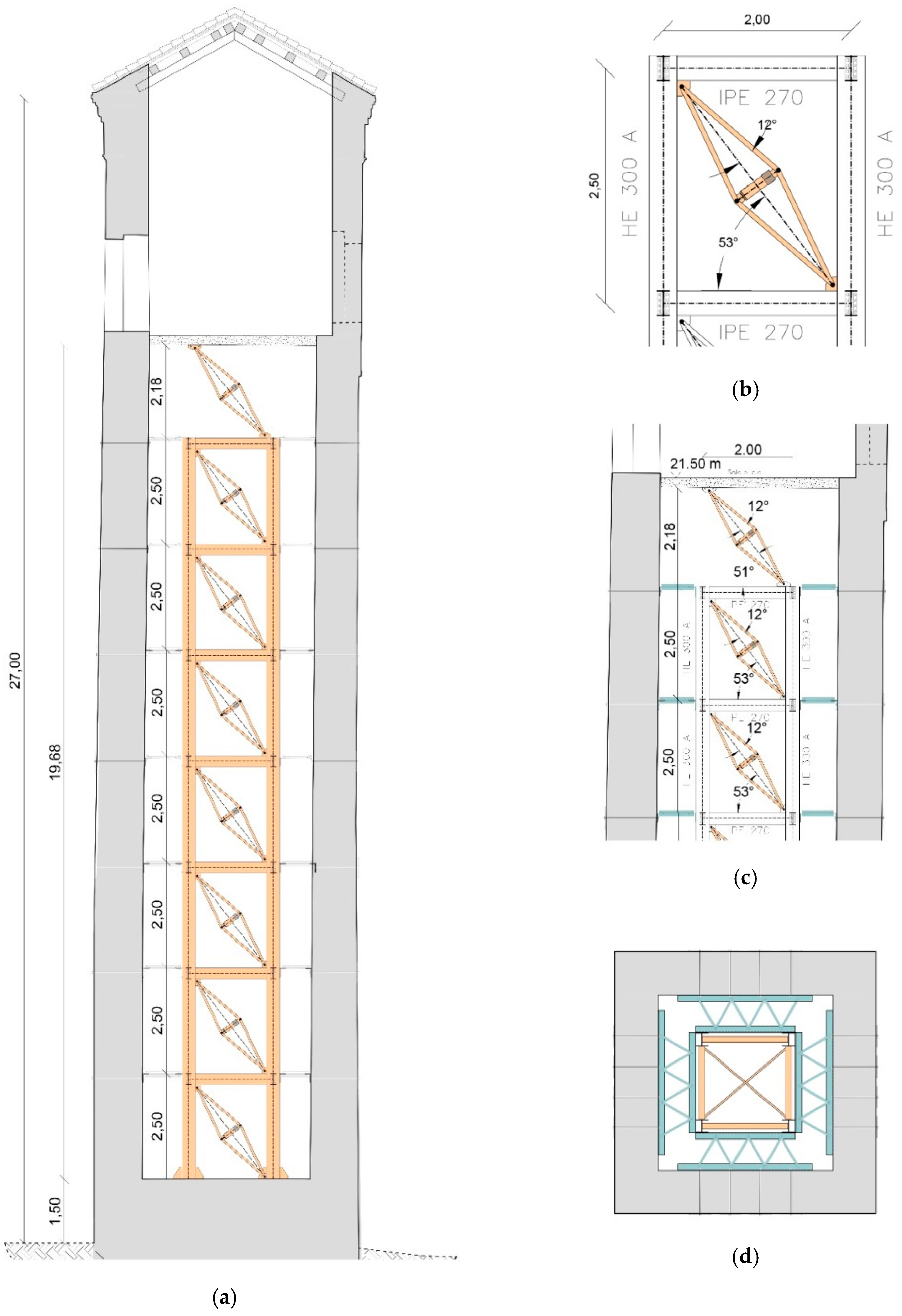
3.3. Design of the Steel Tower with Dissipative Devices
3.4. Structural Analyses for the Evaluation of the Expected Structural Performance after Seismic Upgrading
4. Discussion and Conclusions
Author Contributions
Funding
Institutional Review Board Statement
Informed Consent Statement
Data Availability Statement
Acknowledgments
Conflicts of Interest
References
- Lagomarsino, S. Damage assessment of churches after L’Aquila earthquake (2009). Bull. Earthq. Eng. 2012, 10, 73–92. [Google Scholar] [CrossRef]
- Brandonisio, G.; Lucibello, G.; Mele, E.; De Luca, A. Damage and performance evaluation of masonry churches in the 2009 L’Aquila earthquake. Eng. Fail. Anal. 2013, 34, 693–714. [Google Scholar] [CrossRef]
- Penna, A.; Morandi, P.; Rota, M.; Manzini, C.F.; Da Porto, F.; Magenes, G. Performance of masonry buildings during the Emilia 2012 earthquake. Bull. Earthq. Eng. 2014, 12, 2255–2273. [Google Scholar] [CrossRef]
- Penna, A.; Calderini, C.; Sorrentino, L.; Carocci, C.F.; Cescatti, E.; Sisti, R.; Borri, A.; Modena, C.; Prota, A. Damage to churches in the 2016 Central Italy earthquakes. Bull. Earthq. Eng. 2019, 17, 5763–5790. [Google Scholar] [CrossRef]
- Sorrentino, L.; Cattari, S.; Da Porto, F.; Magenes, G.; Penna, A. Seismic behaviour of ordinary masonry buildings during the 2016 Central Italy earthquakes. Bull. Earthq. Eng. 2019, 17, 5583–5607. [Google Scholar] [CrossRef] [Green Version]
- Carbonari, S.; Dall’Asta, A.; Dezi, L.; Gara, F.; Leoni, G.; Morici, M.; Prota, A.; Zona, A. First analysis of data concerning damage occurred to churches of the Marche region following the 2016 Central Italy earthquakes. Boll. Geofis. Teor. Appl. 2019, 60, 183–196. [Google Scholar] [CrossRef]
- Canuti, C.; Carbonari, S.; Dall’Asta, A.; Dezi, L.; Gara, F.; Leoni, G.; Morici, M.; Petrucci, E.; Prota, A.; Zona, A. Post-earthquake damage and vulnerability assessment of churches in the Marche region struck by the 2016 Central Italy seismic sequence. Int. J. Archit. Heritage 2019, 1–22. [Google Scholar] [CrossRef]
- Morici, M.; Canuti, C.; Dall’Asta, A.; Leoni, G. Empirical predictive model for seismic damage of historical churches. Bull. Earthq. Eng. 2020, 18, 6015–6037. [Google Scholar] [CrossRef]
- Cescatti, E.; Salzano, P.; Casapulla, C.; Ceroni, F.; Da Porto, F.; Prota, A. Damages to masonry churches after 2016–2017 Central Italy seismic sequence and definition of fragility curves. Bull. Earthq. Eng. 2020, 18, 297–329. [Google Scholar] [CrossRef]
- Ruggieri, S.; Tosto, C.; Rosati, G.; Uva, G.; Ferro, G.A. Seismic vulnerability analysis of masonry churches in Piemonte after 2003 Valle Scrivia earthquake: Post-event screening and situation 17 years later. Int. J. Archit. Heritage 2020, 1–29. [Google Scholar] [CrossRef]
- Casolo, S. A three-dimensional model for vulnerability analysis of slender medieval masonry towers. J. Earthq. Eng. 1998, 2, 487–512. [Google Scholar] [CrossRef]
- Riva, P.; Perotti, F.; Guidoboni, E.; Boschi, E. Seismic analysis of the Asinelli Tower and earthquakes in Bologna. Soil Dynam. Earthq. Eng. 1998, 17, 525–550. [Google Scholar] [CrossRef]
- Carpinteri, A.; Invernizzi, S.; Lacidogna, G. In situ damage assessment and nonlinear modelling of a historical masonry tower. Eng. Struct. 2005, 27, 387–395. [Google Scholar] [CrossRef]
- Ceroni, F.; Pecce, M.; Voto, S.; Manfredi, G. Historical, architectural, and structural assessment of the bell tower of Santa Maria del Carmine. Int. J. Archit. Herit. 2009, 3, 169–194. [Google Scholar] [CrossRef]
- Anzani, A.; Binda, L.; Carpinteri, A.; Invernizzi, S.; Lacidogna, G. A multilevel approach for the damage assessment of historic masonry towers. J. Cult. Herit. 2010, 11, 459–470. [Google Scholar] [CrossRef]
- Pena, F.; Lourenço, P.B.; Mendez, N.; Oliveira, D. Numerical models for the seismic assessment of an old masonry tower. Eng. Struct. 2010, 32, 1466–1478. [Google Scholar] [CrossRef] [Green Version]
- Milani, G.; Russo, S.; Pizzolato, M.; Tralli, A. Seismic behavior of the San Pietro di Coppito church bell tower in Italy. Open Civ. Eng. J. 2012, 6, 131–147. [Google Scholar] [CrossRef]
- Milani, G.; Casolo, S.; Naliato, A.; Tralli, A. Seismic assessment of a medieval masonry tower in Northern Italy by limit, non-linear static and full dynamic analyses. Int. J. Archit. Herit. 2012, 6, 489–524. [Google Scholar] [CrossRef]
- Casolo, S.; Milani, G.; Uva, G.; Alessandri, C. Comparative seismic vulnerability analysis on ten masonry towers in the coastal Po Valley in Italy. Eng. Struct. 2013, 49, 465–490. [Google Scholar] [CrossRef]
- Acito, M.; Bocciarelli, M.; Chesi, C.; Milani, G. Collapse of the clock tower in Finale Emilia after the May 2012 Emilia Romagna earthquake sequence: Numerical insight. Eng. Struct. 2014, 72, 70–91. [Google Scholar] [CrossRef]
- Lagomarsino, S. Seismic assessment of rocking masonry structures. Bull. Earthq. Eng. 2015, 13, 97–128. [Google Scholar] [CrossRef]
- Salvatori, L.; Marra, A.M.; Bartoli, G.; Spinelli, P. Probabilistic seismic performance of masonry towers: General procedure and a simplified implementation. Eng. Struct. 2015, 94, 82–95. [Google Scholar] [CrossRef]
- Penna, A. Seismic assessment of existing and strengthened stone-masonry buildings: Critical issues and possible strategies. Bull. Earthq. Eng. 2015, 13, 1051–1071. [Google Scholar] [CrossRef]
- Valente, M.; Milani, G. Non-linear dynamic and static analyses on eight historical masonry towers in the North-East of Italy. Eng. Struct. 2016, 114, 241–270. [Google Scholar] [CrossRef]
- Valente, M.; Milani, G. Seismic assessment of historical masonry towers by means of simplified approaches and standard FEM. Constr. Build. Mater. 2016, 108, 74–104. [Google Scholar] [CrossRef]
- Pineda, P. Collapse and upgrading mechanisms associated to the structural materials of a deteriorated masonry tower. Nonlinear assessment under different damage and loading levels. Eng. Fail. Anal. 2016, 63, 72–93. [Google Scholar] [CrossRef]
- Marra, A.M.; Salvatori, L.; Spinelli, P.; Bartoli, G. Incremental dynamic and nonlinear static analyses for seismic assessment of medieval masonry towers. J. Perform. Constr. Facil. 2017, 31, 04017032. [Google Scholar] [CrossRef]
- Sarhosis, V.; Milani, G.; Formisano, A.; Fabbrocino, F. Evaluation of different approaches for the estimation of the seismic vulnerability of masonry towers. Bull. Earthq. Eng. 2018, 16, 1511–1545. [Google Scholar] [CrossRef] [Green Version]
- Milani, G. Fast vulnerability evaluation of masonry towers by means of an interactive and adaptive 3D kinematic limit analysis with pre-assigned failure mechanisms. Int. J. Archit. Herit. 2019, 13, 941–962. [Google Scholar] [CrossRef]
- Ivorra, S.; Pallarés, F.J. Dynamic investigations on a masonry bell tower. Eng. Struct. 2006, 28, 660–667. [Google Scholar] [CrossRef]
- Bayraktar, A.; Türker, T.; Sevim, B.; Altunişik, A.C.; Yildirim, F. Modal parameter identification of Hagia Sophia bell-tower via ambient vibration test. J. Nondestr. Eval. 2009, 28, 37–47. [Google Scholar] [CrossRef]
- Foti, D.; Diaferio, M.; Giannoccaro, N.I.; Mongelli, M. Ambient vibration testing, dynamic identification and model updating of a historic tower. NDT e Int. 2012, 47, 88–95. [Google Scholar] [CrossRef]
- Gentile, C.; Guidobaldi, M.; Saisi, A. One-year dynamic monitoring of a historic tower: Damage detection under changing environment. Meccanica 2016, 51, 2873–2889. [Google Scholar] [CrossRef] [Green Version]
- Cavalagli, N.; Comanducci, G.; Ubertini, F. Earthquake-induced damage detection in a monumental masonry bell-tower using long-term dynamic monitoring data. J. Earthq. Eng. 2018, 22, 96–119. [Google Scholar] [CrossRef]
- Dall’Asta, A.; Leoni, G.; Meschini, A.; Petrucci, E.; Zona, A. Integrated approach for seismic vulnerability analysis of historic massive defensive structures. J. Cult. Herit. 2019, 35, 86–98. [Google Scholar] [CrossRef]
- Grazzini, A.; Chiabrando, F.; Foti, S.; Sammartano, G.; Spanò, A. A multidisciplinary study on the seismic vulnerability of St. Agostino Church in Amatrice following the 2016 seismic sequence. Int. J. Archit. Herit. 2020, 14, 885–902. [Google Scholar] [CrossRef]
- Modena, C.; Valluzzi, M.R.; Tongini Folli, R.; Binda, L. Design choices and intervention techniques for repairing and strengthening of the Monza cathedral bell-tower. Constr. Build. Mater. 2002, 16, 385–395. [Google Scholar] [CrossRef]
- Valluzzi, M.R.; Binda, L.; Modena, C. Mechanical behaviour of historic masonry structures strengthened by bed joints structural repointing. Constr. Build. Mater. 2005, 19, 63–73. [Google Scholar] [CrossRef]
- Cosenza, E.; Iervolino, I. Case study: Seismic retrofitting of a medieval bell tower with FRP. J. Compos. Constr. 2007, 11, 319–327. [Google Scholar] [CrossRef] [Green Version]
- Milani, G.; Shehu, R.; Valente, M. A kinematic limit analysis approach for seismic retrofitting of masonry towers through steel tie-rods. Eng. Struct. 2018, 160, 212–228. [Google Scholar] [CrossRef]
- Formisano, A.; Milani, G. Seismic vulnerability analysis and retrofitting of the SS. Rosario Church Bell Tower in Finale Emilia (Modena, Italy). Front. Built Environ. 2019, 5, 70. [Google Scholar] [CrossRef]
- Preciado, A.; Sperbeck, S.T.; Ramírez-Gaytán, A. Seismic vulnerability enhancement of medieval and masonry bell towers externally prestressed with unbonded smart tendons. Eng. Struct. 2016, 122, 50–61. [Google Scholar] [CrossRef]
- Preciado, A.; Budelmann, H.; Bartoli, G. Earthquake protection of colonial bell towers in Colima, Mexico with externally prestressed FRPS. Int. J. Archit. Herit. 2016, 10, 499–515. [Google Scholar] [CrossRef]
- Preciado, A.; Bartoli, G.; Ramírez-Gaytán, A. Earthquake protection of the Torre Grossamedieval tower of San Gimignano, Italy by vertical external prestressing. Eng. Fail. Anal. 2017, 71, 31–42. [Google Scholar] [CrossRef]
- Preciado, A.; Ramirez-Gaytan, A.; Gutierrez, N.; Vargas, D.; Falcon, J.M.; Ochoa, G. Nonlinear earthquake capacity of slender old masonry structures prestressed with steel, FRP and NiTi SMA tendons. Steel Compos. Struct. 2018, 26, 213–226. [Google Scholar] [CrossRef]
- De Stefani, L.; Scotta, R.; Lazzari, M.; Saetta, A. Seismic improvement of slender masonry tower by using hysteretic devices and partial prestressing technique. Bull. Earthq. Eng. 2014, 12, 829–853. [Google Scholar] [CrossRef]
- Habieb, A.H.; Valente, M.; Milani, G. Effectiveness of different base isolation systems for seismic protection: Numerical insights into an existing masonry bell tower. Soil Dyn. Earthq. Eng. 2019, 125, 105752. [Google Scholar] [CrossRef]
- Jurina, L. La “Torre nella Torre: Due casi di consolidamento a Pavia. In Proceedings of the REUSO 2016, IV Convegno Internazionale Sulla Documentazione, Conservazione e Recupero del Patrimonio Architettonico e Sulla Tutela Paesaggistica, Pavia, Italy, 6–8 October 2016; Parrinello, S., Besana, D., Eds.; Edifir Edizioni: Firenze, Italy, 2016. [Google Scholar]
- Gioiella, L.; Tubaldi, E.; Gara, F.; Dezi, L.; Dall’Asta, A. Modal properties and seismic behaviour of buildings equipped with external dissipative pinned rocking braced frames. Eng. Struct. 2018, 172, 807–818. [Google Scholar] [CrossRef] [Green Version]
- Gioiella, L.; Tubaldi, E.; Gara, F.; Dezi, L.; Dall’Asta, A. Stochastic seismic analysis and comparison of alternative external dissipative systems. Shock Vib. 2018, 5403737. [Google Scholar] [CrossRef] [Green Version]
- Foti, D.; Ruggiero, F.; Sabbà, M.F.; Lerna, M. A dissipating frames for seismic retrofitting and building energy-efficiency. Infrastructures 2020, 5, 74. [Google Scholar] [CrossRef]
- Tubaldi, E.; Gioiella, L.; Scozzese, F.; Ragni, L.; Dall’Asta, A. A design method for viscous dampers connecting adjacent structures. Front. Built Environ. 2020, 6, 25. [Google Scholar] [CrossRef] [Green Version]
- Scozzese, F.; Dall’Asta, A.; Tubaldi, E. Seismic risk sensitivity of structures equipped with anti-seismic devices with uncertain properties. Struct. Saf. 2019, 77, 30–47. [Google Scholar] [CrossRef] [Green Version]
- Pavlou, E.; Constantinou, M.C. Response of nonstructural components in structures with damping systems. J. Struct. Eng. 2006, 132, 1108–1117. [Google Scholar] [CrossRef]
- Cipolletti, C. Fermo. Storia Artistica della Città del Girfalco; Andrea Livi Editore: Fermo, Italy, 2009; pp. 138–143. [Google Scholar]
- Di Nicolò, A. Cronaca della Città di Fermo; Andrea Livi Editore: Fermo, Italy, 2008; p. 178. [Google Scholar]
- Maranesi, F. Guida Storica e Artistica della Città di Fermo; Andrea Livi Editore: Fermo, Italy, 1957; pp. 136–137. [Google Scholar]
- Tomei, L. Genesi e Primi Sviluppi del Comune della Marca Meridionale in Società e Cultura della Marca Meridionale tra alto e Basso Medioevo. Atti del 4° Seminario di Studi per Personale Direttivo e Docente della Scuola; Media Print 2000: Grottammare, Italy, 1995; pp. 258–270. [Google Scholar]
- Trebbi, F.; Filoni Guerrieri, G. La Chiesa Metropolitana di Fermo. Erezione della Chiesa Cattedrale di Fermo a Metropolitana; Andrea Livi Editore: Fermo, Italy, 1890; pp. 168–169. [Google Scholar]
- Catalani, M. De ecclesia firmana. In I Vescovi e gli Arcivescovi della Chiesa Fermana; Andrea Livi Editore: Fermo, Italy, 2012; p. 203. [Google Scholar]
- Guidi, E. Il Romanico Nella Marca Fermana; Arti Grafiche Motta: Milano, Italy, 2002; p. 16. [Google Scholar]
- UNI 11182:2006, Beni Culturali-Materiali Lapidei Naturali ed Artificiali-Descrizione della Forma di Alterazione-Termini e definizioni; Ente Italiano di Normazione: Roma, Italy, 2006.
- European Committee for Standardization. Eurocode 8-Design of Structures for Earthquake Resistance. Part 1: General Rules, Seismic Actions and Rules for Buildings; European Committee for Standardization: Brussels, Belgium, 2004. [Google Scholar]
- Laurenzano, G.; Barnaba, C.; Romano, M.A.; Priolo, E.; Bertoni, M.; Bragato, P.L.; Comelli, P.; Dreossi, I.; Garbin, M. The Central Italy 2016–2017 seismic sequence: Site response analysis based on seismological data in the Arquata del Tronto–Montegallo municipalities. Bull. Earthq. Eng. 2018, 17, 5449–5469. [Google Scholar] [CrossRef] [Green Version]
- Luzi, L.; Pacor, F.; Puglia, R.; Lanzano, G.; Felicetta, C.; D’Amico, M.; Michelini, A.; Faenza, L.; Lauciani, V.; Iervolino, I.; et al. The central Italy seismic sequence between August and December 2016: Analysis of strong-motion observations. Seismol. Res. Lett. 2017, 88, 1219–1231. [Google Scholar] [CrossRef]
- Stucchi, M.; Meletti, C.; Montaldo, V.; Akinci, A.; Faccioli, E.; Gasperini, P.; Malagnini, L.; Valensise, G. Pericolosità Sismica di Riferimento per il Territorio Nazionale MPS04 [Data Set]; Istituto Nazionale di Geofisica e Vulcanologia (INGV): Roma, Italy, 2004; (In Italian). [CrossRef]
- Kramer, S.L. Geotechnical Earthquake Engineering; Prentice-Hall: Englewood Cliffs, NJ, USA, 2003. [Google Scholar]
- Au, S.K.; Beck, J.L. Subset simulation and its application to seismic risk based on dynamic analysis. J. Eng. Mech. 2003, 129, 901–917. [Google Scholar] [CrossRef]
- Atkinson, G.M.; Silva, W. Stochastic modeling of California ground motions. Bull. Seismol. Soc. Am. 2000, 90, 255–274. [Google Scholar] [CrossRef]
- Boore, D.M. Simulation of ground motion using the stochastic method. Pure Appl. Geophys. 2003, 160, 635–676. [Google Scholar] [CrossRef] [Green Version]
- Hong, H.P.; Liu, T.J. Assessment of coherency for bidirectional horizontal ground motions and its application for simulating records at multiple stations. Bull. Seismol. Soc. Am. 2014, 104, 2491–2502. [Google Scholar] [CrossRef]
- SAP2000, Computers and Structures Inc. v20 Integrated Finite Element Analysis and Design of Structures; Computers and Structures Inc.: Berkely, CA, USA, 2018. [Google Scholar]
- Bathe, K.J.; Dvorkin, E.N. A four-node plate bending element based on Mindlin/Reissner plate theory and a mixed interpolation. Int. J. Numer. Meth. Eng. 1985, 21, 367–383. [Google Scholar] [CrossRef]
- Bartoli, G.; Betti, M.; Vignoli, A. A numerical study on seismic risk assessment of historic masonry towers: A case study in San Gimignano. Bull. Earthq. Eng. 2016, 14, 1475–1518. [Google Scholar] [CrossRef]
- Bartoli, G.; Betti, M.; Monchetti, S. Seismic risk assessment of historic masonry towers: Comparison of four case studies. J. Perf. Constr. Facil. 2017, 31, 04017039. [Google Scholar] [CrossRef] [Green Version]
- Torelli, G.; D’Ayala, D.; Betti, M.; Bartoli, G. Analytical and numerical seismic assessment of heritage masonry towers. Bull. Earthq. Eng. 2020, 18, 969–1008. [Google Scholar] [CrossRef] [Green Version]
- Bartoli, G.; Betti, M.; Galano, L.; Zini, G. Numerical insights on the seismic risk of confined masonry towers. Eng. Struct. 2019, 180, 713–727. [Google Scholar] [CrossRef]
- Pieraccini, M.; Dei, D.; Betti, M.; Bartoli, G.; Tucci, G.; Guardini, N. Dynamic identification of historic masonry towers through an expeditious and no-contact approach: Application to the ‘Torre del Mangia’ in Siena (Italy). J. Cult. Herit. 2014, 15, 275–282. [Google Scholar] [CrossRef]
- Ministero delle Infrastrutture e dei Trasporti. Aggiornamento delle Norme Tecniche per le Costruzioni (NTC2018); Ministero delle Infrastrutture e dei Trasporti: Rome, Italy, 2018. (In Italian)
- Zhu, L.; Guo, P.; Hua, C.; Shan, S. Seismic Performance of an Efficient Scissor-Jack-Damper Configuration. Shock Vib. 2020, 2403640. [Google Scholar] [CrossRef] [Green Version]
- Sigaher, A.N.; Constantinou, M.C. Scissor-jack-damper energy dissipation system. Earthq. Spectra 2003, 19, 133–158. [Google Scholar] [CrossRef]
- European Sections Arcelor Mittal. Available online: https://constructalia.arcelormittal.com/en/products/european_sections (accessed on 7 January 2021).
- De Domenico, D.; Ricciardi, G.; Takewaki, I. Design strategies of viscous dampers for seismic protection of building structures: A review. Soil Dyn. Earthq. Eng. 2019, 118, 144–165. [Google Scholar] [CrossRef]
- Occhiuzzi, A. Additional viscous dampers for civil structures: Analysis of design methods based on effective evaluation of modal damping ratios. Eng. Struct. 2009, 31, 1093–1101. [Google Scholar] [CrossRef]
- Constantinou, M.; Symans, M. Experimental and Analytical Investigation of Seismic Response of Structures with Supplemental Fluid Viscous Dampers; Technical Report NCEER-92-0032; National Center for Earthquake Engineering Research: Buffalo, NY, USA, 1992; pp. 1–25. [Google Scholar]
- Dall’Asta, A.; Scozzese, F.; Ragni, L.; Tubaldi, E. Effect of the damper property variability on the seismic reliability of linear systems equipped with viscous dampers. Bull. Earthq. Eng. 2017, 15, 5025–5053. [Google Scholar] [CrossRef] [Green Version]
- Hwang, J.S.; Lin, W.C.; Wu, N.J. Comparison of distribution methods for viscous damping coefficients to buildings. Struct. Infrastruct. Eng. 2013, 9, 28–41. [Google Scholar] [CrossRef]
- Whittle, J.K.; Williams, M.S.; Karavasilis, T.L.; Blakeborough, A. A comparison of viscous damper placement methods for improving seismic building design. J. Earthq. Eng. 2012, 16, 540–560. [Google Scholar] [CrossRef]
- Pekcan, G.; Mander, J.; Chen, S. Design and Retrofit Methodology for Building Structures with Supplemental Energy Dissipating Systems; Technical Report MCEER-99-0021; University at Buffalo, State University of New York: Buffalo, NY, USA, 1999; pp. 1–177. [Google Scholar]
- Scozzese, F.; Ragni, L.; Tubaldi, E.; Gara, F. Modal properties variation and collapse assessment of masonry arch bridges under scour action. Eng. Struct. 2019, 199, 109–665. [Google Scholar] [CrossRef]
- Scozzese, F.; Tubaldi, E.; Dall’Asta, A. Assessment of the effectiveness of multiple-stripe analysis by using a stochastic earthquake input model. Bull. Earthq. Eng. 2020, 18, 3167–3203. [Google Scholar] [CrossRef]
- Jalayer, F.; Cornell, C.A. Alternative non-linear demand estimation methods for probability-based seismic assessments. Earthq. Eng. Struct. D 2009, 38, 951–972. [Google Scholar] [CrossRef]



























| Mode [–] | T [s] | RX [–] | RY [–] | RZ [–] | ∑RX [–] | ∑RY [–] |
|---|---|---|---|---|---|---|
| 1 | 0.884 | 0.193 | 0.437 | 0.002 | 0.193 | 0.437 |
| 2 | 0.666 | 0.318 | 0.171 | 0.002 | 0.511 | 0.608 |
| 3 | 0.295 | 0.001 | 0.000 | 0.656 | 0.512 | 0.608 |
| 4 | 0.210 | 0.069 | 0.148 | 0.001 | 0.58 | 0.76 |
| 5 | 0.161 | 0.117 | 0.060 | 0.000 | 0.70 | 0.82 |
| 6 | 0.144 | 0.002 | 0.001 | 0.000 | 0.70 | 0.82 |
| 7 | 0.123 | 0.001 | 0.002 | 0.010 | 0.70 | 0.82 |
| 8 | 0.106 | 0.004 | 0.000 | 0.082 | 0.71 | 0.82 |
| 9 | 0.101 | 0.039 | 0.025 | 0.001 | 0.75 | 0.84 |
| 10 | 0.088 | 0.038 | 0.032 | 0.010 | 0.78 | 0.88 |
| 11 | 0.078 | 0.000 | 0.000 | 0.001 | 0.78 | 0.88 |
| 12 | 0.075 | 0.001 | 0.005 | 0.008 | 0.78 | 0.88 |
| 13 | 0.072 | 0.013 | 0.000 | 0.002 | 0.80 | 0.88 |
| 14 | 0.068 | 0.032 | 0.000 | 0.007 | 0.83 | 0.88 |
| 15 | 0.065 | 0.005 | 0.027 | 0.004 | 0.83 | 0.91 |
| 16 | 0.063 | 0.007 | 0.002 | 0.045 | 0.84 | 0.91 |
| 17 | 0.062 | 0.004 | 0.002 | 0.008 | 0.84 | 0.91 |
| 18 | 0.059 | 0.001 | 0.000 | 0.000 | 0.85 | 0.91 |
| ξd [%] | Τ1 [s] | Nd [–] | fi [–] | n [–] |
|---|---|---|---|---|
| 20 | 0.88 | 2 | 2.80 1 | 11 |
| Tower Level [–] | ci [(kN∙s/m)α] |
|---|---|
| 1 | 1000 |
| 2 | 993 |
| 3 | 968 |
| 4 | 927 |
| 5 | 868 |
| 6 | 788 |
| 7 | 676 |
| 8 | 543 |
Publisher’s Note: MDPI stays neutral with regard to jurisdictional claims in published maps and institutional affiliations. |
© 2021 by the authors. Licensee MDPI, Basel, Switzerland. This article is an open access article distributed under the terms and conditions of the Creative Commons Attribution (CC BY) license (http://creativecommons.org/licenses/by/4.0/).
Share and Cite
Pavia, A.; Scozzese, F.; Petrucci, E.; Zona, A. Seismic Upgrading of a Historical Masonry Bell Tower through an Internal Dissipative Steel Structure. Buildings 2021, 11, 24. https://doi.org/10.3390/buildings11010024
Pavia A, Scozzese F, Petrucci E, Zona A. Seismic Upgrading of a Historical Masonry Bell Tower through an Internal Dissipative Steel Structure. Buildings. 2021; 11(1):24. https://doi.org/10.3390/buildings11010024
Chicago/Turabian StylePavia, Arianna, Fabrizio Scozzese, Enrica Petrucci, and Alessandro Zona. 2021. "Seismic Upgrading of a Historical Masonry Bell Tower through an Internal Dissipative Steel Structure" Buildings 11, no. 1: 24. https://doi.org/10.3390/buildings11010024
APA StylePavia, A., Scozzese, F., Petrucci, E., & Zona, A. (2021). Seismic Upgrading of a Historical Masonry Bell Tower through an Internal Dissipative Steel Structure. Buildings, 11(1), 24. https://doi.org/10.3390/buildings11010024

