Fracture Toughness Assessment of Pipeline Steels Under Hydrogen Exposure for Blended Gas Applications
Abstract
1. Introduction
2. Materials
3. Experimental
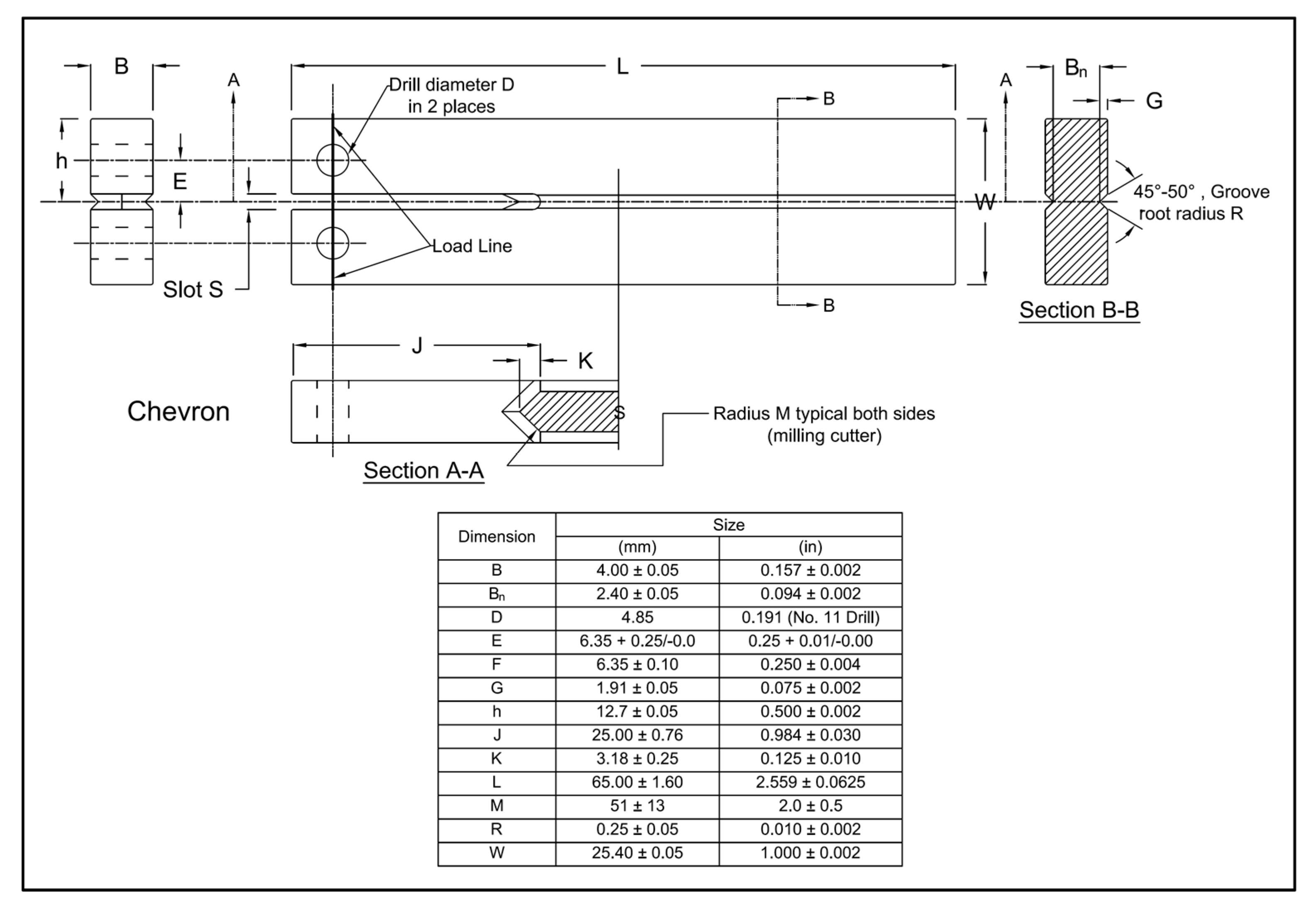
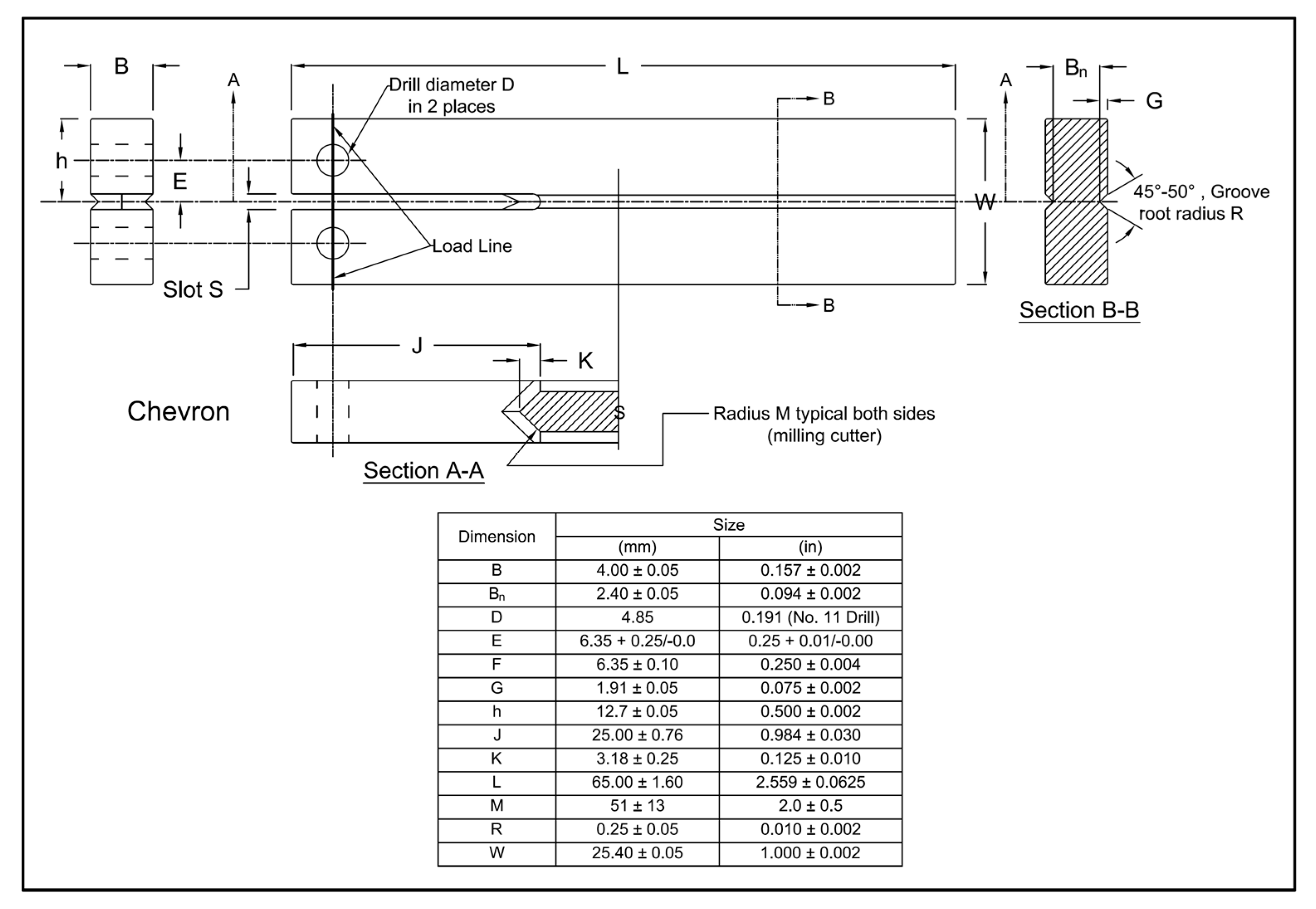
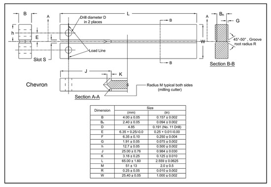
3.1. DCB Test Specimen
3.2. Hydrogen Pre-Charging Using Electrochemical Procedures
3.3. DCB Fracture Test
4. Results and Discussion
- Critical stress intensity factor;
- Lift-off load;
- Crack length;
- Height of each arm;
- DCB test specimen thickness;
- Web thickness.
4.1. Fractography of DCB Specimens
4.2. Conclusions
- ■
- The fracture toughness of N-C1 steel in the uncharged condition was approximately double that of AO-C1 steel, primarily due to differences in microstructure and alloying composition. The lower carbon content in N-C1 steel, combined with the presence of polygonal ferrite in its microstructure, enhances its fracture toughness by increasing the critical strain required for crack nucleation.
- ■
- In a hydrogen-charged condition, AO-C1 showed a limited reduction in fracture toughness, with a 5.5% decrease at 0.5 wppm hydrogen content, while N-C1 experienced a more pronounced 14.1% reduction at the same hydrogen level. The higher susceptibility of N-C1 to HE in terms of fracture toughness can be attributed to its fine-grained microstructure with elongated polygonal ferrite and high-angle grain boundaries (HAGBs), which make crack initiation more sensitive to hydrogen. In contrast, AO-C1’s coarse-grained microstructure with low-angle grain boundaries (LAGBs) inherently offers lower resistance to crack initiation, even in the absence of hydrogen, resulting in less additional impact from hydrogen exposure.
- ■
- The post-test crack growth measurements indicated that AO-C1 steel experiences significantly greater crack propagation compared to N-C1 steel across all the tested hydrogen concentrations, which aligns with differences in the microstructure and tensile test results of hydrogen-charged specimens.
- ■
- Fractographic analysis revealed a shift from ductile to brittle fracture in the hydrogen-charged specimens, particularly in N-C1, as evidenced by cleavage facets and secondary cracks.
- ■
- Conduct in situ gaseous hydrogen experiments on these pipeline steels and measure the hydrogen concentration using thermal desorption spectroscopy (TDS). Linking the CH values obtained under simulated real-world conditions with the results of this study will allow for a more precise evaluation of the effect of hydrogen content on the fracture resistance of pipeline steels.
- ■
- Investigate the impact of different coatings applied to pipeline steels on hydrogen absorption and embrittlement. Understanding how coatings affect hydrogen uptake will provide insights into methods for reducing HE in pipeline systems.
- ■
- Study the impact of temperature on hydrogen absorption and embrittlement. Given the potential variation in temperature along pipeline systems, understanding its effect on hydrogen diffusion and embrittlement is crucial for assessing steel performance under different operating conditions.
Author Contributions
Funding
Data Availability Statement
Conflicts of Interest
References
- Johnson, W.H. On some remarkable changes produced in iron and steel by the action of hydrogen and acids. Nature 1875, 11, 393. [Google Scholar] [CrossRef]
- Cailletet, L. Sur la perméabilité du fer pour l’hydrogén gas à la température ordinaire. Compt. Rend. 1868, 66, 847. [Google Scholar]
- Tunes, M.A.; Uggowitzer, P.J.; Dumitraschkewitz, P.; Willenshofer, P.; Samberger, S.; da Silva, F.C.; Schön, C.G.; Kremmer, T.M.; Antrekowitsch, H.; Djukic, M.B.; et al. Limitations of hydrogen detection after 150 years of research on hydrogen embrittlement. Adv. Eng. Mater. 2024, 26, 2400776. [Google Scholar] [CrossRef]
- Alvaro, A.; Jensen, I.T.; Kheradmand, N.; Løvvik, O.M.; Olden, V. Hydrogen embrittlement in nickel, visited by first principles modeling, cohesive zone simulation and nanomechanical testing. Int. J. Hydrog. Energy 2015, 40, 16892–16900. [Google Scholar] [CrossRef]
- Bhadeshia, H.K.D.H. Prevention of hydrogen embrittlement in steels. ISIJ Int. 2016, 56, 24–36. [Google Scholar] [CrossRef]
- Deng, Y.; Barnoush, A. Hydrogen embrittlement revealed via novel in situ fracture experiments using notched micro-cantilever specimens. Acta Mater. 2018, 142, 236–247. [Google Scholar] [CrossRef]
- Gangloff, R.P.; Somerday, B.P. Gaseous Hydrogen Embrittlement of Materials in Energy Technologies: Mechanisms, Modelling and Future Developments; Elsevier: Amsterdam, The Netherlands, 2012. [Google Scholar]
- Koyama, M.; Akiyama, E.; Lee, Y.K.; Raabe, D.; Tsuzaki, K. Overview of hydrogen embrittlement in high-Mn steels. Int. J. Hydrog. Energy 2017, 42, 12706–12723. [Google Scholar] [CrossRef]
- Lu, X.; Wang, D. Effect of hydrogen on deformation behavior of Alloy 725 revealed by in-situ bi-crystalline micropillar compression test. J. Mater. Sci. Technol. 2021, 67, 243–253. [Google Scholar] [CrossRef]
- Martin, M.L.; Dadfarnia, M.; Nagao, A.; Wang, S.; Sofronis, P. Enumeration of the hydrogen-enhanced localized plasticity mechanism for hydrogen embrittlement in structural materials. Acta Mater. 2019, 165, 734–750. [Google Scholar] [CrossRef]
- Kittel, C.; McEuen, P. Introduction to Solid State Physics; John Wiley & Sons: Hoboken, NJ, USA, 2018. [Google Scholar]
- Smialowski, M. Hydrogen in Steel: Effect of Hydrogen on Iron and Steel During Production, Fabrication, and Use; Elsevier: Amsterdam, The Netherlands, 2014. [Google Scholar]
- Smialowski, M. Chapter 1—Metals and Hydrogen; Smialowski, M., Ed.; Hydrogen in Steel; Pergamon: Oxford, UK, 1962; pp. 1–24. [Google Scholar]
- Herring, D.H. Hydrogen Embrittlement; Wire Forming Technology International: Akron, OH, USA, 2010. [Google Scholar]
- Atrens, A.; Liu, Q.; Zhou, Q.; Venezuela, J.; Zhang, M. Evaluation of automobile service performance using laboratory testing. Mater. Sci. Technol. 2018, 34, 1–17. [Google Scholar] [CrossRef]
- Atrens, A.; Venezuela, J.; Liu, Q.; Zhou, Q.; Verbeken, K.; Tapia-Bastidas, C.; Gray, E.; Christien, F.; Wolski, K. Electrochemical and mechanical aspects of hydrogen embrittlement evaluation of martensitic steels. In Encyclopedia of Interfacial Chemistry; Elsevier: Amsterdam, The Netherlands, 2018; pp. 201–225. [Google Scholar]
- Dwivedi, S.K.; Vishwakarma, M. Effect of hydrogen in advanced high strength steel materials. Int. J. Hydrog. Energy 2019, 44, 28007–28030. [Google Scholar] [CrossRef]
- Lynch, S. Environmentally assisted cracking: Overview of evidence for an adsorption-induced localised-slip process. Acta Metall. 1988, 36, 2639–2661. [Google Scholar] [CrossRef]
- Taketomi, S.; Matsumoto, R.; Miyazaki, N. Atomistic study of the effect of hydrogen on dislocation emission from a mode II crack tip in alpha iron. Int. J. Mech. Sci. 2010, 52, 334–338. [Google Scholar] [CrossRef]
- Venezuela, J.; Zhou, Q.; Liu, Q.; Zhang, M.; Atrens, A. Hydrogen Trapping in Some Automotive Martensitic Advanced High-Strength Steels. Adv. Eng. Mater. 2017, 20, 1700468. [Google Scholar] [CrossRef]
- Westlake, D. Generalized Model for Hydrogen Embrittlement; Argonne National Laboratory: Lemont, IL, USA, 1969. [Google Scholar]
- Zapffe, C.A.; Sims, C.E. Hydrogen embrittlement, internal stress and defects in steel. Trans. Aime 1941, 145, 225–271. [Google Scholar]
- Beachem, C.D. A new model for hydrogen-assisted cracking (hydrogen “embrittlement”). Metall. Mater. Trans. B 1972, 3, 441–455. [Google Scholar] [CrossRef]
- Pradhan, A.; Vishwakarma, M.; Dwivedi, S.K. A review: The impact of hydrogen embrittlement on the fatigue strength of high strength steel. Mater. Today Proc. 2020, 26, 3015–3019. [Google Scholar] [CrossRef]
- Oriani, R. A mechanistic theory of hydrogen embrittlement of steels. Berichte Der Bunsenges. Für Phys. Chem. 1972, 76, 848–857. [Google Scholar] [CrossRef]
- Pfeil, L.B. The effect of occluded hydrogen on the tensile strength of iron. Proc. R. Soc. Lond. Ser. A Contain. Pap. A Math. Phys. Character 1926, 112, 182–195. [Google Scholar]
- Troiano, A.R. The role of hydrogen and other interstitials in the mechanical behavior of metals. Trans. ASM 1960, 52, 54–81. [Google Scholar] [CrossRef]
- Dwivedi, S.K.; Vishwakarma, M. Hydrogen embrittlement in different materials: A review. Int. J. Hydrog. Energy 2018, 43, 21603–21616. [Google Scholar] [CrossRef]
- Djukic, M.B.; Bakic, G.M.; Zeravcic, V.S.; Sedmak, A.; Rajicic, B. Hydrogen embrittlement of industrial components: Prediction, prevention, and models. Corrosion 2016, 72, 943–961. [Google Scholar] [CrossRef] [PubMed]
- Cerniauskas, S.; Junco, A.J.C.; Grube, T.; Robinius, M.; Stolten, D. Options of natural gas pipeline reassignment for hydrogen: Cost assessment for a Germany case study. Int. J. Hydrog. Energy 2020, 45, 12095–12107. [Google Scholar] [CrossRef]
- Liu, B.; Liu, S.; Guo, S.; Zhang, S. Economic study of a large-scale renewable hydrogen application utilizing surplus renewable energy and natural gas pipeline transportation in China. Int. J. Hydrog. Energy 2020, 45, 1385–1398. [Google Scholar] [CrossRef]
- Mahajan, D.; Tan, K.; Venkatesh, T.; Kileti, P.; Clayton, C.R. Hydrogen Blending in Gas Pipeline Networks—A Review. Energies 2022, 15, 3582. [Google Scholar] [CrossRef]
- Sofian, M.; Haq, M.B.; Al Shehri, D.; Rahman, M.M.; Muhammed, N.S. A review on hydrogen blending in gas network: Insight into safety, corrosion, embrittlement, coatings and liners, and bibliometric analysis. Int. J. Hydrog. Energy 2024, 60, 867–889. [Google Scholar] [CrossRef]
- Wu, X.; Zhang, H.; Yang, M.; Jia, W.; Qiu, Y.; Lan, L. From the perspective of new technology of blending hydrogen into natural gas pipelines transmission: Mechanism, experimental study, and suggestions for further work of hydrogen embrittlement in high-strength pipeline steels. Int. J. Hydrog. Energy 2022, 47, 8071–8090. [Google Scholar] [CrossRef]
- Zhu, Y.Q.; Song, W.; Wang, H.B.; Qi, J.T.; Zeng, R.C.; Ren, H.; Jiang, W.C.; Meng, H.B.; Li, Y.X. Advances in reducing hydrogen effect of pipeline steels on hydrogen-blended natural gas transportation: A systematic review of mitigation strategies. Renew. Sustain. Energy Rev. 2024, 189, 113950. [Google Scholar] [CrossRef]
- Topolski, K.; Reznicek, E.P.; Erdener, B.C.; San Marchi, C.W.; Ronevich, J.A.; Fring, L.; Simmons, K.; Fernandez, O.J.G.; Hodge, B.M.; Chung, M. Hydrogen Blending into Natural Gas Pipeline Infrastructure: Review of the State of Technology; National Renewable Energy Laboratory: Golden, CO, USA, 2022. [Google Scholar]
- Isaac, T. HyDeploy: The UK’s first hydrogen blending deployment project. Clean Energy 2019, 3, 114–125. [Google Scholar] [CrossRef]
- Nagumo, M. Fundamentals of Hydrogen Embrittlement; Springer: Berlin/Heidelberg, Germany, 2016; Volume 921. [Google Scholar]
- Koren, E.; Hagen, C.M.; Wang, D.; Lu, X.; Johnsen, R.; Yamabe, J. Experimental comparison of gaseous and electrochemical hydrogen charging in X65 pipeline steel using the permeation technique. Corros. Sci. 2023, 215, 111025. [Google Scholar] [CrossRef]
- Li, Q.; Ghadiani, H.; Jalilvand, V.; Alam, T.; Farhat, Z.; Islam, M.A. Hydrogen impact: A review on diffusibility, embrittlement mechanisms, and characterization. Materials 2024, 17, 965. [Google Scholar] [CrossRef] [PubMed]
- Michler, T.; Ebling, F.; Oesterlin, H.; Fischer, C.; Wackermann, K. Comparison of tensile properties of X60 pipeline steel tested in high pressure gaseous hydrogen using tubular and conventional specimen. Int. J. Hydrog. Energy 2022, 47, 34676–34688. [Google Scholar] [CrossRef]
- Nguyen, T.T.; Park, J.; Kim, W.S.; Nahm, S.H.; Beak, U.B. Effect of low partial hydrogen in a mixture with methane on the mechanical properties of X70 pipeline steel. Int. J. Hydrog. Energy 2020, 45, 2368–2381. [Google Scholar] [CrossRef]
- Singh, V.; Singh, R.; Arora, K.S.; Mahajan, D.K. Hydrogen induced blister cracking and mechanical failure in X65 pipeline steels. Int. J. Hydrog. Energy 2019, 44, 22039–22049. [Google Scholar] [CrossRef]
- Nanninga, N.E.; Levy, Y.S.; Drexler, E.S.; Condon, R.T.; Stevenson, A.E.; Slifka, A.J. Comparison of hydrogen embrittlement in three pipeline steels in high pressure gaseous hydrogen environments. Corros. Sci. 2012, 59, 1–9. [Google Scholar] [CrossRef]
- Stalheim, D.; Boggess, T.; San Marchi, C.; Jansto, S.; Somerday, B.; Muralidharan, G.; Sofronis, P. Microstructure and Mechanical Property Performance of Commercial Grade API Pipeline Steels in High Pressure Gaseous Hydrogen. Int. Pipeline Conf. 2010, 44212, 529–537. [Google Scholar]
- Dong, C.F.; Xiao, K.; Liu, Z.Y.; Yang, W.J.; Li, X.G. Hydrogen induced cracking of X80 pipeline steel. Int. J. Miner. Metall. Mater. 2010, 17, 579–586. [Google Scholar] [CrossRef]
- Yamabe, J.; Yoshikawa, M.; Matsunaga, H.; Matsuoka, S. Hydrogen trapping and fatigue crack growth property of low-carbon steel in hydrogen-gas environment. Int. J. Fatigue 2017, 102, 202–213. [Google Scholar] [CrossRef]
- Ronevich, J.A.; Somerday, B.P.; San Marchi, C.W. Effects of microstructure banding on hydrogen assisted fatigue crack growth in X65 pipeline steels. Int. J. Fatigue 2016, 82, 497–504. [Google Scholar] [CrossRef]
- Meng, B.; Gu, C.; Zhang, L.; Zhou, C.; Li, X.; Zhao, Y.; Zheng, J.; Chen, X.; Han, Y. Hydrogen effects on X80 pipeline steel in high-pressure natural gas/hydrogen mixtures. Int. J. Hydrog. Energy 2017, 42, 7404–7412. [Google Scholar] [CrossRef]
- Faucon, L.E.; Boot, T.; Riemslag, T.; Scott, S.P.; Liu, P.; Popovich, V. Hydrogen-accelerated fatigue of API X60 pipeline steel and its weld. Metals 2023, 13, 563. [Google Scholar] [CrossRef]
- Drexler, E.S.; Slifka, A.J.; Amaro, R.L.; Barbosa, N.; Lauria, D.S.; Hayden, L.E.; Stalheim, D.G. Fatigue crack growth rates of API X70 pipeline steel in a pressurized hydrogen gas environment. Fatigue Fract. Eng. Mater. Struct. 2014, 37, 517–525. [Google Scholar] [CrossRef]
- Dmytrakh, I.M.; Leshchak, R.L.; Syrotyuk, A.M.; Barna, R.A. Effect of hydrogen concentration on fatigue crack growth behaviour in pipeline steel. Int. J. Hydrog. Energy 2017, 42, 6401–6408. [Google Scholar] [CrossRef]
- Cheng, A.; Chen, N.Z. Fatigue crack growth modelling for pipeline carbon steels under gaseous hydrogen conditions. Int. J. Fatigue 2017, 96, 152–161. [Google Scholar] [CrossRef]
- Capelle, J.; Gilgert, J.; Pluvinage, G. Hydrogen Effect on Fatigue and Fracture of Pipe Steels; Ecole Nationale d’Ingénieurs de Metz: Metz, France, 2009. [Google Scholar]
- An, T.; Peng, H.; Bai, P.; Zheng, S.; Wen, X.; Zhang, L. Influence of hydrogen pressure on fatigue properties of X80 pipeline steel. Int. J. Hydrog. Energy 2017, 42, 15669–15678. [Google Scholar] [CrossRef]
- Alvaro, A.; Wan, D.; Olden, V.; Barnoush, A. Hydrogen enhanced fatigue crack growth rates in a ferritic Fe-3 wt% Si alloy and a X70 pipeline steel. Eng. Fract. Mech. 2019, 219, 106641. [Google Scholar] [CrossRef]
- Álvarez, G.; Zafra, A.; Belzunce, F.J.; Rodríguez, C. Effect of internal hydrogen on the fatigue crack growth rate in the coarse-grain heat-affected zone of a CrMo steel. Metals 2022, 12, 673. [Google Scholar] [CrossRef]
- Leung, D.Y.; Caramanna, G.; Maroto-Valer, M.M. An overview of current status of carbon dioxide capture and storage technologies. Renew. Sustain. Energy Rev. 2014, 39, 426–443. [Google Scholar] [CrossRef]
- Komoda, R.; Kubota, M.; Staykov, A.; Ginet, P.; Barbier, F.; Furtado, J. Inhibitory effect of oxygen on hydrogen-induced fracture of A333 pipe steel. Fatigue Fract. Eng. Mater. Struct. 2019, 42, 1387–1401. [Google Scholar] [CrossRef]
- Lam, P.S.; Sindelar, R.L.; Duncan, A.J.; Adams, T.M. Literature Survey of Gaseous Hydrogen Effects on the Mechanical Properties of Carbon and Low Alloy Steels. ASME J. Pressure Vessel Technol. 2009, 131, 041408. [Google Scholar] [CrossRef]
- San Marchi, C.W.; Somerday, B.P. Technical Reference for Hydrogen Compatibility of Materials; Sandia National Laboratories (SNL): Albuquerque, NM, USA; Livermore, CA, USA, 2012. [Google Scholar]
- Xu, K. Hydrogen Embrittlement of Carbon Steels and Their Welds. In Gaseous Hydrogen Embrittlement of Materials in Energy Technologies; Elsevier: Amsterdam, The Netherlands, 2012; pp. 526–561. [Google Scholar]
- Michler, T.; Lindner, M.; Eberle, U.; Meusinger, J. Gaseous Hydrogen Embrittlement of Materials in Energy Technologies, Volume 1—The Problem, Its Characterisation and Effects on Particular Alloy Classes; Elsevier: Amsterdam, The Netherlands, 2012. [Google Scholar]
- Cialone, H.; Holbrook, J. Sensitivity of Steels to Degradation in Gaseous Hydrogen. In Hydrogen Embrittlement: Prevention and Control; ASTM International: West Conshohocken, PA, USA, 1988. [Google Scholar]
- Chatzidouros, E.V.; Traidia, A.; Devarapalli, R.S.; Pantelis, D.I.; Steriotis, T.A.; Jouiad, M. Effect of hydrogen on fracture toughness properties of a pipeline steel under simulated sour service conditions. Int. J. Hydrog. Energy 2018, 43, 5747–5759. [Google Scholar] [CrossRef]
- Chatzidouros, E.V.; Traidia, A.; Devarapalli, R.S.; Pantelis, D.I.; Steriotis, T.A.; Jouiad, M. Fracture toughness properties of HIC susceptible carbon steels in sour service conditions. Int. J. Hydrog. Energy 2019, 44, 22050–22063. [Google Scholar] [CrossRef]
- Hoyos, J.J.; Masoumi, M.; Pereira, V.F.; Tschiptschin, A.P.; Paes, M.T.P.; Avila, J.A. Influence of hydrogen on the microstructure and fracture toughness of friction stir welded plates of API 5L X80 pipeline steel. Int. J. Hydrog. Energy 2019, 44, 23458–23471. [Google Scholar] [CrossRef]
- Xing, Y.; Yang, Z.; Yao, X.; Wang, X.; Lu, M.; Zhang, L.; Qiao, L. Effects of hydrogen on the fracture toughness of X80 steel base metal and girth weld under strong cathodic current with in-situ hydrogen charging. Eng. Fail. Anal. 2022, 135, 106143. [Google Scholar] [CrossRef]
- Heady, R. Evaluation of sulfide corrosion cracking resistance in low alloy steels. Corrosion 1977, 33, 98–107. [Google Scholar] [CrossRef]
- NACE TM0177; Laboratory Testing of Metals for Resistance to Specific Forms of Environmental Cracking in H2S Environments: Standard Test Method. NACE International: Houston, TX, USA, 1996.
- Ernst, H.; Villasante, J.; Pachao, N. Specimen geometry effects on crack growth in sour environments. In NACE CORROSION; NACE: Denver, CO, USA, 2002. [Google Scholar]
- Guntz, G.C.; Linne, C.; Puissochet, F.; Orlans-Joliet, B.; Popperling, R.; Fliethmann, J.M. DCB test: A review of critical parameters. In NACE CORROSION; NACE: Houston, TX, USA, 1999; p. NACE-99606. [Google Scholar]
- Sponseller, D. Interlaboratory testing of seven alloys for SSC resistance by the double cantilever beam method. Corrosion 1992, 48, 159–171. [Google Scholar] [CrossRef]
- Xing, Y.; Yang, Z.; Zhao, Q.; Qiao, L.; Yang, J.; Zhang, L. Stress-based hydrogen damage model of X80 pipeline steel and its damage risk assessment under cathodic interference. Int. J. Press. Vessel. Pip. 2023, 203, 104947. [Google Scholar] [CrossRef]
- Zhang, P.; Laleh, M.; Hughes, A.E.; Marceau, R.K.; Hilditch, T.; Tan, M.Y. A systematic study on the influence of electrochemical charging conditions on the hydrogen embrittlement behaviour of a pipeline steel. Int. J. Hydrog. Energy 2023, 48, 16501–16516. [Google Scholar] [CrossRef]
- Ghadiani, H.; Farhat, Z.; Alam, T.; Islam, M.A. Assessing Hydrogen Embrittlement in Pipeline Steels for Natural Gas-Hydrogen Blends: Implications for Existing Infrastructure. Solids 2024, 5, 375–393. [Google Scholar] [CrossRef]
- Fuji, H.; Fujishiro, T.; Hara, T. Effect of ammonium thiocyanate on hydrogen entry behavior of low alloy steel under galvanostatic cathode charging. ISIJ Int. 2021, 61, 1151–1158. [Google Scholar] [CrossRef]
- ISO 17081; Method of Measurement of Hydrogen Permeation and Determination of Hydrogen Uptake and Transport in Metals by an Electrochemical Technique. International Organization for Standardization: Geneva, Switzerland, 2014.
- Devanathan, M.A.V.; Stachurski, Z.O.J.J. The mechanism of hydrogen evolution on iron in acid solutions by determination of permeation rates. J. Electrochem. Soc. 1964, 111, 619. [Google Scholar] [CrossRef]
- Iyer, R.N.; Pickering, H.W.; Zamanzadeh, M. Analysis of hydrogen evolution and entry into metals for the discharge-recombination process. J. Electrochem. Soc. 1989, 136, 2463. [Google Scholar] [CrossRef]
- Perng, T.P.; Wu, J.K. A brief review note on mechanisms of hydrogen entry into metals. Mater. Lett. 2003, 57, 3437–3438. [Google Scholar] [CrossRef]
- Chen, J.H.; Wang, G.Z.; Hu, S.H. Mechanism of detrimental effects of carbon content on cleavage fracture toughness of low-alloy steel. Metall. Mater. Trans. A 2001, 32, 1081–1091. [Google Scholar] [CrossRef]
- Li, C.; Duan, R.; Fu, W.; Gao, H.; Wang, D.; Di, X. Improvement of mechanical properties for low carbon ultra-high strength steel strengthened by Cu-rich multistructured precipitation via modification to bainite. Mater. Sci. Eng. A 2021, 817, 141337. [Google Scholar] [CrossRef]
- Zhao, Y.; Tong, X.; Wei, X.H.; Xu, S.S.; Lan, S.; Wang, X.L.; Zhang, Z.W. Effects of microstructure on crack resistance and low-temperature toughness of ultra-low carbon high strength steel. Int. J. Plast. 2019, 116, 203–215. [Google Scholar] [CrossRef]
- Chen, J.; Li, C.; Ren, J.; Tu, X.; Chen, L. Strength and toughness of Fe-1.2 Mn-0.3 Cr-1.4 Ni-0.4 Mo-C tempered steel plate in three cooling processes. Mater. Sci. Eng. A 2019, 754, 178–189. [Google Scholar]
- Yang, G.; Xia, S.L.; Zhang, F.C.; Branco, R.; Long, X.Y.; Li, Y.G.; Li, J.H. Effect of tempering temperature on monotonic and low-cycle fatigue properties of a new low-carbon martensitic steel. Mater. Sci. Eng. A 2021, 826, 141939. [Google Scholar] [CrossRef]
- Li, J.; Zhang, C.; Jiang, B.; Zhou, L.; Liu, Y. Effect of large-size M23C6-type carbides on the low-temperature toughness of martensitic heat-resistant steels. J. Alloys Compd. 2016, 685, 248–257. [Google Scholar] [CrossRef]
- Thompson, S. Interrelationships between yield strength, low-temperature impact toughness, and microstructure in low-carbon, copper-precipitation-strengthened, high-strength low-alloy plate steels. Mater. Sci. Eng. A 2018, 711, 424–433. [Google Scholar] [CrossRef]
- Banerjee, K.; Chatterjee, U.K. Hydrogen permeation and hydrogen content under cathodic charging in HSLA 80 and HSLA 100 steels. Scr. Mater. 2001, 44, 213–216. [Google Scholar] [CrossRef]
- Park, G.T.; Koh, S.U.; Jung, H.G.; Kim, K.Y. Effect of microstructure on the hydrogen trapping efficiency and hydrogen induced cracking of linepipe steel. Corros. Sci. 2008, 50, 1865–1871. [Google Scholar] [CrossRef]
- Shi, X.B.; Yan, W.; Wang, W.; Zhao, L.Y.; Shan, Y.Y.; Yang, K. Effect of microstructure on hydrogen induced cracking behavior of a high deformability pipeline steel. J. Iron Steel Res. Int. 2015, 22, 937–942. [Google Scholar] [CrossRef]
- Liu, Z.Y.; Li, X.G.; Du, C.W.; Lu, L.; Zhang, Y.R.; Cheng, Y.F. Effect of inclusions on initiation of stress corrosion cracks in X70 pipeline steel in an acidic soil environment. Corros. Sci. 2009, 51, 895–900. [Google Scholar] [CrossRef]
- Xue, H.B.; Cheng, Y.F. Characterization of inclusions of X80 pipeline steel and its correlation with hydrogen-induced cracking. Corros. Sci. 2011, 53, 1201–1208. [Google Scholar] [CrossRef]
- Coules, H.E.; Horne, G.C.M.; Venkata, K.A.; Pirling, T. The effects of residual stress on elastic-plastic fracture propagation and stability. Mater. Des. 2018, 143, 131–140. [Google Scholar] [CrossRef]
- Tien, J.H.; Reger, M.; Johnson, D.R.; Bahr, D.F. Hydrogen charging can relax compressive residual stresses caused by shot peening. Int. J. Hydrog. Energy 2024. [Google Scholar] [CrossRef]
- Chen, Y.Q.; Pan, S.P.; Zhou, M.Z.; Yi, D.Q.; Xu, D.Z.; Xu, Y.F. Effects of inclusions, grain boundaries and grain orientations on the fatigue crack initiation and propagation behavior of 2524-T3 Al alloy. Mater. Sci. Eng. A 2013, 580, 150–158. [Google Scholar] [CrossRef]
- Nakanishi, D.; Kawabata, T.; Aihara, S. Brittle crack propagation resistance inside grain and at high angle grain boundary in 3% Si-Fe alloy. Acta Mater. 2018, 144, 768–776. [Google Scholar] [CrossRef]
- Das, A.; Tarafder, S. Geometry of dimples and its correlation with mechanical properties in austenitic stainless steel. Scr. Mater. 2008, 59, 1014–1017. [Google Scholar] [CrossRef]
- Zhu, C.; Xu, J.; Yu, H.; Shan, D.; Guo, B. Size effect on the high strain rate micro/meso-tensile behaviors of pure titanium foil. J. Mater. Res. Technol. 2021, 11, 2146–2159. [Google Scholar] [CrossRef]











| Nominal Pipe Size [in] | Pipe Thickness [mm] | Pipe Grade (CSA/API Equivalent) | YS [MPa] | UTS [MPa] | Mean Hardness [Hv1] | |
|---|---|---|---|---|---|---|
| AO-C1 | 26 | 7.14 | 359 (X52) | 347 | 528 | 162 |
| N-C1 | 24 | 12.7 | 448 (X65) | 555 | 620 | 222 |
| C | Ni | Mo | Si | Mn | Cu | Al + Sn + Nb + V + Ti | Fe | |
|---|---|---|---|---|---|---|---|---|
| AO-C1 | 0.28 | 0.06 | <0.01 | 0.04 | 1.02 | 0.16 | 0.1 | Bal |
| N-C1 | 0.05 | 0.12 | 0.17 | 0.23 | 1.44 | 0.17 | 0.13 | Bal |
| Hydrogen Concentration—CH [wppm] | Charging Current Density [mA/cm2] | Charging Time [min] | Measured J [mm] | Measured Crack Growth [mm] | Crack Length—a [mm] | Lift-Off Load—P [kN] | Fracture Toughness—KIHE [MPa·m1/2] |
|---|---|---|---|---|---|---|---|
| 0 (Uncharged) | N.A. | 110 | 23 | 1.63 | 18.28 | 1.68 | 36.8 |
| 23.3 | 1.85 | 18.8 | 1.61 | 36.0 | |||
| 0.05 | 6.28 | 22.9 | 3.06 | 19.61 | 1.67 | 38.5 | |
| 0.07 | 12.30 | 22.9 | 2.93 | 19.48 | 1.60 | 36.8 | |
| 0.1 | 25.11 | 22.5 | 3.05 | 19.2 | 1.59 | 36.2 | |
| 0.2 | 100.45 | 22.5 | 3.28 | 19.43 | 1.58 | 36.1 | |
| 0.3 | 226.01 | 22.5 | 3.55 | 19.7 | 1.58 | 36.5 | |
| 0.4 | 401.79 | 22.5 | 3.25 | 19.4 | 1.56 | 35.8 | |
| 0.5 | 627.79 | 21.9 | 4.26 | 19.81 | 1.48 | 34.4 | |
| 0.6 | 904.02 | 22.5 | 4.27 | 20.42 | 1.45 | 34.3 |
| Hydrogen Concentration—CH [wppm] | Charging Current Density [mA/cm2] | Charging Time [min] | Measured J [mm] | Measured Crack Growth [mm] | Crack Length—a [mm] | Lift-Off Load—P [kN] | Fracture Toughness—KIHE [MPa·m1/2] |
|---|---|---|---|---|---|---|---|
| 0 (Uncharged) | N.A. | 185 | 21.7 | 1.63 | 16.98 | 3.61 | 75.5 |
| 21.8 | 0.66 | 16.11 | 3.58 | 72.2 | |||
| 0.07 | 0.31 | 21.7 | 1.65 | 17 | 3.60 | 75.3 | |
| 0.2 | 2.50 | 21.2 | 1.25 | 16.1 | 3.46 | 69.8 | |
| 0.5 | 15.62 | 23.2 | 0.62 | 17.47 | 2.98 | 63.4 | |
| 0.8 | 39.99 | 21.3 | 1.28 | 16.23 | 3.12 | 63.3 | |
| 1 | 62.48 | 23 | 0.61 | 17.26 | 2.88 | 60.9 | |
| 1.2 | 89.98 | 23.2 | 0.55 | 17.4 | 2.82 | 59.8 | |
| 1.6 | 159.96 | 21.4 | 0.89 | 15.94 | 3.30 | 66.1 | |
| 1.8 | 202.45 | 21.5 | 1.45 | 16.6 | 2.69 | 55.5 |
Disclaimer/Publisher’s Note: The statements, opinions and data contained in all publications are solely those of the individual author(s) and contributor(s) and not of MDPI and/or the editor(s). MDPI and/or the editor(s) disclaim responsibility for any injury to people or property resulting from any ideas, methods, instructions or products referred to in the content. |
© 2025 by the authors. Licensee MDPI, Basel, Switzerland. This article is an open access article distributed under the terms and conditions of the Creative Commons Attribution (CC BY) license (https://creativecommons.org/licenses/by/4.0/).
Share and Cite
Ghadiani, H.; Farhat, Z.; Alam, T.; Islam, M.A. Fracture Toughness Assessment of Pipeline Steels Under Hydrogen Exposure for Blended Gas Applications. Metals 2025, 15, 29. https://doi.org/10.3390/met15010029
Ghadiani H, Farhat Z, Alam T, Islam MA. Fracture Toughness Assessment of Pipeline Steels Under Hydrogen Exposure for Blended Gas Applications. Metals. 2025; 15(1):29. https://doi.org/10.3390/met15010029
Chicago/Turabian StyleGhadiani, Hesamedin, Zoheir Farhat, Tahrim Alam, and Md. Aminul Islam. 2025. "Fracture Toughness Assessment of Pipeline Steels Under Hydrogen Exposure for Blended Gas Applications" Metals 15, no. 1: 29. https://doi.org/10.3390/met15010029
APA StyleGhadiani, H., Farhat, Z., Alam, T., & Islam, M. A. (2025). Fracture Toughness Assessment of Pipeline Steels Under Hydrogen Exposure for Blended Gas Applications. Metals, 15(1), 29. https://doi.org/10.3390/met15010029

