Semi-Analytical Solution Model for Bending Deformation of T-Shaped Aviation Aluminium Alloy Components under Residual Stress
Abstract
1. Introduction
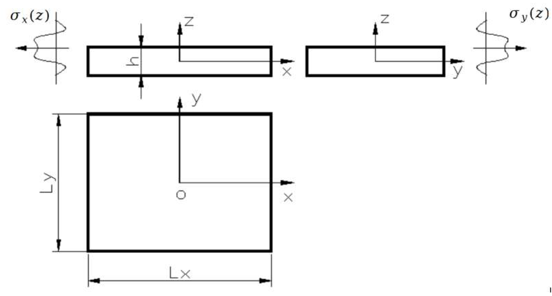
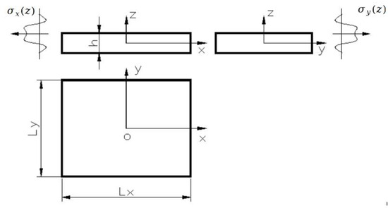
2. Research Framework and Hypotheses
- (1)
- Internal residual stresses are assumed to be uniformly distributed at identical depths throughout the billet.
- (2)
- Residual stresses within the component are presumed to exist solely in the longitudinal and transverse directions, with any residual stresses in the thickness direction disregarded.
- (3)
- The study adheres to Kirchhoff’s hypothesis, which is applicable to the small deflection bending theory of thin plates. A thin plate is defined as having a thickness () less than one-fifth of its minimum characteristic dimension (), symbolized as . The small deflection bending of thin plates refers to instances where the plate’s maximum deflection () is less than one-fifth of its thickness (), denoted as .
- (4)
- Residual stresses are treated as internal forces. In addressing the bending deformation of components subjected to initial residual stresses, an equivalence principle of effect is employed, whereby initial residual stresses are analogously considered as external forces for analysis. Consequently, under this principle, deformations resulting from the release of residual stresses following material removal are equivalently analyzed as bending deformations induced by external forces. The methodology for this equivalence is detailed below.
3. Solution for Bending Deformation of Rectangular Cantilever Plates
3.1. Effect of Moment Magnitude on Cantilever Plate Deformation
3.1.1. Effect of Value on Rectangular Cantilever Thin Plate Bending Deformation
3.1.2. Effect of Linear Variation of Moments on the Bending Deformation of Rectangular Cantilever Plates
3.2. Effect of Cantilever Dimensions on Deformation
3.2.1. Effect of Plate Dimension Ratio () on Cantilever Plate Bending Deformation
3.2.2. Effect of Plate Thickness () on the Deformation of Cantilever Plates
3.2.3. Effect of Proportional Changes in Plate Dimensions on the Deformation of Cantilever Plates
4. Semi-Analytical Model for Rectangular Cantilever Plates
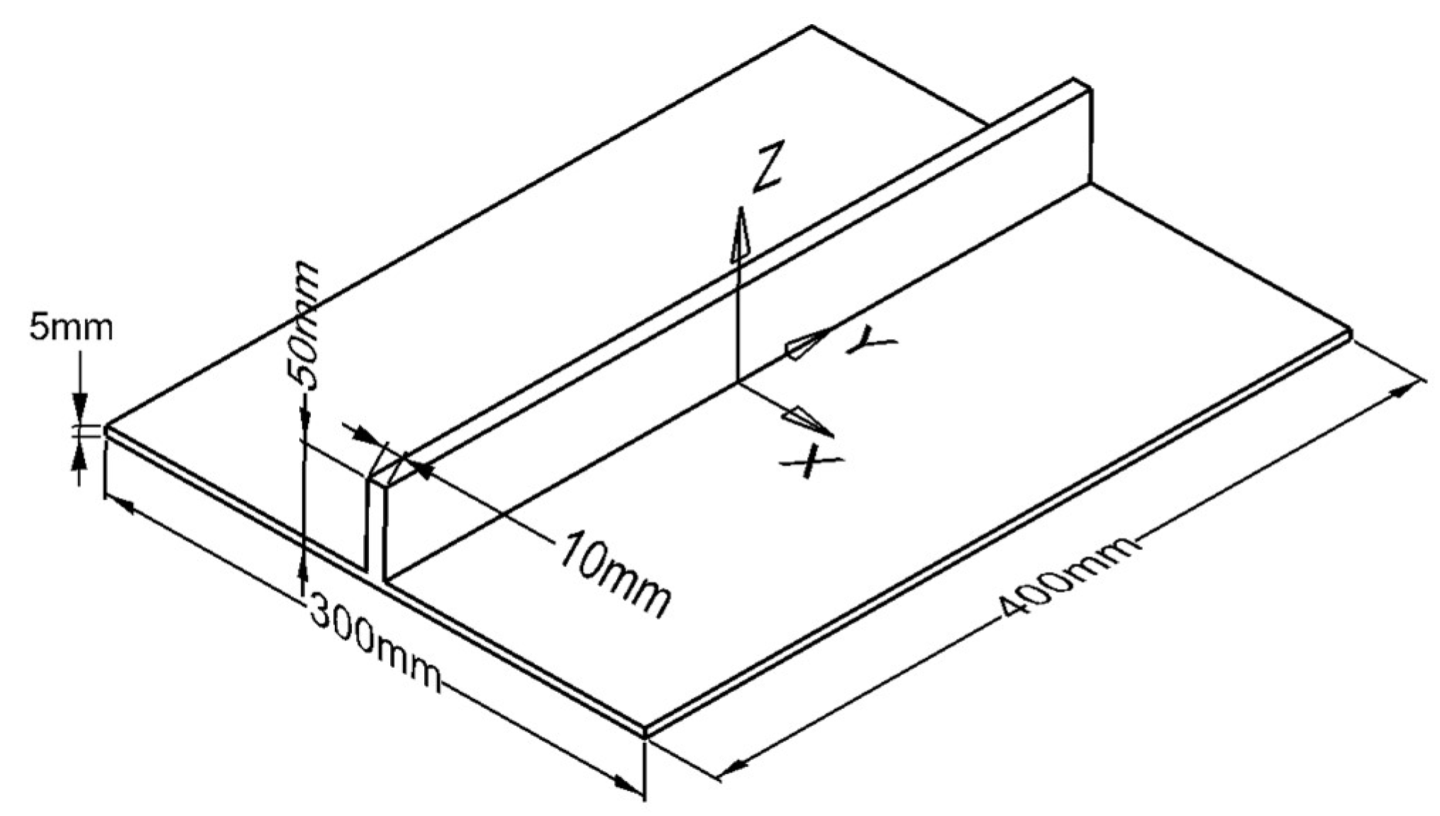
5. Machining Deformation Solution and Experimental Verification for T-Shaped Weak Stiffness Thin-Walled Component
5.1. Specimen Preparation and Initial Residual Stress Testing
- (1)
- Specimen Preparation
- (2)
- Determination of Initial Residual Stress
5.2. Determination of Milling Process Parameters
5.3. Application of Residual Stresses
5.4. Calculation of Bending Deformation
5.5. Experimental Verification
6. Conclusions and Prospect
- (1)
- For T-shaped components with relatively thin webs, the calculation of bending deformation under residual stresses can be decomposed into the solutions for bending deformation of T-beams and cantilever plates. The sum of these deformations represents the total bending deformation of the T-shaped component.
- (2)
- The small deflection bending problem of rectangular cantilever thin plates belongs to linear elastic problems. Its maximum deflection value is related to its geometric dimension and moments subjected. For a rectangular cantilever plate with certain geometric dimension, its deflection value can be solved according to when the uniformly distributed moments meet = . While , the deflection exhibits a linear variation pattern to . And the slopes are different when and . The deflection of rectangular cantilever thin plate shows a non-linear variation patterns to the variation of its dimension ratio ().
- (3)
- An analysis of the impact of residual stresses within the cantilever plate on its dimensional changes and bending deformation has been conducted. This analysis has led to the establishment of a semi-analytical predictive model for the bending deformation of rectangular cantilever plates.
- (4)
- Experimental validation has confirmed that the semi-analytical solution model developed for T-shaped structural members can accurately calculate the bending deformation of T-shaped thin-walled components under the action of residual stresses. The model demonstrates high solution accuracy and possesses significant engineering application value.
Author Contributions
Funding
Data Availability Statement
Conflicts of Interest
References
- Chatterjee, B.; Bhowmik, S. Evolution of Material Selection in Commercial Aviation Industry—A Review. In Sustainable Engineering Products and Manufacturing Technologies; Academic Press: Cambridge, MA, USA, 2019; pp. 199–219. [Google Scholar] [CrossRef]
- Sedeh, M.R.N.; Ghaei, A. The Effects of Machining Residual Stresses on Springback in Deformation Machining Bending Mode. Int. J. Adv. Manuf. Technol. 2021, 114, 1087–1098. [Google Scholar] [CrossRef]
- Zhang, Z.; Luo, M.; Tang, K.; Zhang, D. A New In-Processes Active Control Method for Reducing the Residual Stresses Induced Deformation of Thin-Walled Parts. J. Manuf. Process. 2020, 59, 316–325. [Google Scholar] [CrossRef]
- Aurrekoetxea, M.; Llanos, I.; Zelaieta, O.; López de Lacalle, L.N. Towards Advanced Prediction and Control of Machining Distortion: A Comprehensive Review. Int. J. Adv. Manuf. Technol. 2022, 122, 2823–2848. [Google Scholar] [CrossRef]
- Yi, S.; Wu, Y.; Gong, H.; Peng, C.; He, Y. Experimental Analysis and Prediction Model of Milling-Induced Residual Stress of Aeronautical Aluminum Alloys. Appl. Sci. 2021, 11, 5881. [Google Scholar] [CrossRef]
- Meng, L.H.; Atli, M.; He, N. Measurement of Equivalent Residual Stresses Generated by Milling and Corresponding Deformation Prediction. Precis Eng. 2017, 50, 160–170. [Google Scholar] [CrossRef]
- Sahraei, A.; Pezeshky, P.; Sasibut, S.; Rong, F.; Mohareb, M. Closed Form Solutions for Shear Deformable Thin-Walled Beams Including Global and Through-Thickness Warping Effects. Thin Walled Struct. 2021, 158, 107190. [Google Scholar] [CrossRef]
- Weber, D.; Kirsch, B.; Chighizola, C.R.; Jonsson, J.E.; D’Elia, C.R.; Linke, B.S.; Hill, M.R.; Aurich, J.C. Investigation on the Scale Effects of Initial Bulk and Machining Induced Residual Stresses of Thin Walled Milled Monolithic Aluminum Workpieces on Part Distortions: Experiments and Finite Element Prediction Model. Procedia CIRP 2021, 102, 337–342. [Google Scholar] [CrossRef]
- Li, B.; Dong, Y.; Gao, H. Numerical Simulation and Experiment of Stress Relief and Processing Deformation of 2219 Aluminum Alloy Ring. Metals 2023, 13, 1187. [Google Scholar] [CrossRef]
- Yao, C.; Zhang, J.; Cui, M.; Tan, L.; Shen, X. Machining Deformation Prediction of Large Fan Blades Based on Loading Uneven Residual Stress. Int. J. Adv. Manuf. Technol. 2020, 107, 4345–4356. [Google Scholar] [CrossRef]
- Wang, Z.; Sun, J.; Liu, L.; Wang, R.; Chen, W. An Analytical Model to Predict the Machining Deformation of Frame Parts Caused by Residual Stress. J. Mater. Process. Tech. 2019, 274, 116282. [Google Scholar] [CrossRef]
- Jiang, X.; Wang, Y.; Ding, Z.; Li, H. An Approach to Predict the Distortion of Thin-Walled Parts Affected by Residual Stress During the Milling Process. Int. J. Adv. Manuf. Technol. 2017, 93, 4203–4216. [Google Scholar] [CrossRef]
- Li, Y.; Cheng, X.; Ling, S.; Zheng, G.G. Research on Deformation and On-line Compensation of Straight Micro Thin Walls in Micro Milling Process. J. Hunan Univ. (Nat. Sci.) 2023, 50, 87–96. [Google Scholar] [CrossRef]
- Zheng, Y.; Hu, P.; Wang, M.; Huang, X. Prediction Model for the Evolution of Residual Stresses and Machining Deformation of Uneven Milling Plate Blanks. Materials 2023, 16, 6113. [Google Scholar] [CrossRef]
- Zhu, Y.M.; Mao, K.M.; Yu, X.X. A General Model for Prediction of Deformation from Initial Residual Stress. Int. J. Adv. Manuf. Technol. 2020, 109, 1093–1101. [Google Scholar] [CrossRef]
- Ye, H.; Qin, G.; Wang, H.; Zuo, D.; Han, X. A Machining Position Optimization Approach to Workpiece Deformation Control for Aeronautical Monolithic Components. Int. J. Adv. Manuf. Technol. 2020, 109, 299–313. [Google Scholar]
- Li, Y.; Li, Y.-N.; Li, X.-W.; Zhu, K.; Zhang, Y.-A.; Li, Z.-H.; Yan, H.-W.; Wen, K. Influence of Material Removal Strategy on Machining Deformation of Aluminum Plates with Asymmetric Residual Stresses. Materials 2023, 16, 2033. [Google Scholar] [CrossRef]
- Ju, K.; Duan, C.; Sun, Y.; Shi, J.; Kong, J.; Akbarzadeh, A. Prediction of Machining Deformation Induced by Turning Residual Stress in Thin Circular Parts Using Ritz Method. J. Mater. Process. Tech. 2022, 307, 117664. [Google Scholar] [CrossRef]
- Gao, H.; Li, X.; Wu, Q.; Lin, M.; Zhang, Y. Effects of Residual Stress and Equivalent Bending Stiffness on the Dimensional Stability of Thin-Walled Parts. Int. J. Adv. Manuf. Technol. 2022, 119, 4907–4924. [Google Scholar] [CrossRef]
- Li, X.; Yang, Y.; Li, L.; Zhao, G.; He, N. Uncertainty Quantification in Machining Deformation Based on Bayesian Network. Reliab. Eng. Syst. Saf. 2020, 203, 107113. [Google Scholar] [CrossRef]
- Xue, N.-P.; Wu, Q.; Yang, R.-S.; Gao, H.-J.; Zhang, Z.; Zhang, Y.-D.; Li, L.; Guo, J. Research on Machining Deformation of Aluminum Alloy Rolled Ring Induced by Residual Stress. Int. J. Adv. Manuf. Technol. 2023, 125, 5669–5680. [Google Scholar] [CrossRef]
- Zheng, J.-Y.; Voyle, R.; Tang, H.P.; Mannion, A. Study of Distortion on Milled Thin-Wall Aluminum Parts Influenced by Initial Residual Stress and Toolpath Strategy. Int. J. Adv. Manuf. Technol. 2023, 127, 237–251. [Google Scholar] [CrossRef]
- Li, B.; Deng, H.; Hui, D.; Hu, Z.; Zhang, W. A Semi-analytical Model for Predicting the Machining Deformation of Thin-walled Parts Considering Machining-induced and Blank Initial Residual Stress. Int. J. Adv. Manuf. Technol. 2020, 110, 139–161. [Google Scholar] [CrossRef]
- Li, W.; Ma, L.; Wan, M.; Peng, J.; Meng, B. Modeling and Simulation of Machining Distortion of Pre-bent Aluminum Alloy Plate. J. Mater. Process. Technol. 2018, 258, 189–199. [Google Scholar] [CrossRef]
- Weber, D.; Kirsch, B.; Jonsson, J.E.; D’Elia, C.R.; Linke, B.S.; Hill, M.R.; Aurich, J.C. Simulation Based Compensation Techniques to Minimize Distortion of Thin-walled Monolithic Aluminum Parts Due to Residual Stresses. CIRP J. Manuf. Sci. Technol. 2022, 38, 427–441. [Google Scholar] [CrossRef]
- Wang, H.M.; Qin, G.H.; Lin, F.; Zuo, D.W.; Han, X.; Chen, X.M. A Crossover Iterative Method of Controlling Machining Deformation for 7075-T7451 Aluminum Alloy Thick Plate. Rare Met. Mater. Eng. 2019, 48, 1239–1248. [Google Scholar]
- Li, R.; Zhong, Y.; Tian, B. On new symplectic superposition method for exact bending solutions of rectangular cantilever thin plates. Mech. Res. Commun. 2011, 38, 111–116. [Google Scholar] [CrossRef]
- Guo, K.; Wu, C.; Sun, J. Research progress on NC machining distortion prediction and control technology of aeronautical monolithic components. Aeronaut. Manuf. Technol. 2022, 65, 112–127. [Google Scholar]
- Wang, S.H.; Zuo, D.W.; Wang, M.; Wang, Z.R. Modified layer removal method for measurement of residual stress distribution in thick pre-stretched aluminum plate. Trans. Nanjing Univ. Aeronaut. Astronaut. 2004, 21, 286–290. [Google Scholar]















| Parameter Name | Parameter Values |
|---|---|
| Unit type | Eight node hexahedral linear non conforming mode |
| Unit size | 2.5 mm × 2.5 mm × 1 mm |
| Number of units | 256,000 |
| Material density | 2850 kg/m3 |
| Elastic modulus | 70.3 GPa |
| Poisson’s ratio | 0.33 |
| Yield limit | 455 MPa |
| Test Code | 1 | 2 | 3 | 4 | 5 | 6 | 7 | 8 | 9 | 10 | 11 | 12 | 13 |
|---|---|---|---|---|---|---|---|---|---|---|---|---|---|
| Mx () | 100 | 100 | 100 | 100 | 100 | 100 | 100 | 100 | 100 | 100 | 100 | 100 | 100 |
| My () | −198 | −165 | −132 | −99 | −66 | −33 | 0 | 33 | 66 | 99 | 132 | 165 | 198 |
| Deflection (mm) | 2.032 | 1.907 | 1.783 | 1.664 | 1.547 | 1.436 | 1.330 | 1.228 | 1.218 | 1.209 | 1.199 | 1.189 | 1.179 |
| Test Code | 1 | 2 | 3 | 4 | 5 | 6 | 7 | 8 | 9 | 10 | 11 | 12 | 13 |
|---|---|---|---|---|---|---|---|---|---|---|---|---|---|
| Mx () | 50 | 50 | 50 | 50 | 50 | 50 | 50 | 50 | 50 | 50 | 50 | 50 | 50 |
| My () | −99 | −82.5 | −66 | −49.5 | −33 | −16.5 | 0 | 16.5 | 33 | 49.5 | 66 | 82.5 | 99 |
| Deflection (mm) | 1.016 | 0.953 | 0.892 | 0.832 | 0.774 | 0.716 | 0.665 | 0.614 | 0.609 | 0.604 | 0.599 | 0.595 | 0.59 |
| Test Code | 1 | 2 | 3 | 4 | 5 | 6 | 7 | 8 | 9 | 10 | 11 | 12 | 13 |
|---|---|---|---|---|---|---|---|---|---|---|---|---|---|
| Mx () | 100 | 100 | 100 | 100 | 100 | 100 | 100 | 100 | 100 | 100 | 100 | 100 | 100 |
| My () | −198 | −165 | −132 | −99 | −66 | −33 | 0 | 33 | 66 | 99 | 132 | 165 | 198 |
(mm) | 2.159 | 2.030 | 1.896 | 1.762 | 1.628 | 1.495 | 1.361 | 1.228 | 1.100 | 0.972 | 0.843 | 0.715 | 0.587 |
(mm) | 2.135 | 2.005 | 1.875 | 1.745 | 1.616 | 1.486 | 1.357 | 1.228 | 1.107 | 0.986 | 0.864 | 0.743 | 0.621 |
(mm) | 2.043 | 1.924 | 1.806 | 1.687 | 1.570 | 1.456 | 1.341 | 1.228 | 1.144 | 1.059 | 0.974 | 0.890 | 0.805 |
(mm) | 2.020 | 1.901 | 1.783 | 1.667 | 1.553 | 1.442 | 1.334 | 1.228 | 1.182 | 1.136 | 1.089 | 1.043 | 0.997 |
(mm) | 2.032 | 1.907 | 1.783 | 1.664 | 1.547 | 1.436 | 1.330 | 1.228 | 1.218 | 1.209 | 1.199 | 1.189 | 1.179 |
(mm) | 2.050 | 1.918 | 1.788 | 1.664 | 1.544 | 1.431 | 1.327 | 1.228 | 1.250 | 1.271 | 1.293 | 1.315 | 1.336 |
| x (W/L) | 0.1 | 0.15 | 0.2 | 0.25 | 0.5 | 0.75 | 1 | 1.25 |
| f1(x) (mm) | 2.230 | 2.195 | 2.159 | 2.136 | 2.043 | 2.02 | 2.032 | 2.050 |
| f2(x) (mm) | 0.52 | 0.552 | 0.586 | 0.621 | 0.805 | 0.997 | 1.179 | 1.336 |
| x (W/L) | 1.5 | 1.75 | 2 | 2.25 | 2.5 | 3 | 3.5 | 4 |
| f1(x) (mm) | 2.050 | 2.048 | 2.022 | 1.984 | 1.938 | 1.839 | 1.774 | 1.743 |
| f2(x) (mm) | 1.460 | 1.552 | 1.617 | 1.662 | 1.691 | 1.722 | 1.734 | 1.736 |
| x (W/L) | 4.5 | 5 | 6 | 7 | 8 | 9 | 10 | |
| f1(x) (mm) | 1.727 | 1.700 | 1.705 | 1.694 | 1.683 | 1.670 | 1.656 | |
| f2(x) (mm) | 1.735 | 1.732 | 1.725 | 1.715 | 1.705 | 1.694 | 1.683 |
| Applied Torque | 400 mm × 600 mm × 10 mm | 400 mm × 600 mm × 12 mm | |||
|---|---|---|---|---|---|
| ) | ) | Deflection w10 (mm) | Deflection w12 (mm) | ||
| 100 | −198 | 2.0503 | 1.193 | 1.719 | 1.728 |
| 100 | 33 | 1.228 | 0.7107 | 1.728 | 1.728 |
| 100 | 198 | 1.46 | 0.845 | 1.728 | 1.728 |
| Applied Torque | Cantilever Plate 400 mm × 300 mm | Cantilever Plate 600 mm × 450 mm | |||
|---|---|---|---|---|---|
| Mx ) | My ) | Deflection w400 /mm | Deflection w600 /mm | ||
| 100 | −198 | 2.020 | 4.528 | 2.242 | 2.25 |
| 100 | 33 | 1.228 | 2.764 | 2.251 | 2.25 |
| 100 | 198 | 0.997 | 2.251 | 2.258 | 2.25 |
Disclaimer/Publisher’s Note: The statements, opinions and data contained in all publications are solely those of the individual author(s) and contributor(s) and not of MDPI and/or the editor(s). MDPI and/or the editor(s) disclaim responsibility for any injury to people or property resulting from any ideas, methods, instructions or products referred to in the content. |
© 2024 by the authors. Licensee MDPI, Basel, Switzerland. This article is an open access article distributed under the terms and conditions of the Creative Commons Attribution (CC BY) license (https://creativecommons.org/licenses/by/4.0/).
Share and Cite
Li, N.; Yi, S.; Tian, W.; Wang, Q. Semi-Analytical Solution Model for Bending Deformation of T-Shaped Aviation Aluminium Alloy Components under Residual Stress. Metals 2024, 14, 486. https://doi.org/10.3390/met14040486
Li N, Yi S, Tian W, Wang Q. Semi-Analytical Solution Model for Bending Deformation of T-Shaped Aviation Aluminium Alloy Components under Residual Stress. Metals. 2024; 14(4):486. https://doi.org/10.3390/met14040486
Chicago/Turabian StyleLi, Ning, Shouhua Yi, Wanyi Tian, and Qun Wang. 2024. "Semi-Analytical Solution Model for Bending Deformation of T-Shaped Aviation Aluminium Alloy Components under Residual Stress" Metals 14, no. 4: 486. https://doi.org/10.3390/met14040486
APA StyleLi, N., Yi, S., Tian, W., & Wang, Q. (2024). Semi-Analytical Solution Model for Bending Deformation of T-Shaped Aviation Aluminium Alloy Components under Residual Stress. Metals, 14(4), 486. https://doi.org/10.3390/met14040486

