Shearographic Detection of Internal Defects in Austenitic Stainless Steels
Abstract
1. Introduction
2. Materials and Methods
2.1. Shearography as a Nondestructive Testing Method
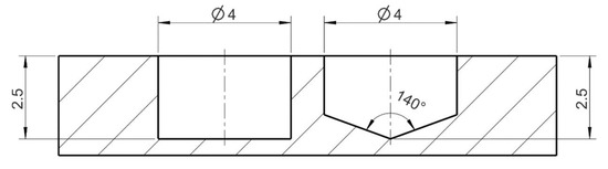
2.2. Idealized Test Specimens
2.3. Real Test Specimens
2.4. Test Setup and Measurement Parameters
2.5. Objective Evaluation of the Measurement Data
3. Results
3.1. Defect Detection for Idealized Test Specimens
3.2. Defect Detection for Real Test Specimens
4. Discussion
5. Conclusions
Author Contributions
Funding
Data Availability Statement
Conflicts of Interest
References
- Mix, P.E. Introduction to Nondestructive Testing. A Training Guide, 2nd ed.; John Wiley & Sons, Inc.: Hoboken, NJ, USA, 2005. [Google Scholar]
- Bargel, H.-J.; Schulze, G. Werkstoffkunde, 8., überarbeitete Auflage; Springer: Berlin, Heidelberg, Germany, 2004. [Google Scholar]
- Schuster, J.; von Eisen-, S.; Nickelwerkstoffen, S. Leitfaden für die schweißmetallurgische Praxis, 2., überarbeitete und erweiterte Auflage; DVS Media: Düsseldorf, Germany, 2009. [Google Scholar]
- ASTM International. ASTM G46—94; Standard Guide for Examination and Evaluation of Pitting Corrosion (Reapproved 2018). ASTM: West Conshohocken, PA, USA, 2018. [Google Scholar]
- Jüngert, A.; Dugan, S.; Homann, T.; Mitzscherling, S.; Prager, J.; Pudovikov, S.; Schwender, T. Advanced ultrasonic techniques for nondestructive testing of austenitic and dissimilar welds in nuclear facilities. AIP Conf. Proc. 2018, 1949, 110002. [Google Scholar] [CrossRef]
- Leger, A.; Deschamps, M. Ultrasonic Wave Propagation in Non Homogeneous Media; Springer: Berlin/Heidelberg, Germany, 2009. [Google Scholar]
- Wang, Q.; Gong, S.-F.; Yuan, P.; Xiao, K. Performance evaluation of austenitic stainless steel weld defect detection in ultrasonic phased array based on DORT. In Proceedings of the 2016 IEEE Far East NDT New Technology & Application Forum (FENDT), Nanchang, China, 22–24 June 2016; pp. 209–213. [Google Scholar] [CrossRef]
- Khan, M.A.; Sultan, Q.; Tariq, F. Effect of pitting corrosion on similar and dissimilar alloy welded joints. J. Braz. Soc. Mech. Sci. 2017, 39, 4037–4044. [Google Scholar] [CrossRef]
- Steinchen, W.; Yang, L.X.; Kupfer, G.; Mäckel, P. Non-destructive testing of aerospace composite materials using digital shearography. Proc. Inst. Mech. Eng. Part G J. Aerosp. Eng. 1998, 212, 21–30. [Google Scholar] [CrossRef]
- Hung, Y.Y. Applications of digital shearography for testing of composite structures. Compos. Part B Eng. 1999, 30, 765–773. [Google Scholar] [CrossRef]
- Gryzagoridis, J.; Findeis, D. Benchmarking shearographic NDT for composites. Insight-Non-Destr. Test. Cond. Monit. 2008, 50, 249–252. [Google Scholar] [CrossRef][Green Version]
- Steinchen, W.; Yang, L.X. Digital shearography. In Theory and Application of Digital Speckle Pattern Shearing Interferometry; SPIE Optical Engineering Press: Bellingham, DC, USA, 2003. [Google Scholar]
- Ettemeyer, A. Laser shearography for inspection of pipelines. Nucl. Eng. Des. 1996, 160, 237–240. [Google Scholar] [CrossRef]
- Kim, K.-S.; Kang, K.-S.; Kang, Y.-J.; Cheong, S.-K. Analysis of an internal crack of pressure pipeline using ESPI and shearography. Opt. Laser Technol. 2003, 35, 639–643. [Google Scholar] [CrossRef]
- Liu, Z.; Gao, J.; Xie, H.; Wallace, P. NDT capability of digital shearography for different materials. Opt. Lasers Eng. 2011, 49, 1462–1469. [Google Scholar] [CrossRef]
- Buerakov, W. Interferometrische Bauteilprüfung, Schadenserkennung und Ermittlung der modalen Parameter mittels dynamischer Belastung. Ph.D. Thesis, Saarland University, Saarbrücken, Germany, 28 July 2017. [Google Scholar]
- De Angelis, G.; Meo, M.; Almond, D.P.; Pickering, S.G.; Angioni, S.L. A new technique to detect defect size and depth in composite structures using digital shearography and unconstrained optimization. Ndt E Int. 2012, 45, 91–96. [Google Scholar] [CrossRef]
- Pickering, S.G.; Almond, D.P. Comparison of the defect detection capabilities of flash thermography and vibration excitation shearography. Insight-Non-Destr. Test. Cond. Monit. 2010, 52, 78–81. [Google Scholar] [CrossRef]
- Hung, Y.Y.; Chen, Y.S.; Ng, S.P.; Liu, L.; Huang, Y.H.; Luk, B.L.; Ip, R.W.L.; Wu, C.M.L.; Chung, P.S. Review and comparison of shearography and active thermography for nondestructive evaluation. Mater. Sci. Eng. R Rep. 2009, 64, 73–112. [Google Scholar] [CrossRef]
- Yang, L.; Samala, P.R.; Liu, S.; Long, K.W.; Lee, Y.L. Measurement of nugget size of spot weld by digital shearography. In Optical Diagnostics; SPIE: Bellingham, DC, USA, 2005; Volume 5880, pp. 50–57. [Google Scholar] [CrossRef]
- Menner, P.; Schmitz, P.; Gerhard, H.; Busse, G. Lockin-Speckle-Interferometry with Modulated Optical and Inductive Excitation. In Proceedings of the 10th European Conference on Non-Destructive Testing, Moscow, Russia, 7–11 June 2010. [Google Scholar]
- Kryukov, I.; Böhm, S. Prospects and limitations of eddy current shearography for non-destructive testing of adhesively bonded structural joints. J. Adhes. 2018, 16, 1–13. [Google Scholar] [CrossRef]
- Habib, K. Thermally induced deformations measured by shearography. Opt. Laser Technol. 2005, 37, 509–512. [Google Scholar] [CrossRef]
- Hung, Y.Y.; Ho, H.P. Shearography: An optical measurement technique and applications. Mater. Sci. Eng. R Rep. 2005, 49, 61–87. [Google Scholar] [CrossRef]
- G48—11; ASTM International. Standard Test Methods for Pitting and Crevice Corrosion Resistance of Stainless Steels and Related Alloys by Use of Ferric Chloride Solution (Reapproved 2015). ASTM: West Conshohocken, PA, USA, 2015.
- Rudnev, V.; Loveless, D.; Cook, R.L. Handbook of Induction Heating, 2nd ed.; CRC Press: Boca Raton, FL, USA, 2017. [Google Scholar]
- Menner, P. Zerstörungsfreie Prüfung von modernen Werkstoffen mit dynamischen Shearografie-Verfahren. Ph.D. Thesis, University of Stuttgart, Stuttgart, Germany, 27 March 2013. [Google Scholar]
- Oswald-Tranta, B.; Tuschl, C. Lock-in inductive thermography for surface crack detection in non-magnetic metals. In Proceedings of the 14th Quantitative InfraRed Thermography Conference, Berlin, Germany, 25–29 June 2018. [Google Scholar]









Disclaimer/Publisher’s Note: The statements, opinions and data contained in all publications are solely those of the individual author(s) and contributor(s) and not of MDPI and/or the editor(s). MDPI and/or the editor(s) disclaim responsibility for any injury to people or property resulting from any ideas, methods, instructions or products referred to in the content. |
© 2022 by the authors. Licensee MDPI, Basel, Switzerland. This article is an open access article distributed under the terms and conditions of the Creative Commons Attribution (CC BY) license (https://creativecommons.org/licenses/by/4.0/).
Share and Cite
Kryukov, I.; Prints, E.; Sommer, N.; Böhm, S. Shearographic Detection of Internal Defects in Austenitic Stainless Steels. Metals 2023, 13, 74. https://doi.org/10.3390/met13010074
Kryukov I, Prints E, Sommer N, Böhm S. Shearographic Detection of Internal Defects in Austenitic Stainless Steels. Metals. 2023; 13(1):74. https://doi.org/10.3390/met13010074
Chicago/Turabian StyleKryukov, Igor, Eugen Prints, Niklas Sommer, and Stefan Böhm. 2023. "Shearographic Detection of Internal Defects in Austenitic Stainless Steels" Metals 13, no. 1: 74. https://doi.org/10.3390/met13010074
APA StyleKryukov, I., Prints, E., Sommer, N., & Böhm, S. (2023). Shearographic Detection of Internal Defects in Austenitic Stainless Steels. Metals, 13(1), 74. https://doi.org/10.3390/met13010074

