Effect of Material Inhomogeneity on the Crack Tip Mechanical Field and SCC Growth Rate of 52M/316L Dissimilar Metal Welded Joints
Abstract
1. Introduction
2. Methods and Calculation Model
2.1. Weibull Distribution of Mechanical Properties of Welded Joint Materials
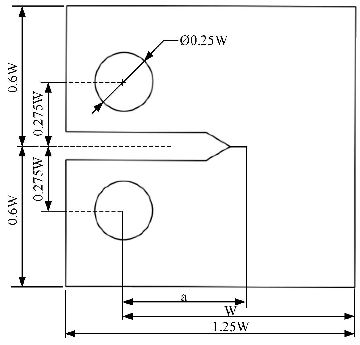
2.2. Specimen and Material Model
- (1)
- By the Vickers hardness conversion to get the yield strength of the welded joints at multiple points;
- (2)
- Fit the data to obtain the parameters of the Weibull distribution;
- (3)
- Extract the unit information of the finite element model;
- (4)
- For each unit to generate a random sample of a given Weibull distribution;
- (5)
- Write the random sample data into the bcell material information.
2.3. Finite Element Model
3. Results and Discussion
3.1. Plastic Zone at the Crack Tip of the Fusion Line Specimen
3.2. The Strain Field Feature around the Crack 1 Tip
3.3. The Strain Field Feature around the Crack 3 Tip
3.4. The Strain Field Feature around the Crack 2 Tip
3.5. Comparison of SCC Crack Growth Rate
4. Conclusions
- (1)
- Under the same constant load conditions, the inhomogeneity of the material’s mechanical properties will lead to an asymmetric distribution of stress–strain at the crack tip at different locations. The higher the degree of non-uniformity, the greater the gradient of plastic strain at the crack tip.
- (2)
- Combining the plastic strain zone at different locations of the crack in the homogeneous and inhomogeneous specimens, the crack has a higher plastic strain in the inhomogeneous specimen at the same constant load.
- (3)
- When the crack is located at the interface between Alloy 52M and 316L stainless steel, it will provide a larger plastic strain for Type I (opening mode) cracks and is more likely to extend into the Alloy 52M region.
Author Contributions
Funding
Data Availability Statement
Conflicts of Interest
References
- Heldt, J.; Seifert, H.P. Stress corrosion cracking of low-alloy, reactor-pressure-vessel steels in oxygenated, high-temperature water. Nucl. Eng. Des. 2001, 206, 57–89. [Google Scholar] [CrossRef]
- Xue, H.; Ogawa, K.; Shoji, T. Effect of welded mechanical heterogeneity on local stress and strain ahead of stationary and growing crack tips. Nucl. Eng. Des. 2009, 239, 628–640. [Google Scholar] [CrossRef]
- Hoffmeister, H.; Klein, O. Modeling of SCC initiation and propagation mechanisms in BWR environments. Nucl. Eng. Des. 2011, 241, 4893–4902. [Google Scholar] [CrossRef]
- Ming, H.L.; Zhu, R.L.; Zhang, Z.; Wang, J.Q.; Han, E.-H.; Ke, W.; Su, M.X. Microstructure, local mechanical properties and stress corrosion cracking susceptibility of an SA508-52M-316LN safe-end dissimilar metal weld joint by GTAW. Mater. Sci. Eng. A 2016, 669, 279–290. [Google Scholar] [CrossRef]
- Zhao, L.; Wang, J.M.; Su, H.Z.; Du, D.H.; Zhang, L.F.; Tu, S.D. Stress corrosion cracking of the fusion boundary for 304l/82 dissimilar metal weld joint in simulated primary water. Corrosion 2020, 76, 176–187. [Google Scholar] [CrossRef]
- Andresen, P.L. A brief history of environmental cracking in hot water. Corrosion 2019, 75, 240–253. [Google Scholar] [CrossRef]
- Moltubakk, T.; Thaulow, C.; Zhang, Z.L. Application of local approach to inhomogeneous welds. Influence of crack position and strength mismatch. Eng. Fract. Mech. 1999, 62, 445–462. [Google Scholar] [CrossRef]
- Andresen, P.L. Similarity of cold work and radiation hardening in enhancing yield strength and SCC growth of stainless steel in hot water. In Proceedings of the CORROSION 2002, Denver, CO, USA, 7–11 April 2002. [Google Scholar]
- Shoji, T.; Li, G.; Kwon, J.; Matsushima, S.; Lu, Z.P. Quantification of yield strength effects on IGSCC of austenitic stainless steels in high temperature water. In Proceedings of the 11th International Conference on Environmental Degradation of Materials in Nuclear Systems, Stevenson, WA, USA, 10–14 August 2003; pp. 834–844. [Google Scholar]
- Chen, K.; Wang, J.; Du, D.; Andresen, P.L.; Zhang, L. dK/da effects on the SCC growth rates of nickel base alloys in high-temperature water. J. Nucl. Mater. 2018, 503, 13–21. [Google Scholar] [CrossRef]
- Li, Z.; Lu, Y.; Wang, X. Modeling of stress corrosion cracking growth rates for key structural materials of nuclear power plant. J. Mater. Sci. 2020, 55, 439–463. [Google Scholar] [CrossRef]
- Lim, Y.S.; Kim, D.J.; Kim, S.W.; Kim, H.P. Crack growth and cracking behavior of Alloy 600/182 and Alloy 690/152 welds in simulated PWR primary water. Nucl. Eng. Technol. 2019, 51, 228–237. [Google Scholar] [CrossRef]
- Wang, J.; Zhu, T.; Chen, K.; Du, D.; Andresen, P.L.; Zhang, L. Effect of dissolved oxygen and hydrogen on the stress corrosion cracking behavior of alloy 600 in high temperature water. J. Nucl. Mater. 2021, 543, 152603. [Google Scholar] [CrossRef]
- Xue, H.; Sato, Y.; Shoji, T. Quantitative estimation of the growth of environmentally assisted cracks at flaws in light water reactor components. J. Press. Vessel Technol. 2009, 131, 011404. [Google Scholar] [CrossRef]
- Yang, F.Q.; Xue, H.; Zhao, L.Y.; Fang, X.R. A quantitative prediction model of SCC rate for nuclear structure materials in high temperature water based on crack tip creep strain rate. Nucl. Eng. Des. 2014, 278, 686–692. [Google Scholar] [CrossRef]
- Wang, H.T.; Wang, G.Z.; Xuan, F.Z.; Liu, C.J. Local mechanical properties of a dissimilar metal welded joint in nuclear power systems. Mater. Sci. Eng. A 2013, 568, 108–117. [Google Scholar] [CrossRef]
- Wang, H.T.; Wang, G.Z.; Xuan, F.Z.; Liu, C.J. Local mechanical properties and microstructures of Alloy52M dissimilar metal welded joint between A508 ferritic steel and 316L stainless steel. Adv. Mater. Res. 2012, 509, 103–110. [Google Scholar] [CrossRef]
- Zhang, J.X.; Huang, Y.Q.; Fan, D.; Zhao, J.L.; Huang, J.K.; Yu, X.Q.; Liu, S. Microstructure and performances of dissimilar joints between 12Cr2Mo1R steel and 06Cr18Ni11Ti austenitic stainless steel joined by AA-TIG welding. J. Manuf. Processes 2020, 60, 96–106. [Google Scholar] [CrossRef]
- Zhu, R.L.; Wang, J.Q.; Zhang, L.T.; Zhang, Z.M.; Han, E.-H. Stress corrosion cracking of 316L HAZ for 316L stainless steel/Inconel 52M dissimilar metal weld joint in simulated primary water. Corros. Sci. 2016, 112, 373–384. [Google Scholar] [CrossRef]
- Dong, L.; Peng, Q.; Xue, H.; Han, E.-H.; Ke, W.; Wang, L. Correlation of microstructure and stress corrosion cracking initiation behaviour of the fusion boundary region in a SA508 Cl. 3-Alloy 52M dissimilar weld joint in primary pressurized water reactor environment. Corros. Sci. 2018, 132, 9–20. [Google Scholar] [CrossRef]
- Ming, H.L.; Zhang, Z.M.; Wang, J.Q.; Han, E.-H.; Ke, W. Microstructural characterization of an SA508–309L/308L–316L domestic dissimilar metal welded safe-end joint. Mater. Charact. 2014, 97, 101–115. [Google Scholar] [CrossRef]
- Yang, C.W.; Jiang, S.J. Weibull statistical analysis of strength fluctuation for failure prediction and structural durability of friction stir welded Al–Cu dissimilar joints correlated to metallurgical bonded characteristics. Materials 2019, 12, 205. [Google Scholar] [CrossRef]
- An, Z.L.; Zhang, L.; Hou, M.F. Statistical Analysis on Welding Parameters of 316L Stainless Steel Diffusion Welding Joint Based on the Weibull Distribution. In Proceedings of the 2nd Annual 2016 International Workshop on Materials Science and Engineering (IWMSE 2016), Guangzhou, China, 12–14 August 2017; pp. 614–619. [Google Scholar]
- Zhao, K.; Wang, S.; Xue, H.; Wang, Z. Effect of Material Heterogeneity on Environmentally Assisted Cracking Growth Rate of Alloy 600 for Safe-End Welded Joints. Materials 2021, 14, 6186. [Google Scholar] [CrossRef]
- Peng, Q.J.; Kwon, J.; Shoji, T. Development of a fundamental crack tip strain rate equation and its application to quantitative prediction of stress corrosion cracking of stainless steels in high temperature oxygenated water. J. Nucl. Mater. 2004, 324, 52–61. [Google Scholar] [CrossRef]
- Astm Standard E399-90; Standard Test Method for Plane Strain Fracture Toughness of Metallic Materials, in Annual Book of ASTM Standards. American Society for Testing and Materials (ASTM): West Conshohocken, PA, USA, 2002.
- Tarraf, J.; Mustapha, S.; Fakih, M.A.; Harb, M.; Wang, H.L.; Ayoub, G.; Hamade, R. Application of ultrasonic waves towards the inspection of similar and dissimilar friction stir welded joints. J. Mater. Processing Technol. 2018, 255, 570–583. [Google Scholar] [CrossRef]
- ISO 6507-1; Metallic Materials-Vickers Hardness Test-Part1: Test Method. International Organization for Standardization: Geneva, Switzerland, 2018.
- Peng, Y.; Wu, C.; Gan, J.; Dong, J. Characterization of heterogeneous constitutive relationship of the welded joint based on the stress-hardness relationship using micro-hardness tests. Constr. Build. Mater. 2019, 202, 37–45. [Google Scholar] [CrossRef]
- Pargeter, R.J. Yield strength from hardness: A reappraisal for weld metal. Weld. Inst. Res. Bull. 1978, 11, 325–326. [Google Scholar]
- Jenks, A.R.; White, G.A.; Crooker, P. Crack growth rates for evaluating PWSCC of thick-wall alloy 690 material and alloy 52, 152, and variant welds. In Proceedings of the Pressure Vessels and Piping Conference, Waikoloa, HI, USA, 16–20 July 2017. [Google Scholar]
- Xue, H.; Sun, Y.M.; Zhang, S.; Bashir, R.; Zhao, Y.J.; Yang, H.L.; Wang, S.; Yang, Y.J. A numerical approach to analyze detail mechanical characteristic at the crack tip of SCC in dissimilar metal welded joints. Adv. Mater. Sci. Eng. 2021, 2021, 8429051. [Google Scholar] [CrossRef]
- Fang, X.R.; Yang, J.H.; Shao, Y.R.; Xue, O. Quantitative Prediction of Stress Corrosion Crack Propagation Rate of Small Crack in Alloy 600 for Nuclear Pressure Vessels. Rare Met. Mater. Eng. 2019, 48, 2424–2431. [Google Scholar]
- Zhu, R.L.; Wang, J.Q.; Zhang, Z.M.; Han, E.-H. Stress corrosion cracking of fusion boundary for 316L/52M dissimilar metal weld joints in borated and lithiated high temperature water. Corros. Sci. 2017, 120, 219–230. [Google Scholar] [CrossRef]


















Publisher’s Note: MDPI stays neutral with regard to jurisdictional claims in published maps and institutional affiliations. |
© 2022 by the authors. Licensee MDPI, Basel, Switzerland. This article is an open access article distributed under the terms and conditions of the Creative Commons Attribution (CC BY) license (https://creativecommons.org/licenses/by/4.0/).
Share and Cite
Zhao, K.; Wang, B.; Xue, H.; Wang, Z. Effect of Material Inhomogeneity on the Crack Tip Mechanical Field and SCC Growth Rate of 52M/316L Dissimilar Metal Welded Joints. Metals 2022, 12, 1683. https://doi.org/10.3390/met12101683
Zhao K, Wang B, Xue H, Wang Z. Effect of Material Inhomogeneity on the Crack Tip Mechanical Field and SCC Growth Rate of 52M/316L Dissimilar Metal Welded Joints. Metals. 2022; 12(10):1683. https://doi.org/10.3390/met12101683
Chicago/Turabian StyleZhao, Kuan, Bangwen Wang, He Xue, and Zheng Wang. 2022. "Effect of Material Inhomogeneity on the Crack Tip Mechanical Field and SCC Growth Rate of 52M/316L Dissimilar Metal Welded Joints" Metals 12, no. 10: 1683. https://doi.org/10.3390/met12101683
APA StyleZhao, K., Wang, B., Xue, H., & Wang, Z. (2022). Effect of Material Inhomogeneity on the Crack Tip Mechanical Field and SCC Growth Rate of 52M/316L Dissimilar Metal Welded Joints. Metals, 12(10), 1683. https://doi.org/10.3390/met12101683

