Design of a Gravity Ropeway in Nepal: A Methodological Analysis for Appropriate Technologies
Abstract
1. Introduction
- Improvement of the quality of life of farmers in the area, reducing the time and effort spent transporting their products.
- Improvement and optimization of existing gravity ropeway designs and their operation, solving technical issues through simple, effective, and safe mechanical solutions.
- Evaluation of the design methodology employed in the project to identify potential deficiencies and gaps that could lead to errors, as these could jeopardize the success of the project as an appropriate technology.
2. Materials and Methods
2.1. Project Framework
2.2. Project Methodology: Phased Approach
2.3. Phase 1—Definition and Specifications
2.4. Phase 2—Conceptual Design
2.4.1. Cable Resistance Calculation
2.4.2. Upper and Lower Stations
2.4.3. Middle Towers
2.4.4. Braking System
2.4.5. Manual Operation
2.5. Phases 3 and 4—Embodiment Design and Detail Design
3. Results and Analysis
- Improvement of the quality of life of the farmers in the Kalikot area, Nepal: The successful installation of the ropeway system in a region lacking transportation infrastructure for farmers was achieved. Practical Action assumed most of the costs, while the community contributed labor and some of the materials. The local cooperative, initially coordinated by Practical Action, took responsibility for the operation of the ropeway. The NGO reported a reduction in both time and resources required for transportation, which increased the competitiveness of their agricultural products in local markets. This improvement enhanced the socioeconomic conditions of the farmers and their families. A more effective and quantitative assessment of the impact of the ropeway on the lives of the community would be desirable in future studies.
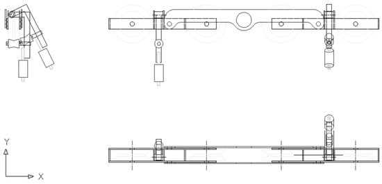
- Improvement and optimization of the ropeway design and operation: The design of the ropeway was adjusted to meet technical specifications, users’ requirements, and environment constraints, applying criteria of simplicity and contextual adequacy. The environmental limitations, available resources, and manufacturing techniques in the area were taken into consideration, thus ensuring that it could be manufactured and maintained by local people. The modular design facilitated transportation in challenging topographical conditions. An altitude difference of 500 m over a distance of 800 m was successfully overcome, transporting a load of 1200 N. The stations’ design and the horizontal pulley arrangement avoided cable entanglement issues. The effectiveness of the mechanism for uncoupling the carriage at the middle station fulfilled its purpose and prevented the cables from slipping off the wheels. The intermediate tower provided a maximum deflection of 48 m, which was below the required 65 m. Significant weight reduction was achieved in the basket and most of the assemblies. Figure 23 shows the in situ implementation of the upper and lower stations. As a proposal for future technical research on the project, it is highlighted that the system’s operation, maintenance, and potential improvements should be monitored based on user feedback.
- Analysis of the design methodology followed: At the end of the project, shortcomings were identified in the explicit documentation of information required for the project specification. Although the design team had considered these implications, they were not adequately documented, which could have negatively impacted future project phases, especially in the event of changes within the team. This analysis highlighted the importance of thoroughly documenting all the available information and ensuring its accessibility to preserve the continuity and success of the project. It was also evident that the phased methodology employed does not include this fundamental process in projects involving community development.
- Availability of market components: There were two basic market components in the design that were not available in the local market: cables and bearings. These were available on the Indian market, but had to be selected from the available options and had long delivery times. The solutions were adapted to these conditions.
- Availability of materials: The structure was manufactured using the available materials: standard steel profiles (IPE and UPN), sheet steel (preferably S235JR), and wood. The workshop in charge of manufacturing reported the usual availability of materials and the solutions were adapted to them. There was some uncertainty in the quality of the steels.
- Availability of technologies and tools: Precision cutting technologies were not available in the local workshop. The only tools were torches, chisels, hammers, stones, and manual bending machines. This limited availability of tools narrowed the thickness range of sheet metal options that could be used, and the tolerances that could be achieved. The lathe available only allowed for machining up to a diameter of 800 mm, thus limiting the maximum diameter of the pulley to be used. Continuous joining cable methods were not available. There was no generator or batteries at the installation site; therefore, some assemblies had to be welded in the workshop and transported assembled, as was the case with the loading basket. The rest of the assemblies had to be assembled at the installation site using bolted joints. The design was adapted to these conditions using the standard screws available in the country.
- Transport: The transport of the ropeway elements to the installation site was long and through rough terrain. It had to be carried out with animals and off-road vehicles; therefore, the maximum weight and volume of the parts and subassemblies of the ropeway were limited to these two types of transport.
- Assembly, installation, and maintenance: The assembly had to be completely manual; therefore, the design had to facilitate this and ensure that only basic tools were necessary. This was achieved by facilitating, whenever possible, the positioning and regulation of parts, mainly those that had to be mounted in certain positions (cables and pulleys). The laying of the cable was carried out with the collaboration of more than a hundred people who dragged it up the mountain. Proper tensioning was performed with a manual tensioner. The maintenance was simple and required few tools or materials (wood and stone) thus allowing it to be carried out by the operators of the ropeway.
- The gathering of this information was carried out without a methodological order and was transmitted verbally;
- The information gathered in a document was not collected or formalized, nor was a list of the characteristics of the context prepared;
- No explicit definition of the context constraints was established.
- The specifications omit relevant contextual aspects, such as transportation, which is crucial for the design, despite being considered during the project.
- Some specifications lack precision due to insufficient contextual information, such as the availability of materials, components, and technologies. Furthermore, terms such as “minimum cost” and “minimum maintenance” should also be defined.
- There is a lack of quantification in the specification of “minimum cost”. Although the NGO covered the installation expenses, this information needs clarification.
- Certain elements resemble decisions or important design criteria rather than quantitative specifications, such as the active braking system or the prioritization of the use of recyclable materials.
- Some decisions and specifications are not dependent on the context.
4. Discussion
5. Conclusions
Author Contributions
Funding
Data Availability Statement
Acknowledgments
Conflicts of Interest
References
- Burleson, G.; Herrera, S.V.S.; Toyama, K.; Sienko, K.H. Incorporating Contextual Factors Into Engineering Design Processes: An Analysis of Novice Practice. J. Mech. Des. 2023, 145, 021401. [Google Scholar] [CrossRef]
- Aranda Jan, C.B.; Jagtap, S.; Moultrie, J. Towards A Framework for Holistic Contextual Design for Low-Resource Settings. Int. J. Des. 2016, 10. [Google Scholar] [CrossRef]
- Wood, A.E.; Mattson, C.A. Design for the Developing World: Common Pitfalls and How to Avoid Them. J. Mech. Des. 2016, 138, 031101. [Google Scholar] [CrossRef]
- Sianipar, C.; Yudoko, G.; Dowaki, K.; Adhiutama, A. Design Methodology for Appropriate Technology: Engineering as If People Mattered. Sustainability 2013, 5, 3382–3425. [Google Scholar] [CrossRef]
- Smith, J.; Tran, A.L.H.; Compston, P. Review of Humanitarian Action and Development Engineering Education Programmes. Eur. J. Eng. Educ. 2020, 45, 249–272. [Google Scholar] [CrossRef]
- Jagtap, S. Design and Poverty: A Review of Contexts, Roles of Poor People, and Methods. Res. Eng. Des. 2019, 30, 41–62. [Google Scholar] [CrossRef]
- Nieusma, D.; Riley, D. Designs on Development: Engineering, Globalization, and Social Justice. Eng. Stud. 2010, 2, 29–59. [Google Scholar] [CrossRef]
- Akubue, A. Appropriate Technology for Socioeconomic Development in Third-World Countries. J. Technol. Stud. E-J. 2000, 26, 33–43. [Google Scholar] [CrossRef]
- Mattson, C.A.; Wood, A.E. Nine Principles for Design for the Developing World as Derived from the Engineering Literature. J. Mech. Des. 2014, 136, 121403. [Google Scholar] [CrossRef]
- Witherspoon, T.; Harris, E. Avoiding the 30-Pound Paperweight: Success via Contextually Appropriate Technologies. In Proceedings of the IEEE Global Humanitarian Technology Conference, Seattle, WA, USA, 30 October–1 November 2011; IEEE: Seattle, WA, USA, 2011; pp. 402–408. [Google Scholar]
- Burnham, M.G. The “Systems Approach” to Human Problems: How Humanitarian Engineering Can Help; IEEE: New York, NY, USA, 2009. [Google Scholar]
- Murphy, H.M.; McBean, E.A.; Farahbakhsh, K. Appropriate Technology—A Comprehensive Approach for Water and Sanitation in the Developing World. Technol. Soc. 2009, 31, 158–167. [Google Scholar] [CrossRef]
- Rodrigues, R.B.; Jillian, S.C. A Scoping Literature Review of Sociotechnical Thinking in Engineering Education. Eur. J. Eng. Educ. 2024, 49, 807–833. [Google Scholar] [CrossRef]
- Dugan, K.E.; Mosyjowski, E.A.; Daly, S.R.; Lattuca, L.R. Leveraging a Comprehensive Systems Thinking Framework to Analyze Engineer Complex Problem-Solving Approaches. J. Eng. Educ. 2024, 113, 53–74. [Google Scholar] [CrossRef]
- Mazzurco, A.; Daniel, S. Socio-Technical Thinking of Students and Practitioners in the Context of Humanitarian Engineering. J. Eng. Educ. 2020, 109, 243–261. [Google Scholar] [CrossRef]
- Green, M.G.; Jensen, D.; Seepersad, C.C.; Wood, K.L. Design for Frontier Contexts: Classroom Assessment of a New Design Methodology with Humanitarian Applications. Int. J. Eng. Educ. 2009, 25, 1029–1045. [Google Scholar]
- Ulrich, K.; Eppinger, S.D. Diseño y Desarrollo de Productos; McGraw-Hill: Boston, MA, USA, 2013; ISBN 978-607-15-0944-7. [Google Scholar]
- Otto, K.; Wood, K. Product Design: Techniques in Reverse Engineering and New Product Development; Prentice Hall: Hoboken, NJ, USA, 2001. [Google Scholar]
- Cross, N. Engineering Design Methods. Strategies for Product Design, 3rd ed.; John Wiley & Sons: Chichester, UK, 2000; ISBN 9780471872504. [Google Scholar]
- Roozenburg, N.; Eekels, J. Product Design: Fundamentals and Methods; John Wiley & Sons: Chichester, UK, 1995. [Google Scholar]
- French, M.J. Conceptual Design for Engineers; Springer: New York, NY, USA, 1999; ISBN 978-1-84996-853-9. [Google Scholar]
- Ullman, D.G. The Mechanical Design Process, 4th ed.; McGraw-Hill: New York, NY, USA, 2010; ISBN 978007297574. [Google Scholar]
- Pahl, G.; Beitz, W.; Feldhusen, J.; Grote, K. Engineering Design: A Systematic Approach, 3rd ed.; Springer: Berlin/Heidelberg, Germany, 2007; ISBN 9781846283185. [Google Scholar]
- Kannengiesser, U.; Gero, J.S. Can Pahl and Beitz’ Systematic Approach Be a Predictive Model of Designing? Des. Sci. 2017, 3, e24. [Google Scholar] [CrossRef][Green Version]
- Hubka, V.; Eder, W.E. Design Science, 2nd ed.; Springer: London, UK, 1996; ISBN 978-3-540-19997-7. [Google Scholar]
- VDI Society for Product Development, Design and Marketing. VDI Guideline 2221—Systematic Approach to the Design of Technical Systems and Products; Verein Deutscher Ingenieure: Berlin, Germany, 1987. [Google Scholar]
- Laxman, K.C. Gravity Goods Ropeway an Alternative Sustainable Solution for Rural Transportation with out Hampering to the Natural Environment and Climate: A Case Study from Janagaun Village. In IOP Conference Series. Earth and Environmental Science; IOP Publishing: Bristol, UK, 2009; Volume 6, p. 202019. [Google Scholar] [CrossRef]
- Diwakar, K.; Maraseni, T.; Jamir, C.; Thapa Magar, R.; Tuladhar, F. Effectiveness of Gravity Goods Ropeways in Market Participation of Smallholder Farmers in Uplands. Transportation 2019, 47, 1393–1414. [Google Scholar] [CrossRef]
- Sianipar, C.P.M.; Yudoko, G.; Adhiutama, A.; Dowaki, K. Community Empowerment through Appropriate Technology: Sustaining the Sustainable Development. Procedia Environ. Sci. 2013, 17, 1007–1016. [Google Scholar] [CrossRef]
- Baral, L.B.; Nakarmi, J.J.; Poudyal, K.N.; Karki, N.R.; Nalmpantis, D.; Dura, H.B.; Amatya, V.P. Gravity Balance Up-down Walking Supported by Circulating Rope in Mountain Is Easier than Walking in Plain. Int. J. Syst. Assur. Eng. Manag. 2021, 12, 931–937. [Google Scholar] [CrossRef]
- Farias, P.; Aca, J.; Molina, A.; Maury, H.; Riba, C. Evolución de Los Modelos Del Proceso de Diseño. In Ingeniería Concurrente: Una Metodología Integradora; Edicions UPC: Barcelona, Spain, 2006; pp. 21–36. ISBN 978-84-8301-899-6. [Google Scholar]
- Riba, C. Diseño Concurrente; Edicions UPC: Barcelona, Spain, 2002. [Google Scholar]
- Bhandari, S.B.; Bhandari, S.B.; Shahi, P.B.; Shrestha, R.N. Overview of Rural Transportation Infrastructures in Nepal. Eurasia J. Earth Sci. Civ. Eng. 2015, 1, 1–14. [Google Scholar] [CrossRef]























| Specifications | Project: Gravity Ropeway for Agricultural Products in Nepal | |||
|---|---|---|---|---|
| Concept | Description | Date | Proposes | R/A |
| Function | Moving baskets of agricultural products from the top of the mountain to the valley | 26 October 2009 | EP | R |
| Incorporate a tractor cable and two guide cables | EP | R | ||
| Possibility of transporting goods in the other direction | PA | D | ||
| Prevent cables from getting tangled along the line | PA | R | ||
| Dimensions | Cover a 500 m altitude difference with intermediate slopes | 26 October 2009 | CTXT + PA | R |
| Maximum cable length: 1800 m | 19 November 2009 | CTXT | R | |
| Maximum cable deflection: 65 m | CTXT + PA | R | ||
| Basket mass: less than 50 kg | 26 October 2009 | PA + CDEI | R | |
| Distance between guide wires: 1800 mm | 19 November 2009 | PA | R | |
| Movements | Basket speed: between 5 and 10 m/s | 26 October 2009 | PA + CDEI | R |
| Controllable speed | CDEI | D | ||
| Forces | Maximum cable tension: 10,000 N (max. tensioner) | 26 October 2009 | CTXT | R |
| Maximum basket load: 1200 N | PA | R | ||
| Passive braking system | PA + CDEI | R | ||
| Functional braking system in both directions | PA | D | ||
| Energy | Gravity driven | 26 October 2009 | EP | R |
| Manual operation, if required | PA | R | ||
| Ability to harness the energy dissipated by the system | PA + CDEI | D | ||
| Materials | Widely available materials will be used in Nepal | 26 October 2009 | CTXT | R |
| Manufacture and assembly | Standard parts shall be used wherever possible | 26 October 2009 | CTXT | D |
| Pulley diameter: ≤800 mm | 19 November 2009 | CTXT | R | |
| Use 6 × 19 Seale Type Cable (9/9/1) | 19 November 2009 | CTXT | R | |
| Non-standardized parts that can be manufactured with the technologies available on site. | 26 October 2009 | CTXT | R | |
| Cost | Minimum cost | 26 October 2009 | CTXT | R |
| Service life and maintenance | Minimal maintenance | 26 October 2009 | Phantom Assassin + CTXT | R |
| Use of components marketed in the domestic market | 26 October 2009 | CTXT | R | |
| Safety and ergonomics | Moving parts not accessible in operation | 26 October 2009 | PA | D |
| Environmental impact | Prioritizing the use of recyclable materials | 26 October 2009 | PA + CDEI | R |
| Characteristics of the Project Context (Nepal) | |
|---|---|
| Concept | Description |
| Farmers’ needs | Bring their products down to the valley in less time and with less effort. |
| Productivity of the techniques currently used | About 3 h on foot, leading to the loss of product quality. |
| Desired productivity | Halving the time would be acceptable to users. |
| Orography of the territory | Very abrupt; In the installation area, slopes of about 500 m must be overcome. |
| Weather conditions | Cold with an abundant rainy season. |
| User Type (Operator) | A man in each station (upper and lower) with little training. |
| Level of cooperation of the community members | High. They are open to collaborating throughout the project. They provide manual work during installation. |
| Current transportation Cost | 0$, the loss of quality of the products is not quantified; a lot of physical effort. |
| Price they are willing to pay | They cannot pay anything for the new transportation system. |
| Availability of infrastructure and transport | There is no communication route to the installation area and the transport of goods is carried out by animal traction or on foot. |
| Energy availability in growing areas | No electrical grid is available. |
| Component availability in the area and in the country | Poor availability of components of any kind. Cables and bearings are sourced from India. 6 × 19 Seale type cable (9/9/1). Maximum length: 1800 m. Maximum cable tension 10,000 N. Springs are not available. English standards are followed. |
| Availability of materials in the area and in the country | Standard construction profiles (IPE, UPN), tubular (square and round) and structural steel sheet of standard thicknesses, S235JR. The availability in the area at a specific time should be checked. Wood. |
| Manufacturing technologies available in the area (workshops) and in the country | The nearest workshop has a lathe (max. diameter 800 mm), drilling, torch welding, cutting (saw), and rudimentary sheet metal bending (not very precise). Basic work tools: screwdriver, fixed wrenches, chisel, drill, hammer. |
Disclaimer/Publisher’s Note: The statements, opinions and data contained in all publications are solely those of the individual author(s) and contributor(s) and not of MDPI and/or the editor(s). MDPI and/or the editor(s) disclaim responsibility for any injury to people or property resulting from any ideas, methods, instructions or products referred to in the content. |
© 2024 by the authors. Licensee MDPI, Basel, Switzerland. This article is an open access article distributed under the terms and conditions of the Creative Commons Attribution (CC BY) license (https://creativecommons.org/licenses/by/4.0/).
Share and Cite
Blanco-Romero, E.; Domènech-Mestres, C.; Ayala-Chauvin, M. Design of a Gravity Ropeway in Nepal: A Methodological Analysis for Appropriate Technologies. Machines 2024, 12, 819. https://doi.org/10.3390/machines12110819
Blanco-Romero E, Domènech-Mestres C, Ayala-Chauvin M. Design of a Gravity Ropeway in Nepal: A Methodological Analysis for Appropriate Technologies. Machines. 2024; 12(11):819. https://doi.org/10.3390/machines12110819
Chicago/Turabian StyleBlanco-Romero, Elena, Carles Domènech-Mestres, and Manuel Ayala-Chauvin. 2024. "Design of a Gravity Ropeway in Nepal: A Methodological Analysis for Appropriate Technologies" Machines 12, no. 11: 819. https://doi.org/10.3390/machines12110819
APA StyleBlanco-Romero, E., Domènech-Mestres, C., & Ayala-Chauvin, M. (2024). Design of a Gravity Ropeway in Nepal: A Methodological Analysis for Appropriate Technologies. Machines, 12(11), 819. https://doi.org/10.3390/machines12110819
