Tracing Material Origins: Provenance Studies of White Marble in Roman Temple E of Ancient Corinth Using Archaeometric and Geoarchaeological Methods
Abstract
1. Introduction
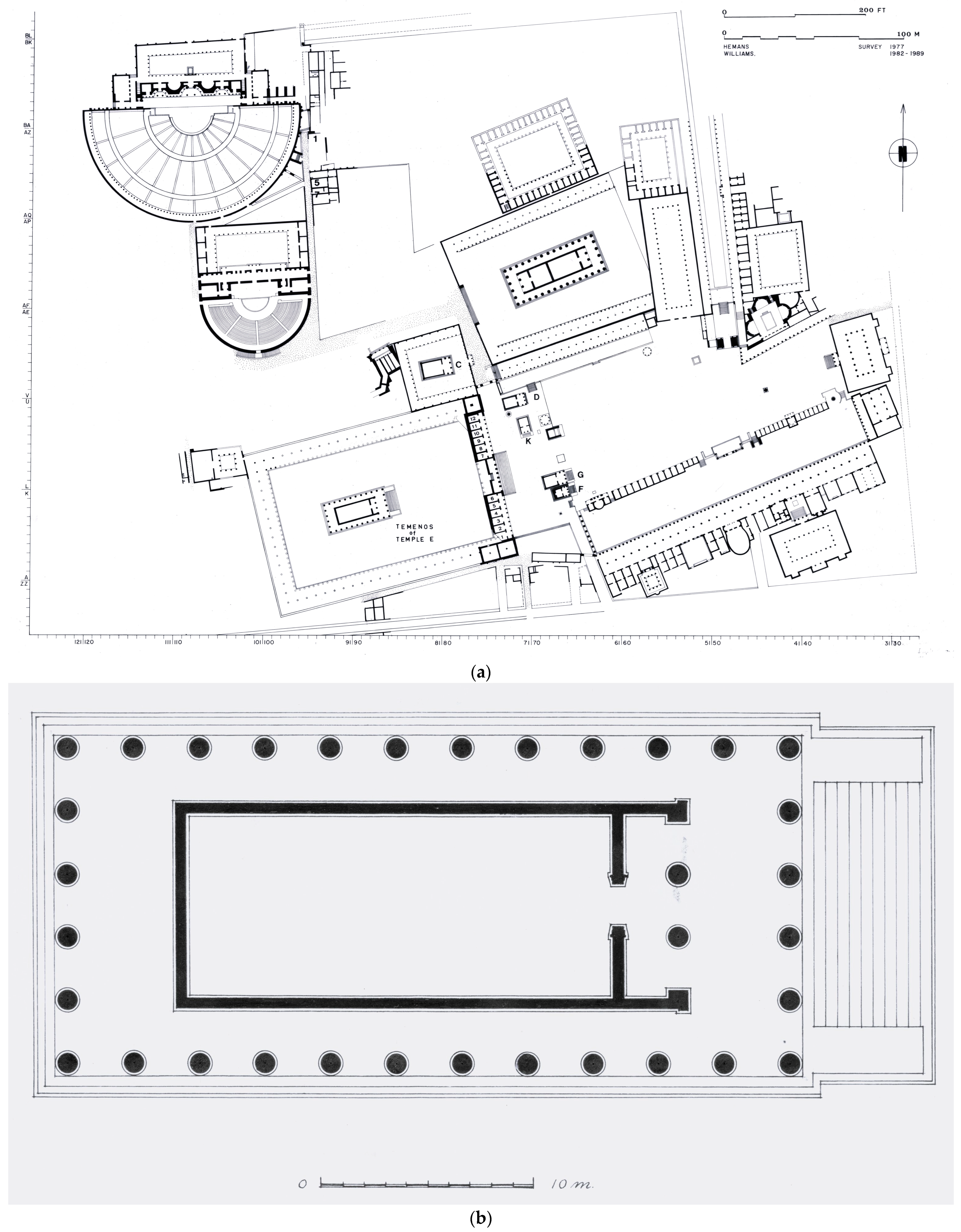
2. Architectural Context of Temple E and Sampled Artefacts
3. Methodology
Preparatory Survey and Characterisation of Mani Peninsula Marble Quarries
4. Results
4.1. Petrographic Data
4.2. Geochemical Data and Provenance Results
- Distance: Distance of the sample under consideration from the centre of the ellipse. This centre is the average value of the quarry probability field.
- Relative (posterior) probability: This probability is the degree of likelihood of a sample belonging to a given group (within the selected number of groups). Results below 60% indicate that the sample probably cannot be assigned with certainty, and a second choice has to be considered.
- Absolute (typical) probability: This is the measure of the probability that a sample belongs to a given population. Samples in the centre of the probability ellipse have a high absolute probability. The threshold is 10%, corresponding to samples on the edge of the 90% probability ellipse. Low values indicate anomalous samples (outliers) or samples possibly not belonging to any group in the selection.
5. Discussion and Conclusions
Supplementary Materials
Author Contributions
Funding
Data Availability Statement
Acknowledgments
Conflicts of Interest
References
- Wiseman, J. Corinth and Rome I: 228 B.C.–A.D. 267; De Gruyter: Berlin, Germany, 1979; pp. 438–548. [Google Scholar]
- Engels, D.W. Roman Corinth: An Alternative Model for the Classical City; University of Chicago Press: Chicago, IL, USA, 1990. [Google Scholar]
- Schowalter, D.N.; Friesen, S.J. Urban Religion in Roman Corinth: Interdisciplinary Approaches; Harvard Theological Studies: Cambridge, MA, USA, 2005. [Google Scholar]
- Friesen, S.J.; Schowalter, D.N.; Walters, J.C. Corinth in Context: Comparative Studies on Religion and Society; Brill: Leiden, The Netherlands, 2010. [Google Scholar]
- Friesen, S.J.; James, S.A.; Schowalter, D.N. Corinth in Contrast: Studies in Inequality; Brill: Leiden, The Netherlands, 2014. [Google Scholar]
- Scranton, R.L.; Shaw, J.W.; Ibrahim, L. Kenchreai. Eastern Port of Corinth, Band 1; Brill: Leiden, The Netherlands, 1978. [Google Scholar]
- Rothaus, R. Lechaion, western port of Corinth: A preliminary archaeology and history. Oxf. J. Archaeol. 1995, 14, 293–306. [Google Scholar] [CrossRef]
- Rothaus, R.M. Corinth: The First City of Greece. An Urban History of Late Antique Cult and Religion; Brill: Leiden, The Netherlands, 2000. [Google Scholar]
- Pettegrew, D.K. The Isthmus of Corinth: Crossroads of the Mediterranean World; University of Michigan Press: Ann Arbor, MI, USA, 2016. [Google Scholar]
- Güngör, A. Lechaion, fünf Jahre Hafenforschung und Unterwasserarchäologie. Antike Welt 2018, 49, 39–44. [Google Scholar]
- Loven, B.; Kourkoumelis, D.; Micha, P.; Athanasopoulos, P. Lechaion Harbour Project 2013–2014. In Βουτιά στα Περασμένα. H υποβρύχια αρχαιολογική έρευνα 1974–2014; Simosi, A., Ed.; Ministry of Culture: Athens, Greece, 2018; pp. 85–90. [Google Scholar]
- Camia, F.; Kantiréa, M. The imperial cult in the Peloponnese. In Roman Peloponnese III. Society, Economy and Culture Under the Roman Empire: Continuity and Innovation; Rizakis, A.D., Lepenioti, C.L., Eds.; Meletemata 63; National Hellenic Research Foundation’s Institute of Historical Research: Athens, Greece, 2010; pp. 375–406. [Google Scholar]
- Williams, C.K. The refounding of Corinth: Some Roman religious attitudes. In Roman Architecture in the Greek World; Macready, S., Thompson, F.H., Eds.; Occasional Papers N.S. 10; Society of Antiquaries of London: London, UK, 1987; pp. 26–37. [Google Scholar]
- Williams, C.K. A re-evaluation of Temple E and the west end of the Forum of Corinth. In The Greek Renaissance in the Roman Empire: Papers from the Tenth British Museum Classical Colloquium; Walker, S., Cameron, A., Eds.; University of London Institute of Classical Studies Bulletin Supplement 55; University of London: London, UK, 1989; pp. 156–162. [Google Scholar]
- Amandry, M. Le Monnayage des Duovirs Corinthiens; BCH Suppl. 15; Ecole Française d’Athènes: Athens, Greece, 1988. [Google Scholar]
- Freeman, S.E.; Temple, E. Architecture, Corinth I, 2; Stillwell, R., Scranton, R., Freeman, S.E., Askew, H.E., Eds.; Harvard University Press: Cambridge, MA, USA, 1941; pp. 166–236. [Google Scholar]
- Walbank, M.E.H. Pausanias, Octavia and Temple E at Corinth. Annu. Br. Sch. Athens 1989, 84, 361–394. [Google Scholar] [CrossRef]
- Walbank, M.E.H. The Cults of Roman Corinth: Public Ritual and Personal Belief. In Roman Peloponnes III. Society, Economy and Culture Under the Roman Empire: Continuity and Innovation; Rizakis, A.D., Lepenioti, C., Eds.; National Research Foundation (NRF): Athens, Greece; Paris, France, 2010; pp. 357–374. [Google Scholar]
- Osanna, M. Tra monumenti, agalmata e mirabilia. Organizzazione del percorso urbano di Corinto nella Periegesi di Pausania. In Éditer, Traduire, Commenter Pausanias en l’an 2000. Actes du Colloque de Neuchâtel et de Fribourg (18–22 Septembre 1998) Autour des Deux Éditions en Cours de la Périégèse; Knoepfler, D., Ed.; Recueil de Travaux/Faculté des Lettres et Sciences Humaines, Université de Neuchâtel 49; Université de Neuchâtel: Genève, Switzerland, 2001; pp. 185–202. [Google Scholar]
- Kantiréa, M. Les Dieux et les Dieux Augustes: Le Culte Impérial en Grèce sous les Julio-Claudiens et les Flaviens: Études Épigraphiques et Archéologiques; Centre de Recherches de l’Antiquité Grecque et Romaine, Fondation Nationale de la Recherche Scientifique: Athens, Greece, 2007. [Google Scholar]
- Camia, F. Theoi Sebastoi: Il Culto Degli Imperatori Romani in Grecia (Provincia Achaia) nel Secondo Secolo d.C.; Istituto per l’Antichità Greca e Romana, Fondazione Nazionale Ellenica delle Ricerche, Diffusion de Boccard: Athens, Greece, 2011. [Google Scholar]
- Fouquet, J. Bauen zwischen Polis und Imperium. Stadtentwicklung und urbane Lebensformen auf der kaiserzeitlichen Peloponnes; Urban Spaces 7; De Gruyter: Berlin, Germany, 2019. [Google Scholar]
- Evangelidis, V. H αγορά των πόλεων της Ελλάδας από τη ρωμαϊκή κατάκτηση ως τον 3ο αι. μ.Χ.; University Studio Press: Thessaloniki, Greece, 2010. [Google Scholar]
- Williams, C.K. Roman Corinth as a commercial center. JRA Suppl. 1993, 8, 31–46. [Google Scholar]
- Williams, C.K.; Zervos, O.H. Excavations at Corinth, 1989: The Temenos of Temple E. Hesperia 1990, 59, 325–369. [Google Scholar]
- Sturgeon, M.C. Roman sculptures from Corinth and Isthmia: A case for a local “workshop”. Bull. Suppl. (Univ. London. Inst. Class. Stud.) 1989, 55, 114–121. [Google Scholar] [CrossRef]
- Heilmeyer, W.-D. Korinthische Normalkapitelle. Studien zur Geschichte der römischen Architekturdekoration; Springer: Heidelberg, Germany, 1970. [Google Scholar]
- Cenati, C.; Anevlavi, V.; Prochaska, W.; Nastasi, L.; Ladstätter, S. Inscriptions and their marble(s): Some examples from Roman Corinth. In Proceedings of the ASMOSIA XIII Conference, Vienna, Austria, 19–24 September 2022; Ladstätter, S., Prochaska, W., Anevlavi, V., Eds.; Sonderschriften des Österreichischen Archäologischen Instituts: Vienna, Austria forthcoming. [Google Scholar]
- Kent, J.H. The Inscriptions, 1926–1950, Corinth VIII, 3; American School of Classical Studies at Athens: Princeton, NJ, USA, 1966. [Google Scholar]
- Prochaska, W. The challenge of a successful discrimination of ancient marbles (Part II): A databank for the Alpine marbles. J. Archaeol. Sci. Rep. 2021, 38, 102958. [Google Scholar] [CrossRef]
- Prochaska, W.; Attanasio, D. The challenge of a successful discrimination of ancient marbles (Part I): A databank for the marbles from Paros, Prokonnesos, Heraklea/Miletos, and Thasos. J. Archaeol. Sci. Rep. 2021, 35, 102676. [Google Scholar] [CrossRef]
- Prochaska, W.; Attanasio, D. The challenge of a successful discrimination of ancient marbles (Part III): A databank for Aphrodisias, Carrara, Dokimeion, Göktepe, Hymettos, Parian Lychnites, and Pentelikon. J. Archaeol. Sci. Rep. 2022, 45, 103582. [Google Scholar] [CrossRef]
- Prochaska, W.; Ladstätter, S.; Anevlavi, V. The challenge of a successful discrimination of ancient marbles (Part IV): A databank for the white marbles from the region of Ephesos. J. Archaeol. Sci. Rep. 2024, 53, 104336. [Google Scholar] [CrossRef]
- Gorgoni, C.; Kokkinakis, I.; Lazzarini, L.; Mariotini, M. Geochemical and petrographic characterization of Rosso Antico and other white-grey marbles of Mani (Greece). In Ancient Stones: Quarrying, Trade and Provenance; Waelkens, M., Herz, N., Moens, L., Eds.; Leuven University Press: Leuven, Belgium, 1992; pp. 155–165. [Google Scholar]
- Chiotis, E.D. Geological aspects of the Lakonian marbles and new evidence on their quarrying in antiquity. In Archaeometry Issues in Greek Prehistory and Antiquity; Bassiakos, Y., Aloupi, E., Facorellis, Y., Eds.; National Center for Scientific Research “Demokritos”: Athens, Greece, 2001; pp. 557–565. [Google Scholar]
- Bruno, M.; Pensabene, P.; Conti, L.; Turi, B.; Lazzarini, L. White marble quarries and architectural marbles of Cape Tainaron, Greece. In ASMOSIA V: Interdisciplinary Studies on Ancient Stone, Proceedings of the Fifth International Conference of ASMOSIA, Boston, MA, USA, June 1998; Herrmann, J.J., Herz, N., Newman, R., Eds.; Archetype Publications: London, UK, 2002; pp. 36–45. [Google Scholar]
- Attanasio, D.; Brilli, M.; Ogle, N. The Isotopic Signatures of Classical Marbles; L’Erma di Bretschneider: Rome, Italy, 2006. [Google Scholar]
- Ladstätter, S.; Anevlavi, V.; Prochaska, W.; Licari, J.G. Die Marmore römischer Steindenkmäler aus dem Stadtmuseum Villach und der Keltenwelt Frög. Neues Aus Alt-Villach Jahrb. Des Stadtmus. 2022, 59, 7–37. [Google Scholar]
- Giese, J.; Grawehr, M. Zur Unterscheidung von Unfertigkeit. Auslassungen, Reduktion und Bossenstil. In Aspekte von Unfertigkeit in der kaiserzeitlichen Architektur. Ergebnisse eines Workshops am Architekturreferat des Deutschen Archäologischen Instituts 26. und 27. September 2016; TuK 1; Geißler, B., Wulf-Rheidt, U., Eds.; Harrassowitz: Wiesbaden, Germany, 2021; pp. 15–16. [Google Scholar]
- Al-Bashaireh, K. Ancient white marble trade and its provenance determination. J. Archaeol. Sci. Rep. 2021, 35, 102777. [Google Scholar] [CrossRef]
- Maniatis, Y.; Tambakopoulos, D.; Lazzarini, L.; Sturgeon, M.C. Provenance investigation of three marble relief sculptures from ancient Corinth: New evidence for the circulation of the white marble from Mani. Archaeometry 2021, 63, 685–704. [Google Scholar] [CrossRef]
- Cooper, F.A. The Temple of Apollo Bassitas: The Architecture; The American School of Classical Studies at Athens: Princeton, NJ, USA, 1996; Volume I, pp. 107–114. [Google Scholar]



















| Artefacts | Project Nr | Inv. Nr | Cat. Nr by Freeman 1941 [16] | Marble Description |
|---|---|---|---|---|
| Ionic column base | PM-KOR-69 | A-1282 | p. 186, Cat.-Nr. 7 | White colour; medium grained |
| Drum of column shaft (south) | PM-KOR-70 | n/a * | p. 186, Cat.-Nr. 9 | White colour; fine to medium grained |
| Corinthian column capital | PM-KOR-71 | A-1277 | p. 187, Cat.-Nr. 13–22 | White colour with thin grey banding; medium grained |
| Ionic column base | PM-KOR-72 | A-1283 | p. 186, Cat.-Nr. 5 | White colour; fine grained |
| Drum of column shaft (central) | PM-KOR-73 | n/a | p. 186, Cat.-Nr. 8 | White colour; medium grained |
| Corinthian column capital | PM-KOR-74 | A-1278 | p. 187, Cat.-Nr. 13–22 | White colour; medium grained |
| Epistyle block | PM-KOR-75 | A-1279 | p. 189, Cat.-Nr. 31 | White colour; medium grained |
| Epistyle block | PM-KOR-76 | I-1055 | p. 189, Cat.-Nr. 29 | White colour; medium grained |
| Epistyle block | PM-KOR-77 | A-1280 | p. 191, Cat.-Nr. 33 | White colour; medium grained |
| Corinthian column capital | PM-KOR-80 | A-1281 | p. 187, Cat.-Nr. 13–22 | White colour; medium grained |
| Sima frag. with water spout | PM-KOR-81 | A-1182 | p. 197, Cat.-Nr. 60 | White colour; medium grained |
| Artefacts | Distance | Abs. Probab. | Rel. Probab. | Provenance | Rel. Probab. | Provenance |
|---|---|---|---|---|---|---|
| 1st choice | 2nd choice | |||||
| PM-KOR-69 | 0.8 | 93.4 | 100.00 | Doliana | 0.0 | Erimos |
| PM-KOR-70 | 4.1 | 38.9 | 100.00 | Doliana | 0.0 | Erimos |
| PM-KOR-71 | 7.1 | 12.6 | 100.00 | Doliana | 0.0 | Erimos |
| PM-KOR-73 | 3.2 | 52.2 | 100.00 | Doliana | 0.0 | Erimos |
| PM-KOR-74 | 36.4 | 0.0 | 100.00 | Doliana | 0.0 | Erimos |
| PM-KOR-75 | 0.9 | 91.8 | 100.00 | Doliana | 0.0 | Erimos |
| PM-KOR-76 | 3.5 | 47.4 | 100.00 | Doliana | 0.0 | Erimos |
| PM-KOR-77 | 5.8 | 21.3 | 100.00 | Doliana | 0.0 | Erimos |
| PM-KOR-80 | 7.8 | 9.5 | 100.00 | Doliana | 0.0 | Erimos |
| PM-KOR-81 | 2.0 | 73.0 | 100.00 | Doliana | 0.0 | Erimos |
| Artefacts | Distance | Abs. Probab. | Rel. Probab. | Provenance | Rel. Probab. | Provenance |
|---|---|---|---|---|---|---|
| 1st choice | 2nd choice | |||||
| PM-KOR-72 | 2.5 | 46.1 | 98.3 | Penteli | 0.9 | Dokimeion |
Disclaimer/Publisher’s Note: The statements, opinions and data contained in all publications are solely those of the individual author(s) and contributor(s) and not of MDPI and/or the editor(s). MDPI and/or the editor(s) disclaim responsibility for any injury to people or property resulting from any ideas, methods, instructions or products referred to in the content. |
© 2024 by the authors. Licensee MDPI, Basel, Switzerland. This article is an open access article distributed under the terms and conditions of the Creative Commons Attribution (CC BY) license (https://creativecommons.org/licenses/by/4.0/).
Share and Cite
Anevlavi, V.; Prochaska, W.; Ruhland, A.S.; Cenati, C. Tracing Material Origins: Provenance Studies of White Marble in Roman Temple E of Ancient Corinth Using Archaeometric and Geoarchaeological Methods. Minerals 2025, 15, 37. https://doi.org/10.3390/min15010037
Anevlavi V, Prochaska W, Ruhland AS, Cenati C. Tracing Material Origins: Provenance Studies of White Marble in Roman Temple E of Ancient Corinth Using Archaeometric and Geoarchaeological Methods. Minerals. 2025; 15(1):37. https://doi.org/10.3390/min15010037
Chicago/Turabian StyleAnevlavi, Vasiliki, Walter Prochaska, Anna Sophie Ruhland, and Chiara Cenati. 2025. "Tracing Material Origins: Provenance Studies of White Marble in Roman Temple E of Ancient Corinth Using Archaeometric and Geoarchaeological Methods" Minerals 15, no. 1: 37. https://doi.org/10.3390/min15010037
APA StyleAnevlavi, V., Prochaska, W., Ruhland, A. S., & Cenati, C. (2025). Tracing Material Origins: Provenance Studies of White Marble in Roman Temple E of Ancient Corinth Using Archaeometric and Geoarchaeological Methods. Minerals, 15(1), 37. https://doi.org/10.3390/min15010037
