The Temperature-Induced Deflection Data Missing Recovery of a Cable-Stayed Bridge Based on Bayesian Robust Tensor Learning
Abstract
1. Introduction
2. Methodology
2.1. Problem Description
2.2. Bayesian Robust Matrix Factorization
2.2.1. Full Bayesian Model
2.2.2. Model Inference
2.2.3. High-Order Extension to Bayesian Tensor Learning
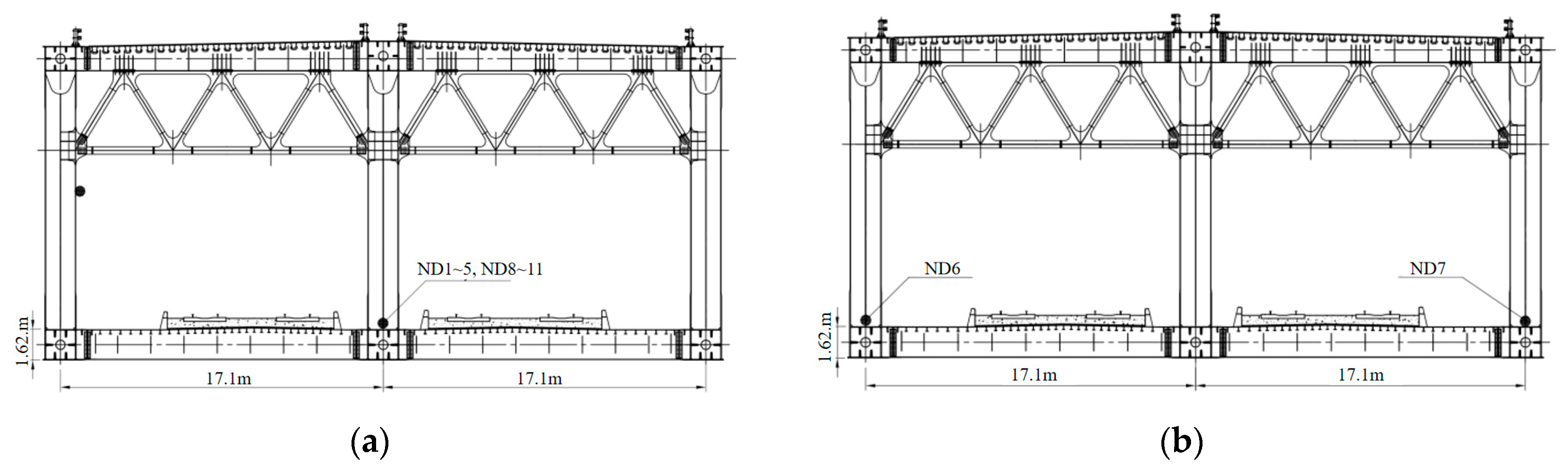
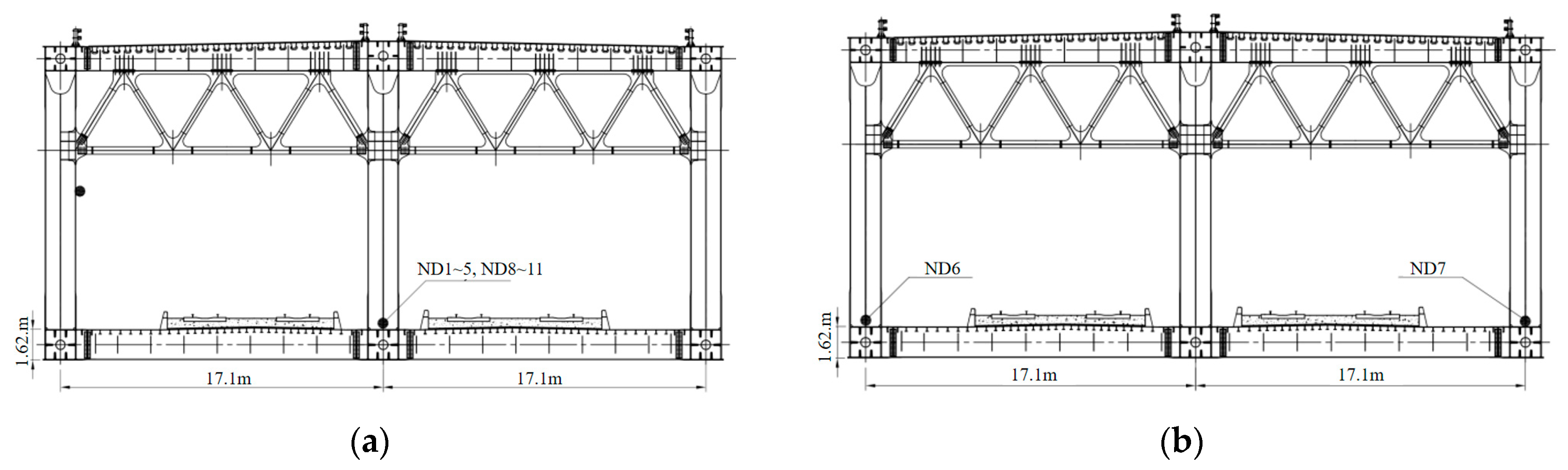
2.3. Bridge and SHM System Description
3. Results
3.1. The Correlation between Temperature-Induced Deflections of Different Sensors
3.2. Experimental Verification
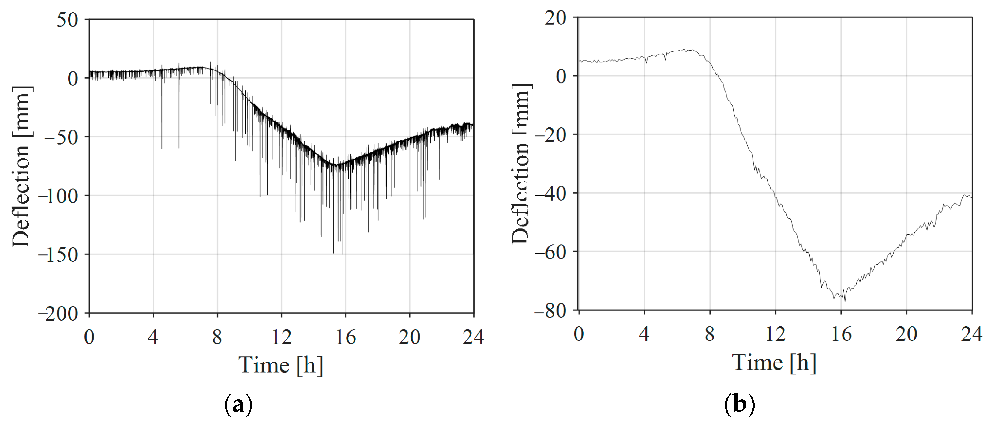
3.2.1. Abnormal Data Types of Cable-Stayed Bridge Deflection Field Data
3.2.2. Missing Recovery Based on Low-Order Tensor Learning
3.2.3. Missing Recovery Based on High-Order Tensor Learning
4. Discussion and Conclusions
Author Contributions
Funding
Institutional Review Board Statement
Informed Consent Statement
Data Availability Statement
Conflicts of Interest
References
- Zhang, L.X.; Qiu, G.Y.; Chen, Z.S. Structural health monitoring methods of cables in cable-stayed bridge: A review. Measurement 2021, 168, 108343. [Google Scholar] [CrossRef]
- Qin, S.Q.; Gao, Z.Y. Developments and Prospects of Long-Span High-Speed Railway Bridge Technologies in China. Engineering 2017, 3, 787–794. [Google Scholar] [CrossRef]
- De Rincon, O.; Contreras, D.; Sanchez, M.; Padilla, J.; Lasarte, C.; Sarcos, A. Inspection and repair of Lake Maracaibo Bridge suspension cables. Mater. Perform. 2001, 40, 34–38. [Google Scholar]
- Yue, Z.-X.; Ding, Y.-L.; Zhao, H.-W. Deep Learning-Based Minute-Scale Digital Prediction Model of Temperature-Induced Deflection of a Cable-Stayed Bridge: Case Study. J. Bridge Eng. 2021, 26, 05021004. [Google Scholar] [CrossRef]
- Yang, D.-H.; Yi, T.-H.; Li, H.-N.; Zhang, Y.-F. Correlation-Based Estimation Method for Cable-Stayed Bridge Girder Deflection Variability under Thermal Action. J. Perform. Constr. Facil. 2018, 32, 04018070. [Google Scholar] [CrossRef]
- Sun, L.; Shang, Z.; Xia, Y.; Bhowmick, S.; Nagarajaiah, S. Review of Bridge Structural Health Monitoring Aided by Big Data and Artificial Intelligence: From Condition Assessment to Damage Detection. J. Struct. Eng. 2020, 146, 04020073. [Google Scholar] [CrossRef]
- Chen, C.-C.; Wu, W.-H.; Liu, C.-Y.; Lai, G. Elimination of environmental temperature effect from the variation of stay cable force based on simple temperature measurements. Smart Struct. Syst. 2017, 19, 137–149. [Google Scholar] [CrossRef]
- Cao, Y.; Wang, M.L. Cable Stress Monitoring for a Cable Stayed Bridge. In Proceedings of the 5th European Workshop on Structural Health Monitoring, Naples, Italy, 29 June–4 July 2010; pp. 1196–1201. [Google Scholar]
- Barkhordari, M.S.; Armaghani, D.J.; Asteris, P.G. Structural damage identification using ensemble deep convolutional neural network models. Comput. Model. Eng. Sci. 2022, 134, 835–855. [Google Scholar] [CrossRef]
- Barkhordari, M.S.; Barkhordari, M.M.; Armaghani, D.J.; Rashid, A.S.A.; Ulrikh, D.V. Hybrid Wavelet Scattering Network-Based Model for Failure Identification of Reinforced Concrete Members. Sustainability 2022, 14, 12041. [Google Scholar] [CrossRef]
- Barkhordari, M.S.; Tehranizadeh, M. Data-driven Dynamic-classifiers-based Seismic Failure Mode Detection of Deep Steel W-shape Columns. Period. Polytech. Civ. Eng. 2023. [Google Scholar] [CrossRef]
- Barkhordari, M.S.; Jawdhari, A. Machine learning based prediction model for plastic hinge length calculation of reinforced concrete structural walls. Adv. Struct. Eng. 2023. [Google Scholar] [CrossRef]
- Jiang, H.; Wan, C.; Yang, K.; Ding, Y.; Xue, S. Continuous missing data imputation with incomplete dataset by generative adversarial networks-based unsupervised learning for long-term bridge health monitoring. Struct. Health Monit. Int. J. 2021, 21, 1093–1109. [Google Scholar] [CrossRef]
- Chen, Z.; Li, H.; Bao, Y. Analyzing and modeling inter-sensor relationships for strain monitoring data and missing data imputation: A copula and functional data-analytic approach. Struct. Health Monit. 2018, 18, 1168–1188. [Google Scholar] [CrossRef]
- Zhang, Z.Y.; Luo, Y.Z. Restoring method for missing data of spatial structural stress monitoring based on correlation. Mech. Syst. Signal Process. 2017, 91, 266–277. [Google Scholar] [CrossRef]
- Liu, H.; Ding, Y.-L.; Zhao, H.-W.; Wang, M.-Y.; Geng, F.-F. Deep learning-based recovery method for missing structural temperature data using LSTM network. Struct. Monit. Maint. 2020, 7, 109–124. [Google Scholar]
- Ye, X.W.; Jin, T.; Yun, C.B. A review on deep learning-based structural health monitoring of civil infrastructures. Smart Struct. Syst. 2019, 24, 567–585. [Google Scholar]
- Ji, Y.W.; Wang, Q.; Li, X.; Liu, J. A Survey on Tensor Techniques and Applications in Machine Learning. IEEE Access 2019, 7, 162950–162990. [Google Scholar] [CrossRef]
- Nie, X.; Yin, Y.; Sun, J.; Liu, J.; Cui, C. Comprehensive Feature-Based Robust Video Fingerprinting Using Tensor Model. IEEE Trans. Multimed. 2017, 19, 785–796. [Google Scholar] [CrossRef]
- Hu, W.R.; Tao, D.C.; Zhang, W.S.; Xie, Y.; Yang, Y.H. The Twist Tensor Nuclear Norm for Video Completion. IEEE Trans. Neural Netw. Learn. Syst. 2017, 28, 2961–2973. [Google Scholar] [CrossRef]
- Xie, K.; Wang, L.; Wang, X.; Xie, G.; Wen, J.; Zhang, G.; Cao, J.; Zhang, D. Accurate Recovery of Internet Traffic Data: A Sequential Tensor Completion Approach. IEEE/Acm Trans. Netw. 2018, 26, 793–806. [Google Scholar] [CrossRef]
- Zheng, C.; Song, H.E.M.; Song, J. CMPTF: Contextual Modeling Probabilistic Tensor Factorization for recommender systems. Neurocomputing 2016, 205, 141–151. [Google Scholar] [CrossRef]
- Bao, Y.Q.; Chen, Z.C.; Wei, S.Y.; Xu, Y.; Tang, Z.Y.; Li, H. The State of the Art of Data Science and Engineering in Structural Health Monitoring. Engineering 2019, 5, 234–242. [Google Scholar] [CrossRef]
- Wang, N.; Yeung, D.-Y. Bayesian Robust Matrix Factorization for Image and Video Processing. In Proceedings of the 2013 IEEE International Conference on Computer Vision, Sydney, Australia, 1–8 December 2013. [Google Scholar]
- Chen, X.; Sun, L. Bayesian Temporal Factorization for Multidimensional Time Series Prediction. IEEE Trans. Pattern Anal. Mach. Intell. 2021, 44, 4659–4673. [Google Scholar] [CrossRef]
- Ren, P.; Chen, X.; Sun, L.; Sun, H. Incremental Bayesian matrix/tensor learning for structural monitoring data imputation and response forecasting. Mech. Syst. Signal Process. 2021, 158, 107734. [Google Scholar] [CrossRef]
- Zhao, Q.B.; Zhang, L.Q.; Cichocki, A. Bayesian CP Factorization of Incomplete Tensors with Automatic Rank Determination. IEEE Trans. Pattern Anal. Mach. Intell. 2015, 37, 1751–1763. [Google Scholar] [CrossRef]
- Peng, Y.G.; Ganesh, A.; Wright, J.; Xu, W.L.; Ma, Y. RASL: Robust Alignment by Sparse and Low-Rank Decomposition for Linearly Correlated Images. IEEE Trans. Pattern Anal. Mach. Intell. 2012, 34, 2233–2246. [Google Scholar] [CrossRef] [PubMed]
- Zhang, Z.D.; Liang, X.; Ganesh, A.; Ma, Y. TILT: Transform Invariant Low-Rank Textures. In Proceedings of the 10th Asian Conference on Computer Vision (ACCV), Queenstown, New Zealand, 8–12 November 2010; Volume 6494, pp. 314–337. [Google Scholar]
- Zhang, Z.; Wang, S.; Liu, D.; Jordan, M.I. EP-GIG Priors and Applications in Bayesian Sparse Learning. J. Mach. Learn. Res. 2012, 13, 2031–2061. [Google Scholar]
- Kolda, T.G.; Bader, B.W. Tensor Decompositions and Applications. SIAM Rev. 2009, 51, 455–500. [Google Scholar] [CrossRef]
- Acar, E.; Yener, B. Unsupervised Multiway Data Analysis: A Literature Survey. IEEE Trans. Knowl. Data Eng. 2009, 21, 6–20. [Google Scholar] [CrossRef]
- Acar, E.; Dunlavy, D.M.; Kolda, T.G.; Mørup, M. Scalable tensor factorizations for incomplete data. Chemom. Intell. Lab. Syst. 2011, 106, 41–56. [Google Scholar] [CrossRef]
- Chen, X.; He, Z.; Wang, J. Spatial-temporal traffic speed patterns discovery and incomplete data recovery via SVD-combined tensor decomposition. Transp. Res. Part C Emerg. Technol. 2018, 86, 59–77. [Google Scholar] [CrossRef]
- Bahadori, M.T.; Yu, Q.; Liu, Y. Fast Multivariate Spatio-temporal Analysis via Low Rank Tensor Learning. In Proceedings of the 28th Conference on Neural Information Processing Systems (NIPS), Montreal, QC, Canada, 8–13 December 2014; Volume 27. [Google Scholar]















| Scenario | Sensors Containing Missing Data | ||
|---|---|---|---|
| 1 | 10% | 50% | ND4, ND5, ND7, ND9 |
| 2 | 10% | 50% | ND4, ND6, ND8, ND9 |
| 3 | 10% | 50% | ND4 ND5, ND7, ND9, ND10 |
| 4 | 15% | 50% | ND4 ND5, ND7, ND9, ND10 |
| Scenario | Sensors Containing Missing Data | Number of Symmetric Sensor Pairs Containing Missing Data | ||
|---|---|---|---|---|
| 1 | 10% | 50% | ND4, ND5, ND6, ND7 | 1 |
| 2 | 10% | 50% | ND6, ND7, ND8, ND9 | 1 |
| 3 | 10% | 50% | ND4, ND6, ND8, ND9 | 1 |
| 4 | 10% | 50% | ND4, ND6, ND8, ND9, ND10 | 1 |
| 5 | 10% | 50% | ND4, ND5, ND7, ND9 | 1 |
| 6 | 10% | 50% | ND4, ND5, ND7, ND9, ND10 | 1 |
| 7 | 10% | 50% | ND4, ND5, ND8, ND9 | 2 |
| 8 | 10% | 50% | ND4, ND5, ND6, ND8, ND9 | 2 |
Disclaimer/Publisher’s Note: The statements, opinions and data contained in all publications are solely those of the individual author(s) and contributor(s) and not of MDPI and/or the editor(s). MDPI and/or the editor(s) disclaim responsibility for any injury to people or property resulting from any ideas, methods, instructions or products referred to in the content. |
© 2023 by the authors. Licensee MDPI, Basel, Switzerland. This article is an open access article distributed under the terms and conditions of the Creative Commons Attribution (CC BY) license (https://creativecommons.org/licenses/by/4.0/).
Share and Cite
Sun, S.; Wang, Z.; Xia, Z.; Yi, L.; Yue, Z.; Ding, Y. The Temperature-Induced Deflection Data Missing Recovery of a Cable-Stayed Bridge Based on Bayesian Robust Tensor Learning. Symmetry 2023, 15, 1234. https://doi.org/10.3390/sym15061234
Sun S, Wang Z, Xia Z, Yi L, Yue Z, Ding Y. The Temperature-Induced Deflection Data Missing Recovery of a Cable-Stayed Bridge Based on Bayesian Robust Tensor Learning. Symmetry. 2023; 15(6):1234. https://doi.org/10.3390/sym15061234
Chicago/Turabian StyleSun, Shouwang, Zhiwen Wang, Zili Xia, Letian Yi, Zixiang Yue, and Youliang Ding. 2023. "The Temperature-Induced Deflection Data Missing Recovery of a Cable-Stayed Bridge Based on Bayesian Robust Tensor Learning" Symmetry 15, no. 6: 1234. https://doi.org/10.3390/sym15061234
APA StyleSun, S., Wang, Z., Xia, Z., Yi, L., Yue, Z., & Ding, Y. (2023). The Temperature-Induced Deflection Data Missing Recovery of a Cable-Stayed Bridge Based on Bayesian Robust Tensor Learning. Symmetry, 15(6), 1234. https://doi.org/10.3390/sym15061234
