Research on Adaptive Reuse Strategy of Industrial Heritage Based on the Method of Social Network
Abstract
1. Introduction
| Bibliography | Research Object | Research Methodology | Conclusions | Times |
|---|---|---|---|---|
| Participation in the reuse of industrial heritage sites: the case of Oberschöneweide, Berlin [7] | Urban brownfield reuse | Use of semi-structured interviews to investigate public satisfaction with the current aesthetic and functional state of regeneration in the Randwick area | Two generic reuse strategies are proposed: “re-new production” and “entertainment” | 2016 |
| Perceived space, conceived space, lived space: The trialectics of spatiality on the example of a brownfield regeneration investment in Budapest [8] | Study of public perceptions, knowledge, and attitudes toward brownfield remediation projects in Budapest through a questionnaire survey | Respondents’ perceptions and conceptualizations of sites vary according to their socio-demographic backgrounds, how they use the site, and for what purpose | 2017 | |
| Re-reuse of regenerated brownfields: Lessons from an Eastern European post-industrial city [9] | A questionnaire to find out how residents and visitors to the Randwick area perceive a range of brownfield reuse options | Future brownfield uses such as cultural/sports and children’s parks were the most favored options, with a general lack of specific ideas from respondents about alternative reuse options for brownfield sites | 2018 | |
| A Multicriteria Approach to Adaptive Reuse of Industrial Heritage: Case Studies of Riverside Power Plants [10] | Power plant transformed into an art gallery | Use of the value/intensity approach to comprehensively evaluate the effectiveness of industrial heritage renovation through the study of environmental, social, economic, and urban planning factors | Adaptive reuse projects for industrial buildings assessed on the basis of determinants, using value scales to quantify environmentally relevant building performance | 2023 |
| Industrial Heritage Buildings in Cyprus Spatial Experience of the Nicosia Municipal Arts Centre [11] | Power station transformed into arts center | Investigating the tangible and intangible qualities of space using phenomenological research, a qualitative research methodology | Creating a dynamic framework for analyzing how humans perceive space in reused buildings, explaining the spatial perceptions of architectural design in terms of human responses to buildings, and using this to guide the design of future renovations | 2021 |
| Industrial building adaptive reuse for museum. Factors affecting visitors’ perceptions of the sustainable urban development potential [12] | Brewery transformed into art museum | Use of questionnaires to collect data on tourists’ perceptions of the impact of adaptive reuse projects on nearby metropolitan environments and the factors influencing them, and use of multivariate regression analyses to determine the factors influencing tourists’ perceptions | Adaptive reuse development can contribute to the sustainable development of local and neighboring cities | 2023 |
| Critical sustainable development factors in the adaptive reuse of urban industrial buildings. A fuzzy DEMATEL approach [13] | Presentation of a comprehensive list of factors affecting local sustainable development after the recent reuse of the FIX building: economic, social, environmental, cultural, using the fuzzy DEMATEL method to obtain interrelationships between the factors | Adaptive reuse projects employ certain strategies to achieve an optimal balance between initial investment, energy savings, minimization of environmental impact, heritage preservation, and urban regeneration | 2019 | |
| Adaptive reuse for sustainable development and land use: A multivariate linear regression analysis estimating key determinants of public perceptions [14] | Conducting a questionnaire survey and analyzing the factors influencing tourists’ views using multiple linear regression to investigate the impact of adaptive reuse of culturally important urban industrial facilities on the overall redevelopment of the city | A combination of predefined conceptual theories, policy principles, and practical tools can strike a good balance between investment capital, ecological protection, and cultural heritage preservation | 2023 | |
| Authenticity, involvement, and nostalgia: Understanding visitor satisfaction with an adaptive reuse heritage site in urban China [15] | Urban heritage sites converted to commercial buildings | Examining the effects of perceived authenticity, participation, and nostalgia on tourists’ satisfaction with the Lingnan Tiandi reuse project in Foshan through questionnaire survey methods | Engagement is the strongest predictor of visitor satisfaction, followed by the nostalgic experience, and the article offers some suggestions for developing and marketing reuse heritage sites | 2020 |
| From Maslow to architectural spaces: The assessment of reusing old industrial buildings [16] | Old mill converted to public building | Use Maslow’s hierarchy of needs theory, fuzzy comprehensive evaluation method to evaluate the effectiveness of project transformation | Translating Maslow’s Hierarchy of Needs theory into building assessment and developing an assessment framework to analyze the success of reusing old industrial buildings as public buildings | 2022 |
| Housing preferences for adaptive reuse of office and industrial buildings: Demand side [17] | Conversion of old industrial buildings into residential housing | Preference of respondents to live in adapted buildings measured by questionnaire, discrete modeling | Such analyses enable decision makers to make better judgments on demolition and retrofitting and to better identify the potential for building use and its economic sustainability, leading to a reduction in construction waste and an increase in energy efficiency | 2020 |
2. Literature Review and Research Framework
2.1. Spatial Issues Facing the Reuse of Industrial Heritage
2.2. Quantitative Methods for Analysing Space Problems
2.3. Applying Social Network Analysis to Industrial Heritage Building Renovation
- (1)
- Functional zoning
- (2)
- Spatial Accessibility
- (3)
- The abundance of pathways
3. Case Study
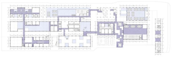
3.1. Background of the Project
3.2. Status Quo Spatial Network Modelling
3.3. Analysis of the Status Quo Spatial Network Model
3.3.1. Cohesion Analysis
3.3.2. Centrality Analysis
3.3.3. Relevance Analysis
4. Optimal Adaptation Based on Social Network Analysis
4.1. Retrofit Strategy
4.1.1. Proposed Strategies for Retrofitting to Mitigate Functional Zoning Issues
- (1)
- Function Matching
4.1.2. Proposed Strategies for Retrofitting to Address Spatial Accessibility Issues
- (1)
- The Creation of Grey Space
- (2)
- Enhance the connectivity between the peripheral space and the entire plant area.
4.1.3. Retrofitting Strategies Proposed for Enhancing Path Richness
- (1)
- Creation of Outdoor Spaces
- (2)
- Enhancing the vibrancy of public spaces
4.2. Modeling of Retrofitted Spatial Networks
4.3. Comparative Analysis of Spatial Network Models before and after Modification
4.3.1. Enhancement of Spatial Network Cohesion
4.3.2. Decreased Disparities in Centrality among Nodes
4.3.3. Increased Relevance of Space Networks
5. Conclusions and Discussion
Author Contributions
Funding
Data Availability Statement
Conflicts of Interest
References
- Tingting, Z.; Yin, X. Research on Urban Renewal Paths Based on Inventory Space Optimisation. Planner 2013, 29, 36–40. [Google Scholar]
- Fangqiang, Y.; Li, H. The Current Situation of The Reuse of Architectural Transformation of The Old Industrial and Advice. In Proceedings of the International Conference on Energy, Environment and Sustainable Development, Beijing, China, 26–27 June 2014. [Google Scholar]
- Bullen, P.A.; Love, P.E.D. A new model for the past: A model for adaptive reuse decision making. Built Environ. Proj. Asset Manag. 2011, 1, 32–44. [Google Scholar] [CrossRef]
- Bottero, M.; D’Alpaos, C.; Oppio, A. Ranking of Adaptive Reuse Strategies for Abandoned Industrial Heritage in Vulnerable Contexts: A Multiple Criteria Decision Aiding Approach. Sustainability 2019, 11, 785. [Google Scholar] [CrossRef]
- Mısırlısoy, D.; Gunçe, K. Adaptive reuse strategies for heritage buildings: A holistic approach. Sustain. Cities Soc. 2016, 26, 91–98. [Google Scholar] [CrossRef]
- Hao, Z. Test of the main problems in the transformation of industrial buildings in China and its countermeasures. Ind. Build. 2009, 39, 38–40+75. [Google Scholar]
- Jianqiang, W.; Junqiang, R. Adaptive reuse of urban industrial historical buildings and lots. World Archit. 2001, 6, 17–22. [Google Scholar] [CrossRef]
- Oevermann, H.; Degenkolb, J.; Dießler, A.; Karge, S.; Peltz, U. Participation in the Reuse of Industrial Heritage Sites: The Case of Oberschöneweide, Berlin. Int. J. Herit. Stud. 2016, 22, 43–58. [Google Scholar] [CrossRef]
- Martinat, S.; Navratil, J.; Hollander, J.B.; Trojan, J.; Klapka, P.; Klusacek, P.; Kalok, D. Re-reuse of regenerated brownfields: Lessons from an Eastern European post-industrial city. J. Clean. Prod. 2018, 188, 536–545. [Google Scholar] [CrossRef]
- Añibarro, M.V.; Andrade, M.J.; Jiménez-Morales, E. A Multicriteria Approach to Adaptive Reuse of Industrial Heritage: Case Studies of Riverside Power Plants. Land 2023, 12, 314. [Google Scholar] [CrossRef]
- Mesda, Y. Industrial Heritage Buildings in Cyprus: Spatial Experience of the Nicosia Municipal Arts Centre. Prostor 2021, 29, 101–117. [Google Scholar] [CrossRef]
- Vardopoulos, I. Industrial building adaptive reuse for museum. Factors affecting visitors’ perceptions of the sustainable urban development potential. Build. Environ. 2022, 222, 109391. [Google Scholar] [CrossRef]
- Vardopoulos, I. Critical sustainable development factors in the adaptive reuse of urban industrial buildings. A fuzzy DEMATEL approach. Sustain. Cities Soc. 2023, 50, 101684. [Google Scholar] [CrossRef]
- Vardopoulos, I. Adaptive Reuse for Sustainable Development and Land Use: A Multivariate Linear Regression Analysis Estimating Key Determinants of Public Perceptions. Heritage 2023, 6, 809–828. [Google Scholar] [CrossRef]
- Gao, J.; Lin, S.S.; Zhang, C. Authenticity, involvement, and nostalgia: Understanding visitor satisfaction with an adaptive reuse heritage site in urban China. J. Destin. Mark. Manag. 2020, 15, 100404. [Google Scholar] [CrossRef]
- Zheng, X.; Heath, T.; Guo, S. From Maslow to Architectural Spaces: The Assessment of Reusing Old Industrial Buildings. Buildings 2022, 12, 2033. [Google Scholar] [CrossRef]
- Glumac, B.; Islam, N. Housing preferences for adaptive re-use of office and industrial buildings: Demand side. Sustain. Cities Soc. 2020, 62, 102379. [Google Scholar] [CrossRef]
- Ye, Y.; Liu, X. Analysis of the Advantages and Constraints of Old Industrial Buildings. Ind. Build. 2005, 6, 35–38. [Google Scholar]
- Kai, C. New design in the old factory building—Renovation design of the printing factory of the Foreign Research Institute. World Archit. 2000, 10, 87–90. [Google Scholar]
- Zhang, Y.H.; Zhang, L.F. Learning from industrial architecture. World Archit. 2000, 7, 22–23. [Google Scholar] [CrossRef]
- Lin, F. China’s industrial buildings face the challenges of the new century. New Archit. 2004, 3, 4–10. [Google Scholar]
- Jikui, M. Development trend and design countermeasures of large space public buildings. Archit. J. 1996, 3, 36–40. [Google Scholar]
- Kan, Y.; Chen, Z. A preliminary study of space regeneration method for industrial buildings. New Archit. 2012, 2, 10–16. [Google Scholar]
- Shi, K.; Xue, B.; Hu, X. A study on spatial transformation strategy of old industrial buildings under the perspective of structural aesthetics. World Archit. 2013, 4, 4. [Google Scholar]
- Jin, Z.; Liu, B. Community-based transformation of urban industrial heritage. Chin. Foreign Archit. 2008, 1, 144–147. [Google Scholar]
- Ye, C.; Hu, L.; Li, M. Urban green space accessibility changes in a high-density city: A case study of Macau from 2010 to 2015. J. Transp. Geogr. 2018, 66, 106–115. [Google Scholar] [CrossRef]
- Le Texier, M.; Schiel, K.; Caruso, G. The provision of urban green space and its accessibility: Spatial data effects in Brussels. PLoS ONE 2018, 13, e0204684. [Google Scholar] [CrossRef] [PubMed]
- Huang, X. What is the performance of industrial architecture. New Archit. 2004, 3, 15–18. [Google Scholar]
- Lu, D. The Life and Death of Architecture—Research on the Utilization of Historic Buildings; Southeast University Press: Nanjing, China, 2004. [Google Scholar]
- Dong, L.-L.; Wang, W.; Peng, Y.-N. Suitable design strategies for transforming old industrial buildings into crowdsourcing spaces. Ind. Archit. 2019, 49, 31–37+79. [Google Scholar] [CrossRef]
- Watts, D.J. Six Degrees of Separation: Science in an Age of Interconnectedness; Chen, Y., Translator; Renmin University of China Press: Beijing, China, 2011. [Google Scholar]
- Dongquan, L.; Kun, H.; Zhiyong, L. Prospects for the application of social network analysis in planning and management research. Int. Urban Plan. 2011, 26, 86–90. [Google Scholar]
- Huang, Y.; Shi, Y.L. Renewal of Historical and Cultural Township Protection Based on Social Network Analysis—Taking the Case of Yiyan Township in Chongqing. J. Archit. 2017, 2, 86–89. [Google Scholar]
- Zhongmei, G.; Guiqing, Y.; Xiaoxiao, J. Research on the optimisation of spatial network structure of rural settlements based on social network analysis method—Taking X Township in Central Plains Economic Zone as an example. Mod. Urban Res. 2021, 4, 123–130. [Google Scholar]
- Shi, Y.; Huang, Y.; Zhang, R.; Jiang, D.; Zhang, J. Adaptive Renewal of Mountainous Historical Towns Based on the Stability of the Social Network Structure: A Case Study in Chongqing, China. Front. Public Health 2022, 10, 867407. [Google Scholar] [CrossRef]
- Tian, Y.; Kong, X.; Liu, Y.; Wang, H. Restructuring rural settlements based on an analysis of inter-village social connections: A case in Hubei Province, Central China. Habitat Int. 2016, 57, 121–131. [Google Scholar] [CrossRef]
- Song, J.; Abuduwayiti, A.; Gou, Z. The role of subway network in urban spatial structure optimization—Wuhan city as an example. Tunn. Undergr. Space Technol. 2023, 131, 104842. [Google Scholar] [CrossRef]
- Xiaolong, Z.; Yang, Y.; Xun, Z.; Qing, B. A study on urban park transit accessibility based on social network centrality model—Taking Daoli District of Harbin as an example. China Gard. 2019, 35, 49–54. [Google Scholar] [CrossRef]
- Yaling, S.; Huang, Y.; Xiao, L. Optimisation of spatial structure and layout of mountain parks based on social network analysis. China Gard. 2020, 36, 91–96. [Google Scholar] [CrossRef]
- Liu, Z.; Wang, S.; Wang, F. Isolated or integrated? Planning and management of urban renewal for historic areas in Old Beijing city, based on the association network system. Habitat Int. 2019, 93, 102049. [Google Scholar] [CrossRef]
- Sun, M.; Chen, C. Renovation of industrial heritage sites and sustainable urban regeneration in post-industrial Shanghai. J. Urban Aff. 2023, 45, 729–752. [Google Scholar] [CrossRef]
- Borgatti, S.P.; Mehra, A.; Brass, D.J.; Labianca, G. Network Analysis in the Social Sciences. Science 2009, 323, 892–895. [Google Scholar] [CrossRef]
- Hillier, B.; Hanson, J. The Social Logic of Space; Cambridge University Press: Cambridge, UK, 1984; pp. 97–98. [Google Scholar]
- Architectural Design Sourcebook Editorial Committee. Architectural Design Dataset, 3rd ed.; China Construction Industry Press: Beijing, China, 2017. [Google Scholar]
- Peng, Y. Architectural Space Combination Theory; China Architecture Industry Press: Beijing, China, 1999. [Google Scholar]
- Liu, X. Modern Architectural Theory; China Architecture Industry Press: Beijing, China, 1999. [Google Scholar]
- GB 50016-2014; Code for Fire Protection in Building Design. Ministry of Housing and Urban-Rural Development of the People’s Republic of China: Beijing, China, 2014.
- Han, L.-T.; Zhou, L.-J.; Gong, C.; Zhang, A.-G. Indoor navigation network and its generation algorithm considering walking habit. J. Surv. Mapp. 2022, 51, 729–738. [Google Scholar]
- Shi, K.; Xue, B.; Hu, X. Studying in reusing of old industrial buildings’ space in perspective of structure aesthetics. World Arch. 2013, 4, 112–115. [Google Scholar]
- Zhao, W.; Peng, W.; Huang, Y. A Study on the Protection and Renewal of Historical Neighbourhoods Based on Social Network Reconstruction: A Case Study of Sanbukian Historical Neighbourhood in Changshou District, Chongqing. Planner 2008, 2, 9–13. [Google Scholar]
- Kurokawa, K. Kisho Kurokawa’s Urban Design Ideas and Methods; Li, Q., Translator; China Architecture Industry Press: Beijing, China, 2010. [Google Scholar]
- Group theory: Contemporary city-new habitat-architectural design. J. Archit. 2020, Z1, 2–27. [CrossRef]
- Zhang, J.; Lv, J. From large-scale urban design to daily life space. Urban Plan. 2003, 9, 40–45. [Google Scholar]
- Clark, J. Adaptative Reuse of Industrial Heritage: Opportunities & Challenges; Heritage Council of Victoria: Melbourne, VIC, Australia, 2013; 20p. [Google Scholar]
- Yung, E.H.; Chan, E.H. Implementation challenges to the adaptive reuse of heritage buildings: Towards the goals of sustainable, low carbon cities. Habitat Int. 2012, 36, 352–361. [Google Scholar] [CrossRef]
- Conejos, S.; Langston, C.; Smith, J. (Eds.) Improving the Implementation of Adaptive Reuse Strategies for Historic Buildings. In Proceedings of the International Forum of Studies Titled SAVE HERITAGE: Safeguard Architectural, Visual, Environmental, Aversa, Italy, 9–11 June 2011. [Google Scholar]

















| To Be Resolved | Functional Partition | Spatial Accessibility | Path Richness |
|---|---|---|---|
| Corresponding indicators | Cohesiveness | Centrality | Relatedness |
| Retrofit strategy | Function Matching | Grey space creation Improving the connection between the edge space and the whole plant | Outdoor Space Creation Energizing Public Space |
| Retrofit Strategy | Before Conversion | After Conversion | Transformation Effect |
|---|---|---|---|
| Function Matching | ![]() | ![]() | ![]() |
| Grey space creation | ![]() | ![]() | ![]() |
| Improved linkage of edge spaces to the whole plant | ![]() | ![]() | ![]() |
| Outdoor space creation | ![]() | ![]() | ![]() |
| Energizing public space | ![]() | ![]() | ![]() |
Disclaimer/Publisher’s Note: The statements, opinions and data contained in all publications are solely those of the individual author(s) and contributor(s) and not of MDPI and/or the editor(s). MDPI and/or the editor(s) disclaim responsibility for any injury to people or property resulting from any ideas, methods, instructions or products referred to in the content. |
© 2024 by the authors. Licensee MDPI, Basel, Switzerland. This article is an open access article distributed under the terms and conditions of the Creative Commons Attribution (CC BY) license (https://creativecommons.org/licenses/by/4.0/).
Share and Cite
Song, J.; Chen, J.; Yang, X.; Zhu, Y. Research on Adaptive Reuse Strategy of Industrial Heritage Based on the Method of Social Network. Land 2024, 13, 383. https://doi.org/10.3390/land13030383
Song J, Chen J, Yang X, Zhu Y. Research on Adaptive Reuse Strategy of Industrial Heritage Based on the Method of Social Network. Land. 2024; 13(3):383. https://doi.org/10.3390/land13030383
Chicago/Turabian StyleSong, Jinghua, Junyang Chen, Xiu Yang, and Yuyi Zhu. 2024. "Research on Adaptive Reuse Strategy of Industrial Heritage Based on the Method of Social Network" Land 13, no. 3: 383. https://doi.org/10.3390/land13030383
APA StyleSong, J., Chen, J., Yang, X., & Zhu, Y. (2024). Research on Adaptive Reuse Strategy of Industrial Heritage Based on the Method of Social Network. Land, 13(3), 383. https://doi.org/10.3390/land13030383
















