The Effects of Xanthan Gum as a Synergistic Delivery Reagent on Perchloroethylene Remediation in Lower-Permeability Zones of Aquifers
Abstract
1. Introduction
2. Materials and Methods
2.1. Materials
2.2. Experimental Methods
2.2.1. Transport Testing in a Single-Permeability System
2.2.2. Transport Testing in a Dual-Permeability System
2.2.3. PCE Removal and Migration Testing
2.3. Numerical Methods
2.3.1. Hydraulic Conductivity Variation
2.3.2. Transverse Flow Movement
2.4. The TOPSIS Method for Group Decision-Making
- Positive ideal solution:
- Negative ideal solution:
3. Results
3.1. The Contribution of Hydraulic Conductivity Variation to PCE Removal
3.2. The Contribution of Transverse Flow Movement to PCE Removal
3.3. The Effects of System Variables on the Remediation of PCE-Contaminated LPZs
3.3.1. Xanthan Gum Concentration
3.3.2. Permeability Contrast
3.3.3. Fluid Injection Rate
3.3.4. Comprehensive Analysis of PCE Remediation Performance
4. Conclusions
Author Contributions
Funding
Data Availability Statement
Conflicts of Interest
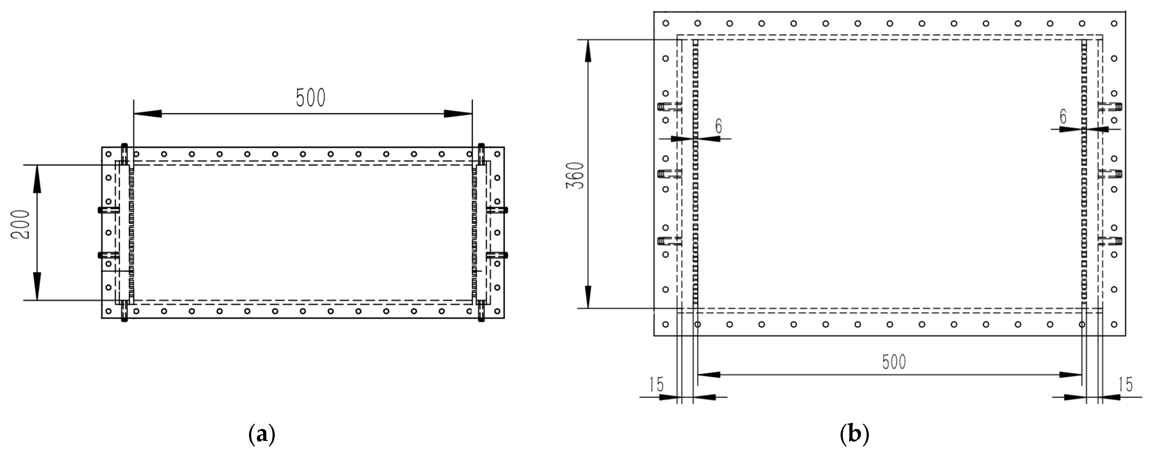
Appendix A. Structure Diagram of the 2-D Plexiglass Tank

References
- Soltanian, M.R.; Ritzi, R.W. A new method for analysis of variance of the hydraulic and reactive attributes of aquifers as linked to hierarchical and multiscaled sedimentary architecture. Water Resour. Res. 2014, 50, 9766–9776. [Google Scholar] [CrossRef]
- Siegrist, R.L.; Crimi, M.; Simpkin, T.J. In Situ Chemical Oxidation for Groundwater Remediation; Springer: New York, NY, USA, 2011. [Google Scholar]
- Song, X.R.; Chen, J.J.; Xu, Q.; Wang, Y. Mechanisms that influence the interactions between remediation agent injection and contamination plume variation. J. Contam. Hydrol. 2020, 231, 103631. [Google Scholar] [CrossRef]
- Darwish, M.; McCray, J.E.; Currie, P.K.; Zitha, P.L.J. Polymer-Enhanced DNAPL Flushing from Low-Permeability Media: An Experimental Study. Groundw. Monit. Remediat. 2010, 23, 92–101. [Google Scholar] [CrossRef]
- Chapman, S.W.; Parker, B.L. Plume persistence due to aquitard back diffusion following dense nonaqueous phase liquid source removal or isolation. Water Resour. Res. 2005, 41, 2179–2187. [Google Scholar] [CrossRef]
- Honning, J.; Broholm, M.M.; Bjerg, P.L. Role of diffusion in chemical oxidation of PCE in a dual permeability system. Environ. Sci. Technol. 2007, 41, 8426–8432. [Google Scholar] [CrossRef]
- Reynolds, D.A.; Kueper, B.H. Numerical examination of the factors controlling DNAPL migration through a single fracture. Ground Water 2002, 40, 368–377. [Google Scholar] [CrossRef]
- Sleep, B.E.; Seepersad, D.J.; Mo, K.; Heidorn, C.M.; Hrapovic, L.; Morrill, P.L.; McMaster, M.L.; Hood, E.D.; LeBron, C.; Lollar, B.S.; et al. Biological enhancement of tetrachloroethene dissolution and associated microbial community changes. Environ. Sci. Technol. 2006, 40, 3623–3633. [Google Scholar] [CrossRef]
- Saenton, S.; Illangasekare, T.H.; Soga, K.; Saba, T.A. Effects of source zone heterogeneity on surfactant-enhanced NAPL dissolution and resulting remediation end-points. J. Contam. Hydrol. 2002, 59, 27–44. [Google Scholar] [CrossRef]
- Struse, A.M.; Siegrist, R.L.; Dawson, H.E.; Urynowicz, M.A. Diffusive Transport of Permanganate during In Situ Oxidation. J. Environ. Eng. 2002, 128, 327–334. [Google Scholar] [CrossRef]
- Krembs, F.J.; Siegrist, R.L.; Crimi, M.L.; Furrer, R.F.; Petri, B.G. ISCO for Groundwater Remediation: Analysis of Field Applications and Performance. J. Groundw. Monit. Remediat. 2010, 30, 42–53. [Google Scholar] [CrossRef]
- Kueper, B.H.; Stroo, H.F.; Vogel, C.M.; Ward, C.H. Chlorinated Solvent Source Zone Remediation; Springer Science & Business Media: New York, NY, USA, 2014. [Google Scholar] [CrossRef]
- Mcguire, T.M.; Mcdade, J.M.; Newell, C.J. Performance of DNAPL Source Depletion Technologies at 59 Chlorinated Solvent-Impacted Sites. Groundw. Monit. Remediat. 2006, 26, 73–84. [Google Scholar] [CrossRef]
- Zhong, L.; Oostrom, M.; Truex, M.J.; Vermeul, V.R.; Szecsody, J.E. Rheological behavior of xanthan gum solution related to shear thinning fluid delivery for subsurface remediation. J. Hazard. Mater. 2013, 244, 160–170. [Google Scholar] [CrossRef] [PubMed]
- West, M.R.; Kueper, B.H. Numerical simulation of DNAPL source zone remediation with in situ chemical oxidation (ISCO). Adv. Water Resour. 2012, 44, 126–139. [Google Scholar] [CrossRef]
- Jackson, R.E.; Dwarakanath, V.; Meinardus, H.W.; Young, C.M. Mobility control: How injected surfactants and biostimulants may be forced into low-permeability units. Remediation 2003, 13, 59–66. [Google Scholar] [CrossRef]
- Lian, J.; Fu, Y.; Guo, C.; He, Y.; Qin, C. Performance of polymer-enhanced KMnO4 delivery for remediation of TCE contaminated heterogeneous aquifer: A bench-scale visualization. J. Contam. Hydrol. 2019, 225, 103507.1–103507.11. [Google Scholar] [CrossRef]
- Martel, R.; Hebert, A.; Lefebvre, R.; Gelinas, P.; Gabriel, U. Displacement and sweep efficiencies in a DNAPL recovery test using micellar and polymer solutions injected in a five-spot pattern. J. Contam. Hydrol. 2004, 75, 1–29. [Google Scholar] [CrossRef]
- Martel, R.; Portois, C.; Robert, T.; Uyeda, M. Etched glass micromodel for laboratory simulation of NAPL recovery mechanisms by surfactant solutions in fractured rock. J. Contam. Hydrol. 2019, 227, 103550. [Google Scholar] [CrossRef]
- Silva, J.A.K.; Liberatore, M.; McCray, J.E. Characterization of Bulk Fluid and Transport Properties for Simulating Polymer-Improved Aquifer Remediation. J. Environ. Eng. 2013, 139, 149–159. [Google Scholar] [CrossRef]
- Sorbie, K.S. Polymer-Improved Oil Recovery; CRC Press: Boca Raton, FL, USA, 1991. [Google Scholar] [CrossRef]
- El-hoshoudy, A.N.; Desouky, S.E.M.; Al-sabagh, A.M.; Betiha, M.A.; Elkady, M.Y.; Mahmoud, S.A. Evaluation of solution and rheological properties for hydrophobically associated polyacrylamide co-polymer as a promised enhanced oil recovery candidate. Egypt. J. Pet. 2017, 26, 779–785. [Google Scholar] [CrossRef]
- Sarsenbekuly, B.; Kang, W.; Yang, H.; Zhao, B.; Aidarova, S.; Yu, B.; Issakhov, M. Evaluation of rheological properties of a novel thermo-viscosifying functional polymer for enhanced oil recovery. Colloid Surf. A 2017, 532, 405–410. [Google Scholar] [CrossRef]
- Wang, Y.; Lu, Z.Y.; Han, Y.G.; Feng, Y.J.; Tang, C.L. A Novel Thermoviscosifying Water-Soluble Polymer for Enhancing Oil Recovery from High-Temperature and High-Salinity Oil Reservoirs. Adv. Mater. Res. 2011, 306–307, 654–657. [Google Scholar] [CrossRef]
- Zhong, C.; Luo, P.; Ye, Z.; Chen, H. Characterization and Solution Properties of a Novel Water-soluble Terpolymer For Enhanced Oil Recovery. Polym. Bull. 2009, 62, 79–89. [Google Scholar] [CrossRef]
- Xin, J.; Han, J.; Zheng, X.; Shao, H.; Kolditz, O. Mechanism insights into enhanced trichloroethylene removal using xanthan gum-modified microscale zero-valent iron particles. J. Environ. Manag. 2015, 150, 420–426. [Google Scholar] [CrossRef]
- Xin, J.; Tang, F.; Zheng, X.; Shao, H.; Kolditz, O. Transport and retention of xanthan gum-stabilized microscale zero-valent iron particles in saturated porous media. Water Res. 2016, 88, 199–206. [Google Scholar] [CrossRef]
- Zhong, L.; Oostrom, M.; Wietsma, T.W.; Covert, M.A. Enhanced remedial amendment delivery through fluid viscosity modifications: Experiments and numerical simulations. J. Contam. Hydrol. 2008, 101, 29–41. [Google Scholar] [CrossRef]
- Zhong, L.; Szeesody, J.; Oostrom, M.; Truex, M.; Shen, X.; Li, X. Enhanced remedial amendment delivery to subsurface using shear thinning fluid and aqueous foam. J. Hazard. Mater. 2011, 191, 249–257. [Google Scholar] [CrossRef]
- Childs, J.; Acosta, E.; Annable, M.D.; Brooks, M.C.; Enfield, C.G.; Harwell, J.H.; Hasegawa, M.; Knox, R.C.; Rao, P.S.C.; Sabatini, D.A.; et al. Field demonstration of surfactant-enhanced solubilization of DNAPL at Dover Air Force Base, Delaware. J. Contam. Hydrol. 2006, 82, 1–22. [Google Scholar] [CrossRef]
- Chokejaroenrat, C.; Kananizadeh, N.; Sakulthaew, C.; Comfort, S.; Li, Y. Improving the sweeping efficiency of permanganate into low permeable zones to treat TCE: Experimental results and model development. Environ. Sci. Technol. 2013, 47, 13031–13038. [Google Scholar] [CrossRef]
- Dugan, P.J.; Siegrist, R.L.; Crimi, M.L. Coupling Surfactants/Cosolvents With Oxidants for Enhanced DNAPL Removal: A Review. Remediation 2010, 20, 27–49. [Google Scholar] [CrossRef]
- Martel, K.E.; Martel, R.; Lefebvre, R.; Gelinas, P.J. Laboratory Study of Polymer Solutions Used for Mobility Control During In Situ NAPL Recovery. Groundw. Monit. Remediat. 1998, 18, 103–113. [Google Scholar] [CrossRef]
- McCray, J.E.; Munakata-Marr, J.; Silva, J.A.K.; Davenport, S.; Smith, M.M. Multi-Scale Experiments to Evaluate Mobility Control Methods for Enhancing the Sweep Efficiency of Injected Subsurface; Project. No. ER-1486; Department of Defense Strategic Environmental Research and Development Program (SERDP): Alexandria, VA, USA, 2010. [Google Scholar]
- Robert, T.; Martel, R.; Conrad, S.H.; Lefebvre, R.; Gabriel, U. Visualization of TCE recovery mechanisms using surfactant-polymer solutions in a two-dimensional heterogeneous sand model. J. Contam. Hydrol. 2006, 86, 3–31. [Google Scholar] [CrossRef] [PubMed]
- Du, Z.; Chen, J.; Ke, S.; Xu, Q.; Wang, Z. Experimental investigations on spreading and displacement of fluid plumes around an injection well in a contaminated aquifer. J. Hydrol. 2023, 617, 129062. [Google Scholar] [CrossRef]
- Du, Z.P.; Chen, J.J.; Yao, W.Q.; Zhou, H.B.; Wang, Z.Q. The critical mixed transport process in remediation agent radial injection into contaminated aquifer plumes. J. Contam. Hydrol. 2024, 261, 104301. [Google Scholar] [CrossRef] [PubMed]
- Ziliotto, F.; Hazas, M.B.; Rolle, M.; Chiogna, G. Mixing enhancement mechanisms in aquifers affected by hydropeaking: Insights from flow-through laboratory experiments. Geophys. Res. Lett. 2021, 48, 12. [Google Scholar] [CrossRef]
- Xu, Q.; Chen, J.J.; Wang, Y.T.; Ke, S.N. Quantitative analysis of dominant mechanisms in improving fluid sweeping uniformity in a layered heterogeneous system via xanthan gum addition. Environ. Sci. Pollut. R. 2022, 29, 25759–25773. [Google Scholar] [CrossRef]
- Wang, Y.T.; Zhou, H.B.; Chen, J.J.; Xu, Q. A Quantitative Evaluation Method for Xanthan Enhanced Transport Uniformity and Factors Affecting This Process. Water 2022, 14, 2630. [Google Scholar] [CrossRef]
- Wang, H.T. Dynamics of Fluid Flow and Contaminant Transport in Porous Media; Higher Education Press: Beijing, China, 2008. [Google Scholar]
- Zhou, W.; Jiang, W. Two-phase TOPSIS of uncertain multi-attribute group decision-making. J. Syst. Eng. Electrons. 2012, 21, 423–430. [Google Scholar] [CrossRef]










| Experiment | Configuration | Injected Fluid | Injection Rate (mL/min) |
|---|---|---|---|
| Exp. 1a | C-F | X-KM (0.4) | 25 |
| Exp. 1b | C-M | X-KM (0.4) | 25 |
| Exp. 1c | M-F | X-KM (0.4) | 25 |
| Exp. 2a | M-F | X-KM (0) | 25 |
| Exp. 2b | M-F | X-KM (0.2) | 25 |
| Exp. 2c | M-F | X-KM (0.4) | 25 |
| Exp. 2d | M-F | X-KM (0.8) | 25 |
| Exp. 3a | M-F | X-KM (0.4) | 10 |
| Exp. 3b | M-F | X-KM (0.4) | 25 |
| Exp. 3c | M-F | X-KM (0.4) | 40 |
| Media Type | Actual Average Flow Velocity (cm/s) | ||||||||||
|---|---|---|---|---|---|---|---|---|---|---|---|
| 0 s | 40 s | 80 s | 120 s | 160 s | 200 s | 240 s | 280 s | 320 s | 360 s | 400 s | |
| Sand M | 0.1350 | 0.0952 | 0.0777 | 0.0673 | 0.0602 | 0.0549 | 0.0509 | 0.0476 | 0.0449 | 0.0426 | 0.0406 |
| Sand F | 0.0252 | 0.0091 | 0.0085 | 0.0079 | 0.0075 | 0.0071 | 0.0068 | 0.0065 | 0.0063 | 0.0061 | 0.0059 |
| Fluid Type | Transverse Dispersivity αx (cm) | Longitudinal Dispersivity αy (cm) | ||||
|---|---|---|---|---|---|---|
| Sand C | Sand M | Sand F | Sand C | Sand M | Sand F | |
| X-KM (0) | 0.338 | 0.253 | 0.109 | 0.068 | 0.051 | 0.022 |
| X-KM (0.4) | 0.158 | 0.064 | 0.054 | 0.032 | 0.013 | 0.011 |
| Scoring Standard | Degree of Importance |
|---|---|
| 9~10 | Significant |
| 7~8 | Important |
| 5~6 | Considerable |
| 3~4 | Minor |
| 1~2 | Neglectable |
| No. | Experiment | R | AM/AR | PCE Removal Rate | C | Rank |
|---|---|---|---|---|---|---|
| 1 | Exp. 1a | 0.174 | 0.236 | 0.569 | 0.000 | 8 |
| 2 | Exp. 1b | 0.349 | 0.398 | 0.586 | 0.414 | 7 |
| 3 | Exp. 1c | 0.371 | 0.609 | 0.824 | 0.736 | 2 |
| 4 | Exp. 2a | 0.216 | 0.578 | 0.615 | 0.429 | 5 |
| 5 | Exp. 2b | 0.286 | 0.400 | 0.798 | 0.418 | 6 |
| 6 | Exp. 2c | 0.371 | 0.609 | 0.824 | 0.736 | 2 |
| 7 | Exp. 2d | 0.470 | 0.714 | 0.877 | 1.000 | 1 |
| 8 | Exp. 3a | 0.294 | 0.457 | 0.704 | 0.436 | 4 |
| 9 | Exp. 3b | 0.371 | 0.609 | 0.824 | 0.736 | 2 |
| 10 | Exp. 3c | 0.340 | 0.517 | 0.746 | 0.576 | 3 |
| No. | Experiment | R | AM/AR | PCE Removal Rate | Injection Pressure | C | Rank |
|---|---|---|---|---|---|---|---|
| 1 | Exp. 1a | 0.174 | 0.236 | 0.569 | 0.084 | 0.278 | 8 |
| 2 | Exp. 1b | 0.349 | 0.398 | 0.586 | 0.106 | 0.526 | 5 |
| 3 | Exp. 1c | 0.371 | 0.609 | 0.824 | 0.061 | 0.647 | 1 |
| 4 | Exp. 2a | 0.216 | 0.578 | 0.615 | 0.109 | 0.532 | 3 |
| 5 | Exp. 2b | 0.286 | 0.400 | 0.798 | 0.099 | 0.522 | 6 |
| 6 | Exp. 2c | 0.371 | 0.609 | 0.824 | 0.061 | 0.647 | 1 |
| 7 | Exp. 2d | 0.470 | 0.714 | 0.877 | 0.028 | 0.641 | 2 |
| 8 | Exp. 3a | 0.294 | 0.457 | 0.704 | 0.095 | 0.528 | 4 |
| 9 | Exp. 3b | 0.371 | 0.609 | 0.824 | 0.061 | 0.647 | 1 |
| 10 | Exp. 3c | 0.340 | 0.517 | 0.746 | 0.043 | 0.485 | 7 |
Disclaimer/Publisher’s Note: The statements, opinions and data contained in all publications are solely those of the individual author(s) and contributor(s) and not of MDPI and/or the editor(s). MDPI and/or the editor(s) disclaim responsibility for any injury to people or property resulting from any ideas, methods, instructions or products referred to in the content. |
© 2025 by the authors. Licensee MDPI, Basel, Switzerland. This article is an open access article distributed under the terms and conditions of the Creative Commons Attribution (CC BY) license (https://creativecommons.org/licenses/by/4.0/).
Share and Cite
Xu, Q.; Jia, Z.; Wen, X.; Xiao, Y.; Zhong, H.; Chen, J. The Effects of Xanthan Gum as a Synergistic Delivery Reagent on Perchloroethylene Remediation in Lower-Permeability Zones of Aquifers. Water 2025, 17, 682. https://doi.org/10.3390/w17050682
Xu Q, Jia Z, Wen X, Xiao Y, Zhong H, Chen J. The Effects of Xanthan Gum as a Synergistic Delivery Reagent on Perchloroethylene Remediation in Lower-Permeability Zones of Aquifers. Water. 2025; 17(5):682. https://doi.org/10.3390/w17050682
Chicago/Turabian StyleXu, Qi, Zhuofei Jia, Xiaogang Wen, Yanping Xiao, Haobin Zhong, and Jiajun Chen. 2025. "The Effects of Xanthan Gum as a Synergistic Delivery Reagent on Perchloroethylene Remediation in Lower-Permeability Zones of Aquifers" Water 17, no. 5: 682. https://doi.org/10.3390/w17050682
APA StyleXu, Q., Jia, Z., Wen, X., Xiao, Y., Zhong, H., & Chen, J. (2025). The Effects of Xanthan Gum as a Synergistic Delivery Reagent on Perchloroethylene Remediation in Lower-Permeability Zones of Aquifers. Water, 17(5), 682. https://doi.org/10.3390/w17050682
