Abstract
The piano key (PK) weir is a cost-effective structure for flood discharge. Its typical layout comprises a rectangularly cranked crest in planform with up- and downstream overhangs. With the intention to enhance its hydraulic efficiency, the conventional weir is improved. The sloping floor of each key is modified with a downward semi-circle in the cross-section; each overhanging apex is thus assigned an elliptical crest. Thus, the developed crest length of the resulting weir becomes considerably extended. Experiments are performed to compare the hydraulic behaviors of the improved weir with a reference one. The models are 3D-printed to attain high manufacture precision. For the model dimensions chosen in the study, the developed crest is ~36% longer. The study demonstrates that the improvements in geometry lead to appreciably enhanced flow discharge capacity. Within the hydraulic range examined, the augment in flow discharge varies within a range from 30% to 53%. In terms of both discharge capacity and flow patterns, the improved weir clearly outperforms the conventional one. The elliptical overhang apexes noticeably extend the developed crest length. The streamlined upstream overhang without singularity and the lowered inlet key floor reduce the entrance energy loss and improve the inflow to the inlet key and the flow over the crest. The lowered floor also gives rise to extra water volume, which administers to the flow motion towards the crest. For the outlet key, its lowered floor facilitates the outflow and alleviates the liableness of local submergence at high discharges. If the footprint for spillway construction is limited or the increase in the reservoir water stage must be controlled, the use of a more effective PK weir for flood discharge has significant engineering implications.
1. Introduction
The piano key (PK) weir is an innovative structure for the effective release of flood water from hydropower reservoirs. It was developed to antagonize some of the geometrical drawbacks of the traditional labyrinth type of weir [1,2]. With its rectangular form in plan and distinguishing tilted floors, the overhanging apexes are created, thus engendering additional crest length beyond what could be obtained in a rectangular labyrinth weir occupying the same footprint. Owing to its limited base dimension in the flow direction, it can be easily placed on existing dams in refurbishment projects or simply designed for new dams.
With experiences from the labyrinth weir, Lempérière och Ouamane [3,4] proposed, for the first time in 2003, the ingenious PK weir layout, which was based on extensive hydraulic model tests carried out over several years. In 2006, Electricité de France (EDF) built the first prototype weir at the Goulours dam [5]. Since then, more than 10 such weirs have been constructed by EDF in the upgrades of its existing gravity and arch dams, almost all of which aim to increase the spillway discharge capacity [6,7]. Owing to its simplicity and unique performance, 30+ such weirs have been accomplished worldwide [8]. At the Escouloubre dam, it was instead built to neutralize the rise in reservoir water level in case of a sudden load rejection of the power plant. In Vietnam, for example, six weirs were built [9]; in the U.S., two weirs were constructed at the Lake Peachtree and Hillborough dams [10].
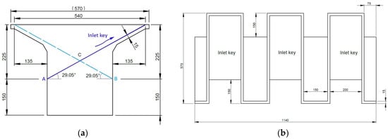
Compared to the labyrinth weir with vertical walls, the PK weir features several more governing parameters. A PK weir is usually divided into four basic types: type A—with both up- and downstream overhangs; type B—with upstream overhang (vertical wall downstream); type C—with downstream overhang (vertical front upstream); and type D—with both up- and downstream vertical walls [11]. For either type, its major feature is that the floors of both inlet and outlet keys are tilted, with vertical sidewalls. With the same notation as defined by Pralong et al. [12] and Pfister and Schleiss [13], the parameter definition for the type A weir is shown in Figure 1.
Figure 1.
Parameter definition of a typical PK weir with both overhangs (type A).
In the figure, Ts is the wall crest thickness; Wi, Wo is the inlet and outlet key width; Pi, Po is the inlet and outlet key height; Bi, Bo is the crest length of inlet and outlet key overhang (excluding Ts); Bb is the weir base length; and subscripts i and o denote the inlet and the outlet key, respectively. The angles of the inlet and outlet key floors with the horizontal plane are αi = tan−1[Pi/(Bb + Bi)] and αo = tan−1[Po/(Bb + Bo)]. A single weir unit (cycle) comprises one inlet key and one outlet key, and its unit width W is
W = Wi + Wo + 2Ts
In the flow direction, the weir crest length B (including the apex walls) is
B = Bi + Bo + Bb + 2Ts
Measured along the centerline of the overflow crest, the crest length of the single cycle is
L = 2(B − Ts) + Wi + Wo
This is customarily referred to as the developed crest length of the weir unit, a characteristic length in the analysis of flow discharges.
For a weir unit, the major parameters affecting its hydraulic efficiency are Wi, Wo, Pi, Po, Bi, Bo, Bb, and Ts; the dominating ratios include L/W, Wi/Wo, and Bi/Bo. Based upon the French experiences, Laugier and Vermeulen [7] pointed out that the nose shape beneath the upstream overhang, the parapet wall, the cross-sectional profile of the crest, and sidewall thickness were also influencing parameters of the 11 PK weirs at EDF. With respect to geometrical effects on weir flow performance, Anderson and Tullis [8] reviewed several related studies. The PK weir design and its geometrical optimization have engineering implications, therefore drawing attention from many researchers. A partial review of related studies is given below.
Relation between inlet and outlet widths—In their experiments, Ouamene and Lempérière [14] examined three thin-walled PK weirs with significant differences in key widths, i.e., Wi/Wo = 0.67, 1.0, and 1.5. They showed that the discharge performance became enhanced with an increase in Wi/Wo, and the condition Wi/Wo ≥ 1 contributed to higher hydraulic efficiency. Lempérière [15] considered Wi/Wo = 1.25 to be close to optimal. Anderson and Tullis [8] stated that the optimal Wi/Wo range for maximizing flow discharge efficiency was likely within the approximate interval of Wi/Wo = 1.25–1.50, and the Wi/Wo > 1.5 configuration was, however, not tested. Table 1 summarizes the Wi/Wo values of 14 weirs, with 11 in France; one in Giritale, Sri Lanka; one in Van Phong, Vietnam; and one in Emmenau, Switzerland [7]. Obviously, Wi/Wo ranges from 1.00 to 1.83.
Table 1.
The inlet and outlet key widths of 14 PK weirs.
Weir height (floor slope)—Machiels, et al. [16] presented an experimental study of varying weir heights. With the same base (Bb) for all models, Wi/Wo = 1.5, L/W = 5, and symmetrical overhangs, the floor sloping angle (α) is successively changed, thus resulting in different weir heights. Seven angles were tested, with tanα = 0.25–1.50 (α ≈ 14°–56°). An analytical formulation of the unit weir discharge as a function of its height is developed. The experimental results revealed that, starting from tanα = 0.25, an increase in the inlet floor slope led to an increase in weir capacity. However, beyond the limit tanα = 1.2 (α ≈ 50°), the increase became insignificant. The effects of weir heights on discharge were also briefly tested by Anderson and Tullis [2].
Nose beneath upstream overhang—In the model studies for the Raviege and Escouloubre dams, Erpicum, et al. [17,18] showed that an addition of a triangular nose below the upstream overhang gave rise to an enhancement in discharge capacity, which was obviously attributable to the alleviation of the side-contraction effects leading to improved conditions of the approach flow into the inlet key. A parallel can be drawn with the approach flow at a spillway gate surrounded by piers.
Crest (wall) thickness—It is the wall crest width that controls the weir flow, not the wall thickness itself. However, the crest usually has the same width as the wall or is slightly narrower. By means of numerical modeling, Bremer and Oertel [19] examined walls that are 0.05, 0.10, and 0.20 m thick. They showed that, with an increase in wall thickness, the weir flow efficiency decreased, especially at low wall heads. At small discharges, the Ts = 0.05 m weir was up to 40% more efficient, compared to the Ts = 0.20 m weir. Based on experimental data, Laugier et al. [20] also established CFD models to evaluate the Ts influences on discharge capacity. Table 2 lists the sidewall thicknesses of the 14 PK weirs. Except for Ts = 0.08 m at the Emmenau weir, which is made of stainless sheet steel, Ts ranges from 0.20 to 0.40 m. Seeming to be a rule, Ts is preferable not to go beyond 0.40 m.
Table 2.
The wall thickness of 14 PK weirs.
Crest cross-sectional shape—Crookston [21] examined several crest shapes of labyrinth weirs and concluded that an abrupt or sharp leading edge is less efficient than a rounded (fillet) or chamfered one. For PK weirs, a parallel study was performed by Cicero and Delisle [22]. They presented model tests of a type A weir with a flat-topped, a half-rounded, and a quarter-rounded crest. Some crest configurations were tested at two weir heights. It was confirmed that the crest shape influenced the discharge capacity, especially at low heads, and the latter two shapes exhibited better hydraulic performance than the flat-topped one. Relative to the flat-topped crest, the gain in flow discharge was as high as 10–20% at low heads. With linearly varying key cross-sections, Shen and Oertel [23] evaluated the effects of four crest profiles on discharge behaviors, stating that the half-round crest provided the highest discharge capacity, while the flat crest was the most efficient configuration in terms of energy dissipation.
Parapet wall—Model studies by Anderson and Tullis [8] and Laiadi, et al. [24] demonstrated that the addition of a parapet wall on the weir crest contributed to an increment in flow discharge. This was presumably associated with two aspects—the volume increase in the inlet key that mitigated the inlet key entrance energy loss and a higher outlet key that alleviated the outflow submergence at high flow rates.
Upstream overhang length and inlet key cross-sectional area—With a calibrated and validated 3D CFD model, Pralong, et al. [25] carried out sensitivity analyses of several geometrical parameters of a type B weir, inclusive of upstream overhang length (Bo) and inlet key volume. The simulations were made for a wide range of flow rates. By maintaining the same crest length of the inlet key, the overhang was progressively narrowed. A longer overhang led to a discharge increment, albeit the gain was limited. The changes in the Wi/Wo ratio indicated that, to enhance the flow capacity, it was important to maximize the flow in the inlet key. Both the overhang length and the inlet key volume contributed positively to the discharge.
Weir crest length—Optimizing Wi/Wo, Bo, or assigning the keys with trapezoidal planforms [8,25,26,27] affects in one way or another the crest length. Other conditions being the same, a longer crest leads to higher discharge efficiency. Laugier et al. [28] proposed a so-called fractal PK weir, with a number of small PK weirs placed on the crest of a PK weir of ordinary size to extend the crest length. Both model tests and CFD modeling showed that the fractal weir was efficient at low water heads below 1.0 m. In the rehabilitation of the Oule spillway for a higher design flood, the crest of its 33 m long ungated overflow weir was lowered by 1.0 m, and 22.5 small PK weirs of stainless steel were installed on it, with Wi = 0.65 m, Wo = 0.55 m, Ts = 0.02 m, B = 2.4 m, and a 1.0 m height [29,30,31].
The present study deals with geometrical modifications of a typical PK weir with up- and downstream overhangs (type A) and examinations of its discharge features. The near-optimal weir configuration with the rectangularly cranked planform is treated as a reference weir. Modifications of the inlet and outlet key floors and the resulting elliptical crests of the overhang apexes create an improved weir. Physical models of both the reference and improved weirs are 3D-printed. Laboratory tests are carried out to explore their similarities as well as discrepancies in hydraulic behaviors. The purpose of the study is to devise an improved weir and to substantiate, by means of experiments, its enhancement in hydraulic performance and augment in discharge capacity.
2. Geometrical Improvement—Design Concept
In this section, the near-optimal weir configuration is first specified, and the reference weir is delineated. It is then modified, in which the key floors are replaced with downward semi-circles, and the resulting crest apexes thus become elliptical. The characteristic dimensions of the improved model are analytically derived.
2.1. Near-Optimal Layout
In terms of flow discharge capacity, Lempérière et al. [3] worked out a near-optimal configuration of the conventional PK weir layout, which is used in the present study. With the experimental data obtained at the University of Liege, Erpicum et al. [32] confirmed that the layout proposed by Lempérière et al. [3] is close to the hydraulic optimum. Its longitudinal profile with symmetrical overhangs is shown in Figure 2a, in which Pi = Po = 1.5Pm, B − 2Ts = 3.6Pm, and αi = αo = α = 29.05°. At EDF’s Oule facility, for example, the inlet and outlet key floors are designed with the same angle (α = 29°). The governing size is Pm, i.e., the distance between the crest elevation and the virtual intersection point (C) of the two keys.
Figure 2.
Near-optimal weir configuration: (a) longitudinal profile; (b) plan view. Arrow indicates the flow direction.
In light of the findings by Anderson and Tullis [8], the optimal Wi/Wo range is seemingly within Wi/Wo = 1.25–1.50. In the present study, Wi = 1.33Pm and Wo = Pm are chosen, rendering Wi/Wo = 1.33 (Figure 2b). The dimensions of the near-optimal configuration are summarized in Table 3. Parameters Bb, Wi, Wo, α, and Ts remain the same for the two models described below.
Table 3.
Governing dimensions of the near-optimal weir layout.
2.2. Reference Weir
Based upon the near-optimal layout, a reference weir is defined below. It has the same parameters as listed in Table 3, including α and W. The crest length Bref (including the apex walls) in the flow direction is
where subscript ref denotes the reference weir. The developed crest length Lref of one weir cycle is
Bref = B = 3.6Pm + 2Ts
Lref = L = 2B − 2Ts + Wi + Wo = 9.53Pm + 2Ts
To allow for space for key floor lowering, a base with height Pm (the part below the A–B plane) is added in the reference weir. Thus, the total model height is P = Pi + Pm = Po + Pm = 2.5Pm. Choose Pm = 15.00 cm and Ts = 1.50 cm, leading to Bref = 57.0 cm and Lref = 146.0 cm. The reference weir dimensions are summarized in Table 4 and Figure 3. As three identical weir units are chosen for the study, the total model width is 3W = 114.0 cm and the total crest length is 3Lref = 438.0 cm.
Table 4.
The reference PK weir and its sizes.
Figure 3.
Reference PK weir (in mm): (a) longitudinal profile through the inlet key; (b) plan view.
2.3. Improved Weir
In the engineering applications illustrated by Schleiss [33], one often sees overflow spillways with duckbill-, bathtub-, and fan-shaped crests for attaining high flow discharges. To obtain a longer overflow crest length, the straight apex of either overhang in the reference weir is replaced with a rounded or an ogival form. With such a crest form, the key floors are accordingly adapted, thus forming an improved configuration.
The sloping floors of both inlet and outlet keys of the reference weir are parallelly lowered and replaced with a semi-circle in the cross-section, with their radiuses denoted as Ri and Ro, respectively. Their widths are thus equal to the diameters, Wi = 2Ri and Wo = 2Ro. Figure 4 presents the design concept of the improved PK weir. The reference weir’s basic dimensions are maintained. The unit width (W) is the same; only the overhang apexes are modified with floor adaptations.
Figure 4.
Design of the improved PK weir: (a) longitudinal profile along the inlet key’s center plane; (b) plan view; (c) 3D view, seen from upstream. Arrow indicates the flow direction.
The floor formation of the downward semi-circle leads to an elliptical crest form of both keys’ overhang apexes, with their semi-major axes as Si = Ri/sinα and So = Ro/sinα, which are the governing dimensions of the crest. The apex crests are assigned the same thickness (Ts) as the sidewalls. The floor angle (α) remains unchanged. As compared with the reference, the floor elevations of the inlet and outlet keys are lowered by AA’ = Ri/cosα and BB’ = Ro/cosα, respectively, measured along the key centerlines. At the up- and downstream vertical faces, both key floors also have an elliptical form, with AA’ and BB’ as semi-major axes. The inlet and outlet key heights thus become Pi = 1.5Pm + AA’ = 1.5Pm + 0.5Wi/cosα, and Po = 1.5Pm + BB’ = 1.5Pm + 0.5Wo/cosα, respectively. As the inlet key is wider than the outlet one, the overhangs are not symmetrical anymore—the inlet key (downstream) overhang becomes longer. The floor “intersection” point moves from C in the reference weir to C’ in the improved one.
For the inlet key, measured along the centerline of the resulting elliptical crest, the crest’s semi-major and semi-minor axes are
ai = Si + 0.5Ts = Ri/sinα + 0.5Ts = 0.5Wi/sinα + 0.5Ts
bi = Ri + 0.5Ts = 0.5Wi + 0.5Ts
The perimeter (Ei) of the half ellipse is obtained from the Ramanujan formula [34]
Define Mi = Ei/(2bi) = Ei/(Wi + Ts), mirroring the apex crest length ratio of the modified model to the reference one. Obviously, Mi is a function of α, Ts, and Wi. Similarly for the outlet key, ao and bo are semi-major and semi-minor axes of its elliptical crest, and Eo is the perimeter of the half ellipse and Mo = Eo/(Wo + Ts), which is a function of α, Ts, and Wo. Analysis shows that Mi and Mo are slightly affected by Ts and their respective key width.
With Ri = 10.00 cm and Ro = 7.50 cm, Figure 5 plots the Mi and Mo variations with α within the 25–40° range. The results allude to the strong dependence on the floor sloping angle. However, for any given α value, the discrepancy between Mi and Mo is negligible, with a relative difference below 1.0%. At α = 29.05° and Ts = 1.50 cm, Mi ≈ Mo ≈ 2.40, implying that, for either key, the elliptical crest is 2.4 times as long as the linear apex of the reference weir.
Figure 5.
The improved weir: change of Mi and Mo as a function of floor slope angle.
Measured between the crest apexes’ outer edges, the weir length in the flow direction Bimp is
in which subscript imp denotes the improved PK weir, with Si = 0.5Wi/sinα and So = 0.5Wo/sinα. Its developed crest length Limp of one single weir cycle thus becomes
Bimp = Bref + Si + So
Limp = 2Bref − 4Ts + Ei + Eo = 2Bref − 4Ts + Mi(Wi + Ts) + Mo(Wo + Ts)
Compared to the reference weir, the increment in the developed crest length of one cycle is
ΔL = Limp − Lref = (Mi − 1)Wi + (Mo − 1)Wo + (Mi + Mo − 1)Ts
Let Mi ≈ Mo = M, thus ΔL reduces to
ΔL ≈ (M −1) (Wi + Wo) + 2(M − 1)Ts
For a given weir layout (Wi, Wo, and Ts = constants), ΔL is a function of α. The parameters M and ΔL increase with a decrease in α. To express the relative crest length increment, define
β = ΔL/Lref
Thus, for the improved weir, Limp = 199.20 cm, ΔL = 53.20 cm, and β = 36.4%. This means that, for a single weir cycle, it is characterized by a 36.4% longer crest than the reference one. For clarity, its resulting dimensions are illustrated in Figure 6 and summarized in Table 5. Also composed of three cycles, the total width and crest length of the model are 3W = 114.00 cm and 3Limp = 597.6 cm.
Figure 6.
The improved PK weir and governing dimensions of: (a) along inlet key center plane; (b) plan view. Arrow indicates the flow direction.
Table 5.
The improved PK weir: governing parameters and their dimensions.
2.4. 3D-Printed Models
To obtain high manufacture precision, both PK models are produced with 3D printing, for which CAD models are prepared. The manufacturing process leaves a layered structure with a stair-stepping effect on the surfaces, which depends on the surface orientation, e.g., curved or tilted, with respect to the building platform. Thus, the surface resolution depends heavily on the printing nozzle diameter and layer height.
The printing polymer is a recycled ABS plastic, black in color. To attain a relatively smooth model finishing, a 6 mm nozzle is used. The key floors are characterized by a relatively small inclination (α = 29.05) and hang over quite a distance in both directions, especially in the improved weir, which limits the choice of layer height. A small layer height, 1 mm, is thus used, also leading to an affordable manufacture price. The cost, including material and printing time, amounts to roughly 3000 EUR per model. The completed model is laser-scanned for quality control, showing that the manufacture inaccuracy is below ±(1–1.5) mm. The reference and improved models, each P = 37.50 cm high and 3W = 114.00 cm wide, weigh 30.8 and 24.8 kg, respectively. This means that, despite its larger length in the flow direction, the latter weighs 19.5% less than the former. Figure 7 shows the surface finishing of the improved model.
Figure 7.
The improved weir’s surface finishing, a layered structure produced with a 6 mm printing nozzle and a 1 mm layer height: (a) side view and (b) upstream view.
Over the downstream overhang crest of the inlet key, the behavior of the free-falling jet is an issue of concern in engineering applications. In their experiments, Oertel and Shen [35] checked how the printing parameters affect the overflow. They indicated that the horizontal layer lines of the floor in the vicinity of the crest gave rise to some local flow disturbance. To prevent this in the present tests, the crest and its immediate vicinities of the inlet key floors are filled with a little putty. When dried, the surfaces are lightly polished with sandpaper (grit sizes 120 and 240) to attain even edges with smoother finishing. Both models are printed with the same nozzle diameter and layer height; their crests are processed in the same way. To facilitate test observations, the models are sprayed with smooth paints. Figure 8 shows the 3D printed models, painted afterwards in colors to denote the upstream face and inlet key (blue), outlet key (white), and downstream face (yellow). The difference between the two weirs is easily discerned.
Figure 8.
3D printed reference and improved PK weirs, seen from upstream.
It should be stressed that the study does not concern any downscaling of a prototype weir to a model, and there is no prototype–model similarity issue involved. It only compares and evaluates two weir configurations with the same surface roughness structure.
3. Experimental Setup
The layout of the experimental rig is shown in Figure 9. The steel flume is 11 m long, 2 m high, and 2 m wide in the cross-section. A channel of the same width as the PK weirs (3W = 114.0 cm) is set up in the flume, aligned symmetrically about the flume centerline. The straight section is 4.50 m long, providing uniform approach flow conditions. The channel sidewalls extend downstream as far as the inlet key of the reference weir, and as farther as the straight part of the inlet key of the improved one. The models are placed at the flume’s end, which facilitates observations and measurements.

Figure 9.
Experimental rig in a flume (11 m long, 2 m wide, and 2 m high), in which a 114.0 cm wide channel is set up to accommodate the three-cycle weirs at its downstream end: (a) flume and channel layout; (b) intake pipeline into the rig; (c) upper part of the rig; (d) reference weir; (e) improved weir. Arrow indicates the flow direction.
A large pump, with a 350 L/s capacity, conveys water via a DN250 mm pipeline to the flume. It is frequency-regulated for providing steady flow conditions with minimal fluctuations, which is essential for the test quality. The headbox with a baffle structure suppresses the inflow, providing uniform approach conditions to the PK weirs. A calibrated magnetic flow meter with a control valve measures the flow rates. Its relative measurement error is below ±(1.0–1.5)%.
Water stages in the channel are monitored, with both point gauges and floats, all calibrated, at three stations, 2.0 m (M2), 3.0 m (M3), and 4.0 m (M4) from the weirs’ upstream (vertical) front. The water depth over the weir crest is measured directly. A hand-held propeller-type velocimeter is used for velocity measurement. Each flow case is usually repeated three times. The weir crest is 91 cm above the laboratory floor at the impact location. As known, an air cavity might form behind a free-falling jet over such a weir and tends to become enclosed at high flow rates. If so, the sub-atmospheric cavity pressure would result in jet oscillations (instability), which in turn affects the hydraulic performance [36,37,38,39]. To avoid this in the tests, the downstream (vertical) face of either weir is mounted flush with the flume’s lower edge (shown in Figure 9a). In this way, the downstream overhangs are beyond the flume and the falling jets do not enclose the space behind, thus giving rise to the atmospheric pressure acting on both jet sides.
4. Experimental Results and Discussions
The experimental results are analyzed in terms of weir discharge capacity and hydraulic performance. The latter refers to overall overflow patterns, crest flow depth and velocity, near-bottom velocity in the inlet key, extent of free-falling jets, etc. Included are also the discharge coefficients, defined by the developed crest length and weir width of one single weir unit, respectively.
4.1. Flow Discharge Capacity
The PK weir is a hydraulic structure with free-surface flow and free-falling jets. Based upon the developed crest length (L) of a single weir cycle, its flow rate, Q, is expressed as [13,32]
in which C is the discharge coefficient, g is the gravitational acceleration, HT is the total water head (=H + /(2g)), V0 is the average approach velocity in the channel, and H is the weir water head, i.e., the difference between the undisturbed upstream water stage and the weir crest elevation. The water stages at the three gauging stations differ negligibly little. The M3 station is used for calculations of H, V0, and HT of the approach flow. To quantify the relative increase in flow discharge between the two weirs, define
ξ = (Qimp − Qref)/Qref
For the reference weir, Qref ≈ 105 L/s at maximum with H ≈ 16.0 cm; for the improved one, Qimp ≈ 117 L/s at maximum with H ≈ 12.3 cm. As a function of HT/W, Figure 10, Figure 11 and Figure 12 present the comparisons between Qimp and Qref, the ξ change, and the differences between Cimp and Cref.
Figure 10.
Comparison of flow rate over one single weir cycle between the two weirs.
Figure 11.
Increment in flow discharge relative to the reference weir.
Figure 12.
Discharge coefficient (C) based on the developed crest length (L).
The results demonstrate that, at the same HT/W, the improved weir gives rise to a pronounced enhancement in flow discharge and improvement in discharge coefficient. In the tests of the improved weir, the pump reaches its maximal capacity (~350 L/s), corresponding to Q ≈ 117 L/s, H ≈ 12.3 cm, H/W = 0.323, and HT/W = 0.373. Within the HT/W ≤ 0.373 range, the increase in discharge ranges within ξ = 30–53%. It differs between the small and large water heads, with a more distinct increment in the former. For both weirs, C first goes up with an increase in HT/W, and then goes down from HT/W ≈ 0.09, at which its maximal C value is 0.60 for the improved weir and 0.54 for the reference one. The trend of the C change is consistent with the findings from the studies by Anderson and Tullis [40], Oertel and Bremer [41], and Machiels, et al. [42]. From HT/W ≈ 0.26 and upwards, the C values of both weirs collapse onto the same line.
In the light of the unit weir width W, Q is written as
where C# = discharge coefficient. Here, H is used instead of HT. With W being the same for both weirs, the following relationship holds true,
Qimp/Qref = C#imp/C#ref
This is another way to compare their discharge efficiencies. If the upstream water stage or water head (H) is the same, the coefficient proportionally mirrors the discrepancy in discharge between the two weirs. As a function of H/W, Figure 13 shows the comparisons. Obviously, the change follows the C trend, with HT/W = 0.09–0.10 as the turning point, at which C# = 2.10 and 3.25 for the reference and improved weirs, respectively. With an increase in H/W, C# declines linearly for both weirs and the distance between the two lines becomes somewhat less. Nevertheless, the difference is still considerable, suggestive of the superior performance of the improved layout.
Figure 13.
Discharge coefficient (C#) based on the unit weir cycle width (W).
4.2. Crest Flow Parameters
The flow over the PK crests is complex, with its flow patterns strongly dependent on the water head. It is therefore intricate in the experiments to map the flow distribution along the crest. The major reason is that, at a given flow rate, the spatially changing flow depth is also accompanied by the flow velocity that is not perpendicular to the weir wall [43].
To obtain an approximate picture of the crest flow, measurements are made of crest water depth h and near-crest normal velocity Vn (perpendicular to the crest wall). The former is measured directly on the crest; the latter is recorded with the velocimeter, with its propeller axis 11 mm above the crest. Figure 14 marks the characteristic points on the crest of each weir, covering half of the weir cycle with a length of 0.5Lref = 73.0 cm for the reference weir and 0.5Limp = 99.6 cm for the improved one. Points ②–⑥ are on the straight weir wall, at the same positions for both weirs. Following the crest centerline, an x-coordinate is defined, with its origin at the weir base axis (point ④) and being positive downstream. Their curvilinear coordinates are listed in Table 6.
Figure 14.
Characteristic crest points (①–⑦) for flow depth and velocity measurements.
Table 6.
Curvilinear coordinates of characteristic points on the weir crests (along half of the developed crest length of each weir).
Figure 15 and Figure 16 compare the h/H and Vn variations along the crest, both as a function of x/(0.5L). For the reference weir, points ② and ⑥ are at vertices of the rectangular crest and Vn is measured on both sides of each vertex. Four water levels are chosen to demonstrate the flow changes, i.e., H ≈ 2.0, 5.0, 8.0, and 11.0 cm. It should be noted that the comparisons are made between the two weirs at the same water head, rather than different flow cases of the same weir.
Figure 15.
Changes of flow depth (h) along the crests between points ① and ⑦. (a) H ≈ 2 cm; (b) H ≈ 5 cm; (c) H ≈ 8 cm; (d) H ≈ 11 cm.
Figure 16.
Changes of near-crest normal velocity (Vn) between crest points ① and ⑦. (a) H ≈ 2 cm; (b) H ≈ 5 cm; (c) H ≈ 8 cm; (d) H ≈ 11 cm.
The tests show that, at low flows (H < 3 cm), the difference in crest flow depth is little between the two weirs, with nearly horizontal water levels along the side walls (between points ② and ⑥) (Figure 15a). With an increase in flow discharge, the water depth drops downstream of point ② of the reference weir, with a significant drop at high flows (Figure 15b–d). The flow depth at point ② is the largest and at point ⑥ the lowest, which holds true for all the examined flow cases, inclusive of H = 14 and 16 cm (not shown here). The flow acceleration forms a “hump”. With an increasing water head, the hump moves farther downstream on the crest. At H ≈ 11 cm, the hump is not that obvious anymore. As the improved weir has a streamlined crest without any singularity, the spatial change in crest flow becomes relatively smooth. Downstream of the vertex at point ②, the flow depth is always larger than along the reference weir, which is favorable with respect to flow capacity.
For the reference weir, each corner of its cranked crest is a singularity, also affecting the crest flow velocity (Figure 16). In the inlet key, the water tends to move in the downstream direction, which leads to low velocity normal to the sidewall downstream of point ② and upstream of point ⑥. This flow pattern deteriorates with an increase in flow discharge (due to the inertia effect). The near-crest flow distribution becomes highly uneven between points ② and ⑥. Negatively affecting the weir overflow, this is perhaps the most unfavorable aspect of the conventional weir. With its elliptical overhangs, the improved weir modifies this flow pattern. Depending on the water head, its crest velocity is at the same level as the reference weir or higher. The improvement is presumably better explained with CFD simulations, whereby the full velocity profile at a given crest location is mapped.
Hu et al. [43] performed numerical studies of the flow characteristics of a reference weir and examined its spatial flow distribution along the crest. The flow rate over half of the developed crest length (between ① and ⑦) is 0.5Q. Let Qj (j = 1, 2, 3) denote the flow rates along crest segments ①–②, ②–⑥, and ⑥–⑦, respectively. Thus, Q1 + Q2 + Q3 = 0.5Q. Figure 17 summarises their results. From low to high within the H/W range examined, Q1 and Q3 go up by 17% and 12%, while Q2 goes down by 29%. The gradual increment over segments ①–② and ⑥–⑦ is owing to the stepped-up flow depth and velocity. The decline over segment ②–⑥ is attributable to the augmented inertia effect in the inlet key (in the flow direction) that leads to a considerable drop in water depth and aggravated normal flow profile along the sidewall. The submergence effect also plays a role if the flow exceeds a certain limit.
Figure 17.
Changes of flow rate along crest segments ①–②, ②–⑥, and ⑥–⑦.
The flow rate per developed crest length is defined as q = Q/L, referring to the averaged quantity without distinguishing among locations on the crest. Figure 18 compares, as a function of H/W, the difference in q between the two weirs. This implies that, at the same reservoir water stage, the unit crest length of the improved weir discharges more effectively than that of the reference one.
Figure 18.
Changes of unit crest flow rate (q) with H/W for both weirs.
4.3. Inlet Key Floor Velocity
At the same reservoir water level, the improved weir provides enhanced flow capacity, giving rise to more inflow and a higher velocity in the inlet key. With the downward semi-circle as the floor, the passage area (volume) of the inlet key becomes larger, leading to a slowdown of the flow. Thus, one question arises, i.e., how the geometrical modification affects the inlet key flow velocity. The increase in flow rate and the enlargement of the inlet key are two factors that act in opposite directions. An essential proxy of inflow conditions is the near-floor velocity (Vf) of the inlet key. Figure 19 illustrates the measurement points along the inlet key’s center plane for each weir.
Figure 19.
Locations of inlet key floor points for near-bottom velocity measurements.
For the reference weir, its inlet key height is Pi = 1.5Pm = 22.5 cm, and its sloping floor length is Lf = 1.5Pm/sinα = 46.33 cm. For the improved one, its inlet key height is Pi = 1.5Pm + AA’ = 1.5Pm + 0.5Wi/cosα = 33.9 cm, and its floor length is Lf = 1.5Pm/sinα + 0.5Wi/(sinαcosα) = 69.88 cm. The Vf measurements are made at the same upstream water levels. Figure 20 compares Vf as a function of x/Lf.
Figure 20.
Change of near-bottom flow velocity in the inlet key.
The results show that Vf of the improved weir becomes, irrespective of upstream water level, lower in the first part of the inlet key, which is expected. In the middle part, it is roughly at the same level as in the reference weir. In the last part towards the crest, Vf is slightly higher. One can say that the two weirs are similar with respect to bottom velocity and the experiments do not demonstrate any significant differences, which mirrors the interplay among the contributing factors. The bottom velocity has practical implications in terms of sediment transport over the weirs.
4.4. Overflow and Falling Jet Behaviors
In the tests, the falling jets are aerated with atmospheric pressure on both sides, and there is no jet stability issue involved. With respect to energy dissipation, outflows in the outlet keys and jet behavior have practical implications. Figure 21 and Figure 22 compare the overflow and falling jet patterns from low to high flows. The left columns refer to the reference weir and the right ones refer to the improved one. The comparisons are made at the same water levels.
Figure 21.
Overflow patterns seen from above. Left column (a1–d1), the reference weir; right column (a2–d2), the improved weir. (a1,a2) H = 2.0 cm; (b1,b2) H = 5.0 cm; (c1,c2) H = 8.0 cm; (d1,d2) H = 11.0 cm.
Figure 22.
Overflow patterns seen from downstream. Left column (a1–d1), the reference weir; right column (a2–d2), the improved weir. (a1,a2) H = 2.0 cm; (b1,b2) H = 5.0 cm; (c1,c2) H = 8.0 cm; (d1,d2) H = 11.0 cm.
The tests for each weir are performed from low to high flows and then repeated vice versa. The observations show that the two weirs behave in a similar manner regarding the flow behavior in the outlet key. For the reference and improved weirs, the submergence effect starts to take effect from H = 8.0–8.2 cm and 7.8–8.0 cm, respectively, which merits attention considering the substantial increase in the flow rate of the latter. A rooster comb is also built up locally in the upper part. Exceeding this limit, the overflows from the sidewalls form a “ridge” along the middle of the surface water in the key, which propagates downstream and even beyond the falling jets (e.g., at H ≈ 11 cm in Figure 21).
Compared with the reference key, the improved layout extends by an additional distance So into the reservoir, thus providing more favorable approach conditions. In a similar way, it stretches out by an extra distance Si downstream. The experiments demonstrate that the falling jets impact the laboratory floor farther downstream. It is also observed that, in combination with the higher crest flow velocity, the elliptical crest form also spreads the jets more sidewards, which is evident in Figure 22. In other words, at the same water head, the jets fan out more sidewise towards the impact location.
4.5. Discussions—Contributing Factors to Improvement
Along with the experimental results, the reasons for the enhanced flow behaviors of the improved weir are sought in the following aspects.
(a) The improved weir stretches out additionally both up- and downstream and significantly prolongs the developed crest length. The elliptical upstream overhang inclusive of the crest (that part of the outlet key protruding into the reservoir) eliminates the corner singularities of the reference weir, and the along-crest flow depth and velocity become more favorable. As a result, both the crest discharge coefficient (C) and the unit crest discharge (q) are higher at the same head (H).
(b) The upstream overhang is also elliptically shaped along the vertical direction. Compared to the reference weir, it mitigates the side-contraction effects and improves the inflow into the inlet keys. Seldom do we see any existing PK weirs with a streamlined overhang upstream. In this regard, the improved weir provides an appreciable enhancement. The vertical nose beneath the overhang usually covers a short vertical distance. Even rounded (often with a half circle or an ogive), its contribution is not as significant as the streamlined overhang, because the overhang height dominates the approach flow depth in front of the inlet key.
(c) With a lower floor in the inlet key, the improved weir augments the inflow passage area (volume) and facilitates the approaching flow to the crest. Compared to the reference weir, the increase in the cross-sectional area (normal to the floor) is half of the floor circle (radius Ri), equaling . The experimental study of a large conventional weir by Machiels, et al. [42] shows that a control section appears in the inlet key if the upstream head becomes significant. This control section decreases the effective crest length and is unfavorable for the discharge capacity. Therefore, there is an interest in increasing the inlet cross-section to limit high velocities and mitigating this control section. Along with the streamlined upstream overhang, the larger inlet key area of the improved weir effectively counteracts this weakness.
(d) The lower floor of the outlet key enlarges the outflow cross-sectional area (volume) and alleviates the submergence effect in it. Its contribution takes effect first at high flows. This floor lowering can be paralleled with the effect of a parapet wall on the crest [25,32]. In comparison with the reference weir, the cross-sectional area (normal to the floor) expands by . For both weirs, the submergence effect appears first at around H = 8.0 cm.
(e) The downstream overhang extends more downstream, pushing the jet farther away from the weir. Together with the elliptical shape, it facilitates the spreading out of the falling jet on its way to the receiving tailwater, which is favorable with respect to energy dissipation.
All these factors are attributed to the enhanced performance of the improved PK weir.
4.6. Alternative Layouts
In the improved weir, the sloping floor of either key is shaped with a semi-circle in the cross-section, thus leading to an elliptical crest apex. If one wishes, modifying only the down- or upstream overhang with an elliptical weir is still a partial achievement.
Another way to form the apex crest is to use a semi-circle with a Ri = 0.5Wi radius for the inlet key and a Ro = 0.5Wo radius for the outlet key. The A and B positions in both keys (Figure 2) remain unchanged. Thus, the floor of either key is assigned a smooth transitional surface from a semi-circle at the crest to a linear edge at the A and B positions. With this layout, M = Mi = Mo = 0.5π. The corresponding edge-to-edge crest length (Bimp), the developed crest length (Limp), and the incremental crest length (ΔL) are as follows.
Bimp = Bref + 0.5(Wi + Wo) = 4.77Pm + 2Ts
Limp = 2Bref − 4Ts + 0.5π(Wi + Wo + 2Ts) = 10.87Pm + πTs
ΔL = Limp − Lref = (0.5π − 1)(Wi + Wo) + (π − 2)Ts = 1.33Pm + 1.142Ts
Compared to the reference weir of the same size, this weir is characterized by a β = ΔL/Lref = 14.9% longer crest. The results are summarized in Table 7.
Table 7.
Dimensions of a modified PK weir with semi-circular apexes.
4.7. Effects of Viscous and Surface-Tension Forces
Scale effects caused by viscous and surface-tension forces are an issue of discussion in laboratory model tests, especially at low flows. Here, the crest flows at point ⑦ of the reference weir (Figure 14) are chosen to illustrate this. First, define Reynolds number Re = (Vnh)/υ and Weber number We = Vn/(σ/ρh)0.5, where υ = water kinematic viscosity, σ = surface tension coefficient, and ρ = water density. At a water temperature of 20 °C, υ = 1.0035 × 10−6, and σ = 0.0728, the Re and We results at point ⑦ are presented in Figure 23. Obviously, Re ≤ 1.0 × 105 and We ≤ 40 within the H range examined.
Figure 23.
Re and We of the crest flow at point ⑦ of the reference weir.
Literature reviews show that discussions of the viscous and surface-tension effects on weir overflows are seldom based on Re and We, but rather on the absolute water head (H). Inasmuch as tests of low flows in a large model still suffer from these effects, the criterion is not directly related to the model scales. For a standard ogee and a broad-crested weir, Breitschneider [44] and Ettema [45] suggest a minimum value H = 2.5–3.0 cm to avoid the effects on the Q–H curves, while Hager and Schwalt [46] propose a larger value, H = 5 cm.
The PK crest is an overflow weir of some form in the cross-section (rectangular, rounded, cylindrical, etc.). Irrespective of crest forms, Erpicum et al. [18] and Pfister et al. [47] conclude that the limiting water head is H = 3 cm for the determination of its flow discharge. Note that no flow-velocity limit is involved. To correctly reproduce the flow features of jet formation and trajectory, the limiting value should be H = 6 cm [18,44,45,47].
In this study, despite the large PK weir models, the low flows are somewhat underestimated. Even the effect of the surface roughness from the 3D printing plays a certain role in the context. Another aspect is the formation of an air cavity behind the falling jet along the sidewall. However, all these factors should, at a given water head, have the roughly same bearing on the flows of the two weirs. The resulting difference in flow discharge capacity should, even at low flows, mirror the difference in the weir geometries, namely, between the reference and improved weirs.
5. Conclusions
To provide reliable engineering design, it is desirable that a PK weir should effectively discharge floods and possess desirable hydraulic performance. To enhance its flow behavior, the conventional weir in rectangular planform is modified by the incorporation of semi-circular floors in the cross-section into the inlet and outlet keys, thus leading to streamlined overhangs both up- and downstream. The elliptical crest becomes longer. The volumes of both keys are also enlarged. The two models are 3D-printed, with the same surface roughness structure. Laboratory experiments are performed to examine the flow behaviors in terms of flow capacity, crest flows, inlet key flow, falling jets, etc.
Each model is 37.50 cm in height, with a three-cycle width of 114.00 cm. With the dimensions adopted for the study, the developed crest length of the improved weir extends by nearly 36%. The experiments demonstrate that, at the low water heads, the augment in flow discharge is by above 50%, and it declines with an increase in the water head. At the maximal head examined, the flow discharge of the improved weir is ~30% higher, which is still substantial. The discharge coefficient (C) and the unit crest flow rate (q) are also improved.
One drawback of the conventional PK weir is probably its corner singularity, which causes a significant drop in crest flow depth at high water heads and an unfavorable velocity profile. The improved weir amends the inflow conditions and gives rise to relatively uniform flow along the crest, which is manifested from measurements of both flow depth and normal-to-crest velocity. Though the velocity is only mapped near the crest, which does not reveal the change along the crest flow depth, the improvement in crest flow is obvious.
With respect to the changes in flow velocity, the deeper cross-section and the increased flow rate are two factors that act in opposite directions, which is the case for both inlet and outlet keys. Measurements show that the bottom flow velocities in the inlet key are at the same level in the two weirs, except for at the entrance. In the outlet key, the submergence effect appears first at approximately the same water head (8.0 cm) for both weirs, and no telling difference is noticed.
In summary, the noticeable crest extension, the streamlined upstream overhang inclusive of the crest, and the inlet key enlargement act in the same direction, creating more favorable flow conditions that contribute to the discharge enhancement. The upstream overhang, protruding more into the approach flow, also facilitates the inflow. The downward enlargement of the outlet key makes its contribution at high flows when the outflowing surface water becomes submerged. The downstream overhang also extends farther downstream, which promotes the spreading of the jet both in the flow direction and sidewards. All these contributing factors compound the more favorable performance of the improved PK weir.
In the tests, the falling jets are well-aerated from behind, involving no discussions of jet stability due to sub-atmospheric pressure. In practice, the aeration need should be examined. As a technically effective configuration, it is believed that the improved weir will find its engineering applications, especially if the footprint for spillway construction is restricted or the allowed rise in reservoir water level must be confined. A more effective spillway would limit the requirement of dam heightening in a refurbishment project. Even if no dam heightening is needed, a lower reservoir water stage leads to a higher safety margin of structural stability in the case of extreme floods.
Author Contributions
Design innovation, funding acquisition, methodology, resources, quality control, experiments, formal analysis, writing of original manuscript, and review revision, J.Y.; Participation in project planning and tests, manuscript review, S.L.; Experiments with pump operation and measurements, test repeatability, A.H.; CAD, supervision of model manufacture, E.S.; Project administration, manuscript review, A.A. All authors have read and agreed to the published version of the manuscript.
Funding
As part of research project “Innovative design & experimental-numerical studies of piano key spillway for significantly enhanced discharge and hydraulic performance”, the study is funded by Swedish Centre for Sustainable Hydropower (SVC, Contract No.: VKU32022). As industry in-kind, Vattenfall R&D covers the costs for flume adaptation prior to the experiments. The SVC has been established by Swedish Energy Agency, Energiforsk and Svenska Kraftnät together with Luleå University of Technology, Royal Institute of Technology, Chalmers University of Technology and Uppsala University. Participating companies and industry associations are AFRY, Andritz Hydro, Boliden, Fortum Generation, Holmen Energi, Jämtkraft, Karlstads Energi, LKAB, Mälarenergi, Norconsult, Rainpower, Skellefteå Kraft, Sollefteåforsens, Statkraft Sverige, Sweco Energuide, Sweco Infrastructure, Tekniska verken i Linköping, Uniper, Vattenfall R&D, Vattenfall Vattenkraft, Voith Hydro, WSP Sverige and Zinkgruvan.
Data Availability Statement
Data are contained within the article.
Acknowledgments
The experimental study is conducted at Vattenfall’s hydraulic laboratory, Älvkarleby. James Yang is grateful to Vattenfall’s personnel and hired staff, Magnus Lagerkvist, Hans Lindström and Isabelle Andersson for model assembling and maintenance, Patrik Lidberg and Pär Andersson for instrumentation, and Anders Sjödin and Mikael Bergsten for overseeing flume adaptation, to SVC personnel, Carolina Holmberg and Emma Hagner, for project coordination, and to Peter Viklander (Vattenfall), Carl-Oscar Nilsson (Uniper), Rikard Hellgren (Svenska Kraftnät) and Petter Stenström (Sweco) for support and discussions.
Conflicts of Interest
The authors declare that this study receives funding from Swedish Centre for Sustainable Hydropower. The funder is not involved in the study design, collection, analysis, interpretation of data, the writing of this article or the decision to submit it for publication.
Nomenclature
The following symbols are used in this paper:
| ai, bi | Elliptical crest’s semi-major and semi-minor axis of inlet key |
| ao, bo | Elliptical crest’s semi-major and semi-minor axis of outlet key |
| B, Bref, Bimp | Total crest length in the flow direction (incl. crest walls) |
| Bb | Weir base length |
| Bi, Bo | Crest length of inlet and outlet key overhang (excl. crest wall). |
| C, Cref, Cimp | Discharge coefficient based on developed crest length (L, Lref, Limp) |
| C#, C#ref, C#imp | Discharge coefficient based on unit weir width (W) |
| Ei, Eo | Perimeter of semi-ellipse of inlet and outlet keys |
| g | Gravitational acceleration |
| H | Water head |
| HT | Total water head |
| h | Crest flow depth |
| L, Lref, Limp | Developed crest length |
| Lf | Inlet key floor length |
| ΔL | Increment of developed crest length (=Limp − Lref) |
| M, Mi, Mo | Length ratio of weir apex |
| P | Total weir height |
| Pi, Po | Height of inlet and outlet keys |
| Pm | Distance from virtual intersection of two key floors to crest in reference weir |
| Q, Qref, Qimp | Flow rate over one weir cycle |
| Qj (j = 1, 2, 3) | Flow rate over crest sections ①–②, ②–⑥ and ⑥–⑦ of reference weir, ∑Qj = 0.5Q |
| q | Average flow rate per developed crest length (=Q/L) |
| Re | Reynolds number |
| Ri, Ro | Floor cross-sectional radius of inlet and outlet keys |
| Si, So | Semi-major axis of inlet and outlet ellipses (excl. crest wall thickness) |
| Ts | Wall crest thickness |
| V0 | Average approach velocity upstream of the weir (=Q/[W(P + H)]) |
| Vf | Near-bottom velocity in the inlet key |
| Vn | Near-crest velocity normal to the wall |
| W | Width of one weir cycle |
| We | Weber number |
| Wi, Wo | Inlet and outlet key widths |
| x | Coordinate |
| α, αi, αo | Sloping angle of key floor |
| β | Relative increment in developed crest length |
| ξ | Relative increase in flow discharge |
| ρ | Water density. |
| υ | Water kinematic viscosity, |
| σ | Coefficient of surface tension between water and air |
| Subscript i | Inlet key |
| Subscript o | Outlet key |
| Subscript imp | Improved weir |
| Subscript ref | Reference weir |
References
- Barcouda, M.; Laugier, F.; Cazaillet, O.; Odeyer, C.; Cochet, P.; Jones, B.A.; Lacroix, S.; Vigny, J.P. Cost Effective Increase in Storage and Safety of Most Existing Dams using Fusegates or P.K. weirs (Q84, R78). In Proceedings of the 22nd ICOLD Congress, Barcelona, Spain, 18–23 June 2006. [Google Scholar]
- Anderson, R.M.; Tullis, B.P. Comparison of piano key and rectangular labyrinth weir hydraulics. J. Hydraul. Eng. 2012, 138, 358–361. [Google Scholar] [CrossRef]
- Lempérière, F.; Ouamane, A. The piano keys weir: A new cost-effective solution for spillways. Int. J. Hydropower Dams 2003, 10, 144–149. [Google Scholar]
- Ouamane, A. Nine Years of Study of the Piano Key Weir in the University Laboratory of Biskra “Lessons and Reflections”. In Labyrinth and Piano Key Weirs—PKW 2011; Erpicum, S., Laugier, F., Pfister, M., Pirotton, M., Cicero, G.-M., Schleiss, A.J., Eds.; CRC Press: London, UK, 2011. [Google Scholar]
- Laugier, F. Design and construction of the first piano key weir (PKW) spillway at the Goulours dam. Int. J. Hydropower Dams 2007, 14, 94–101. [Google Scholar]
- Laugier, F.; Vermeulen, J.; Lefebvre, V. Overview of Piano Key Weirs Experience Developed at EDF during the Past Few Years. In Labyrinth and Piano Key Weirs II—PKW 2013; Erpicum, S., Laugier, F., Pfister, M., Pirotton, M., Cicero, G.-M., Schleiss, A.J., Eds.; CRC Press: London, UK, 2013. [Google Scholar]
- Laugier, F.; Vermeulen, J. Overview of DESIGN and Construction of 11 Piano Key Weirs Spillways Developed in France by EDF from 2003 to 2016. In Labyrinth and Piano Key Weirs III—PKW 2017; Erpicum, S., Laugier, F., Pfister, M., Pirotton, M., Cicero, G.-M., Schleiss, A.J., Eds.; CRC Press: London, UK, 2017. [Google Scholar]
- Anderson, R.M.; Tullis, B.P. Piano key weir hydraulics and labyrinth weir comparison. J. Irrig. Drain. Eng. 2013, 139, 246–253. [Google Scholar] [CrossRef]
- Ho Ta Khanh, M. History and Development of Piano Key Weirs in Vietnam from 2004 to 2016. In Labyrinth and Piano Key Weirs III—PKW 2017; Erpicum, S., Laugier, F., Pfister, M., Pirotton, M., Cicero, G.-M., Schleiss, A.J., Eds.; CRC Press: London, UK, 2017. [Google Scholar]
- Collins, J.R.; Kees, S.; Robblee, G.; Bass, R. A tale of two spillways: The first two piano key weirs constructed in the United States. J. Dam Saf. 2019, 16, 29–40. [Google Scholar]
- Erpicum, S.; Machiels, O.; Dewals, B.; Archambeau, P.; Pirotton, M. Considerations about the Optimum Design of PKW. In Proceedings of the International Conference on Water Storage and Hydropower Development for Africa, Addis Ababa, Ethiopia, 16–18 April 2013. [Google Scholar]
- Pralong, J.; Vermeulen, J.; Blancher, B.; Laugier, F.; Erpicum, S.; Machiels, O.; Pirotton, M.; Boillat, J.-L.; Leite Ribeiro, M.; Schleiss, A. A Naming Convention for the Piano Key Weirs Geometrical Parameters. In Labyrinth and Piano Key—PKW 2011; Erpicum, S., Laugier, F., Pfister, M., Pirotton, M., Cicero, G.-M., Schleiss, A.J., Eds.; CRC Press: London, UK, 2011. [Google Scholar]
- Pfister, M.; Schleiss, A.J. Estimation of A-Type Piano Key Weir Rating Curve. In Labyrinth and Piano Key Weirs II—PKW 2013; Erpicum, S., Laugier, F., Pfister, M., Pirotton, M., Cicero, G.-M., Schleiss, A.J., Eds.; CRC Press: London, UK, 2013. [Google Scholar]
- Ouamane, A.; Lempérière, F. Design of a New Economic Shape of Weir. In Proceedings of the International Symposium on Dams in the Societies of the 21st Century, ICOLD, Paris, France, 18 June 2006. [Google Scholar]
- Lempérière, F. New Labyrinth Weirs Triple the Spillways Discharge. Available online: http://www.hydrocoop.org (accessed on 8 February 2010).
- Machiels, O.; Erpicum, S.; Archambeau, P.; Dewals, B.J.; Pirotton, M. Influence of the Piano Key Weir Height on Its Discharge Capacity. In Labyrinth and Piano Key Weirs—PKW 2011; Erpicum, S., Laugier, F., Pfister, M., Pirotton, M., Cicero, G.-M., Schleiss, A.J., Eds.; CRC Press: London, UK, 2011. [Google Scholar]
- Erpicum, S.; Nagel, V.; Laugier, F. Piano Key Weir Design Study at Raviege Dam. In Labyrinth and Piano Key Weirs—PKW 2011; Erpicum, S., Laugier, F., Pfister, M., Pirotton, M., Cicero, G.-M., Schleiss, A.J., Eds.; CRC Press: London, UK, 2011. [Google Scholar]
- Erpicum, S.; Silvestri, A.; Dewals, B.; Archambeau, P.; Pirotton, M.; Colombié, M.; Faramond, L. Escouloubre Piano Key Weir: Prototype versus Scale Models. In Labyrinth and Piano Key Weirs II—PKW 2013; Erpicum, S., Laugier, F., Pfister, M., Pirotton, M., Cicero, G.-M., Schleiss, A.J., Eds.; CRC Press: London, UK, 2013. [Google Scholar]
- Bremer, F.L.; Oertel, M. Numerical Investigation of Wall Thickness Influence on Piano Key Weir Discharge Coefficients: A Preliminary Study. In Labyrinth and Piano Key Weirs III—PKW 2017; Erpicum, S., Laugier, F., Pfister, M., Pirotton, M., Cicero, G.-M., Schleiss, A.J., Eds.; CRC Press: London, UK, 2017. [Google Scholar]
- Laugier, F.; Pralong, J.; Blancher, B. Influence of Structural Thickness of Sidewalls on PKW Spillway Discharge Capacity. In Labyrinth and Piano Key Weirs—PKW 2011; Erpicum, S., Laugier, F., Pfister, M., Pirotton, M., Cicero, G.-M., Schleiss, A.J., Eds.; CRC Press: London, UK, 2011. [Google Scholar]
- Crookston, B.M. Labyrinth Weirs. All Graduate Theses and Dissertations, No. 802. Ph.D. Thesis, Utah State University, Logan, UT, USA, 2010. [Google Scholar]
- Cicero, G.M.; Delisle, J.R. Effects of the Crest Shape on the Discharge Efficiency of a Piano Key Weir. In Labyrinth and Piano Key Weirs II—PKW 2013; Erpicum, S., Laugier, F., Pfister, M., Pirotton, M., Cicero, G.-M., Schleiss, A.J., Eds.; CRC Press: London, UK, 2013. [Google Scholar]
- Shen, X.Y.; Oertel, M. Influence of Piano Key Weir Crest Shapes on Flow Characteristics, Scale Effects, and Energy Dissipation for In-Channel Application. J. Hydraul. Eng. 2023, 149, 04023010. [Google Scholar] [CrossRef]
- Laiadi, A.; Athmani, B.; Belaabed, F.; Ouamane, A. The Effect of the Geometric Shape of the Alveoli on the Performance of Piano Key Weirs. In Labyrinth and Piano Key Weirs III—PKW 2017; Erpicum, S., Laugier, F., Pfister, M., Pirotton, M., Cicero, G.-M., Schleiss, A.J., Eds.; CRC Press: London, UK, 2017. [Google Scholar]
- Pralong, J.; Montarros, F.; Blancher, B.; Laugier, F. A Sensitivity Analysis of Piano Key Weirs Geometrical Parameters Based on 3D Numerical Modeling. In Labyrinth and Piano Key Weirs—PKW 2011; Erpicum, S., Laugier, F., Pfister, M., Pirotton, M., Cicero, G.-M., Schleiss, A.J., Eds.; CRC Press: London, UK, 2011. [Google Scholar]
- Jayatillake, H.M.; Perera, K.T.N.; Wickramaarachchi, A. Adoption of a PKW spillway and inclined stepped energy dissipator at the Giritale reservoir, Sri Lanka. Hydropower Dams 2014, 21, 52–59. [Google Scholar]
- Shen, X.Y.; Oertel, M. Comparative study of nonsymmetrical trapezoidal and rectangular piano key weirs with varying key width ratios. J. Hydraul. Eng. 2021, 147, 04021045. [Google Scholar] [CrossRef]
- Laugier, F.; Pralong, J.; Blancher, B.; Montarros, F. Development of a New Concept of Piano Key Weir Spillway to Increase Low Head Hydraulic Efficiency: Fractal PKW. In Labyrinth and Piano Key Weirs—PKW 2011; Erpicum, S., Laugier, F., Pfister, M., Pirotton, M., Cicero, G.-M., Schleiss, A.J., Eds.; CRC Press: London, UK, 2011. [Google Scholar]
- Erpicum, S.; Archambeau, P.; Dewals, B.; Pirotton, M.; Tralli, H.; Alende, J. A Piano Key Weir to Improve the Discharge Capacity of the Oule Dam Spillway (France). In Labyrinth and Piano Key Weirs III—PKW 2017; Erpicum, S., Laugier, F., Pfister, M., Pirotton, M., Cicero, G.-M., Schleiss, A.J., Eds.; CRC Press: London, UK, 2017. [Google Scholar]
- Picaud, E. Ouvrages hydràuliques, Des solutions au goutte à goutte. Le Moniteur 2018, 51–54. [Google Scholar]
- Crookston, B.M.; Erpicum, S.; Tullis, B.P.; Laugier, F. Hydraulics of labyrinth and piano key weirs: 100 years of prototype structures, advancements, and future research needs. J. Hydraul. Eng. 2019, 145, 02519004. [Google Scholar] [CrossRef]
- Erpicum, S.; Archambeau, P.; Pirotton, M.; Dewals, B.J. Geometric Parameters Influence on Piano Key Weir Hydraulic Performances. In Proceedings of the 5th IAHR International Symposium on Hydraulic Structures, Brisbane, Australia, 25–27 June 2014. [Google Scholar]
- Schleiss, A. From Labyrinth to Piano Key Weirs—A Historical Review. In Labyrinth and Piano Key Weirs—PKW 2011; Erpicum, S., Laugier, F., Pfister, M., Pirotton, M., Cicero, G.-M., Schleiss, A.J., Eds.; CRC Press: London, UK, 2011. [Google Scholar]
- Ramanujan, S. Collected Papers of Srinivasa Ramanujan; Cambridge University Press: Cambridge, UK, 2015. [Google Scholar]
- Oertel, M.; Shen, X. 3D printing technique for experimental modeling of hydraulic structures: Exemplary scaled weir models. Water 2022, 14, 2153. [Google Scholar] [CrossRef]
- Denys, F.J.M.; Basson, G.R.; Strasheim, J.A.v.B. Fluid Structure Interaction of Piano Key Weirs. In Labyrinth and Piano Key Weirs III—PKW 2017; Erpicum, S., Laugier, F., Pfister, M., Pirotton, M., Cicero, G.-M., Schleiss, A.J., Eds.; CRC Press: London, UK, 2017. [Google Scholar]
- Lodomez, M.; Pirotton, M.; Dewals, B.; Archambeau, P.; Erpicum, S. Could Piano Key Weirs be Subject to Nappe Oscillations? In Labyrinth and Piano Key Weirs III—PKW 2017; Erpicum, S., Laugier, F., Pfister, M., Pirotton, M., Cicero, G.-M., Schleiss, A.J., Eds.; CRC Press: London, UK, 2017. [Google Scholar]
- Crookston, B.M.; Tullis, B.P. Hydraulic Characteristics of Labyrinth Weirs. In Labyrinth and Piano Key Weirs—PKW 2011; Erpicum, S., Laugier, F., Pfister, M., Pirotton, M., Cicero, G.-M., Schleiss, A.J., Eds.; CRC Press: London, UK, 2011. [Google Scholar]
- Vermeulen, J.; Lassus, C.; Pinchard, T. Design of a Piano Key Weir Aeration Network. In Labyrinth and Piano Key Weirs III—PKW 2017; Erpicum, S., Laugier, F., Pfister, M., Pirotton, M., Cicero, G.-M., Schleiss, A.J., Eds.; CRC Press: London, UK, 2017. [Google Scholar]
- Anderson, R.M.; Tullis, B.-P. Piano key weir: Reservoir versus channel application. J. Irrig. Drain. Eng. 2012, 138, 773–776. [Google Scholar] [CrossRef]
- Oertel, M.; Bremer, F. Analysis of Various Piano Key Weir Geometries Concerning Discharge Coefficient Development. In Proceedings of the 4th IAHR Europe Congress, Liege, Belgium, 27–29 July 2016. [Google Scholar]
- Machiels, O.; Erpicum, S.; Archambeau, P.; Dewals, B.J.; Pirotton, M. Piano Key Weirs, Experimental Study of an Efficient Solution for Rehabilitation. In Proceedings of the 8th International Conference on Flood and Urban Water Management, Wessex Institute of Technology, Southampton, UK, 6–8 July 2010. [Google Scholar]
- Hu, H.; Qian, Z.D.; Yang, W.; Hou, D.M.; Du, L. Numerical study of characteristics and discharge capacity of piano key weirs. Flow Meas. Instrum. 2018, 62, 27–32. [Google Scholar] [CrossRef]
- Breitschneider, H. Bauwerksmodelle: Abflussverhältnisse, Energieumwandlung, Erosion (in German); (Physical models: Discharge conditions, energy dissipation, erosion); Mitteilungsheft 4, D.V.W.W., Kobus, H., Eds.; German Technical and Scientific Association for Gas and Water: Bonn, Germany, 1978; pp. 195–216. [Google Scholar]
- Ettema, R. (Ed.) Hydraulic Modeling, Concepts and Practice; ASCE Manuals of Practice 97; Graz University of Technology: Graz, Austria, 2000. [Google Scholar]
- Hager, W.H.; Schwalt, M. Broad-crested weir. J. Irrig. Drain. Eng. 1994, 120, 13–26. [Google Scholar] [CrossRef]
- Pfister, M.; Battisacco, E.; De Cesare, G.; Schleiss, A.J. Scale Effects Related to the Rating Curve of Cylindrically Crested Piano Key Weirs. In Labyrinth and Piano Key Weirs II—PKW 2013; Erpicum, S., Laugier, F., Pfister, M., Pirotton, M., Cicero, G.-M., Schleiss, A.J., Eds.; CRC Press: London, UK, 2013. [Google Scholar]
Disclaimer/Publisher’s Note: The statements, opinions and data contained in all publications are solely those of the individual author(s) and contributor(s) and not of MDPI and/or the editor(s). MDPI and/or the editor(s) disclaim responsibility for any injury to people or property resulting from any ideas, methods, instructions or products referred to in the content. |
© 2023 by the authors. Licensee MDPI, Basel, Switzerland. This article is an open access article distributed under the terms and conditions of the Creative Commons Attribution (CC BY) license (https://creativecommons.org/licenses/by/4.0/).