Experimental Analysis on Pressure Fluctuation Characteristics of a Centrifugal Pump with Vaned-Diffuser
Abstract
1. Introduction
2. Experiment Bench
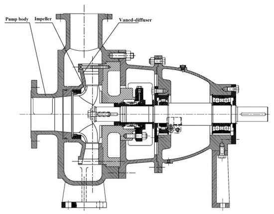
2.1. A Centrifugal Pump with a Vaned-Diffuser
2.2. Testing Bench
2.3. Location of Monitoring Points
- (1)
- 10 monitoring points P1–P10 were set on the pump chamber. Since the PF near the outlet of the pump is more complex, two monitoring points P7 and P9 were added near that zone.
- (2)
- Rotor-stator interference between the impeller and the vaned-diffuser and fluid turbulence flowing into the pump body will result in unsteady flow. So, 16 monitoring points, P11–P26, were set around the outer section of the pump body. These 16 monitoring points were divided into two circles. P19–P26 were located on the plane of the center line of the diffuser and the impeller. P11–P18 were in the symmetrical plane centered on the center line of the annular chamber of the pump body.
- (3)
- Pressure fluctuation near the outlet of the pump was larger, therefore we set up four monitoring points, P27–P30, uniformly around the outlet pipe.
3. Results Analysis
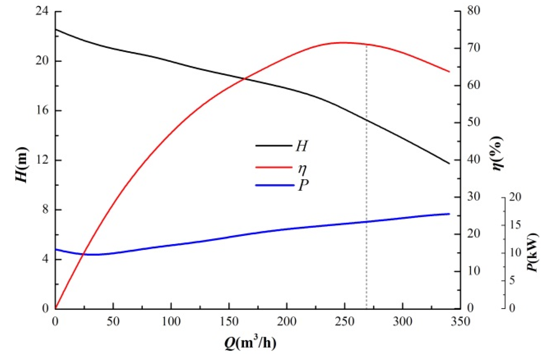
3.1. External Characteristics Analysis of the Pump
3.2. Measurement Results and Analysis of Pressure Fluctuation
3.2.1. Measurement Results and Analysis at P1–P10
3.2.2. Measurement Outcomes and Analysis at P11–P26
3.2.3. Measurement Results and Analysis at P27–P30
3.2.4. Analysis of Time and Frequency Distribution at Typical Measuring Points
4. Conclusions
- (1)
- The head of the pump with vaned-diffuser at the design flow rate reached 15.03 m, and the efficiency value of the pump with a vaned-diffuser at the design flow rate reached 71.47%.
- (2)
- Pressure fluctuation decreased gradually with the increasing distance from the impeller outlet. As the flow rate increased, the amplitude of PF decreased. It reached a minimum value at 1.0Qd or 1.2Qd and then increased as the flow continued to increase. The amplitude of pressure fluctuation around the pump diffusion segment was larger.
- (3)
- The variation of pressure fluctuation at P1–P10 followed the same trend. However, there were some wide frequency bands with different frequencies.
- (4)
- The dominant frequency of pressure fluctuation was the blade passing frequency and the main signal source of pressure fluctuation was from the rotor-stator interference, which was influenced from both the impeller and vaned-diffuser.
Author Contributions
Funding
Acknowledgments
Conflicts of Interest
References
- Wang, K.; Lu, X.; He, X.H. Experimental Investigation of Vibration Characteristics in a Centrifugal Pump with Vaned Diffuser. Shock Vib. 2018, 2018. [Google Scholar] [CrossRef]
- Wang, K.; Jing, Y.C.; He, X.H.; Liu, H.L. Efficiency Improvement and Evaluation of a Centrifugal Pump with Vaned Diffuser. Adv. Mech. Eng. 2019, 11, 1687814019825904. [Google Scholar] [CrossRef]
- Wang, K.; Lu, X.; Li, Y.; He, X.H.; Liu, H.L.; Kim, H.B. Performance Improvement of a Liquid Sodium Pump: Geometry Optimization and Experimental Verification. Symmetry 2019, 11, 423. [Google Scholar] [CrossRef]
- Guo, S.; Maruta, Y. Experimental Investigations on Pressure Fluctuations and Vibration of the Impeller in a Centrifugal Pump with Vaned Diffusers. JSME Int. J. Ser. B 2005, 48, 136–143. [Google Scholar] [CrossRef]
- Posa, A.; Lippolis, A. Effect of Working Conditions and Diffuser Setting Angle on Pressure Fluctuations within a Centrifugal Pump. Int. J. Heat Fluid Flow 2019, 75, 44–60. [Google Scholar] [CrossRef]
- Wang, W.J.; Pei, J.; Yuan, S.Q.; Yin, T.Y. Experimental Investigation on Clocking Effect of Vaned Diffuser on Performance Characteristics and Pressure Pulsations in a Centrifugal Pump. Exp. Therm. Fluid Sci. 2018, 90, 286–298. [Google Scholar] [CrossRef]
- Jiang, W.; Li, G.J.; Liu, P.F.; Fu, L. Numerical Investigation of Influence of the Clocking Effect on the Unsteady Pressure Fluctuations and Radial Forces in the Centrifugal Pump with Vaned Diffuser. Int. Commun. Heat Mass Flow 2016, 71, 164–171. [Google Scholar] [CrossRef]
- Shi, W.; Zhang, L.; Chen, B.; Jiang, T.; Zhang, H. The Influence of Centrifugal Pump Clearance on Pressure Pulsation and Radial Force. J. Drain. Irrig. Mach. Eng. 2012, 30, 260–264. [Google Scholar]
- Ke, Q.; Liu, X.; Ceng, Y. Influence of Splitter Blade Length on Pressure Pulsation and Radial Force of Centrifugal Pump. China Rural Water Hydropower 2016, 3, 135–138. [Google Scholar]
- Liu, Y.; Liang, R.D.; Jiang, Y.; Guo, M. Characteristic Analysis of Pressure Pulsation and Radial Force in Tongue and Shell of Single Volute Pump. J. Lanzhou Univ. Technol. 2014, 40, 51–55. [Google Scholar]
- Su, X.; Shi, Y.; Ying, Z.; Geng, P.; Guan, J. Effect of the Solid Concentration on the Pressure Fluctuation and the Radial Force of the Centrifugal Pump in Solid-liquid Two-phase Flow. Sci. Wealth 2015, 8, 1–3. [Google Scholar]
- Parrondo, J.; José, G.; Pérez, G.; Francos, J.F. The Effect of the Operating Point on the Pressure Fluctuations at the Blade Passage Frequency in the Volute of a Centrifugal Pump. J. Fluids Eng. 2002, 124, 784–790. [Google Scholar] [CrossRef]
- Barrio, R.; Parrondo, J.; Blanco, E. Numerical Analysis of the Unsteady Flow in the Near-tongue Region in a Volute-type Centrifugal Pump for Different Operating Points. Comput. Fluids 2010, 39, 859–870. [Google Scholar] [CrossRef]
- Solis, M.; Bakir, F.; Khelladi, S. Pressure Fluctuations Reduction in Centrifugal Pumps: Influence of Impeller Geometry and Radial Gap. In Proceedings of the ASME 2009 Fluids Engineering Division Summer Meeting, American Society of Mechanical Engineers Digital Collection, Vail, CO, USA, 2–6 August 2009; pp. 253–265. [Google Scholar]
- Gonzalez, J.; Parrondo, J.; Santolaria, C.; Blanco, E. Steady and Unsteady Radial Forces for a Centrifugal Pump with Impeller to Tongue Gap Variation. J. Fluids Eng. 2006, 128, 454–462. [Google Scholar] [CrossRef]
- Zhu, L.; Yuan, S.Q.; Yuan, J.P.; Pei, J. Numerical Simulation of the Influence of the Stepped Tongue on the Pressure Pulsation and the Radial Force of the Centrifugal Pump. J. Agric. Mach. 2010, 41, 21–26. [Google Scholar]
- Majidi, K. Numerical Study of Unsteady Flow in a Centrifugal Pump. J. Turbomach. 2004, 127, 805–814. [Google Scholar]
- Yang, M.; Min, S.M.; Wang, F.J. Numerical Simulation of the Pressure Pulsation Characteristics and the Impeller Radial Force of the Double Volute Pump. J. Agric. Mach. 2009, 40, 83–88. [Google Scholar]
- Zhao, W.G.; He, M.Y.; Qi, C.X.; Li, Y.B. Research on the effect of wear-ring clearances to the axial and radial force of a centrifugal pump. IOP Conf. Ser. Mater. Sci. Eng. 2013, 52, 072015. [Google Scholar] [CrossRef]
- Zhou, L.; Shi, W.; Li, W.; Agarwal, R. Numerical and Experimental Study of Axial Force and Hydraulic Performance in a Deep-well Centrifugal Pump with Different Impeller Rear Shroud Radius. J. Fluids Eng. 2013, 135, 749–760. [Google Scholar] [CrossRef]















| Category | Scope of Measurement | Output Signal | Precision | Operating Temperature |
|---|---|---|---|---|
| Parameter | 0–1 Mpa | 4–20 mA | 0.25% FS | −10–80 °C |
| Parameter | Flow Rate | Head | Speed | Pressure Fluctuations |
|---|---|---|---|---|
| Random uncertainty | ±0.03 | ±0.03 | ±0.02 | ±0.20 |
| Systematic uncertainty | ±0.21 | ±0.22 | ±0.10 | ±0.12 |
| Uncertainty | ±0.21 | ±0.22 | ±0.10 | ±0.24 |
| Standard | ±2.00 | ±1.5 | ±0.40 | ±3.6 |
© 2019 by the authors. Licensee MDPI, Basel, Switzerland. This article is an open access article distributed under the terms and conditions of the Creative Commons Attribution (CC BY) license (http://creativecommons.org/licenses/by/4.0/).
Share and Cite
Liu, H.; Xia, R.; Wang, K.; Jing, Y.; He, X. Experimental Analysis on Pressure Fluctuation Characteristics of a Centrifugal Pump with Vaned-Diffuser. Water 2020, 12, 126. https://doi.org/10.3390/w12010126
Liu H, Xia R, Wang K, Jing Y, He X. Experimental Analysis on Pressure Fluctuation Characteristics of a Centrifugal Pump with Vaned-Diffuser. Water. 2020; 12(1):126. https://doi.org/10.3390/w12010126
Chicago/Turabian StyleLiu, Houlin, Ruichao Xia, Kai Wang, Yucheng Jing, and Xianghui He. 2020. "Experimental Analysis on Pressure Fluctuation Characteristics of a Centrifugal Pump with Vaned-Diffuser" Water 12, no. 1: 126. https://doi.org/10.3390/w12010126
APA StyleLiu, H., Xia, R., Wang, K., Jing, Y., & He, X. (2020). Experimental Analysis on Pressure Fluctuation Characteristics of a Centrifugal Pump with Vaned-Diffuser. Water, 12(1), 126. https://doi.org/10.3390/w12010126

