Next Article in Journal
The Future of Drought in the Southeastern U.S.: Projections from Downscaled CMIP5 Models
Next Article in Special Issue
Disinfection of Escherichia coli by a Reactive Electrochemical Membrane System Involving Activated Carbon Fiber Cloth (ACFC)
Previous Article in Journal
Skeletal Deformity of Scoliosis in Gilthead Seabreams (Sparus aurata): Association with Changes to Calcium-Phosphor Hydroxyapatite Salts and Collagen Fibers
 
 
Font Type:
Arial Georgia Verdana
Font Size:
Aa Aa Aa
Line Spacing:
Column Width:
Background:
Article

Comparison of Different Bacteria Inactivation by a Novel Continuous-Flow Ultrasound/Chlorination Water Treatment System in a Pilot Scale

School of Chemistry and Chemical Engineering, South China University of Technology, Guangzhou 510000, China
*
Author to whom correspondence should be addressed.
Water 2019, 11(2), 258; https://doi.org/10.3390/w11020258
Submission received: 10 November 2018 / Revised: 24 January 2019 / Accepted: 29 January 2019 / Published: 2 February 2019
(This article belongs to the Special Issue Water Disinfection: Safe Water for All)

Abstract

:
The existing traditional drinking water disinfection technology relies mainly on chlorine disinfection alone, which has high disinfection efficiency and can effectively inactivate most of the microorganisms in the water. However, it produces a series of harmful disinfection by-products (DBPs). Therefore, it is very necessary to study an efficient and environmentally friendly disinfection technology for drinking water. For this purpose, a novel continuous-flow ultrasound (US)/chlorination water treatment system was designed and developed. Escherichia coli (E. coli), Bacillus subtilis (B. subtilis), and Staphylococcus aureus (S. aureus) were selected as indicators of water treatment effects to (1) investigate the disinfection effects of different bacteria by US treatment alone at different single or dual frequencies; (2) explore the disinfection effects of US pretreatment with 8 mg/L NaClO on different bacteria to assess the promoting effects of US pretreatment; and (3) identify the optimum system process to satisfy the national standard for drinking water quality. Results showed that the dual-frequency US had better inactivation effects compared with single-frequency US, although it could not achieve an ideal disinfection level (complete disinfection). Further, 17 + 33 kHz dual-frequency US pretreatment had obvious enhancement of the disinfection efficiency, where 3.85 (E. coli), 3.65 (S. aureus), and 3.52 (B. subtilis) log reduction were achieved when 8 mg/L NaClO disinfection lasted 10 min, and finally all three bacteria achieved 4 log reduction after 30 min. Moreover, the treated water satisfied the Chinese national standard for drinking water quality, in which the residual chlorine concentration was below 4 mg/L. The utilization efficiency of disinfectant was improved approximately 40% by 17 + 33 kHz US pretreatment.

1. Introduction

Water is considered as the indispensable and the most important substance for human survival and development. Human health is closely correlated with water quality. Thus, if water was contaminated by microorganisms, various deadly diseases could be spread among humans, causing human disaster. The statistics of the World Health Organization (WHO) suggested that at least five thousand people around the world die of diarrhea diseases caused by water pollution each day [1]. Therefore, the disinfection of drinking water plays a critical role in the prevention and the control of waterborne diseases. At present, the vast majority of water treatment plants still use traditional water treatment technology of coagulation, sedimentation, filtration, and chlorine disinfection. However, with the increasing pollution of water bodies, the appearance of some chlorine-tolerant microorganisms leads to the need for higher chlorine content or longer disinfection time during water treatment. This results in the increased formation of carcinogens like chloroform and chlorophenol, causing possible public health risks [2,3,4]. Moreover, certain bacteria tend to form bacterial aggregates in the water. Thus, the chlorination disinfection method can only inactivate bacteria on agglomerate surfaces, while the bacteria in innermost areas remain intact [5]. For this reason, researchers are committed to looking for safer and more superior disinfection methods to replace or improve the traditional chlorine disinfection technology.
Since the 1970s, various advanced water treatment technologies have emerged, e.g., ozonation, ultraviolet (UV) irradiation, photo-catalytic disinfection, and cavitation disinfection [6,7,8,9]. At present, some water treatment plants have already introduced new disinfection technologies. However, the chlorine disinfection method is difficult to completely replace in the short term since the operating costs of other disinfection technologies are too expensive, the operation steps are too complicated, and the disinfection effect is not as good as that of the traditional chlorine disinfection method. Therefore, it is important to improve the current method of chlorine disinfection, thereby reducing the dosage of chlorine used on the basis of the guaranteed disinfection efficiency. To avoid the disadvantages of the current chlorine disinfection techniques, there has been much research reporting on combining multiple technologies for disinfection, in particular, the combination of physical and chemical disinfection methods. For example, chlorine dioxide or ozone have been combined with UV or ultrasound (US) [10,11,12,13,14]. K.K. Jyoti et al. [15] studied the disinfection effects of hybrid technologies, which included acoustic cavitation, hydrodynamic cavitation, and treatment with chemicals (e.g., hydrogen peroxide and ozone). Results showed that a disinfection efficiency over 90% was achievable by combining acoustic cavitation, hydrodynamic cavitation, and hydrogen peroxide. Hybrid technologies are far superior to any individual physical treatment technology for water treatment. By using these hybrid technologies, the generation of poisonous by-products can be significantly reduced.
Ultrasonication, an environmentally-friendly technology producing no by-products, has gained much attention since the use of ultrasonic techniques was proposed for bacteria inactivation [16]. Most researchers hold that the disinfection effects of US treatment result from acoustic cavitation, which leads to chemical, mechanical, and heat effects. Acoustic cavitation can produce shear forces, shock waves, and micro-jettings; meanwhile, it can release large amounts of energy and generate highly reactive radicals (H· and OH·) as well as strongly oxidant hydrogen peroxide (H2O2), which are enough to damage bacteria [17]. However, using US treatment alone is not only difficult to ensure the complete disinfection, but also needs to consume huge amount of electricity for large-scale disinfection treatment [5,18]. Thus, it is necessary to research the combined technology of US and other technologies in water disinfection.
Based on previous research, the combination of US with chlorine compounds (namely, chloramine, chlorine dioxide, and hypochlorite) can reduce the dosage of chlorine as compared to using chlorine disinfection alone at the same disinfection efficiency. Besides, it can reduce or prevent the formation of disinfection by-products [3]. Although bacteria inactivation through the combined technology of chlorination and US has received extensive attention and many related experiments have been conducted, the majority of the experiments were conducted in laboratory environments with single-frequency US in a batch process [19]. Besides, the previous research primarily investigated only one species of bacteria [4,20]. There has been no study on water disinfection against different bacteria in a pilot scale under the conditions of dual-frequency US and continuous flow. Thus, three species of bacteria with different shapes and cell walls, namely Escherichia coli (E. coli), Staphylococcus aureus (S. aureus), and Bacillus subtilis (B. subtilis), were selected for investigation. E. coli is a type of rod-shaped, gram-negative bacterium, commonly existing in the feces of animals and humans. If E. coli is found in the water, this means that the water may have been contaminated. Thus, it is usually selected as a microbial indicator in wastewater treatment plants in China. S. aureus is a type of gram-positive coccus, which is ubiquitous in the environment and capable of producing digestive diseases by the secretion of staphylococcal enterotoxins [21]. Thus, S. aureus is usually studied in drinking water treatment [22]. B. subtilis is a type of rod-shaped, gram-positive bacterium that can form endospores to protect itself from inactivation, showing resistance to common disinfection methods. Since B. subtilis has similar characteristics to Cryptosporidium, it often serves as an indicator of Cryptosporidium to evaluate the disinfection efficiency [23,24]. Adding another frequency with extra transducers, the size and lifetime of cavitation bubble increase significantly with a relatively slight decrease in the collapse temperatures and pressures. Hence, the dual-frequency reactors can exert better control over the cavitation activity and also increase the effective cavitation-active volume of the reactor as compared to single-frequency reactors [25].
In this paper, a novel continuous-flow US/chlorination water treatment system was developed and tested at a pilot scale. The aims of this study were (1) to investigate the effects of US treatment on different bacteria; (2) to assess the disinfection effects of the system on different bacteria by the pretreatment of ultrasound; and (3) to find the system optimum operation conditions that could satisfy the Chinese standard for drinking water quality (GB 5749-2006) in terms of the residual chlorine concentration (below 4 mg/L) and complete disinfection (pathogenic microorganism were not detected).

2. Materials and Methods

2.1. Preparation of Simulated Water Samples

Bacterial strains of E. coli (CMCC 44825), S. aureus (ATCC 29213), and B. subtilis (CMCC 63501) were supplied from the School of Biology and Biological Engineering, South China University of Technology, Guangdong Province, China (purchased from Guangzhou Testing Center of Industrial Microbiology, Guangzhou, China). The 1 mL of bacterial strains stored at −80 °C was incubated overnight at 37 °C in a nutrient agar plate with the spread method. After incubation, a loop of bacteria was inoculated into 50 mL of nutrient broth and then incubated in an air bath shaker incubator overnight (37 °C and 200 rpm for 12 h) to prepare the bacterial suspensions. Subsequently, according to national standard methods, it was directly inoculated into tap water (the total number of colonies was about 80 CFU/mL and the residual chlorine concentration was about 0.7 mg/L) without washing out the culture medium to obtain a bacterial concentration of about 104 CFU/mL [26]. Three different simulated water were used, namely simulated water separately containing E. coli, S. aureus, and B. subtilis. Finally, the pH of the water sample was adjusted to between 7.4 and 7.6.

2.2. The Continuous-Flow Ultrasound/Chlorination Water Treatment System

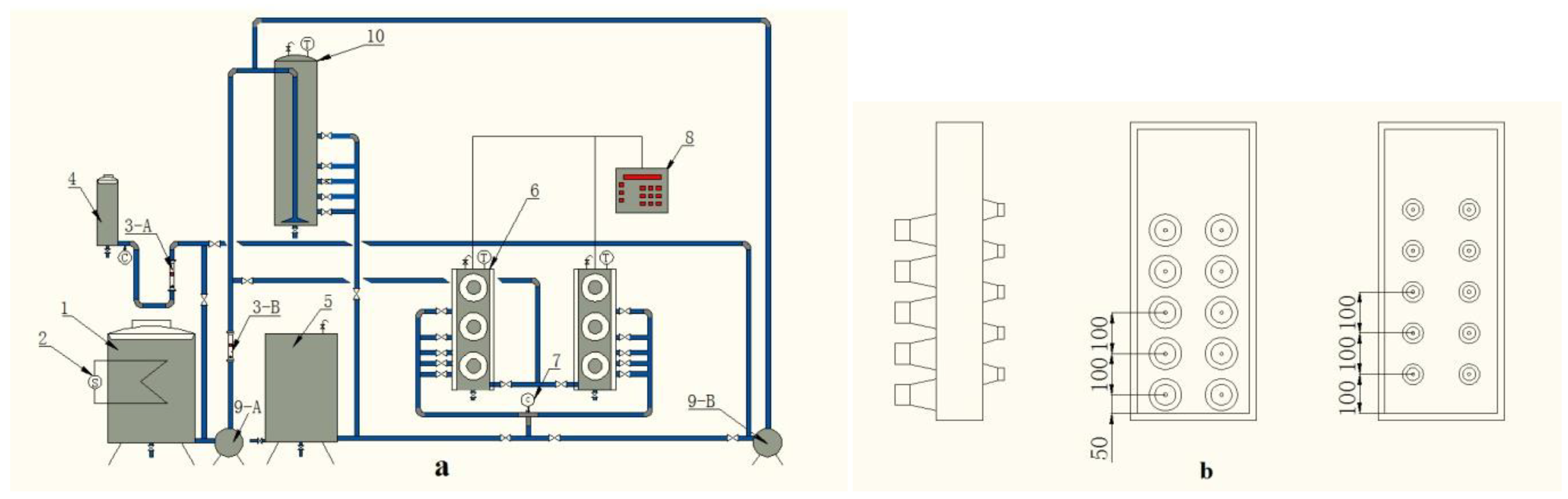
A self-designed and manufactured continuous-flow water treatment system is illustrated in Figure 1a. The system primarily consists of a 50 L container for untreated water, chlorination reactor, treated water container, ultrasonic reactor, centrifugal pumps, chemical disinfectant container, as well as a rotameter. All materials are stainless steel, and each part is connected by pipes. Different disinfection processes can be selected by adjusting ball valves, including US treatment alone, chlorine disinfection alone, or a combination of US and chlorine.
The ultrasonic reactor was a flow cell with rectangular shape (length × width × height = 0.22 m × 0.12 m × 0.70 m), installed with a jacket for temperature control. Each ultrasonic reactor was equipped with ultrasonic transducers of two different frequencies (reactor I: 17, 33 kHz, reactor II: 70, 100 kHz). Each group of ultrasonic transducers mounted on the reaction reactor wall was controlled independently by a switch. Thus, the ultrasonic reactor could work at single or dual-frequencies. The input power of ultrasonic transducers was adjustable in the range of 0 to 350 W. In order to minimize the region of inactive ultrasound and improve the uniform distribution of energy to the largest extent, ultrasonic transducers were installed on both sides of each ultrasonic reactor in a non-concentric manner, as shown in Figure 1b. Moreover, the designed ultrasonic frequencies satisfied the condition that the distance between the reflecting face and vibration source was the integer multiple of the ultrasonic half wavelength. Thus, the propagation of US was vertical to water flow direction, leading to a strong transverse mixing of the reactants instead of convective mixing, and forming a reverberant ultrasound field that was steadier and with a greater-range distribution of sound energy.
A jet impact mixer was mounted on the chlorination reactor. The high-energy liquid flowing from the centrifugal pump was injected into the bottom of the tank by the jet impact mixer at a higher speed, making the chemicals disperse evenly and contact with the water fully, increasing the mass transfer effects. As a result, the amounts of chemical reagents and the reaction time were reduced. Moreover, exposure time was regulated by selecting the outlet ball valve at different heights from the reactor bottom.

2.3. Experimental Procedures

In this study, the disinfection efficiency on E. coli, S. aureus, and B. subtilis was compared to evaluate the continuous-flow US/chlorination water treatment system. The experiments were conducted in two ways, namely by US treatment alone, and by the combination of ultrasound pretreatment and NaClO processing. Furthermore, the optimum operation conditions of the continuous-flow US/chlorination water treatment system were determined. All experiments were performed at least in triplicate.

2.3.1. US Treatment

The effects of US treatment alone on the inactivation ratios of three bacteria were investigated. For US treatment alone, the simulated water sample was delivered into the ultrasonic reactor at flow rate 30 L/h from the untreated water container by centrifugal pump, and then the disinfection processes were carried out at different single frequencies (namely, 17 kHz, 33 kHz, 70 kHz, and 100 kHz) and dual-frequencies (17 + 33 kHz, 70 + 100 kHz), respectively. Samples of 100 mL were taken from the ultrasonic reactor exit during US treatments of different periods of time (t = 5, 10, 15, 20, 30, 40, 50, 60 min) and then analyzed by the plate counting method with a nutrient agar plate. A series of experiments were carried out at the power density of 20 W/L.

2.3.2. The Combination of US Pretreatment and NaClO Processing

The inactivation ratios of US pretreatment followed by NaClO (8 mg/L) at different single and dual-frequencies mentioned above (17 + 33 kHz, 70 + 100 kHz) for three species of bacteria were evaluated, respectively. Simulated water was pretreated with US with single or dual frequency at the ultrasonic reactor for 10 min and then flowed into the chlorination reactor with rationed NaClO, in which chemical disinfection took place. NaClO (8 mg/L) disinfection alone was carried out as a series of control experiments. All experiment samples were brought out from the outlet valves of the chlorination reactor during chlorination for a period of time (t = 5, 10, 15, 20, 30 min). The experimental conditions were disinfectant flow rate of 30 mL/min, water flow rate of 30 L/h, and input ultrasound power density of 20 W/L.

2.3.3. The Optimum Disinfection Conditions

In order to find the optimum disinfection conditions of the continuous-flow ultrasound/chlorination water treatment system that could satisfy the national standards for drinking water, the most effective disinfection process was selected according to the above experimental results to study the effects of different power densities (15, 20, 25, 30 W/L) and initial chlorine concentrations (2, 4, 6, 8, 10 mg/L) on disinfection efficiency, and the residual chlorine concentrations.

2.4. Analytical Methods

2.4.1. Microorganism Inactivation Analysis

The initial concentration of NaClO was determined by the iodometric method. The residual chlorine’s concentration was measured with the method of N,N-Diethyl-p-phenylenediamine spectrophotometry according to the Chinese national standard GB/T 5750.11-2006. All the mentioned NaClO dosages were the average available chlorine (free chlorine) contents.
After the disinfection experiments, the samples were taken from the outlet valve, and immediately one drop (~0.05 mL) 0.1 mol/L Na2S2O3 was added to terminate the reaction. Subsequently, the plate counting method was used to count the number of viable bacteria. Then 1 mL of each sample was serially diluted 1:10 with 0.9% sterile saline solution to appropriate concentrations, and then each 0.1 mL diluted sample was added on a dried aseptic nutrient agar plate. The same batch of medium plates without bacteria inoculation were set as a negative control group. Plates were incubated at 37 °C for 24 h under atmospheric conditions and the number of colony forming units were calculated based on standard methods (the detection limits of bacteria are 0–150 CFU/mL). Bacteria quantity in the original sample was calculated by:
N = n ¯ × d i × 10
where N denotes the quantity of total colonies (CFU/mL); d i denotes the dilution factor; and n ¯ denotes the mean quantity of colonies for a dilution.
Each sample was carried out in triplicate, and their average value was used as the final result. The inactivation ratio took the form of log(N0/N), where N0 denotes the quantity of available microorganism before the disinfection treatment.

2.4.2. Statistical Analysis

Statistical analysis was done with the SPSS Statistics software v22 (IBM Co., Armonk, NY, USA). All experimental data were analyzed using analysis of variance (ANOVA) or Tukey test. Probability values (p-values) < 0.05 were considered statistical significance.

3. Results and Discussion

3.1. US Treatment of Bacteria

3.1.1. Disinfection Efficiency of Single-Frequency US

The inactivation ratios of different bacteria were investigated at different single-frequency US, and the results are shown in Figure 2. A maximum of 1.65 (70 kHz), 1.44 (17 kHz), and 1.24 (17 kHz) log reductions were achieved after 60 min US treatment for E. coli, S. aureus, and B. subtilis, respectively. Overall, single-frequency US treatment alone could not achieve an ideal disinfection level. As can be seen in Figure 2, the log reduction was very small in the first 10 min of US treatment. However, the log reduction began to grow rapidly after 15 min of US treatment, then growth remained steady after 20 min (p < 0.05). It is likely that the energy produced by US was mainly used to disperse or break bacterial aggregates in a short initial time, so the disinfection effect was poor. It is noteworthy that there had been a slight decrease in the log inactivation ratio in the first 5 min of US treatment for S. aureus and B. subtilis, and the decrease in log inactivation ratio was higher at a lower frequency than at a higher frequency. This is likely because both S. aureus and B. subtilis are gram-positive bacteria and their cell walls are thicker than the gram-negative ones; moreover, the lower frequency US can generate larger cavitation bubbles, which results in higher energy released to disperse the bacterial aggregates, but not enough to damage S. aureus and B. subtilis in a short period of time [20]. Thus, the increase in bacterial number and the log reduction presented negative growth in the initial stage of US treatment. Conversely, the higher frequency US can generate not only mechanical shear forces but also more free radicals (H· and OH·) and strong bactericide H2O2 than lower frequency US [4]. Thus, the disinfection efficiency of S. aureus and B. subtilis was higher in the first 10 min at higher frequencies (70 kHz, 100 kHz) US treatment compared with that at lower frequencies (17 kHz, 33 kHz). However, the disinfection efficiency of low-frequency was gradually higher than that of high-frequency over time. This was due to the decrease in mechanical effects generated by the acoustic cavitation with increasing frequency. A noteworthy fact is that the disinfection effects increased first and then decreased with the increasing ultrasound frequency for E. coli. However, the disinfection effects of S. aureus and B. subtilis both were reduced with the increase of frequency. This suggests that the disinfection effects of E. coli were mainly dependent on the joint action of mechanical and chemical effects generated by the acoustic cavitation but mainly on mechanical effects for S. aureus and B. subtilis.

3.1.2. Disinfection Efficiency of Dual-Frequency US

Figure 2 presents the results of dual-frequency US treatment alone at different frequencies (17 + 33 kHz, 70 + 100 kHz). It can be seen from the figure that higher disinfection efficiency was achieved at dual-frequency US compared with the corresponding single-frequency US (p < 0.05). However, the disinfection efficiency of the combination of 70 + 100 kHz dual-frequency was still lower than the disinfection efficiency of 17 kHz and 33 kHz single-frequency for S. aureus and B. subtilis. This was because although dual-frequency US can produce uniform cavitation, the mechanical effects generated by the combination of high-frequency were still less than lower single-frequency US. After the dual-frequency US treatment of 17 + 33 kHz for 60 min, 2.13, 1.72, and 1.54 log reductions were finally achieved for E. coli, S. aureus, and B. subtilis, respectively, which were increased by 10.8%, 38.7% and 55.8%, respectively, compared with the situation of 70 + 100 kHz dual-frequency US treatment. This is attributed to the fact that the combination of 17 + 33 kHz could obtain more of the cavitational yield and generate stronger mechanical effects compared with the combination of 70 + 100 kHz. Moreover, more negative growth of log inactivation ratios was observed at dual-frequency compared with single frequency in the first 5 min US treatment for S. aureus and B. subtilis. This was because the use of multiple frequency US irradiating sources could achieve more uniform and intensive cavitation in comparison with the use of single frequency US sources [28]; moreover, more free radicals (H· and OH·), strong bactericide H2O2, and stronger shear forces were generated by dual-frequency US. According to the previous study, the energy efficiencies of cavitational conversion generated by a dual-frequency operation is approximately four times that of a single-frequency operation under the same conditions [25]. Although dual-frequency US could increase disinfection efficiency, it still could not achieve complete disinfection alone, namely 4 log (initial bacterial concentration of about 104 CFU/mL) based on the requirements of the Chinese national standard GB 5749-2006.

3.2. US Pretreatment of Bacteria

As mentioned above, it is hard to satisfy the requirement of inactivation by US treatment alone. Thus, the disinfection effects of US pretreatment combined with chlorination disinfection with 8 mg/L NaClO on different bacteria under different frequencies were investigated. Figure 3 shows the inactivation ratio of E. coli, S. aureus, and B. subtilis during NaClO disinfection after US pretreatment of different frequencies, respectively. Compared with the results of the control group (8 mg/L NaClO), all results indicate that the inactivation rate of the three species of bacteria had been obviously improved with US pretreatment (p < 0.05). It can be seen from Figure 3 that the log inactivation ratios slowly increased at the initial stage of NaClO disinfection alone for E. coli, S. aureus, and B. subtilis, namely there was a lag phase [27]. It is likely that due to the formation of bacterial aggregates in the water, NaClO could only destroy bacteria on cluster surfaces but the bacteria in the innermost areas remained intact. Furthermore, it is widely considered that B. subtilis can form spores to protect bacterial inner core area from being damaged, and they are inactivated only after the outer layer of the spore has been damaged to a certain degree. Therefore, B. subtilis has a longer disinfection lag phase as compared to E. coli and S. aureus. However, after 10 min of US pretreatment, the log inactivation ratio rapidly increased at the initial stage of NaClO disinfection (p < 0.05), in which 3.41, 3.24, and 3.04 log reductions were achieved when NaClO disinfection lasted 10 min for E. coli, S. aureus, and B. subtilis, respectively (17 kHz US pretreatment). This was due to the fact that the mechanical effects generated by the acoustic cavitation were able to disperse the bacterial aggregates and enhance the cell walls’ permeability resulting in NaClO easily entering the bacterial interior. The log inactivation ratio finally achieved 3.84, 3.78, and 3.67 by 17 kHz US pretreatment for E. coli, S. aureus, and B. subtilis, respectively, and increased 1.43, 1.73, and 1.92 in log reduction compared with the control experiments, respectively.
In the case of dual-frequency US pretreatment, similar results were obtained. The log inactivation ratios started at rapid growth pace at the beginning of chlorine reaction, and increased compared with the situation of corresponding single-frequency radiation, respectively (p < 0.05). Moreover, 3.85, 3.65, and 3.52 log inactivation ratios were achieved when NaClO disinfection lasted 10 min for E. coli, S. aureus, and B. subtilis, respectively (17 + 33 kHz US pretreatment). As indicated above, dual-frequency US could generate more uniform and intense cavitation. Additionally, it could easily disperse bacterial aggregates and break cell walls, which contributed to the rates of mass transfer of chemical disinfectants. Thus, more bacteria were inactivated by chlorine disinfectant and higher inactivation ratios were obtained in a short period of time, so the lag phase was shortened. In addition, because the combination of lower frequencies could release higher energy to generate stronger mechanical effects, 17 + 33 kHz US pretreatment with NaClO disinfection showed better disinfection effects than the situation of 70 + 100 kHz US pretreatment. However, the mechanical effects generated by 70 + 100 kHz dual-frequency US were less than 17 kHz and 33 kHz single-frequency US, so the effect of dispersing bacterial aggregates and disinfection efficiency were lower than 17 kHz and 33 kHz single-frequency US. All results showed that the log inactivation ratios of 4 were finally achieved by 17 + 33 kHz dual-frequency US pretreatment and the log inactivation ratios of E. coli, S. aureus, and B. subtilis increased 1.63, 1.98, and 2.32 compared with the control group of 8 mg/L NaClO, respectively.

3.3. Optimization Operation

Based on the above results, the 17 + 33 kHz dual-frequency US pretreatment was employed by coupling with 8 mg/L NaClO processing, and it showed the most effective disinfection efficiency. Thus, this combination was selected to investigate the effects of different ultrasound power densities and initial chlorine concentration on disinfection effects, and the results are presented and discussed in the following section.

3.3.1. Effect of Input Power Density on Disinfection Efficiency

The inactivation ratios of E. coli, S. aureus, and B. subtilis in combining 10 min NaClO disinfection with US pretreatment with different input power density were tested. The testing results are displayed in Figure 4. The results indicated that the log inactivation ratios were the lowest with US pretreatment at an input power density of 15 W/L. This was due to the fact that bacterial aggregates could not be completely dispersed or broken in a short period of time with a lower US input power density. Thus, as US input power density increased, the inactivation effect was remarkably improved under the same reaction time (p < 0.05). However, when US input power density increased from 20 W/L to 30 W/L, the disinfection efficiency of the three bacteria did not change significantly (p > 0.05). This was likely due to the fact that the cavitation bubbles grew too large to be timely compressed to collapse under a larger US input power density, resulting in a weaker cavitation effect; moreover, a large number of cavitation bubbles were generated, which resulted in the fact that acoustic scattering attenuation was enhanced, and the effective utilization rate of sound waves was reduced. Thus, when US pretreatment input power density was 20 W/L, it could not only guarantee the disinfection effect, but also saved power consumption and cost. In the subsequent experiments, the power density of 20 W/L was selected as the test condition.

3.3.2. Chlorine Consumption

The effects of chlorine dosages on disinfection efficiencies of the three bacteria were also investigated in this study. Figure 5 shows the inactivation ratios of E. coli, S. aureus, and B. subtilis (NaClO disinfection of 30 min) at different NaClO dosages. Overall, the inactivation effects were obviously enhanced with the increase in NaClO dosage (p < 0.05). For E. coli and S. aureus, the log reduction reached up to 4 with the NaClO dosage of 6 mg/L. However, the NaClO dosage of 8 mg/L was required to achieve a 4 log reduction for B. subtilis. The reason for this was that B. subtilis could form spores to protect itself, resulting in the increase in the dosage of chlorine required. Thus, the concentration of residual chlorine (after 30 min NaClO disinfection) at 8 mg/L NaClO was determined and then compared with the control group (chlorine disinfection alone). The results are shown in Figure 6. As can be seen from the figure, the residual chlorine concentration in treated water could satisfy the requirements of the Chinese national standard GB 5749-2006 (below 4 mg/L) (the health-based guideline value recommended by the WHO is 5 mg/L [29]) with 17 + 33 kHz dual-frequency US pretreatment. Furthermore, the effective utilization rate of disinfectant was obviously improved compared with that of the control group (p < 0.05). In summary, the optimum disinfection operation is 17 + 33 kHz dual-frequency US pretreatment with 8 mg/L NaClO at 20 W/L.

4. Conclusions

The disinfection efficiency on E. coli, S. aureus, and B. subtilis was compared in the novel water disinfection system that combines US with chlorination in a pilot scale. The optimum disinfection operation of system was investigated. The results indicate that neither single-frequency nor dual-frequency US treatment alone could achieve an ideal disinfection level. However, dual-frequency US could produce uniform and intensive cavitation in comparison with the corresponding single-frequency US, which was more conducive to dispersing the bacterial aggregates and enhancing cell wall permeability. After US pretreatment, the lag phase of chlorination disinfection was obviously shortened, and the disinfection efficiency was significantly improved. In addition, the optimum disinfection efficiency was shown in the combination of 17 + 33 kHz dual-frequency US pretreatment and 8 mg/L NaClO. All results could obtain the inactivation ratio of 4 log reduction within 40 min exposure time, namely almost complete disinfection. Moreover, all the treated water could satisfy the requirements of Chinese national standard GB 5749-2006 in terms of the residual chlorine concentration (below 4 mg/L). Furthermore, US pretreatment could obviously increase the effective utilization rate of disinfectant by 42.6% (E. coli), 39.4% (S. aureus), and 40.1% (B. subtilis) compared with that using NaClO disinfection alone, respectively. Optimum conditions of the system were 17 + 33 kHz dual-frequency ultrasound pretreatment and 8 mg/L NaClO with an input power density of 20 W/L for a 10 min reaction.
In summary, this study indicates that the application of a continuous-flow water treatment system combined with US pretreatment and NaClO disinfection is promising. However, further research is needed on the formation of disinfection by-products and effect of chlorination on the formation of disinfection by-products to fully assess the application prospects of US.

Author Contributions

H.Z. and H.T. designed the experiments and analyzed the data; H.Z designed and provided experiment equipment; H.Z. wrote the article; H.T. reviewed and edited the article.

Funding

This research was funded by the Department of Science and Technology of Guangdong Province of China (2013B020800004).

Acknowledgments

We acknowledge the financial support from the Department of Science and Technology of Guangdong Province of China.

Conflicts of Interest

The authors declare no conflicts of interest.

References

  1. World Health Organization. Water for Life: Making It Happen; World Health Organization: Geneva, Switzerland, 2005. [Google Scholar]
  2. Drakopoulou, S.; Terzakis, S.; Fountoulakis, M.S.; Mantzavinos, D.; Manios, T. Ultrasound-induced inactivation of gram-negative and gram-positive bacteria in secondary treated municipal wastewater. Ultrason. Sonochem. 2009, 16, 629–634. [Google Scholar] [CrossRef] [PubMed]
  3. Zhou, X.; Zhao, J.; Li, Z.; Song, J.; Li, X.; Yang, X.; Wang, D. Enhancement effects of ultrasound on secondary wastewater effluent disinfection by sodium hypochlorite and disinfection by-products analysis. Ultrason. Sonochem. 2016, 29, 60–66. [Google Scholar] [CrossRef] [PubMed]
  4. Gao, S.; Hemar, Y.; Ashokkumar, M.; Paturel, S.; Lewis, G.D. Inactivation of bacteria and yeast using high-frequency ultrasound treatment. Water Res. 2014, 60, 93–104. [Google Scholar] [CrossRef] [PubMed]
  5. Phull, S.S.; Newman, A.P.; Lorimer, J.P.; Pollet, B.; Mason, T.J. The development and evaluation of ultrasound in the biocidal treatment of water. Ultrason. Sonochem. 1997, 4, 157–164. [Google Scholar] [CrossRef]
  6. Choi, Y.; Cho, M.; Lee, Y.; Choi, J.; Yoon, J. Inactivation of Bacillus subtilis spores during ozonation in water treatment plant: Influence of pre-treatment and consequences for positioning of the ozonation step. Chemosphere 2007, 69, 675–681. [Google Scholar] [CrossRef] [PubMed]
  7. Amin, M.M.; Hashemi, H.; Bina, B.; Attar, H.M.; Farrokhzadeh, H.; Ghasemian, M. Pilot-scale studies of combined clarification, filtration, and ultraviolet radiation systems for disinfection of secondary municipal wastewater effluent. Desalination 2010, 260, 70–78. [Google Scholar] [CrossRef]
  8. Aguas, Y.; Hincapie, M.; Fernandez-Ibanez, P.; Polo-Lopez, M.I. Solar photocatalytic disinfection of agricultural pathogenic fungi (Curvularia sp.) in real urban wastewater. Sci. Total Environ. 2017, 607, 1213–1224. [Google Scholar] [CrossRef]
  9. Kosel, J.; Gutierrez-Aguirre, I.; Racki, N.; Dreo, T.; Ravnikar, M.; Dular, M. Efficient inactivation of Ms-2 virus in water by hydrodynamic cavitation. Water Res. 2017, 124, 465–471. [Google Scholar] [CrossRef]
  10. Wang, D.; Bolton, J.R.; Andrews, S.A.; Hofmann, R. Formation of disinfection by-products in the ultraviolet/chlorine advanced oxidation process. Sci. Total Environ. 2015, 518, 49–57. [Google Scholar] [CrossRef]
  11. Zhang, X.R.; Li, W.G.; Blatchley, E.R.; Wang, X.J.; Ren, P.F. UV/Chlorine process for ammonia removal and disinfection by-product reduction: Comparison with chlorination. Water Res. 2015, 68, 804–811. [Google Scholar] [CrossRef]
  12. Koivunen, J.; Heinonen-Tanski, H. Inactivation of enteric microorganisms with chemical disinfectants, UV irradiation and combined chemical/UV treatments. Water Res. 2005, 39, 1519–1526. [Google Scholar] [CrossRef] [PubMed]
  13. Lakeh, A.A.B.; Kloas, W.; Jung, R.; Ariav, R.; Knopf, K. Low frequency ultrasound and UV-C for elimination of pathogens in recirculating aquaculture systems. Ultrason. Sonochem. 2013, 20, 1211–1216. [Google Scholar] [CrossRef] [PubMed]
  14. Ayyildiz, O.; Sanik, S.; Ileri, B. Effect of ultrasonic pretreatment on chlorine dioxide disinfection efficiency. Ultrason. Sonochem. 2011, 18, 683–688. [Google Scholar] [CrossRef] [PubMed]
  15. Jyoti, K.K.; Pandit, A.B. Effect of cavitation on chemical disinfection efficiency. Water Res. 2004, 38, 2249–2258. [Google Scholar] [CrossRef] [PubMed]
  16. Harvey, E.N.; Loomis, A.L. The destruction of luminous bacteria by high frequency sound waves. J. Bacteriol. 1929, 17, 373–376. [Google Scholar] [PubMed]
  17. Ashokkumar, M. The characterization of acoustic cavitation bubbles—An overview. Ultrason. Sonochem. 2011, 18, 864–872. [Google Scholar] [CrossRef] [PubMed]
  18. Joyce, E.; Phull, S.S.; Lorimer, J.P.; Mason, T.J. The development and evaluation of ultrasound for the treatment of bacterial suspensions. A study of frequency, power and sonication time on cultured Bacillus species. Ultrason. Sonochem. 2003, 10, 315–318. [Google Scholar] [CrossRef]
  19. Zhou, X.; Zhao, J.; Li, Z.; Lan, J.; Li, Y.; Yang, X.; Wang, D. Influence of ultrasound enhancement on chlorine dioxide consumption and disinfection by-products formation for secondary effluents disinfection. Ultrason. Sonochem. 2016, 28, 376–381. [Google Scholar] [CrossRef]
  20. Gao, S.; Lewis, G.D.; Ashokkumar, M.; Hemar, Y. Inactivation of microorganisms by low-frequency high-power ultrasound: 1. Effect of growth phase and capsule properties of the bacteria. Ultrason. Sonochem. 2014, 21, 446–453. [Google Scholar] [CrossRef]
  21. Hennekinne, J.A.; De Buyser, M.L.; Dragacci, S. Staphylococcus aureus and its food poisoning toxins: Characterization and outbreak investigation. FEMS Microbiol. Rev. 2012, 36, 815–836. [Google Scholar] [CrossRef]
  22. Sun, X.B.; Jiang, M.M.; Ma, F.M.; Lin, M. The study of pulsed white light to inactivation of Staphylococcus aureus in drinking water. In Environmental Biotechnology and Materials Engineering; Shi, Y.G., Zuo, J.L., Eds.; Trans Tech Publications Ltd.: Zurich, Switzerland, 2011. [Google Scholar]
  23. Huertas, A.; Barbeau, B.; Desjardins, C.; Galarza, A.; Figueroa, M.A.; Toranzos, G.A. Evaluation of Bacillus subtilis and Coliphage MS2 as indicators of advanced water treatment efficiency. Water Sci. Technol. 2003, 47, 255–259. [Google Scholar] [CrossRef] [PubMed]
  24. Choi, Y.; Cho, M.; Lee, Y.; Choi, J.; Yoon, J. Inactivation of Bacillus subtilis spores during ozonation in water treatment plant: Influence of pre-treatment and consequences for positioning of the ozonation step. Chemosphere 2007, 69, 675–681. [Google Scholar] [CrossRef] [PubMed]
  25. Prabhu, A.V.; Gogate, P.R.; Pandit, A.B. Optimization of multiple-frequency sonochemical reactors. Chem. Eng. Sci. 2004, 59, 4991–4998. [Google Scholar] [CrossRef]
  26. Kang, J.H.; Kondo, F. Effects of bacterial counts and temperature on the biodegradation of bisphenol A in river water. Chemosphere 2002, 49, 493–498. [Google Scholar] [CrossRef]
  27. Zou, H.; Wang, L. The disinfection effect of a novel continuous-flow water sterilizing system coupling dual-frequency ultrasound with sodium hypochlorite in pilot scale. Ultrason. Sonochem. 2017, 36, 246–252. [Google Scholar] [CrossRef] [PubMed]
  28. Gogate, P.R. Application of cavitational reactors for water disinfection: Current status and path forward. J. Environ. Manag. 2007, 85, 801–815. [Google Scholar] [CrossRef]
  29. World Health Organization. Guidelines for Drinking-Water Quality, 4th ed.; World Health Organization: Geneva, Switzerland, 2011. [Google Scholar]
Figure 1. (a) Schematic of the ultrasound/chlorination water treatment system (1. Raw water container; 2. Heating equipment; 3A,B. Rotameter; 4. Chemical disinfectant container; 5. Treated water container; 6. Ultrasound (US) reactor; 7. Sample outlet; 8. Ultrasound (US) control board; 9A,B. Pump; 10. Chlorination reactor); (b) Scheme of the ultrasonic reactor [27].
Figure 1. (a) Schematic of the ultrasound/chlorination water treatment system (1. Raw water container; 2. Heating equipment; 3A,B. Rotameter; 4. Chemical disinfectant container; 5. Treated water container; 6. Ultrasound (US) reactor; 7. Sample outlet; 8. Ultrasound (US) control board; 9A,B. Pump; 10. Chlorination reactor); (b) Scheme of the ultrasonic reactor [27].
Water 11 00258 g001
Figure 2. Log inactivation ratio with US treatment alone under different frequencies: (a) E. coli, (b) S. aureus, and (c) B. subtilis. Error bars correspond to standard error of three replicate experiments.
Figure 2. Log inactivation ratio with US treatment alone under different frequencies: (a) E. coli, (b) S. aureus, and (c) B. subtilis. Error bars correspond to standard error of three replicate experiments.
Water 11 00258 g002
Figure 3. Log inactivation ratio with US pretreatment and 8 mg/L NaClO disinfection under different frequencies: (a) E. coli, (b) S. aureus, and (c) B. subtilis. Error bars correspond to standard error of three replicate experiments.
Figure 3. Log inactivation ratio with US pretreatment and 8 mg/L NaClO disinfection under different frequencies: (a) E. coli, (b) S. aureus, and (c) B. subtilis. Error bars correspond to standard error of three replicate experiments.
Water 11 00258 g003
Figure 4. Log inactivation ratio of 10 min 8 mg/L NaClO disinfection following 17 + 30 kHz dual-frequency US pretreatment under different US input power densities. Error bars correspond to standard error of three replicate experiments.
Figure 4. Log inactivation ratio of 10 min 8 mg/L NaClO disinfection following 17 + 30 kHz dual-frequency US pretreatment under different US input power densities. Error bars correspond to standard error of three replicate experiments.
Water 11 00258 g004
Figure 5. Log inactivation ratio at 17 + 30 kHz dual-frequency US pretreatment with different NaClO dosage (30 min chlorination time). Error bars correspond to standard error of three replicate experiments.
Figure 5. Log inactivation ratio at 17 + 30 kHz dual-frequency US pretreatment with different NaClO dosage (30 min chlorination time). Error bars correspond to standard error of three replicate experiments.
Water 11 00258 g005
Figure 6. Residual chlorine concentration without or with 17 + 33 kHz dual-frequency US pretreatment at 8 mg/L NaClO (30 min chlorination time). Error bars correspond to standard error of three replicate experiments.
Figure 6. Residual chlorine concentration without or with 17 + 33 kHz dual-frequency US pretreatment at 8 mg/L NaClO (30 min chlorination time). Error bars correspond to standard error of three replicate experiments.
Water 11 00258 g006

Share and Cite

MDPI and ACS Style

Zou, H.; Tang, H. Comparison of Different Bacteria Inactivation by a Novel Continuous-Flow Ultrasound/Chlorination Water Treatment System in a Pilot Scale. Water 2019, 11, 258. https://doi.org/10.3390/w11020258

AMA Style

Zou H, Tang H. Comparison of Different Bacteria Inactivation by a Novel Continuous-Flow Ultrasound/Chlorination Water Treatment System in a Pilot Scale. Water. 2019; 11(2):258. https://doi.org/10.3390/w11020258

Chicago/Turabian Style

Zou, Huasheng, and Haoyuan Tang. 2019. "Comparison of Different Bacteria Inactivation by a Novel Continuous-Flow Ultrasound/Chlorination Water Treatment System in a Pilot Scale" Water 11, no. 2: 258. https://doi.org/10.3390/w11020258

APA Style

Zou, H., & Tang, H. (2019). Comparison of Different Bacteria Inactivation by a Novel Continuous-Flow Ultrasound/Chlorination Water Treatment System in a Pilot Scale. Water, 11(2), 258. https://doi.org/10.3390/w11020258

Note that from the first issue of 2016, this journal uses article numbers instead of page numbers. See further details here.

Article Metrics

Back to TopTop