Next Article in Journal
Eco-Innovation Drivers in Value-Creating Networks: A Case Study of Ship Retrofitting Services
Next Article in Special Issue
Study on Dynamic Response of Novel Masonry Structures Impacted by Debris Flow
Previous Article in Journal
Assessment of Land-Cover/Land-Use Change and Landscape Patterns in the Two National Nature Reserves of Ebinur Lake Watershed, Xinjiang, China
 
 
Font Type:
Arial Georgia Verdana
Font Size:
Aa Aa Aa
Line Spacing:
Column Width:
Background:
Article

Impact of Window Films on the Overall Energy Consumption of Existing UK Hotel Buildings

1
Department of Civil and Environmental Engineering, School of Computing and Engineering, University of West London, London W5 5RF, UK
2
The Chartered Institution of Building Services Engineers (CIBSE), London SW12 9BS, UK
3
Hilton, Maple Court, Reeds Crescent, Watford WD244QQ, UK
*
Author to whom correspondence should be addressed.
Sustainability 2017, 9(5), 731; https://doi.org/10.3390/su9050731
Submission received: 20 March 2017 / Revised: 11 April 2017 / Accepted: 27 April 2017 / Published: 2 May 2017

Abstract

:
Recently, considerable attention has justifiably been directed towards energy savings in buildings as they account for up to 20–40% of total energy consumption in developed countries. In the United Kingdom, studies have revealed that buildings’ CO2 emissions for account for at least 43% of total emissions. Window panels are a major component of the building fabric with considerable influence on the façade energy performance and are accountable for up to 60% of a building’s overall energy loss. Therefore, the thermal performance of glazing materials is an important issue within the built environment. This work evaluates the impact of solar window films on the overall energy consumption of an existing commercial building via the use of a case study U.K. hotel and TAS dynamic simulation software. The study results demonstrated that the impact of window films on the overall energy consumption of the case study hotel is approximately 2%. However, an evaluation of various overall energy consumption components showed that the window films reduce the annual total cooling energy consumption by up to 35% along with a marginal 2% increase in the annual total heating energy consumption. They can also provide overall cost and CO2 emissions savings of up to 3%.

1. Introduction

The importance of reducing global energy consumption cannot be overemphasised due to the finite nature of energy resources and extensive environmental effects such as climate change and global warming [1,2]. The adverse effects of climate change such as increased risk of flood, superstorms and drought can result in global mass migration and conflicts [1]. Hence, a drastic reduction in global CO2 emissions is required, which is achievable by ensuring the use of sustainable cleaner energy and a reduction in current global energy demand through improved energy efficiency [1]. The contribution of building energy use to energy-linked threats to sustainable development are varied and can include: deaths associated with indoor and outdoor air pollution, insecurity of energy resources and climate change [3]. In recent times, considerable attention has justifiably been directed towards energy savings in buildings (residential and commercial) as they account for up to 20–40% of total energy consumption in developed countries [4]. In the United Kingdom, studies have revealed that CO2 emissions for buildings account for at least 43% of total emissions [5]. Many developed & developing countries have established regulations aimed at the reduction of building energy consumption by significantly improving the energy efficiency of buildings [6]. The quest for improved energy efficiency and thermal comfort in existing buildings most often involves an all-encompassing approach, incorporating enhanced cost-effective building fabric retrofitting. Therefore, it has become crucial that an energy-efficient façade is used, in order to reduce the CO2 emissions throughout the operational life cycle of a building [7].
Window panels are a major component of the building fabric with considerable influence on the façade energy performance and preservation required for thermal comfort and the visual environment [8,9]. They are the most common fenestration style and serve a variety of important functions in buildings, including: providing occupants with a connection to the external environment, providing thermal comfort, optimum illumination levels, air ventilation, passive solar gain and a possible avenue to exit the building in extreme scenarios [10,11]. They are a popular architectural form and the open scenery through windows in cities with high-rise buildings is a very desirable feature [11]. However, windows are responsible for a substantial proportion of wasted heat in heating-dominant climate (up to 60%) [12] and solar heat gain in cooling-dominant climates [4]. The Glass and Glazing Federation [13] highlighted that up to 40% of a building’s load on the cooling system or air conditioners can be associated with solar gains through the windows. Moreover, air conditioning use in the United Kingdom has increased considerably in the past two decades and cooling a building usually requires more energy than heating (Glass and Glazing Federation [13]). Therefore, the need to reduce the solar transmission through building windows and its adverse effect on building energy consumption in a cost-effective manner has become increasingly important, especially considering the increased awareness of global warming.
Window films are generally designed to keep out the sun, thereby reducing the cooling load and consequently lowering energy consumption and CO2 emissions. Plummer [14] concludes that window films are commonly polyester products that can be applied on glass, are usually made from several layers of coated or chemically processed polyester, and may have a lightly metalised layer for improved solar attributes. Although there are several types of window films, the ones developed to control solar radiation are most widespread. Some of the benefits of window films include: protection against the adverse effects of the sun (such as severe heat, fading, glare reduction and ultraviolet radiation); enhanced security; increased privacy and aesthetic purposes [14]. Furthermore, the application of other advanced window glazing improvement systems (such as tintable smart windows, solar energy control and reversible airflow windows) on existing buildings may result in disturbance to the occupants and does not necessarily provide better performance than window films [8], whereas the application of window films on glazing has the ability to regulate the penetration of light and heat and also screen out ultraviolet (UV) light, whilst posing the least disturbance to the building’s occupants [8].
The aim of this paper is to evaluate the impact of two commercially available window films on the overall energy consumption and performance of an existing U.K. hotel building. Hilton Reading hotel is used as a case study for this evaluation.
The following objectives helped us to achieve the articulated aim:
  • Collection of all necessary data such as architectural plans, building fabric makeup, plants/system information and operating energy consumption; site survey is also undertaken to verify collected data.
  • Development of hotel model on the dynamic simulation software using the obtained data.
  • Estimation of the annual overall energy consumption of the hotel via system modelling of the dynamic simulation software.
  • Improvement of the system modelling result by including estimation of unregulated energy use (catering energy use). Subsequently, validation of model results and comparison against actual building operational energy consumption.
  • Incorporation of window films into the hotel building model and a comparison to the hotel model without the window films.
This paper presents an approach of evaluating the effect of solar window films on the overall energy consumption of an existing commercial hotel building. It also contributes to the existing state of the art, as most studies in this field employ the use of a commercial office case study or prototype building in a predominantly hot climate.

2. Literature Review

Examination of the existing state of the art shows that there are considerable and varied studies on the impact of fenestration systems and glazing on the energy consumption and performance of building envelopes. Some of these works are presented.
The works of Li, et al. [8]; Yousif [15] and Yin, Xu and Shen [16] investigated the potential of solar window films to reduce the energy consumption of varied types of commercial buildings in three different climates. The work of Li, et al. [8] employed a methodology that involves an experimental chamber where actual measurements are taken and subsequently validated with a computer simulation to examine the impact of different types of solar window films on the energy consumption of various function rooms in commercial buildings under the relatively warm Hong Kong climate. Their results indicated that the application of window films to functional rooms of commercial buildings produces good energy-saving results, with the best performance found in office buildings. Additionally, the result claimed that window films application on clear glazing performs better than tinted ones. Yin Xu and Shen [16] used two case study non-domestic buildings in hot summer and cold winter climates, respectively, to investigate the possible energy savings accruing from the application of window films via a software building simulation of the whole building with and without solar films. Their outcome indicated that the performance of window films in glazed curtain wall windows varies and it mainly influenced by the position of the installed film and the window sizes and arrangement. Their results also indicated that window films can reduce the shading coefficient and solar heat gain by up to 44% and 22% if applied on the outside and inside of existing windows. On the other hand, Yousif [15] used a spectrophotometer to measure key parameters for glazing performance for two case study rooms in a relatively hot year-round climate. The case study rooms include one with and the other without a window film to calculate the effect of window films on controlling heat gain. The study’s key finding indicated that window films reduced the summer cooling load but also resulted in an increased winter heating load; however, the magnitude of increased heating load was lower.
Detailed information on the theoretical background and calculation of glass heat transfer and optical performance has also been given by the American Society of Heating Refrigerating and Air-conditioning Engineers (ASHRAE) [17].
Dussault, et al. [18] and Chen, et al. [19] investigated the use of different energy improvement technologies to improve the energy consumption of buildings due to the negative effect of windows. Dussault, et al. [18] examined the energy savings potential of incorporating smart window technologies on a double-glazed window pane of a typical low thermal mass office building in Quebec, Canada. Smart windows have controllable absorbing layers, which enables the optical properties of window panes to alter based on optimal requirements for light and heat flux penetrating the building. Their study results showed that optimizing the solar heat penetration based on the required heating, cooling and lighting demands helps to considerably reduce the annual building energy consumption and maximum cooling loads. On the other hand, Chen et al. [19] investigated the effectiveness of different external window shading types on reducing the cooling energy consumption of varied commercial buildings in five different climate zones in China. The study was done with the aid of a building simulation calibrated prototype model. One of their key findings indicated that for both economical and energy saving reasons, flexible (opaque) shading is recommended in high rise office and hotel buildings across varied climate zones.
The works of Carriere, et al. [20], Huang, et al. [11], Yang, et al. [21] and Vanhoutteghem, et al. [22] investigated the effectiveness of different glazing and window design systems under different climates with the aid of building simulation software. Huang, et al. [11] examined the efficacy of different energy-efficient building window designs in a cooling-dominant climate. The results of their study indicated that low-emissivity glazing produces the best performance amongst the investigated design options; conversely, double-layer glazing gives the worst performance. They also claimed that energy-efficient designs on the east and west orientations are the most economical in relatively hot climates. Carriere, et al. [20] studied the efficacy of window glazing in reducing a building’s solar heat gain using the well-known DOE-2 software. One of their main findings indicated that cooling energy reduces with the number of glazing; consequently, the overall energy demand of the building is reduced. However, the effect of important parameters such as wall-to-window ratios or shading coefficients on solar heat gain in the building was not investigated in that research. Yang, et al. [21] investigated the optimal window–wall ratio and the adequate glazing type in varied air-conditioning system operation modes of domestic buildings for individual orientation in a hot summer–cold winter climate. Their results indicated that the overall energy consumption increased with an increasing window–wall ratio, especially for east- or west-oriented windows. Additionally, they claimed that low-emissivity panes have better energy efficiency performance compared to hollow glass. Moreover, Vanhoutteghem, et al. [22] investigated the link between size, orientation and glazing characteristics of windows for different side-lit rooms in a ‘nearly zero-energy’ residential building in a heating-dominant climate. One of their key findings indicated that the best energy savings potential and solar heat gain utilisation was observed in south-oriented rooms. Additionally, their results suggested that to achieve a reduction in the room heating load in north- and south-oriented rooms with large window areas, low U-values are required.
Sorgato, et al. [6] and Wang and Greenberg [9] worked on the effect of window and ventilation operation on building energy and thermal performance of buildings using computer simulation software (EnergyPlus). Sorgato, et al. [6] evaluated the effect of window operation on occupancy thermal comfort and building energy consumption using a simulated reference office building in three different climate zones of the United States. The result of the work that studied the relationship between Variable Air Volume (VAV) systems and different ventilation control measures highlighted that optimal window operation can produce HVAC energy savings of up to 17–47% with mixed mode ventilation during the summer for various climates. On the other hand, Wang and Greenberg [9] focused on the impact of occupant behaviour regarding window operation on the HVAC energy consumption of dwellings in Brazil. Their result highlighted that medium thermal capacity buildings with proper ventilation control have more potential to provide occupant thermal comfort. Moreover, adequate building ventilation, accomplished via automated ventilation control coupled with medium thermal inertia, produced a decrease in HVAC energy consumption.
From the review of the existing body of literature, it is observed that there are varied and considerable studies on improving the energy performance of windows and façade glazing. However, most studies are on commercial office buildings and dwellings, with the majority of them using prototypical or reference rooms as case studies in mainly cooling-dominant climates.

3. Methodology

The goal of this study is to evaluate the impact of window films on the energy consumption of a case study Hilton hotel building located in the southeast of the United Kingdom. The evaluation is conducted with the aid of an approved dynamic simulation software.
The process that was employed to achieve the stipulated aim with the case study building can be categorised into two distinct stages. The first stage involves estimating the energy consumption of the building by developing a holistic model reflecting the building fabric, systems and thermal performance of the actual building. The predicted energy consumption is validated by comparing against actual consumption data. These data are collected by a survey of the case study building to enable verification of available data such as building fabric data (e.g., walls and windows), occupancy information to ensure simulation assumptions are realistic, building usage to ensure zone grouping is as shown on architectural plan, and HVAC system characteristics. The second stage entails the application of the window films into the model to evaluate their impact.
EDSL TAS software version 9.3.3 is employed as the dynamic simulation software to model and calculate the energy performance for this study. The TAS software, designed by Engineering Development Solutions Limited (Milton Keynes, UK), is a set of application products with the capability to simulate the thermal performance of buildings and their systems, which can be translated into energy consumption estimates [23]. The software is also approved and fully accredited for the 2013 U.K. building regulations and demonstrates compliance with various BS EN ISO standards [24]. It has a 3D graphic-based geometry input interface (3D Modeller) that includes a CAD link and can also perform daylighting calculations [23]. The core module is the TAS Building Designer (TBD), which performs dynamic building simulation with integrated natural and forced air flow [23]. The TAS system is the component of the software suite that provides plant modelling capabilities to simulate systems such as Heating Ventilation and Air Conditioning (HVAC) systems/control.

3.1. Building Description

The building used is this case study is the four-storey Hilton Reading hotel with an underground basement parking located in Reading, Berkshire. It is a predominantly single-skin, glazed facade, sealed building and fully air conditioned with a total floor area of 12,362 m2. The ground floor of the building accommodates the reception area, conference/meeting rooms, restaurant, bar, kitchen and fitness/pool area. The first, second and third floors accommodate en suite bedrooms, and the roof houses the plant rooms. The building’s construction year (2009) informed the selection of building fabric that complies with the 2006 U.K. building regulations in the simulation process. The rooftop central Air Handling Units (AHU) provide heating/cooling as well as fresh air to all building floors, whilst Fan Coil Units (FCU) provide cooling/heating to individual bedrooms/meeting rooms. The domestic hot water demand to all rooms, kitchens and toilets is met by six gas fired boilers. Reading, Berkshire is about 40 miles from central London, which is the closest weather station. Therefore, the weather data used for simulation of heating and non-heating season are the current CIBSE London Test Reference Year (TRY). To facilitate the shadow calculation and orientation in the 3D Modeller, the latitude, longitude and time zone values of 51.43 degrees North, −0.98 degrees East and UTC +0.0, respectively, were inputted to reflect the geographical location parameters of the hotel building.

3.2. Building Modelling Processes

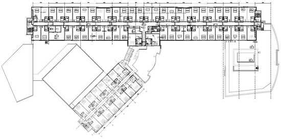
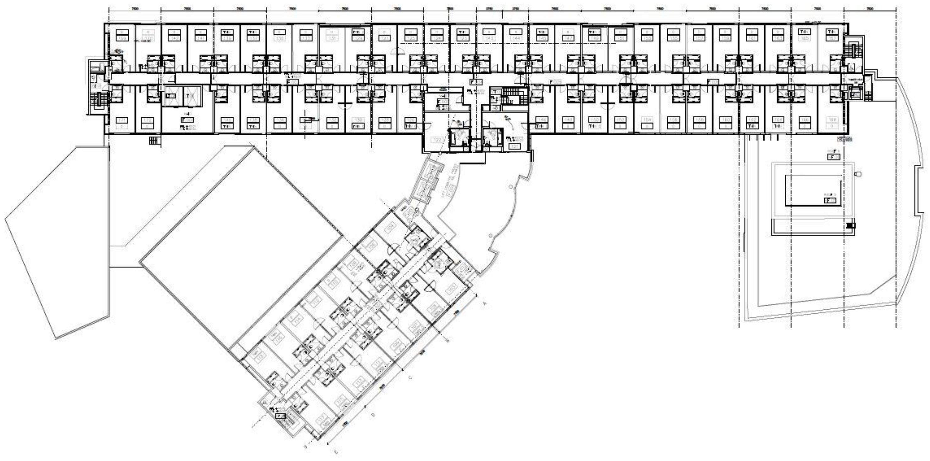
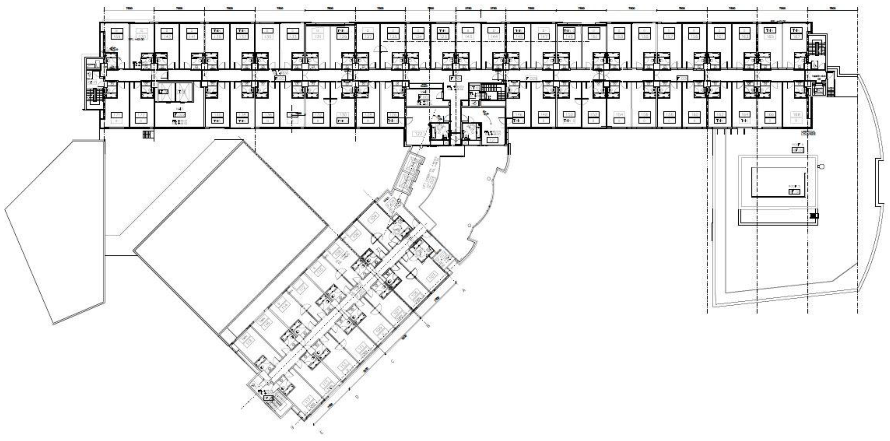
The 3D modeller component of the TAS software allows data on the building geometry and fabric such as (floors, wall types, windows and doors dimensions, etc.) to be inputted. It also enables the grouping of the floor areas into different zones based on their usage; all these data are used to generate a 3D model as close to reality as possible. The data used for the 3D modelling are obtained from the AUTOCAD drawings of the hotel, which show plans for individual floors. Figure 1 shows a typical architectural plan of the building.
The TAS TBD component of the software is the core part of the software suite; it performs the thermal simulation of the building. Appropriate choice of modelling parameters and assumptions is needed to execute the building performance simulation. The modelling parameters and assumptions used in this study to execute the building performance simulation are enumerated below.
  • Appropriateness of CIBSE TRY weather data (which are based on historical average data patterns over a certain number of years) to be applicable to prevailing weather conditions of the case study building location.
  • Acceptability of the National Calculation Methodology’s standard hotel internal conditions activity and occupancy as existing conditions of the case study hotel building.
  • Assumption of U-values to be static rather than dynamic, as they normally vary with thermal and climatic environment.
Furthermore, Table 1 and Table 2 show the modelling simulation parameters and assumptions based on the characteristics of the case study building.
The TAS systems module of the software suite enables the thermal simulation result file referred to as (TSD file) to be directly attached to it. The systems module allows for a simulation of the building’s plants consisting of (heating & cooling circuits, Air Handling Units, and energy sources) along with the TSD file to produce energy performance results, which include total energy consumption and demand. However, the estimate does not account for unregulated energy use such as catering, which can be significant in a hotel building and is therefore estimated in this work to augment the TAS systems result. Figure 2 presents the TAS systems wizard simulation process.
The two window films simulated in this case study are 3M sun control window films Prestige 70 Exterior and Prestige 40 Exterior. The main distinction between the two films is in their appearance and the amount light transmission through them. The numbers 70 and 40 in the names of the films are associated with the visible light transmission. Hence the Prestige 70 Exterior (PR 70 EXT) looks virtually clear (like the appearance of typical car window glasses), while the Prestige 40 Exterior (PR 40 EXT) has a warm bronze appearance. The durability of window films depends on varied factors such as climate and solar exposure; their average life span is over 10 years, with some recorded to last over 20 years [25]. Table 3 and Table 4 illustrate the performance attributes of PR 70 EX and PR 40 EXT window films, respectively, when applied on a typical single-pane clear or tinted window and on a double-pane clear or tinted window [26].

4. Results and Discussion

This section presents the results and discussion for the case study hotel building. Figure 3 shows the results of the 3D modelling process.
The TAS TBD component of the software is populated appropriately and simulated to reflect the characteristics of the building operating without the window films. The simulated TBD file is attached to the system and plant modelling component of the software to obtain energy performance results for the building. Typical results include reports of annual energy consumption and monthly energy consumption simulation of the case study hotel building. The energy consumption estimate comprises heating, cooling, auxiliary, lighting and equipment energy use.
Figure 4a indicates the annual energy demand and consumption of the building obtained via plant/system simulation. The figure also shows the breakdown of the energy demand and consumption results, including heating, cooling, auxiliary, equipment and lighting. Auxiliary energy is the energy used by controls, pumps, and fans for the HVAC systems. Additionally, there is a standard allowance for small power heat gains in order to calculate the heating and cooling demands, i.e., the equipment energy use. From Figure 4b,c it can be seen that the total energy consumption predicted via the plant/system modelling is relatively low compared to the actual building consumption data, with a percentage error of −33% representing an underestimation. Even though careful selection of building fabric and internal condition parameters was made to ensure the building simulation replicates the real building operations, this discrepancy is still evident. The discrepancy is largely due the fact that the estimated energy does not account for some energy use, referred to as unregulated energy use and covering catering services, which can be significant in a hotel building. Additionally, deviation due to the local microclimate of the building’s location and the standard weather data used for building energy simulation can result in a discrepancy between predicted and actual energy consumption. Nevertheless, it can be observed from Figure 4c that the energy consumption profile of the systems simulation result across the year does not differ significantly compared to the actual building measurement, with both profiles showing peak consumption in the heating season and lower consumption during the cooling season.
To improve this result and make the baseline model much more acceptable for the evaluation of energy improvement measures (window film), energy use for catering services is estimated and used to augment the result. Since simple, reliable calculation estimates for catering energy use are difficult to come by, it is recommended in CIBSE TM 54 that benchmarks be used to estimate commercial kitchens’ energy use. A typical benchmark that can be utilised for this purpose is adopted from CIBSE TM 50: Energy efficiency in commercial kitchens [27], which comprises catering energy benchmarks for various building categories per meal served.
For this case study hotel building, the operational energy benchmark (2.54 kWh for fuel and 1.46 kWh for electricity) for a good practice business/holiday hotel building type was used along with the hotel data of number of meals served. Figure 5 presents the results for systems simulation plus catering energy consumption estimate.
From Figure 5a,b above it can be observed that energy consumption results from the system simulation, augmented with catering energy use, enhance the energy consumption results and the energy consumption profile of the model also conforms with that of the actual building energy consumption profile, especially during heating periods. The deviation observed during cooling-dominant periods can be attributed to deviation in the weather data. Moreover, it can be observed from Figure 5b that the comparison of total annual consumption of the TAS systems + catering energy use gives a significantly improved energy consumption estimate, even though it still underestimates annual energy consumption by 12%.
The results of the next stage of simulation for this case study, which incorporates the window films into the model on all external windows irrespective of orientation, are presented in Figure 6, Figure 7 and Figure 8. Though the windows of the case study building are double-pane clear windows, the simulation results presented are for window films applied on both clear and tinted double-glazed windows. This is done to determine whether there are considerable performance differences for the films applied on the two possible window variants (clear or tinted). Therefore, the legend on the presented figures represents the following:
  • Simulation without window films
  • Simulation with 3M 40 EXT clear: represents simulation result with 3M 40 EXT applied on a clear window.
  • Simulation with 3M 40 EXT tint: represents simulation result with 3M 40 EXT applied on a tinted window.
  • Simulation with 3M 70 EXT clear: represents simulation result with 3M 70 EXT applied on a clear window.
  • Simulation with 3M 70 EXT tint: represents simulation result with 3M 70 EXT applied on a tinted window.
Figure 6 illustrates the overall energy consumption result for the simulation, evaluating the impact of the window films compared to the baseline model without the window films. As the simulation result is presented for comparison purposes, the numerical total does not include catering energy consumption, which is constant for all scenarios. From Figure 6a, it can be observed that the overall energy savings accruing from the application of the window films across the year is not huge, with the majority of that savings occurring from May to September, which is the cooling-dominant period. Furthermore, there is a marginal reduction in energy consumption in January and December during the peak of the heating season. Figure 6b further illustrates the observed marginal reduction in annual energy consumption for the simulation. There was a percentage reduction of 1.9% and 1.6% for window film 3M 40 EXT applied on clear and tinted windows, respectively; and 2.1% and 1.9% for window film 3M 70 EXT applied on clear and tinted windows, respectively.
Although the impact of the window film on the overall energy is not significant, it is instructive to evaluate the impact of the window films on the components of the energy consumption that they have direct influence on. Therefore, the energy consumption results for heating and cooling are presented in Figure 7 and Figure 8.
From Figure 7a, showing the monthly heating energy consumption, it can be seen that there is no heating energy consumption savings accruing from the application of the window films. This can be attributed to the fact that the window films mainly reduce the amount of solar heat gain through the windows, which is required during the heating seasoning to reduce the heating load. Moreover, the figure illustrates an increase in heating energy consumption, mainly from February to May, with a maximum increase in April. The maximum percentage increase in heating energy consumption of 9% and 11% was observed for window film 3M 40 EXT applied on clear and tinted windows, respectively. An increase of 6% and 9% was observed for window film 3M 70 EXT applied on clear and tinted windows, respectively.
Furthermore, Figure 7b, presenting the annual overall heating energy consumption, shows a similar trend to that observed in Figure 7a. The figure illustrates that there is a marginal increase in the overall heating energy consumption across the year of 1.3% and 2% for window film 3M 40 EXT applied on clear and tinted windows, respectively. Also, an increase in the overall heating energy consumption of 0.2% and 1.3% was observed for window film 3M 70 EXT applied on clear and tinted windows, respectively.
It can be seen from Figure 8a, illustrating the monthly cooling energy consumption, that the cooling energy consumption savings accruing from the application of the window films is substantial. This can be attributed to the fact that the window films mainly reduce the amount of solar heat gain through the window pane, resulting in a cooling load reduction during the cooling-dominant period. Furthermore, the figure shows that the bulk of the cooling energy savings is from April to October, with the maximum energy consumption reduction occurring in July, around the peak of the summer. The maximum percentage cooling energy reduction of 32% and 35% was observed for window film 3M 40 EXT applied on clear and tinted windows, respectively. A reduction of 27% and 32% was observed for window film 3M 70 EXT applied on clear and tinted windows, respectively.
Figure 8b, showing the annual overall cooling energy consumption, also illustrates a similar cooling energy saving trend to that observed in Figure 8a. The figure shows that there is a significant reduction in cooling energy consumption across the year of 32% and 35% for window film 3M 40 EXT applied on clear and tinted windows, respectively. A reduction in cooling energy consumption of 28% and 32% was observed for window film 3M 70 EXT applied on clear and tinted windows, respectively.
The critical analysis of the heating and cooling energy consumption demonstrates that there is a considerable reduction in cooling energy consumption from the application of the window films. Therefore, to further aid in the choice of appropriate window films, it is instructive to investigate the impact of the window films on additional parameters such as energy cost and CO2 emissions. Since the factor and price rate used to evaluate energy costs and CO2 emissions resulting from natural gas and grid electricity are different, this investigation can demonstrate whether the window films have a favourable impact on energy costs and CO2 emissions. The CO2 conversion factors of 0.184 for Natural gas and 0.41205 for grid supplied electricity used for this analysis was obtained from the U.K. Government Conversion Factors for greenhouse gas (GHG) reporting spread sheet [28]. The tariff rate of £0.059 per kWh for electricity and £0.03 per kWh for natural gas used in the cost analysis was obtained from the case study building energy supply data.
The results of the impact of the window films on the energy costs and CO2 emissions are presented in Figure 9, Figure 10, Figure 11 and Figure 12.
From Figure 9a, illustrating the monthly CO2 emissions results, it can be observed that there is a reduction in the CO2 emissions due to the application of the window films. The figure shows that the bulk of the CO2 emissions reduction occurs during the cooling-dominant period because of the reduction in cooling energy consumption due to the impact of the window films. Moreover, CO2 emissions reduction resulting from cooling demand reduction is worth more in terms of kg as this is driven by a reduction in electricity consumption. The peak reduction in CO2 emissions was observed around the peak of the summer in July. The maximum percentage reduction in CO2 emissions was 7% and 1% for window film 3M 40 EXT applied on clear and tinted windows, respectively, while a maximum percentage reduction of 6% and 7% was observed for window film 3M 70 EXT applied on clear and tinted windows, respectively.
Additionally, Figure 9b, showing the annual overall CO2 emissions results, also exhibited a similar trend to that observed in Figure 9a. The figure shows that the percentage overall CO2 emissions reduction across the year is not huge. A total annual CO2 emissions reduction of 3% and 0% was observed for window film 3M 40 EXT applied on clear and tinted windows, respectively, and a reduction of 3% was observed for window film 3M 70 EXT applied on both clear and tinted windows, respectively.
Figure 10, Figure 11 and Figure 12 presents the results for the cost analysis due to the impact of the window films.
From Figure 10a, it can be observed that there is a small increase in the cost of natural gas, especially during the heating-dominant period. This can be attributed to the increase in heating energy demand observed during the heating season. A peak percentage increase in the cost of natural gas of up to 7% and 2% was observed for window film 3M 40 EXT applied on clear and tinted windows, respectively. A peak percentage increase of 5% and 7% was observed for window film 3M 70 EXT applied on clear and tinted windows, respectively. Figure 10b, illustrating the total annual cost for natural gas, demonstrates a similar trend of increase in natural gas cost. The overall percentage increase was marginal. A percentage increase of approximately 1% was observed for window film 3M 40 EXT applied on both clear and tinted windows, respectively, while there was no overall increase in natural gas cost for window film 3M 70 EXT applied on clear and tinted windows.
From Figure 11a, it can be seen that there is a considerable reduction in electricity cost, especially for window film 3M 40EXT applied on clear windows and for window film 3M 70 EXT applied on both clear and tinted windows. This reduction is due to the decrease in cooling energy demand and consumption observed during the cooling summer period because of the impact of the window films. Figure 11b, showing the overall annual electricity cost, exhibits a similar trend to that observed in Figure 11a. Percentage reductions in the overall annual electricity cost of 6% and 1% were observed for window film 3M 40 EXT applied on clear and tinted windows, respectively. A reduction of 5% and 6% in electricity cost was seen for window film 3M 70 EXT applied on clear and tinted windows, respectively.
From Figure 12a, it can be seen that generally, there is reduction in the overall energy cost during the cooling-dominant period and a marginal increase during the heating season. Additionally, it can be observed that window film 3M 40EXT applied on tinted window has the least favourable impact on energy cost. This is because the marginal reduction in energy cost during the summer is countered by a similar marginal increase in energy cost. A maximum percentage reduction in energy cost of 6% and 1% was observed for window film 3M 40 EXT applied on clear and tinted windows, respectively. A maximum percentage reduction of 5% and 6% was observed for window film 3M 70 EXT applied on clear and tinted windows, respectively. From Figure 12b, showing the annual total energy cost due to the impact of the window films, it can be observed that there is a reduction in the overall annual energy cost. The percentage reduction in total energy cost of 3% was observed for window film 3M 40 EXT applied on clear windows and 3M 70EXT applied on both clear and tinted windows. There was no increase or decrease in total energy cost for 3M 40EXT applied on tinted windows.
Table 5 shows a summary of results of the percentage differences between the simulation model without the window film compared to the one incorporating the window films for key energy performance parameters. It can be observed that window film 3M 40EXT applied on tinted windows provides the least favourable impact, whereas window films 3M 40 EXT applied on clear windows and 3M 70EXT applied on both clear and tinted windows provide relatively better and similar performance. Therefore, the choice of window film for this case study building can be made between these two window films, with the preference depending on whether a less clear window film is required for privacy considerations. Savings in electricity cost is one key parameter that can be used to select an appropriate window film since the electricity price rate and emissions factor are higher than for gas. Based on this, window film 3M 40 EXT applied on clear windows is preferable since it provides a 6% savings in electricity cost. In addition, its warm brown appearance should not affect the ambience of the building.

5. Summary and Conclusions

This work presented a case study on the evaluation of the impact of window films on the energy performance of an existing U.K. hotel. The simulation was conducted using a building energy simulation software (EDSL TAS); the energy prediction results of the software were validated with actual building consumption data before a simulation of the effect of selected window films on the energy consumption and performance of the building.
The results of the case study demonstrate that the impact of the selected window films (3M sun control window film; Prestige 70 Exterior and Prestige 40 Exterior) on the overall energy consumption is not substantial. The overall energy savings accruing from application of the films is approximately 2%, mainly from a reduction in cooling energy consumption.
Though this energy savings is marginal, an examination of the components of energy consumption, that is, heating and cooling energy consumption, on which the window films have direct impact, provides further insight into the effect of the window films. This investigation indicates that the window films produce a reduction in cooling energy consumption of up to 35% during the peak of the cooling season and a 35% reduction in the annual overall cooling energy consumption across the year due to the reduction in solar heat gain via the window pane. However, some of this savings is slightly negated during the heating period, with the results showing a maximum increase in heating energy consumption of up to 11% during the peak of the heating-dominant season. However, the overall increase in annual heating energy consumption is 2%.
The results of the cost and CO2 emissions analysis also demonstrate that cost and CO2 emissions savings of up to 3% are achievable with the application of the window films. Additionally, critical analysis of the results shows that window films 3M 40 EXT applied on clear window and 3M 70EXT applied on both clear and tinted windows provide relatively better and similar performance. Hence, the choice of window film for this case study building can be made between these three window films, with the preference depending on whether the tinted window film is required for privacy considerations.
Furthermore, the results of the investigation indicate that the application of window films alone, especially in relatively large hotel buildings, cannot significantly reduce the overall energy consumption. Therefore, they can be more beneficial if used along with other energy efficiency measures that can reduce the energy consumption of other components such as domestic hot water and lighting, which make up a considerable proportion of overall energy consumption.

Acknowledgments

All sources of funding of the study should be disclosed. Please clearly indicate grants that you have received in support of your research work. Clearly state if you received funds for covering the costs to publish in open access.

Author Contributions

Ali Bahadori-Jahromi, Anastasia Mylona, Paulina Godfrey and Darren Cook conceived and designed the project; Abdulazeez Rotimi performed the experiments and analyzed the data. Ali Bahadori-Jahromi, Abdulazeez Rotimi and Anastasia Mylona wrote the paper. Ali Bahadori-Jahromi, Anastasia Mylona, Paulina Godfrey and Darren Cook reviewed the paper.

Conflicts of Interest

The authors declare no conflict of interest.

References

  1. King, D.; Browne, J.; Layard, R.; O’Donnell, G.; Rees, M.; Stern, N.; Turner, A. A global Apollo programme to combat climate change. In Centre for Economic Performance; London School of Economics and Political Science: London, UK, 2015. [Google Scholar]
  2. Pérez-Lombard, L.; Ortiz, J.; Pout, C. A review on buildings energy consumption information. Energy Build. 2008, 40, 394–398. [Google Scholar] [CrossRef]
  3. Ürge-Vorsatz, D.; Cabeza, L.F.; Serrano, S.; Barreneche, C.; Petrichenko, K. Heating and cooling energy trends and drivers in buildings. Renew. Sustain. Energy Rev. 2015, 41, 85–98. [Google Scholar] [CrossRef]
  4. Hee, W.J.; Alghoul, M.A.; Bakhtyar, B.; Elayeb, O.; Shameri, M.A.; Alrubaih, M.S.; Sopian, K. The role of window glazing on daylighting and energy saving in buildings. Renew. Sustain. Energy Rev. 2015, 42, 323–343. [Google Scholar] [CrossRef]
  5. Carbon Trust (2013) Energy Efficiency in Non-Domestic Buildings. Available online: https://www.carbontrust.com/news/2013/09/energy-efficiency-in-non-domestic-buildings/ (accessed on 2 July 2016).
  6. Sorgato, M.J.; Melo, A.P.; Lamberts, R. The effect of window opening ventilation control on residential building energy consumption. Energy Build. 2016, 133, 1–13. [Google Scholar] [CrossRef]
  7. Ihara, T.; Gustavsen, A.; Jelle, B.P. Effect of facade components on energy efficiency in office buildings. Appl. Energy 2015, 158, 422–432. [Google Scholar] [CrossRef]
  8. Li, C.; Tan, J.; Chow, T.-T.; Qiu, Z. Experimental and theoretical study on the effect of window films on building energy consumption. Energy Build. 2015, 102, 129–138. [Google Scholar] [CrossRef]
  9. Wang, L.; Greenberg, S. Window operation and impacts on building energy consumption. Energy Build. 2015, 92, 313–321. [Google Scholar] [CrossRef]
  10. Cuce, E.; Riffat, S.B. A state-of-the-art review on innovative glazing technologies. Renew. Sustain. Energy Rev. 2015, 41, 695–714. [Google Scholar] [CrossRef]
  11. Huang, Y.; Niu, J.-L.; Chung, T.-M. Comprehensive analysis on thermal and daylighting performance of glazing and shading designs on office building envelope in cooling-dominant climates. Appl. Energy 2014, 134, 215–228. [Google Scholar] [CrossRef]
  12. Jelle, B.P.; Hynd, A.; Gustavsen, A.; Arasteh, D.; Goudey, H.; Hart, R. Fenestration of today and tomorrow: A state-of-the-art review and future research opportunities. Solar Energy Mater. Solar Cells 2012, 96, 1–28. [Google Scholar] [CrossRef]
  13. Glass and Glazing Federation (2012) Window Film: Application and Solutions. Available online: www.ggf.uk/windowfilm (accessed on 5 November 2016).
  14. Plummer, J.R. (2015) Window Film: A Cost Effective Window Retrofit. Available online: http://www.greenbuildermedia.com/buildingscience/window-film-a-cost-effective-window-retrofit (accessed on 3 November 2016).
  15. Yousif, K.M. Control of Solar Heat Gain to Reduce the Energy Consumption of Buildings in Iraq. In Proceedings of the World Renewable Energy Forum, Denver, CO, USA, 13–17 May 2012; pp. 1–8. [Google Scholar]
  16. Yin, R.; Xu, P.; Shen, P. Case study: Energy savings from solar window film in two commercial buildings in Shanghai. Energy Build. 2012, 45, 132–140. [Google Scholar] [CrossRef]
  17. American Society of Heating Refrigerating and Air-conditioning Engineers, ASHRAE (2001) Handbook Fundamentals 2001, (Chapter 30: Fenestration). Available online: https://eclass.upatras.gr/modules/document/file.php/ARCH160/fenestration.pdf (accessed on 8 February 2017).
  18. Dussault, J.M.; Gosselin, L.; Galstian, T. Integration of smart windows into building design for reduction of yearly overall energy consumption and peak loads. Solar Energy 2012, 86, 3405–3416. [Google Scholar] [CrossRef]
  19. Chen, B.; Ji, Y.; Xu, P. Impact of Window Shading Devices on Energy Performance of Prototypical Buildings; Tongji University: Shanghai, China, 2012; pp. 1–8. [Google Scholar]
  20. Carriere, M.; Schoenau, G.J.; Besant, R.W. Investigation of some large building energy conservation opportunities using the DOE-2 model. Energy Conv. Manag. 1999, 40, 861–872. [Google Scholar] [CrossRef]
  21. Yang, Q.; Liu, M.; Shu, C.; Mmereki, D.; Uzzal Hossain, M.; Zhan, X. Impact Analysis of Window-Wall Ratio on Heating and Cooling Energy Consumption of Residential Buildings in Hot Summer and Cold Winter Zone in China. J. Eng. (USA) 2015. [Google Scholar] [CrossRef]
  22. Vanhoutteghem, L.; Skarning, G.C.J.; Hviid, C.A.; Svendsen, S. Impact of façade window design on energy, daylighting and thermal comfort in nearly zero-energy houses. Energy Build. 2015, 102, 149–156. [Google Scholar] [CrossRef]
  23. Crawley, D.B.; Hand, J.W.; Kummert, M.; Griffith, B.T. Contrasting the capabilities of building energy performance simulation programs. Build. Environ. 2008, 43, 661–673. [Google Scholar] [CrossRef]
  24. EDSL TAS (2015). Available online: http://www.edsl.net/main/Software/Designer/NVandPD.aspx (accessed on 2 July 2015).
  25. ATD Solar & Security Window Film (2012) Questions on Window Film, Tinting, Glass. Available online: http://atdwindowfilm.com/frequently-asked-questions/#1 (accessed on 6 April 2017).
  26. 3M (2017). Prestige Window Film. Available online: http://solutions.3m.co.uk/wps/portal/3M/en_GB/3MWindowFilm/WindowFilm/Products/Prestige/ (accessed on 8 February 2017).
  27. CIBSE (Chartered Institution of Building Services Engineers). Energy Efficiency in Commercial Kitchens CIBSE TM50; Chartered Institution of Building Services Engineers: London, UK, 2009. [Google Scholar]
  28. Department for Business, Energy and Industrial Strategy (2016) UK Government Conversion Factors for Greenhouse Gas (GHG) Reporting. Available online: https://www.gov.uk/government/publications/greenhouse-gas-reporting-conversion-factors-2016 (accessed on 30 January 2017).
Figure 1. Typical architectural plan of the hotel building.
Figure 1. Typical architectural plan of the hotel building.
Sustainability 09 00731 g001
Figure 2. Plant/systems simulation process.
Figure 2. Plant/systems simulation process.
Sustainability 09 00731 g002
Figure 3. 3D modelling results.
Figure 3. 3D modelling results.
Sustainability 09 00731 g003
Figure 4. Showing energy performance results from plant/system simulation.
Figure 4. Showing energy performance results from plant/system simulation.
Sustainability 09 00731 g004
Figure 5. Showing system simulation + catering energy use results.
Figure 5. Showing system simulation + catering energy use results.
Sustainability 09 00731 g005
Figure 6. Simulation total energy consumption result.
Figure 6. Simulation total energy consumption result.
Sustainability 09 00731 g006
Figure 7. Impact of window films on heating energy consumption.
Figure 7. Impact of window films on heating energy consumption.
Sustainability 09 00731 g007
Figure 8. Impact of window films on cooling energy consumption.
Figure 8. Impact of window films on cooling energy consumption.
Sustainability 09 00731 g008
Figure 9. Impact of window films on CO2 emissions.
Figure 9. Impact of window films on CO2 emissions.
Sustainability 09 00731 g009
Figure 10. Impact of window films on natural gas cost.
Figure 10. Impact of window films on natural gas cost.
Sustainability 09 00731 g010
Figure 11. Impact of window films on electricity cost.
Figure 11. Impact of window films on electricity cost.
Sustainability 09 00731 g011
Figure 12. Impact of window films on overall energy cost.
Figure 12. Impact of window films on overall energy cost.
Sustainability 09 00731 g012
Table 1. Modelling and simulation assumptions based on case study building characteristics.
Table 1. Modelling and simulation assumptions based on case study building characteristics.
Building Fabric
Calculated area weighted average U-valuesWall0.24 W/m2 K
Floor0.22 W/m2 K
Roof0.164 W/m2 K
Windows2.770 W/m2 K
Doors1.32 W/m2 K
Average U-values 1.03 W/m2 K
CalendarNCM Standard
Air permeability5 m3/(h m2) at 50 Pa
Average conductance10,807 W/K
Alpha values9.33%
Table 2. Modelling and simulation parameters and assumptions.
Table 2. Modelling and simulation parameters and assumptions.
Construction Data BaseNCM Construction v5.2.tcd
Occupancy levels; people density; lux levelRestaurant0.2 person/m2, 150 lux
0.0059 person/m2, 100 lux
Car park0.112 person/m2, 100 lux
0.115 person/m2, 100 lux
Changing room0.094 person/m2, 100 lux
0.14 person/m2 150 lux
Circulation area0.108 person/m2, 500 lux
0.183 person/m2, 300 lux
Bedroom0.106 person/m2, 400 lux
Gym0.11 person/m2, 200 lux
Food prep/kitchen0.105 person/m2, 200 lux
Hall0.11 person/m2, 50 lux
Office0.14 person/m2, 300 lux
Plant room0.1188 person/m2, 200 lux
Reception
Store
Swimming pool area
Toilet
Fuel sourceNatural gasCO2 factor–0.198 Kg/kWh
Grid electricityCO2 factor–0.4121 Kg/kWh
Table 3. PR 70 EX typical performance properties.
Table 3. PR 70 EX typical performance properties.
Glass TypeVisible LightG Value (SHGC)LSG (Light to Solar Gain)UV Block (%)Heat Gain Reduction (%)Glare Reduction (%)
Reflected (Interior) %Reflected (Exterior) %Transmission %
Single Pane
Clear77710.481.599.94120
Tinted56420.391.199.93920
Double Pane
Clear1412630.391.699.94520
Tinted137380.291.399.94321
Table 4. PR 40 EX typical performance properties.
Table 4. PR 40 EX typical performance properties.
Glass TypeVisible LightG Value (SHGC)LSG (Light to Solar Gain)UV Block (%)Heat Gain Reduction (%)Glare Reduction (%)
Reflected (Interior) %Reflected (Exterior) %Transmission %
Single Pane
Clear56420.391.199.95353
Tinted55250.330.899.94753
Double Pane
Clear137370.291.399.95953
Tinted126220.231.099.95553
Table 5. Summary table showing percentage difference between simulation results without window films compared to simulation results incorporating window films on all orientation.
Table 5. Summary table showing percentage difference between simulation results without window films compared to simulation results incorporating window films on all orientation.
Window FilmsHeating Energy Consumption (%)Cooling Energy Consumption (%)Total Energy Consumption (%)Gas CO2 Emissions (%)Electricity CO2 Emissions (%)Total CO2 Emissions (%)Electricity Cost (%)Total Energy Cost (%)
3M 40EXT clear−1.3321.9−16363
3M 40EXT tint−2351.6−11010
3M 70EXT clear−0.2282.1−0.55353
3M 70EXT tint−1.3321.9−16363
Note: (− Negative) is percentage increase; (+ Positive) is percentage decrease.

Share and Cite

MDPI and ACS Style

Bahadori-Jahromi, A.; Rotimi, A.; Mylona, A.; Godfrey, P.; Cook, D. Impact of Window Films on the Overall Energy Consumption of Existing UK Hotel Buildings. Sustainability 2017, 9, 731. https://doi.org/10.3390/su9050731

AMA Style

Bahadori-Jahromi A, Rotimi A, Mylona A, Godfrey P, Cook D. Impact of Window Films on the Overall Energy Consumption of Existing UK Hotel Buildings. Sustainability. 2017; 9(5):731. https://doi.org/10.3390/su9050731

Chicago/Turabian Style

Bahadori-Jahromi, Ali, Abdulazeez Rotimi, Anastasia Mylona, Paulina Godfrey, and Darren Cook. 2017. "Impact of Window Films on the Overall Energy Consumption of Existing UK Hotel Buildings" Sustainability 9, no. 5: 731. https://doi.org/10.3390/su9050731

APA Style

Bahadori-Jahromi, A., Rotimi, A., Mylona, A., Godfrey, P., & Cook, D. (2017). Impact of Window Films on the Overall Energy Consumption of Existing UK Hotel Buildings. Sustainability, 9(5), 731. https://doi.org/10.3390/su9050731

Note that from the first issue of 2016, this journal uses article numbers instead of page numbers. See further details here.

Article Metrics

Back to TopTop