Next Article in Journal
Steel–Timber Hybrid Buildings: A Comparative Life Cycle Assessment Study of Global Warning Potential Impacts
Previous Article in Journal
The Nexus of Sustainability Innovation, Knowledge Application, and Entrepreneurial Success: Exploring the Role of Environmental Awareness
Previous Article in Special Issue
Computational Fluid Dynamics (CFD) Technology Methodology and Analysis of Waste Heat Recovery from High-Temperature Solid Granule: A Review
 
 
Font Type:
Arial Georgia Verdana
Font Size:
Aa Aa Aa
Line Spacing:
Column Width:
Background:
Article

Historical Analysis of Real Energy Consumption and Indoor Conditions in Single-Family Passive Building

1
Wydział Inżynierii Lądowej, Politechnika Warszawska, Al. Armii Ludowej 16, 00-637 Warszawa, Poland
2
Polish National Energy Conservation Agency, Al. Jerozolimskie 65/79, 00-697 Warszawa, Poland
*
Author to whom correspondence should be addressed.
Sustainability 2025, 17(2), 717; https://doi.org/10.3390/su17020717
Submission received: 31 October 2024 / Revised: 31 December 2024 / Accepted: 3 January 2025 / Published: 17 January 2025

Abstract

The paper includes a historical analysis of real energy consumption and indoor conditions in a single-family passive building located in Warsaw, Poland. Passive houses have emerged as a sustainable alternative to the conventional construction of houses, having advantages such as low energy consumption, comfortable indoor temperatures, an environmentally friendly nature, and low carbon emissions. This research consists of indoor temperature assessments over a 5-year period (2018–2022) which include comfort assessments made in accordance with the standard EN 16798-1 and precise assessments made for extreme weather events over a two-week critical period including the heating and cooling seasons. The real energy consumption analysis, including electric heating, outdoor lighting, indoor lighting, ventilation, and domestic hot water, was compared against passive house and nearly-zero energy standards. The results of the study show that the building is thermally comfortable to live in, as it remained mainly in the first comfort category, IEQ I. There was no such issue as overheating and underheating even during extreme weather events. The energy need for heating remained very close to the passive standard, namely 15 kWh/(m2·year). The total primary energy consumption for heating, hot water, and electricity meets the standard required value of 120 kWh/(m2·year). These findings demonstrate the effectiveness of passive house design principles at achieving high levels of thermal comfort and energy efficiency in cold climates. In addition, it is demonstrated that it is possible to maintain comfortable indoor temperatures (even with outdoor air temperatures reaching 35 °C) without air conditioning or cooling systems. The integration of a photovoltaic system offers a viable pathway toward transforming the building into a zero-energy standard, contributing to sustainability goals and reducing carbon emissions.

1. Introduction

The Polish energy market is highly dependent on coal. The country is under European Union policy pressure and has decided to implement an environmental policy to stop using the combustion of coal, with government plans to stop using coal for electricity production by 2040 [1]. From 2008 to 2018, Poland was ranked 21st among the EU countries in terms of energy efficiency progress in the residential sector. With a 1.13%/year rate of energy efficiency improvement, Polish households were below the EU’s average and far below the improvement rate achieved by Poland’s industry [2]. To enhance energy efficiency, Poland is implementing various policies and regulations in the residential sector and has an energy efficiency obligation scheme [3,4].
Energy consumption in households increased by 2.0 Mtoe between 2000 and 2018 due to an increase in dwellings, the large size of dwellings, and a change in heating behavior [5]. To adopt policies and measures to save energy in the period 2021–2023, around 70 ktoe/year (expected), a thermomodernization and renovation fund was introduced to provide financial assistance to investors undertaking renovation and repair projects and to pay compensation to owners of residential buildings [6].
The energy sector is one of the largest contributors to global greenhouse gas emissions, with buildings responsible for 40% of the global energy use and 30% of energy-related CO2 emissions. Key drivers include heating, cooling, and electricity consumption in residential spaces. Transitioning to energy-efficient and sustainable practices in buildings is critical to mitigate these emissions [7].
Residential buildings in Poland depend on solid fuels more than any other country in the EU [8,9] as shown in Figure 1 below.
The most important part of EU legislation on energy efficiency of buildings has recently changed. On 12 March 2024, the European Parliament backed an amendment to the Energy Performance of Buildings Directive (EPBD) [10]. It lays the groundwork for the decarbonization of the building industry by 2050 and introduces a number of important changes. The aim of the regulations implemented is to rationalize energy consumption in the buildings in use and to construct new buildings with zero-emission standards. The earlier EPBD from 2010 [11] introduced the definition of a “near-zero energy building” (NZEB), which means a building with a very high energy performance. The near-zero or very low amount of energy required should come, to a very high degree, from renewable energy sources, including renewable energy generated on-site or nearby.
Since 2021, all newly constructed NZEB residential buildings in Poland are required to consume no more than 70 kWh/m2·year of primary non-renewable energy for space heating and domestic hot water preparation, for single-family homes, as per the present regulations. Additionally, heat transfer coefficients for windows should not exceed 0.90 W/( m 2 ·K), while external walls’ heat transfer coefficients should not exceed 0.20 W/( m 2 ·K). As a result, external walls will have a thick thermal insulation of high thermal quality [12]. Poland has implemented the regulations and directives to improve the energy efficiency of buildings to obtain the set limits in the EU’s directive. A variety of policies and measures have been taken to improve the energy efficiency of buildings which include financial support for renovations of heating systems and buildings, tax incentives, reporting requirements for buildings’ heating system performance. Around PLN 300 million have been made available to Polish citizens to finance deep renovation projects to reduce buildings’ greenhouse gas emissions and improve their energy efficiency [13]. FinEERGo-Dom project partners, namely the National Energy Conservation Agency S.A. (KAPE) and the National Fund for Environmental Protection and Water Management (NFOSiGW), have cooperated with the Polish development fund in order to provide financing to people and encourage them to pursue deep renovation and construction of energy-efficient buildings [14].
The energy sector plays a pivotal role in global greenhouse gas (GHG) emissions, significantly contributing to climate change due to its dependence on fossil fuels and extensive energy usage across industries and residential areas. Within this framework, residential buildings are particularly significant because of their substantial energy requirements for heating, cooling, and other daily operations. This study highlights how shifting climatic conditions across Europe increase building energy demands, placing additional pressure on energy systems and underscoring the urgent need for sustainable solutions [15].

1.1. Energy Standards

A passive house is a building which has a comfortable indoor temperature without having traditional heating or cooling systems. The first passive house concept was used in Darmstadt, Germany, and refers to a house with the following characteristics [16,17]:
  • The annual energy demand for heating and ventilation does not exceed 15 kW h/( m 2 year),
  • Total primary energy consumption for heating, hot water, and electricity should not exceed 120 kWh/( m 2 ·   year),
  • Airtightness must be less than 0.6 exchanges per hour as measured at a pressure of 50 Pa.
Multifamily residential buildings built to passive house standards have been compared with conventional designs. Findings suggest that buildings adhering to passive house standards consume about 50% less energy, translating to significant reductions in the operational energy demand and, consequently, GHG emissions. Such studies underscore the potential of passive house designs to reduce both energy use and environmental impacts across various climate zones [7,18].
Poland has voluntary standards for energy-efficient buildings NF40 (corresponds to low energy standard) and NF15 (corresponds to passive standard) [19]. The symbols of NF40 and NF15 standards represent the annual energy need for heating and ventilation, set to 40 and 15 kWh/( m 2 ·year), respectively. These values have been computed in compliance with the guidelines outlined in the standard EN ISO 13790 [20]. The National Energy Conservation Agency (KAPE) has developed an expert assessment outlining the principles of designing and implementing low-energy homes in Poland. Recommendations given by the KAPE specify the compulsory criteria for achieving the anticipated energy standards (NF40 and NF15) for residential buildings as well as the methods for verifying designs and ensuring the reliability of the construction which were later modified.
The mandatory standard for new buildings is marked with the symbol WT 2021 and corresponds to the requirements for near-zero energy buildings (NZEB). In this case, the requirements relate to the demand for non-renewable primary energy. The Table 1 and Table 2 list the minimal technical requirements for the construction of residential houses according to WT2021, NF40, and NF15 energy standards.
A comparison of the maximum primary energy consumption allowed by residential and non-residential NZEB standards, as well as the minimum share of energy from renewable sources are shown in Table 3 [22]. It includes chosen EU countries. When comparing the values, it is necessary to take into account that they are determined on the basis of different, national regulations. They may define differently how energy consumption is calculated, its range, or the calculation of the heated area.

1.2. Scope and Aim of the Research

The aim of this research is to perform a historical analysis of real energy consumption and indoor conditions in a single-family passive house building located near Warsaw, Poland. This work consists of:
I.
  The collection of necessary data on real annual records of electricity and heating usage,
II.
 The collection of indoor temperatures for all rooms of the house,
III.
An analysis of indoor temperature where two assessments are made:
(a)
Comfort indoor assessment: it classifies the whole-year indoor temperature in accordance with the standard EN 16798-1:2019 [23],
(b)
Precise indoor assessment: extreme weather events over a two-week critical period are selected from both the heating and the cooling season. The 14-day period is compared with indoor comfort temperatures.
IV.
A comparison of real energy consumption of the building with the theorical requirements for energy-efficient buildings,
V.
 Conclusions and recommendations.
The passive design standard is known worldwide and has already been the subject of numerous studies. For example, Korean studies [24,25] have determined the influence of passive design solutions on building energy consumption and CO2 emission. In regard to the base model, both values could be reduced by up to 60% in case of existing building stock passive solutions, e.g., cooling strategies have proved to be particularly relevant in the Mediterranean area [26]. This applies in particular to night ventilation, shading devices, and solar protections combined with solar control glazing. A research study conducted for Spain [27] has hown that the achievement of the passive standard is also affected by aspects such as building shape factor, window-to-wall ratio, and façade/roof colors. The use of light colors is better in hotter climate zones, whereas the best option is using darker colors in the colder climate zones. A Cyprus study [28] has found results that indicate significant energy conservation by integrating passive solar and energy efficiency design strategies and a high thermal mass. Energy reduction of up to 35% can be achieved by improving the glass façade performance, opening and ventilations, shading device design, building orientation, and high thermal mass. The use of passive design principles in case of existing residential houses in the hot summer and cold winter zone of China [29] has also had a positive impact not only on energy consumption, but also on the indoor thermal environment. Such improvements can increase the room temperature, reduce the indoor relative humidity in the winter, and reduce the room temperature in the summer. Similar results have been shown in the case of Chile [30]. Implementation of passive house solutions may decrease the heating energy demand by 93% in the case study single-family building. The primary energy consumption was reduced by 32% and, correspondingly, CO2 emissions were reduced by 39%. Additionally, no risk of overheating was identified.
Many papers show significant differences between theoretical energy consumption and actual consumption. This is especially true for buildings with a low energy demand [31,32]. One of the objectives of this study is to show how large the differences are. A UK study [16] has shown a much better performance in terms of both the energy demand required and the carbon dioxide emitted in the case of simulated housing. The measured data, based on average usage during the years 2007 to 2009, showed 63% higher energy consumption and 454% higher CO2 emissions. Long-term research (nine years) on one family lightweight passive house [33] has shown that, despite a very low final energy use by the technical systems, only during the first year of usage all energy consumption requirements were fulfilled. Starting from year two of the operation, the primary energy demand was exceeded by almost 40%. One reason may have been a change in the use of the building after the birth of the child. Another problem can be maintaining comfortable conditions in passive buildings, especially office ones. The results of measurements performed in an office room in the first Polish passive commercial office building during four months of normal operation have been shown in a paper of Michalak [34]. The PMV index varied from 0.52 to 1.50, indicating a ‘slightly warm’ sensation in spite of the ‘neutral’ sensation reported by the employees. One of the objectives of this study paper is to show how large the differences between design and real energy consumption and comfort parameters are.
At the same time, the paper is not aiming to be another theoretical consideration of passive construction, which has already been the subject of numerous articles [35], nor is it intended to generalize anything to other buildings. It is an analysis of a specific case and shows the effects of a correct and thoughtful approach to the issue of designing and the process of constructing a passive building. The achieved standard of thermal protection reduces the required power of the heating system to a minimum. What kind of heating system is used in the building is practically of little importance from a user perspective because it does not affect much the operating costs (Section 2.1.2). However, it has a very large impact on investment costs. The embodied carbon footprint associated with building a system using a heat pump in comparison to direct electric heating will also be larger. This is one of the basic conclusions of the analysis of this case study, making a contribution to the issue of passive construction.

2. Methodology

2.1. Introduction and Description of the Building

The house was built in 2016 near Warsaw, in Babice Stare, as part of a demonstration project made in cooperation with KAPE, Saint Gobain Polska, and a private investor. A total of four family members have been using this since 2016. The building was entirely designed by KAPE in the passive and energy-saving construction studio [36]. Figure 2 shows the general view of the building.
The building has two floors, a usable area (heated) of 186.6 m2, and a heated volume of 502.4 m 3 . It was located on the plot in accordance with the principles of locating passive buildings, which have the largest glazing surfaces facing south. The building has a compact shape, minimum glazing on the north side, and is built on a foundation slab. Figure 3 shows the view of the southern face of the building.
In order to get maximum solar gains or passive heating, buildings are built with big south-facing windows. In winter, when the sun is slanted, more sunlight enters the building without any blockade from the canopy above the ground floor windows. It helps maximize solar gain during the winter period. In the summer period, the sun is higher in the sky and less slanted; for that, a canopy was made that shades the ground floor windows and the first floor. Specially designed external blinds with the option of automatic control of the position of the slats were made to reduce the high heat gains during the summer period, as shown in the above Figure 3. Extensive care was taken during the construction of the building to ensure the high quality of the work and to select the finishing material. The building’s interior was similarly designed with high-quality material and architectural solutions.
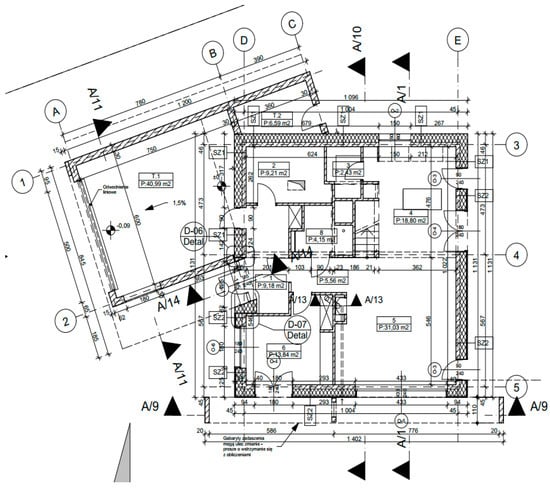
Figure 4 below shows the layout of the ground floor rooms. Mostly, the rooms are located on the southern side, while the kitchen is located on the northern side. The same is repeated for the first floor. The living rooms are located mainly on the south side and one room on the east side. The window area on the north side is practically limited to zero. The garage adjacent to the building is structurally completely isolated from the building. The walls and ceiling of the garage, as well as its foundations, are practically uninsulated and adhere to the external surface of the thermal insulation of the building walls without any structural connection. Therefore, there are no thermal bridges in these places, an approach which has a significant impact on reducing heat losses.

2.1.1. Thermal Parameters and Energy Characteristics

Table 4 shows the thermal parameters and energy characteristics of the building in comparison with the design standards requirements of NF15 and WT 2021.

2.1.2. Building’s Technical Systems

During the design phase, optimization was performed in the selection of the building’s heating system and hot water preparation system. However, the choice was limited because natural gas was not available on the plot and the investor prohibited the use of alternative fuels due to operational issues. As a result, two options were considered—electric floor heating or heating using a heat pump. Based on a dynamic simulation, the energy need for heating and hot water preparation was determined. The results of the calculations were used in the heat source selection process. A building with a very high energy standard can be heated with any carrier, since the type of carrier has a low impact on the final energy consumption and cost. In such a situation, the cost of periodic inspection and servicing of the system, as well as the reliability and failure rate of the system begin to be decisive. At the design stage, this was the subject of extensive and detailed analyses, which are not normally performed. Precisely because of the cost of inspections and servicing after two years of use of the building, the owner stopped using the heat pump for DHW—the use of this device was expensive and inconvenient. An economic analysis at the design stage showed that the simplest solutions (electric floor heating) are the most effective, combined with the use of a very simple device for heat recovery from gray wastewater. It was calculated that the building’s energy demand would be so low that using a ground heat pump would save about USD 100 in energy costs annually compared to high-efficiency electric heating and about USD 65 when using an air heat pump [36]. The investor decided to use direct electric heating using a two-zone tariff. The system used on the floor consisted of heating cables with floor temperature sensors and programmable control systems.
In the domestic hot water preparation system, it was decided to use an air–water heat pump with a tank capacity of 300 liters, leaving the option of heating water with an electric heater with a two-zone tariff. This proved to be such an effective solution that the owner stopped using the heat pump and started heating the water with an electric heater installed in the storage tank.
The building is equipped with a mechanical supply and exhaust ventilation with heat recovery. The energy consumption data of the air handling unit confirm that the residents used ventilation according to the rules, without limiting its capacity. The installation used gives the possibility to limit the ventilation air flow rate during the night period and when users are away from home. Thus, the ventilation system fully realizes the intended functionality. The owner is also aware that it was a mistake to slightly reduce the diameter of the ventilation ducts compared to the design at the stage of construction, as it resulted in an increase in the demand for electricity driving the fans compared to the assumptions (higher pressure losses).
The justification for using a biomass fireplace was discussed at the design stage. A fireplace with a small power of about 8 kW was used in the building, and, at the same time, it was supposed to increase the aesthetic value of the interior (as expected by the investor). The fireplace met the ecodesign standards for CO and particulate emissions and had a high energy efficiency. From the point of view of meeting the requirements for the passive standard, it was crucial to use a fireplace with a closed combustion chamber (supplying combustion air from the outside) and seal the chimney system so that it would not cause additional air leaks. The results of a blower door test n50 = 0.32 1/h confirmed the high quality of the construction works. According to the revised EPBD directive [10], a zero-emission building has no on-site carbon emissions from fossil fuels. The use of biomass is not excluded.

2.2. Collection of Energy Parameters and Weather Data

An energy consumption monitoring system named “KAPE monitoring system” was installed in the building for the purpose of collecting energy parameters and weather data. The analysis was performed over a time period of 5 years ranging from 2018 to 2022, considering the following parameters:
  • Energy consumption (electricity) of the heating system,
  • Energy consumption (electricity) of other systems (outdoor lightning, indoor lightning, ventilation, hot water preparation),
  • Outdoor and indoor temperature data.
The subject of the KAPE monitoring was not parameters such as air quality or relative humidity, nor the user behavior. The building was additionally the subject of a detailed, short-term study carried out by the Saint Gobain, Courbevoie, France company. The measurements included indoor air relative humidity and CO2 concentration, as well as the thermal conductivity coefficient of the envelope. The results confirmed the achievement of a high quality of indoor environment and insulation of the building elements. However, the results are not publicly available and cannot be included in this publication.
The KAPE monitoring system consisted of:
  • Meters of the OR-WE-505 type, manufactured by the Polish company ORNO-LOGISTICS Sp. z o.o., Gliwice, Poland, with an accuracy class 1, were used as electricity consumption meters. The standard IEC 62053-21 [37] defines several classes (2, 1, 0.5, and 0.2), and, for each class, the maximum measurement error dX for digital meters is determined by the formula:
dX = ±((class × indication_meter)/100 + weight_last_digit)
Regardless of whether we observed the meter’s display or read its indications in the Modbus protocol, the result was given in kilowatt-hours with an accuracy to 2 decimal places. Thus, the meter’s resolution was 10 Wh and the weight of the last digit was 0.01, so its absolute measurement error did not exceed dX = ±(1% of the display + 0.01) kWh.
  • Dedicated room temperature sensors were not designed—this is because we took advantage of the fact that most of the smart home automation sensors planned there included an air temperature sensor. Thus, in the “wet” rooms (bathrooms, kitchen), temperature readings from the FGFS-101-type flood sensors made by the Polish company FIBARO S.A. (Wysogotowo, Poland) were used (mounted on the wall at floor level), and, in all other rooms, the FGMS-001-type motion sensors made by FIBARO were used (mounted on the wall at a height of between 2 and 3 m). The accuracy of the temperature sensors used in them w ± 0.5 °C.
  • A P03/3-Modbus device made by the German company Elsner Elektronik GmbH (Ostelsheim, Germany) was used as a weather station. The accuracy of the outdoor temperature reading was within ±1.5 °C, for the solar radiation intensity measurement it was ±15%, and for the wind speed measurement it was ±22%. The station had a lower accuracy, however, and an important design feature, namely that it did not contain any moving parts (including the characteristic fans or blades) that would require troublesome periodic maintenance. Thanks to the piezoelectric method of measuring wind speed, this device was simply reliable and maintenance-free.
  • Reading, recalculating, aggregating, and sending data to the KAPE servers was handled by the euLINK recorder made by the Polish company Eutonomy Sp.K (Lodz, Poland).
The calculations for the real energy consumption and indoor thermal comfort were analyzed on an hourly basis throughout the year. The real energy consumption of the building was compared with the passive house energy standard. For the indoor thermal comfort analysis, two assessments were made which included a comfort assessment, in accordance with the standard EN 16798-1:2019 [23,38], and a precise assessment over two weeks of extreme weather events during the summer and the winter periods. For the thermal comfort analysis, the detailed procedure for one year is explained in the next chapter, while the results are discussed for the remaining years.

2.3. Data Processing and Methodology for Temperature Analysis

The analysis of real energy consumption and indoor thermal comfort was conducted on an hourly basis throughout the year. The original temperature data, collected at 10-min intervals over the entire year, contained some missing entries for specific days within certain months. To address these data gaps, an hourly average approach was adopted. Six readings were taken for each hour, and their average was calculated to obtain a one-hour interval temperature dataset.
Microsoft Excel was utilized to simplify the management and processing of this large and complex dataset, as well as performing the necessary calculations. By using hourly averages, the analysis became more comprehensible, enabling a clearer understanding of the patterns and variations in both outdoor and indoor temperatures over time.

2.4. Limitations of the Methodology and Measurements

The methodology described in the paper for assessing the quality of indoor conditions and the energy standard of the building has some limitations. Among the most important of these are:
  • The evaluation of thermal comfort conditions and the categorization of rooms are based only on the indoor air temperature. Unfortunately, the constant monitoring of the building did not include parameters such as relative air humidity, radiation temperature, or air speed. The data from a detailed, short-term study carried out by the Saint Gobain company were not available.
  • The energy use assessment did not consider the impact of user behavior. No survey on occupant habits, e.g., frequency of window opening or use of fireplace, was performed.
  • The accuracy of the temperature sensors was not high. There were also interruptions in the recording of energy consumption data. Fortunately, when recording resumed, the meters did not reset to zero and showed the total energy consumption including the interruption period.
All these limitations should be taken into account at the stage of analyzing the results presented in the paper.

3. Results and Analysis

3.1. Assessment of Indoor Thermal Comfort

Comfortable indoor temperatures contribute to the well-being and satisfaction of building occupants. Extreme temperatures, whether too hot or too cold, can have bad effects on health. Exposure to extreme heat or cold can lead to a heatstroke, hypothermia, dehydration, and other health issues. Maintaining comfortable temperatures helps mitigate these risks and promotes a healthier indoor environment. Ensuring comfortable temperatures is crucial, but it is equally important to achieve efficiency in the process. Energy-efficient heating, ventilation, and shading systems help regulate indoor temperatures effectively while minimizing energy consumption and reducing utility costs. Proper insulation, building orientation, and passive design strategies can also contribute to energy efficiency. The indoor temperature is an important parameter affecting the physiological and mental conditions of the users, as well as their work efficiency and level of activity [39,40]. Following are the two assessments made as part of the analysis of indoor temperature over a 5-year period (2018–2022):
  • Indoor environment quality assessment
  • Precise assessment
The precise assessment included the evaluation of two weeks selected from the heating and cooling seasons. These included periods with the measured lowest and highest outdoor air temperatures, respectively. For each of the analyzed years, the two-week periods may have fallen at different times. The goal of the evaluation was to see how indoor air temperatures change in individual rooms during the occurrence of extreme outdoor air temperatures. A statistical analysis of the temperature distribution allowed for the estimation of their variability. Specification of the number of hours with air temperatures above 26 °C allowed for the determination of the risk of overheating during summer periods.

3.1.1. Comfort Assessment Results (Year 2018)

Data for indoor temperatures for the year 2018 were analyzed. Readings were recorded in 10 min intervals, with a total of 51,789 readings. As a result, temperatures of around 8632 h per year were recorded. For the purpose of the indoor comfort analysis, average hourly temperatures were calculated for each room and compared with the specific requirements. Average hour temperatures inside the building were assessed in accordance with the standard EN 16798-1:2019 regarding the criteria for the indoor environment and with respect to available studies [41,42]. Temperature ranges were used for cooling and heating in four indoor environment categories. They were calculated on the basis of the following assumptions [43]:
  • Heating season—insulation of clothing ≈ 1.0 clo, activity (sitting position) ≈ 1.2 met, air velocity < 0.1 m/s, air relative humidity ≈ 40%,
  • Heating season—insulation of clothing ≈ 0.5 clo, activity (sitting position) ≈ 1.2 met, air velocity < 0.1 m/s, air relative humidity ≈ 60%.
The average hourly temperature was considered to be the operative temperature. In the case of passive buildings, when they are very well insulated, we can assume that the operative temperature is nearly equal to the air temperature [44]. Such an assumption was made to conduct the comfort assessment based on air temperature. The values of the operative temperature were compared with the minimum values for the heating season (winter) and the maximum values for the cooling season (summer) in the criteria. Thermal comfort categories refer to the following levels:
  • IEQ I: rooms with high requirements, recommended for very sensitive people (disabled, young children, the elderly), with an operative temperature ≥21.0 °C in the heating season and an operative temperature ≤25.5 °C in the cooling season.
  • IEQ II: rooms with medium requirements (new and modernized buildings) with an operative temperature ≥20.0 °C in the heating season and an operative temperature ≤26.0 °C in the cooling season.
  • IEQ III: rooms with a moderate level of requirements (existing buildings) and an operative temperature ≥18.0 °C in the heating season and an operative temperature ≤27.0 °C in the cooling season.
  • IEQ IV: rooms with low levels of expectation (accepted for a limited part of the year) with an operative temperature ≤18.0 °C in the heating season and an operative temperature ≥27.0 °C in the cooling season.
Measurement results from all rooms were compared with the abovementioned criteria. The whole-year results were broken down into cooling and heating season. The cooling period (summer) was taken to include the months of June–July–August, and the heating period (winter) was taken to extend from September to May. Below, tables show the results for each room assessed based on the abovementioned thermal comfort categories.
In terms of results (Table 5), the temperature during the heating and cooling seasons mostly remained in the category IEQ I with the highest percentage share throughout the year in each room, as there was no problem related to low and high temperatures in either season. During the whole heating and cooling seasons period, all temperatures remained within categories IEQ I, IEQ II, and IEQ III.

3.1.2. Precise Assessment Results (Year 2018)

Winter period: in terms of results (Figure 5 and Table 6), the below graph indicates that the outside temperature ranged from −16.6 °C to 8 °C, while the building ensured comfortable average temperatures ranging from 20.5°C to 24.8 °C during the extreme cold outside due to weather conditions. The greatest temperature variability occurred in the guest room and kitchen + dining room.
Summer period: in terms of results (Figure 6 and Table 7), the data showed a very good behavior of the building in terms of protection against overheating. Outside temperature ranged from 12.6 °C to 35.6 °C during the two-week period, while the building ensured comfortable average temperatures ranging from 20.5 °C to 24.8 °C during the extreme hot outside due to weather conditions. In some of the rooms (guest room, kitchen + dinning), temperatures periodically exceeded 26 °C. In regard to other years, outdoor temperatures during the night were higher.

3.1.3. Comfort Assessment Results (Year 2019)

In terms of results (Table 8), the temperature during the heating and cooling seasons mostly remained in category IEQ I with the highest percentage share throughout the year in each room, as there was no problem related to low and high temperatures in either season. During the whole heating season period, all temperatures were within categories IEQ I, IEQ II, and IEQ III, a very small percentage was in IQE IV, which is regarded as neglected, while in the cooling season all temperatures remained within the first three categories.

3.1.4. Precise Assessment Results (Year 2019)

Winter period: in terms of results (Figure 7 and Table 9), the data below indicate that the outside temperature ranged from −11.6 °C to 5.6 °C, while the building ensured comfortable average temperatures ranging from 21.3 °C to 24.9 °C during the extreme cold outside due to weather conditions. In some of the rooms (toilet, children’s bathroom, host’s bathroom, master bedroom), the minimum temperatures fell below 19 °C.
Summer period: in terms of results (Figure 8 and Table 10), the data showed a very good behavior of the building in terms of protection against overheating. The outside temperature ranged from 9.6 °C to 37.2 °C during the two-week period, while the building ensured comfortable average temperatures ranging from 23.9 °C to 25.0 °C during the extreme hot outside due to weather conditions. It is worth noting that the number of hours with temperatures above 26 °C was minimal and the indoor conditions were very stable (low SD for summer conditions).

3.1.5. Comfort Assessment Results (Year 2020)

In terms of results (Table 11), the temperature during the heating and cooling seasons mostly remained in IEQ I with the highest percentage share throughout the year in each room, as there was no problem related to low and high temperatures in either season. During the whole period, all temperatures were within the categories IEQ I, IEQ II, and IEQ III, and there were no cases when values were in the category IEQ IV.

3.1.6. Precise Assessment Results (Year 2020)

For the precise assessment of indoor temperatures, critical two-week periods were selected from both summer and winter seasons. A two-week period from the heating season was selected for the average minimum hourly temperature outside the building, whereas, for the cooling season, a two-week period was selected for the average maximum hourly temperature outside the building. The maximum temperature outside the building within the year was 35.4 °C during August, and the minimum temperature was −6.7 °C during the month of March. These maximum and minimum average hourly temperature periods were compared with the inside average hourly temperature during the same period in order to understand how the indoor environment behaves during extreme weather events. The graphs below show the indoor environment of the building during the summer and winter periods.
Winter period: in terms of results (Figure 9 and Table 12), the data below indicate that the outside temperature ranged from −6.7 °C to 20.2 °C, while the building ensured very similar average temperatures ranging from 22.0 °C to 22.8 °C during the cold outside due to weather conditions. The temperature control in the bathrooms was very precise, but the temperatures were not higher than those in other rooms.
Summer period: In terms of results (Figure 10 and Table 13), the data seem to show a very good behavior of the building in terms of protection against overheating. The outside temperature ranged from 11.5 °C to 35.4 °C during the two-week period, while the building ensured comfortable average temperatures ranging from 24.5 °C to 25.9 °C during the extreme hot outside due to weather conditions. The building did not require any air conditioning to maintain thermal comfort. In some rooms on the upper floor, the temperature periodically exceeded 26 °C. This applied in particular to the children’s room 18.

3.1.7. Comfort Assessment Results (Year 2021)

In terms of results (Table 14), the temperature during the heating and cooling seasons mostly remained in the category IEQ I with the highest percentage share throughout the year in each room, as there was no problem related to low and high temperatures in either season. During the whole heating season period, all temperatures were within the categories IEQ I, IEQ II, and IEQ III, and there were no cases when values were in IEQ IV, while, in the case of the cooling season, a percentage of average hourly temperatures remained in the category IEQ IV for some rooms.

3.1.8. Precise Assessment Results (Year 2021)

Winter period: in terms of results (Figure 11 and Table 15), the data below indicate that the outside minimum temperature ranged from −18.7 °C to 8.5 °C, while the building ensured comfortable average temperatures ranging from 20.9 °C to 23.2 °C during the extreme cold outside due to weather conditions. The temperature reached around 26.1 °C for some time in the kitchen + dinner area and 27.6 °C for some time in the guest room. This was probably because the inhabitants were using the fireplace, which made the temperature higher for a certain period of time. The temperature variability in these rooms was also the greatest.
Summer period: in terms of results (Figure 12 and Table 16), the data showed a good behavior of the building in terms of protection against overheating. The outside temperature ranged from 14.2 °C to 35.7 °C during the two-week period, while the building ensured average temperatures ranging from 24.4 °C to 26.1 °C during the extreme hot outside due to weather conditions. Compared to previous years, the number of hours with temperatures above 26 °C increased. The problem mainly affected rooms on the upper floor. In the case of the children’s rooms, the situation persisted for about 5 days. The main reason was probably the high temperature during the night which limited the effectiveness of cooling the building using ventilation.

3.1.9. Comfort Assessment Results (Year 2022)

In terms of results (Table 17), the temperature during the heating and cooling seasons mostly remained in the category IEQ I with the highest percentage share throughout the year in each room, as there was no problem related to low and high temperatures in either season. During the whole heating season period, all temperatures were within the categories IEQ I, IEQ II, and IEQ III, and there were no cases when values were in IEQ IV, while, in the case of the cooling season, a percentage of average hourly temperature remained in the category IEQ IV for some rooms.

3.1.10. Precise Assessment Results (Year 2022)

Winter period: in terms of results (Figure 13 and Table 18), the data below indicate that the outside temperature ranged from −11.2 °C to 7.3 °C, while the building ensured comfortable average temperatures ranging from 19.9 °C to 23.3 °C. The relatively high variability of indoor temperatures may be due to the use of the fireplace.
Summer period: in terms of results (Figure 14 and Table 19), the data showed a good behavior of the building in terms of protection against overheating. The outside maximum temperature ranged from 9.6 °C to 37.1 °C during the two-week period, while the building ensured average temperatures ranging from 23.9 °C to 26.5 °C during the extreme hot outside due to weather conditions. Unfortunately, as in the previous year, higher temperatures exceeding 26 °C periodically persisted in the upstairs rooms. This applied in particular to the children’s room 18. The reason may have been that the blinds were positioned differently than in the other rooms.
Overall, the assessments made for the five-year period (2018–2022) of thermal comfort consistently achieved the highest rating, maintaining its position category IEQ I almost in all years. This performance underscores the inherent efficiency and effectiveness of passive design principles implemented within the house. The consistent maintenance of optimal thermal comfort levels over the years affirms the passive house’s capacity to provide unparalleled comfort while minimizing energy consumption, thus achieving the sustainable goals. Maintaining comfort conditions during the summer is especially important due to climate change. The increase in outdoor temperatures and the more frequent occurrence of periods with temperatures above 30 °C increases the risk of overheating in buildings.

4. Real Energy Consumption of the Building

The measured energy consumption of the building included electric heating, outdoor lighting, indoor lighting, ventilation, and domestic hot water preparation. An analysis of the real energy consumption of the building was conducted through a comparison to the passive house and WT2021 standard requirements. In order to include differences in weather and internal conditions (compared to the designed ones) for the heating season, the number of heating degree days for each year was calculated, as shown in the tables for each year below.
The formula for calculating the heating degree days (HDD) is given below:
H D D = ( T A v g . I n d o o r T O u t d o o r ) × H e a t i n g   d a y s
where TAvg.Indoor is the average indoor temperature inside the building calculated based on the measured temperature in the rooms, TOutdoor is the average outdoor temperature calculated based on the measured values, and heating days correspond to the average number of heating days (heating on) in a given month. The standard HDD for Warsaw and the HDD calculated for the years 2018, 2019, 2020, 2021, and 2022 are shown in Table 20, Table 21, Table 22, Table 23, Table 24 and Table 25 below.
Depending on the year, the HDD changed form 3473 Kd to 4041 Kd. Based on them, the indicator of the severity of the heating season in relation to the standard season was calculated.

4.1. Energy Demand for Heating

The energy demand for heating was calculated based on the measured values of electricity consumption and the average heating system efficiency. It was assumed that the electricity consumption corresponded to the final energy. Additionally, the building includes a fireplace that heated it to some extent. On average, during the heating season, around 1.5–3.0 spatial meters [36] of hornbeam firewood with a calorific value of approximately 2200 kWh/mp was burned [45] by the inhabitants. This gives an additional unit final energy consumption for heating between 17.7 and 35.4 kWh/(m2·year). Both values of energy consumption were first converted into standard conditions according to the previously calculated heating degree days. The energy demand from heating was then determined by dividing the final energy consumption by the average efficiency of the electric floor heating and fireplace. According to the available guidelines, the average efficiency of the electric floor heating was assumed to be 89% and that of the fireplace 40% [12]. Below, Table 26 shows the energy demand for heating of the building for a time period of 5 years ranging from 2018 to 2022.
In terms of results, over a period of five years, the total energy demand for heating changed in the range of 9.3–19.4 kWh/(m2·year), indicating a small deviation from the passive house requirement. The magnitude of the electricity consumption was very small and the results depend mainly on the amount of wood burned in the fireplace. As similar studies show, the amount of energy consumption in passive buildings largely depends on occupant behavior [46,47]. Nevertheless, the results are near the requirements, confirming the effectiveness of the implemented technologies and sustainable building practices. Such outcomes underscore the practicality and importance of passive housing as a key element in sustainable development efforts, providing a tangible pathway toward achieving energy efficiency and environmental responsibility in construction practices.
The idea behind the project was that the occupants have full freedom in the way they use the building, including the ability to open windows according to their own mental and physical state and needs or use the fireplace. The results of the measurements clearly show that occupant behavior does not increase energy consumption or reduce indoor comfort.

4.2. Calculation of Primary Energy Consumption

Below, the Table 27 shows the calculation performed for the total non-renewable primary energy consumption of the building during the time period of five years, from 2018 to 2022. The primary energy consumption was calculated based on the final energy consumption, including the fireplace. For this purpose, the following primary energy factors (PEF) were used—2.5 for electricity and 0.2 for firewood (biomass) [12].
The study provides solid evidence of the successful implementation of sustainable energy measures in residential settings, especially within the context of passive home design principles. Over a five-year period, non-renewable primary energy usage remained below the criteria of 120 kWh/(m2·year) for passive houses. It confirms the actual application of energy-efficient measures. The results not only correspond to the fundamental principles of passive housing, but also contribute to the reduction in carbon emissions associated with the residential consumption of energy. Surpassing the existing requirements for passive housing, these findings highlight the potential for a larger adoption of sustainable building approaches, promoting a more environmentally conscious approach to urban planning. By focusing sustainability on the construction of homes, this study promotes a resilient built environment capable of eliminating the adverse effects of climate change.
Secondly, non-renewable primary energy consumption for heating, ventilation, and hot water was compared with the Polish technical requirements. The 70 kWh/(m2·year) is the actual standard value of the Polish technical requirement WT2021, which corresponds to NZEB, shown in Table 1. The results showed that non-renewable primary energy consumption was not always meeting the requirements. For the year 2021, the energy demand for hot water preparation was higher and could have influenced the result. It is worth noting that the assessed building met much stricter requirements than those of the WT2021 standard. Despite this, it did not always manage to meet the primary energy consumption requirements.
The energy balance (Figure 15) showed a significant share of energy coming from firewood and energy needed to heat domestic hot water. It was significantly greater than the amount of energy required for electric heating. For buildings with very low energy demands for heating, this domestic hot water preparation can be dominant. It is also worth noting that the unit energy demand for ventilation was similar to the unit final energy consumption for heating. Despite the use of a high-efficiency air handling unit, pressure losses created at the air transfer stage increased energy consumption. One reason for this is the use of a different ventilation design than originally planned. As it can be seen, proper planning and execution of the ventilation system not only affects indoor air quality, but also energy consumption.

5. Photovoltaic System

A photovoltaic system (PV) could be proposed to achieve zero or plus energy standards. Implementation of a PV system on the building will reduce the dependence on the traditional energy sources and CO2 emissions. The calculation of the annual final energy demand for the 5-year period from 2018 to 2022 is shown in Table 26 and Table 27. The results showed that the maximum electricity demand was around 6478 kWh/year (without the fireplace) in the year 2021. For the selection of a PV installation, it was assumed that the annual energy production will be higher than the final energy demand. On this basis, a PV system with a capacity of up to 7.2 kW, with an estimated annual electricity production of 7200 kWh/year, was selected [48]. The various properties of the PV system are shown in Table 28.
The PV panels can be mounted on the flat roof. The total space available on the roof top of the building (roof size 11.3 m × 11.0 m) is around 124 m2. For 7.2 kW, the abovementioned PV system would require around 31 m2 of area for placing 16 panels. The panels would be arranged on the southern part of the roof according to the following assumptions:
  • The distance of the panels from the edge of the roof, chimney, hatch, and attic is kept at a minimum of 0.5 m.
  • Laying the panels from the top of the roof and grouping them together as closely as possible.
The SketchUp software (https://www.sketchup.com/en, accessed on 28 August 2024) was used to show the proposed panel arrangement on the roof (Figure 16). A non-invasive mounting system with weight blocks was proposed.
In order to check the real energy production of the PV system, the Photovoltaic Geographical Information System (PVGIS), an online tool, was used. All necessary data were input to check the feasibility of the system. In terms of results, the production of the PV system was 7553 kWh (optimized slope and azimuth), which would cover the maximum final energy demand of the building. The cost of the system with the installation is around USD 7050 and the investor can receive support from the My Electricity [49] program in the amount of around USD 1470. The simple payback time for the investment at current electricity prices in Poland is about 9–14 years [50].

6. Conclusions and Recommendations

The historical analysis presented above demonstrates the effectiveness of passive building principles at achieving energy efficiency and maintaining thermal comfort in single-family passive houses. The study provides valuable insights into the long-term performance of passive houses by examining real data on energy consumption and indoor conditions over an extended period.
The main part was the analysis of the real energy consumption and thermal comfort according to the passive house energy standards. Indoor temperature assessments for a 5-year period (2018–2022) were conducted which included comfort assessments, made in accordance with the standard EN 16798-1:2019, and precise assessments, made for extreme weather events for a two-week critical period between the heating and cooling seasons. Secondly, a real energy consumption analysis, including electric heating, outdoor lighting, indoor lighting, ventilation, and domestic hot water, was compared with passive house energy standards. The results of the study show that the building is thermally comfortable to live in, as it remained in the category IEQ I and there was only limited overheating in some rooms. The total specific usable heating energy consumption remained very close to the NF15 standard value of 15 kWh/(m2·year). The total energy consumption for heating, hot water, and electricity met the standard required value of 120 kWh/(m2·year), and non-renewable primary energy consumption also met the requirement of the Polish standard value of 70 kWh/(m2·year).
It is worth noting that the cost of construction of the building at the date of completion in 2016 was not higher than the cost of constructing a standard building, due primarily to two factors. First of all, thanks to the simple architecture and design. Secondly due to the lack of need for an expensive, traditional heating system. Originally, it had been planned to use a ground source heat pump and water floor heating. The cost of such a solution accounted for about 17% of the construction cost. Eventually, after considering the energy modeling results and the economic analysis, this cost was avoided (electric floor heating was chosen), significantly reducing the construction costs.
A photovoltaic system (PV) could be proposed to achieve zero or plus energy status. Implementation of a PV system on the building will reduce the dependence on traditional energy sources and operational CO2 emissions. A system with a capacity of up to 7.2 kW could cover the final energy demand. Such a capacity requires around 31 m2 of area for placing 16 panels. The slab roof of the house has enough space, so that PV panels can easily fit on it. A structural assessment of the roof showed that the slab is adequate to support the additional load of the PV system on the top of the insulation.
The findings indicate that passive houses, designed and constructed according to established standards, can consistently meet energy efficiency requirements while ensuring the occupants’ comfort throughout the year. The adherence to passive building principles, including high levels of insulation, airtightness, and optimized solar gain, has proven to be instrumental in minimizing energy demand and reducing reliance on mechanical heating and cooling systems. This is largely due to the structure of the building, the walls of which are made of silicate bricks, and the industrial floors also have a high heat accumulation. Proper regulation of balanced ventilation and shading systems is also very important. Reducing energy requirements for cooling is extremely important in the context of heat islands. Available studies [51] show that the urban heat island has positive effects on the heating energy demand but results in a significant increase in energy demand for cooling (up to 80%).
However, continuous monitoring and feedback mechanisms are essential for identifying potential areas of improvement and optimizing building performance over time. It is recommended that the energy monitoring system should have a back-up battery and a strong internet connection, so that, in case of an electrical shutdown, the system will keep collecting the readings and there will be no error in the readings.

Author Contributions

Conceptualization, D.K., S.F. and A.S.B.; methodology, D.K. and S.F.; software, D.K., A.S.B. and S.F.; validation, S.F. formal analysis, S.F.; investigation, D.K., A.S.B. and S.F.; resources, D.K.; data curation, D.K. and A.S.B.; writing—original draft preparation, D.K., A.S.B. and S.F.; writing—review and editing, S.F., A.S.B. and D.K.; visualization, S.F. and A.S.B.; supervision, S.F.; project administration, S.F. All authors have read and agreed to the published version of the manuscript.

Funding

This research received no external funding.

Institutional Review Board Statement

Not applicable.

Informed Consent Statement

Not applicable.

Data Availability Statement

The data presented in this study are available on request from the corresponding author due to due to privacy.

Conflicts of Interest

The authors declare no conflict of interest.

References

  1. Ministry of Climate and Environment. Draft National Energy and Climate Plan to 2030. Available online: https://www.gov.pl/attachment/79b15ec0-b0c7-4825-b2c4-d3cc7c99bb44 (accessed on 1 October 2024).
  2. Narodowa Agencja Poszanowania Energii. Polish Building Typology, TABULA. Scientific Report. Available online: https://episcope.eu/fileadmin/tabula/public/docs/scientific/PL_TABULA_ScientificReport_NAPE.pdf (accessed on 1 October 2024).
  3. ODYSSEE. Poland Profile. Available online: https://www.odyssee-mure.eu/publications/efficiency-trends-policies-profiles/poland.html (accessed on 3 March 2021).
  4. Rosenow, J.; Skoczkowski, T.; Thomas, S.; Węglarz, A.; Stańczyk, W.; Jędra, M. Evaluating the Polish White Certificate Scheme. Energy Policy 2020, 144, 111689. [Google Scholar] [CrossRef]
  5. Attia, S.; Kosiński, P.; Wójcik, R.; Węglarz, A.; Koc, D.; Laurent, O. Energy Efficiency in the Polish Residential Building Stock: A Literature Review. J. Build. Eng. 2022, 45, 103461. [Google Scholar] [CrossRef]
  6. Ministry Of National Assets. The National Energy and Climate Plan for 2021–2030. Objectives and Targets, and Policies and Measures. Version 4.1 of 18 December 2019. Available online: https://energy.ec.europa.eu/system/files/2020-08/pl_final_necp_part_1_3_en_0.pdf (accessed on 1 October 2024).
  7. UNEP. Buildings and Climate Change: Status, Challenges and Opportunities; United Nations Environment Programme; UNEP DTIE: Paris, France, 2007. [Google Scholar]
  8. Eurostat. Energy Balances, European Commission, Brussels, Belgium. 2021. Available online: https://ec.europa.eu/eurostat/cache/infographs/energy_balances/enbal.html (accessed on 1 October 2024).
  9. Bertelsen, N.; Vad Mathiesen, B. EU-28 Residential Heat Supply and Consumption: Historical Development and Status. Energies 2020, 13, 1894. [Google Scholar] [CrossRef]
  10. European Union: Directive 2024/1275 of the European Parliament and of the Council of 24 April 2024 on the Energy Performance of Buildings, 2024/1275. Available online: http://data.europa.eu/eli/dir/2024/1275/oj (accessed on 1 October 2024).
  11. European Union: Directive 2010/31 of the European Parliament and of the Council of 19 May 2010 on the Energy Performance of Buildings, L 153/13. Available online: https://eur-lex.europa.eu/LexUriServ/LexUriServ.do?uri=OJ:L:2010:153:0013:0035:en:PDF (accessed on 1 October 2024).
  12. Minister of Infrastructure. National Regulation on Technical Conditions for Buildings and Their Location with Amendments. Dz. Ustaw 2013, 926. Available online: https://sip.lex.pl/akty-prawne/dzu-dziennik-ustaw/warunki-techniczne-jakim-powinnyodpowiadac-budynki-i-ich-usytuowanie-16964625 (accessed on 1 October 2024). (In Polish).
  13. Polish Long-Term Renovation Strategy, Annex to Resolution No. 23/2022 of the Council of Ministers of 9 February 2022. Available online: https://www.gov.pl/attachment/5720cb23-15d2-473d-829f-ff1010c89ecc (accessed on 1 October 2024).
  14. “FinEERGo Dom in Europe”, Project Funded from the European Union Horizon 2020 Research and Innovation Programme Under Grant Agreement No 847059. Available online: https://fineergodom.eu/ (accessed on 1 October 2024).
  15. Ciancio, V.; Salata, F.; Falasca, S.; Curci, G.; Golasi, I.; Wilde, P. Energy Demands of Buildings in the Framework of Climate Change: An Investigation Across Europe. Sustain. Cities Soc. 2020, 60, 102213. [Google Scholar] [CrossRef]
  16. Altan, H.; Gasperini, N.; Moshaver, S.; Frattari, A. Redesigning Terraced Social Housing in the UK for Flexibility Using Building Energy Simulation with Consideration of Passive Design. Sustainability 2015, 7, 5488–5507. [Google Scholar] [CrossRef]
  17. Passivhaus Institut (PHI). Passive House Planning Package (PHPP) 2007: User Guide; PHI: Darmstadt, Germany, 2010; Available online: https://wookware.org/files/PHPP.pdf (accessed on 1 October 2024).
  18. Mirhosseini, H.; Li, J.; Iulo, L.D.; Freihaut, J.D. Quantifying the Enhanced Performance of Multifamily Residential Passive House over Conventional Buildings in Terms of Energy Use. Buildings 2024, 14, 1866. [Google Scholar] [CrossRef]
  19. Firląg, S.; Witkowska, E. Heating, Hot Water and Ventilation Systems in Low Energy Buildings NF40 and NF15. Rynek Instal. 2013, 9, 26–33. Available online: https://www.rynekinstalacyjny.pl/artykul/instalacje-c-o-grzejniki/17735,instalacje-c-o-c-w-u-i-wentylacji-w-budynkach-energooszczednych-nf40-i-nf15 (accessed on 1 October 2024).
  20. ISO 13790:2008(en); Energy Performance of Buildings—Calculation of Energy Use for Space Heating and Cooling. ISO: Geneva, Switzerland, 2008. Available online: https://www.iso.org/obp/ui/#iso:std:iso:13790:ed-2:v1:en (accessed on 1 October 2024).
  21. Chwieduk, D.; Chwieduk, M. Determination of the Energy Performance of a Solar Low Energy House with Regard to Aspects of Energy Efficiency and Smartness of the House. Energies 2020, 13, 3232. [Google Scholar] [CrossRef]
  22. Buildings Performance Institute Europe. Ready for Carbon Neutral by 2050? Assessing Ambition Levels in New Building Standards Across the EU; BPIE: Brussels, Belgium, 2022; Available online: https://www.bpie.eu/wp-content/uploads/2021/12/BPIE_Assessing-NZEB-ambition-levels-across-the-EU_HD.pdf (accessed on 1 October 2024).
  23. EN 16798-1:2019; Energy Performance of Buildings—Ventilation for Buildings—Part 1: Indoor Environmental Input Parameters for Design and Assessment of Energy Performance of Buildings Addressing Indoor Air Quality, Thermal Environment, Lighting and Acoustics—Module M1–6. CEN: Brussels, Belgium, 2019.
  24. Suh, D.; Chang, S. A Heuristic Rule-Based Passive Design Decision Model for Reducing Heating Energy Consumption of Korean Apartment Buildings. Energies 2014, 7, 6897–6929. [Google Scholar] [CrossRef]
  25. Kim, C.-H.; Lee, S.-E.; Kim, K.-S. Analysis of Energy Saving Potential in High-Performance Building Technologies Under Korean Climatic Conditions. Energies 2018, 11, 884. [Google Scholar] [CrossRef]
  26. Blázquez, T.; Suárez, R.; Sendra, J.J. Monitoring a Pre-Normative Multi-Family Housing Case-Study in a Mediterranean Climate. Buildings 2017, 7, 1. [Google Scholar] [CrossRef]
  27. Fernandez-Antolin, M.-M.; del Río, J.M.; Costanzo, V.; Nocera, F.; Gonzalez-Lezcano, R.-A. Passive Design Strategies for Residential Buildings in Different Spanish Climate Zones. Sustainability 2019, 11, 4816. [Google Scholar] [CrossRef]
  28. Bekele, M.T.; Atakara, C. Residential Building Energy Conservation in Mediterranean Climate Zone by Integrating Passive Solar and Energy Efficiency Design Strategies. Buildings 2023, 13, 1073. [Google Scholar] [CrossRef]
  29. Rui, J.; Zhang, H.; Shi, C.; Pan, D.; Chen, Y.; Du, C. Survey on the Indoor Thermal Environment and Passive Design of Rural Residential Houses in the HSCW Zone of China. Sustainability 2019, 11, 6471. [Google Scholar] [CrossRef]
  30. Bravo-Orlandini, C.; Gómez-Soberón, J.M.; Valderrama-Ulloa, C.; Sanhueza-Durán, F. Energy, Economic, and Environmental Performance of a Single-Family House in Chile Built to Passivhaus Standard. Sustainability 2021, 13, 1199. [Google Scholar] [CrossRef]
  31. Bahadori-Jahromi, A.; Salem, R.; Mylona, A.; Hasan, A.U.; Zhang, H. The Effect of Occupants’ Behaviour on the Building Performance Gap: UK Residential Case Studies. Sustainability 2022, 14, 1362. [Google Scholar] [CrossRef]
  32. Wang, X.; Yuan, J.; You, K.; Ma, X.; Li, Z. Using Real Building Energy Use Data to Explain the Energy Performance Gap of Energy-Efficient Residential Buildings: A Case Study from the Hot Summer and Cold Winter Zone in China. Sustainability 2023, 15, 1575. [Google Scholar] [CrossRef]
  33. Wąs, K.; Radoń, J.; Sadłowska-Sałęga, A. Maintenance of Passive House Standard in the Light of Long-Term Study on Energy Use in a Prefabricated Lightweight Passive House in Central Europe. Energies 2020, 13, 2801. [Google Scholar] [CrossRef]
  34. Michalak, P. Selected Aspects of Indoor Climate in a Passive Office Building with a Thermally Activated Building System: A Case Study from Poland. Energies 2021, 14, 860. [Google Scholar] [CrossRef]
  35. Azari, R.; Kamel, E.; Memari, A.M. Current Developments and Future Directions in Energy-Efficient Buildings from the Perspective of Building Construction Materials and Enclosure Systems. Buildings 2024, 14, 1921. [Google Scholar] [CrossRef]
  36. Koc, D. Analiza Standardu Energetycznego i Optymalnych Rozwiązań Technologicznych Istniejącego Pasywnego Jednorodzinnego Budynku Mieszkalnego. Mater. Bud. 2023, 56–61. Available online: https://www.materialybudowlane.info.pl/pl/480-wydanie/mb-02-2023/14844-analiza-standardu-energetycznego-i-optymalnych-rozwiazan-technologicznych-istniejacego-pasywnego-jednorodzinnego-budynku-mieszkalnego.html (accessed on 1 October 2024).
  37. IEC 62053-21:2020; Electricity Metering Equipment—Particular Requirements—Part 21: Static Meters for AC Active Energy (Classes 0,5, 1 and 2). IEC: Geneva, Switzerland, 2020.
  38. Bogdan, A. Indoor Environmental Conditions in Accordance with PN-EN 16798-1:2019-06. Ciepłownictwo Ogrzew. Went. 2021, 9, 23–26. [Google Scholar] [CrossRef]
  39. Fedorczak-Cisak, M.; Furtak, M.; Gintowt, J.; Kowalska-Koczwara, A.; Pachla, F.; Stypuła, K.; Tatara, T. Thermal and Vibration Comfort Analysis of a Nearly Zero-Energy Building in Poland. Sustainability 2018, 10, 3774. [Google Scholar] [CrossRef]
  40. Castaño-Rosa, R.; Rodríguez-Jiménez, C.E.; Rubio-Bellido, C. Adaptive Thermal Comfort Potential in Mediterranean Office Buildings: A Case Study of Torre Sevilla. Sustainability 2018, 10, 3091. [Google Scholar] [CrossRef]
  41. Ogundiran, J.; Asadi, E.; Gameiro da Silva, M. A Systematic Review on the Use of AI for Energy Efficiency and Indoor Environmental Quality in Buildings. Sustainability 2024, 16, 3627. [Google Scholar] [CrossRef]
  42. Borisuit, A.; Suriyothin, P. Thermal Comfort Improvement with Passive Design Strategies in Child Development Centers in Thailand. Sustainability 2022, 14, 16713. [Google Scholar] [CrossRef]
  43. Koelblen, B.; Psikuta, A.; Bogdan, A.; Annaheim, S.; Rossi, R.M. Human Simulator—A Tool for Predicting Thermal Sensation in the Built Environment. Build. Environ. 2018, 143, 632–644. [Google Scholar] [CrossRef]
  44. Wąs, K.; Radoń, J.; Sadłowska-Sałęga, A. Thermal Comfort—Case Study in a Lightweight Passive House. Energies 2022, 15, 4687. [Google Scholar] [CrossRef]
  45. Mydlarz, K.; Wieruszewski, M. The Energy Potential of Firewood and By-Products of Round Wood Processing—Economic and Technical Aspects. Energies 2024, 17, 4797. [Google Scholar] [CrossRef]
  46. Rodríguez Vidal, I.; Otaegi, J.; Oregi, X. Thermal Comfort in NZEB Collective Housing in Northern Spain. Sustainability 2020, 12, 9630. [Google Scholar] [CrossRef]
  47. Martín-Consuegra, F.; Ludueña, C.A.; De Frutos, F.; Frutos, B.; Alonso, C.; Oteiza, I. Expectations and Outcomes When Quantifying Energy Improvements Achieved by Building Envelope Retrofitting. Sustainability 2024, 16, 3214. [Google Scholar] [CrossRef]
  48. SOLEKO POLSKA. Photovoltaic Installation 7 kW. Available online: https://www.kolektory.com/instalacje-fotowoltaiczne-ceny/instalacje-fotowoltaiczne-ceny/zestaw-o-mocy-7-kw.html (accessed on 1 October 2024).
  49. The National Fund for Environmental Protection and Water Management (NFOŚiGW). My Electricity 6.0 Program. Available online: https://mojprad.gov.pl/ (accessed on 1 October 2024).
  50. Neugebauer, M.; d’Obyrn, J.; Sołowiej, P. Economic Analysis of Profitability of Using Energy Storage with Photovoltaic Installation in Conditions of Northeast Poland. Energies 2024, 17, 3075. [Google Scholar] [CrossRef]
  51. De Cristo, E.; Evangelisti, L.; Battista, G.; Guattari, C.; De Lieto Vollaro, R.; Asdrubali, F. Annual Comparison of the Atmospheric Urban Heat Island in Rome (Italy): An Assessment in Space and Time. Buildings 2023, 13, 2792. [Google Scholar] [CrossRef]
Figure 1. Fuel share of residential heating in Europe [8].
Figure 1. Fuel share of residential heating in Europe [8].
Sustainability 17 00717 g001
Figure 2. General View of the building, source: KAPE.
Figure 2. General View of the building, source: KAPE.
Sustainability 17 00717 g002
Figure 3. View of the southern facade of the building, source: KAPE.
Figure 3. View of the southern facade of the building, source: KAPE.
Sustainability 17 00717 g003
Figure 4. Ground floor layout, source: KAPE.
Figure 4. Ground floor layout, source: KAPE.
Sustainability 17 00717 g004
Figure 5. Inside and outside temperature patterns during an extreme cold event, 2018.
Figure 5. Inside and outside temperature patterns during an extreme cold event, 2018.
Sustainability 17 00717 g005
Figure 6. Inside and outside temperature patterns during an extreme hot event, 2018.
Figure 6. Inside and outside temperature patterns during an extreme hot event, 2018.
Sustainability 17 00717 g006
Figure 7. Inside and outside temperature patterns during an extreme cold event, 2019.
Figure 7. Inside and outside temperature patterns during an extreme cold event, 2019.
Sustainability 17 00717 g007
Figure 8. Inside and outside temperature patterns during an extreme hot event, 2019.
Figure 8. Inside and outside temperature patterns during an extreme hot event, 2019.
Sustainability 17 00717 g008
Figure 9. Inside and outside temperature patterns during an extreme cold event, 2020.
Figure 9. Inside and outside temperature patterns during an extreme cold event, 2020.
Sustainability 17 00717 g009
Figure 10. Inside and outside temperature patterns during an extreme hot event, 2020.
Figure 10. Inside and outside temperature patterns during an extreme hot event, 2020.
Sustainability 17 00717 g010
Figure 11. Inside and outside temperature patterns during an extreme cold event, 2021.
Figure 11. Inside and outside temperature patterns during an extreme cold event, 2021.
Sustainability 17 00717 g011
Figure 12. Inside and outside temperature patterns during an extreme hot event, 2021.
Figure 12. Inside and outside temperature patterns during an extreme hot event, 2021.
Sustainability 17 00717 g012
Figure 13. Inside and outside temperature patterns during an extreme cold event, 2022.
Figure 13. Inside and outside temperature patterns during an extreme cold event, 2022.
Sustainability 17 00717 g013
Figure 14. Inside and outside temperature patterns during an extreme hot event, 2022.
Figure 14. Inside and outside temperature patterns during an extreme hot event, 2022.
Sustainability 17 00717 g014
Figure 15. Year-over-year comparisons of the final energy consumption balance (1.5 mb firewood).
Figure 15. Year-over-year comparisons of the final energy consumption balance (1.5 mb firewood).
Sustainability 17 00717 g015
Figure 16. South-eastern view of the panels.
Figure 16. South-eastern view of the panels.
Sustainability 17 00717 g016
Table 1. Energy standard of buildings [12,19,21].
Table 1. Energy standard of buildings [12,19,21].
Energy Standard of a BuildingNon-Renewable Primary Energy Demand for Heating, Ventilation, and Hot Water Preparation, kWh/ ( m 2 ·year)Energy Demand for Heating, kWh/ ( m 2 ·year)
WT2021 (NZEB PL)70-
NF40-40
NF15 (corresponds to passive standard)-15
Passive 15
Table 2. Heat transfer coefficient U values [12,19,21].
Table 2. Heat transfer coefficient U values [12,19,21].
Heat Transfer Coefficient U (W/ m 2 K)
WT 2021
(NZEB PL)
NF40NF15
External walls≤0.20≤0.15≤0.10
Flat roofs≤0.15≤0.12≤0.10
Floor on the ground≤0.30≤0.20≤0.12
Windows≤0.90≤1.00≤0.80
Doors≤1.30≤1.30≤0.80
Table 3. Comparison of energy performance and renewable energy requirements [22].
Table 3. Comparison of energy performance and renewable energy requirements [22].
Country/
Region
Maximum Primary Energy Demand, kWh/ ( m 2 ·year)Minimum Share
of RES in Primary
Energy Demand
ResidentialNon-Residential
Flanders
(Belgium)
203070%
France7550–7075%
Germany407515–50%
Italy3511550%
Spain40–86 (avg. 63)120–165 (avg. 143)Not applicable
Table 4. List of basic thermal insulation parameters and energy features of the building.
Table 4. List of basic thermal insulation parameters and energy features of the building.
No.Description of the RequirementNF15 (Passive)WT2021Designed and Constructed BuildingAdditional Description
Heat transfer coefficients U, W/(m2·K)
1.External walls0.100.200.085 ÷ 0.089Light wet method, mineral wool—thickness 38 cm (36 cm in the area of stone cladding)
2.Flat roofs0.100.150.065 ÷ 0.083Variable thickness of insulation on the roof (creating slopes)
3.Floor on the ground0.120.300.08The slab foundation is insulated over the entire surface
4.Windows0.800.900.72 ÷ 0.78Special triple-glazed sets from Schuco energy-saving profiles
5.Doors0.801.300.80Special energy-saving doors
Thermal bridges, W/(m·K)
6.Attic--−0.09 ÷ −0.02Different thicknesses of insulation around the attic wall
7.Window joinery--0.01Correctly solved construction details
8.Sliding balcony doors--0.001 ÷ 0.006In various cross-sections
9.Opening balcony doors--0.15
10.Remaining bridges--Zero or negativeDue to the thickness of thermal insulation and the external method of dimensioning
Mechanical supply and exhaust ventilation with heat recovery
11.Efficiency of heat recovery from ventilation air≥ 90%no93% (temperature)
89% effective average annual
Data in accordance with catalog cards.
The calculated fan power demand factor for the building is 0.29 W/(m3/h)
Building airtightness
12.Designed and assumed value of n500.6 1/h3.0 1/h0.6 1/hObtained on the basis of an airtightness test—0.32 1/h (confirmation of the high quality of the construction works)
Table 5. Thermal comfort classification, 2018.
Table 5. Thermal comfort classification, 2018.
Room TypeThermal Comfort Classification
Heating Season Cooling Season
IEQ IIEQ IIIEQ IIIIEQ IVIEQ IIEQ IIIEQ IIIIEQ IV
Vestibule78.4%19.2%2.4%0.0%95.9%3.0%1.1%0.0%
Kitchen + Dining Room80.8%17.5%1.6%0.0%90.5%8.2%1.3%0.0%
Living Room77.7%20.2%2.1%0.1%97.1%2.0%0.8%0.0%
Office 79.3%18.9%1.8%0.0%93.5%5.5%1.1%0.0%
Toilet 73.7%24.7%1.7%0.0%96.7%3.3%0.0%0.0%
Children’s Bathroom80.2%18.0%1.8%0.0%99.0%0.8%0.2%0.0%
Host’s Bathroom66.2%31.6%2.2%0.0%100.0%0.0%0.0%0.0%
Master Bedroom74.0%12.9%13.0%0.0%100.0%0.0%0.0%0.0%
Children’s Room 1679.3%18.7%2.0%0.0%100.0%0.0%0.0%0.0%
Guest Room91.7%6.8%1.5%0.0%94.3%5.7%0.0%0.0%
Children’s Room 1878.2%19.7%2.1%0.0%100.0%0.0%0.0%0.0%
Table 6. Analysis of temperature change during an extreme cold event in 2018.
Table 6. Analysis of temperature change during an extreme cold event in 2018.
OutdoorVestibuleKitchen +
Dining Room
Living RoomOfficeToiletChildren’s BathroomHost’s BathroomMaster BedroomChildren’s Room 16Guest RoomChildren’s Room 18
Avg. temp. [°C]−6.621.323.822.522.120.720.820.521.422.324.821.8
Std. dev. [K]5.30.81.51.00.50.30.30.30.50.61.90.6
Min. temp. [°C]−16.619.820.519.220.520.120.319.919.920.321.220.3
Max. temp. [°C]8.023.427.825.023.221.421.321.023.324.029.023.3
Table 7. Analysis of temperature change during an extreme hot event, 2018.
Table 7. Analysis of temperature change during an extreme hot event, 2018.
OutdoorVestibuleKitchen +
Dining Room
Living RoomOfficeToiletChildren’s BathroomHost’s BathroomMaster BedroomChildren’s Room 16Guest RoomChildren’s Room 18
Avg. temp. [°C]24.521.323.822.522.120.720.820.521.422.324.821.8
Std. dev. [K]5.60.81.51.00.50.30.30.30.50.61.90.6
Min. temp. [°C]12.619.820.519.220.520.120.319.919.920.321.220.3
Max. temp. [°C]35.623.427.825.023.221.421.321.023.324.029.023.3
Hours temp. > 26 [h]1110220000000820
Table 8. Thermal comfort classification, 2019.
Table 8. Thermal comfort classification, 2019.
Room TypeThermal Comfort Classification
Heating Season Cooling Season
IEQ IIEQ IIIEQ IIIIEQ IVIEQ IIEQ IIIEQ IIIIEQ IV
Vestibule86.9%12.0%0.9%0.1%98.4%1.6%0.0%0.0%
Kitchen + Dining Room92.9%6.9%0.1%0.1%99.9%0.1%0.0%0.0%
Living Room90.3%9.4%0.2%0.1%99.3%0.7%0.0%0.0%
Office 88.5%10.7%0.7%0.0%99.7%0.3%0.0%0.0%
Toilet 85.4%14.4%0.1%0.1%100.0%0.0%0.0%0.0%
Children’s Bathroom96.8%2.9%0.2%0.1%92.1%6.8%1.1%0.0%
Host’s Bathroom92.7%7.0%0.2%0.1%90.4%8.0%1.6%0.0%
Master Bedroom92.4%6.8%0.6%0.1%94.3%5.1%0.6%0.0%
Children’s Room 1695.8%3.9%0.1%0.1%90.1%7.5%2.4%0.0%
Guest Room94.4%5.5%0.1%0.1%98.5%1.4%0.1%0.0%
Children’s Room 1895.2%4.5%0.1%0.1%93.5%5.4%1.1%0.0%
Table 9. Analysis of temperature change during an extreme cold event, 2019.
Table 9. Analysis of temperature change during an extreme cold event, 2019.
OutdoorVestibuleKitchen +
Dining Room
Living RoomOfficeToiletChildren’s BathroomHost’s BathroomMaster BedroomChildren’s Room 16Guest RoomChildren’s Room 18
Avg. temp. [°C]−0.622.724.523.222.721.421.521.321.922.624.922.2
Std. dev. [K]3.90.71.61.00.50.30.30.30.50.71.80.6
Min. temp. [°C]−11.619.820.219.519.518.518.618.518.719.320.619.0
Max. temp. [°C]5.624.529.425.723.621.822.021.722.924.229.923.5
Table 10. Analysis of temperature change during an extreme hot event, 2019.
Table 10. Analysis of temperature change during an extreme hot event, 2019.
OutdoorVestibuleKitchen +
Dining Room
Living RoomOfficeToiletChildren’s BathroomHost’s BathroomMaster BedroomChildren’s Room 16Guest RoomChildren’s Room 18
Avg. temp. [°C]23.324.623.924.124.224.025.025.024.724.624.324.5
Std. dev. [K]6.20.50.60.60.60.40.50.40.60.70.70.7
Min. temp. [°C]9.422.720.622.622.923.324.124.423.223.122.622.9
Max. temp. [°C]37.225.525.225.125.324.825.925.826.226.826.626.1
Hours temp. > 26 [h]9800000001822
Table 11. Thermal comfort classification, 2020.
Table 11. Thermal comfort classification, 2020.
Room TypeThermal Comfort Classification
Heating Season Cooling Season
IEQ IIEQ IIIEQ IIIIEQ IVIEQ IIEQ IIIEQ IIIIEQ IV
Vestibule87.1%11.8%1.2%0.0%99.3%1.0%0.0%0.0%
Kitchen + Dining Room89.3%9.0%1.7%0.0%99.9%0.1%0.0%0.0%
Living Room87.8%10.2%1.9%0.0%99.9%0.1%0.0%0.0%
Office 85.6%12.9%1.5%0.0%100.0%0.0%0.0%0.0%
Toilet 93.6%6.4%0.0%0.0%100.0%0.0%0.0%0.0%
Children’s Bathroom97.0%2.0%0.0%0.0%83.8%14.6%1.6%0.0%
Host’s Bathroom97.9%2.1%0.0%0.0%73.6%24.8%1.5%0.0%
Master Bedroom93.4%6.6%0.0%0.0%84.5%11.4%4.0%0.0%
Children’s Room 1694.3%5.0%0.4%0.0%83.9%11.6%4.1%0.0%
Guest Room97.2%2.5%0.3%0.0%94.5%4.9%0.6%0.0%
Children’s Room 1896.4%3.3%0.3%0.0%72.1%19.2%8.6%0.0%
Table 12. Analysis of temperature change during an extreme cold event, 2020.
Table 12. Analysis of temperature change during an extreme cold event, 2020.
OutdoorVestibuleKitchen +
Dining Room
Living RoomOfficeToiletChildren’s BathroomHost’s BathroomMaster BedroomChildren’s Room 16Guest RoomChildren’s Room 18
Avg. temp. [°C]6.122.022.622.322.322.022.422.022.122.322.822.4
Std. dev. [K]5.80.71.00.60.50.30.20.20.30.41.10.4
Min. temp. [°C]−6.720.921.321.121.121.422.021.621.321.421.421.5
Max. temp. [°C]20.225.526.724.523.422.522.922.323.223.727.223.5
Table 13. Analysis of temperature change during an extreme hot event, 2020.
Table 13. Analysis of temperature change during an extreme hot event, 2020.
OutdoorVestibuleKitchen +
Dining Room
Living RoomOfficeToiletChildren’s BathroomHost’s BathroomMaster BedroomChildren’s Room 16Guest RoomChildren’s Room 18
Avg. temp. [°C]23.425.024.524.724.624.525.525.725.625.425.325.9
Std. dev.[K]5.90.30.40.30.30.20.30.20.40.50.40.4
Min. temp. [°C]11.523.420.423.523.223.524.325.424.724.024.125.0
Max. temp. [°C]35.425.925.925.525.325.026.226.127.127.426.726.9
Hours temp. > 26 [h]1100000020255523797
Table 14. Thermal comfort classification, 2021.
Table 14. Thermal comfort classification, 2021.
Room TypeThermal Comfort Classification
Heating Season Cooling Season
IEQ IIEQ IIIEQ IIIIEQ IVIEQ IIEQ IIIEQ IIIIEQ IV
Vestibule83.4%16.1%0.5%0.0%88.5%10.2%1.3%0.0%
Kitchen + Dining Room98.1%1.9%0.0%0.0%96.4%2.8%0.8%0.0%
Living Room95.2%4.8%0.0%0.0%95.1%3.6%1.2%0.0%
Office 97.3%2.7%0.0%0.0%95.1%3.4%1.2%0.0%
Toilet 76.9%23.0%0.1%0.0%100.0%0.0%0.0%0.0%
Children’s Bathroom98.8%1.2%0.0%0.0%74.0%15.6%5.0%0.0%
Host’s Bathroom80.0%20.0%0.0%0.0%65.1%25.5%9.3%0.0%
Master Bedroom99.8%0.2%0.0%0.0%80.1%13.4%5.8%0.7%
Children’s Room 1699.8%0.2%0.0%0.0%81.9%6.1%10.7%1.4%
Guest Room98.9%1.1%0.0%0.0%87.6%8.4%2.6%1.4%
Children’s Room 1897.5%2.5%0.0%0.0%63.5%14.7%16.4%5.3%
Table 15. Analysis of temperature change during an extreme cold event, 2021.
Table 15. Analysis of temperature change during an extreme cold event, 2021.
OutdoorVestibuleKitchen +
Dining Room
Living RoomOfficeToiletChildren’s BathroomHost’s BathroomMaster BedroomChildren’s Room 16Guest RoomChildren’s Room 18
Avg. temp. [°C]−1.821.122.721.721.720.921.320.721.621.823.221.4
Std. dev. [K]6.70.61.30.70.40.30.30.30.30.41.70.4
Min. temp. [°C]−18.719.119.619.620.618.320.820.121.020.821.020.5
Max. temp. [°C]8.523.326.123.822.621.422.121.223.023.027.622.4
Table 16. Analysis of temperature change during an extreme hot event, 2021.
Table 16. Analysis of temperature change during an extreme hot event, 2021.
OutdoorVestibuleKitchen +
Dining Room
Living RoomOfficeToiletBathroom ChildrenHost’s BathroomMaster BedroomChildren’s Room 16Guest RoomChildren’s Room 18
Avg. temp. [°C]23.125.124.524.724.824.425.625.725.725.725.426.1
Std. dev. [K]5.10.60.80.80.70.40.60.30.60.81.01.0
Min. temp. [°C]14.224.323.223.623.823.824.625.224.723.724.124.4
Max. temp. [°C]35.726.726.926.726.825.226.926.527.528.028.728.5
Hours temp. > 26 [h]9019101718088766711058134
Table 17. Thermal comfort classification, 2022.
Table 17. Thermal comfort classification, 2022.
Room TypeThermal Comfort Classification
Heating Season Cooling Season
IEQ IIEQ IIIEQ IIIIEQ IVIEQ IIEQ IIIEQ IIIIEQ IV
Vestibule63.5%9.7%6.1%0.1%90.5%3.9%5.6%0.0%
Kitchen + Dining Room85.7%3.8%0.0%0.0%94.7%4.3%1.0%0.0%
Living Room79.4%11.7%3.1%0.0%93.7%4.3%2.0%0.0%
Office 79.2%10.7%3.0%0.0%87.9%5.2%4.0%2.9%
Toilet 70.4%11.6%6.2%0.0%98.6%1.4%0.0%0.0%
Children’s Bathroom87.6%11.7%0.7%0.0%74.9%10.8%13.9%0.4%
Host’s Bathroom82.2%29.6%0.0%0.0%79.8%7.7%12.5%0.0%
Master Bedroom86.4%19.7%1.1%0.0%82.9%9.5%6.9%0.7%
Children’s Room 1685.2%18.3%2.3%0.0%68.4%14.1%13.0%4.4%
Guest Room96.2%13.9%0.3%0.0%71.3%10.5%14.2%0.0%
Children’s Room 1884.2%29.9%6.6%0.0%33.8%15.6%28.4%21.8%
Table 18. Analysis of temperature change during an extreme cold event, 2022.
Table 18. Analysis of temperature change during an extreme cold event, 2022.
OutdoorVestibuleKitchen +
Dining Room
Living RoomOfficeToiletChildren’s BathroomHost’s BathroomMaster BedroomChildren’s Room 16Guest RoomChildren’s Room 18
Avg. temp. [°C]−0.120.122.321.220.820.320.419.920.620.623.320.0
Std. dev. [K]4.50.51.50.90.40.20.40.40.60.71.80.6
Min. temp. [°C]−11.219.219.919.519.820.019.819.319.419.420.617.5
Max. temp. [°C]7.321.526.523.622.020.821.320.822.222.527.421.6
Table 19. Analysis of temperature change during an extreme hot event, 2022.
Table 19. Analysis of temperature change during an extreme hot event, 2022.
OutdoorVestibuleKitchen +
Dining Room
Living RoomOfficeToiletChildren’s BathroomHost’s BathroomMaster BedroomChildren’s Room 16Guest RoomChildren’s Room 18
Avg. temp. [°C]20.524.323.924.024.223.925.125.224.724.725.226.5
Std. dev. [K]5.91.01.11.11.00.80.90.91.00.91.10.8
Min. temp. [°C]9.622.622.122.422.522.723.723.823.223.223.424.5
Max. temp. [°C]37.126.226.526.225.925.126.626.427.226.428.528.6
Hours temp. > 26 [h]49666009089302488209
Table 20. Standard heating days in Warsaw.
Table 20. Standard heating days in Warsaw.
Average Indoor Temp. [°C] 20.0
Month IIIIIIIVVVIVII VIIIIXXXIXII
Heating days 3128313050005313031
Outdoor temp. [°C] −1.2−0.94.46.312.217.119.216.612.88.22.90.8
Days 6575854844113900036366513595
Total3686
Table 21. Heating days in Warsaw, 2018.
Table 21. Heating days in Warsaw, 2018.
Average Indoor Temp. [°C] 22.52
Month IIIIIIIVVVIVII VIIIIXXXIXII
Heating days 3128313050005313031
Outdoor temp. [°C] 1.7−2.31.914.719.420.511.522.217.111.25.32.4
Days 6456956392351600027351517624
Total3748
Table 22. Heating days in Warsaw, 2019.
Table 22. Heating days in Warsaw, 2019.
Average Indoor Temp. [°C] 22.45
Month IIIIIIIVVVIVII VIIIIXXXIXII
Heating days 3128313050005313031
Outdoor temp. [°C] −0.83.86.711.814.524.420.122.115.412.07.34.1
Days 7215224883204000035324455569
Total3473
Table 23. Heating days in Warsaw, 2020.
Table 23. Heating days in Warsaw, 2020.
Average Indoor Temp. [°C] 22.7
Month IIIIIIIVVVIVII VIIIIXXXIXII
Heating days 3128313050005313031
Outdoor temp. [°C] 3.34.46.010.512.820.120.422.016.711.56.63.0
Days 6015125183665000030347483611
Total3518
Table 24. Heating days in Warsaw, 2021.
Table 24. Heating days in Warsaw, 2021.
Average Indoor Temp. [°C] 22.63
Month IIIIIIIVVVIVII VIIIIXXXIXII
Heating days 3128313050005313031
Outdoor temp. [°C] −0.4−1.04.28.013.921.922.918.315.010.66.1−0.1
Days 7146625714394400038373496705
Total4041
Table 25. Heating days in Warsaw, 2022.
Table 25. Heating days in Warsaw, 2022.
Average Indoor Temp. [°C] 22.53
Month IIIIIIIVVVIVII VIIIIXXXIXII
Heating days 3128313050005313031
Outdoor temp. [°C] 1.74.14.78.215.621.120.623.213.212.15.20.5
Days 6465165534303500047323520683
Total3752
Table 26. Results of the analysis of the demand and indicators of energy consumption in the building.
Table 26. Results of the analysis of the demand and indicators of energy consumption in the building.
No.Description Unit20182019202020212022Standard
1Average indoor temperature in the rooms°C22.522.522.722.622.520.0
2Number of heating degree days Days374834733518404137523686
3Heating meter reading at the beginning of the yearkWh38724492527658826790-
4Heating meter reading at the end of the yearkWh44925276564867897457-
5Final energy consumption for heating purposeskWh/year620784372908668-
6Unit final energy demand for heating purposeskWh/(m2·year)3.34.22.04.93.6-
7Indicator of the severity of the heating season in relation to the standard season-1.010.940.951.091.021.00
8Final energy consumption for heating purposes calculated for the standard seasonkWh/year613.6833.9391.3832.7654.7-
9Unit final energy consumption for heating in the standard seasonkWh/(m2·year)3.34.52.14.53.5-
10Energy demand for heating in the standard season (the assumed efficiency of the system is 89%)kWh/(m2·year)2.94.01.94.03.1-
Specific demand for useable energy (including the fireplace)
11Final energy consumption fireplace (assumed 1.5 mb)kWh/(m2·year)17.717.717.717.717.7-
12Final energy consumption fireplace in the standard season (1.5 mb)kWh/(m2·year)17.518.818.616.217.3-
13Energy demand for heating (the assumed efficiency of the fireplace is 40%)kWh/(m2·year)7.07.57.46.56.9-
14Total energy demand for heating: electric heating + fireplace (1.5 mb)kWh/(m2·year)9.911.59.310.510.0< 15
15Final energy consumption of the fireplace (3.0 mb)kWh/(m2·year)35.435.435.435.435.4-
16Final energy consumption of the fireplace in the standard season (3.0 mb)kWh/(m2·year)35.733.233.638.636.1-
17Energy demand for heating (the assumed efficiency of the fireplace is 40%)kWh/(m2·year)14.313.313.415.414.4-
18Total energy demand for heating: electric heating + fireplace (3.0 mb)kWh/(m2·year)17.217.315.319.417.5< 15
Table 27. Results of non-renewable primary energy consumption of the building.
Table 27. Results of non-renewable primary energy consumption of the building.
No.Description Unit20182019202020212022Standard
1Final energy consumption for outdoor lightingkWh/year134328186330154-
2Unit energy demand for outdoor lightingkWh/(m2·year)0.71.81.01.80.8-
3Final energy consumption for indoor lightingkWh/year282274201457288-
4Unit energy demand for indoor lightingkWh/(m2·year)1.51.51.12.51.5-
5Final energy consumption for ventilation kWh/year759646419837500-
6Unit energy demand for ventilationkWh/(m2·year)4.13.52.34.52.7-
7Final energy consumption for domestic hot water preparation kWh/year24562420263539473142-
8Unit energy demand for hot water preparationkWh/(m2·year)13.213.014.121.216.8-
Total non-renewable primary energy consumption
9Total non-renewable primary energy consumption (1.5 mb firewood)kWh/(m2·year)60.564.155.189.066.9<120
10Heating, hot water, and ventilation non-renewable primary energy consumption (1.5 mb firewood)kWh/(m2·year)54.956.049.978.561.0<70
11Total non-renewable primary energy consumption (3.0 mb firewood)kWh/(m2·year)64.167.058.193.570.7<120
12Heating, hot water, and ventilation non-renewable primary energy consumption (3.0 mb firewood)kWh/(m2·year)58.558.952.983.064.8<70
Table 28. PV system properties 0.
Table 28. PV system properties 0.
Photovoltaic Panels
ModelIBC 450 MS-TA1—450 Wp
Number of panels, pieces16 pcs.
Total roof area requirement 31   m 2
Manufacturer’s country Germany
Warranty15 years against manufacturing defects; 30 years for efficiency > 87.4%
Gride inverter
Model Symo 7.0-3-M
AC nominal power 7 kW
Number of phases 3
Monitoring LAN, wi-fi
Manufacturer’s countryAustria
Guarantee years 10
Disclaimer/Publisher’s Note: The statements, opinions and data contained in all publications are solely those of the individual author(s) and contributor(s) and not of MDPI and/or the editor(s). MDPI and/or the editor(s) disclaim responsibility for any injury to people or property resulting from any ideas, methods, instructions or products referred to in the content.

Share and Cite

MDPI and ACS Style

Firląg, S.; Baig, A.S.; Koc, D. Historical Analysis of Real Energy Consumption and Indoor Conditions in Single-Family Passive Building. Sustainability 2025, 17, 717. https://doi.org/10.3390/su17020717

AMA Style

Firląg S, Baig AS, Koc D. Historical Analysis of Real Energy Consumption and Indoor Conditions in Single-Family Passive Building. Sustainability. 2025; 17(2):717. https://doi.org/10.3390/su17020717

Chicago/Turabian Style

Firląg, Szymon, Abdullah Sikander Baig, and Dariusz Koc. 2025. "Historical Analysis of Real Energy Consumption and Indoor Conditions in Single-Family Passive Building" Sustainability 17, no. 2: 717. https://doi.org/10.3390/su17020717

APA Style

Firląg, S., Baig, A. S., & Koc, D. (2025). Historical Analysis of Real Energy Consumption and Indoor Conditions in Single-Family Passive Building. Sustainability, 17(2), 717. https://doi.org/10.3390/su17020717

Note that from the first issue of 2016, this journal uses article numbers instead of page numbers. See further details here.

Article Metrics

Back to TopTop