A Portfolio of Building Solutions Supporting Positive Energy District Transition: Assessing the Impact of Green Building Certifications
Abstract
1. Introduction
1.1. Neighborhoods Sustainability Assessment Tools and Material Selection Criteria
1.2. Green Building Rating Systems and Material Selection Criteria
1.3. Objectives and Structure of the Article
- What recurring technical solutions can support achieving the three PED targets (energy efficiency, renewable energy production, and energy flexibility), and which materials are most commonly used for these solutions?
- To what extent do sustainability criteria influence the selection of materials used for these solutions?
- The definition of a portfolio of technical solutions for the transition to PEDs, which can be implemented and updated over time;
- A comparison between the materials used in energy efficiency interventions and the requirements established by the main GBRS.
2. Materials and Methods
- -
- to highlight the findings derived from the analysis of building renovation interventions;
- -
- to identify the construction characteristics of recurring technical solutions;
- -
- to verify whether specific measures for the selection of eco-sustainable construction products, considering their entire life cycle, were adopted in the observed projects.
- -
- an in-depth study, conducted through a document review, of the residential building renovation interventions and their summarized graphical representation (see Section 2.1 and Section 3.1);
- -
- the identification of technical solutions and products used for their implementation (see Section 2.2 and Section 3.2);
- -
- the evaluation of the identified construction products concerning the environmental sustainability criteria present in green building certification protocols (see Section 2.3 and Section 3.3).
2.1. Analysis of Building Renovation Projects
2.2. Analysis of Construction Technical Solutions
- -
- external wall insulation;
- -
- roof/terrace insulation;
- -
- external window replacement.
2.3. Comparison Between the Observed Building Products and Sustainability Criteria for Material Selection
3. Results
3.1. Outcomes from the Analysis of Building Renovation Projects
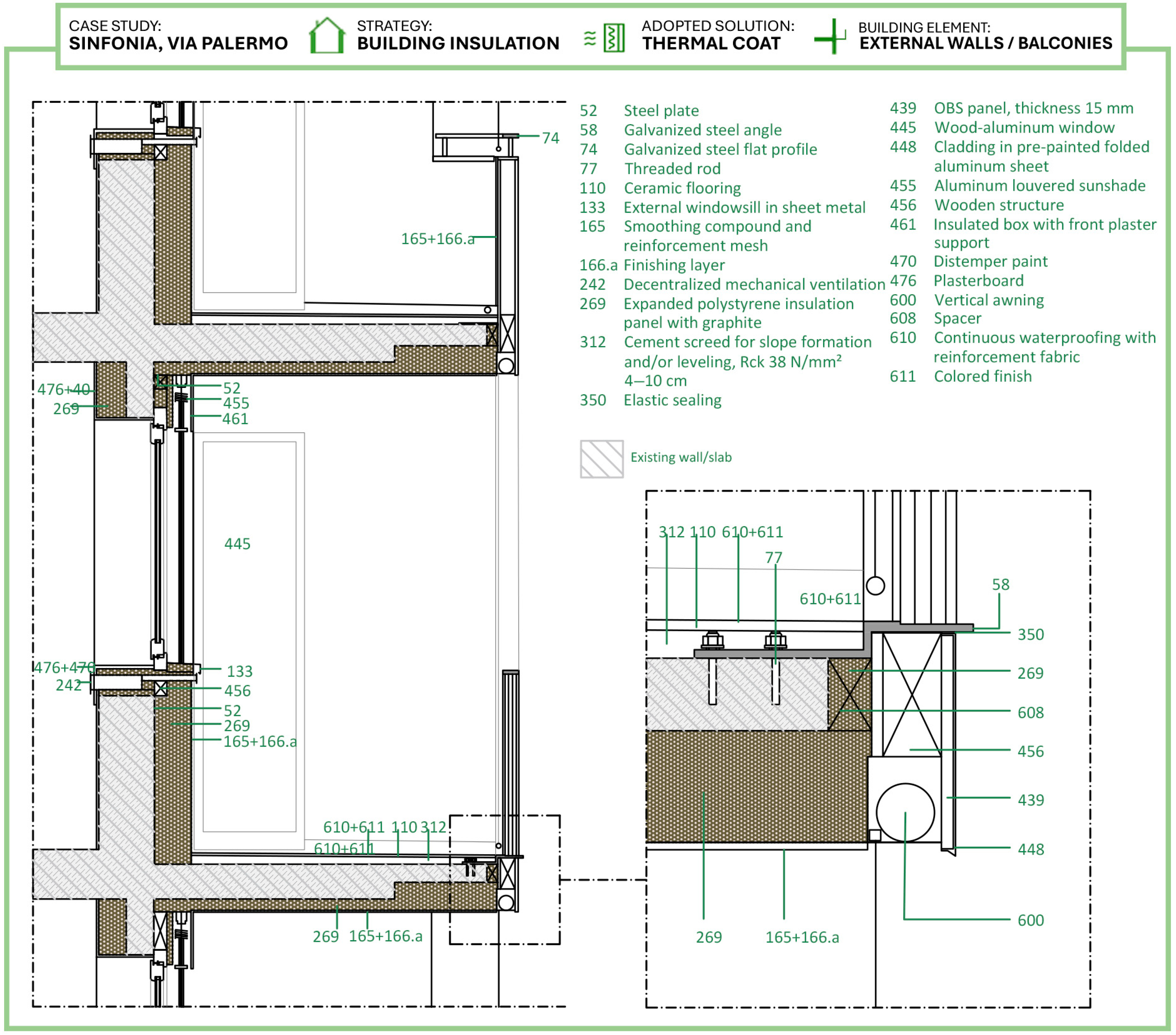
3.2. Construction Features of Recurrent Technological Solutions
3.3. Compliance of Products with Material Sustainability Criteria
4. Discussion and Conclusions
Author Contributions
Funding
Institutional Review Board Statement
Informed Consent Statement
Data Availability Statement
Acknowledgments
Conflicts of Interest
Abbreviations
| AP | Acidification Potential | 
| ANAB | National Association for Green Building Architecture | 
| BREEAM | Building Research Establishment Environmental Assessment Method | 
| BPDO | Building Product Disclosure and Optimization | 
| CAM | Minimum Environmental Criteria | 
| CLP | Classification Labeling and Packaging | 
| CFC | Chlorofluorocarbons | 
| CO2 | Carbon Dioxide | 
| EPD | Environmental Product Declarations | 
| ETICS | External Thermal Insulation Composite System | 
| EU | European Union | 
| FSC | Forest Stewardship Council | 
| GBRS | Green Building Rating Systems | 
| GDP | Gross Domestic Product | 
| GHG | Greenhouse Gas | 
| GPP | Green Public Procurement | 
| GWP | Global Warming Potential | 
| HCFC | Hydrochlorofluorocarbons | 
| ICEA | Institute for Ethical and Environmental Certification | 
| ICT | Information and Communication Technology | 
| IPES | Institute for Social Housing of the Autonomous Province of Bolzano | 
| KPI | Key Performance Indicators | 
| LCA | Life Cycle Assessment, | 
| LEEAD | Leadership in Energy and Environmental Design | 
| MV | Mechanical Ventilation | 
| NSA | Neighborhood Sustainability Assessment | 
| ODP | Ozone Depletion Potential | 
| OSB | Oriented Strand Board | 
| PED | Positive Energy Districts | 
| PEI nr | Non-renewable Primary Energy | 
| PEFC | Program for the Endorsement of Forest Certification | 
| SVHC | Substances of Very High Concern | 
| TES | Thermal Energy Storage | 
| ZEN | Zero Emission Neighborhood | 
References
- JPI Urban Europe/SET Plan Action 3.2 White Paper on PED Reference Framework for Positive Energy Districts and Neighbourhoods. Available online: https://jpi-urbaneurope.eu/ped/ (accessed on 29 November 2024).
- European Commission COM(2019) 640 Final. The European Green Deal. Available online: https://eur-lex.europa.eu/legal-content/EN/TXT/PDF/?uri=CELEX:52019DC0640 (accessed on 23 December 2024).
- European Commission COM(2020) 662 Final. European Commission. A Renovation Wave for Europe—Greening Our Buildings, Creating Jobs, Improving Lives. Available online: https://energy.ec.europa.eu/topics/energy-efficiency/energy-efficient-buildings/renovation-wave_en (accessed on 23 December 2024).
- Clerici Maestosi, P.; Salvia, M.; Pietrapertosa, F.; Romagnoli, F.; Pirro, M. Implementation of Positive Energy Districts in European Cities: A Systematic Literature Review to Identify the Effective Integration of the Concept into the Existing Energy Systems. Energies 2024, 17, 707. [Google Scholar] [CrossRef]
- Ahvenniemi, H.; Huovila, A.; Pinto-Seppä, I.; Airaksinen, M. What Are the Differences between Sustainable and Smart Cities? Cities 2017, 60, 234–245. [Google Scholar] [CrossRef]
- IEA Tracking Clean Energy Progress 2023. Analysis. Available online: https://www.iea.org/reports/tracking-clean-energy-progress-2023 (accessed on 26 November 2024).
- European Parliament, Council of the European Union Directive (EU) 2024/1275 of the European Parliament and of the Council of 24 April 2024 on the Energy Performance of Buildings. Available online: https://eur-lex.europa.eu/legal-content/EN/ALL/?uri=CELEX:32024L1275 (accessed on 23 December 2024).
- Park, J.; Yoon, J.; Kim, K.-H. Critical Review of the Material Criteria of Building Sustainability Assessment Tools. Sustainability 2017, 9, 186. [Google Scholar] [CrossRef]
- Pollini, B.; Rognoli, V. Early-Stage Material Selection Based on Life Cycle Approach: Tools, Obstacles and Opportunities for Design. Sustain. Prod. Consum. 2021, 28, 1130–1139. [Google Scholar] [CrossRef]
- Lotteau, M.; Loubet, P.; Pousse, M.; Dufrasnes, E.; Dufrasnes, E.; Sonnemann, G. Critical Review of Life Cycle Assessment (LCA) for the Built Environment at the Neighborhood Scale. Build. Environ. 2015, 93, 165–178. [Google Scholar] [CrossRef]
- Lausselet, C.; Borgnes, V.; Ager-Wick Ellingsen, L.; Hammer Strømman, A.; Brattebø, H. Life-Cycle Assessment Methodology to Assess Zero Emission Neighboorhood Concept: A Novel Model; ZEN report; ZEN Research Centre on Zero Emission Neighbourhoods in Smart Cities: Trondheim, Norway, 2019; ISBN 978-82-536-1611-7. [Google Scholar]
- Ismaeel, W.S.E. The Dynamics of Sustainable Material Selection for Green-Certified Projects. Buildings 2023, 13, 2077. [Google Scholar] [CrossRef]
- Huijiang Wang, Z. A Survey of Factors and Life Cycle Assessment in Selection of Green Construction Materials. J. Comput. Intell. Mater. Sci. 2023, 1, 23–33. [Google Scholar] [CrossRef]
- Volpatti, M.; Mazzola, E.; Bottero, M.C.; Bisello, A. The Role of Positive Energy Districts through the Lens of Urban Sustainability Protocols in the Case Studies of Salzburg and Tampere. Buildings 2023, 14, 7. [Google Scholar] [CrossRef]
- ISO/TR 37121:2017; Sustainable Development in Communities—Inventory of Existing Guidelines and Approaches on Sustainable Development and Resilience in Cities. ISO: Geneva, Switzerland, 2017. Available online: https://www.iso.org/standard/63790.html (accessed on 23 December 2024).
- PED-ID D4.1 Criteria Catalogue for Positive-Energy-Districts. Available online: https://sustainableinnovation.se/app/uploads/2022/05/PED-ID_D4.1_PEDcriteria_V5_220415.pdf (accessed on 26 November 2024).
- Sharifi, A.; Murayama, A. A Critical Review of Seven Selected Neighborhood Sustainability Assessment Tools. Environ. Impact Assess. Rev. 2013, 38, 73–87. [Google Scholar] [CrossRef]
- Pulgar Rubilar, P.; Jordán Vidal, M.M.; Blanco Fernández, D.; Osorio Ramirez, M.; Perillán Torres, L.; Lizana Vial, M.; Lobos Calquin, D.; Pardo Fabregat, F.; Navarro Pedreño, J. Neighbourhood Sustainability Assessment Tools for Sustainable Cities and Communities, a Literature Review—New Trends for New Requirements. Buildings 2023, 13, 2782. [Google Scholar] [CrossRef]
- Yoon, J.; Park, J. Comparative Analysis of Material Criteria in Neighborhood Sustainability Assessment Tools and Urban Design Guidelines: Cases of the UK, the US, Japan, and Korea. Sustainability 2015, 7, 14450–14487. [Google Scholar] [CrossRef]
- Aghamolaei, R.; Shamsi, M.H.; Tahsildoost, M.; O’Donnell, J. Review of District-Scale Energy Performance Analysis: Outlooks towards Holistic Urban Frameworks. Sustain. Cities Soc. 2018, 41, 252–264. [Google Scholar] [CrossRef]
- Kaur, H.; Garg, P. Urban Sustainability Assessment Tools: A Review. J. Clean. Prod. 2019, 210, 146–158. [Google Scholar] [CrossRef]
- Cheshmehzangi, A.; Dawodu, A.; Song, W.; Shi, Y.; Wang, Y. An Introduction to Neighborhood Sustainability Assessment Tool (NSAT) Study for China from Comprehensive Analysis of Eight Asian Tools. Sustainability 2020, 12, 2462. [Google Scholar] [CrossRef]
- Sharifi, A.; Dawodu, A.; Cheshmehzangi, A. Neighborhood Sustainability Assessment Tools: A Review of Success Factors. J. Clean. Prod. 2021, 293, 125912. [Google Scholar] [CrossRef]
- Dawodu, A.; Cheshmehzangi, A.; Sharifi, A.; Oladejo, J. Neighborhood Sustainability Assessment Tools: Research Trends and Forecast for the Built Environment. Sustain. Futur. 2022, 4, 100064. [Google Scholar] [CrossRef]
- Berardi, U. Sustainability Assessment of Urban Communities through Rating Systems. Environ. Dev. Sustain. 2013, 15, 1573–1591. [Google Scholar] [CrossRef]
- Boschetto, P.; Bove, A.; Mazzola, E. Comparative Review of Neighborhood Sustainability Assessment Tools. Sustainability 2022, 14, 3132. [Google Scholar] [CrossRef]
- U.S. Green Building Council LEED v4 for NEIGHBORHOOD DEVELOPMENT. Available online: https://www.usgbc.org/resources/leed-v4-neighborhood-development-current-version (accessed on 23 December 2024).
- SD202—1.2:2012; BRE BREEAM Communities Technical Manual. BRE Global Ltd.: Watford, Hertfordshire, UK, 2012.
- JSBC CASBEE for Cities—Pilot Version for Worldwide Use. 2015. Available online: https://www.ibecs.or.jp/CASBEE/english/download/Pilot%20version_CASBEE-City_worldwide_2015.pdf (accessed on 23 December 2024).
- Haase, M.; Baer, D. A Holistic Sustainability Evaluation of Positive Energy Districts—Planetary Boundaries Framing the Transformation of Districts. In Smart and Sustainable Planning for Cities and Regions; Bisello, A., Vettorato, D., Bottero, M., Kolokotsa, D., Eds.; Green Energy and Technology; Springer Nature Switzerland: Cham, Switzerland, 2024; pp. 33–46. ISBN 978-3-031-39205-4. [Google Scholar]
- Guarino, F.; Rincione, R.; Mateu, C.; Teixidó, M.; Cabeza, L.F.; Cellura, M. Renovation Assessment of Building Districts: Case Studies and Implications to the Positive Energy Districts Definition. Energy Build. 2023, 296, 113414. [Google Scholar] [CrossRef]
- Marotta, I.; Guarino, F.; Longo, S.; Cellura, M. Environmental Sustainability Approaches and Positive Energy Districts: A Literature Review. Sustainability 2021, 13, 13063. [Google Scholar] [CrossRef]
- JSBC CASBEE for Urban Development. 2014. Available online: https://www.ibecs.or.jp/CASBEE/english/download/CASBEE-UDe_2014manual.pdf (accessed on 23 December 2024).
- ISO 14021:2016; Environmental Labels and Declarations—Self-Declared Environmental Claims (Type II Environmental Labelling). International Organization for Standardization: Switzerland, Geneva, 2016. Available online: https://www.iso.org/standard/66652.html (accessed on 23 December 2024).
- European Parliament, Council of the European Union. Regulation (EC) No 1221/2009 of the European Parliament and of the Council of 25 November 2009 on the voluntary participation by organisations in a Community eco-management and audit scheme (EMAS), Repealing Regulation (EC) No 761/2001 and Commission Decisions 2001/681/EC and 2006/193/EC. Bruxelles, Belgium. 2009. Available online: https://eur-lex.europa.eu/legalcontent/EN/TXT/HTML/?uri=CELEX:32009R1221 (accessed on 23 December 2024).
- ISO 14001:2015; Environmental Management Systems—Requirements with Guidance for Use. International Organization for Standardization: Switzerland, Geneva, 2015. Available online: https://www.iso.org/standard/60857.html (accessed on 23 December 2024).
- Bernardi, E.; Carlucci, S.; Cornaro, C.; Bohne, R. An Analysis of the Most Adopted Rating Systems for Assessing the Environmental Impact of Buildings. Sustainability 2017, 9, 1226. [Google Scholar] [CrossRef]
- Mattinzioli, T.; Sol-Sánchez, M.; Moreno, B.; Alegre, J.; Martínez, G. Sustainable Building Rating Systems: A Critical Review for Achieving a Common Consensus. Crit. Rev. Environ. Sci. Technol. 2021, 51, 512–534. [Google Scholar] [CrossRef]
- European Commission COM(2008) 400 Final. Communication from the Commission to the European Parliament, the Council, the European Economic and Social Committee and the Committee of the Regions Public Procurement for a Better Environment. Available online: https://eur-lex.europa.eu/legal-content/EN/TXT/HTML/?uri=CELEX:52008DC0400 (accessed on 23 December 2024).
- Italian Government Decree of the Ministry of Ecological Transition of 23 June 2022, No. 256 (Minimum Environmental Criteria—CAM). Available online: https://www.mase.gov.it/notizie/novita-sui-criteri-minini-ambientali-cam (accessed on 23 December 2024).
- U.S. Green Building Council LEED v4.1 RESIDENTIAL BD+C MULTIFAMILY HOMES. Available online: https://build.usgbc.org/multifambeta41 (accessed on 23 December 2024).
- SD5077:2014 2.2; BRE BREEAM Refurbishment Domestic Buildings. BRE Global Ltd.: Watford, Hertfordshire, UK, 2014.
- SD225 1.4; BRE BREEAM International Non-Domestic Refurbishment 2015. BRE Global Ltd.: Watford, Hertfordshire, UK, 2015.
- KlimaHaus Direttiva Tecnica CasaClima Nature. Available online: https://www.agenziacasaclima.it/smartedit/documents/inhalte/_Inhalte_Downloads/_published/20200716-dt_casaclima-nature_2017_v162_it.pdf (accessed on 23 December 2024).
- Doan, D.T.; Ghaffarianhoseini, A.; Naismith, N.; Zhang, T.; Ghaffarianhoseini, A.; Tookey, J. A Critical Comparison of Green Building Rating Systems. Build. Environ. 2017, 123, 243–260. [Google Scholar] [CrossRef]
- Zarghami, E.; Fatourehchi, D. Comparative Analysis of Rating Systems in Developing and Developed Countries: A Systematic Review and a Future Agenda towards a Region-Based Sustainability Assessment. J. Clean. Prod. 2020, 254, 120024. [Google Scholar] [CrossRef]
- Orova, M.; Reith, A. How Rating Systems Support Regenerative Change in the Built Environment. In Rethinking Sustainability Towards a Regenerative Economy; Andreucci, M.B., Marvuglia, A., Baltov, M., Hansen, P., Eds.; Future City; Springer International Publishing: Cham, Switzerland, 2021; Volume 15, pp. 131–144. ISBN 978-3-030-71818-3. [Google Scholar]
- Assefa, S.; Lee, H.-Y.; Shiue, F.-J. Sustainability Performance of Green Building Rating Systems (GBRSs) in an Integration Model. Buildings 2022, 12, 208. [Google Scholar] [CrossRef]
- Mao, J.; Yuan, H.; Xiong, L.; Huang, B. Research Review of Green Building Rating System under the Background of Carbon Peak and Carbon Neutrality. Buildings 2024, 14, 1257. [Google Scholar] [CrossRef]
- Braulio-Gonzalo, M.; Jorge-Ortiz, A.; Bovea, M.D. How Are Indicators in Green Building Rating Systems Addressing Sustainability Dimensions and Life Cycle Frameworks in Residential Buildings? Environ. Impact Assess. Rev. 2022, 95, 106793. [Google Scholar] [CrossRef]
- EN 15978:2011; Sustainability of Construction Works—Assessment of Environmental Performance of Buildings—Calculation Method. European Committee for Standardization (CEN): Brussels, Belgium, 2011.
- Izaola, B.; Akizu-Gardoki, O.; Oregi, X. Life Cycle Analysis Challenges through Building Rating Schemes within the European Framework. Sustainability 2022, 14, 5009. [Google Scholar] [CrossRef]
- European Commission. Directorate General for Environment. Level(s): Putting Circularity into Practice. Available online: https://data.europa.eu/doi/10.2779/19010 (accessed on 29 November 2024).
- European Parliament, Council of the European Union. Directive 2008/98/EC of the European Parliament and of the Council of 19 November 2008 on Waste and Repealing Certain Directives. Available online: https://eur-lex.europa.eu/legal-content/EN/TXT/?uri=celex%3A32008L0098 (accessed on 23 December 2024).
- European Parliament, Council of the European Union. Directive 2000/76/EC of the European Parliament and of the Council of 4 December 2000 on the Incineration of Waste. Available online: https://eur-lex.europa.eu/legal-content/EN/TXT/?uri=celex%3A32000L0076 (accessed on 23 December 2024).
- EN 303-5:2021+A1:2022; Heating Boilers—Part 5: Heating Boilers for Solid Fuels, Manually and Automatically Stoked, Nominal Heat Output of Up to 500 kW—Terminology, Requirements, Testing and Marking. European Committee for Standardization (CEN): Brussels, Belgium, 2021.
- Natanian, J.; Guarino, F.; Manapragada, N.; Magyari, A.; Naboni, E.; De Luca, F.; Cellura, S.; Brunetti, A.; Reith, A. Ten Questions on Tools and Methods for Positive Energy Districts. Build. Environ. 2024, 255, 111429. [Google Scholar] [CrossRef]
- Kozlowska, A.; Guarino, F.; Volpe, R.; Bisello, A.; Gabaldòn, A.; Rezaei, A.; Albert-Seifried, V.; Alpagut, B.; Vandevyvere, H.; Reda, F.; et al. Positive Energy Districts: Fundamentals, Assessment Methodologies, Modeling and Research Gaps. Energies 2024, 17, 4425. [Google Scholar] [CrossRef]
- Leone, F.; Reda, F.; Hasan, A.; Rehman, H.U.; Nigrelli, F.C.; Nocera, F.; Costanzo, V. Lessons Learned from Positive Energy District (PED) Projects: Cataloguing and Analysing Technology Solutions in Different Geographical Areas in Europe. Energies 2022, 16, 356. [Google Scholar] [CrossRef]
- Haase, M.; Eicker, U.; Hachem-Vermette, C.; Kayo, G.; Rehman, H. Lessons Learned from Analysing PED Case Studies. In Proceedings of the 12th International Conference on Improving Energy Efficiency in Commercial Buildings and Smart Communities; European Union: Brussels, Belgium, 2024; pp. 118–132. [Google Scholar]
- MAKING CITY D4.1—Methodology and Guidelines for PED Design. Available online: https://makingcity.eu/wp-content/uploads/2021/12/MakingCity_D4_1_Methodology_and_Guidelines_for_PED_design_final.pdf (accessed on 23 December 2024).
- Gollner, C.; Hinterberger, R.; Bossi, S.; Theierling, S.; Noll, M.; Meyer, S.; Schwarz, H.-G. EUROPE TOWARDS POSITIVE ENERGY DISTRICTS—A Compilation of Projects Towards Sustainable Urbanization and the Energy Transition. First Upddate February 2020. Available online: https://jpi-urbaneurope.eu/wp-content/uploads/2020/06/PED-Booklet-Update-Feb-2020_2.pdf (accessed on 29 December 2024).
- PED-EU-NET PED Database. Available online: https://pedeu.net/map/ (accessed on 23 December 2024).
- Bisello, A. Assessing Multiple Benefits of Housing Regeneration and Smart City Development: The European Project SINFONIA. Sustainability 2020, 12, 8038. [Google Scholar] [CrossRef]
- KlimaHaus Direttiva Tecnica Edifici Esistenti & Risanamento CasaClimaR. Available online: https://www.agenziacasaclima.it/smartedit/documents/inhalte/_Inhalte_Downloads/_published/DT_edifici%20esistenti%20&%20risanamento_2017_v1.01_it.pdf (accessed on 23 December 2024).
- City of Florence City of Florence. District Heating Works—Energy Efficiency Interventions. Available online: https://affidamenti.comune.fi.it/node/442 (accessed on 23 December 2024).
- SINFONIA FACTSHEET. Demonstration Building Housing Complex—Via Palermo. Available online: http://www.sinfonia-smartcities.eu/contents/democitiesdocumentcategoriesitem/20150414_factsheet_viapalermo_ipes_def-con-progetto_v2.pdf (accessed on 23 December 2024).
- SINFONIA Factsheet. Housing Complex—Via Brescia, Bolzano. Available online: http://www.sinfonia-smartcities.eu/contents/democitiesdocumentcategoriesitem/20150414_factsheet_viacagliaribrescia_ipes_def-con-progetto-ver22.pdf (accessed on 23 December 2024).
- Ferrante, T.; Villani, T. Positive Energy Districts and Energy Efficiency in Buildings: An Innovative Technical Communication Sheet to Facilitate Policy Officers’ Understanding to Enable Technologies and Procedure. Energies 2021, 14, 8551. [Google Scholar] [CrossRef]
- ISO 14025:2006; Environmental Labels and Declarations—Type III Environmental Declarations—Principles and procedures. International Organization for Standardization: Switzerland, Geneva, 2006. Available online: https://www.iso.org/standard/38131.html (accessed on 23 December 2024).
- EN 15804:2012+A2:2019; Sustainability of Construction Works. Environmental Product Declarations. Core Rules for the Product Category of Con-struction Products. European Committee for Standardization (CEN): Brussels, Belgium, 2012.
- ISO 14024:2018; Environmental labels and declarations—Type I environmental label-ling—Principles and procedures. International Organization for Standardization: Switzerland, Geneva, 2018. Available online: https://www.iso.org/standard/72458.html (accessed on 23 December 2024).
- City of Florence A04-2 Special Tender Specifications—Part II (Technical Requirements). Available online: https://affidamenti.comune.fi.it/sites/affidamenti.comune.fi.it/files/profilo/documenti-di-gara/20171019/A04-2%20-%20Capitolato%20Speciale%20Appalto%20-%20Parte%20II%20specifiche%20tecniche%28firmato%29.pdf (accessed on 23 December 2024).
- IPES Norme Tecniche IPES—01.01. Direttive per Incarichi Di Progettazione. Available online: https://assets-eu-01.kc-usercontent.com/ce2ed9e2-63db-019d-5aa7-6df45b892148/b7766212-c13f-445d-91ad-45893c006429/Direttive_per_incarichi_di_progettazione2017.pdf (accessed on 23 December 2024).







| NSA | Category | Criteria | Requirements | 
|---|---|---|---|
| LEED v4 for Neighborhood Development (2018) | Green infrastructure and buildings | Certified Green Buildings | Design, build, or retrofit at least one building in the project or a portion of the total floor area to meet LEED certification or a similar green building rating system reviewed by an independent third-party accredited to ISO standards | 
| Recycled and Reused Infrastructure | Ensure that at least 50% of the total mass of infrastructure materials comes from a combination of post-consumer recycled content, on-site reused materials, and half of the pre-consumer recycled content. This applies to roadways, parking lots, sidewalks, curbs, water retention tanks, base materials, and utility piping (e.g., rainwater, sewer, or energy distribution). Recycled content must meet the ISO/IEC 14021 [34] standards for environmental claims | ||
| BREEAM Communities (2012) | Resources and energy | Sustainable buildings | The developer and design team committed to designing new or renovated buildings on-site to meet industry best practices in sustainability, focusing on energy, water, waste, material impacts, and occupant health and well-being | 
| Low impact materials | Contractors and sub-contractors must have environmental management systems, like EMAS [35] or ISO14001 [36], to ensure sustainable material management in the public realm 1. Credits are awarded based on the percentage of materials used that achieve an A+ to B rating in the Green Guide to Specification | ||
| CASBEE-UD (2014) | Resources recycling—Construction | Wood Material | Utilization level of wood materials produced from sustainable forests | 
| Recycled Material | Average usage of certified recycled items in a building in the block | 
| Gbrs/Protocols | Category | Criteria/Indicator/Credit | Requirements | 
|---|---|---|---|
| BREEAM Domestic Refurbishment (2014) | Materials | Environmental impact of materials | Assess the embodied impact and thermal performance of roofs, walls, windows, and floors using the Mat 01 calculator 1, based on the Green Guide rating of new materials and their contribution to thermal efficiency | 
| Responsible sourcing of materials | All new timber must be legally sourced and assessed with the Mat 02 calculator 1 based on responsible sourcing levels. Additional credits are available for having a sustainable procurement plan | ||
| Insulation | New insulation in walls, floors, roofs, and building services must meet minimum assessment requirements | ||
| BREEAM International Non-Domestic Refurbishment (2015) | Materials | Environmental impact of materials | Reduce the building’s life cycle environmental impacts by reusing materials and analyzing the impact of new materials using reliable life cycle assessment tools for the mail-building elements | 
| Responsible sourcing of materials | Materials are sourced according to a sustainable procurement plan, ensuring key building materials are responsibly sourced to minimize environmental and socio-economic impacts | ||
| Designing for durability and resilience | The building incorporates measures to reduce damage as well as wear and tear, with design and materials specified to limit degradation caused by environmental factors | ||
| Material efficiency | Measures have been identified and implemented to optimize material use | ||
| LEED v4.1 RESIDENTIAL BD + C MULTIFAMILY HOMES (2020) | Materials and Resources | Building Life-Cycle Impact Reduction | Demonstrate reduced environmental effects during initial project decision-making by reusing existing building resources or demonstrating a reduction in materials use through life-cycle assessment. Achieve one of the following options: Historic Building Reuse; Renovation of Abandoned or Blighted Building; Building and Material Reuse; Whole-building Life-Cycle Assessment | 
| Environmentally Preferable Products | At least 70% (by weight or volume) of each compliant building component must meet the following criteria: 
 | ||
| Building product disclosure and optimization (BPDO)—Use materials with verified environmental impacts disclosed through EPDs | |||
| BPDO—Sourcing of Raw Materials: ensure materials are responsibly sourced | |||
| BPDO—Material Ingredients: select products with transparency in material ingredient disclosure | |||
| Construction and Demolition Waste Management | 
 
 | ||
| KlimaHaus Nature (2017) | Environmental Impact of Building Materials | Material/products-related Parameters | 
 | 
| Bonus | 
 | ||
| Data source | 
 | ||
| Prohibitions | 
 | ||
| Level(s) | 1: Greenhouse gas and air pollutant emissions along a building’s life cycle | Indicator 1.2 | Life cycle Global Warming Potential (GWP) | 
| 2: Resource efficient and circular material life cycles | Indicator 2.1 | Bill of Quantities, materials, and lifespans | |
| Indicator 2.2 | Construction and Demolition Waste (CDW) and materials | ||
| CAM-Italy | Technical specifications for construction products | Thermal and acoustic insulation 4 | Thermal and acoustic insulation must meet the following criteria: 
 | 
| Florence-REPLICATE | Bolzano-SINFONIA | ||
|---|---|---|---|
| Via Marche 3-5-11 | Building 1 * | Via Palermo 74-76-78-80 | Building 2 * | 
| Via Liguria 6-10-14 | Via Brescia 1-3-5; Via Cagliari 10-10/A | Building 3 * | |
| Via Nave di Barozzi alle Piagge 13/1-4 | Via Passeggiata dei Castani | ||
| Viale Guidoni | New building | Via Similaun | |
| Via Torre Degli Agli | New building | Via Aslago | |
| Via Toscanini | New building | ||
| Viale Giannotti Ex Longinotti | New building | ||
| Disclaimer/Publisher’s Note: The statements, opinions and data contained in all publications are solely those of the individual author(s) and contributor(s) and not of MDPI and/or the editor(s). MDPI and/or the editor(s) disclaim responsibility for any injury to people or property resulting from any ideas, methods, instructions or products referred to in the content. | 
© 2025 by the authors. Licensee MDPI, Basel, Switzerland. This article is an open access article distributed under the terms and conditions of the Creative Commons Attribution (CC BY) license (https://creativecommons.org/licenses/by/4.0/).
Share and Cite
Ferrante, T.; Clerici Maestosi, P.; Villani, T.; Romagnoli, F. A Portfolio of Building Solutions Supporting Positive Energy District Transition: Assessing the Impact of Green Building Certifications. Sustainability 2025, 17, 400. https://doi.org/10.3390/su17020400
Ferrante T, Clerici Maestosi P, Villani T, Romagnoli F. A Portfolio of Building Solutions Supporting Positive Energy District Transition: Assessing the Impact of Green Building Certifications. Sustainability. 2025; 17(2):400. https://doi.org/10.3390/su17020400
Chicago/Turabian StyleFerrante, Tiziana, Paola Clerici Maestosi, Teresa Villani, and Federica Romagnoli. 2025. "A Portfolio of Building Solutions Supporting Positive Energy District Transition: Assessing the Impact of Green Building Certifications" Sustainability 17, no. 2: 400. https://doi.org/10.3390/su17020400
APA StyleFerrante, T., Clerici Maestosi, P., Villani, T., & Romagnoli, F. (2025). A Portfolio of Building Solutions Supporting Positive Energy District Transition: Assessing the Impact of Green Building Certifications. Sustainability, 17(2), 400. https://doi.org/10.3390/su17020400
 
        





 
       