Evaluation Research on Energy-Saving Retrofitting of Roofs of Traditional Wood-Structured Dwellings Based on the Continuation of Historical Features: A Case Study of Guangdu Village No. 280 Dwelling in Zhejiang
Abstract
1. Introduction
2. Methodology
2.1. Methods and Processes
2.2. Establishment of the Method
2.3. Evaluation and Optimization of the Method
3. Case Study
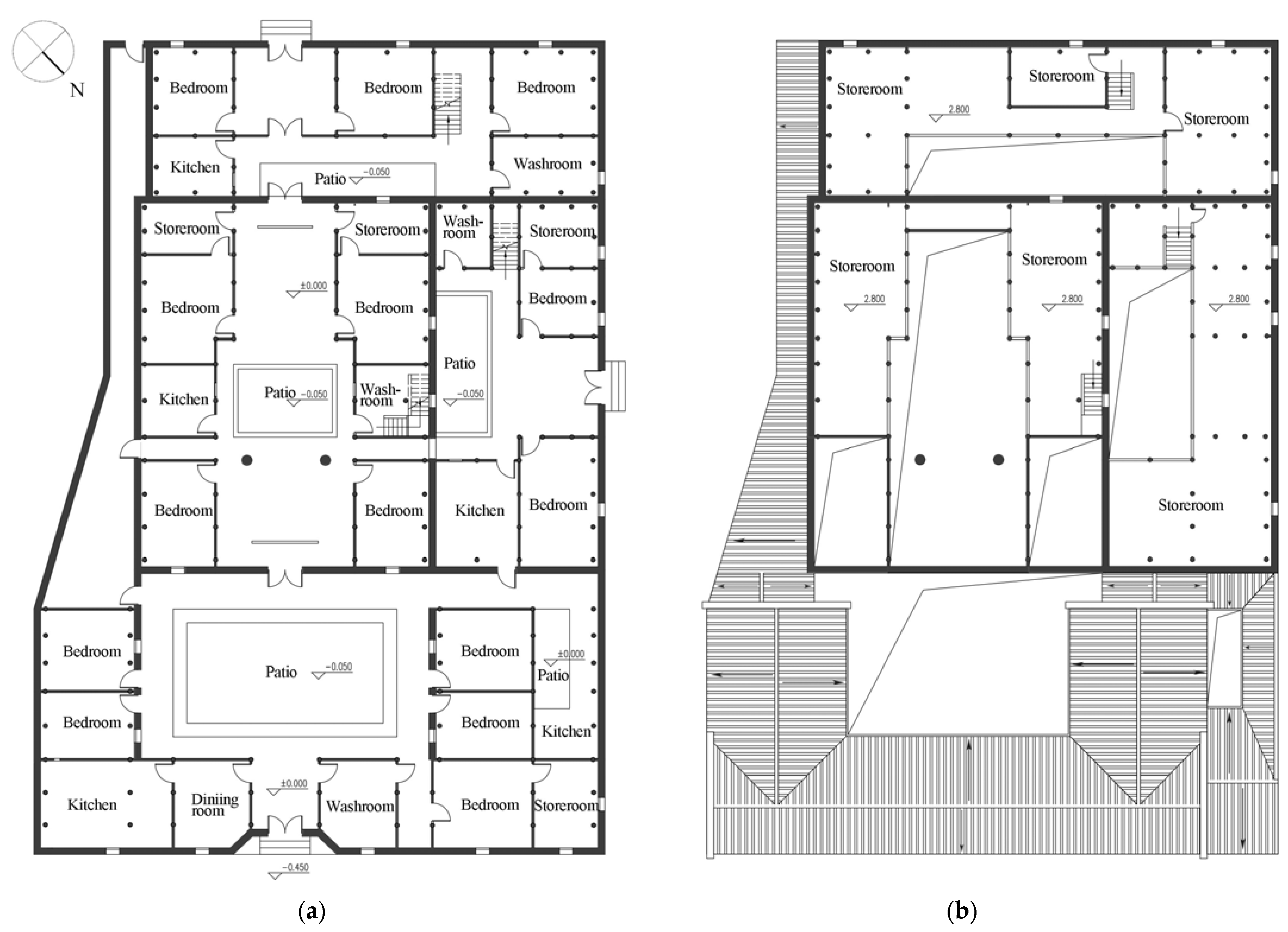
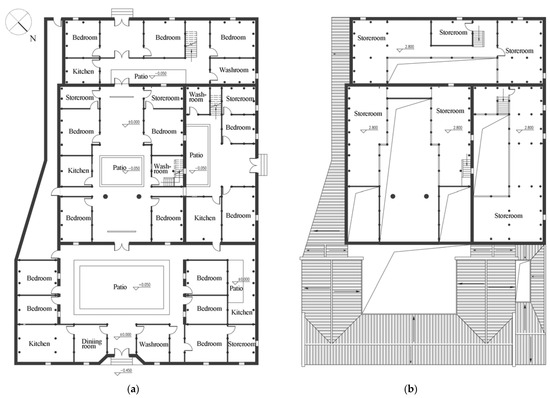
3.1. Study of the Current State of Traditional Dwelling
3.2. Measurements of Dwellings
3.3. Parameterization of the Energy Consumption Simulation Process
3.4. Energy Consumption Simulation Calibration
3.5. Energy-Saving Ways to Retrofit Primitive Dwellings
4. Results and Discussion
4.1. Evaluation of Historical Features
4.2. Economic Evaluation of Different Retrofit Methods
4.3. Comprehensive Evaluation Results
5. Conclusions
- The roof renovation of traditional dwellings with wood structures in hot summer and cold winter regions of China can use bamboo wood fiberboard + XPS board composites to improve the airtightness and heat preservation of the room. The heat preservation performance of the roof increases with the thickness of the XPS boards;
- By wrapping XPS board with a bamboo wood fiber board, the composite heat preservation board prevents condensation and board rot in the internal heat preservation of the roof. It also extends the service life of the heat preservation material significantly;
- To balance the cost of remodeling and the actual construction, the thickness of XPS insulation boards should be reasonable for optimal energy savings and remodeling costs. The most effective energy-saving retrofitting method (XPS board with 40 mm thickness) for this traditional wood-structured dwelling resulted in an annual energy-saving rate of 16.66% for the six families. This led to a direct cost saving of CNY 3771 in electricity expenses;
- Inadequate comfort is a prevalent issue encountered when reusing historic Chinese wood-structured dwellings. The analysis in this paper shows that traditional Chinese wood-structured dwelling roofs can be retrofitted to enhance energy efficiency for the purpose of energy conservation and emission reduction. This retrofitting method is cost-effective and relatively easy to implement. This retrofit technique is anticipated to be extensively used for conserving and repurposing ancient residences, given the current lack of adequate preservation and utilization of such structures in China. The study evaluates energy-saving retrofit methods for traditional wood-structure dwelling roofs in hot summer and cold winter regions of China. The research results are scientifically significant for promoting the sustainable development of historical heritage.
Author Contributions
Funding
Institutional Review Board Statement
Informed Consent Statement
Data Availability Statement
Conflicts of Interest
References
- Li, B.; You, L.; Zheng, M.; Wang, Y.; Wang, Z. Energy consumption pattern and indoor thermal environment of residential building in rural China. Energy Built Environ. 2020, 1, 327–336. [Google Scholar] [CrossRef]
- Evans, M.; Yu, S.; Song, B.; Deng, Q.Q.; Liu, J.; Delgado, A. Building energy efficiency in rural China. Energy Policy 2014, 64, 243–251. [Google Scholar] [CrossRef]
- He, B.J.; Yang, L.; Ye, M.; Mou, B.; Zhou, Y.A. Overview of rural building energy efficiency in China. Energy Policy 2014, 69, 385–396. [Google Scholar] [CrossRef]
- Dong, G.L.; Ge, Y.B.; Cao, H.M.; Zhai, R.X. Withdrawal and Transformation of Rural Homesteads in Traditional Agricultural Areas of China Based on Supply-Demand Balance Analysis. Front. Environ. Sci. 2022, 10, 897514. [Google Scholar] [CrossRef]
- Webb, A.L. Energy retrofits in historic and traditional buildings: A review of problems and methods. Renew. Sustain. Energy Rev. 2017, 77, 748–759. [Google Scholar] [CrossRef]
- Milic, V.; Ekelöw, K.; Andersson, M.; Moshfegh, B. Evaluation of energy renovation strategies for 12 historic building types using LCC optimization. Energy Build. 2019, 197, 156–170. [Google Scholar] [CrossRef]
- Wang, P.; Ji, C.; Yu, P.; Huang, L. A procedure set to construct the optimal energy saving retrofit strategy for old residential buildings in China. J. Renew. Sustain. Energy 2023, 15, 025101. [Google Scholar] [CrossRef]
- Leskovar, V.Z.; Premrov, M. Influence of glazing size on energy efficiency of timber-frame buildings. Constr. Build. Mater. 2012, 30, 92–99. [Google Scholar] [CrossRef]
- Unuk, Z.; Lukic, I.; Leskovar, V.Z.; Premrov, M. Renovation of timber floors with structural glass: Structural and environmental performance. J. Build. Eng. 2021, 38, 102149. [Google Scholar] [CrossRef]
- Amoruso, F.M.; Schuetze, T. Life cycle assessment and costing of carbon neutral hybrid-timber building renovation systems: Three applications in the Republic of Korea. Build. Environ. 2022, 222, 109395. [Google Scholar] [CrossRef]
- Milovanovic, B.; Bagaric, M.; Gasi, M.; Stepinac, M. Energy renovation of the multi-residential historic building after the Zagreb earthquake-Case study. Case Stud. Therm. Eng. 2022, 38, 102300. [Google Scholar] [CrossRef]
- Chen, J.H.; Lu, L. Development of radiative cooling and its integration with buildings: A comprehensive review. Sol. Energy 2020, 212, 125–151. [Google Scholar] [CrossRef]
- Silvero, F.; Montelpare, S.; Rodrigues, F.; Spacone, E.; Varum, H. Energy retrofit solutions for heritage buildings located in hot-humid climates. Procedia Struct. Integr. 2018, 11, 52–59. [Google Scholar] [CrossRef]
- Gao, Y.F.; Shi, D.C.; Levinson, R.; Guo, R.; Lin, C.Q.; Ge, J. Thermal performance and energy savings of white and sedum-tray garden roof: A case study in a Chongqing office building. Energy Build. 2017, 156, 343–359. [Google Scholar] [CrossRef]
- Wang, J.; Gao, W.J.; Wang, Z.; Zhang, L.T. Analysis of Energy Performance and Integrated Optimization of Tubular Houses in Southern China Using Computational Simulation. Appl. Sci. 2021, 11, 9371. [Google Scholar] [CrossRef]
- Junaid, M.F.; ur Rehman, Z.; Ijaz, N.; Farooq, R.; Khalid, U.; Ijaz, Z. Performance evaluation of cement-based composites containing phase change materials from energy management and construction standpoints. Constr. Build. Mater. 2024, 416, 135108. [Google Scholar] [CrossRef]
- Luo, X.Y.; Lu, J.P.; Ge, J. Green and energy-saving reform technology research in traditional houses-taking Luo’s house in Hangzhou as an example. J. Asian Archit. Build. Eng. 2021, 20, 165–178. [Google Scholar] [CrossRef]
- Yuk, H.; Choi, J.Y.; Kim, Y.U.; Chang, S.J.; Kim, S. Historic building energy conservation with wooden attic using vacuum insulation panel retrofit technology. Build. Environ. 2023, 230, 110004. [Google Scholar] [CrossRef]
- Liu, S.; Liu, Y.; Bin, J. Analysis of energy efficiency retrofitting in traditional dewllings in west Hunan. Ind. Constr. 2016, 46, 50–55. [Google Scholar]
- Xiong, K. The Practical Technology Research of Indoor Thermal Environment of Traditional Residence in Chongqing Field Type Town; Chongqing University: Chongqing, China, 2017. [Google Scholar]
- Dehwah, A.H.A.; Krarti, M. Cost-benefit analysis of retrofitting attic-integrated switchable insulation systems of existing US residential buildings. Energy 2021, 221, 119840. [Google Scholar] [CrossRef]
- Chi, F.A.; Xu, L.M.; Peng, C.H. Integration of completely passive cooling and heating systems with daylighting function into courtyard building towards energy saving. Appl. Energy 2020, 266, 114865. [Google Scholar] [CrossRef]
- Chi, F.A.; Liu, Y.; Yan, J.X. Integration of Radiative-based air temperature regulating system into residential building for energy saving. Appl. Energy 2021, 301, 117426. [Google Scholar] [CrossRef]
- Lin, Y.J.; Cui, C.Y.C.; Liu, X.J.; Mao, G.; Xiong, J.W.; Zhang, Y. Green Renovation and Retrofitting of Old Buildings: A Case Study of a Concrete Brick Apartment in Chengdu. Sustainability 2023, 15, 12409. [Google Scholar] [CrossRef]
- Lucchi, E.; Tabak, M.; Troi, A. The “Cost Optimality” Approach for the Internal Insulation of Historic Buildings. Energy Procedia 2017, 133, 412–423. [Google Scholar] [CrossRef]
- Teso, L.; Carnieletto, L.; Sun, K.Y.; Zhang, W.N.; Gasparella, A.; Romagnoni, P.; Zarrella, A.; Hong, T.Z. Large scale energy analysis and renovation strategies for social housing in the historic city of Venice. Sustain. Energy Technol. Assess. 2022, 52, 102041. [Google Scholar] [CrossRef]
- Xue, Y.C.; Fan, Y.F.; Wang, Z.T.; Gao, W.J.; Sun, Z.J.; Ge, J. Facilitator of moisture accumulation in building envelopes and its influences on condensation and mould growth. Energy Build. 2022, 277, 112528. [Google Scholar] [CrossRef]
- De Ligne, L.; Van Acker, J.; Baetens, J.M.; Omar, S.; De Baets, B.; Thygesen, L.G.; van den Bulcke, J.; Thybring, E.E. Moisture Dynamics of Wood-Based Panels and Wood Fibre Insulation Materials. Front. Plant Sci. 2022, 13, 951175. [Google Scholar] [CrossRef]
- Aktas, Y.D.; Ioannou, I.; Altamirano, H.; Reeslev, M.; D’Ayala, D.; May, N.; Canales, M. Surface and passive/active air mould sampling: A testing exercise in a North London housing estate. Sci. Total Environ. 2018, 643, 1631–1643. [Google Scholar] [CrossRef]
- Coupillie, C.; Steeman, M.; Van Den Bossche, N.; Maroy, K. Evaluating the hygrothermal performance of prefabricated timber frame façade elements used in building renovation. Energy Procedia 2017, 132, 933–938. [Google Scholar] [CrossRef]
- Junaid, M.F.; Rehman, Z.U.; Cekon, M.; Curpek, J.; Farooq, R.; Cui, H.Z.; Khan, I. Inorganic phase change materials in thermal energy storage: A review on perspectives and technological advances in building applications. Energy Build. 2021, 252, 111443. [Google Scholar] [CrossRef]
- Rao, X.X.; Qi, F.; Zhang, X.X.; Mao, Z.X. Evaluation Method on Energy-Efficient Retrofitting of Wooden Walls of Chinese Traditional Dwelling-A Case Study of Rendetang in Jinhua. Buildings 2022, 12, 1017. [Google Scholar] [CrossRef]
- Galimshina, A.; Moustapha, M.; Hollberg, A.; Padey, P.; Lasvaux, S.; Sudret, B.; Habert, G. Bio-based materials as a robust solution for building renovation: A case study. Appl. Energy 2022, 316, 119102. [Google Scholar] [CrossRef]
- Lidelöw, S.; Örn, T.; Luciani, A.; Rizzo, A. Energy-efficiency measures for heritage buildings: A literature review. Sustain. Cities Soc. 2019, 45, 231–242. [Google Scholar] [CrossRef]
- Li, B.; Han, J. Conservation and regeneration of historical buildings. IOP Conf. Ser. Earth Environ. Sci. 2021, 787, 012179. [Google Scholar] [CrossRef]
- Armstrong, P.J.; Kapp, P.H. Preserving the past or past preserving: Sustaining the legacy of postmodern museum architecture. Built Herit. 2022, 6, 12. [Google Scholar] [CrossRef]
- Roberti, F.; Oberegger, U.F.; Lucchi, E.; Troi, A. Energy retrofit and conservation of a historic building using multi-objective optimization and an analytic hierarchy process. Energy Build. 2017, 138, 1–10. [Google Scholar] [CrossRef]
- Eltaweel, A.; Su, Y.H. Controlling venetian blinds based on parametric design; via implementing Grasshopper’s plugins: A case study of an office building in Cairo. Energy Build. 2017, 139, 31–43. [Google Scholar] [CrossRef]
- Shen, Y.M.; Zhang, D.M.; Wang, R.L.; Li, J.P.; Huang, Z.K. SBD-K-medoids-based long-term settlement analysis of shield tunnel. Transp. Geotech. 2023, 42, 101053. [Google Scholar] [CrossRef]
- Shah, D.U.; Bock, M.C.D.; Mulligan, H.; Ramage, M.H. Thermal conductivity of engineered bamboo composites. J. Mater. Sci. 2016, 51, 2991–3002. [Google Scholar] [CrossRef]
- Nkeuwa, W.N.; Zhang, J.L.; Semple, K.E.; Chen, M.L.; Xia, Y.L.; Dai, C.P. Bamboo-based composites: A review on fundamentals and processes of bamboo bonding. Compos. Part B-Eng. 2022, 235, 109776. [Google Scholar] [CrossRef]
- Yu, Y.L.; Zhu, R.X.; Wu, B.L.; Hu, Y.A.; Yu, W.J. Fabrication, material properties, and application of bamboo scrimber. Wood Sci. Technol. 2015, 49, 83–98. [Google Scholar] [CrossRef]
- Bunkholt, N.S.; Rüther, P.; Gullbrekken, L.; Geving, S. Effect of forced convection on the hygrothermal performance of a wood frame wall with wood fibre insulation. Build. Environ. 2021, 195, 107748. [Google Scholar] [CrossRef]
- GB 8624-2012; Classification for Burning Behavior of Building Materials and Products. General Administration of Quality Supervision, Inspection and Quarantine of the People’s Republic of China. Standardization Administration of the People’s Republic of China: Beijing, China, 2012.
- Mansour, W.; Li, W.W.; Wang, P.; Fame, C.M.; Tam, L.H.; Lu, Y.; Sobuz, M.H.R.; Elwakkad, N.Y. Improving the Flexural Response of Timber Beams Using Externally Bonded Carbon Fiber-Reinforced Polymer (CFRP) Sheets. Materials 2024, 17, 321. [Google Scholar] [CrossRef]
- Maglad, A.M.; Mansour, W.; Fayed, S.; Tayeh, B.A.; Yosri, A.M.; Hamad, M. Experimental Study of the Flexural Behaviour of RC Beams Made of Eco-friendly Sawdust Concrete and Strengthened by a Wooden Plate. Int. J. Concr. Struct. Mater. 2023, 17, 49. [Google Scholar] [CrossRef]
- Ge, J.; Lu, J.P.; Wu, J.D.; Luo, X.Y.; Shen, F.H. Suitable and energy-saving retrofit technology research in traditional wooden houses in Jiangnan, South China. J. Build. Eng. 2022, 45, 103550. [Google Scholar] [CrossRef]
- Kan, Q. Research on the design of green rural housing in Zhejiang. Zhejiang Constr. 2018, 35, 57–61. [Google Scholar]
- Li, F.; Hu, X.; Wu, N.; Wen, T. Research on style features of regional residence in Quzhou traditional settlements. Archit. Cult. 2018, 9, 222–223. [Google Scholar]
- Zhang, Y. Research on ecological experience of traditional dwellings in Zhejiang province. Adv. Mater. Res. 2013, 689, 95–99. [Google Scholar]
- GB 50176-2016; Code for Thermal Design of Civil Building. Ministry of Housing and Urban-Rural Development of the People’s Republic of China. China Architecture & Building Press: Beijing, China, 2016.
- Yoshino, H.; Zhang, Q. Energy Consumption of Residential Buildings in China. In Sustainable Houses and Living in the Hot-Humid Climates of Asia; Kubota, T., Rijal, H.B., Takaguchi, H., Eds.; Springer: Singapore, 2018; pp. 359–371. [Google Scholar]














| Color | Exterior |
| Remodeling materials should be close to the original dwelling wood envelope color (tan and gray-brown) and the overall color should be coordinated and integrated. | Avoid alterations to the exterior of traditional dwellings, as well as their interior common areas, and the exterior of rooms. |
| Tectonic | Material |
| Retrofit materials should be applied to the envelope in the form of internal insulation wherever possible and with attention to condensation. The thickness of additional retrofit materials should be controlled to minimize the impact on interior spaces and other building structures. | Remodeling materials should be similar to the original dwelling envelope (cedar lumber). It is recommended to use environmentally friendly and sustainable materials for remodeling. |
| Retrofitted Part | Structure and Thickness | Heat Transfer Coefficient (W/m2·K) |
|---|---|---|
| Roof | Fir board (16 mm) + Grey tile (10 mm) | 3.46 |
| Floor slab | Fir board (20 mm) + Wood-bamboo fiberboard (9 mm) | 2.83 |
| Exterior wall | Hollow bricks (300 mm) + Internal gypsum plaster (5 mm) | 0.68 |
| Internal wall | Fir board (20 mm) + Wood-bamboo fiberboard (9 mm) | 2.83 |
| Foundation | Triple-combined soil (240 mm) | 3.62 |
| Schedule | 1 | 2 | 3 | 4 | 5 | 6 | 7 | 8 | 9 | 10 | 11 | 12 | 13 | 14 | 15 | 16 | 17 | 18 | 19 | 20 | 21 | 22 | 23 | 24 |
|---|---|---|---|---|---|---|---|---|---|---|---|---|---|---|---|---|---|---|---|---|---|---|---|---|
| Bedroom | ||||||||||||||||||||||||
| Dining room | ||||||||||||||||||||||||
| Living room | ||||||||||||||||||||||||
| Rest room |
| Items | Parameters |
|---|---|
| The total area of dwelling | 887.5 m2 |
| The total volume of bedrooms in the dwelling | 609.2 m3 |
| Cooling period | June 1st to Sep 30th |
| Heating period | Jan 15st to Feb 15th |
| Set-point of cooling temperature | 24 degrees centigrade |
| Set-point of heating temperature | 20 degrees centigrade |
| Occupant density | 0.04 person/m2; 126 W/person, referring to EnergyPlus Documentation |
| Artificial lighting system | 3 W/m2 |
| Equipment load | 3.8 W/m2 |
| Actual Electricity Consumption (kWh/a) | Simulated Energy Consumption (kWh/a) | Error | |
|---|---|---|---|
| Data | 15,356 | 15,949 | 3.9% |
| Parameter | Cost (CNY) | |
|---|---|---|
| Materials | Single-layer bamboo wood fiber board | 30/m2 |
| XPS (10 mm; 20 mm; 30 mm; 40 mm; 50 mm; 60 mm; 70 mm; 80 mm) | 12.0/m2; 14.6/m2; 23.3/m2; 26.3/m2; 30.3/m2; 34.3/m2; 38.3/m2; 42.3/m2 | |
| Stainless steel connecting clips | 12.25/pair | |
| Associated Labor | 150/day |
| Retrofitting Method | Efficiency Ratio | Cost (CNY) | The Payback Period (a) |
|---|---|---|---|
| Composite insulation board (10 mm XPS board) | 11.24% | 23,523 | 9.25 |
| Composite insulation board (20 mm XPS board) | 14.16% | 24,215 | 7.56 |
| Composite insulation board (30 mm XPS board) | 15.71% | 26,533 | 7.46 |
| Composite insulation board (40 mm XPS board) | 16.66% | 27,332 | 7.25 |
| Composite insulation board (50 mm XPS board) | 17.26% | 28,398 | 7.27 |
| Composite insulation board (60 mm XPS board) | 17.77% | 29,464 | 7.32 |
| Composite insulation board (70 mm XPS board) | 18.13% | 30,529 | 7.44 |
| Composite insulation board (80 mm XPS board) | 18.41% | 31,595 | 7.58 |
Disclaimer/Publisher’s Note: The statements, opinions and data contained in all publications are solely those of the individual author(s) and contributor(s) and not of MDPI and/or the editor(s). MDPI and/or the editor(s) disclaim responsibility for any injury to people or property resulting from any ideas, methods, instructions or products referred to in the content. |
© 2024 by the authors. Licensee MDPI, Basel, Switzerland. This article is an open access article distributed under the terms and conditions of the Creative Commons Attribution (CC BY) license (https://creativecommons.org/licenses/by/4.0/).
Share and Cite
Mao, Z.; Rao, X.; Qi, F. Evaluation Research on Energy-Saving Retrofitting of Roofs of Traditional Wood-Structured Dwellings Based on the Continuation of Historical Features: A Case Study of Guangdu Village No. 280 Dwelling in Zhejiang. Sustainability 2024, 16, 2236. https://doi.org/10.3390/su16062236
Mao Z, Rao X, Qi F. Evaluation Research on Energy-Saving Retrofitting of Roofs of Traditional Wood-Structured Dwellings Based on the Continuation of Historical Features: A Case Study of Guangdu Village No. 280 Dwelling in Zhejiang. Sustainability. 2024; 16(6):2236. https://doi.org/10.3390/su16062236
Chicago/Turabian StyleMao, Zhuoxun, Xiaoxiao Rao, and Feng Qi. 2024. "Evaluation Research on Energy-Saving Retrofitting of Roofs of Traditional Wood-Structured Dwellings Based on the Continuation of Historical Features: A Case Study of Guangdu Village No. 280 Dwelling in Zhejiang" Sustainability 16, no. 6: 2236. https://doi.org/10.3390/su16062236
APA StyleMao, Z., Rao, X., & Qi, F. (2024). Evaluation Research on Energy-Saving Retrofitting of Roofs of Traditional Wood-Structured Dwellings Based on the Continuation of Historical Features: A Case Study of Guangdu Village No. 280 Dwelling in Zhejiang. Sustainability, 16(6), 2236. https://doi.org/10.3390/su16062236
