Next Article in Journal
The Impact of Heterogeneous Environmental Regulation Tools on Economic Growth: Can Environmental Protection and Economic Growth Be Win-Win?
Next Article in Special Issue
Sustainable Tourism and Use of Natural Resources—Contemporary Practices and Management Challenges
Previous Article in Journal
Learning Sustainability: Post-Graduate Students’ Perceptions on the Use of Social Media Platforms to Enhance Academic Writing
Previous Article in Special Issue
Assessment of Recreational Value in a Protected Forest Area Considering the New Environmental Paradigm (Case Study: Helen Forest, Southwestern Iran)
 
 
Font Type:
Arial Georgia Verdana
Font Size:
Aa Aa Aa
Line Spacing:
Column Width:
Background:
Article

Fostering Resilient and Sustainable Rural Development through Nature-Based Tourism, Digital Technologies, and Built Heritage Preservation: The Experience of San Giovanni Lipioni, Italy

by
Carlo Costantino
1,2,*,
Alberto Calleo
1,
Anna Chiara Benedetti
1,
Cristiana Bartolomei
1 and
Giorgia Predari
1
1
Department of Architecture, Alma Mater Studiorum, University of Bologna, 40136 Bologna, Italy
2
Department of Agriculture and Forest Sciences (DAFNE), University of Tuscia, 01100 Viterbo, Italy
*
Author to whom correspondence should be addressed.
Sustainability 2024, 16(13), 5588; https://doi.org/10.3390/su16135588
Submission received: 25 May 2024 / Revised: 23 June 2024 / Accepted: 25 June 2024 / Published: 29 June 2024

Abstract

Situated in the province of Chieti, Italy, San Giovanni Lipioni is a representative case of depopulation, mirroring the challenges numerous rural areas across Europe face. In this regard, the present paper describes the activities of a four-year research project in collaboration with a territorial promotion association and a local action group (LAG) aimed at fostering the sustainable development of the territory, focusing on nature-based tourism, digital-based communication and activation strategies, and the preservation of built heritage. A multidisciplinary approach is employed, delving into three distinct levels, as follows: (i) a comprehensive analysis of the built heritage and the tangible and intangible culture; (ii) the activation of the nature hiking trails between surrounding municipalities; and (iii) an exploration of digital communication strategies for tourism promotion and territorial reactivation.

1. Introduction

The inner areas include a substantial portion of the Italian territory, comprising the majority of Italian municipalities, namely, 53%, with a residential population of 13.5 million constituting more than 20% of the total [1]. Depopulation in inner areas poses a significant challenge for many rural regions in Europe and worldwide, with significant implications for the tangible and intangible local culture and built heritage conservation [2]. Historically, the distance from major cities and external cultural influences has made rural communities keepers of local traditions and customs deeply rooted in the territory. However, with the decline of agricultural activities, the distance from urban areas has resulted in reduced economic opportunities (i.e., the absence of attractive job positions) and the lack of essential public services. This condition has forced people to migrate toward larger centers [3].
In different contexts, the origins of this phenomenon stem from multiple and complex factors that extend beyond simple demographic trends. In Europe, it started primarily in the 1950s and gradually intensified in the subsequent decades, leading to the current situation [4,5,6]. However, it remains ongoing in recently industrialized countries, in which it has been the focus of numerous studies [7,8]. In Italy, internal demographic movements have occurred on various scales. At the regional level, there is a noticeable trend of rural populations moving to large urban centers, attracted by opportunities and services. Simultaneously, on a national scale, there has been a historical movement toward large industrial cities driven by more significant opportunities in terms of university education, job offerings, transportation, services, etc. [9].
In addition, the problem of the depopulation of inner areas is emphasized by the broader trend of the declining national population in recent years [10]. In particular, in Italy, since 2008, the population’s natural balance has been steadily declining due to the decreasing number of births each year compared to mortality, which follows a growth trajectory due to the progressive aging of the population [11]. According to the latest available data, as of 31 December 2022, the Italian population totals 58,997,201 residents. This figure results from the recent general trend, in which the last three years have been reported as follows: there was a decrease of 32,932 people (−0.1%) in 2022, compared to the previous year [12], 206,080 (−0.4%) in 2021 [13], and 405,275 (−0.7%) in 2020 [14]. In particular, this decline was observed in small municipalities with a population of fewer than 5000 inhabitants, in which significantly higher figures were registered, amounting to −0.4% in 2022 [12], −0.4% in 2021 [13], and −1.2% in 2020 [14], highlighting the particular vulnerability of these territories.
To address these challenges, Italy and the European Union have adopted a series of measures aimed at supporting the development of inner areas against depopulation. From this perspective, local authorities assume a crucial leadership role in the adoption of territorial development policies and strategies. They have the opportunity to access and effectively utilize various European structural and investment funds, including the European Regional Development Fund (ERDF), European Social Fund Plus (ESF+), European Agricultural Fund for Rural Development (EAFRD), and European Maritime, Fisheries, and Aquaculture Fund (EMFAF). Numerous national projects have been implemented to promote the economic development of inner areas and counter depopulation. Among these initiatives, the National Strategy for Inner Areas (SNAI) targeted 72 inner areas comprising 1060 municipalities, addressing service deficiencies and promoting territorial development [15]. Additionally, the enactment of the “save villages law” (Legge Salva Borghi, no. 158 of 6 October 2017) allocated EUR 160 million to revitalize historical centers and enhance productive activities [16]. Furthermore, the recent implementation of the Borghi National Plan (Piano Nazionale Borghi), as part of the broader National Recovery and Resilience Plan (PNRR), stresses the shared effort to revitalize 250 villages by introducing new functions and infrastructure [17].
The results of the analysis of SNAI projects implemented in Italian municipalities in inner areas during the years 2014–2020 show that in the first two years, the policy did not lead to an increase in population. However, it generated a significant number of new commercial activities in the treated municipalities, with positive spillover effects on neighboring municipalities [18]. These national efforts are complemented by a growing number of local initiatives to enhance the natural and cultural heritage of municipalities. Indeed, especially in the advanced stages of strategies, the active involvement of rural residents in productive activities becomes crucial for improving the employment structure and, consequently, attracting a new active population [19].
Nature-based tourism revolves around the exploration and appreciation of nature and the surrounding environment, offering immersive and authentic experiences to visitors. In this regard, this kind of tourism represents a key path to revitalizing the inner areas thanks to its ability to leverage natural and cultural resources, often characterized by pristine landscapes, rich biodiversity, and unique historical heritage [20]. The development of tourism infrastructure and services related to nature-based tourism can stimulate the local economy, generate employment opportunities, and contribute to the conservation and enhancement of the territory [21]. In recent years, this nature-based tourism has grown significantly in Italy, especially among young people, representing 32.10% of all destinations visited in 2019 [22].
Tourism development in rural regions may necessitate adapting the existing building, originally designed for agricultural purposes, to the new requirements associated with tourism [23]. From this perspective, the adaptive reuse of built heritage represents a leading strategy to promote sustainable development, providing new life into significant community spaces and places. This approach not only preserves inner areas’ historical and cultural identities but can also generate economic opportunities by creating accommodation facilities, cultural centers, commercial spaces, and other tourist activities [24]. Among these examples, those related to wellness tourism can be included. Wellness tourism, arising from the intersection of the wellness market and the tourism sector, aims to provide services focused on personal care and the pursuit and maintenance of psychophysical balance [25]. This has also led to a significant transformation of the original function of the building heritage, seeking new uses that could be integrated with agricultural activities, such as “agrispa” [26].
Nevertheless, built heritage is a significant testimony of cultural, artistic, historical, and social values to future generations. Therefore, balanced transformations and appropriate actions are necessary to preserve these purposes [24]. From this perspective, over the past century, a vast production of restoration manuals of many cities and regions (such as Città di Castello, Rome, Abruzzo, etc.) has developed to preserve the typical characteristics of the built heritage, providing proper guidelines for supporting the interventions by professionals and local administrations. These manuals follow an analytical methodology set on a solid knowledge base of local construction techniques to identify the best practices for the conservation and restoration of each building component in terms of seismic improvement, increased energy efficiency, and the preservation of finishes [27,28,29].
In the field of tourism and hospitality, the adoption of information and communication technology (ICT) is documented by the wide variety of applications and studies [30] that have investigated several dimensions of the phenomena, such as strategic and operational management, guest services, and marketing [31]. Some recent research shows how social networks are commonly used for tourism promotion both directly and indirectly through photos, videos, and text sharing [32]. Moreover, among the opportunities offered through digital means, video games have been observed as possible drivers for tourism promotion since they convey the same travel motivation elements found in movies [33], thus presenting themselves as emerging marketing opportunities [34]. A representative case study is that of “Ghost’ n Found” [35], a site-specific cooperative game set in the Cistercian Staffarda Abbey near Cuneo (Piemonte), developed by the Italian team “We Are Muesli” [35] and supported by the Piemonte Region. The project is an exploration-based game that can be played on a smartphone and combines historical information with a narrative, ludic, and multimedia experience. Another relevant case study addressing the connection between video games and tourism in the Italian context is the ongoing documenting project by the “Italian Videogame Program” [36]. The project aims to prove the connection between games and the territory and facilitate communication between local administrators, institutions, game designers, and developers. The variety of opportunities offered by digital technologies, however, needs to be adapted and made accessible to the specificity of the area of intervention. In the case of San Giovanni Lipioni, the available resources, both economical and operational, have been considered in the definition of a strategic communication plan for its touristic promotion.
Promoting the economic and social development of municipalities of inner areas is a complex challenge. Many of these villages do not possess a significant cultural or natural heritage element that can attract tourists of a magnitude that becomes a source for the area’s economic development. Therefore, to economically foster these areas and ensure that young residents are not forced to leave, it is essential to operate on multiple levels to devise effective revitalization strategies. From this perspective, this paper proposes a methodology for revitalizing rural areas and fostering the sustainable development of the territory, which aims to promote various aspects of intangible culture and natural heritage through a unified communication strategy capable of attracting new visitors without altering the historical characteristics of the village. In particular, this methodology is structured into three phases, as follows: (i) the first was focused on studying the recurring characteristics of the built heritage to identify conservation guidelines that can be used by public administration and designers; (ii) the second was conducted on a territorial scale to identify the distinctive features of intangible and natural heritage, aiming to develop strategies to revitalize the municipality’s attractiveness; (iii) the third phase involved the digital communication and social media promotion of the village to publicize the local heritage and invite new tourists to the area, thereby promoting economic development.

2. Literature Review

Numerous examples in the literature highlight how tourism can be a key element in economically revitalizing small towns and helping to stop depopulation. However, rural tourism does have some negative effects, such as the seasonal nature of employment [37].
The main tourist attractions of inner areas in Italy and Europe are focused on experiences that offer tourists landscapes, tranquility, and traditional gastronomy [38]. Some of these examples incorporate the concept of “distributed hospitality” [39], which originated in Italy in the early 1980s with the aim of restoring formerly abandoned rural buildings. This concept offers visitors the opportunity to immerse themselves in the local community and participate in the social life of the village. The proposal for the village of Osini in Sardinia, Italy, can be included in this type of intervention and lead to the reuse of a group of buildings in a settlement that has been completely abandoned for more than 60 years [40]. As mentioned, gastronomy represents a key element for rural areas and is often integrated with agriculture and related services, such as agritourism, with which visitors can directly enjoy local products [41]. The case of Nughedu Santa Vittoria in Sardinia, Italy, has highlighted how the use of information communication technologies (ICT) enabled the launch of a sustainable and innovative “bottom-up” project of distributed hospitality centered around food [42]. This project, initiated in 2015 by a citizens’ association, offers an on-site culinary experience featuring “zero-kilometer” homemade products purchased through online platforms. This initiative has facilitated the informal training of 15 professionals and has innovatively integrated the village into the rural and sustainable tourism network through agreements with international tour operators [42].
Built and cultural heritage play fundamental roles in promoting tourism in inner areas. Sant’Angelo di Roccalvecce, Viterbo, Italy, exemplifies urban revitalization through art. Known as “The Village of Fairy Tales”, this initiative was launched in 2017 by local residents who combined art, creativity, and architectural restoration to enhance the village’s attractiveness. The outcome has been the creation of over 50 murals, some of which were created by international artists. Its fame among the general public has contributed to the economic recovery of the village; today, the bar remains open year-round, and several basic businesses, such as restaurants, pizzerias, pastry shops, grocery stores, and bed and breakfasts, have reopened [43]. However, often, heritage alone is not sufficient to develop the local economy. In the Portuguese village of Linhares da Beira, included in the “Historic Village of Portugal” list, tourism promotion is based on distinctive elements, as follows: history and culture, particularly the castle, but also paragliding, nature, and local gastronomy, such as queijo da serra (a regional mountain cheese), lamb, and olive oil [44]. This type of offering generates primarily domestic tourist demand dominated by one-day visitors.
Other activities aimed at diversifying the tourist offer include those related to nature and rural life, such as horse riding, fishing, hunting, trekking excursions, rafting, educational courses, therapy treatments, fruit picking, etc. [45]. Both these activities and those linked to the promotion of gourmet food and country products are intertwined with the community that hosts them. In particular, the relationship between visitors and hosts is fundamental to the rural tourism experience, influencing both visitor satisfaction and their intention to return [46].
The continuous innovations in information communication technologies (ICT) have radically changed how tourists seek information about different places and evaluate their alternatives [47]. Numerous digital apps and websites enable the digital exploration of rural areas, especially those related to mapping and accessing historical pathways [47,48]. This correlation becomes particularly significant when considering the interaction between young generations and rural tourism, a topic extensively discussed in the literature [49].

3. Background: The Historic Village of San Giovanni Lipioni

San Giovanni Lipioni is a small historic village covering only 8.82 square kilometers situated in the center of the Italian peninsula at the border between the Abruzzo and Molise regions, within the area of “Lower Trigno” (Basso Trigno), named for the river that separates the two regions (Figure 1). Even today, this area is characterized by many small historic villages whose architectural and cultural values cannot be separated from the environmental peculiarities of the surroundings. San Giovanni Lipioni is one of these towns in a hilly area 545 m above sea level in Abruzzo. On one side, its territory descends rapidly toward the Adriatic Sea, while, in the opposite direction, the hilly landscape tends to become mountainous, enriched with meadows and forests. These were crucial for agriculture, the inhabitants’ primary livelihood source during the last century.
From an urban perspective, the village develops along the ridge of the mountain (Figure 2), with roads following the natural slope of the terrain and forming an extremely dense built environment without squares and courtyards, as often occurs in other towns in the inner areas of central and southern Italy [50]. The dwellings are placed next to each other, forming compact aggregates with irregular volumes with openings on the main side facing the road or on two opposite sides, if the height difference between the two fronts allows, following the typical settlement structure of villages located on ridges or slopes [51]. From a building perspective, there are construction similarities with other villages located in hilly and mountainous contexts, which can access similar natural resources that can be used for construction materials, such as stone for walls and wood for floors and roofs.
Over the past seventy years, the territory of San Giovanni Lipioni has been affected by the same progressive depopulation of the inner areas of Central Italy. Until the 1950s and 1960s, a significant group of farmers and herders still inhabited the village, and the population remained relatively stable, with variations between 807 and 940 inhabitants [52]. In the decades following the Second World War, a first demographic decline began due to an initial migratory phenomenon primarily directed abroad, especially to France, Belgium, Germany, and Switzerland, or major Italian industrial cities such as Rome, Bologna, Milan, and Turin. Starting from the 1970s, the industrial development of the lower Trigno Valley led to further migration to the coastal towns of San Salvo and Vasto, which has continued so far [53]. The combination of these two main emigration phenomena and the consequent population aging resulted in a decrease of approximately 85% of inhabitants, from 906 in 1951 to 135 in 2022. In addition, the depopulation is exacerbated by the very high average age of the population, which reached 66.1 years in 2021, making San Giovanni Lipioni the oldest Italian municipality of that year [13], surpassed the following year by Ribordone in Piedmont, with a slightly lower average age of 65.5 years [12]. However, the progressive abandonment of the village during the years when Italy experienced significant construction development has preserved the environment and the historical heritage, which retains many of its original characteristics. Indeed, to date, approximately 28% of the existing housing units remain unused, while 58% are only temporarily used during the summer months [54].
From an economic and social development perspective, this demographic trend has inevitably influenced the presence of economic activities. Only a few commercial establishments remain operational in the area, including a pharmacy, a doctor’s office, and a small grocery store, highlighting the urgent need for intervention. However, in recent years, the local municipality and population have begun undertaking several initiatives to increase attractiveness and strengthen economic development. Among these activities are the following: (i) participation in projects aimed at promoting the territory and nature tourism in the region; (ii) involvement with neighboring municipalities in activities aimed to provide telemedicine services, recreational activities, and socio-cultural activities for the elderly population; and (iii) support for the establishment of new commercial activities.

4. Materials and Methods

The present paper describes the activities of a four-year research project aimed at combating depopulation, promoting economic and social development in the area, and fostering the sustainable development of the village and surroundings. Throughout this duration, the initiative has entailed close collaboration between a research unit of the University of Bologna and numerous local actors, as follows: (i) the Association for Social Promotion (APS), “Nessuno Escluso”, formed by residents of San Giovanni Lipioni, which is the primary contact and leader for the project implementation at the local level; (ii) the local action group (LAG) “Maiella Verde”, whose activities have focused on creating a synergic network with the small surrounding municipalities for the promotion of nature-based and social development in the rural area; and (iii) the Municipality of San Giovanni Lipioni and the town’s citizens, who have been engaged in multiple events during summer in the period (2021–2023) to keep them constantly updated and involved in the initiatives. The active participation of residents and the creation of opportunities for discussion and dialogue are crucial for building a resilient network that can contribute to the project’s implementation, feasibility, and long-term sustainability.
The project follows a multidisciplinary approach to develop an integrated program promoting nature-based tourism, digital communication and activation strategies, and the preservation of the built heritage (Figure 3). The methodology delves into three distinct levels to show the weaknesses and strengths of the actual situation and effectively support future actions, as follows:
  • Building and Urban Scale. This phase is based on a comprehensive analysis of the built heritage for its valorization, preservation, and reuse. Creating a solid knowledge base to support the proposal of different intervention scenarios for promoting the village’s revitalization is an integral part of the local tangible and intangible culture [55,56];
  • Territorial Scale. This phase involves analyzing and mapping the natural heritage and ancient agricultural or pastoral routes among the surrounding villages to reactivate them. These elements could play an essential role in the economic development of many rural contexts, mitigating depopulation processes [57,58];
  • Digital Scale. Exploring digital communication strategies and creating virtual itineraries serve as the bridge between the small rural village and the outside world. From this perspective, creating imagery linked to the place and its dissemination through social channels becomes the main attractor for introducing a tiny place to a broad audience. This process can create new job opportunities over time, leading to the integration of new permanent residents in the area. For this reason, this imagery must be built upon an understanding of the characteristics of the place, ensuring the preservation of local traditions and the lifestyle of the residents [59].

4.1. Analysis of the Built Heritage at the Urban and Building Scale

Specific analyses at the urban scale allow us to assume the settlement cycles of the valley of river Trigno, between Abruzzo and Molise, and also those of the village of San Giovanni Lipioni. This study of the roads and connection network and the development of urban fabrics enabled the identification of the different phases of expansion since historical documentation and sources have been available.
The primary road of early anthropization occupies the ridge line, and from there, the secondary roads depart to the promontory settlements, including San Giovanni Lipioni. This small center is extended in an elongated elliptical shape parallel to the road connecting the valley floor and the ridge. The urban fabric is strictly connected with the road network, consisting of two main routes following the contour lines, the first on the perimeter and the second close to the historic center. These are crossed by minor routes, creating a grid as a reference for the buildings since these secondary roads that cut off the contour lines are mostly steep and stepped. The urban fabric is highly compact, and the housing units are hardly identifiable, delivering the perception of a continuous building. The ancient center is placed along the north–south axis, where the church of Santa Maria delle Grazie is located, on the upper point of the village. East–west crossing paths connect the central axis with the perimetral route. The urban fabric follows a matrix route, structural routes, and connection routes, and both the road network and buildings perfectly fit the contour lines according to a curved and concentric pattern.
Along the perimeter of the oldest fabric, a few buildings appear as house walls, which are four stories high with buttresses toward the valley. It can be stated that the ancient center developed from the church up to the perimeter delimited by the house walls. Then, there was a first expansion from the median axis and a more recent one, after the mid-twentieth century, in the north–south direction (Figure 4).
The analysis at the urban scale is crucial to outline the development of the village and pave the way for further analyses at the building scale to complete the accurate knowledge base for supporting the definition of the best type of interventions respecting the principles of preservation and revitalization of the village.
For this purpose, the following stages are envisaged: (1) the survey campaign to collect dimensional/geometric data, typological and morphological data, and construction and conservation data about the buildings; (2) the database structuring using buildings’ synthetic factsheets to organize the data gathered from the previous phase according to different information packages; (3) the proposal of different design scenarios to support professionals, municipal administration, and other local actors for the identification of suitable interventions aimed at the improvement of the existing state while respecting and enhancing the traditional features; (4) the drafting of the restoration manual of San Giovanni Lipioni to organize the materials in the previous stages and provide an effective instrument to use as a reference for the design of interventions aimed at improving structural safety, energy consumption, and internal and external finishes.
This procedure was applied to 51 housing units from different properties that are currently not used and located in the ancient center and recent expansions.
(1)
The survey campaign combines traditional techniques with the unnamed aerial vehicle (UAV) photogrammetric survey to obtain the plans and sections with the dimensional information and the point clouds of some aggregate buildings. The latter allows for the extraction of the facades and other useful materials to check and complete the plans and sections and map degradation on the fronts. The use of drones and other lightweight aerial vehicles is appropriate in this urban setting, which is made up of small alleys and compact, low-rise buildings with two to four stories. Additionally, merging data from these two sources guarantees a more accurate representation and a deeper understanding of aggregated buildings, whose spatial distribution and property are divided [60]. Also, this type of tool (cameras, lightweight drones under 250 g) allows for a significant reduction in the time and cost of the operations and the implementation of results with future campaigns if more accurate data are needed on specific buildings.
(2)
Data collection from the survey phase is organized into five main sections to make the information easily accessible and identify multiple feasible interventions according to the initial requirements. Specifically, each synthetic factsheet includes building identification data, morphological/typological data, metric/dimensional data, and construction and conservation data about the vertical and horizontal load-bearing structures [61]. This last section identifies the materials and construction techniques, the state of conservation and the presence of degradation phenomena, and structural and functional criticalities to set the base for the interventions. To have quantitative figures that can be comparable, the following are computed: (a) the masonry quality index (MQI) calculated with the Borri method [62] to have three values for vertical, horizontal in-plane, and horizontal out-of-plane actions/loadings, resulting in different masonry categories in terms of quality; and (b) the vulnerability degree of each housing unit was calculated following the risk assessment method of the existing state according to the Italian regulation Ordinance No. 19 of 7 April 2017, namely, “Measures for the restoration with seismic improvement and reconstruction of buildings for residential use seriously damaged or destroyed by seismic events occurring on or after 24 August 2016” [63].
(3)
The list of recommended interventions is elaborated, starting with the definition of structural, conservation, and energy criticalities for each building element/part, namely, vertical structures, internal floor slabs, roofs, and plants. Indeed, an abacus with all the construction characteristics found in the 51 housing units is elaborated with two primary goals. The first one is to provide a synthetic and speedy view of the built heritage consistency, and the second one is to facilitate the identification of the interventions list, as each type of vertical structure/internal floor slab/roof/plant has its list of recommended interventions depending on the deficiencies.
(4)
The restoration manual is the final step and main objective of this research, as it collects, summarizes, and elaborates all the information gathered from the previous phases. It is divided into three main sections, as follows: an introduction with a detailed description of the village and the territory, the core part, with a description of the typical construction elements and the drawings, and the last one, with intervention guidelines and a presentation of some design proposals.

4.2. Territorial Scale Analysis: Surveying Trails, Mapping Natural Heritage, and Identifying Maintenance Interventions

This part of the methodology describes how re-functionalizing ancient footpaths to create a territorial trail system between small municipalities can represent not only an opportunity for nature-based tourism development but also a way to save an aspect related to the local historical memory [64]. A well-preserved natural heritage and the presence of similar villages characterize the area surrounding the village of San Giovanni Lipioni. Historically, these villages were connected by a wide network of small dirt roads used for agriculture and pastoralism, which are now mostly abandoned. This article focuses on the re-functionalization of the main trails in the municipality, which are called “The Golden Leaves Paths” and extend for approximately 32 km. These trails are part of a broader effort to revitalize the historical trail system called the “Alto Vastese Trail Network”, which spans approximately 681 km (Figure 5).
The involvement of local people, particularly the elderly, played a key role in this mapping activity, as it allowed for the recovery of the town’s historical memory, whose traces are still visible in the surrounding landscape but are difficult to interpret without the residents’ stories. Indeed, the routes to be mapped were selected through a series of meetings with the local population to identify the oldest paths, historically used by shepherds and residents to connect the village with work areas, where signs of ancient kilns and fountains are still visible. Additionally, some of the selected points of interest along these routes are linked to the memories of the inhabitants [65], aiming to create a connection between the local population and its heritage with the tourists who visit the area.
The territorial scale analysis is structured into three primary phases, as follows: (i) The first step involves the digital survey of trails and surrounding natural heritage. It is conducted using GPS receivers and outdoor navigation applications to delineate historical pathways. Meanwhile, drone and action camera footage are used to document both the maintenance status, to assess the necessary operations for trail reactivation, and the natural resources and cultural heritage, to identify points of interest along the trails. (ii) The second phase is structured in two stages based on a comprehensive analysis of areas. The first concerns the definition of the work necessary to reactivate the trails, such as trimming branches and vegetation, drainage interventions, repairing the existing paving, the maintenance of landslides, etc. These interventions are then scheduled and prioritized according to the available resources. The second involves the design of illustrative trail signs used to orientate tourists and highlight points of interest with interesting stories and information. (iii) The last step concerns the use of digital technologies to promote the development of a wider network of trails with neighboring municipalities and the planning of virtual tours to be disseminated on websites and social networks.
The trail survey campaign was carried out using hand-held GPS, two mobile applications for navigation and route planning, action cameras, and drones. Six routes, in total, were identified, referring to three main loop circuits. A previous publication [65] described additional details about the instrumentation used and the duration and characteristics of each trail. The survey campaign had three primary purposes. The first one was to map the ancient trails in the natural context using digital tools to create a system of virtual itineraries. For this purpose, a hand-held GPS and two outdoor navigation applications (Wikiloc® and Komoot®) were installed on two different mobile phones and used to track the precise route of each trail. Detailed data on the length, altitude, and duration of each segment can be obtained from this georeferenced track. In addition, the exact position of the points of interest is punctually identified along these paths using waypoints. The second objective of the survey campaign is to be closely linked to the use of waypoints, namely, to create a comprehensive photographic and video documentation of the points of interest identified along the paths. Then, all the necessary information was gathered to characterize the user experience along the trails and the digital pre-experience. The last purpose is related to mapping the maintenance status of the trails. In particular, accurate information was collected on the vegetation, the deterioration of paving, the collapse of dry-stacked retaining stone or timber walls, the necessary signposts along the routes, etc., with the aim of providing possible useful indications for the organizations that will handle trail restoration (Figure 6).
In Italy, no national regulatory framework indicates the minimum requirements for pedestrian pathways [66]. In Abruzzo, where San Giovanni Lipioni is located, several laws concerning hiking trails have been issued, but they do not provide rigorous technical recommendations [67,68]. For this reason, regional regulations and the Club Alpino Italiano (CAI) are the primary references for indicating how to implement signposting along routes and what types of maintenance interventions should be carried out on the pavement. In particular, the CAI manuals often provide several indications for planners that refer to Swiss regulations [69,70,71]. According to Italian and Swiss Tourist Club indications, the “Golden Leaves Paths” are classified as tourism itineraries or hiking trails only for walking, while they are not entirely safe for cycling [69,72]. Indeed, although many of the routes around the village are on asphalted roads and do not have a high degree of difficulty, in the forest segments, there are steep slopes or very narrow sections, resulting in unsafe conditions for cyclists.
In order to provide a comprehensive mapping of the conservation state, each trail was analyzed to determine the type of pavement and whether criticalities were present. A progressive numerical code was employed to classify each section uniquely. Subsequently, the conservation state was mapped section-by-section based on materials and construction techniques of pavement surfaces (Figure 7). The possible issues along the routes were reported individually. Recommended maintenance works involve vegetation cutting, pavement repair, and the restoration of drystone or timber retaining walls. It is advisable to trim intrusive vegetation flush with the trailing edge, especially for thorny species like brambles, while preserving trees and shrubs that contribute to shading. Suggested interventions on retaining stone walls vary depending on their conservation state, as follows: (i) only cleaning and maintenance procedures should be performed to ensure the durability of sections free from out-of-plumb issues; and (ii) partial demolition of compromised portions and subsequent reconstruction using conventional techniques is recommended for sections with out-of-plumb or partially collapsed walls. In these cases, special attention should be given to the reuse of stone blocks for the joining of new and old parts of masonry after reconstruction.
The last part of the territorial scale methodology is closely linked to nature-based tourism promotion and dissemination. Today, website dissemination is crucial for activating a project on this scale by allowing people to form imagery of the places they will be visiting. Numerous studies verify that economic logic plays a primary role in promoting the peculiarities of places, which gradually create real imagery over time [74] and then spread spontaneously through social networks, differing from the objects and landscapes that are actually seen [75]. In this perspective, the name of a trail system is crucial, as it needs to be recognizable to users. Therefore, the name “The Golden Leaves Paths” was coined, inspired by the characteristic leaf of the roverella oak, which covers much of the forests surrounding the villages and is also featured in the municipal coat of arms. The oak leaves motif served as the central theme of the signpost graphics used for maps and points of interest along the paths. Similarly, this visual language was adopted for the digital platform showcasing the routes, aimed to promote the tourist trail system globally and provide multimedia content linked to the QR codes on signs [75].

4.3. Preliminary Activities of the Communication Strategy

In the context of the whole project, it has been acknowledged that a comprehensive communication strategy needs to be developed to effectively disseminate, promote, and derive value from the initiatives undertaken. The communication strategy should encompass various communication channels, focusing on the digital ones. In order to develop a communication strategy plan that could suit the needs of the San Giovanni Lipioni community, an assessment of the pre-existing condition has been conducted. Qualitative interviews with members of the community involved in the association for social promotion (Associazione di Promozione Sociale—APS), “Nessuno Escluso”, have been carried out to evaluate both existing communication activities and, on a more fundamental level, accessibility to an internet connection and the availability of digital tools and communication technologies. Feedback and needs were gathered through informal discussions with local residents to identify areas for improvement in the existing communication activities. It emerged that there is a need to design a cost-effective, straightforward strategy that leverages existing resources and the contributions of active members of the association. From this discussion with the local population and associations, the “Golden Leaves” logo, already described in the previous section, was identified as the unifying graphic element, not only for the trail signage but for the entire communication strategy.

5. Results

The outcomes of this study are analyzed according to the three scales upon which the research is conducted, as follows: the building/urban scale, territorial scale, and digital scale.

5.1. Building/Urban Scale Results: The Restoration Manual and Built Heritage Characters

The analyses carried out at the building and urban scale focus on the definition of knowledge and design-support tools for the restoration interventions aimed at the conservation of the building stock, intended as a historical-cultural heritage to be protected and adapted to current and future needs.
Their accurate analysis allows the cataloging of the housing units according to the types of intervention required. Some buildings, with no constraints, have been abandoned for years and never maintained; in this case, a recovery intervention would not be feasible according to a cost–benefit analysis, thus favoring demolition and reconstruction. However, the knowledge they provide, as they have not been recently transformed, has been instrumental in understanding the recurring construction characteristics. Other buildings require different levels of intervention, i.e., works aimed at increasing structural safety, energy efficiency, or plant upgrading.
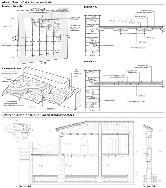
From this perspective, the summary factsheets are the main reference for the type of intervention, which is customizable and user-oriented, respecting the principle of preservation and enhancement of the building’s traditional and typical characteristics. The results of these analyses are finally included in the restoration manual.
The manual aims, on the one hand, to spread knowledge of construction techniques and building elements and, on the other hand, to promote their conservation and adaptation concerning the local building tradition and current housing needs. This volume connects the construction characters with compatible interventions by proposing the most suitable approach (Figure 8). In this sense, it is an operative tool to solve the frequent lack of intervention procedures in the built environment, which is still evident in many similar urban contexts. Even though, in recent years, a new awareness toward the conservation of the built heritage is recognizable, interventions in historic centers often use modern materials and techniques inappropriate for traditional buildings.

5.2. Territorial Scale Results: The Reactivation Proposal of the San Giovanni Lipioni Trail System

The proposal to reactivate the San Giovanni Lipioni Trail System is part of a broader regional project aimed at promoting nature-based tourism through a network of 48 pedestrian trails, totaling 321 km in length, and 360 km of bike paths, called the Alto Vastese Trail Network. The proposal is structured in the following three phases: (i) the development of a digital trail system to establish a common tourism promotion strategy with neighboring municipalities, focusing on enhancing natural, cultural, cuisine, and traditional resources; (ii) the design of signposting along the trails based on a unified communication strategy with digital promotion; and (iii) the identification of a set of design guidelines aimed at facilitating trail restoration works. A previous publication focused on the first two points [75]. However, this publication will focus on the third point, detailing the restoration operations that took place last year on the main trail of the network, the Kilns Trail (Via delle Fornaci). This trail is characterized by a loop shape that traverses the forest to the northeast of the village toward Celenza sul Trigno, with a length of 8.00 km and a duration of 2 h and 50 min. The name of this trail derives from the activities that were historically carried out along its route, particularly those related to the craft production of mansory bricks and roof tiles.
Based on the methodology described in the previous chapter, a summary analysis factsheet was created for each of the analyzed trails, containing general information, points of interest, characteristics of the natural heritage, a description of the maintenance status and type of pavement, and a list of interventions necessary for the trail’s re-functionalization (Figure 9). In particular, the factsheet includes the trail’s length in kilometers, elevation gain, duration, and difficulty based on indications from the CAI [69]. The map not only depicts the shape of the trail, reproduced using GPS tracks obtained during the survey campaign, but also geolocates a series of important information for both maintenance and subsequent tourism promotion. Each section forming the trail is uniquely identified by an alphanumeric code and colored differently based on the type of pavement present, with precise start and end points evaluated using GPS. If specific operations are required for restoring the trail, they are documented graphically along the corresponding trail section using the GPS position. This allows for estimating the length of the sections affected by the works, enabling the strategic planning of interventions and their precise location.
Furthermore, through a series of icons, each with different shapes and colors, the following information is provided: (i) the exact location of intersections along the trail and the corresponding vertical signage to use; (ii) the positions of points of interest related to both tangible and intangible heritage along with the informative signage to be installed; and (iii) the location of the trailhead signboard. The trail sections were obtained by breaking the GPS overall track into multiple elements of varying lengths, from crossroad to crossroad, and were uniquely identified. The same criteria were used to classify each direction signpost, as follows: an alphanumeric code in which the first letter corresponds to a sign typology, the first digit denotes the trail’s circuit, and the remaining two numbers follow a progressive numbering system, beginning with the main path. Furthermore, in accordance with CAI guidelines [69], a second digit separated by a slash character specifies the number of direction signs needed to provide road information.
In order to preserve and enhance the natural heritage of San Giovanni, an in-depth analysis was carried out using particular theme maps (Figure 5). This study included data on the most common tree species found along the paths. Subsequently, these details have been summarized in the factsheet of each trail, in which the type of vegetation surrounding the path is depicted through the use of fill patterns. Specifically, each color specifies if the land is mainly occupied, as follows: by (i) farming, olive crops, and fields left for pastures; (ii) a reforestation area with a predominance of conifers; (iii) a forest with a predominance of oaks, the most characteristic tree in the region; (iv) a wooden area where conifers and oaks begin to coexist; (v) a forest with predominantly oaks and shrubs; or (vi) a riverbed area with an absence of trees. Such information has helped support the maintenance operations and vegetation trimming initiated in 2023 to restore some trails (Figure 10).
At the same time, the use of .gpx trail files facilitates easier and broader web dissemination through both websites and major hiking platforms widely used in the Italian territory, such as Komoot® and Wikiloc®. This aspect is crucial to consider, ensuring that digital promotion serves as a means to highlight the natural heritage and intangible cultural aspects of a specific location rather than merely presenting virtual itineraries, even when set in areas of high landscape value [76]. From this perspective, digital tourism promotion becomes a significant opportunity to introduce places to a broader audience, especially concerning the events and initiatives being developed [77]. In this case, the same graphic language used for the signage is also adopted for the trail network’s website, becoming a unifying element representing the local context for which it is designed, thereby creating a shared collective imagery of the routes. Consequently, the choice of names, graphics, and symbologies becomes integral to the strategy aimed at promoting an image of the village community to the outside world [65].

5.3. Communication Strategy: Definition of a Plan for the Digital Promotion of San Giovanni Lipioni through Web and Social Channels

The described communication strategy has been proposed to the San Giovanni Lipioni community as a communication plan document. The document presents an analysis of the active communication channels, the objectives of the plan, the target audience, the messages and the values the communication strategy aims to convey, the channels, and the communication activities. Moreover, the document introduces basic digital communication principles and some accessible tools that can support the application of the communication strategy plan. For the scope of this article, the main passages of the document are described.
The underlying principle that has been followed in the construction of the communication strategy is the sustainability of implementation. Given the limited economic and operational resources, the activities outlined in the plan were defined so residents could easily undertake them.
The initial analysis has identified several communication channels related to San Giovanni Lipioni. Of these, the websites “https://sangiovannilipioni.net/ (accessed on 24 May 2024)”, a Facebook page, and two YouTube channels (one of which is a duplicate) are directly managed by the “Nessuno Escluso” association, whereas the local action group (LAG), “Maiella Verde”, handles the community project website, “https://riabitaresangiovanni.maiellaverde.it/ (accessed on 24 May 2024)”. Other social network channels dedicated to San Giovanni Lipioni have been identified. However, they are not directly managed by the “Nessuno Escluso” association and the LAG, and the limited flow of interactions from and toward these communication channels has been observed.
From the initial analysis, a series of short-, medium-, and long-term objectives have been defined in dialogue with the association “Nessuno Escluso” and the local community. Since the guiding principle of the overall project is to foster the sustainable development of the territory and to preserve the built heritage, the promotion of house renting and sales for residential opportunities has been considered as the primary long-term goal. In fact, the depopulation has led to house abandonment, which has resulted in the progressive obsolescence and deterioration of buildings. Therefore, built heritage preservation is strictly connected to the regeneration process, which can be activated by promoting sustainable real estate investment and avoiding exploitative speculation that ignores the local community’s needs and social values. In regard to this aspect, the project seeks to promote long-term and permanent residencies rather than short and occasional rentals.
In order to build a progression toward such a goal, the short-term and medium-term objectives are identified. These concerns include the increase in engagement of social media channels, visits to the website, and broader media coverage on local television channels about the activities carried on by the community to incentivize the incoming tourist flow.
In addition to describing organizational tools and methodologies to be implemented, the communication strategy detailed in the document is centered on the shared identity and values of the San Giovanni Lipioni community. This overall approach from which the communication plan is derived proposes subdividing the content into the following three thematic categories depending on time: past, present, and future. These are used to organize the materials following a list of different media types (articles, photos, quizzes, videos, etc.). This organization is suggested since it allows for the sharing of content production on the basis of a modular and flexible schedule. In fact, the systematization and planning of content production and publication allow for the optimization of time resources and effective audience engagement.

6. Discussion

This paper has outlined the outcomes of a three-year research project aimed at enhancing the cultural and natural heritage of the rural village of San Giovanni Lipioni, located in Abruzzo, Italy. This village is characterized by an exceptionally well-preserved historical heritage and natural landscape. These characteristics are also widespread in the surrounding municipalities, creating the conditions to develop a sustainable development project based on natural tourism.
The first part of the research described the conditions that have led to depopulation in rural inner areas. Understanding the phenomenon and its origins is crucial for proposing effective intervention strategies in the specific case study. Strengthening the attractiveness of these small urban centers is a broad topic that necessarily involves various technical and social aspects. Today, many regions with similar characteristics are focusing their development on tourism and agriculture, with the aim of creating a comprehensive tourism network dedicated to offering the “active nature vacation” experience. The territory surrounding the village is particularly suitable for this nature-based tourism vocation, along with high-quality food and wine production. From this perspective, enhancing the built heritage should be the community’s identity element and the focus of conservative transformation processes necessary to revitalize the village.
The research was conducted across three distinct action levels, as follows: the building/urban scale, the territorial scale, and the digital scale. The first phase identifies the restoration manual as a primary outcome, conceived as an operational tool to assist local administrations and designers in regenerating the village’s built heritage. Through the mapping, analysis, and cataloging of approximately 50 building units, the main construction, architectural, and typological features were identified. The main building components have been classified and represented as construction details in specific drawings. Each drawing analyzes the construction technique of every variation of the same building component, such as the different typologies of floors, roofs, etc. This method has allowed for the recognition of recurrent and homogeneous characteristics and the definition of conservative intervention guidelines. Indeed, although each building represents a unique case, it is possible to define general methods that respect the traditional construction technique. In this regard, the manual aims, on the one hand, to preserve the peculiarities of this widespread heritage and, on the other hand, to repurpose the housing units to meet contemporary housing needs, ensure seismic safety, and reduce energy consumption. These factors must be considered a fundamental premise for developing future tourism projects or other purposes.
The territorial scale analysis started with a critical/interpretative study of the potentialities and challenges of the rural context to promote a nature-based tourism strategy centered on the reactivation of ancient agricultural and pastoral routes, the Golden Leaves Paths. These trails are part of a broader network, known as the Alto Vastese Trails System (“Rete Sentieristica Alto Vastese”). An in-depth examination of the village’s territorial identity was carried out to achieve this goal, focusing mainly on local culture’s tangible and intangible aspects, enhancing the village’s uniqueness, beauty, and authenticity. Subsequently, a survey campaign employing digital tools was conducted to map the trails, identifying points of interest and any potential issues regarding maintenance works. In the second phase, a list of recommended interventions was created to assist administrations during the reactivation. Subsequently, trail mapping was utilized to indicate the precise location and extent of the maintenance works in each segment. Concurrently, artistic signage aimed at enhancing historical memory and local traditions was developed to be deployed along points of interest and for trailhead signboards.
Digital interventions were developed in parallel with the first two aspects to promote the built heritage and natural paths. The communication strategy proposed to the San Giovanni Lipioni community was developed by analyzing active communication channels, the target audience, and the messages and values intended to be conveyed to the external world. Subsequently, short-, medium-, and long-term objectives were defined in line with the sustainable development of the territory and the preservation of the built heritage. The communication strategy focused on the shared identity and values of the San Giovanni Lipioni community, organizing content for dissemination on social networks into the following three thematic categories: past, present, and future. From this perspective, social networks become a central aspect of the communication strategy, reinforcing the imagery of the places and generating a virtuous circle of promotion.
Future research can build on the results of the present paper, extending the methodology to surrounding municipalities characterized by similar building heritage, intangible culture, and natural landscape. In particular, the new development should be driven by using the quantitative data from this experience to understand which elements have been the most effective. Among the elements to be analyzed in the coming years, the following should be considered: the number of renovated dwellings, the number of newly sold apartments, the increase in the volume of web searches related to the village, the annual increase in new tourists, the participation of one-day tourists in the events organized in the village, the number of new commercial activities, the number of new residents, and the amount of new funding obtained from the municipality. Regarding these aspects, precise statistical data are not available; although some dwellings have been renovated and sold in the last five years, a new commercial activity has been established, in addition to activities outlined in Section 3.
As a recently concluded research experience, the main weakness of this study is the lack of statistical data on medium- to long-term outcomes. This absence is natural due to the limited timelines, but it prevents the application of objective statistical evaluations, creating uncertainties in the results. This issue can also be observed in other examples of studies that have been cited.
In light of the results obtained from other studies, it is possible to identify some common issues in the development of tourism in inner areas, as follows: (i) issues related to facility and infrastructure include a lack of infrastructure, low basic services, poor and inadequate connections, and limited commercial activities or accommodation facilities; (ii) issues related to tourism offerings include insufficient tourist attractions, recreational activities, or cultural events, the limited availability of tour guides, tourist information centers, and other support services, and language difficulties; and (iii) issues related to digitalization include ineffective marketing strategies and the insufficient promotion of local tourist destinations.
Moreover, the experience from the case study and other examined projects suggests some guidelines for rural tourism projects to enhance their chances of success, as follows: (i) With respect to community participation and local leadership, within the community, it is essential to have an association of citizens who are directly engaged to coordinate projects and involve fellow citizens. This role is challenging to be performed by external individuals or at an institutional level. (ii) Tourism should be viewed not as a unique element of economic development but as an additional form of diversification that should synergize and strengthen other existing local assets, such as agriculture, commercial activities, and handicrafts [78]. (iii) The development of digital communication strategies and social media is essential for promoting projects to a broad national and international audience and attracting new visitors. This entails continuously updating content and creating new initiatives aimed at maintaining interest in the village. (iv) With respect to participation in rural development projects, involvement through associations or municipalities in public funding calls is a fundamental strategy to implement significant projects in contexts in which obtaining private financing is difficult due to long return periods.

7. Conclusions

As shown by the results of the SNAI projects implemented in small Italian municipalities during 2014–2020 [18], revitalizing inner rural areas is a complex challenge whose outcomes may only become visible several years after their implementation. In these projects, positive effects are creating new job opportunities, increasing population, and generating spillover effects on adjacent municipalities. The dimensions of these actions must involve numerous actors and develop on different scales. Indeed, suppose these projects may begin from the top down through development programs at the European, national, or regional levels. In that case, their successful implementation has to involve the active participation of local governments and economic stakeholders and, most importantly, the population affected by such processes. Their proactive involvement can be crucial for the long-term sustainability of the projects, especially when projects focus on enhancing the built heritage and natural resources in small rural contexts in which property ownership of homes and land is highly fragmented. Indeed, it is necessary to find intervention strategies compatible with the local way of life that the local people can foster and implement spontaneously. Engaging the local community has been a key aspect of this paper, involving the owners of the houses analyzed in the first phase and elderly residents to preserve local historical memory in the second. The aim was to propose a revitalization strategy that suits the contemporary needs of nature-based tourism while respecting local traditions. The development of an extensive research project in such a small community has generated great enthusiasm among the local population, who have been significantly engaged over the years with the numerous activities described in Section 3.
Years of progressive depopulation have disadvantaged these contexts, often resulting in the gradual abandonment of small settlements and the surrounding territory. Interventions must address both the building and territorial scales to succeed. The abandonment of building heritage represents both a challenge and an opportunity for these contexts. Indeed, the absence of transformation has preserved the original characteristics of historic buildings in many villages. From this perspective, the development of restoration manuals provides intervention guidelines for designers and policymakers to ensure the functionalization of this heritage without altering its historical image. This intervention mode represents an extremely important core element to base a tourism promotion strategy in a context similar to that of Italy. Indeed, if the building heritage were radically transformed, any revitalization strategy would become much more complex, if not impossible, highlighting the absolute importance of preserving the built heritage, not only from a cultural and social perspective but also from an economic standpoint [79].
This consideration is significant in small contexts like the case study, in which building regulations and urban planning generally lack tools aimed at preserving the built heritage. For this reason, even in the absence of a specific tool like the restoration manual, policymakers in small municipalities should still adopt regulations aimed at both preserving historic buildings and encouraging their functionalization. Subsequently, building heritage conservation should be the focal point for identifying tourism promotion strategies that focus on local specificities. In addition, a proper dissemination strategy is crucial for interventions to succeed. While this activity may be of minor importance at the local level, as the local media adequately covers it, it becomes an essential aspect at the national and international levels. From this perspective, digital tools and social networks serve as a bridge between small rural villages and the external world, reinforcing the imagery of the places and creating a virtuous circle of promotion.
This article proposed a methodology for revitalizing the inner rural areas, which was developed through the following three scales: urban/building, territorial, and digital. In this regard, the activities of a four-year research project in collaboration with a territorial promotion association and a local action group (LAG) have been described. Creating a solid knowledge base has been central to developing actions geared toward promoting nature-based tourism, digital-based communication and activation strategies, and the preservation of built heritage. In particular, using a multidisciplinary approach was essential to initiate a virtuous process aimed at conserving the building heritage, creating new activities related to nature-based tourism, and establishing a cooperation network. These actions are fundamental to beginning the complex path aimed at revitalizing the village of San Giovanni Lipioni.

Author Contributions

Conceptualization, C.C., A.C., A.C.B., C.B. and G.P.; methodology, C.C., A.C., A.C.B., C.B. and G.P.; software, C.C., A.C. and A.C.B.; validation, C.C., A.C., A.C.B., C.B. and G.P.; formal analysis, C.C., A.C. and A.C.B.; investigation, C.C., A.C. and A.C.B.; resources, C.C., A.C. and A.C.B.; data curation, C.C., A.C. and A.C.B.; writing—original draft preparation, C.C., A.C. and A.C.B.; writing—review and editing, C.B. and G.P.; visualization, C.C., A.C. and A.C.B.; supervision, C.B. and G.P.; project administration, G.P.; funding acquisition, G.P. All authors have read and agreed to the published version of the manuscript.

Funding

These contents are part of two research contracts as follows: the first between the Department of Architecture of the University of Bologna and the Association “Nessuno Escluso Aps” (Italy), under the research project “Progetto di valorizzazione e promozione del territorio del Comune di San Giovanni Lipioni”, Convenzione Rep. 92 Prot. 969 del 13 October 2020; and the second between the Department of Architecture of the University of Bologna and Società Consortile a r.l. “Maiella Verde” (Italy), under the research project “Tutela del patrimonio edilizio e valorizzazione delle tipicità territoriali del Comune di San Giovanni Lipioni”, Convenzione Rep. 23 Prot. 255 del 9 March 2022.

Institutional Review Board Statement

Not applicable.

Informed Consent Statement

Not applicable.

Data Availability Statement

The data presented in this study are available on request from the corresponding author.

Acknowledgments

The authors wish to express their gratitude to the partners who have funded the research project for their support over the years. Furthermore, they would like to extend their thanks to the residents of the historic village of San Giovanni Lipioni for their warm hospitality and kindness during their visits. In addition, the authors extend their gratitude to Margherita Salvini for her contribution in Figure 8.

Conflicts of Interest

The authors declare no conflicts of interest. The funders had no role in the design of this study; the collection, analyses, or interpretation of data; the writing of the manuscript; or the decision to publish the results.

References

  1. Agenzia per la Coesione Territoriale. Strategia Nazionale per le Aree Interne: Definizione, Obiettivi, Strumenti e Governance. 2013. Available online: https://www.programmazioneeconomica.gov.it/it/ (accessed on 3 February 2023).
  2. Gao, J.; Wu, B. Revitalizing traditional villages through rural tourism: A case study of Yuanjia Village, Shaanxi Province, China. Tour. Manag. 2017, 63, 223–233. [Google Scholar] [CrossRef]
  3. Dematteis, G. Il Fenomeno Urbano in Italia: Interpretazioni, Prospettive, Politiche, 4th ed.; Franco Angeli: Milan, Italy, 1992; pp. 13–54. [Google Scholar]
  4. De Rubertis, S. Dinamiche insediative in Italia: Spopolamento dei comuni rurali. In Perspectives on Rural Development; Cejudo, E., Navarro, F., Eds.; Università del Salento: Lecce, Italy, 2019; Volume 3, pp. 71–96. [Google Scholar]
  5. Rodríguez-Rodríguez, D.; Larrubia Vargas, R. Protected Areas and Rural Depopulation in Spain: A Multi-Stakeholder Perceptual Study. Land 2022, 11, 384. [Google Scholar] [CrossRef]
  6. Vaishar, A.; Vavrouchová, H.; Lešková, A.; Peřinková, V. Depopulation and Extinction of Villages in Moravia and the Czech Part of Silesia since World War II. Land 2021, 10, 333. [Google Scholar] [CrossRef]
  7. Hu, Z.; Li, Y.; Long, H.; Kang, C. The evolution of China’s rural depopulation pattern and its influencing factors from 2000 to 2020. Appl. Geogr. 2023, 159, 10308. [Google Scholar] [CrossRef]
  8. Holroyd, C.; Coates, K. Rural Vietnam in transition: Widening gaps in an age of rural decline. J. Rural. Community Dev. 2021, 16, 157–176. [Google Scholar]
  9. Grignoli, D.; D’Ambrosio, M.; Boriati, D. Vulnerability and Inner Areas in Italy—“Should Young Stay or Should Young Go”? A Survey in the Molise Region. Sustainability 2024, 16, 359. [Google Scholar] [CrossRef]
  10. Conti, M.; Sivini, S. Small Municipalities Attracting Rural Newcomers and Fostering Local Cohesion: Innovative Approaches for Rural Regeneration in Italy. Sustainability 2023, 15, 5837. [Google Scholar] [CrossRef]
  11. ISTAT, National Institute of Statistics. Statistiche, Report. Dinamica Demografica, Anno 2022; Istituto Nazionale di Statistica: Rome, Italy, 2022; pp. 2–4.
  12. ISTAT, National Institute of Statistics. Censimento Popolazione e Abitazioni. Popolazione Residente e Dinamica Demografica, Anno 2022; Istituto Nazionale di Statistica: Rome, Italy, 2023; pp. 1–3.
  13. ISTAT, National Institute of Statistics. Censimento Popolazione e Abitazioni. Popolazione Residente e Dinamica Demografica, Anno 2021; Istituto Nazionale di Statistica: Rome, Italy, 2022; pp. 1–19.
  14. ISTAT, National Institute of Statistics. Censimento Popolazione e Abitazioni. Popolazione Residente e Dinamica Demografica, Anno 2020; Istituto Nazionale di Statistica: Rome, Italy, 2021; pp. 1–3.
  15. Presidenza del Consiglio dei Ministri, Department of Cohesion Policies. Relazione Annuale Sulla Strategia Nazionale per le Aree Interne Anno 2020; Department of Cohesion Policies: Rome, Italy, 2020; pp. 5–13. [Google Scholar]
  16. Legge No. 158/2017, G.U. 02/11/2017. Available online: https://www.gazzettaufficiale.it/eli/gu/2017/11/02/256/sg/pdf (accessed on 18 August 2022).
  17. Ministry of Culture. Assegnazione Delle Risorse a Valere Sul PNRR, Missione 1—Digitalizzazione, Innovazione, Competitività e Cultura, Component 3—Cultura 4.0 (M1 C3), Misura 2 “Rigenerazione di Piccoli Siti Culturali, Patrimonio Culturale, Religioso E Rurale”, Investimento 2.1: “Attrattività Dei Borghi” Finanziato Dall’unione Europea—Nextgenerationeu; Ministry of Culture: Rome, Italy, 2022; pp. 1–12.
  18. Monturano, G.; Resce, G.; Ventura, M. The Impact of Italy’s Strategy for Inner Areas on Depopulation and Industrial Growth: A Staggered Difference-in-Difference Analysis with Spatial Spillover Effects. Ufficio Valutazione Impatto del Senato della Repubblica Italiana, 2023; pp. 19–27. Available online: https://papers.ssrn.com/sol3/papers.cfm?abstract_id=4575900 (accessed on 24 May 2024).
  19. Buzinde, C.N.; Manuel-Navarrete, D.; Swanson, T. Co-producing sustainable solutions in indigenous communities through scientific tourism. J. Sustain. Tour. 2020, 28, 1255–1271. [Google Scholar] [CrossRef]
  20. CNR; IRiSS. Rapporto sul Turismo Italiano XXIV Edizione 2019–2020; Edizioni Consiglio Nazionale delle Ricerche: Rome, Italy, 2020; pp. 217–221. [Google Scholar]
  21. Bohlin, M.; Brandt, D.; Elbe, J. Tourism as a vehicle for regional development in peripheral areas—Myth or reality? A longitudinal case study of Swedish regions. Eur. Plan. Stud. 2016, 24, 1788–1805. [Google Scholar] [CrossRef]
  22. Saxena, G.; Clark, G.; Oliver, T.; Ilbery, B. Conceptualizing integrated rural tourism. Tour. Geogr. 2007, 9, 347–370. [Google Scholar] [CrossRef]
  23. Costantino, C.; Ruocco, S.; Predari, G.; Ferrante, A. Digital Survey for Built Heritage Preservation. An Adaptive Reuse Proposal of the Complex of Santa Maria Nascente. In Proceedings of the 9th Rehabend Euro-American Congress, Granada, Spain, 13–16 September 2022; pp. 1813–1821. [Google Scholar]
  24. Plevoets, B.; Van Cleempoel, K. Adaptive Reuse as a Strategy towards Conservation of Cultural Heritage: A Literature Review. Struct. Repairs Maint. Herit. Archit. 2011, 118, 155–164. [Google Scholar]
  25. Basile, E.; Cecchi, C. La Trasformazione Post-Industriale della Campagna. Dall’Agricoltura ai Sistemi Locali Rurali; Rosenberg & Sellier: Torino, Italy, 2001. [Google Scholar]
  26. Bigiotti, S.; Costantino, C.; Marucci, A. Agritourism Facilities in the Era of the Green Economy: A Combined Energy Audit and Life Cycle Assessment Approach for the Sustainable Regeneration of Rural Structures. Energies 2024, 17, 1101. [Google Scholar] [CrossRef]
  27. Giovanetti, F.; Argalia, R. Manuale del Recupero del Comune di Città di Castello; Tipografia del Genio Civile: Milan, Italy, 1992. [Google Scholar]
  28. Comune di Roma. Manuale del Recupero del Comune di Roma; Ed. Dei: Tipografia del Genio Civile: Milan, Italy, 2000. [Google Scholar]
  29. Ranellucci, S. Manuale del Recupero della Regione Abruzzo: Edilizia, Pavimentazioni, Arredi per Interni e Esterni-Serramenti, Infissi e Opere in Ferro; Ed. Dei: Tipografia del Genio Civile: Milan, Italy, 2011. [Google Scholar]
  30. Law, R.; Buhalis, D.; Cobanoglu, C. Progress on Information and Communication Technologies in Hospitality and Tourism. Int. J. Contemp. Hosp. Manag. 2014, 26, 727–750. [Google Scholar] [CrossRef]
  31. Ip, C.; Leung, R.; Law, R. Progress and development of information and communication technologies in hospitality. Int. J. Contemp. Hosp. Manag. 2011, 23, 533–551. [Google Scholar] [CrossRef]
  32. Lopez-Ortiz, D.M.; Rosas-Ybañes, I.F.; Cordova-Buiza, F.; Auccahuasi, W. Tourism Promotion Using Social Networks: A Systematic Review. Int. Conf. Tour. Res. 2023, 6, 158–165. [Google Scholar] [CrossRef]
  33. Dubois, L.E.; Gibbs, C. Video game–induced tourism: A new frontier for destination marketers. Tour. Rev. 2018, 73, 186–198. [Google Scholar] [CrossRef]
  34. Rainoldi, M.; Van den Winckel, A.; Yu, J.; Neuhofer, B. Video Game Experiential Marketing in Tourism: Designing for Experiences. In Information and Communication Technologies in Tourism; Stienmetz, J.L., Ferrer-Rosell, B., Massimo, D., Eds.; Springer International Publishing: Cham, Switzerland, 2022; pp. 3–15. [Google Scholar] [CrossRef]
  35. We Are Muesli, Ghost ‘N Found. Available online: https://wearemuesli.it/it/our-games/staffarda/ (accessed on 23 April 2024).
  36. IVIPRO. Italian Videogame Program. Available online: https://ivipro.it/it/home/ (accessed on 23 April 2024).
  37. Dimitrovski, D.D.; Todorović, A.T.; Valjarević, A.D. Rural tourism and regional development: Case study of development of rural tourism in the region of Gruţa, Serbia. Procedia Environ. Sci. 2012, 14, 288–297. [Google Scholar] [CrossRef]
  38. Nieto Masot, A.; Ríos Rodríguez, N. Rural Tourism as a Development Strategy in Low-Density Areas: Case Study in Northern Extremadura (Spain). Sustainability 2021, 13, 239. [Google Scholar] [CrossRef]
  39. Russo, G.; Lombardi, R.; Mangiagli, S. The tourist model in the collaborative economy: A modern approach. Int. J. Bus. Manag. 2013, 8, 1–13. [Google Scholar] [CrossRef][Green Version]
  40. De Montis, A.; Ledda, A.; Ganciu, A.; Serra, V.; De Montis, S. Recovery of rural centres and “albergo diffuso”: A case study in Sardinia, Italy. Land Use Policy 2015, 47, 12–28. [Google Scholar] [CrossRef]
  41. Labianca, M. Proposal of a Method for Identifying Socio-Economic Spatial Concentrations for the Development of Rural Areas: An Application to the Apulia Region (Southern Italy). Sustainability 2023, 15, 3180. [Google Scholar] [CrossRef]
  42. Battino, S.; Lampreu, S. The Role of the Sharing Economy for a Sustainable and Innovative Development of Rural Areas: A Case Study in Sardinia (Italy). Sustainability 2019, 11, 3004. [Google Scholar] [CrossRef]
  43. Available online: https://www.open.online/2023/02/18/sant-angelo-roccalvecce-borgo-rinato-fiabe-video/ (accessed on 20 June 2024).
  44. Kastenholz, E.; Carneiro, M.J.; Marques, C.P.; Lima, J. Understanding and managing the rural tourism experience—The case of a historical village in Portugal. Tour. Manag. Perspect. 2012, 4, 207–214. [Google Scholar] [CrossRef]
  45. Cánoves, G.; Villarino, M.; Priestley, G.K.; Blanco, A. Rural tourism in Spain: An analysis of recent evolution. Geoforum 2004, 35, 755–769. [Google Scholar] [CrossRef]
  46. Kastenholz, E.; Carneiro, M.J.; Eusébio, C.; Figueiredo, E. Host–guest relationships in rural tourism: Evidence from two Portuguese villages. Anatolia 2013, 24, 367–380. [Google Scholar] [CrossRef]
  47. Garau, C. Perspectives on Cultural and Sustainable Rural Tourism in a Smart Region: The Case Study of Marmilla in Sardinia (Italy). Sustainability 2015, 7, 6412–6434. [Google Scholar] [CrossRef]
  48. Garau, C.; Ilardi, E. The “Non-Places” Meet the “Places:” Virtual Tours on Smartphones for the Enhancement of Cultural Heritage. J. Urban Tech. 2014, 21, 79–91. [Google Scholar] [CrossRef]
  49. Giachino, C.; Pattanaro, G.; Bertoldi, B.; Bollani, L.; Bonadonna, A. Nature-based solutions and their potential to attract the young generations. Land Use Policy 2021, 101, 105176. [Google Scholar] [CrossRef]
  50. Bonafiglia, A.; Catuogno, R. Morphometric survey of medieval settlements. In Proceedings of the ReUso 2015 III Congreso Internacional Sobre Documentación, Conservación, y Reutilización del Patrimonio Arquitecttectónico y Paisajístico, Valencia, Spain, 22–24 October 2015; pp. 1995–2002. [Google Scholar]
  51. Caniggia, G.; Maffei, G.L. Lettura Dell’edilizia di Base; Marsilio Editori: Venezia, Italy, 1995. [Google Scholar]
  52. Statistical Data on the Population of San Giovanni Lipioni. Available online: http://dati-censimentipermanenti.istat.it/?lang=it (accessed on 22 March 2024).
  53. Regione Abruzzo. Strategia Area Basso Sangro-Trigno, Comunità Generative All’Opera, Accordo di Partenariato 2014–2020, Strategia Nazionale per le Aree Interne Regione Abruzzo. 2017. Available online: https://www.google.com/url?sa=t&source=web&rct=j&opi=89978449&url=https://www.regione.abruzzo.it/system/files/europa/snai/aree-interne/strategia_area_basso_sangro_trigno.pdf&ved=2ahUKEwi4gqqKy4qHAxVBlFYBHUpBCaUQFnoECBIQAQ&usg=AOvVaw163fYNe3Yjqt-qbX-4CrWT (accessed on 28 September 2022).
  54. Atto Costitutivo di Associazione Non Riconosciuta di Promozione Sociale, Allegato “A” Al Rep. N. 3580/2943, Registrato A: VASTO, Il 15/06/2020, N. 1338 Serie 1 T. 2020. Available online: https://sangiovannilipioni.net/associazione/ (accessed on 25 August 2022).
  55. Postiglione, G.; Lupo, E. Rural Heritage and Sustainable Tourism: Humac Village in Croatia. In Rural Heritage and Sustainable Tourism; Zagreb University Press: Zagreb, Croatia; pp. 113–121. Available online: https://www.academia.edu/827943/Rural_Heritage_and_sustainable_tourism (accessed on 28 September 2022).
  56. Coros, M.M.; Privitera, D.; Paunescu, L.M.; Nedelcu, A.; Lupu, C.; Ganusceac, A. Marginimea Sibiului Tells Its Story: Sustainability, Cultural Heritage and Rural Tourism—A Supply-Side Perspective. Sustainability 2021, 13, 5309. [Google Scholar] [CrossRef]
  57. Kastenholz, E.; Rodriguez, A. Discussing the potential benefits of hiking tourism in Portugal. Anatolia 2007, 18, 5–21. [Google Scholar] [CrossRef]
  58. Wall-Reinius, S.; Bäck, L. Changes in visitor demand. Inter-year comparisons of Swedish hikers’ characteristics, preferences and experiences. Scand. J. Hosp. Tour. 2011, 11, 38–53. [Google Scholar] [CrossRef]
  59. Wang, Z.; Marafa, L. Tourism Imaginary and Landscape at Heritage Site: A Case in Honghe Hani Rice Terraces, China. Land 2021, 10, 439. [Google Scholar] [CrossRef]
  60. Costantino, C.; Benedetti, A.C.; Predari, G. UAV Photogrammetric Survey as a Fast and Low-Cost Tool to Foster the Conservation of Small Villages. The Case Study of San Giovanni. In Proceedings of the D-SITE 2022 Drones—Systems of Information on culTural hEritage. For a Spatial and Social Investigation, Pavia, Italy, 16–18 June 2022. [Google Scholar]
  61. Benedetti, A.C.; Costantino, C.; Mantini, N.; Bartolomei, C.; Predari, G. A Methodology for Historic Villages Preservation. The Case Study of San Giovanni Lipioni. In Built Heritage Sustainable Reuse; Building Pathology and Rehabilitation; Varum, H., Cunha Ferreira, T., Eds.; Springer: Cham, Switzerland, 2023; Volume 26, pp. 53–69. [Google Scholar] [CrossRef]
  62. Borri, A.; Corradi, M.; Castori, G.; De Maria, A. A method for the analysis and classification of historic masonry. Bull. Earthq. Eng. 2015, 13, 2647–2665. [Google Scholar] [CrossRef]
  63. Ordinance No. 19 of April 7, 2017 “Measures for the Restoration with Seismic Improvement and Reconstruction of Buildings for Residential Use Seriously Damaged or Destroyed by Seismic Events Occurring on or after August 24, 2016” (Misure per il Ripristino con Miglioramento Sismico e la Ricostruzione di Immobili ad uso Abitativo Gravemente Danneggiati o Distrutti Dagli Eventi Sismici Verificatisi a Far Data dal 24 Agosto 2016). Available online: https://sisma2016.gov.it/wp-content/uploads/2017/08/Ordinanza-N.-19-Misure-per-il-ripristino-con-miglioramento-sismico-e-la-ricostruzione-di-immobili-ad-uso-abitativo-gravemente-danneggiati-o-distrutti-coordinata-fino-alla-N.62.pdf (accessed on 5 April 2024).
  64. Ivona, A.; Rinella, A.; Rinella, F.; Epifani, F.; Nocco, S. Resilient Rural Areas and Tourism Development Paths: A Comparison of Case Studies. Sustainability 2021, 13, 3022. [Google Scholar] [CrossRef]
  65. Costantino, C.; Mantini, N.; Benedetti, A.C.; Bartolomei, C.; Predari, G. Digital and Territorial Trails System for Developing Sustainable Tourism and Enhancing Cultural Heritage in Rural Areas: The Case of San Giovanni Lipioni, Italy. Sustainability 2022, 14, 13982. [Google Scholar] [CrossRef]
  66. Moore, R.L.; Ross, D.T. Trails and recreational greenways. Parks Recreat. 1998, 33, 68. [Google Scholar]
  67. Istituzione Rete Escursionistica Alpinistica Speleologica Torrentistica Abruzzo (REASTA). Per lo Sviluppo Sostenibile Socio-Economico delle Zone Montane e Nuove Norme Per Il Soccorso in Ambiente Montano; REASTA. 2016. Available online: http://www2.consiglio.regione.abruzzo.it/affassweb/X_Legislatura/leggi/2016/v082_05.pdf (accessed on 16 August 2022).
  68. Legge Organica in Materia di Tutela e Valorizzazione Delle Foreste, Dei Pascoli e del Patrimonio Arboreo Della Regione Abruzzo; L.R. 4 Gennaio 2014, n. 3. 2014. Available online: http://www.consiglio.regione.abruzzo.it/leggi_tv/abruzzo_lr/2014/lr14003/Intero.asp (accessed on 28 September 2022).
  69. Club Alpino Italiano. Struttura Operativa Sentieri e Cartografia, Sentieri, Pianificazione, Segnaletica e Manutenzione. Quaderno di Escursionismo, N. 1, 4th ed.; Ancora Arti Grafiche: Milan, Italy, 2010. [Google Scholar]
  70. Ufficio Federale Delle Strade USTRA. Costruzione e Manutenzione di Sentieri Escursionistici, Manuale; USTRA: Ittigen, Switzerland, 2009; Available online: https://www.astra.admin.ch/dam/astra/it/dokumente/langsamverkehr/lv_v09_bau_und_unterhaltvonwanderwegen-handbuch2009.pdf.download.pdf/tl_a09_costruzioneemanutenzionedisentieriescursionistici-manuale.pdf (accessed on 21 August 2022).
  71. Mzobanzi Erasmus, M.; Giampiccoli, A. Community-based tourism development: A Hiking Trails perspective. Environ. Econ. 2017, 6, 1–17. [Google Scholar]
  72. Schweirzer Alpen-Club SAC. SAC Mountain and Alpine Hiking Scale; Schweirzer Alpen-Club SAC: Olten, Switzerland, 2020; Available online: https://www.sac-cas.ch/fileadmin/Ausbildung_und_Wissen/Sicher_unterwegs/Sicher_unterwegs_Wandern/2020_Berg_Alpinwanderskala_EN.pdf (accessed on 17 August 2022).
  73. Club Alpino Italiano. Sentieri. Ripristino Manutenzione Segnaletica; Club Alpino Italiano: Milan, Italy, 1999. [Google Scholar]
  74. Hughes, G. Tourism and the geographical imagination. Leis. Stud. 1992, 11, 31–42. [Google Scholar] [CrossRef]
  75. Castoriadis, C. The Imaginary Institution of Society; MIT Press: Boston, MA, USA, 1997. [Google Scholar]
  76. Verona Città Murata. Available online: https://www.veronacittamurata.it/ (accessed on 28 September 2022).
  77. Loulanski, T.; Loulanski, V. The sustainable integration of cultural heritage and tourism: A meta-study. Sustain. Tour. 2011, 19, 837–862. [Google Scholar] [CrossRef]
  78. Clarke, J.; Denman, R.; Hickman, G.; Slovak, J. Rural tourism in Roznava Okres: A Slovak case study. Tour. Manag. 2001, 22, 193–202. [Google Scholar] [CrossRef]
  79. Jordan, P.; Havadi-Nagy, K.X.; Maroşi, Z. Tourism as a driving force in rural development: Comparative case study of Romanian and Austrian villages. Tour. Int. Interdiscip. J. 2016, 64, 203–218. [Google Scholar]
Figure 1. (On the left), the location of San Giovanni Lipioni in relation to the major Italian cities nearby with an international airport; (on the right), the position of the Municipality of San Giovanni Lipioni within the province of Chieti in relation to the principal industrial hubs (2024, © Authors).
Figure 1. (On the left), the location of San Giovanni Lipioni in relation to the major Italian cities nearby with an international airport; (on the right), the position of the Municipality of San Giovanni Lipioni within the province of Chieti in relation to the principal industrial hubs (2024, © Authors).
Sustainability 16 05588 g001
Figure 2. Photograph of the village of San Giovanni Lipioni (2022, © Authors).
Figure 2. Photograph of the village of San Giovanni Lipioni (2022, © Authors).
Sustainability 16 05588 g002
Figure 3. Structure and stages of the methodological approach (2024, © Authors).
Figure 3. Structure and stages of the methodological approach (2024, © Authors).
Sustainability 16 05588 g003
Figure 4. (On the left): Analysis of the systems in the San Giovanni Lipioni territory with the main road following the ridge, located on the valley floor in red, the secondary roads in orange, and the urban area of San Giovanni Lipioni in yellow. (On the right): the road network and the urban fabric of the village. (On the bottom): different expansion phases of the village (2024, © Authors).
Figure 4. (On the left): Analysis of the systems in the San Giovanni Lipioni territory with the main road following the ridge, located on the valley floor in red, the secondary roads in orange, and the urban area of San Giovanni Lipioni in yellow. (On the right): the road network and the urban fabric of the village. (On the bottom): different expansion phases of the village (2024, © Authors).
Sustainability 16 05588 g004
Figure 5. The “Golden Leaves Paths” (center), the largest trail system of the Alto Vastese (on the left), and the analysis of cultural and natural heritage (on the right). (2024, © Authors).
Figure 5. The “Golden Leaves Paths” (center), the largest trail system of the Alto Vastese (on the left), and the analysis of cultural and natural heritage (on the right). (2024, © Authors).
Sustainability 16 05588 g005
Figure 6. Pictures of the Kilns Trail documenting the state of trail maintenance, critical issues, surrounding vegetation, and/or natural points of interest to promote hiking tourism (2023, © Authors).
Figure 6. Pictures of the Kilns Trail documenting the state of trail maintenance, critical issues, surrounding vegetation, and/or natural points of interest to promote hiking tourism (2023, © Authors).
Sustainability 16 05588 g006
Figure 7. Mapping of trail pavement types and necessary interventions, identified for each segment (numbered). The mapping is based on the guidelines of the Italian Alpine Club Manual [73] (2024, © Authors).
Figure 7. Mapping of trail pavement types and necessary interventions, identified for each segment (numbered). The mapping is based on the guidelines of the Italian Alpine Club Manual [73] (2024, © Authors).
Sustainability 16 05588 g007
Figure 8. Drawings of the restoration manual of the village of San Giovanni Lipioni. On the top: a typical floor slab realized with steel beams and bricks (2024, © Authors). On the bottom: sections of the recovery intervention in a typical detached building in a rural area (2024, © Margherita Salvini).
Figure 8. Drawings of the restoration manual of the village of San Giovanni Lipioni. On the top: a typical floor slab realized with steel beams and bricks (2024, © Authors). On the bottom: sections of the recovery intervention in a typical detached building in a rural area (2024, © Margherita Salvini).
Sustainability 16 05588 g008
Figure 9. Analysis of the S04_Kilns Trail, containing general information (length, height difference, time, difficulty), points of interest, pavement typology, and recommended interventions (elaboration: © Authors; map source: http://geoportale.regione.abruzzo.it/Cartanet/viewer, accessed on 18 August 2022, © Authors).
Figure 9. Analysis of the S04_Kilns Trail, containing general information (length, height difference, time, difficulty), points of interest, pavement typology, and recommended interventions (elaboration: © Authors; map source: http://geoportale.regione.abruzzo.it/Cartanet/viewer, accessed on 18 August 2022, © Authors).
Sustainability 16 05588 g009
Figure 10. Pictures of the Kilns Trail taken during the survey campaign and the subsequent summer after maintenance work on the path and vegetation clearance. Top: maintenance work carried out at Fontana del Prato; center: vegetation clearing at one of the furnaces; bottom: restoration of damaged road surface (2023, © Authors).
Figure 10. Pictures of the Kilns Trail taken during the survey campaign and the subsequent summer after maintenance work on the path and vegetation clearance. Top: maintenance work carried out at Fontana del Prato; center: vegetation clearing at one of the furnaces; bottom: restoration of damaged road surface (2023, © Authors).
Sustainability 16 05588 g010
Disclaimer/Publisher’s Note: The statements, opinions and data contained in all publications are solely those of the individual author(s) and contributor(s) and not of MDPI and/or the editor(s). MDPI and/or the editor(s) disclaim responsibility for any injury to people or property resulting from any ideas, methods, instructions or products referred to in the content.

Share and Cite

MDPI and ACS Style

Costantino, C.; Calleo, A.; Benedetti, A.C.; Bartolomei, C.; Predari, G. Fostering Resilient and Sustainable Rural Development through Nature-Based Tourism, Digital Technologies, and Built Heritage Preservation: The Experience of San Giovanni Lipioni, Italy. Sustainability 2024, 16, 5588. https://doi.org/10.3390/su16135588

AMA Style

Costantino C, Calleo A, Benedetti AC, Bartolomei C, Predari G. Fostering Resilient and Sustainable Rural Development through Nature-Based Tourism, Digital Technologies, and Built Heritage Preservation: The Experience of San Giovanni Lipioni, Italy. Sustainability. 2024; 16(13):5588. https://doi.org/10.3390/su16135588

Chicago/Turabian Style

Costantino, Carlo, Alberto Calleo, Anna Chiara Benedetti, Cristiana Bartolomei, and Giorgia Predari. 2024. "Fostering Resilient and Sustainable Rural Development through Nature-Based Tourism, Digital Technologies, and Built Heritage Preservation: The Experience of San Giovanni Lipioni, Italy" Sustainability 16, no. 13: 5588. https://doi.org/10.3390/su16135588

APA Style

Costantino, C., Calleo, A., Benedetti, A. C., Bartolomei, C., & Predari, G. (2024). Fostering Resilient and Sustainable Rural Development through Nature-Based Tourism, Digital Technologies, and Built Heritage Preservation: The Experience of San Giovanni Lipioni, Italy. Sustainability, 16(13), 5588. https://doi.org/10.3390/su16135588

Note that from the first issue of 2016, this journal uses article numbers instead of page numbers. See further details here.

Article Metrics

Back to TopTop