Neighborhood-Level LCA and Hotspot Analysis of Embodied Emissions of a New Urban Area in Reykjavík
Abstract
1. Introduction
2. Materials and Methods
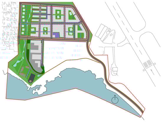
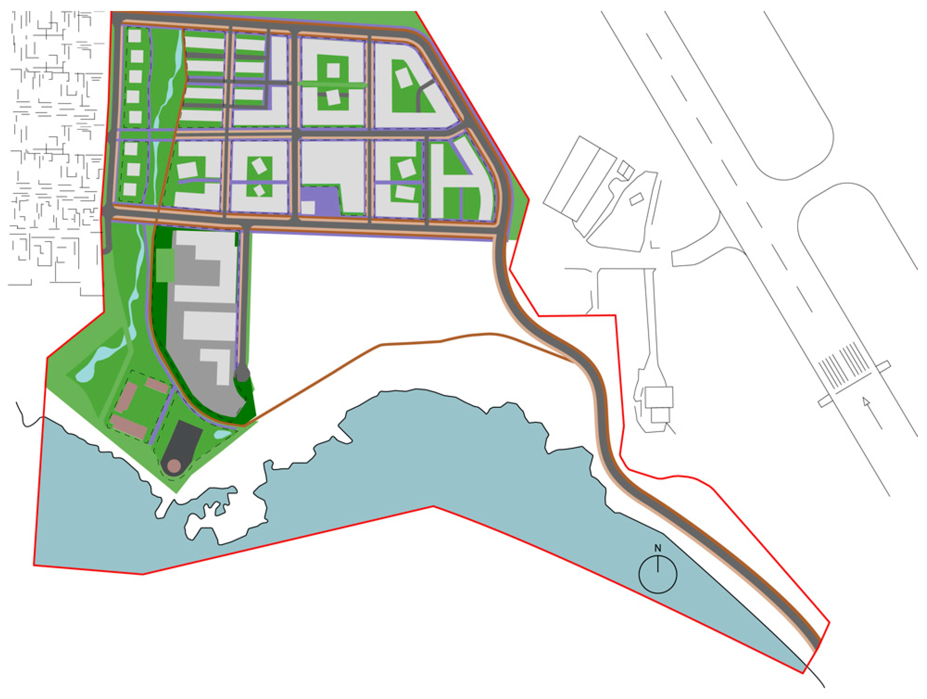
2.1. Case Study Description
2.2. Method
2.3. Research Process
2.3.1. Goal and Scope Definition
- Emissions per one square meter (m2) of the gross area of the total construction volume of both Buildings and Other Spaces (178,850 m2).
- All emissions from residential construction per m2 of the gross area of the residential spaces (67,520 m2).
- All emissions from residential construction and constructions of related spaces per m2 of residential space (the related spaces taken into account from the Other Spaces domain, mainly parking house 6000 m2).
- Emissions from total residential construction and related spaces per resident.
- Emissions from total residential construction and related spaces per residence.
- Emissions per one m2 of the gross area of the total construction volume of buildings for each site of the residential houses.
2.3.2. Life-Cycle Inventory
2.3.2.1. Building´s Domain (B)
2.3.2.2. Other Spaces Domain (OS)
2.4. Life Cycle Impact Assessment (LCIA)
3. Results
3.1. The Pre-Use Phase Emission Estimation
3.1.1. Overall Area
3.1.2. Residential Space
3.2. Hotspot Analysis
3.2.1. Hotspots by Different Building Systems within the Building Domain
3.2.2. Hotspot Analysis of the Highest Contribution System within the Building Domain
3.2.3. Hotspots by Different Systems within the Other Spaces Domain
3.2.4. Material Replacement Scenarios
4. Discussion
4.1. The Base Case Assessment
4.2. The Hotspot Analysis
4.3. The Alternative Material Scenarios
4.4. Limitations
5. Conclusions
Supplementary Materials
Author Contributions
Funding
Institutional Review Board Statement
Informed Consent Statement
Data Availability Statement
Acknowledgments
Conflicts of Interest
References
- Rockström, J.; Steffen, W.; Noone, K.; Persson, Å.; Chapin, F.S.; Lambin, E.F.; Lenton, T.M.; Scheffer, M.; Folke, C.; Schellnhuber, H.J.; et al. A safe operating space for humanity. Nature 2009, 461, 472–475. [Google Scholar] [CrossRef] [PubMed]
- Steffen, W.; Broadgate, W.; Deutsch, L.; Gaffney, O.; Ludwig, C. The trajectory of the Anthropocene: The great acceleration. Anthr. Rev. 2015, 2, 81–98. [Google Scholar] [CrossRef]
- UN-Habitat. World Cities Report 2020: The Value of Sustainable Urbanization. 2020. Available online: https://unhabitat.org/sites/default/files/2020/10/wcr_2020_report.pdf (accessed on 10 February 2021).
- Getter, K.L.; Rowe, D.B. The role of extensive green roofs in sustainable development. HortScience 2006, 41, 1276–1285. [Google Scholar] [CrossRef]
- United Nations Environment Programme. 2021 Global Status Report for Buildings and Construction: Towards a Zero-Emission, Efficient and Resilient Buildings and Construction Sector. Nairobi. 2021. Available online: https://www.unep.org/resources/report/2021-global-status-report-buildings-and-construction (accessed on 14 May 2022).
- Ewing, R.; Cervero, R. Travel and the built environment: A meta-analysis. J. Am. Plan. Assoc. 2010, 76, 265–294. [Google Scholar] [CrossRef]
- Fuller, R.; Crawford, R. Impact of past and future residential housing development patterns on energy demand and related emissions. J. Hous. Built Environ. 2011, 26, 165–183. [Google Scholar] [CrossRef]
- Holden, E.; Norland, I.T. Three challenges for the compact city as a sustainable urban form: Household consumption of energy and transport in eight residential areas in the greater Oslo region. Urban Stud. 2005, 42, 2145–2166. [Google Scholar] [CrossRef]
- VandeWeghe, J.R.; Kennedy, C. A spatial analysis of residential greenhouse gas emissions in the Toronto census metropolitan area. J. Ind. Ecol. 2007, 11, 133–144. [Google Scholar] [CrossRef]
- Glaeser, E.L.; Kahn, M.E. The greenness of cities: Carbon dioxide emissions and urban development. J. Urban Econ. 2010, 67, 404–418. [Google Scholar] [CrossRef]
- Heinonen, J.; Jalas, M.; Juntunen, J.K.; Ala-Mantila, S.; Junnila, S. Situated lifestyles: I. How lifestyles change along with the level of urbanization and what the greenhouse gas implications are—A study of Finland. Environ. Res. Lett. 2013, 8, 025003. [Google Scholar] [CrossRef]
- Säynäjoki, A.; Heinonen, J.; Junnila, S.; Horvath, A. Can life-cycle assessment produce reliable policy guidelines in the building sector? Environ. Res. Lett. 2017, 12, 013001. [Google Scholar] [CrossRef]
- Albertí, J.; Balaguera, A.; Brodhag, C.; Fullana-i-Palmer, P. Towards life cycle sustainability assessment of cities. A review of background knowledge. Sci. Total Environ. 2017, 609, 1049–1063. [Google Scholar] [CrossRef] [PubMed]
- Albertí, J.; Brodhag, C.; Fullana-i-Palmer, P. First steps in life cycle assessments of cities with a sustainability perspective: A proposal for goal, function, functional unit, and reference flow. Sci. Total Environ. 2019, 646, 1516–1527. [Google Scholar] [CrossRef]
- Lausselet, C.; Borgnes, V.; Brattebø, H. LCA modelling for Zero Emission Neighbourhoods in early stage planning. Build. Environ. 2019, 149, 379–389. [Google Scholar] [CrossRef]
- Lotteau, M.; Loubet, P.; Pousse, M.; Dufrasnes, E.; Sonnemann, G. Critical review of life cycle assessment (LCA) for the built environment at the neighborhood scale. Build. Environ. 2015, 93, 165–178. [Google Scholar] [CrossRef]
- Zhang, B.; Su, S.; Zhu, Y.; Li, X. An LCA-based environmental impact assessment model for regulatory planning. Environ. Impact Assess. Rev. 2020, 83, 106406. [Google Scholar] [CrossRef]
- Heinonen, J.; Säynäjoki, A.; Junnonen, J.-M.; Pöyry, A.; Junnila, S. Pre-use phase LCA of a multi-story residential building: Can greenhouse gas emissions be used as a more general environmental performance indicator? Build. Environ. 2016, 95, 116–125. [Google Scholar] [CrossRef]
- Sartori, I.; Hestnes, A.G. Energy use in the life cycle of conventional and low-energy buildings: A review article. Energy Build. 2007, 39, 249–257. [Google Scholar] [CrossRef]
- Anand, C.K.; Amor, B. Recent developments, future challenges and new research directions in LCA of buildings: A critical review. Renew. Sustain. Energy Rev. 2017, 67, 408–416. [Google Scholar] [CrossRef]
- Hausichld, M.Z.; Rosenbaum, R.K.; Olsen, S.I. Life Cycle Assessment; Springer: Berlin/Heidelberg, Germany, 2018; Volume 2018. [Google Scholar]
- Lausselet, C.; Lund, K.M.; Brattebø, H. LCA and scenario analysis of a Norwegian net-zero GHG emission neighbourhood: The importance of mobility and surplus energy from PV technologies. Build. Environ. 2021, 189, 107528. [Google Scholar] [CrossRef]
- Ruuska, A.P.; Häkkinen, T.M. The significance of various factors for GHG emissions of buildings. Int. J. Sustain. Eng. 2015, 8, 317–330. [Google Scholar] [CrossRef]
- Säynäjoki, A.; Heinonen, J.; Junnila, S. A scenario analysis of the life cycle greenhouse gas emissions of a new residential area. Environ. Res. Lett. 2012, 7, 034037. [Google Scholar] [CrossRef]
- Crawford, R.H.; Bartak, E.L.; Stephan, A.; Jensen, C.A. Evaluating the life cycle energy benefits of energy efficiency regulations for buildings. Renew. Sustain. Energy Rev. 2016, 63, 435–451. [Google Scholar] [CrossRef]
- Müller, D.B.; Liu, G.; Løvik, A.N.; Modaresi, R.; Pauliuk, S.; Steinhoff, F.S.; Brattebø, H. Carbon Emissions of Infrastructure Development. Environ. Sci. Technol. 2013, 47, 11739–11746. [Google Scholar] [CrossRef] [PubMed]
- Eberhardt, L.C.M.; van Stijn, A.; Kristensen Stranddorf, L.; Birkved, M.; Birgisdottir, H. Environmental Design Guidelines for Circular Building Components: The Case of the Circular Building Structure. Sustainability 2021, 13, 5621. [Google Scholar] [CrossRef]
- Amiri, A.; Emami, N.; Ottelin, J.; Sorvari, J.; Marteinsson, B.; Heinonen, J.; Junnila, S. Embodied emissions of buildings—A forgotten factor in green building certificates. Energy Build. 2021, 241, 110962. [Google Scholar] [CrossRef]
- Amiri, A.; Ottelin, J.; Sorvari, J.; Junnila, S. Cities as carbon sinks—Classification of wooden buildings. Environ. Res. Lett. 2020, 15, 094076. [Google Scholar] [CrossRef]
- Mouton, L.; Allacker, K.; Röck, M. Bio-based building material solutions for environmental benefits over conventional construction products—Life cycle assessment of regenerative design strategies (1/2). Energy Build. 2023, 282, 112767. [Google Scholar] [CrossRef]
- Mouton, L.; Trigaux, D.; Allacker, K.; Röck, M. Low-tech passive solar design concepts and bio-based material solutions for reducing life cycle GHG emissions of buildings—Life cycle assessment of regenerative design strategies (2/2). Energy Build. 2023, 282, 112678. [Google Scholar] [CrossRef]
- Joensuu, T.; Leino, R.; Heinonen, J.; Saari, A. Developing Buildings’ Life Cycle Assessment in Circular Economy-Comparing methods for assessing carbon footprint of reusable components. Sustain. Cities Soc. 2022, 77, 103499. [Google Scholar] [CrossRef]
- Ji, S.; Lee, B.; Yi, M.Y. Building life-span prediction for life cycle assessment and life cycle cost using machine learning: A big data approach. Build. Environ. 2021, 205, 108267. [Google Scholar] [CrossRef]
- Stjórnarráðið. Aðgerðaáætlun í loftslags—Álum—Aðgerðir Íslenskra Stjórnvalda til að Stuðla að Samdrætti í Losun Gróðurhúsalofttegunda til 2030; The Icelandic Government: Reykjavík, Iceland, 2020. Available online: https://www.stjornarradid.is/library/—-Rit--skyrslur-og-skrar/Adgerdaaetlun%20i%20loftslagsmalum%20onnur%20utgafa.pdf (accessed on 8 March 2023).
- Bjarnadóttir, S.; Marteinsson, B. Vegvísir að Vistvænni Mannvirkjagerð 2030. 1.Hluti Mat á Kolefnislosun frá Íslenskum Byggingariðnaði; Húsnæðis-Og Mannvirkjastofnun: Reykjavík, Iceland, 2022. [Google Scholar]
- Hollráð um Heitt Vatn: Hvernig Getum við Nýtt Heita Vatnið Betur? Available online: https://www.veitur.is/hollrad-um-heitt-vatn (accessed on 8 March 2023).
- Alþingi. Lög um Umhverfismat Framkvæmda og Áætlana nr. 111/2021. Available online: https://www.althingi.is/altext/stjt/2021.111.html (accessed on 4 March 2023).
- Alþingi. Skipulagslög nr. 123/2010. Available online: https://www.althingi.is/lagas/nuna/2010123.html (accessed on 9 August 2022).
- Huang, B.; Gao, X.; Xu, X.; Song, J.; Geng, Y.; Sarkis, J.; Fishman, T.; Kua, H.; Nakatani, J. A life cycle thinking framework to mitigate the environmental impact of building materials. One Earth 2020, 3, 564–573. [Google Scholar] [CrossRef]
- Reykjavíkurborg, Umhverfis-og skipulagssvið. Aðalskipulag Reykjavíkur 2040, A: Megin Markmið um Þróun Byggðar og Vindandi Ákvæði um Landnotkun, Byggingarmagn, Þéttleika og Yfirbragð Byggðar; Umhverfis-og Skipulagssvið: Reykjavík, Iceland, 2021. [Google Scholar]
- Geodatos. Reykjavík Geographic Coordinates. Available online: www.geodatos.net/en/coordinates/iceland/reykjavik (accessed on 4 March 2023).
- Islandsstofa. The Big Picture. Available online: https://www.iceland.is/the-big-picture/nature-environment/geography#:~:text=The%20average%20summer%20temperature%20in,often%20changes%20in%20an%20instant (accessed on 4 March 2023).
- Reykjavíkurborg, Umhverfis-og Skipulagssvið. Aðalskipulag Reykjavíkur 2010–2030 B-hluti; Umhverfis-og Skipulagssvið: Reykjavík, Iceland, 2014. [Google Scholar]
- Reykjavíkurborg, Umhverfis-og Skipulagssvið. Skerjafjörður, Rammaskipulag, Greinargerð og Leiðarljós; Umhverfis-og Skipulagssvið: Reykjavík, Iceland, 2018. [Google Scholar]
- Reykjavíkurborg, Umhverfis-og Skipulagssvið. Nýi Skerjafjörður-Tillaga að Nýju Deiliskipulagi. Greinargerð og Almennir Skipulagsskilmálar, 26 júní 2020; Umhverfis-og skipulagssvið: Reykjavík, Iceland, 2021. [Google Scholar]
- Crawford, R.H.; Bontinck, P.-A.; Stephan, A.; Wiedmann, T.; Yu, M. Hybrid life cycle inventory methods–A review. J. Clean. Prod. 2018, 172, 1273–1288. [Google Scholar] [CrossRef]
- ISO Standard Nr. 14044; Environmental Management-Life Cycle Assessment-Requirements and Guidelines. International Organization for Standardization: London, UK, 2006.
- ISO Standard Nr. 14040; Environmental Management-Life Cycle Assessment-Requirements and Guidelines. International Organization for Standardization: London, UK, 2006.
- Steinsteypan. Hefbundnar Steyputegundir. Available online: https://steinsteypan.is/steypa/stadladar-steyputegundir (accessed on 10 April 2022).
- Dong, Y.H.; Ng, S.T. Comparing the midpoint and endpoint approaches based on ReCiPe—A study of commercial buildings in Hong Kong. Int. J. Life Cycle Assess. 2014, 19, 1409–1423. [Google Scholar] [CrossRef]
- Huijbregts, M.A.; Steinmann, Z.J.; Elshout, P.M.; Stam, G.; Verones, F.; Vieira, M.; van Zelm, R. ReCiPe2025 armonizedonised life cycle impact assessment method at midpoint and endpoint level. Int. J. Life Cycle Assess. 2017, 22, 138–147. [Google Scholar] [CrossRef]
- Ingólfsdóttir, G.; Gunnarsson, F.; Bjarnadóttir, H.; Stefánsdóttir, M.; Gunnarsson, R. Vistferilsgreining Fyrir Veg—Rannsóknarverkefni Vegagerðarinnar 2012; Efla verkfræðistofa: Reykjavík, Iceland, 2012. [Google Scholar]
- Heinonen, J.; Olson, S.; Czepkiewicz, M.; Árnadóttir, Á.; Ottelin, J. Too much consumption or too high emissions intensities? Explaining the high consumption-based carbon footprints in the Nordic countries. Environ. Res. Commun. 2022, 4, 125007. [Google Scholar] [CrossRef]
- Churkina, G.; Organschi, A.; Reyer, C.P.; Ruff, A.; Vinke, K.; Liu, Z.; Reck, B.K.; Graedel, T.E.; Schellnhuber, H.J. Buildings as a global carbon sink. Nat. Sustain. 2020, 3, 269–276. [Google Scholar] [CrossRef]
- Kuittinen, M.; Zernicke, C.; Slabik, S.; Hafner, A. How can carbon be stored in the built environment? A review of potential options. Archit. Sci. Rev. 2023, 66, 91–107. [Google Scholar] [CrossRef]
- Huuhka, S.; Lahdensivu, J. Statistical and geographical study on demolished buildings. Build. Res. Inf. 2016, 44, 73–96. [Google Scholar] [CrossRef]
- Bribián, I.Z.; Capilla, A.V.; Usón, A.A. Life cycle assessment of building materials: Comparative analysis of energy and environmental impacts and evaluation of the eco-efficiency improvement potential. Build. Environ. 2011, 46, 1133–1140. [Google Scholar] [CrossRef]
- Emami, N.; Heinonen, J.; Marteinsson, B.; Säynäjoki, A.; Junnonen, J.-M.; Laine, J.; Junnila, S. A life cycle assessment of two residential buildings using two different LCA database-software combinations: Recognizing uniformities and inconsistencies. Buildings 2019, 9, 20. [Google Scholar] [CrossRef]
- Säynäjoki, A.; Heinonen, J.; Junnonen, J.M.; Junnila, S. Input–output and process LCAs in the building sector: Are the results compatible with each other? Carbon Manag. 2017, 8, 155–166. [Google Scholar] [CrossRef]
- Lausselet, C.; Crawford, R.H.; Brattebø, H. Hybrid life cycle assessment at the neighbourhood scale: The case of Ydalir, Norway. Clean. Eng. Technol. 2022, 8, 100503. [Google Scholar] [CrossRef]
- Pomponi, F.; Lenzen, M. Hybrid life cycle assessment (LCA) will likely yield more accurate results than process-based LCA. J. Clean. Prod. 2018, 176, 210–215. [Google Scholar] [CrossRef]
- Stephan, A.; Crawford, R.H.; Bontinck, P.-A. A model for streamlining and automating path exchange hybrid life cycle assessment. Int. J. Life Cycle Assess. 2018, 24, 237–252. [Google Scholar] [CrossRef]
- Majeau-Bettez, G.; Strømman, A.H.; Hertwich, E.G. Evaluation of process- and input-output-based life cycle inventory data with regard to truncation and aggregation issues. Environ. Sci. Technol. 2011, 45, 10170–10177. [Google Scholar] [CrossRef]














| Characteristics | Description |
|---|---|
| NS1. Total area site size | 950,000 m2 |
| Total building site size | 59,790 m2 |
| Total residential apartments | 685 |
| Utilization ratio (A + B spaces *) | 1.5 |
| Total Utilization ratio | 1.8 |
| Total construction volume (A + B space) | 87,840 m2 |
| Total underground volume | 17,105 m2 |
| Total construction volume | 104,945 m2 |
| Buildings (B) | m2 | Other Spaces (OS) | m2 |
|---|---|---|---|
| Residential (68%) | 67,315 | Roads | 14,346 |
| Detached houses | 2400 | Pedestrian pathways | 12,405 |
| Row houses | 7780 | Site Parking/Green | 6470 |
| Apartment buildings | 28,453 | Parking house | 6000 |
| Economical apartments | 11,392 | Bicycle path | 5248 |
| Student housing | 9430 | Grass area | 26,127 |
| Nursing homes | 7860 | School playground | 9309 |
| Service (32%) | 31,630 | ||
| School and Kindergarten | 19,250 | ||
| Shops/services | 11,340 | ||
| Pumping station | 1040 | ||
| Total construction volume B | 98,945 | Total construction volume OS | 79,905 |
| Building Systems | |
|---|---|
| 1 | Earth and Groundwork (e.g., excavation, ground structure and improvement, drains and pipelines) |
| 2 | Foundations (e.g., foundation walls, columns and ground beams) |
| 3 | Frame and Roof Structures (e.g., external walls, load-bearing internal walls and columns, insulation) |
| 4 | Complementary Works (e.g., windows, doors) |
| 5 | Finishes (e.g., surface materials, paints) |
| 6 | Fittings, equipment and installations (e.g., kitchen and bathroom furniture, devices, appliances) |
| 7 | Mechanical Works (e.g., heating, plumbing and drainage, HV AC, electricity system) |
| 8 | Construction Site (e.g., fuels, electricity, water) |
| Building Part | Regulation Maximum (U) | Base Case | CLT Scenario |
|---|---|---|---|
| Roof | 0.20 | 0.20 | N/A |
| External walls | 0.40 | 0.39 | 0.33 |
| Basement slab | 0.30 | 0.25 | 0.25 |
| Windows/doors | 2.0/3.0 | 1.75 | 1.75 |
Disclaimer/Publisher’s Note: The statements, opinions and data contained in all publications are solely those of the individual author(s) and contributor(s) and not of MDPI and/or the editor(s). MDPI and/or the editor(s) disclaim responsibility for any injury to people or property resulting from any ideas, methods, instructions or products referred to in the content. |
© 2023 by the authors. Licensee MDPI, Basel, Switzerland. This article is an open access article distributed under the terms and conditions of the Creative Commons Attribution (CC BY) license (https://creativecommons.org/licenses/by/4.0/).
Share and Cite
Sigurðardóttir, H.S.; Heinonen, J.; Ögmundarson, Ó.; Árnadóttir, Á. Neighborhood-Level LCA and Hotspot Analysis of Embodied Emissions of a New Urban Area in Reykjavík. Sustainability 2023, 15, 5327. https://doi.org/10.3390/su15065327
Sigurðardóttir HS, Heinonen J, Ögmundarson Ó, Árnadóttir Á. Neighborhood-Level LCA and Hotspot Analysis of Embodied Emissions of a New Urban Area in Reykjavík. Sustainability. 2023; 15(6):5327. https://doi.org/10.3390/su15065327
Chicago/Turabian StyleSigurðardóttir, Hjördís Sóley, Jukka Heinonen, Ólafur Ögmundarson, and Áróra Árnadóttir. 2023. "Neighborhood-Level LCA and Hotspot Analysis of Embodied Emissions of a New Urban Area in Reykjavík" Sustainability 15, no. 6: 5327. https://doi.org/10.3390/su15065327
APA StyleSigurðardóttir, H. S., Heinonen, J., Ögmundarson, Ó., & Árnadóttir, Á. (2023). Neighborhood-Level LCA and Hotspot Analysis of Embodied Emissions of a New Urban Area in Reykjavík. Sustainability, 15(6), 5327. https://doi.org/10.3390/su15065327

