An Assessment of the Financial Feasibility of an OTEC Ecopark: A Case Study at Cozumel Island
Abstract
1. Introduction
2. Materials and Methods
2.1. Study Area
2.2. Market Description
2.2.1. Energy
2.2.2. Desalinated Water
2.2.3. Offshore Seaweed Aquaculture (OSA)
2.3. Technical Design
2.4. Economic Evaluation
2.5. OTEC Comparative Assessment
2.6. Socio-Environmental Risks Assessment
2.7. Operational Risk Recommendations
3. Results and Discussion
3.1. Overall Technical Design
3.2. Financial Evaluation
- An IRR of 35%, meaning that the project would be profitable over its lifespan (30 years).
- An Investment Recovery Period of 5 years, paying equities and loans.
- NPV of $2656.78 M at the end of the projected lifespan demonstrating profitableness.
- (1)
- an expected electricity output of 466,139 MWh/year at a LCOE of $326.63 MWh with a revenue of $63.90 M, 18.36% of the total annual revenue.
- (2)
- desalinated water for human consumption at a rate of 77,026.26 m3/day with revenues of $21.73 M, 6.24% of the total annual revenue.
- (3)
- an OSA that will produce 69.75 ton/day Ulva spp., in dry weight, and revenues of $254.59 M, 73.13% of the total annual revenue;
- (4)
- CEL per MWh produced, with a revenue of $7.72 M, 2.22% of the total annual revenues.
- (5)
- carbon credits equivalent to 19.33 ton/day of carbon sequestration (CO2), with revenues of $0.08 M, 0.2% of the total annual revenue.
3.3. Comparison of the OTEC Ecopark with Other Renewable Energy Alternatives
LCOE Comparison
3.4. Mitigating Socio-Environmental Risks
3.5. Operational Risk Recommendations
3.6. Comparison with Other OTEC Ecoparks
4. Conclusions
Author Contributions
Funding
Institutional Review Board Statement
Data Availability Statement
Acknowledgments
Conflicts of Interest
Abbreviations
| OTEC | Ocean Thermal Energy Conversion |
| OSA | Offshore Seaweed Aquaculture |
| DOW | Deep Ocean Water |
| SWAC | Sea Water Air Conditioning |
| CC | Closed Cycle |
| H | Hybrid |
| LCOE | Levelized Cost of Energy |
| WEF | Water, Energy, and Food |
| SDGs | UN Sustainable Development Goals |
| CELs | Clean Energy Certificates |
| NPV | Net Present Value |
| CAPEX | Capital Costs |
| OPEX | Operation, Maintenance, Repair, Replacement and Administrative Expenses |
| ISR | Taxes |
| PTU | Employee Participation in Profit Sharing Payments |
| CF | Capacity Factor |
| AEP | Annual Electricity Production |
| CRF | Capital Recovery Factor |
| N | System life |
| ELF | Expenses Levelizing Factor |
| PWF | Present Worth Factor |
| ERF | Inflation |
| i | Interest |
| IRR | Internal Rate of Return |
| PPV | Installed Power of the Photovoltaic System |
| EPV | Daily Power Generation |
| GCEM | Solar Standard Test Irradiance |
| Gdm | Solar Irradiance |
| Efficiency of the System | |
| Pw | Wind Power |
| Air Density | |
| V | Wind Speed |
| A | Cross-Sectional Area of the Turbine |
| Cp | Power Coefficient |
Appendix A. Specifications for the Financial Feasibility Assessment of OTEC Ecopark
| Size | 60 MW-Gross | |||
| Cycle | Hybrid | |||
| Date | April 2021 | |||
| Component | CAPEX ($M) | OPEX | ||
| Reparation and Replacement ($M) | Operation and Administrative Expenses 1st Year ($M) | |||
| Platform Anchor Submarine power cable | 145.09 | - | 4.84 | - |
| 34.82 | - | 1.16 | - | |
| 59.49 | - | 1.98 | - | |
| Seawater pipes (installed) Seawater pumps (installed) | 87.05 | - | 2.90 | - |
| 34.82 | 2.32 | - | - | |
| Power block (15 MW gross modules) Heat exchangers Turbo-generators | - | - | - | - |
| 137.83 | 9.19 | - | - | |
| 47.88 | 3.19 | - | - | |
| Electrical/Ammonia/Chlorine/Controls Installation Mechanical & Electrical | 44.98 | - | 1.50 | - |
| 62.39 | - | 2.08 | - | |
| 15-years | 30-years | |||
| Offshore Aquaculture (OSA) | 1.04 | 0.10 | - | - |
| 10-years | ||||
| Total | 655.38 | 29.27 | 40.40 | |
| Notes: CAPEX Information for USA/Japan/EU Manufacturers Assume the sum of all other cost are equivalent to Closed Cycle OSA cost from Sander et al. [63]. OPEX A total staff of 17 is required to manage and operate floating plant in shifts 24/7 It is assumed that OSA and OTEC sharing transport and labor costs. OSA cost ($5.33 M) from Sander et al. [63] Using MX Labor Rates the O&M portion and social security for the first year are $0.015 M Administrative expenses for the first year are $40.40 M To estimate the R&R portion for the first year: Pumps, HXs and T-G replaced in 15-years all other components in 30-years. First year estimate for R&R portion is (as given in this Table) $29.27 M | ||||
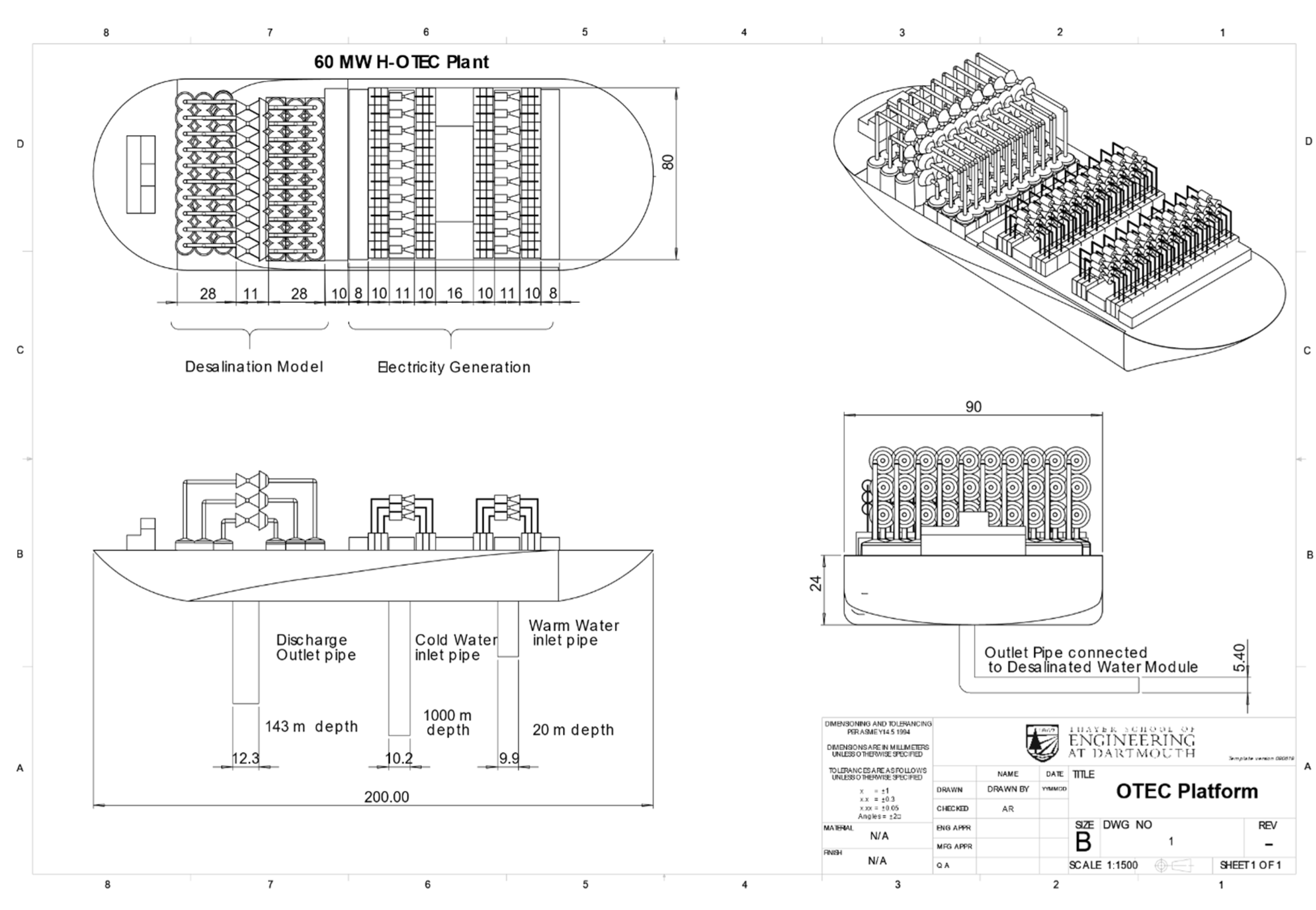
Appendix B. 60 MW H-OTEC Platform Diagrams


References
- Kobayashi, H.; Jitsuhara, S.; Uehara, H. The Present Status and Features of OTEC and Recent Aspects of Thermal Energy Conversion Technologies; National Maritime Research Institute: Mitaka, Tokyo, 2001; pp. 1–8. [Google Scholar]
- General Electric Company. Ocean Thermal Energy Conversion Mission Analysis Study Phase II; University of Virgina: Washington, DC, USA, 1978; pp. 12–14. [Google Scholar]
- Dunbar, L. Market Potential for OTEC in Developing Nations. In Proceedings of the 8th Ocean Energy Conference, Washington, DC, USA, 7–11 June 1981. [Google Scholar]
- Langer, J.; Quist, J.; Blok, K. Recent progress in the economics of ocean thermal energy conversion: Critical review and research agenda. Renew. Sustain. Energy Rev. 2019, 130, 109960. [Google Scholar] [CrossRef]
- Khan, N.; Kalair, A.; Abas, N.; Haider, A. Review of ocean tidal, wave and thermal energy technologies. Renew. Sustain. Energy Rev. 2017, 72, 590–604. [Google Scholar] [CrossRef]
- Zhang, W.; Li, Y.; Wu, X.; Guo, S. Review of the applied mechanical problems in ocean thermal energy conversion. Renew. Sustain. Energy Rev. 2018, 93, 231–244. [Google Scholar] [CrossRef]
- Barberis, S.; Giugno, A.; Sorzana, G.; Lopes, M.F.; Traverso, A. Techno-economic analysis of multipurpose OTEC power plants. In E3S Web of Conferences; EDP Sciences: Les Ulis, France, 2019; Volume 113. [Google Scholar]
- Osorio, A.F.; Arias-Gaviria, J.; Devis-Morales, A.; Acevedo, D.; Velasquez, H.I.; Arango-Aramburo, S. Beyond electricity: The potential of ocean thermal energy and ocean technology ecoparks in small tropical islands. Energy Policy 2016, 98, 713–724. [Google Scholar] [CrossRef]
- United Nations Organization. Proyecto de Documento Final de la Cumbre de las Naciones Unidas Para la Aprobación de la Agenda Para el Desarrollo Después de 2015; United Nations: New York, NY, USA, 2015. Available online: https://www.un.org/ga/search/view_doc.asp?symbol=A/69/L.85&Lang=S (accessed on 19 February 2021).
- Nakasone, T.; Akeda, S. The application of deep sea water in Japan. In Proceedings of the Twenty-Eighth UJNR Aquaculture Panel Symposium, Kihei, HI, USA, 10–12 November 1999; pp. 10–12. [Google Scholar]
- Hossain, E.; Petrovic, S. Comparative Study of Renewable Sources of Energy. In Renewable Energy Crash Course; Springer: Cham, Switzerland, 2021. [Google Scholar] [CrossRef]
- Hawaii Ocean Science & Technology Park Administered by the Natural Energy Laboratory of Hawaii Authority. Available online: https://nelha.hawaii.gov/ (accessed on 13 June 2021).
- Okinawa OTEC Demonstration Facility. OTEC Okinawa. Available online: http://otecokinawa.com/en/ (accessed on 13 June 2021).
- Ikegami, Y. The advanced technology and future prospect of OTEC for Island. In IEA Committee on Energy Research and Technology; Saga University: Tokyo, Japan, 2015. [Google Scholar]
- Kobayashi, M.; Watanabe, A. Multiple deepsea water use in OTEC renewable power generation socioeconomic variables and peculiarity. In Proceedings of the 8th International OTEC Symposium, Cancun, Mexico, 27–29 January 2021. [Google Scholar]
- PROTECH. Puerto Rico Ocean Technology Complex Proposed Roadmap for Development, 1st ed.; Government of Puerto Rico: San Juan, PR, USA, 2020.
- Home: Science and Technology Research Partnership for Sustainable Development (SATREPS) Malaysia. Available online: https://www.utm.my/satreps/ (accessed on 13 June 2021).
- Blokker, R. Bluerise-Ocean Thermal Energy Technology and Project Development. In Proceedings of the 2nd Regional District Cooling Technology Conference in Latin America and the Caribbean, Panama City, Panama, 26 October 2015. [Google Scholar]
- Bárcenas-Graniel, J. Evaluación del Potencial de Conversión de Energía Renovable en el Caribe Mexicano. Master’s Thesis, Universidad Nacional Autónoma de México, Instituto de Ciencias del Mar y Limnología, Mexico City, Mexico, 2014. [Google Scholar]
- Garduño-Ruiz, E.P.; Silva, R.; Rodríguez-Cueto, Y.; García-Huante, A.; Olmedo-González, J.; Martínez, M.L.; Wojtarowski, A.; Martell-Dubois, R.; Cerdeira-Estrada, S. Criteria for Optimal Site Selection for Ocean Thermal Energy Conversion (OTEC) Plants in Mexico. Energies 2021, 14, 2121. [Google Scholar] [CrossRef]
- Centro Nacional de Control de la Energía (CENACE). Precios Marginales Locales. México. 2019. Available online: https://www.cenace.gob.mx/Paginas/SIM/Reportes/PreciosEnergiaSisMEM.aspx. (accessed on 5 August 2020).
- Rivera, G.; Felix, A.; Mendoza, E. A review on environmental and social impacts of thermal gradient and tidal currents energy conversion and application to the case of Chiapas, Mexico. Int. J. Environ. Res. Public Health 2020, 17, 7791. [Google Scholar] [CrossRef]
- OES Ocean Energy in Islands and Remote Coastal Areas: Opportunities and Challenges. IEA Technology Collaboration Programme for Ocean Energy Systems. 2020. Available online: www.ocean-energy-systems.org (accessed on 13 June 2021).
- Vega, L.; Michaelis, D. First generation 50 MW OTEC plantship for the production of electricity and desalinated water. Proc. Annu. Offshore Technol. Conf. 2010, 4, 2979–2995. [Google Scholar]
- Becerril, M.; Puc, C.; Ramírez, N. Efectos Oceanográficos en la Biopluma de Descarga. Final Project. Bachelor’s Thesis, Universidad del Caribe, Cancún, Mexico, 2019. [Google Scholar]
- Azuz-Adeath, I.; Rivera-Arriaga, E.; Alonso-Peinado, H. Current Demographic Conditions and Future Scenarios in Mexico’s Coastal Zone. J. Integr. Coast. Zone Manag. 2019, 19, 85–122. [Google Scholar] [CrossRef]
- United Nations. UN Water. Available online: https://www.unwater.org/water-facts/water-food-and-energy/ (accessed on 13 June 2021).
- Hernández-Fontes, J.V.; Felix, A.; Mendoza, E.; Cueto, Y.R.; Silva, R. On the Marine Energy Resources of Mexico. J. Mar. Sci. Eng. 2019, 7, 191. [Google Scholar] [CrossRef]
- García-Huante, A.; Rodríguez-Cueto, Y.; Garduño-Ruiz, E.P.; Hérnadez-Contreras, R. General Criteria for Optimal Site Selection for the Installation of Ocean Thermal Energy Conversion (OTEC) Plants in the Mexican Pacific. In OTEC Past-Present and Future; IntechOpen: London, UK, 2020; p. 15. [Google Scholar]
- Water.org. Available online: https://water.org/our-impact/where-we-work/mexico/ (accessed on 13 June 2021).
- Fuentes, M. El Origen del Agua de los Océanos. Instituto Mexicano de Tecnología del Agua. Marzo 2007. Available online: https://www.imta.gob.mx/gaceta/anteriores/g06-10-2007/desalacion.html (accessed on 7 March 2021).
- Gobierno de Cozumel. Evaluación Rápida del Uso de la Energía, Cozumel, Quintana Roo, México. 2014. Available online: https://www.gob.mx/cms/uploads/attachment/file/170882/7__Cozumel.pdf (accessed on 16 March 2021).
- Instituto Nacional de Estadística y Geografía. Encuesta Intercensal. México. 2015. Available online: https://www.inegi. org.mx/programas/intercensal/2015/default.html#Microdatos (accessed on 31 August 2020).
- Eller, M.R. Utilizing Economic and Environmental Data from the Desalination Industry as a Progressive Approach to Ocean Thermal Energy Conversion (OTEC) Commercialization. Ph.D. Thesis, University of New Orleans, New Orleans, LA, USA, 2013. Available online: https://scholarworks.uno.edu/cgi/viewcontent.cgi?article=2796&context=td (accessed on 15 April 2021).
- Research, G.V. Commercial Seaweed Market Analysis by Product (Brown Seaweed, Red Seaweed, Green Seaweed), by Form (Liquid, Powdered, Flakes), by Application (Agriculture, Animal Feed, Human Consumption) and Segment Forecasts to 2024. 2020. Available online: www.grandviewresearch.com/industry-analysis/commerci%0Aal-seaweed-market (accessed on 5 March 2021).
- Food and Agriculture Organization of the United Nations. The State of World Fisheries and Aquaculture 2020. Sustainability in Action; Food and Agriculture Organization of the United Nations: Rome, Italy, 2020; Available online: http://www.fao.org/3/ca9229en/CA9229EN.pdf (accessed on 13 June 2021).
- Chung, I.K.; Beardall, J.; Mehta, S.; Sahoo, D.; Stojkovic, S. Using marine macroalgae for carbon sequestration: A critical appraisal. J. Appl. Phycol. 2011, 23, 877–886. [Google Scholar] [CrossRef]
- Fernández, P.A.; Leal, P.P.; Henríquez, L.A. Co-culture in marine farms: Macroalgae can act as chemical refuge for shell-forming molluscs under an ocean acidification scenario. Phycology 2019, 58, 542–551. [Google Scholar] [CrossRef]
- Froehlich, H.E.; Afflerbach, J.C.; Frazier, M.; Halpern, B.S. Blue Growth Potential to Mitigate Climate Change through Seaweed Offsetting. Curr. Biol. 2019, 29, 3087–3093.e3. [Google Scholar] [CrossRef] [PubMed]
- Vega, L. Ocean Energy Recovery: The State of the Art; American Society of Civil Engineers (ASCE): Reston, VA, USA, 1992; pp. 152–181.
- Holmyard, N. Greater Fish Production Ties into Several of FAO’s Sustainable Development Goals. Global Aquaculture Alliance. Available online: https://www.globalseafood.org/advocate/how-aquaculture-furthers-the-blue-growth-initiative/ (accessed on 21 April 2021).
- Lapointe, B.E.; Tenore, K.R. Experimental outdoor studies with Ulva fasciata Delile. I. Interaction of light and nitrogen on nutrient uptake, growth, and biochemical composition. J. Exp. Mar. Biol. Ecol. 1981, 53, 135–152. [Google Scholar] [CrossRef]
- Rubino, M. Offshore Aquaculture in the United States: Economic Considerations, Implications & Opportunities; NOAA Technical Memorandum NMFS F/SPO-103; U.S. Department of Commerce: Silver Spring, MD, USA, 2008; p. 263.
- LiVecchi, A.; Copping, A.; Jenne, D.; Gorton, A.; Preus, R.; Gill, G.; Robichaud, R.; Green, R.; Geerlofs, S.; Gore, S.; et al. Powering the Blue Economy; Exploring Opportunities for Marine Renewable Energy in Maritime Markets; U.S. Department of Energy, Office of Energy Efficiency and Renewable Energy: Washington, DC, USA, 2019.
- Alatorre, M.; Hernández, R.; Pérez, A.; Mondragón, L.; Rodríguez, Y.; García, A.; Garduño, P.; Reséndiz, O.; García, M.; Galindo, M.; et al. Distribución Espacial del Recurso Energético Por Gradiente Térmico de los Mares Mexicanos, 1st ed.; Centro Mexicano de Innovación en Energía del Océano: Ciudad de México, Mexico, 2020. [Google Scholar]
- Ocean Era, Inc. Preliminary Environmental Review for the Ocean Era Offshore Aquaculture Farm Off ‘Ewa Beach, O‘ahu, Hawai‘i; Ocean Era, Inc.: Kailua-Kona, HI, USA, 2021. [Google Scholar]
- Yu-Quing, T.; Mahmood, K.; Shehzadi, R.; Furqan, M. Ulva Lactuca and Its Polysaccharides: Food and Biomedical Aspects. J. Biol. Agric. Healthc. 2016, 2, 140–151. [Google Scholar]
- Zertuche, J.A.; Sandoval-Gil, J.M.; Rangel-Mendoza, L.K.; Gálvez-Palazuelos, A.I.; Guzmán-Calderón, J.M.; Yarish, C. Seasonal and interannual production of sea lettuce (Ulva sp.) in outdoor cultures based on commercial size ponds. J. World Aquac. Soc. 2021, 52, 1047–1058. [Google Scholar] [CrossRef]
- Tobal-Cupul, J.G.; Cerezo-Acevedo, E.; Arriola-Gil, Y.Y.; Gomez-Garcia, H.F.; Romero-Medina, V.M. Sensitivity Analysis of OTEC-CC-MX-1 kWe Plant Prototype. Energies 2021, 14, 2585. [Google Scholar] [CrossRef]
- Adiputra, R.; Utsunomiya, T.; Koto, J.; Yasunaga, T.; Ikegami, Y. Preliminary design of a 100 MW-net ocean thermal energy conversion (OTEC) power plant study case: Mentawai island, Indonesia. J. Mar. Sci. Technol. 2020, 25, 48–68. [Google Scholar] [CrossRef]
- Bernardoni, C.; Binotti, M. Techno-economic analysis of closed OTEC cycles for power generation. Renew. Energy 2019, 132, 1018–1033. [Google Scholar] [CrossRef]
- Avery, W.; Wu, C. Renewable Energy from the Ocean. A Guide to OTEC; The Johns Hopkins University Applied Physics Laboratory Series in Science and Engineering; Oxford University Press Inc.: Oxford, UK, 1994. [Google Scholar]
- Morales, D. Diseño de un Prototipo de Planta Maremotérmica de Ciclo abierto de 1 kWe Para el Mar Caribe Mexicano. Bachelor’s Thesis, Instituto Tecnológico Superior de la Montaña de Guerrero, Tlapa, México, 2020. [Google Scholar]
- Copernicus. Bottom Water and Nutrients. 2021. Available online: https://www.copernicus.eu/en/access-data/copernicus-services-catalogue/nutrient-profiles-vertical-distribution (accessed on 25 March 2021).
- Hanisak, D. The Nitrogen Relationships of Marine Macroalgae; Carpenter, E.J., Capone, D.G., Eds.; Academic: Cambridge, MA, USA, 1993; pp. 699–730. [Google Scholar]
- Craigie, J.; Cornish, M.; Deveau, L. Commercialization of Irish moss aquaculture: The Canadian experience. Bot. Mar. 2019, 62, 411–432. [Google Scholar] [CrossRef]
- Vega, L. Preliminary Design of a 5 MW Floating OTEC Plant for the Production of Electricity and Desalinated Water; The OTEC Group at Pacific International Center for High Technology Research: Honolulu, HI, USA, 2017. [Google Scholar]
- Scott, R.J. Ocean Thermal Energy Conversion (OTEC) Platform Configuration and Integration. Final Report; No. DOE/ET/4064-1 (Exec. Summ.); Gibbs and Cox, Inc.: Washington, DC, USA, 1978. [Google Scholar]
- Yee, A.A. OTEC Platform BT—Large Floating Structures: Technological Advances; Wang, C.M., Wang, B.T., Eds.; Springer: Singapore, 2015; pp. 261–280. ISBN 978-981-287-137-4. [Google Scholar]
- Kim, H.J.; Lee, H.S.; Lim, S.T.; Petterson, M. The suitability of the pacific islands for harnessing ocean thermal energy and the feasibility of OTEC plants for onshore or offshore processing. Geosciences 2021, 11, 407. [Google Scholar] [CrossRef]
- Uehara, H.; Dilao, C.O.; Nakaoka, T. Conceptual design of ocean thermal energy conversion (OTEC) power plants in the Philippines. Sol. Energy 1988, 41, 431–441. [Google Scholar] [CrossRef]
- Cavrot, D.E. Economics of Ocean Thermal Energy Conversion (OTEC). Renew. Energy 1993, 3, 891–896. [Google Scholar] [CrossRef]
- Van den Burg, S.W.K.; van Duijn, A.P.; Bartelings, H.; van Krimpen, M.M.; Poelman, M. The economic feasibility of seaweed production in the North Sea. Aquac. Econ. Manag. 2016, 20, 235–252. [Google Scholar] [CrossRef]
- INEGI. Instituto Nacional de Estadística y Geografía. Índice Nacional de Precios al Consumidor Diciembre de 2020. México. 2021. Available online: https://www.inegi.org.mx/contenidos/saladeprensa/boletines/2021/inpc_2q/inpc_2q2021_01.pd (accessed on 13 June 2021).
- EIA. Levelized Cost of New Generation Resources in the Annual Energy Outlook 2021. 2021. Available online: https://www.eia.gov/outlooks/aeo/pdf/electricity_generation.pdf (accessed on 17 March 2021).
- Instituto Nacional de Estadística y Geografía. Anuario Estadístico y Geográfico de Quintana Roo 2017; INEGI: Aguascalientes, México, 2017.
- CENACE Estimación de la Demanda Real. Available online: https://www.cenace.gob.mx/Paginas/SIM/Reportes/EstimacionDemandaReal.aspx (accessed on 6 March 2022).
- CFE Usuarios y Consumo de Electricidad Por Municipio (A Partir de 2018). Available online: https://datos.gob.mx/busca/dataset/usuarios-y-consumo-de-electricidad-por-municipio-a-partir-de-2018 (accessed on 6 March 2022).
- Huld, T.; Müller, R.; Gambardella, A. A new solar radiation database for estimating PV performance in Europe and Africa. Sol. Energy 2012, 86, 1803–1815. [Google Scholar] [CrossRef]
- The Data Was Obtained from the National Aeronautics and Space Administration (NASA) Langley Research Center (LaRC) Prediction of Worldwide Energy Resource (POWER) Project Funded through the NASA Earth Science/Applied Science Program. Available online: https://power.larc.nasa.gov/data-access-viewer/ (accessed on 1 January 2021).
- Felix, A.; Mendoza, E.; Chávez, V.; Silva, R.; Rivillas-Ospina, G. Wave and wind energy potential including extreme events: A case study of Mexico. J. Coast. Res. 2018, 85, 1336–1340. [Google Scholar] [CrossRef]
- IEA. 2020. Available online: https://www.iea.org/topics/world-energy-outlook (accessed on 13 June 2021).
- OES. 2015 OES. OES Annual Report 2018|Main achievements in 2018|Task 11—Ocean thermal Energy Conversion. 2018. Available online: https://report2018.ocean-energy-systems.org/main-achievements-in-2018/task-11-ocean-thermal-energy-conversion/ (accessed on 24 November 2019).
- Martínez, M.; Vázquez, G.; Pérez-Maqueo, O.; Silva, R.; Moreno-Casasola, P.; Mendoza-González, G.; López-Portillo, J.; MacGregor-Fors, I.; Heckel, G.; Hernández-Santana, J.; et al. A systemic view of potential environmental impacts of ocean energy production. Renew. Sustain. Energy Rev. 2021, 149, 111332. [Google Scholar] [CrossRef]
- Garduño-Ruiz, E. Valoración de la Factibilidad de Implementación de una planta OTEC en México. Ph.D. Thesis, Universidad Nacional Autónoma de México, Instituto de Ingeniería, Mexico City, Mexico, 2022. [Google Scholar]
- Marin-Coria, E.; Silva, R.; Enriquez, C.; Martínez, M.L.; Mendoza, E. Environmental Assessment of the Impacts and benefits of a Salinity Gradient Energy Pilot Plant. Energies 2021, 14, 3252. [Google Scholar] [CrossRef]
- Vega, L. (University of Hawaii, Honolulu, HI, USA). Personal communication, 2021.
- Zertuche, J. (Universidad Autónoma de Baja California, Ensenada, Mexico). Personal communication, 2021.
- Coastal Response Research Center. Technical Readiness of Ocean Thermal Energy Conversion (OTEC); University of New Hampshire: Durham, NH, USA, 2010; 27p and Appendices. Available online: https://coast.noaa.gov/data/czm/media/otec_nov09_tech.pdf (accessed on 13 June 2021).
- Muralidharan, S. Assessment of Ocean Thermal Energy Conversion; Massachusetts Institute of Technology: Cambridge, MA, USA, 2012; Available online: https://dspace.mit.edu/handle/1721.1/76927 (accessed on 13 June 2021).
- OES. White Paper on Ocean Thermal Energy Conversion (OTEC). IEA Technology Programme for Ocean Energy Systems (OES). 2021. Available online: www.ocean-energy-systems.org (accessed on 13 June 2021).
- Serpetti, N.; Benjamins, S.; Brain, S.; Collu, M.; Harvey, B.J.; Heymans, J.J.; Hughes, A.D.; Risch, D.; Rosinski, S.; Waggitt, J.J.; et al. Modeling small scale impacts of multi-purpose platforms: An ecosystem approach. Front. Mar. Sci. 2021, 8, 778. [Google Scholar] [CrossRef]
- Abhinav, K.A.; Collu, M.; Benjamins, S.; Cai, H.; Hughes, A.; Jiang, B.; Jude, S.; Leithead, W.; Lin, C.; Liu, H.; et al. Offshore multi-purpose platforms for a Blue Growth: A technological, environmental and socio-economic review. Sci. Total Environ. 2020, 734, 138256. [Google Scholar] [CrossRef]
- Suzuki, H.; Bhattacharya, B.; Fujikubo, M.; Hudson, D.; Riggs, H.; Seto, H.; Shin, H.; Shugar, T.A.; Yasuzawa, Y.; Zong, Z. Very large floating structures. Int. Conf. Offshore Mech. Arct. Eng. 2007, 42681, 597–608. [Google Scholar]
- CONAGUA; Comisión Nacional del Agua; Gobierno de México. Programa de Medidas Preventivas y de Mitigación de la Sequía del Consejo de Cuenca Península de Yucatán (PMPMS-CCPY); Universidad Autónoma de Yucatán (UADY): Mérida, Mexico, 2014. Available online: https://www.gob.mx/conagua/acciones-y-programas/programas-de-medidas-preventivas-y-de-mitigacion-a-la-sequia-pmpms-por-consejo-de-cuenca (accessed on 25 January 2021).
- AQUAE Fundación. Las Plantas Desalinizadoras Más Grandes del Mundo. 2020. Available online: https://www.fundacionaquae.org/desalinizacion-en-el-mundo/ (accessed on 18 February 2021).
- Cosín, C. La evolución de las Tarifas en Desalación. 2019. Available online: https://www.iagua.es/blogs/carlos-cosin/evolucion-tarifas-desalacion-parte-i (accessed on 1 January 2021).
- Acciona Corporativo. Proyectos; Desaladoras de Agua. 2021. Available online: https://www.acciona-mx.com/proyectos/agua/desalacion/javea/ (accessed on 1 January 2021).
- Makai Ocean Engineering; United States Department of the Navy. Integration and Optimization of Hydrogen Production with Ocean Thermal Energy Conversion Technology in Offshore Floating Platforms; Office of Naval Research: Arlington, VA, USA, 2005.
- Rieza, S. Optimization of Ocean Thermal Energy Conversion Power Plants. Master’s Thesis, University of Central Florida, Orlando, FL, USA, 2012. [Google Scholar]
- CFE. Comisión Federal de Electricidad. México. Esquema Tarifario Vigente. 2021. Available online: https://app.cfe.mx/Aplicaciones/CCFE/Tarifas/TarifasCREIndustria/Industria.aspx (accessed on 18 March 2021).
- CONAGUA; Comisión Nacional del Agua. Gobierno de México. Tarifas Nacionales. 2019. Available online: http://sina.conagua.gob.mx/sina/tema.php?tema=tarifas (accessed on 18 March 2021).
- MundoHVACR. Mercado de Bonos de Carbono, Un Mecanismo de Desarrollo. 2018. Available online: https://www.mundohvacr.com.mx/2009/10/mercado-de-bonos-de-carbono-un-mecanismo-de-desarrollo/ (accessed on 18 March 2021).
- Forbes. Los Certificados de Energía Limpia Impactaron Tarifas Eléctricas: CFE. 2019. Available online: https://www.forbes.com.mx/certificados-de-energia-limpia-impactaron-tarifas-electricas-cfe/ (accessed on 18 March 2021).
- EIA. U.S. Energy Information Administration. Annual Energy Outlook 2009, With Projections to 2030. 2009. Available online: https://www.eia.gov/outlooks/aeo/electricity_generation.php (accessed on 4 March 2018).
- Vega, L. Economies of ocean thermal energy conversion (OTEC): An update. Proc. Annu. Offshore Technol. Conf. 2010, 4, 3239–3256. [Google Scholar]
- Zamorano-Guzmán Sergio. Evaluación de los Impactos Ambientales de Sistemas de Generación de Energía del Océano. Master’s Thesis, Universidad Nacional Autónoma de México, Ciudad de México, Mexico, 2019.
- Banerjee, S.; Duckers, L.; Blanchard, R.E. A case study of a hypothetical 100 MW OTEC plant analyzing the prospects of OTEC technology. OTEC Matters 2015, 29, 98–129. [Google Scholar]
- Pacific Energy Management Consultants. Impact Assessment of Ammonia and Chlorine Transshipment Relative to Commercial Otec Plant Operation; Guam Energy Office: Harmon, GU, USA, 1981. Available online: https://www.govinfo.gov/content/pkg/czic-tp233-I47-1981/html/czic-tp233-i47-1981.htm (accessed on 1 January 2021).
- Campbell, I.; Macleod, C.; Sahlmannl, C.; Neves, L.; Funderud, J.; Øverland, M.; Hughes, A.; Stanley, M. The environmental risks associated with the development of seaweed farming in Europe—Prioritizing key knowledge gaps. Front. Mar. Sci. 2019, 6, 107. [Google Scholar] [CrossRef]
- Carrera-Chan, E.; Sabido-Tun, M.F.; Bárcenas-Graniel, J.F.; Cerezo-Acevedo, E.; Diaz Masuelli, D. Environmental Impact Assessment of the Operation of an Open Cycle OTEC 1MWe Power Plant in the Cozumel Island, Mexico. In Ocean Thermal Energy Conversion (OTEC)—Past, Present, and Progress; Intech Open: London, UK, 2020; p. 13. [Google Scholar]
- Castillo-Campos, G.; Martínez, M.L.; García-Franco, J.G.; Vázquez, G.; Pérez-Maqueo, O.; Pale-Pale, J. Assessing the impact of an invasive plant in a Protected Natural Area: Island of Cozumel, Mexico. Biol. Invasions 2022, 1–16. [Google Scholar] [CrossRef]
- SEMARNAT-CONANP, (01/11/2017). ‘182ANP_Geo_ITRF08_Noviembre_2017′, Edición: 2017. Secretaría de Medio Ambiente y Recursos Naturales, Comisión Nacional de Áreas Naturales Protegidas. Ciudad de México, México. Available online: http://www.conabio.gob.mx/informacion/metadata/gis/anpnov17gw.xml?_httpcache=yes&_xsl=/db/metadata/xsl/fgdc_html.xsl&_indent=no (accessed on 1 January 2021).
- Kaiser, M.; Snyder, Y.Y. A review of the feasibility, costs, and benefits of platform-based open ocean aquaculture in the Gulf of Mexico. Ocean Coast. Manag. 2011, 54, 721–730. [Google Scholar] [CrossRef]
- Thomsen, D.C. Seeing is questioning: Promoting sustainability discourses through an evocative visualagenda. Ecol. Soc. 2015, 20, 9. [Google Scholar] [CrossRef][Green Version]
- INECOL, Programa de Manejo Parque Marino Nacional Arrecifes de Cozumel, Quintana Roo. 1998. Available online: http://www.paot.org.mx/centro/ine-semarnat/anp/AN23.pdf (accessed on 1 January 2021).
- Li, Y.; Willman, L. Feasibility analysis of offshore renewables penetrating local energy systems in remote oceanic areas–a case study of emissions from an electricity system with tidal power in Southern Alaska. Appl. Energy 2014, 117, 42–53. [Google Scholar] [CrossRef]
- SEDETUR. Quintana Roo. ¿Cómo vamos en turismo? Enero—Diciembre 2019 vs. 2018. 2020. Available online: http://sedeturqroo.gob.mx/ARCHIVOS/COMO-VAMOS-201912.pdf (accessed on 2 March 2022).
- Praene, J.P.; David, M.; Sinama, F.; Morau, D.; Marc, O. Renewable energy: Progressing towards a net zero energy island, the case of Reunion Island. Renew. Sustain. Energy Rev. 2012, 16, 426–442. [Google Scholar] [CrossRef]
- Owens, W.L.; Trimble, L.C. Mini-OTEC operational results. J. Sol. Energy Eng. 1981, 103, 233–240. [Google Scholar] [CrossRef]
- Sands, M.D. Ocean Thermal Energy Conversion (OTEC) Programmatic Environmental Analysis, 1st ed.; U.S Department of Commerce Nacional Oceanic and Atmospheric Administration: Berkeley, CA, USA, 1980.
- IEA-OES Annual Report: An Overview of Ocean Energy Activities in 2021. 2022. Available online: https://tethys.pnnl.gov/publications/iea-oes-annual-report-overview-ocean-energy-activities-2021 (accessed on 1 January 2022).
- Magagna, D.; Uihlein, A. Ocean energy development in Europe: Current status and future perspectives. Int. J. Mar. Energy 2015, 11, 84–104. [Google Scholar] [CrossRef]
- Rivera, M.A.L. PROTECH. Puerto Rico Ocean Technology Complex. Available online: https://www.ddec.pr.gov/images/PR_Ocean_Technology_Complex.pdf (accessed on 13 June 2021).









| Submodule | Methodology | Reference |
|---|---|---|
| Energy production | 60 MW-H-OTEC (Mass and energy balance) | Adapted from Tobal et al. [49] |
| CC-OTEC (component sizing) | Adapted from Vega & Michaelis [24] | |
| Seawater supply and power consumption (components sizing) | Adiputra et al. [50] | |
| Electrical equipment and interconnection nodes required. | Bernandoni et al. [51] | |
| Amount of CO2 saving by power production | Vega [40] | |
| Desalinated water production | Mass and energy balance (components sizing) | Avery & Wu [52] and Morales [53] |
| Desalinated water rate | Sensitivity analysis adapted from Tobal et al. [49] | |
| OSA production | Nutrient concentrations (NO3, PO4, SO4) and O2 dissolved at 902 m depth from 7 June 2018–10 April 2021 and 0.25 × 0.25 degrees of spatial resolution | Copernicus [54] |
| Ulva spp. nutrient demand and net yield per m2 | Hanisak [55] | |
| Dimensioning a floating pond | Adapted from the macroalgae ponds of Zertuche-González et al. [48] | |
| CO2 capture capacity of Ulva spp. Algae | Chung et al. [37] and Zertuche-González et al. [48] | |
| Platform design | Dimensions of the ship | Adapted from Vega & Michaelis [24] |
| 3D model of the 60 MW offshore OTEC plant-aquaculture system | SolidWork and Fusion360 softwares |
| Submodule | Equipment | Characteristics |
|---|---|---|
| Energy production | Heat exchangers | 40 modules of compact plate-fin developed by Argon National Laboratory |
| Turbine | Four 15 MW rotary turbines | |
| Pumps | Inline submersible propeller-type pumps | |
| Generator | Four STG generators (15,000 kVA 60 Hz) | |
| Submarine cable | Four submarine power cables (36 kV) | |
| Switching station | Voltage transformer (15 kV to 34.5 kV) | |
| Water pipes | Sandwich construction structure pipes, 9.9 m ⌀ for cold water pipe, 10.2 m ⌀ for hot water pipe | |
| Desalinated water production | Deaerator | As Vega & Michaellis [24] |
| Flash-evaporator | As Vega & Michaellis [24] | |
| Water pipes | Sandwich construction structure pipes, 5.4 m ⌀ for desalinated water pipe, 12.4 m ⌀ for hot water pipe | |
| Surface condenser | Brazed aluminium plate-fin configuration | |
| Platform design | Floating pond | 300 hectares (effective) × 1 m depth |
| Pumps and weights | Anchors |
| Variable | Indicator | Value |
|---|---|---|
| Parameters | CAPEX | $655.38 M |
| Yearly OPEX | $69.66 M | |
| Annual electricity production | 466,139 MWh | |
| Daily desalinated water production | 77,026.26 m3/day | |
| Daily Ulva spp. Production | 69.75 ton/day | |
| Daily CO2 sequestrated (OTEC and Ulva spp.) | 19.33 ton/day | |
| Capital payment | CRF: Investment Levelizing Factor for I and N (Capital Recovery Factor) | 9.90% |
| Levelized Capital Cost (CC * CRF/Annual Electricity Production) | 139.14 $/MWh | |
| OPEX costs | ELF: Expenses Levelized Factor for I, N and escalation | 1.25 |
| PWF: Present Worth Factor accounting for inflation | 12.68 | |
| Levelized OPEX (OPEX * ELF/Annual Electricity Production) | 187.49 $/MWh | |
| LCOE | 326.63 $/MWh | |
| Annual sales (No profit, no credits) | Electricity (rates: $0.149/kWh) | $63.90 M |
| Water (rates: $0.77/m3) | $21.73 M | |
| Ulva spp. ($10,000/ton) | $254.59 M | |
| Total Annual Sales (no incomes) | $340 M | |
| Annual sales with other incomes | CELs (annual) | $7.72 M |
| Carbon Credits (annual) | $0.08 M | |
| Total Annual Sales (with incomes) | $348 M |
| Phase | Activity | Impact |
|---|---|---|
| Construction (C) | C1. Material transportation | Changes in the community of marine and terrestrial fauna (C1, C2, C3, C5, C6) |
| C2. Construction of civil works (modules, anchorage, noise, vibrations, warehouses, etc.) | Impact on the community of residents due to landscape change. The possible social rejection of the project (C1, C2, C4, C5) | |
| C3. Laying of pipes | Maritime routes disruption. Visual impacts on the local landscape (C2, C3, C4, C5) | |
| C4. Maritime navigation routes | Changes in the vegetation distribution (C3, C5, C6) | |
| C5. Platform | Disruption of wave patterns and changes in oceanic circulation zones (C3, C4, C5) | |
| C6. Excavation | Sediment transport modification and | |
| coastal erosion processes (C2, C3, C6) | ||
| Operation (O) | O1. Platform | Modification of the marine fauna community and migrations. Changes in distribution, production, and abundance of the organisms. Risks of Collision. New habitat deployment. Alteration in behavior and distribution of birds (O1, O2, O3, O4, O6, O7, O8) |
| O2. Noise and vibrations | Impact on the community of inhabitants, especially in tourism activities due to change of landscape (O1, O2, O3, O5) | |
| O3. Discharge of water with another type of physical-chemical composition (working fluid, brine, anti-biofouling materials, sanitary waste, and nutrient transport) | Maritime routes disruption. Visual impacts on the local landscape. Land-use changes (O1, O4, O5, O6, O7). | |
| O4. Pipelines | (O1, O4, O5, O6, O7) | |
| O5. Electrical substation | Change and disruption of the vegetation (O1, O4, O5, O6, O7) | |
| O6. Submarine power cable | Sediment transport disruption. Possible re-suspension of sediment. Coastal erosion processes. Nutrient plume spread and eutrophication. Changes in the thermohaline structure. Release of toxic discharge. Voltage and electromagnetic field exposure (O1, O4, O5, O6, O7, O8) | |
| O7. Anchorage | ||
| O8. Sea water extraction |
| Activity | Consequence | Mitigation |
|---|---|---|
| Discharge of mixture-water | Harmful algal blooms alter the ocean’s chemical composition (Rivera et al., [22]). | Discharging the water below the euphotic zone (142.62 m) [25], and using DOW for by-products |
| Use of chemicals products | Local ecosystems affected Hazardous to employees | Following industry safety protocols; measuring physicochemical parameters continuously in areas of potential release [98,99]. Ulva spp. cultivation can help absorb undue ammonia release [48,100]. |
| Installation of submarine cables | Damage to the Cozumel reef structure, increase in water turbidity, and intensify of underwater noise | Collaborate with federal, state legislation and local institutions to conduct on-site monitoring and detect negative environmental impacts. |
| Social perception | Negative social perception [20,101] | Strengthening communications, transparency, social engagement through outreach, environmental education and social networks, participation of the community, taking into consideration the General Administrative Provisions on the Evaluation of Social Impact in the Energy Sector. |
Publisher’s Note: MDPI stays neutral with regard to jurisdictional claims in published maps and institutional affiliations. |
© 2022 by the authors. Licensee MDPI, Basel, Switzerland. This article is an open access article distributed under the terms and conditions of the Creative Commons Attribution (CC BY) license (https://creativecommons.org/licenses/by/4.0/).
Share and Cite
Tobal-Cupul, J.G.; Garduño-Ruiz, E.P.; Gorr-Pozzi, E.; Olmedo-González, J.; Martínez, E.D.; Rosales, A.; Navarro-Moreno, D.D.; Benítez-Gallardo, J.E.; García-Vega, F.; Wang, M.; et al. An Assessment of the Financial Feasibility of an OTEC Ecopark: A Case Study at Cozumel Island. Sustainability 2022, 14, 4654. https://doi.org/10.3390/su14084654
Tobal-Cupul JG, Garduño-Ruiz EP, Gorr-Pozzi E, Olmedo-González J, Martínez ED, Rosales A, Navarro-Moreno DD, Benítez-Gallardo JE, García-Vega F, Wang M, et al. An Assessment of the Financial Feasibility of an OTEC Ecopark: A Case Study at Cozumel Island. Sustainability. 2022; 14(8):4654. https://doi.org/10.3390/su14084654
Chicago/Turabian StyleTobal-Cupul, Jessica Guadalupe, Erika Paola Garduño-Ruiz, Emiliano Gorr-Pozzi, Jorge Olmedo-González, Emily Diane Martínez, Andrés Rosales, Dulce Daniela Navarro-Moreno, Jonathan Emmanuel Benítez-Gallardo, Fabiola García-Vega, Michelle Wang, and et al. 2022. "An Assessment of the Financial Feasibility of an OTEC Ecopark: A Case Study at Cozumel Island" Sustainability 14, no. 8: 4654. https://doi.org/10.3390/su14084654
APA StyleTobal-Cupul, J. G., Garduño-Ruiz, E. P., Gorr-Pozzi, E., Olmedo-González, J., Martínez, E. D., Rosales, A., Navarro-Moreno, D. D., Benítez-Gallardo, J. E., García-Vega, F., Wang, M., Zamora-Castillo, S., Rodríguez-Cueto, Y., Rivera, G., García-Huante, A., Zertuche-González, J. A., Cerezo-Acevedo, E., & Silva, R. (2022). An Assessment of the Financial Feasibility of an OTEC Ecopark: A Case Study at Cozumel Island. Sustainability, 14(8), 4654. https://doi.org/10.3390/su14084654

