Compliance with Building Energy Code for the Residential Sector in Egyptian Hot-Arid Climate: Potential Impact, Difficulties, and Further Improvements
Abstract
:1. Introduction
2. Methodology
2.1. Case Study Selection and Simulation Scenarios
2.2. Comfort Model Selection
3. Building Energy Model
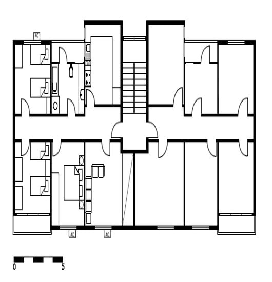
3.1. Energy Model Description and Calibration
3.2. Verifying Building Envelope Compatibility with EREC Requirements
3.3. Energy Efficiency Measures (EEMs)
3.3.1. Energy Efficiency Measures for Building Envelope Enhancement
3.3.2. Efficient Lighting System and HVAC Cooling Set-Point
3.3.3. Solar Photovoltaic Panels
3.4. Building Energy Simulation Scenarios
3.4.1. Building Envelope and Operational Energy-Saving Scenarios
3.4.2. nZEB Energy-Saving Scenario
4. Results
4.1. Simulation Results
4.2. Thermal Comfort Evaluation
5. Conclusions and Recommendations
- Egyptian residential energy code enforcement in all buildings, either new or existing. In addition, new code updates should provide clear retrofit guidance.
- Establishing a training program for those responsible for activating the energy efficiency code in buildings, as well as those responsible for implementation and control.
- Develop a guideline that conveys, to end-users, the technical data of the available energy-efficient measures in the Egyptian market, as well as their applications and effect on energy savings and thermal comfort levels.
- Develop an economic analysis for each energy-efficient measure, alongside the developed guideline. The economic analysis includes the initial costs and payback periods, in order to highlight the financial benefits to end-users. Furthermore, the economic analysis can assist in classifying the retrofit applications to different categories of end-users (e.g., high, medium, and low-income end-users), which can help in developing more realistic investment plans.
- Use the guideline and economic analysis to offer new investment measures, in order to facilitate and encourage the end-users of the private sector to invest in the retrofit of existing buildings. These measures would include providing governmental funding plans that facilitate grants and bank loans for buildings retrofit.
- Developing awareness campaigns, regarding the importance of activating the energy efficiency code in buildings for all sectors, either public or private.
- Starting a plan for applying retrofit to all governmental existing buildings in Egypt, following the European paradigm, in order to help reduce energy consumption and provide a leading example for the private sector.
Author Contributions
Funding
Conflicts of Interest
References
- United Nations Environment Programme. 2020 Global Status Report for Buildings and Construction: Towards a Zero-Emission, in Efficient and Resilient Buildings and Construction Sector; United Nations: Nairobi, Kenya, 2020; p. 80. [Google Scholar]
- Cunha, F.O.; Oliveira, A.C. Benchmarking for Realistic NZEB Hotel Buildings. J. Build. Eng. 2020, 30. [Google Scholar] [CrossRef]
- European Commission. A Renovation Wave Communication- Greening Our Buildings, Creating Jobs, Improving Lives; European Commission: Brussels, Belgium, 2020. [Google Scholar]
- Filippidou, F.; Jimenez Navarro, J.P. Achieving the Cost-Effective Energy Transformation of Europe’s Buildings; Publications Office of the European Union: Luxembourg, Germany, 2019; ISBN 978-92-76-12394-1. [Google Scholar]
- European Parliament and the Council of the European Union Directive (EU). 2018/844 of the European Parliament and of the Council of 30 May 2018 Amending Directive 2010/31/EU on the Energy Performance of Buildings and Directive 2012/27/EU on Energy Efficiency. Off. J. Eur. Union 2010, 153, 13–35. [Google Scholar]
- Semprini, G.; Gulli, R.; Ferrante, A. Deep Regeneration vs Shallow Renovation to Achieve Nearly Zero Energy in Existing Buildings: Energy Saving and Economic Impact of Design Solutions in the Housing Stock of Bologna. Energy Build. 2017, 156, 327–342. [Google Scholar] [CrossRef]
- Fotopoulou, A.; Semprini, G.; Cattani, E.; Schihin, Y.; Weyer, J.; Gulli, R.; Ferrante, A. Deep Renovation in Existing Residential Buildings through Façade Additions: A Case Study in a Typical Residential Building of the 70s. Energy Build. 2018, 166, 258–270. [Google Scholar] [CrossRef]
- Iturriaga, E.; Aldasoro, U.; Terés-Zubiaga, J.; Campos-Celador, A. Optimal Renovation of Buildings towards the Nearly Zero Energy Building Standard. Energy 2018, 160, 1101–1114. [Google Scholar] [CrossRef]
- López-Ochoa, L.M.; Las-Heras-Casas, J.; López-González, L.M.; Olasolo-Alonso, P. Environmental and Energy Impact of the EPBD in Residential Buildings in Hot and Temperate Mediterranean Zones: The Case of Spain. Energy 2018, 161, 618–634. [Google Scholar] [CrossRef]
- Hamza, M.; Alsaadani, S.; Fahmy, M. Exploring the Potential of Nearly Zero Energy Retrofitting for Generic Office Buildings in Cairo, Egypt. Energy Reports 2022, 8, 116–122. [Google Scholar] [CrossRef]
- Albadry, S.; Tarabieh, K.; Sewilam, H. Achieving Net Zero-Energy Buildings through Retrofitting Existing Residential Buildings Using PV Panels. Energy Procedia 2017, 115, 195–204. [Google Scholar] [CrossRef]
- Florentine, V.; Caterina, S.; Kurt, W.; Riadh, B. Energy Efficiency Building Code A Roadmap for Implementation in the MENA Region; UN-CTCN: Copenhagen, Denmark, 2013. [Google Scholar]
- Fahmy, M.; Mahdy, M.M.; Nikolopoulou, M. Prediction of Future Energy Consumption Reduction Using GRC Envelope Optimization for Residential Buildings in Egypt. Energy Build. 2014, 70, 186–193. [Google Scholar] [CrossRef]
- CAPMAS. Annual Bulletin of Environment Statistics-Part One: Environment Conditions & Quality; Central Agency for Public Mobilization and Statistics: Cairo, Egypt, 2017.
- Ministry of Energy. Egyptian Electricity Holding Company Annual Report 2017/2018; Ministry of Energy: Cairo, Egypt, 2018.
- CAPMAS. Current Population. Available online: https://www.capmas.gov.eg/HomePage.aspx (accessed on 8 August 2021).
- Edeisy, M.; Cecere, C. Energy Efficiency for Egyptian Housing: Code Compliance and Enforcement. Int. J. Constr. Environ. 2018, 9, 1–15. [Google Scholar] [CrossRef]
- Hanna, G.B. Sustainable Energy Potential in the Egyptian Residential Sector. J. Environ. Sci. Eng. B 2013, 2, 374–382. [Google Scholar]
- Attia, S.; Evrard, A.; Gratia, E. Development of Benchmark Models for the Egyptian Residential Buildings Sector. Appl. Energy 2012, 94, 270–284. [Google Scholar] [CrossRef]
- Khalil, A.A.; Fikry, M.; Abdeaal, W. High Technology or Low Technology for Buildings Envelopes in Residential Buildings in Egypt. Alexandria Eng. J. 2018, 57, 3779–3792. [Google Scholar] [CrossRef]
- Sameh, S.H.; Kamel, B. A Framework to Promote Energy Efficiency as a Solution to the Energy Problem in Egypt. Energy Power Eng. 2017, 09, 187–215. [Google Scholar] [CrossRef] [Green Version]
- Attia, S.; Hamdy, M.; Ezzeldin, S. Twenty-Year Tracking of Lighting Savings and Power Density in the Residential Sector. Energy Build. 2017, 154, 113–126. [Google Scholar] [CrossRef] [Green Version]
- Pan, W.; Garmston, H. Compliance with Building Energy Regulations for New-Build Dwellings. Energy 2012, 48, 11–22. [Google Scholar] [CrossRef]
- Iwaro, J.; Mwasha, A. A Review of Building Energy Regulation and Policy for Energy Conservation in Developing Countries. Energy Policy 2010, 38, 7744–7755. [Google Scholar] [CrossRef]
- Ahmed, A.N.; Samaan, M.M.; Farag, O.M.A.; El Aishy, A.S. Using Simulation Tools for Enhancing Residential Buildings Energy Code in Egypt. In Proceedings of the Proceedings of Building Simulation 2011: 12th Conference of International Building Performance Simulation Association, Sydney, Australia, 14–16 November 2011. [Google Scholar]
- Ministry of Housing, Utilities and Urban Communities. Egyptian Code for Improving the Efficiency of Energy Use in Buildings, Part 1: Residential Buildings (306-2005); Ministry of Housing, Utilities and Urban Communities: Cairo, Egypt, 2006.
- Dabaieh, M.; Wanas, O.; Hegazy, M.A.; Johansson, E. Reducing Cooling Demands in a Hot Dry Climate: A Simulation Study for Non-Insulated Passive Cool Roof Thermal Performance in Residential Buildings. Energy Build. 2015, 89, 142–152. [Google Scholar] [CrossRef] [Green Version]
- Mahmoud, A.H.A. An Analysis of Bioclimatic Zones and Implications for Design of Outdoor Built Environments in Egypt. Build. Environ. 2011, 46, 605–620. [Google Scholar] [CrossRef]
- Rahif, R.; Hamdy, M.; Homaei, S.; Zhang, C.; Holzer, P.; Attia, S. Simulation-Based Framework to Evaluate Resistivity of Cooling Strategies in Buildings against Overheating Impact of Climate Change. Build. Environ. 2022, 208, 108599. [Google Scholar] [CrossRef]
- DesignBuilder Product Overview. Available online: https://designbuilder.co.uk/software/product-overview (accessed on 18 November 2021).
- Radhi, H. On the Optimal Selection of Wall Cladding System to Reduce Direct and Indirect CO2 Emissions. Energy 2010, 35, 1412–1424. [Google Scholar] [CrossRef]
- Attia, S.; Carlucci, S. Impact of Different Thermal Comfort Models on Zero Energy Residential Buildings in Hot Climate. Energy Build. 2015, 102, 117–128. [Google Scholar] [CrossRef] [Green Version]
- Luo, M.; Cao, B.; Damiens, J.; Lin, B.; Zhu, Y. Evaluating Thermal Comfort in Mixed-Mode Buildings: A Field Study in a Subtropical Climate. Build. Environ. 2015, 88, 46–54. [Google Scholar] [CrossRef]
- De Dear, R.J.; Akimoto, T.; Arens, E.A.; Brager, G.; Candido, C.; Cheong, K.W.D.; Li, B.; Nishihara, N.; Sekhar, S.C.; Tanabe, S.; et al. Progress in Thermal Comfort Research over the Last Twenty Years. Indoor Air 2013, 23, 442–461. [Google Scholar] [CrossRef]
- Lm Hensen, J. Investigating the Impact of Different Thermal Comfort Models for Zero Energy Buildings in Hot Climates. In Proceedings of the 1st International Conference on Energy and Indoor Environment for Hot Climates, ASHRAE, Doha, Qata, 24–26 February 2014; pp. 110–117. [Google Scholar]
- Attia, S.; De Herde, A. Impact and Potentials of Community Scale Low-Energy Retrofit: Case Study In Cairo. In Proceedings of the 3rd CIB International Conference on Smart and Sustainable Built Environment, TU Delft, Dutch, 15–19 June 2009. [Google Scholar]
- ASHRAE. ANSI/ASHRAE Standard 55-2017, Thermal Environmental Conditions for Human Occupancy, 2017th ed.; ASHRAE: Atlanta, GA, USA, 2017. [Google Scholar]
- Climate.oneBuilding.Org. Available online: http://climate.onebuilding.org/WMO_Region_1_Africa/default.html (accessed on 22 August 2020).
- Edeisy, M.; Cecere, C. Envelope Retrofit in Hot Arid Climates. Procedia Environ. Sci. 2017, 38, 264–273. [Google Scholar] [CrossRef]
- Ministry of Housing, Utilities and Urban Communities. Egyptian Specifications for Thermal Insulation Work Items-Ministerial Resolution No. 176 of 1998; Ministry of Housing, Utilities and Urban Communities: Ciro, Egypt, 2008.
- Cai, S.; Zhang, B.; Cremaschi, L. Review of Moisture Behavior and Thermal Performance of Polystyrene Insulation in Building Applications. Build. Environ. 2017, 123, 50–65. [Google Scholar] [CrossRef]
- Hanna, G.B. Energy Efficiency Building Codes for Egypt. J. Energy Power Eng. 2011, 5, 1134–1141. [Google Scholar]
- El-Darwish, I.; Gomaa, M. Retrofitting Strategy for Building Envelopes to Achieve Energy Efficiency. Alexandria Eng. J. 2017, 56, 579–589. [Google Scholar] [CrossRef] [Green Version]
- Morsy, M.; Fahmy, M.; Abd Elshakour, H.; Belal, A.M. Effect of Thermal Insulation on Building Thermal Comfort and Energy Consumption in Egypt. J. Adv. Res. Appl. Mech. 2018, 43, 8–19. [Google Scholar]
- EU, C.D.R. Commission Delegated Regulation (EU) 626/2011 of 4 May 2011supplementing Directive 2010/30/EU with Regard to Energylabelling of Air Conditioners. Off. J. Eur. Union 2011, 178, 1–72. [Google Scholar]
- MOEE. Air Conditioner Instructions. Available online: http://www.moee.gov.eg/tarshed/elect_device_saving.aspx (accessed on 22 November 2021).
- The Solar Atlas of Egypt. Available online: http://www.nrea.gov.eg/Technology/SolarIntro (accessed on 11 November 2021).
- Alalouch, C.; Al-Saadi, S.; AlWaer, H.; Al-Khaled, K. Energy Saving Potential for Residential Buildings in Hot Climates: The Case of Oman. Sustain. Cities Soc. 2019, 46. [Google Scholar] [CrossRef]
- Friess, W.A.; Rakhshan, K. A Review of Passive Envelope Measures for Improved Building Energy Efficiency in the UAE. Renew. Sustain. Energy Rev. 2017, 72, 485–496. [Google Scholar] [CrossRef]
- Ferrara, M.; Fabrizio, E.; Virgone, J.; Filippi, M. A Simulation-Based Optimization Method for Cost-Optimal Analysis of Nearly Zero Energy Buildings. Energy Build. 2014, 84, 442–457. [Google Scholar] [CrossRef]
- Georges, L.; Berner, M.; Mathisen, H.M. Air Heating of Passive Houses in Cold Climates: Investigation Using Detailed Dynamic Simulations. Build. Environ. 2014, 74, 1–12. [Google Scholar] [CrossRef] [Green Version]
- Sadeghifam, A.N.; Zahraee, S.M.; Meynagh, M.M.; Kiani, I. Combined Use of Design of Experiment and Dynamic Building Simulation in Assessment of Energy Efficiency in Tropical Residential Buildings. Energy Build. 2015, 86, 525–533. [Google Scholar] [CrossRef]
- Becchio, C.; Dabbene, P.; Fabrizio, E.; Monetti, V.; Filippi, M. Cost Optimality Assessment of a Single Family House: Building and Technical Systems Solutions for the NZEB Target. Energy Build. 2015, 90, 173–187. [Google Scholar] [CrossRef]
- Mahdy, M.M.; Nikolopoulou, M. Evaluation of Fenestration Specifications in Egypt in Terms of Energy Consumption and Long Term Cost-Effectiveness. Energy Build. 2014, 69, 329–343. [Google Scholar] [CrossRef]
- NREL PVWatts® Calculator. Available online: https://pvwatts.nrel.gov/pvwatts.php (accessed on 8 November 2021).
- Aboulnaga, M.; Wanas, A.; Hammad, M.; Hussein, M. Sustainability of Higher Educational Buildings: Retrofitting Measures to Enhance Energy Performance-the Case of AASTMT Business Management School Building, Egypt. In Mediterranean Green Buildings and Renewable Energy: Selected Papers from the World Renewable Energy Network’s Med Green Forum; Sayigh, A., Ed.; Springer: Cham, Switzerland, 2017; pp. 117–150. [Google Scholar]
- Saleh, M.A.E. Impact of Thermal Insulation Location on Buildings in Hot Dry Climates. Sol. Wind Technol. 1990, 7, 393–406. [Google Scholar] [CrossRef]
- Alrashed, F.; Asif, M. Trends in Residential Energy Consumption in Saudi Arabia with Particular Reference to the Eastern Province. J. Sustain. Dev. Energy Water Environ. Syst. 2014, 2, 376–387. [Google Scholar] [CrossRef] [Green Version]
- Zilberberg, E.; Trapper, P.; Meir, I.A.; Isaac, S. The Impact of Thermal Mass and Insulation of Building Structure on Energy Efficiency. Energy Build. 2021, 241, 110954. [Google Scholar] [CrossRef]
- Alwetaishi, M.; Al-Khatri, H.; Benjeddou, O.; Shamseldin, A.; Alsehli, M.; Alghamdi, S.; Shrahily, R. An Investigation of Shading Devices in a Hot Region: A Case Study in a School Building. Ain Shams Eng. J. 2021, 12, 3229–3239. [Google Scholar] [CrossRef]
- Ali, A.A.M. Using Simulation for Studying the Influence of Horizontal Shading Device Protrusion on the Thermal Performance of Spaces in Residential Buildings. Alexandria Eng. J. 2013, 52, 787–796. [Google Scholar] [CrossRef] [Green Version]
- IEA. Egypt Data and Statistics. Available online: https://www.iea.org/data-and-statistics/data-tables/?country=EGYPT&energy=Balances&year=2019 (accessed on 12 March 2022).
- Elsayed, M. Assessing the Impacts of “Feed-in Tariffs Vs. Net Metering” in Deploying Solar Market in Egypt; The American University in Cairo: Cairo, Egypt, 2017. [Google Scholar]











| Model Input Measures | ||
|---|---|---|
| Building Envelope | The Window to Wall ratio (WWR), in % | 45 (N), 35 (S) |
| Windows U-value, in W/(m2.K) | U = 6.25 | |
| Shading coefficient for glass (SC) | 0.70 | |
| Solar Heat Gain Coefficient (SHGC) | 0.75 | |
| Overhangs, projection factor (PF), for E, W, and S | 0 | |
| Shading glass ratio (SGR) (blind/screen) | 0 | |
| Exterior Wall U-value, in W/(m2.K) | U = 2.50 | |
| Roof U-value, in W/(m2.K) | U = 1.39 | |
| Air Conditioning | Coefficient of Performance (COP) | 2.00 |
| Energy Efficiency Ratio (EER) | 6.8 | |
| Temperature cooling set point, in (°C) | 24 | |
| Relative humidity set-point, in (%) | 60 | |
| Lighting | Installation power density, in (W/m2), living rooms | 17 |
| Installation power density, in (W/m2), bedrooms | 13 | |
| Installation power density, in (W/m2), other | 9 | |
| Plug loads | Average installation power density, in (W/m2) | 6 |
| Occupancy Density | Five people per apartment | |
| Activity (metabolic rate) | Metabolism level | 0.9 |
| Clothing | Summer clothing (clo) | 0.5 |
| Winter clothing (clo) | 1.0 | |
| HVAC systems Schedules | Living rooms(Summer Season 1 June–30 August) | Operating 17:00 to 23:00 |
| Living rooms(Ramadan Season 31 August–29 September) | Operating 15:00 to 23:00 | |
| Bedrooms(Summer and Ramadan Season) | Operating 23:00 to 5:00 | |
| Occupancy Schedules | Figure 5 shows the occupancy percentages | |
| Lighting Schedules | Figure 6 shows the operating hours of the lighting system | |
| Orientation | External Surface Absorptivity (α) | Required Min. R-Values for Insulated External Walls | Max. Solar Heat Gain Coefficient Values | Min. Shaded Glass Ratio | ||||||||||
|---|---|---|---|---|---|---|---|---|---|---|---|---|---|---|
| Cairo and Delta Zone | Assembly Min. R-Value | Min. R-Value Insulation | WWR % | |||||||||||
| (m2 °C/W) | <10 | 10–20 | 20–30 | >30 | <10 | 10–20 | 20–30 | >30 | ||||||
| (m2 °C/W) | 0.40 | 0.60 | 0.80 | SHGC | SGR | |||||||||
| Roof | 0.7 | 2.7 | 2.7 | 2.3 | 2.1 | |||||||||
| Wall | N | 0.38 | 0.70 | 0.30 | NR | NR | NR | NR | 0.71 | 0.67 | NR | NR | 60% | 70% |
| 0.50 | 0.74 | 0.34 | 0.14 | NR | ||||||||||
| 0.70 | 0.82 | 0.42 | 0.22 | NR | ||||||||||
| NE/NW | 0.38 | 0.89 | 0.49 | 0.29 | NR | 0.65 | 0.50 | 0.45 | 0.35 | 60% | 80% | 90% | 90% | |
| 0.50 | 1.00 | 0.60 | 0.40 | 0.20 | ||||||||||
| 0.70 | 1.18 | 0.78 | 0.58 | 0.38 | ||||||||||
| E/W | 0.38 | 1.07 | 0.67 | 0.47 | 0.27 | 0.50 | 0.40 | 0.35 | 0.27 | 70% | 80% | 90% | 90% | |
| 0.50 | 1.23 | 0.83 | 0.63 | 0.43 | ||||||||||
| 0.70 | 1.50 | 1.18 | 0.90 | 0.70 | ||||||||||
| SE/SW | 0.38 | 0.97 | 0.57 | 0.37 | 0.17 | 0.50 | 0.40 | 0.35 | 0.27 | 60% | 80% | 90% | 90% | |
| 0.50 | 1.23 | 0.83 | 0.63 | 0.43 | ||||||||||
| 0.70 | 1.32 | 0.92 | 0.72 | 0.52 | ||||||||||
| S | 0.38 | 0.82 | 0.42 | 0.22 | 0.02 | 0.71 | 0.64 | 0.55 | 0.50 | 60% | 70% | 90% | 90% | |
| 0.50 | 0.90 | 0.50 | 0.30 | NR | ||||||||||
| 0.70 | 1.04 | 0.64 | 0.44 | 0.24 | ||||||||||
| Insulation Materials Categories | Material Name | Thermal Conductivity (K) (W/m.°C) | Density (kg/m3) |
|---|---|---|---|
| Loose Fill Insulating Materials | (1) Vermiculite | 0.065 | 1000 |
| (2) Perlite | 0.039–0.06 | 32–176 | |
| Semi-Rigid Insulating Materials | (1) Cork | 0.039–0.052 | 100–115 |
| (2) Wool | |||
| (a) Glass wool (b) Rock wool (c) Slag wool | 0.043–0.078 | 72 | |
| 0.043–0.055 | 72 | ||
| 0.036–0.058 | 72 | ||
| Rigid Insulating Materials | Polystyrene | ||
| (a) Expanded Polystyrene (b) Extruded Polystyrene | 0.0343 | 29 | |
| 0.0289 | 29 | ||
| Foamed Insulating Materials | (1) Polyurethane (2) Foamed concrete | 0.026 | NA |
| 0.1–0.25 | 400–880 |
| Summary of All Energy-Saving Scenarios | ||||||
|---|---|---|---|---|---|---|
| ID # | Scenario Description | Electricity Consumption kWh/m2/year | Cooling Consumption kWh/m2/year | Annual Electricity Saving % | Annual Cooling Electricity Saving % | Comment |
| Building Envelope & Operational Energy-Saving Scenarios | ||||||
| 1 | Enhancing the exterior walls’ thermal efficiency | 36.31 | 16.35 | 6.97 | 13.17 | - |
| 2 | Enhancing the roof thermal efficiency | 38.48 | 18.28 | 1.41 | 2.92 | - |
| 3 | Glazing replacement and shading devices | 36.32 | 16.12 | 6.93 | 14.36 | - |
| 4 | Building Envelope enhancement | 32.06 | 12.10 | 17.86 | 35.74 | - |
| 5 | Lighting enhancement | 32.97 | 17.84 | 15.52 | 5.24 | - |
| 6 | HVAC temperature control | 36.79 | 16.59 | 5.74 | 11.89 | - |
| 7 | Building Envelope & Operational (BE&O) retrofit scenario | 24.26 | 9.31 | 37.85 | 50.53 | - |
| nZEB Energy-Saving Scenario | ||||||
| 8 | nZEB Scenario (Solar Photovoltaics-PV installation area = (145 m2) | 100 | 100 | nZEB | ||
Publisher’s Note: MDPI stays neutral with regard to jurisdictional claims in published maps and institutional affiliations. |
© 2022 by the authors. Licensee MDPI, Basel, Switzerland. This article is an open access article distributed under the terms and conditions of the Creative Commons Attribution (CC BY) license (https://creativecommons.org/licenses/by/4.0/).
Share and Cite
GamalEldine, M.; Corvacho, H. Compliance with Building Energy Code for the Residential Sector in Egyptian Hot-Arid Climate: Potential Impact, Difficulties, and Further Improvements. Sustainability 2022, 14, 3936. https://doi.org/10.3390/su14073936
GamalEldine M, Corvacho H. Compliance with Building Energy Code for the Residential Sector in Egyptian Hot-Arid Climate: Potential Impact, Difficulties, and Further Improvements. Sustainability. 2022; 14(7):3936. https://doi.org/10.3390/su14073936
Chicago/Turabian StyleGamalEldine, Mennaallah, and Helena Corvacho. 2022. "Compliance with Building Energy Code for the Residential Sector in Egyptian Hot-Arid Climate: Potential Impact, Difficulties, and Further Improvements" Sustainability 14, no. 7: 3936. https://doi.org/10.3390/su14073936
APA StyleGamalEldine, M., & Corvacho, H. (2022). Compliance with Building Energy Code for the Residential Sector in Egyptian Hot-Arid Climate: Potential Impact, Difficulties, and Further Improvements. Sustainability, 14(7), 3936. https://doi.org/10.3390/su14073936

